您现在的位置: 首页 >> 交易信息 >> 合肥市产权交易中心

项目编号:2024HCGCA01169

项目名称:永和南苑A-S1楼(局部)、集中商业办公楼(局部)经营权转让

永和南苑A-S1楼(局部)、集中商业办公楼(局部)经营权转让公告

 

项目名称

永和南苑A-S1楼(局部)、集中商业办公楼(局部)经营权转让

项目编号

2024HCGCA01169

委托方

合肥高新股份有限公司

委托方承诺

委托方承诺本次转让行为已履行了必要的审批程序,保证本公告的内容不存在任何重大遗漏、虚假陈述或严重误导,并对其内容及所提供资料的真实性、完整性和准确性负责。

交易监督管理部门

合肥高新技术产业开发区财政局

联系方式:0551-65309502

电子交易系统

名称:安徽公共资源交易集团电子交易系统

电话:400 998 0000

电子服务系统

名称:安徽合肥公共资源交易电子服务系统

电话:0551-12345

公告期限

公告期:2024年9月10日9:00始至2024年9月30日10:00止。

一、转让标的情况

转让标的

转让期限年)

转让底价(万元/年

交易保证金(万元)

永和南苑A-S1楼(局部)、集中商业办公楼(局部)经营权

6

455.76425

45

永和南苑A-S1楼、集中商业办公楼分别位于高新区皖水路1555号永和南苑三期A-S1幢和商业集中商业办公楼,标的均有不动产权证;结构:均为钢筋混凝土结构;证载用途:均为城镇住宅用地/商业服务;永和南苑A-S1楼(局部)转让面积:约1447.01平方米;集中商业办公楼(局部)转让面积:约4827.61平方米;永和南苑A-S1楼(局部)所在层数/总层数:1-2/3,其中第2层经营权局部转让;集中商业办公楼(局部)所在层数/总层数:1-3/5,其中第1层经营权局部转让

经营房产用途要求

1.转让期内,可经营水果、鲜花、美容美发、通信服务、服装、餐饮等服务周边社区居民的业态,不得从事废品回收、烟花爆竹、殡仪服务等有碍居民生活的、涉及易燃易爆危险品(油漆、液化气、新型燃料等)储存经营的、产生危险废物的以及其他不符合法律法规规定的业态。其中,集中商业楼二层须引进一家大型品牌连锁超市(品牌如:永辉、合家福、华联、苏果、红府超市、好又多等知名品牌),单店面积不少于1000㎡以上,卖场内的商品种类要齐全,能满足大多数人的日常生活需求;集中商业楼三层须引进一家大中型中餐店;至少引进一家品牌连锁快餐店,品牌如:老乡鸡、蒸小皖、满口意等;至少引进一家品牌连锁药店,品牌如:国胜、百姓缘等。

2.受让方使用上述房屋必须符合房屋设计用途相关法律法规要求,如由此造成受让方不能按预想的方案使用房屋,或者导致转让合同不能履约的,责任由受让方承担。

经营费用及履约保证金支付

1.经营费用每6个月支付一次,先支付后使用;经营期内,经营费用有递增:1年和第2年经营费用同成交价,第3年和第4年均在第1年经营费用的基础上递增5%,第5年和第6年经营费用均在第4年经营费用的基础上递增5%。首次经营费用支付后,后续费用须提前一个月支付。本项目给予免费用装修期120日,含在转让期限

2.履约保证金为首年6个月经营费用总额,成交人《成交确认书》发出之日起30日内(合同签订前)向委托方提交履约保证金。

二、对意向受让方资格的要求

(一)符合下列条件,并具有完全民事行为能力的境内企事业法人可参与项目登记及竞价

1.未被合肥市及其所辖县(市)、区(开发区)公共资源交易监督管理部门记不良行为记录的或被记不良行为记录(以公布日期为准),但同时符合下列情形的:

1)公告截止日前(含当日)6个月内记分累计未满10分的;

2)公告截止日前(含当日)12个月内记分累计未满15分的;

3)公告截止日前(含当日)18个月内记分累计未满20分的;

4)公告截止日前(含当日)24个月内记分累计未满25分的。

2.意向受让方具有下列业绩,且业绩数量不少于2个:

2019年1月1日以来(以合同签订时间为准),具有已完成(或正在履约)的单个合同建筑面积不低于6000平方米的商业经营(或运营)业绩(不含物业管理业绩)

(二)本项目不接受自然人、个体工商户及联合体等参与。

三、转让条件

1.意向受让方应公告期截止前现场踏勘经营房产,就标的相关情况主动向委托方咨询,自行了解可能涉及的相关法律法规及市政规定;凡参与的意向受让方都视同已实地踏勘,确认了经营房产位置、范围、面积和现状等并认可转让要求等,自愿承担因上述原因导致的一切后果和法律责任。

2.本次转让标的实际移交面积与公告中面积存在差异的,以实际移交面积为准,面积误差不调整经营费用

3.转让期内,受让方不得以任何形式整体转让、出借标的房屋。因使用房屋而产生的各种纠纷须由受让方自行协调解决。

4.转让期内,受让方负责转让房屋的日常安全管理消防安全工作并承担转让房屋发生的水、电、燃气、通讯(网络)、垃圾清运、物业、停车消防工作等相关费用自觉接受、配合有关部门的监督检查,不得有危害消防安全的行为。

5.转让标的区域详见附图,委托方与受让方办理房屋交接手续后,其中涉及A-S1二层须分割部位由委托方60日内实施分割委托方根据自身情况可能提前启动实施分割,无论何种情况,受让方不得因实施房屋分割而推迟接收房屋)委托方实施分割期间已含在免费用装修期内,受让方不得因委托方实施房屋分割等因素对经营费用或免费用装修期等提出调整要

6.受让方招商与第三方签订的合同期限不能超过委托方受让方的合同截止期限,且受让方应对第三方的行为和责任向委托方承担连带保证责任;不得发生第三方再次转租行为。受让方与第三方签订的本项目有关的任何合同,必须在合同签订后10日内提供真实、完整的合同报委托方备案。

7.受让方须负责集中商业楼(含地下车库、三台箱式电梯的年检和日常维保养护)、A-S1商业楼整体的物业管理工作及永和南苑商业街附属的2个垃圾分类点的管理,包括但不限于环境卫生、秩序维护、零星维修(单次单项2000元以下)、共用设施设备维护、安全管理、水电费收缴并确保收支平衡(公共能耗由受让方承担)、文明创建等工作,委托方及上述楼栋内非转让标的区域的房屋使用人/产权人不予支付任何费用,受让方须综合考虑谨慎报价。后期委托方另行选聘物业管理单位后,受让方将上述物业管理工作移交物业管理公司负责,并按物业费中标价(不高于3元/平方/月)向物业公司缴纳物业费用,但本次转让标的内部的各项日常管理工作仍由受让方自行负责(即物业管理单位不入户服务,物业公司负责公共区域,受让方负责专有区域)。

8.受让方负责标的范围内的安全管理,包括不限于房屋附属电路、烟感、喷淋等消防设施设备的安全检测、维护保养和故障维修等事宜,受让方须于合同签订后三个月内就项目整体及每个独立商铺的消防安全,组织第三方检测并自行完成整改,整改完成后依法经营。转让期限内,受让方须确保房屋及附属设施设备满足消防主管部门要求和消防规范,同时,每年至少组织一次第三方检测并及时整改。

9.转让期内,受让方对转让房屋进行装修、装潢时,装修、装潢方案须经委托方书面同意,且装修、装潢不得改动或破坏房屋结构。如擅自改动或破坏房屋结构,受让方应立即恢复原状,给委托方第三方造成的损失应由受让方承担赔偿责任。转让房屋的装修、装潢费用及转让期内房屋的维修费用全部由受让方自行承担。

10.转让期内,受让方不得以任何理由要求减免转让费用。如因法律法规及市政规定需要拆除或改造转让房屋而导致合同解除的,转让费用按照实际转让时间计算,不足整月的按实际天数计算,多退少补。

11.《经营权转让合同》期满或终止时,经营权转让的房屋内的装修、装潢部分以及为项目提升改造投入的固定装修和设施设备无偿归委托方所有和使用,并将转让房屋在合同终止后10日内交还委托方,且不得提出任何补偿要求。

12.合同签订后,受让方须编制项目整体品质、形象、业态等提档升级方案,报委托方同意后自行组织实施。

13.受让方须做好项目维稳工作。若本项目非原受让方成交,受让方须与原受让方招商的当前正在经营的小商户友好协商后期是否继续租赁等事宜,如协商未达成一致,受让方须给予该部分商户不少于4个月的过渡期,过渡期租金不得高于小商户与原受让方最后一期合同租金。原受让方在经营期内增设的非装修部分投入资产(如变压器、扶梯、道闸等)产权归原受让方(或其招商商户)所有,受让方有所需,须自行与其协商。

14.受让方应于签订合同缴纳首期经营费用及履约保证金,委托方应于收到受让方交付的首期经营费用及履约保证金后90天内(具体以实际移交时间为准)将转让房屋交付给受让方。若因委托方原因推迟交房,则将转让终止时间进行等长时段的顺延,实际转让期保持不变,如委托方延期交房达30日以上,受让方有权解除合同,双方均无需承担违约责任。若因受让方原因推迟交房,则转让终止时间不予以顺延转让期起始时间委托方通知交接房屋的最后一日起算。转让房屋移交材料经双方交验签字后视为交付完成。

15.转让期内,本项目具备使用燃气条件后(燃气主管道铺设至商铺外墙),受让方须开通并使用燃气,相关费用由受让方自行承担。

16.受让方自管物业期间,须向物业报备的事项,受让方向委托方及主管部门报备,有物业管理单位时,依以下约定执行:

转让期内,受让方委托方指定物业公司签订物业管理合同并应于物业公司书面通知受让方签订物业管理合同后一个月内签订。受让方须配合委托方及物业公司的整体管理符合文明创建要求。如受让方拒不签订物业管理合同委托方可单方解除合同,不承担任何违约责任,收回该房屋,并不予返还受让方履约保证金不予支付受让方任何装修补偿费用。

转让期内,受让方转让房屋进行装修、装潢时,应确保装修、装潢方案符合消防、环保、卫生等主管部门的相关规定。受让方完成装修、装潢后,如不能通过消防、环保、卫生等相关主管部门验收,导致合同无法履行,责任由受让方承担。

合同履行期内受让方需按行业主管部门及委托方的统一要求安装门头招牌,安装前需将门头方案报委托方审核,并经行业主管部门审批同意后报物业公司备案方可执行,自行承担所有费用,并于合同终止后予撤除。受让方应确保门头招牌符合相关广告、安全及消防规范,依法定程序进行,自行承担所有责任。物业公司现场监管,若发现受让方未按要求安装,物业公司下发书面通知,责令受让方立即整改直至整改完成。

转让期内,受让方如需安装空调,室外机必须安装在委托方指定的位置,因此加购管线材料等产生的费用由受让方自行承担,不具备条件安装空调的房屋,受让方不得擅自安装。

受让方不得以任何理由拒绝或延期缴纳经营费用、履约保证金、水电费等费用,否则视同受让方严重违约,委托方或物业公司可采取停水停电等管理措施,直至受让方缴齐拖欠的经营费用等费用。如受让方拒不缴齐拖欠的经营费用等费用逾期30日(含)的,视同受让方严重违约,委托方可单方解除合同,不承担任何违约责任,收回该房屋,并不予返还受让方履约保证金,不予支付受让方任何装修补偿费用。

受让方承担的水、电费用包括自用部分和公摊部分(公摊部分包括路灯、景观灯等公共区域用水用电,以及正常的电损、水损,具体以物业公司最终核定的数据为准)。

合同履行期间,如房屋需要维修,受让方需书面向物业公司提交报修申请,由委托方与物业公司共同进行检查,如属于房屋施工质量问题的,由委托方安排维修并承担维修费用;如因受让方装修或使用不当等原因而导致房屋损坏的,由受让方维修并承担维修费用,其中,属于房屋结构等质量问题的,由委托方安排维修,受让方承担维修费用;如属于正常易耗物品的且属于受让方自用部分的(如开关、面板、灯具、水龙头、卫生洁具等)由受让方自行更换并承担费用。受让方不得以房屋存在质量问题为由拒绝或延期缴纳房租、水电等费用,否则视同受让方违约,委托方或物业公司可采取停水停电等管理措施,直至受让方缴齐拖欠的所有费用。如受让方拒不缴齐拖欠的所有费用逾期30日(含)的,视同受让方严重违约,委托方可单方解除合同,不承担任何违约责任,收回该房屋,并不予返还受让方履约保证金,不予支付受让方任何装修补偿费用。

⑧转让期内,如受让方因单方面原因需提前解除合同的,应提前30日以书面形式通知委托方并承担违约责任,如履约未满2年,违约金为2个月当期月经营费用;满2年未满4年,违约金为1个月当期月经营费用;满4年,无违约金。

受让方确保在转让标的内诚信经营,不得以欺诈、瞒骗的行为从事商业活动否则委托方可单方解除合同收回房屋不予补偿受让方任何装修费用扣除受让方全部履约保证金作为违约金。如造成委托方损失或法律纠纷受让方除需承担出租人损失外还需承担一切责任。

17.转让期内关于装修、装潢的约定:

合同履行期间,受让方须对该房屋进行装修的,应向物业公司缴纳装修保证金并服从委托方及物业公司的统一管理由物业公司给受让方下发《同意进场装修通知书》后,受让方方可进场装修。装修保证金具体数额根据物业管理协议确定。如受让方未取得《同意进场装修通知书》,擅自进行装修的,视同受让方违约,物业公司不予返还受让方装修保证金,委托方将与物业公司共同下发书面通知责令受让方立即停止装修工作,待受让方取得《同意进场装修通知书》后方可复工。

②受让方的装修设计方案需报经委托方和物业公司书面同意,同时,为满足消防、环保、安全、卫生等规范要求,受让方的装修设计方案还须报相关主管部门审核合格,并取得合格证,该合格证需报物业公司备案。如因受让方装修方案未通过审查而引起的一切损失,由受让方自行承担。

受让方装修完成后,需报请消防、环保、卫生等主管部门进行验收,并需取得验收合格证并报物业公司备案后,方可进行营业。如受让方未取得相关验收合格证而擅自营业,委托方将会同物业公司下发书面通知要求限期整改,并且采取停水停电等措施直至受让方整改合格。如受让方拒绝整改,或未按期完成整改的,视同受让方严重违约,委托方有权终止合同,并不予退还受让方所交纳的装修保证金和履约保证金。因受让方装修未通过验收而引起的一切损失,由受让方自行承担。

受让方的装修方案可能对公用部分及其它相邻用户造成影响的,委托方或物业公司可对该部分方案提出异议,受让方应予以修改。否则物业公司将不予下发《同意进场装修通知书》。

受让方装修期间应严格按经审批的方案进行装修,不得擅自对方案进行修改。受让方未经委托方同意擅自修改装修方案,视同受让方违约,物业公司将不予返还装修保证金。物业公司书面通知受让方立即停止装修并限期整改,恢复原状或赔偿损失。如受让方拒不整改,委托方可代为整改,费用由受让方承担。如受让方拒不整改,也不配合委托方整改的,委托方可采取停水停电等管理措施,直至开始整改。如受让方拒不整改或拒绝委托方整改逾期30日(含)的,视同受让方严重违约,委托方可单方解除本合同,不承担任何违约责任,收回该房屋,并不予返还受让方履约保证金和剩余经营费用,不予支付受让方任何装修补偿费用。受让方履约保证金及剩余经营费用不足以支付委托方整改费用及其他损失的,受让方需另行支付。

受让方应合理使用该房屋及其附属设施、设备等,如因使用不当造成房屋及设施、设备损坏的,物业公司书面通知受让方立即停止破坏并限期整改恢复原状或赔偿损失。受让方拒不整改,委托方可代为整改,费用由受让方承担。如果受让方拒不整改,也不配合委托方整改,委托方可采取停水停电等管理措施,直至开始整改;如受让方拒不整改或拒绝委托方整改逾期30日(含)的,视同受让方严重违约,委托方可单方解除本合同,不承担任何违约责任,收回该房屋,并不予返还受让方履约保证金,不予支付受让方任何装修补偿费用。

受让方应积极配合物业公司维护该房屋所在项目的公共设施、公共安全、公共卫生和车辆秩序。在转让期内,受让方不得出店经营;不得私自占用公共区域、公共设施;不得随意在项目内任何公共区域张贴广告、悬挂标志或文字;不得以任何目的或形式使用项目、委托方的名号及标志或该名号及标志的各种图像,否则视同受让方违约,每发生一次扣除履约保证金的10%,作为受让方支付的违约金,同时物业公司将立即下发书面通知限期整改,如受让方拒绝整改或限期未完成整改的,委托方或物业公司可采取停水停电等措施,直至完成整改,如受让方拒不整改逾期30日(含)的,视同受让方严重违约,委托方可单方解除本合同,不承担任何违约责任,收回该房屋,并不予返还受让方履约保证金,不予支付受让方任何装修补偿费用。

受让方应确保安全生产、经营,保证不在该房屋内存放危险物品。否则,视同受让方严重违约,委托方可单方解除本合同,不承担任何违约责任,收回该房屋,并不予返还受让方履约保证金,不予支付受让方任何装修补偿费用。如对该房屋及附属设施造成损失或对委托方、物业公司、其他方造成人身伤害、财产损失的,由受让方承担全部责任。

受让方应在合同到期日后天内办理完退房手续,并交还该房屋。交还该房屋时,受让方可清空受让方所购置的家具、电器设备等财产,但不得拆除或破坏固定装修物,委托方将不予支付受让方任何装修补偿费用。同时需结清房租、水电等费用,交还房屋钥匙,办理退房手续;退房手续办理完毕之后,委托方出具受让方离场通知单,物业公司核实受让方离场通知单后放行。

18.受让方违约导致委托方提前解除合同、收回房屋的,受让方应在委托方要求的期限内交还房屋。受让方逾期不交,委托方将采取停水停电等管理措施,同时受让方需每天按本合同日使用费标准的2倍支付房屋使用费;逾期超过30日(不含)不交的,委托方将有权邀请公证部门自行予以清空该房屋并对房屋中的物品自行处置,无需向受让方承担赔偿责任,或通过法律手段收回该房屋。

19.受让方应在《成交确认书》发出之日起30内与委托方签订转让合同,逾期不与委托方签订合同的,委托方有权取消其成交资格,并报交易监督管理部门调查处理

20.项目产权方为合肥高新智城发展有限公司其他未尽事项详见本公告附件《经营权转让合同》。

四、受让方的确定方式

本项目采取资格审查后一次性报价(以报价单为准)的方式进行,遵循有效最高价成交的交易原则,分两阶段进行。

第一阶段  资格审查资料评审

合肥市产权交易中心受委托方委托组建该项目评审小组。由评审小组对意向受让方的资格审查资料及交易保证金进行审查。评审小组成员对意向受让方某项资格审查资料如有不同意见,按照少数服从多数的原则,确定该项资格审查资料是否通过。如意向受让方提交的材料中有一项未通过或交易保证金未按要求提交的,则视为资格审查不通过。

第二阶段 开启一次性报价单

资格审查评审结束后,解密通过资格审查的意向受让方一次性报价单,评审小组对报价有效性进行审查,并按报价从高到低的顺序确定最高有效报价。最高有效报价通过系统问询的方式发送至本项目优先权人,优先权人应在15分钟内通过电子交易系统回复是否行使优先权。具体规则如下:

1.如优先权人回复行使优先权的,则优先权人被确定为受让方,成交金额为最高有效报价;

2.如优先权人回复不行使优先权或非系统原因优先权人超时未回复的,则视为自动放弃行使优先权,最高有效报价者被确定为受让方,成交金额为最高有效报价。如有多个相同最高有效报价,则评审小组以抽签的方式确定其前后次序。抽签办法:采用一次性抽签方式,即被抽中的确定为受让方。

3.如仅有优先权人通过资格审查,且优先权人回复行使优先权的,则优先权人被确定为受让方,成交金额为本项目公告中转让底价。

4.项目成交后因故不能签订合同的,不予替补,重新公开转让。

备注

1.竞价文件中报价单内容与系统中报价信息内容不一致的,以报价单为准。

2.评审过程中,竞价文件中存在不明确、同类问题表述不一致、前后矛盾、有明显文字错误的内容等情况,如需要意向受让方澄清、说明或补正的,评审小组将可能进行问询,意向受让方应登录电子交易系统并保持在线状态,以便及时接收评审小组可能发出的问询函,并在规定时间内回复,若意向受让方未及时回复,视为放弃澄清。意向受让方澄清、说明或补正的内容不得超出交易文件的范围且不得改变竞价文件的实质性内容,并构成竞价文件的组成部分。评审小组不接受意向受让方主动提出的澄清、说明或补正。

3.因意向受让方委托代理人联系不上、没有及时登录系统等情形而无法接受评审小组问询的,有关风险意向受让方自行承担。

4.同等价格下,优先权人享有优先权。优先权人须按照本公告要求及时办理注册、登记及交易保证金交纳和竞价文件递交手续成为合格意向受让方后,方可行使优先权逾期或者未按规定完成下述流程视同放弃优先权。

五、意向受让方参与方式

参与前须知

1.意向受让方须登录电子服务系统,使用与电子服务系统兼容的电子证书(简称CA),新办CA详情参见安徽合肥公共资源交易中心网站(网址:https://ggzy.hefei.gov.cn)“办事指南-主体库登记-市场主体登记服务指南》。

2.意向受让方查阅公告后,如参与本项目,则须登录电子交易系统在公告期限内完成“交易信息填写”,并编制加密竞价文件并在竞价文件提交截止时间前递交。

3.参与过程中有任何疑问,请在工作时间(9:00-17:30,节假日休息)拨打技术支持电话:4009980000(非项目咨询)。

交易保证金交纳

1.意向受让方应当竞价文件提交截止时间前通过转账形式足额交纳交易保证金到达本项目本次公告指定账号,且应当从意向受让方账号转出。交易保证金账户信息如下:

户名:合肥市产权交易中心

开户银行:中国光大银行合肥阜南路支行

账号:700188015208900

2.竞价文件提交截止时间后,合肥市产权交易中心将从交易保证金查询系统中查询交易保证金信息,并提交评审小组评审。

3.交易保证金交纳人名称与意向受让方名称应当一致。分公司或子公司代交交易保证金,视同名称不一致。交易保证金交纳人名称与意向受让方名称不一致的,交易保证金无效。未按要求提交交易保证金评审不通过。

注意事项

1.交易保证金交纳账号采用动态虚拟账号,项目未成交的交易保证金交纳账号将会发生变化,请意向受让方参与后续项目竞价时,注意勿将交易保证金错交至其他项目虚拟账号或前次公告账号。

2.如本项目前次成交失败,按公告约定退还意向受让方交易保证金。意向受让方重新参与竞价的,须向本项目重新公告对应公布的交易保证金账号重新交纳交易保证金

3.凡转账到其他项目虚拟账户或本项目前次公告账户的,交易保证金无效。

须递交的竞价文件资料(资格审查资料及报价资料)

竞价文件意向受让方应根据要求制订竞价文件材料,包含但不限于以下内容:

(一)资格审查资料(扫描件)

1.营业执照(或登记证书);

2.授权委托书或法定代表人身份证;

3.承诺函

4.业绩证明资料须同时提供以下资料:

1)合同扫描件。业绩合同提供关键页的扫描件包括不限于甲乙方名称、项目名称、合同签订时间、总建筑面积、合同签字盖章页等评审要素有关内容2)与业绩对应的正在履约(或已完成)的证明材料(如验收报告、合同甲方证明等,须加盖该业绩合同甲方公章)。

注:已签订合同但尚未实施的业绩不予认可。若提供的业绩合同未能明确反映出本公告所要求内容的(如单个合同建筑面积、合同签订日期等),应另附业主(或合同甲方)证明材料予以明确说明,须加盖项目业主单位或合同甲方公章,否则评审委员会不予认可。

特别说明:资格审查资料中不得含报价内容,否则评审不通过。

(二)报价资料

报价单

备注:意向受让方应按照本公告的要求准备竞价文件;并按竞价文件格式要求加盖意向受让方公章或电子签章。详见《竞价文件格式》(本公告上传附件1)

竞价文件制作

1.加密竞价文件(未提供的,竞价无效):

(1)加密竞价文件使用安徽合肥公共资源交易中心提供的电子标书制作工具软件制作生成。在竞价文件提交截止时间前通过电子交易系统上传递交。

(2)意向受让方请注意:①意向受让方需采用最新版竞价文件制作工具软件,具体请在安徽合肥公共资源交易电子服务系统-投标工具下载;②在国际互联网络通畅状态下启用最新版竞价文件制作工具软件;③各意向受让方需注意更新,以免造成加密竞价文件制作错误,因此导致竞价无效,责任自负。

2.本项目不接收未加密的竞价文件。

3.竞价文件组成

1)加密资格审查资料

有关格式资料见竞价文件格式

2)加密报价资料(优先权人的报价单无须填写最终报价)

有关格式资料见竞价文件格式

竞价文件提交截止时间及须知

1.竞价文件提交截止时间:北京时间2024年9月30日10:00  

2.竞价文件接收时间:加密电子竞价文件的接收时间自本公告发布时间起至竞价文件提交截止时间止(请意向受让方合理安排加密电子竞价文件的提交时间)。

3.意向受让方须知

1)意向受让方须对竞价文件进行电子签章并使用数字证书加密,并于公告规定的竞价文件提交截止时间前通过电子交易系统完成上传并递交。

2)意向受让方应当在竞价文件提交截止时间前完成加密竞价文件的传输递交,并可以补充、修改或者撤回竞价文件。竞价文件提交截止时间后未完成竞价文件传输的,视为撤回竞价文件。未按规定加密或竞价文件提交截止时间后送达的竞价文件,电子交易系统将拒收。

3)意向受让方未从电子交易系统递交加密竞价文件的,被视为竞价无效。所递交的非加密竞价文件电子交易系统及合肥市产权交易中心拒收。

竞价文件解密

1.意向受让方须在规定的时间内(一般为竞价文件提交截止时间后30分钟)对其加密竞价文件进行解密,现场解密和远程解密均可,解密失败的风险由意向受让方自行承担。

2.意向受让方须按照本公告的要求在竞价文件提交截止时间前登录电子交易系统并保持在线,直到项目评审结束。

3.意向受让方应在规定时间内对本单位的竞价文件进行解密,加密和解密须用同一数字证书。意向受让方未在规定的时间内完成解密的视为其放弃竞价。

4.合肥市产权交易中心在监督员监督下按规定解密竞价文件,导入并读取成功解密的竞价文件。

评审时间及地点

1.评审时间:竞价文件提交截止时间

(以本项目评审地点悬挂的电子屏幕显示时间为准)

2.评审地点:合肥市滨湖新区徽州大道4872号金融港中心A9幢安徽公共资源交易集团。

备注:意向受让方可以在线解密竞价文件,无须到达现场。

特别说明

1.本项目采用网上提交竞价文件方式,有关网上操作详见《安徽公共资源交易集团电子交易操作规程》(本公告上传附件2),意向受让方必须严格遵守,该规程是本公告的重要组成部分。

2.公告中要求加盖公章或电子签章的,均可以提供加盖公章的扫描件,也可以在网上竞价文件编制时加盖电子签章;公告要求提供的证明资料均应在网上竞价文件制作时制作成电子件上传。竞价文件中提交的资料模糊不清的,评审小组将按不利于意向受让方的理解进行评审,由此产生的一切后果由意向受让方自行承担。

3.竞价文件的澄清,评审小组将通过电子交易系统发送给意向受让方,从发起远程网上问询至问询结束原则上为15分钟,意向受让方未能在规定时间内回复的,由此产生的一切后果责任由意向受让方自行承担。

4.因系统出现软件设计或功能缺陷、运行异常等情况,可能影响本次评审活动公平、公正进行的,委托方(或合肥市产权交易中心)有权中止或终止本项目评审活动,意向受让方、委托方、合肥市产权交易中心各方免责。

六、竞价结束后相关程序

结果公告及《成交确认书》

1.竞价结束且无异常情况,合肥市产权交易中心将在网站上发布结果公告。

2.结果公告发布后,合肥市产权交易中心将通过电子交易系统向成交人发出成交确认书,成交确认书发出即视为送达;成交人请登录电子交易系统领取成交确认书。

交易保证金处置

1.合同签订生效后,受让方交纳的交易保证金扣除交易服务费后的剩余款项可转为首期费用,其他意向受让方交纳的交易保证金在结果公告发布之日起5个工作日内原额原途径返还(不计息)。

2.交易保证金只退还至意向受让方交款账户。因收款人与意向受让方名称不一致造成的交易保证金无法退还或迟延退还,合肥市产权交易中心不承担任何责任。

3.经交易监督管理部门调查认定出现下列情形之一的不良行为,交易保证金不予返还,交易保证金扣除交易双方交易服务费后,余款转至委托方指定的账户。

1)意向受让方提供虚假材料,骗取成交资格或实现其他非法目的;

2)意向受让方之间相互串通的;

3)意向受让方采取不正当手段影响和干扰其他意向受让方参与交易活动的;

4)受让方无正当理由放弃成交资格的;

5)受让方未按交易文件约定交纳履约保证金或签订《经营权转让合同》的。

异议方式

若对结果公告有异议,可自结果公告发布次日起3个工作日内,以书面形式向合肥市产权交易中心提出异议,异议材料递交地址:合肥市滨湖新区徽州大道4872号金融港中心A9幢安徽公共资源交易集团4楼,联系电话:0551-66223705

(一)异议应以书面形式实名提出,书面异议材料应当包括以下内容:

1.异议人的名称/姓名、地址、有效联系方式;

2.项目名称、项目编号、标的号(如有);

3.被异议人名称/姓名;

4.具体的异议事项、基本事实及必要的证明材料;

5.明确的请求及主张;

6.提起异议的日期。

异议人为自然人的,应当由异议人本人签字并附有效身份证明;异议人为法人或者其他组织的,应当由法定代表人或其委托代理人(需有委托授权书)签字并加盖公章。

异议人需要修改、补充异议材料的,应当在异议期内提交修改或补充材料。

(二)有下列情形之一的,不予受理:

1.提起异议的主体不是所异议项目竞价人的;

2.异议材料不完整的;

3.异议事项含有主观猜测等内容且未提供有效线索、难以查证的;

4.异议事项已进入投诉处理、行政复议或行政诉讼程序的。

(三)若异议人对异议处理意见有异议,可在答复期满后7个工作日内以书面形式向交易监督管理部门提出投诉。

交易服务费收取

交易服务费按“差额定率累进法”计算以成交总价(经营期内的经营费用总金额)为收费基数:标的成交总价在100万元及以下的,收取比例为1.2%;超过100万元至500万元的部分,为0.8%;超过500万元至1000万元的部分,为0.51%;超过1000万元至5000万元的部分,为0.29%;超过5000万元至10000万元的部分,为0.16%;超过10000万元的部分,为0.06%。交易服务费不足2000元的,按2000元收取。

七、其他说明

1.意向受让方可在公告截止之前工作时间内至合肥市产权交易中心项目负责人处查阅委托方向合肥市产权交易中心提供的相关项目材料。上述材料均为参考性意见,不构成合肥市产权交易中心对转让标的的任何担保责任;

2.对本项目公告内容要求澄清或有异议的意向受让方,应于公告截止日前3个工作日前,以书面形式向合肥市产权交易中心提出,逾期递交的不予受理。

3.合肥市产权交易中心对本公告进行的澄清、更正或更改,将在网站http://www.ahggzyjt.comhttps://www.haee.com.cn)上及时发布,该公告内容为转让公告的组成部分,对意向受让方具有约束力。意向受让方应主动上网查询。合肥市产权交易中心不承担意向受让方未及时关注相关信息的责任。

4.在公告截止时间前,合肥市产权交易中心可以视具体情况,延长公告截止时间,并在网站上发布变更公告。

八、联系方式

现场踏勘

联系人:胡工;联系电话:0551-65326588。

主体库登记

联系电话:010-86483801转6-1

项目负责人

联系人:刘工,联系电话:0551-6622374266223293(合肥市滨湖新区徽州大道4872号金融港中心A9幢安徽公共资源交易集团4楼)

项目意向受让方如需咨询,务必首先认真阅读本项目公告,并针对具体条款进行咨询。本公告为本项目唯一法定文书,一切解释以本公告为准。本公告及其附件解释权归合肥市产权交易中心。

 

图一:经营房产所在位置(仅供参考,以实地踏勘为准)

 

 

图二:经营房产外观(仅供参考,以实地踏勘为准)

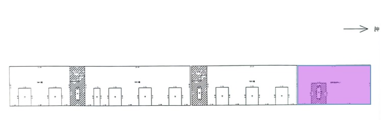
三(附图)A-S1二层转让面积示意图(白色部分为转让部分,非转让面积为221.63㎡暂未独立分割,确定受让方后由转让方组织实施分割。图片仅供参考以现场踏勘为准)一层为整层转让未附图

 

图四(附图):集中商业办公楼一层转让面积示意图(白色部分为转让部分,图片仅供参考以现场踏勘为准)二、三层为整层转让未附图。

 

合肥市产权交易中心


附件

经营权转让合同

 

转让方(以下简称甲方):合肥高新股份有限公司                                                                                                                                                                                                                                                                                                                                                                                                                                                                                                                                                                                        

营业执照号:91340100746754861N

联系电话:0551-65326568

联系地址:合肥高新区创新大道2800号创新产业园二期H2楼

 

受让方(以下简称乙方):                          

营业执照号:                            

联系电话:                 

联系地址:                                       

根据成交确认书                 和相关法律法规规定,为进一步明确责任,经甲、乙双方友好协商,签订合同如下:

第一条:转让经营权房屋的地址、面积、用途

房屋座落于 高新区皖水路1555号

转让经营权房屋具体房号:A-S1楼1-2层(2层局部)集中商业办公楼1-3层(1层局部)

建筑面积  6274.63 m²                 经营权转让用途:商业

乙方使用经营权转让房屋必须符合房屋设计用途及《合肥市服务业环境保护管理办法》等相关要求,若由此造成乙方不能按预想的方案使用房屋并导致经营权转让合同不能履约的,责任由乙方承担。

第二条:经营权转让期限

房屋经营权转让期限为六年(含免受让期),自              日起至         日止(具体以房屋实际移交时间为准,若因乙方原因未按时收房的,则以甲方通知交接房屋的最后一日起算),其中,           日起至       日为免经营费用装修期(具体以房屋实际移交时间为准,若因乙方原因未按时收房的,则以甲方通知交接房屋的最后一日起算)。

第三条:履约保证金及经营费用

(一)房屋履约保证金为首年6个月经营费用总额,计人民币             ¥        元),乙方在本合同签订前全额交给甲方。如乙方经营权受让期间无违约情况发生,该保证金在转让期满后退还乙方(不计息);如乙方发生违约行为,则违约金将直接从履约保证金中扣除,乙方应及时补足履约保证金。合同期满或解除后,乙方应及时结清受让期间应承担的经营费用及各项费用(含违约金),否则此类款项将直接从履约保证金中扣除。

(二)经营费用递增方式为:1年和第2年经营费用同成交价,第3年和第4年均在第1年经营费用的基础上递增5%,第5年和第6年经营费用均在第4年经营费用的基础上递增5%。转让期内经营费用总额为人民币:             ¥         元),经营费用明细表:

序号

年度

转让期

经营费用(元)

备注

1

第一年

第一期

 

 

经营费用四个月

第二期

 

 

2

第二年

第三期

 

 

 

第四期

 

 

3

第三年

第五期

 

 

 

第六期

 

 

4

第四年

第七期

 

 

 

第八期

 

 

5

第五年

第九期

 

 

 

第十期

 

 

6

第六年

第十一期

 

 

 

第十二期

 

 

合计(人民币):

 

 

 

(三) 履约保证金与首期经营费用一并缴纳,乙方须在合同签订前向甲方缴清合同首期经营费用及保证金,首期经营费用为:          ¥      元)。经营费用每六个月缴纳,除首期经营费用外,以后每期经营费用应提前30天缴纳。

(四)乙方应于经营费用缴纳后2日内将缴款凭证提供至甲方,甲方根据乙方提供的凭证开具发票。所有需向甲方缴纳的经营费用、保证金、违约金等费用均转入甲方以下账户(合同期内如甲方需要变更经营费用结算账户,应及时将变更后的账户通知乙方):

   位: 合肥高新股份有限公司

开户银行: 徽商银行创新大道支行

   号: 1025701021000014950

第四条:房屋交付

(一)甲方全额收到乙方履约保证金及首期经营费用并与乙方签署转让合同后,于90日内将房屋交付给乙方(具体以实际移交时间为准)。若因甲方原因或原经营单位未返还房屋等原因推迟交房,则将转让终止时间进行等长时段的顺延,实际转让期保持不变,如甲方延期交房达30日以上,乙方有权解除合同,双方均无需承担违约责任。若因乙方原因推迟交房,则转让终止时间不予以顺延,转让期起始时间以甲方通知交接房屋的最后一日起算。

(二)当前房屋未清空,乙方须与原受让人招商的当前正在经营的小商户友好协商后期是否继续租赁等事宜,如协商未达成一致,乙方须给予该部分商户不少于4个月的过渡期,过渡期租金不得高于小商户与原受让人最后一期合同租金。

)甲方按现状交付房屋(转让区域详见附图),甲、乙双方在移交材料上签字后视为房屋交付完成。双方办理房屋交接手续后 A-S1二层须分割部位由甲方60日内实施分割(甲方根据自身情况可能提前启动实施分割,无论何种情况,乙方不得因实施房屋分割而推迟接收房屋)。甲方实施分割期间已含在免费装修期内,乙方不得因甲方实施房屋分割等因素对经营费用免费装修期等提出调整要求。

第五条:房屋收回

(一)乙方应在合同到期日后十天内办理完退房手续,并交还该房屋。交还该房屋时,乙方可清空租赁起始日后房屋内新购置的家具、电器设备等财产,但不得拆除或破坏固定装修物,甲方将不予支付乙方或者乙方行使房屋经营权期间涉及的商户任何装修补偿费用。同时需结清房屋经营费用、水电等费用,交还房屋钥匙,办理退房手续;退房手续办理完毕之后,甲方出具乙方离场通知单,物业公司核实乙方离场通知单后放行。

(二)乙方交还房屋时应保证房屋本身及附属设施、设备处于完好状态,房屋内的装修、装潢部分以及为项目提升改造投入的固定装修和设施设备无偿归甲方所有和使用,并将转让房屋在合同终止后10日内交还甲方,且不得提出任何补偿要求。

(三)房屋归还的期限届满后,房屋内的遗留物品,甲方有权自行处置。

第六条:装修改造

(一)房屋转让期间,乙方需对转让房屋进行装修的,所需费用由乙方自行承担。

(二)装修前,乙方需向物业公司缴纳装修保证金(乙方自管物业期间,物业职责由甲方监督管理,装修保证金需缴入甲方)。装修过程中,乙方需服从甲方及物业公司的统一管理,确保不会破坏房屋主体结构或改变甲方与相邻产权人的产权界限,否则所造成的经济损失和引起的产权纠纷责任全部由乙方承担。甲方及物业公司有权监督装修施工过程并提出整改意见。

(三)乙方在取得《同意进场装修通知书》后方可进场装修,如乙方未取得《同意进场装修通知书》擅自进行装修的,视同乙方违约,物业公司(甲方)不予返还乙方装修保证金,甲方或物业公司下发书面通知责令乙方立即停止装修工作,待乙方取得《同意进场装修通知书》后方可复工。

(四)乙方的装修设计方案需报经甲方和物业公司书面同意,同时,为满足消防、环保、安全、卫生等规范要求,乙方的装修设计方案还须报相关主管部门审核合格,并取得合格证,该合格证需报物业公司备案。如因乙方装修方案未通过审查而引起的一切损失,由乙方自行承担。

(五)乙方装修完成后,需报请消防、环保、卫生等主管部门进行验收,并需取得验收合格证并报物业公司备案后,方可进行营业。如乙方未取得相关验收合格证而擅自营业,甲方或物业公司下发书面通知要求限期整改,并且采取停水停电等措施直至乙方整改合格。如乙方拒绝整改,或未按期完成整改的,视同乙方严重违约,甲方有权终止合同,并不予退还乙方所交纳的装修保证金和履约保证金。因乙方装修未通过验收而引起的一切损失,由乙方自行承担。

(六)如乙方的装修方案可能对公用部分及其它相邻用户造成影响的,甲方或物业公司可对该部分方案提出异议,乙方应予以修改。否则物业公司将不予下发《同意进场装修通知书》。

(七)乙方装修期间应严格按经审批的方案进行装修,不得擅自对方案进行修改。乙方未经甲方同意擅自修改装修方案,视同乙方违约,物业公司将不予返还装修保证金。物业公司书面通知乙方立即停止装修并限期整改,恢复原状或赔偿损失。如乙方拒不整改,甲方可代为整改,费用由乙方承担。如乙方拒不整改,也不配合甲方整改的,甲方可采取停水停电等管理措施,直至开始整改。如乙方拒不整改或拒绝甲方整改逾期30日(含)的,视同乙方严重违约,甲方可单方解除本合同,不承担任何违约责任,收回该房屋,并不予返还乙方履约保证金和剩余经营费用,不予支付乙方任何装修补偿费用。乙方履约保证金及剩余经营费用不足以支付甲方整改费用及其他损失的,乙方需另行支付。

(八)乙方应合理使用该房屋及其附属设施、设备等,如因使用不当造成房屋及设施、设备损坏的,物业公司书面通知乙方立即停止破坏并限期整改恢复原状或赔偿损失。乙方拒不整改,甲方可代为整改,费用由乙方承担。如果乙方拒不整改,也不配合甲方整改,甲方可采取停水停电等管理措施,直至开始整改;如乙方拒不整改或拒绝甲方整改逾期30日(含)的,视同乙方严重违约,甲方可单方解除本合同,不承担任何违约责任,收回该房屋,并不予返还乙方履约保证金,不予支付乙方任何装修补偿费用。

(九)转让期内,乙方如需安装空调,室外机必须安装在甲方指定的位置,因此加购管线材料等产生的费用由乙方自行承担。不具备条件安装空调的房屋,乙方不得擅自安装。

(十)如乙方因经营需要对安全、消防、水、电、通讯等基础设施、设备进行改造或升级的,须事先征得甲方的同意方可进行,改造升级的施工由乙方负责,所需各项费用均由乙方承担;设施改造升级后不可移动的部分应在转让结束后完好无偿地移交给甲方。

(十一)乙方对房屋隔墙、楼梯等结构或功能进行改动的,甲方收回房屋时有权要求乙方恢复原状

第七条:甲方的权利义务

(一)甲方按期向乙方收取房屋经营费用并出具收款票据。

(二)甲方应为乙方提供办理经营证照所需转让证明等相关材料。

(三)甲方对房屋主体结构的安全负责,并负责房屋主体结构日常的维修、维护。

(四)甲方按现状提供转让房屋现有的附属设施、设备供乙方使用,但不承担合同期内此类设备的检测、维修、使用、监管等义务,转让期内此类设备发生安全责任事故,甲方不承担任何法律责任。

(五)在转让期限内,甲方如以出售、赠与、互易、出资、或其他方式全部或部分变更转让房屋的产权,应提前10日书面通知乙方。

(六)甲方应保证转让房屋无产权纠纷,如有纠纷,由甲方负责处理并承担相关责任,如因此给乙方造成损失的,由甲方负责赔偿。

(七)甲方委托物业公司对转让区域物业和水电等管理,乙方须配合物业公司的管理。

第八条:乙方的权利义务

(一)乙方根据相关法律法规规定及主管部门要求,结合自身经营业态,办齐经营所需的相关手续和许可,如消防备案、环评及营业执照等,并在房屋显眼位置公示营业执照等相关信息。如乙方未取得相关证照或许可擅自开业,甲方或物业公司将下发书面通知要求限期整改,如乙方拒绝、不配合或逾期整改,甲方或物业公司可采取停水停电等管理措施。如乙方拒绝、不配合或逾期整改达30日(含)的,视同乙方严重违约,甲方可单方解除合同、收回房屋、不予补偿乙方任何装修费用、扣除乙方全部履约保证金作为违约金,并不承担任何违约责任,所造成的一切后果及责任,均由乙方承担。

(二)转让期内,乙方应确保该房屋符合消防相关规定(不符合的需无条件即刻进行整改),并按照消防部门要求,配齐并及时更新消防设施设备、保证消防通道畅通。乙方应做好转让房屋及附属设施设备范围内的防火、防盗等工作,甲方、物业公司及相关部门对转让房屋内安全消防设施进行工作检查时,乙方应予以配合,对检查中发现的安全隐患等问题应及时整改直至符合要求。如乙方拒绝、不配合或逾期整改,甲方或物业公司可采取停水停电等管理措施。如乙方拒绝、不配合或逾期整改达30日(含)的,视同乙方严重违约,甲方可单方解除合同、收回房屋、不予补偿乙方任何装修费用、扣除乙方全部履约保证金作为违约金,并不承担任何违约责任。如发生消防事故、失窃等致甲、乙双方或任何第三方人身、财产损害的,一切责任由乙方承担。

(三)转让期内,乙方应于接到物业公司书面通知后30天内签订物业管理合同。如乙方拒绝、不配合或逾期签订物业管理合同,甲方或物业公司可采取停水停电等管理措施,直至乙方完成物业管理合同签订。如乙方拒绝、不配合或逾期签订物业管理合同达30日(含)的,视同乙方严重违约,甲方可单方解除合同、收回房屋、不予补偿乙方任何装修费用、扣除乙方全部履约保证金作为违约金,并不承担任何违约责任。

(四)乙方应按照本合同约定按时支付经营费用、承担各项费用,转让期间该房屋产生的水费、电费、燃气、通讯(网络)费、物业费、电视收视费、停车费等各项费用均由乙方自行承担。

(五)乙方应做好门前三包,积极配合物业公司维护该房屋所在项目的公共设施、公共安全、公共卫生和车辆秩序。在转让期内,乙方不得出店经营;不得私自占用公共区域、公共设施;不得随意在项目内任何公共区域张贴广告、悬挂标志或文字;不得以任何目的或形式使用项目、甲方的名号及标志或该名号及标志的各种图像,否则视同乙方违约,每发生一次扣除履约保证金的10%,作为乙方支付的违约金,同时甲方或物业公司将立即下发书面通知限期立即整改,如乙方拒绝整改或限期未完成整改的,甲方或物业公司可采取停水停电等措施,直至完成整改,如乙方拒不整改逾期30日(含)的,视同乙方严重违约,甲方可单方解除合同、收回房屋、不予补偿乙方任何装修费用、扣除乙方全部履约保证金作为违约金。

(六)乙方负责房屋附属设施、设备使用期间的安全检测、维护保养、故障维修等事宜,所需费用由乙方自行承担。如因乙方对设施、设备使用不当或监管不当所造成的安全责任事故,其责任及损失由乙方承担。

(七)合同履行期间,如房屋需要维修、维护的,乙方须书面告知甲方及物业公司,由甲方与物业公司共同进行检查。如属于房屋本身质量问题,由甲方安排维修并承担维修费用;如因乙方装修或使用不当等原因而导致房屋损坏的,由乙方维修并承担维修费用,乙方损坏部分属于房屋结构等关键部位的,由甲方安排维修,乙方承担维修费用,其余属于正常易耗物品且乙方自用部分的(如开关、面板、灯具、水龙头、卫生洁具等),由乙方自行更换并承担费用。

(八)乙方在日常经营时应协调好与其他业主以及物业公司之间的关系,同时应避免损害甲方的权益。

(九)转让期内如甲方出售房屋产权,则同等条件下乙方有优先购买权;转让期内该房屋所有权发生变动的,本合同在乙方与新所有权人之间仍具有法律效力。

(十)乙方应配合甲方及物业公司的日常管理,确保经营等行为符合文明创建要求。

(十一)乙方负责招标范围内的安全管理,包括不限于房屋附属电路、烟感、喷淋等消防设施设备的安全检测、维护保养和故障维修等事宜,受让合同签订后三个月内就项目整体及每个独立商铺的消防安全,组织第三方检测并及时整改,整改完成后依法经营。受让期内,乙方须确保房屋及附属设施设备满足消防主管部门要求和消防规范,同时,每年至少组织一次第三方检测并及时整改。

(十二)合同签约后,乙方须编制项目整体品质、形象、业态等提档升级方案,报甲方同意后才能自行组织实施。否则,甲方有权单方面解除合同并扣除乙方全部履约保证金作为违约金

(十三)乙方须做好项目维稳工作,当前房屋未清空,乙方须与原受让人招商的当前正在经营的小商户友好协商后期是否继续租赁等事宜,如协商未达成一致,乙方须给予该部分商户不少于4个月的过渡期,过渡期租金不得高于小商户与原受让人最后一期合同租金。否则,甲方有权单方面解除合同并扣除乙方全部履约保证金作为违约金。

(十四)乙方选聘物业管理单位前,乙方负责集中商业楼(含地下车库、三台箱式电梯的年检和日常维保养护)、A-S1商业楼整体的物业管理工作及永和南苑商业街附属的2个垃圾分类点的管理,包括但不限于环境卫生、秩序维护、零星维修(单次单项2000元以下)、共用设施设备维护、安全管理、水电费收缴并确保收支平衡(公共能耗由受让人承担)、文明创建等工作。甲方及上述楼栋内非转让标的区域的房屋使用人/产权人不予支付任何费用。后期甲方另行选聘物业管理单位后,乙方将上述物业管理工作移交物业管理公司负责,并应于物业公司书面通知签订物业管理合同后一个月内签订、按物业费中标价向物业公司缴纳物业费用,但转让标的内部的各项日常管理工作仍由乙方自行负责(即物业管理单位不入户服务,物业公司负责公共区域,乙方负责专有区域),否则产生的各项费用甲方从乙方履约保证金中扣除。

(十五)临近合同期满时,乙方招商须提醒商户谨慎投资装修,乙方与招商入驻商户产生的一切纠纷均由受让人自行协调解决,如对甲方造成损失,则由乙方承担。

(十六转让期内,本项目具备使用燃气条件后(燃气主管道铺设至商铺外墙),受让人须开通并使用燃气,相关费用由受让人自行承担。否则,甲方有权扣除乙方全部履约保证金作为违约金。

(十七)房屋用途为商业经营。转让期内,乙方可经营水果、鲜花、美容美发、通信服务、服装、餐饮等服务周边社区居民的业态,不得从事废品回收、烟花爆竹、殡仪服务、等有碍居民生活的、涉及易燃易爆危险品(油漆、液化气、新型燃料等)储存经营的、产生危险废物的以及其他不符合法律法规规定的业态。其中,集中商业楼二层须引进一家大型品牌连锁超市(品牌如:永辉、合家福、华联、苏果、红府超市、好又多等知名品牌),单店面积至少拥有1000㎡以上,卖场内的商品种类要齐全,能满足大多数人的日常生活需求;集中商业楼三层须引进一家大中型中餐店;至少引进一家品牌连锁快餐店,品牌如:老乡鸡、蒸小皖、满口意等;至少引进一家品牌连锁药店,品牌如:国胜、百姓缘等。

(十八)转让期内,乙方需按行业主管部门及甲方的统一要求安装门头招牌,安装前需将门头方案报甲方审核,并经行业主管部门审批同意后报物业公司备案方可执行,自行承担所有费用,并于合同终止后予以撤除。乙方应确保门头招牌符合相关广告、安全及消防规范,依法定程序进行,自行承担所有责任。物业公司现场监管,若发现乙方未按要求安装,物业公司下发书面通知,责令乙方立即整改直至整改完成。

第九条:合同的解除

(一)非因本合同约定的事由,甲方单方面提前解除合同,甲方应委托专业评估机构对乙方装修现状价值进行专项评估,根据评估结果进行补偿。

(二)因乙方单方面要求而提前解除合同、乙方违约甲方依约解除合同、转让到期合同自然终止以及本合同约定情形的,乙方受让期间因经营需要所实施的装修改造部分,甲方不作任何形式的补偿。

(三)因乙方违约导致甲方提前解除合同、收回房屋的,乙方应在解除通知发出后10日内交还房屋。乙方逾期不交,甲方将采取停水停电等管理措施,同时乙方需每天按本合同日经营费用标准的2倍支付房屋使用费;逾期超过30日(不含)不交的,甲方将有权邀请公证部门自行予以清空该房屋并对房屋中的物品自行处置,无需向乙方承担赔偿责任,或通过法律手段收回该房屋。

(四)因物业公司单方面要求而提前终止履行其相应权利义务、或甲方与物业公司的委托管理合同到期自然终止的,在甲方委托新的物业公司之前,物业公司的权利、义务由方承担

(五)有下列情形之一的,本合同解除,按乙方实际承租时间结算经营费用及各项费用,甲、乙双方互不承担违约责任,互不进行任何经济补偿,甲方对于乙方受让期间的装修部分不进行任何形式的补偿,如果政府部门、拆迁单位对于房屋的装修部分进行专项经济补偿,则该项装修补偿款为乙方所得:

1.该房屋因城市建设需要被依法列入房屋拆迁范围的。

2.因房屋所在地段整体性商业开发等需要拆除该房屋的。

3.因自然灾害等不可抗力因素致使房屋毁损、灭失或造成其他相关损失的。

4.其他不可预见的因素导致合同无法履行的。

(六)乙方有下列行为之一的,甲方有权单方解除合同、收回房屋,责令乙方限期清场搬离,此类情形甲方不承担违约责任,对于乙方受让期间所实施的装修改造部分不进行任何补偿:

1.不得以任何形式整体转让、出借标的房屋。

2.未经甲方允许,擅自改变经营用途的。

3.未经甲方同意,擅自对房屋进行装修或装修过程中破坏房屋结构、附属设施设备、产权界限的。

4.利用该房屋从事违法活动的。

5.损害甲方利益的。

6.支付或者不按照约定支付经营费用30日的。

7.欠缴各项费用达 伍万元整(¥50000元)的。

8.本合同约定的其他甲方有权单方解除合同的情形。

第十条:甲方违约责任

(一)转让期内,甲方因单方面原因需提前解除合同的,应提前 30 日以书面形式通知乙方,否则须向乙方支付当期一个月经营费用作为违约金。

(二)如因该房屋的产权纠纷给乙方造成损失的,甲方应负责评估损失并予以补偿,但补偿损失额不超过合同经营费用总额。

第十一条:乙方违约责任

(一)乙方有本合同第九条第六款第1、2项行为之一的,甲方或物业公司将下发限期整改通知单。如乙方拒绝、不配合或逾期整改,甲方或物业公司可采取停水停电等管理措施。如乙方拒绝、不配合或逾期整改达30日(含)的,视同乙方严重违约,甲方可单方解除合同、收回房屋、不予补偿乙方任何装修费用并不承担任何违约责任,甲方从合同履约保证金中扣除当期一个月经营费用作为违约金。

(二)乙方有本合同第九条第六款第3、4、5、8项行为之一的,甲方或物业公司下发限期整改通知单。如乙方拒绝、不配合或逾期整改,甲方或物业公司可采取停水停电等管理措施。如乙方拒绝、不配合或逾期整改达30日(含)的,视同乙方严重违约,甲方可单方解除合同、收回房屋、不予补偿乙方任何装修费用、扣除乙方全部履约保证金作为违约金,并不承担任何违约责任。若支付的违约金不足以弥补甲方损失的,乙方还应赔偿甲方全部损失。

(三)乙方不得以任何理由(如房屋质量问题等)拒绝或延期缴纳经营费用、履约保证金、水电费、物业费等费用,转让期内乙方未按约定时间支付经营费用、水电费、物业费等费用的,除须补交外,每迟付一天应按逾期总额的万分之二标准承担违约金,同时,甲方或物业公司可采取停水停电等管理措施,直至乙方缴齐拖欠的经营费用等费用。

(四)转让期内,乙方因单方面原因需提前解除合同的,应提前30日以书面形式通知转让人并承担违约责任,如履约未满2年,违约金为2个月当期月经营费用;满2年未满4年,违约金为1个月当期月经营费用;满4年,无违约金。若支付的违约金不足弥补甲方损失的,乙方还应负责赔偿全部损失。

(五)乙方接收房屋后,该处转让房屋、附属设施及所存放物品的安全及消防责任均由乙方完全承担。受让期内如因乙方经营违反安全消防规定、消防器材配备不齐全、安全管理混乱且不予整改或突发安全消防事件处置操作失当等情况造成安全事故或经济财产损失的,视为乙方重大违约行为,乙方须承担全部责任及法律后果,同时甲方有权单方面解除本合同并扣除乙方全部履约保证金作为违约金。

(六)乙方应确保安全生产、经营,保证不在该房屋内存放危险物品。否则,视同乙方严重违约,甲方可单方解除合同、收回房屋、不予补偿乙方任何装修费用、扣除乙方全部履约保证金作为违约金。如对该房屋及附属设施造成损失或对甲方、物业公司、其他方造成人身伤害、财产损失的,由乙方承担全部责任。

(七)乙方应诚信经营,不得以欺诈、瞒骗的行为从事商业活动。乙方招商与第三人签订的合同期限不能超过甲方与乙方的合同截止期限,且乙方应对第三人的行为和责任向甲方承担连带保证责任;不得发生第三人再次转租行为。乙方与任何第三方签订的本项目有关的合同,必须在合同签订后10日内提供真实、完整的合同报转让方备案。否则甲方可单方解除合同、收回房屋、不予补偿乙方任何装修费用、扣除乙方全部履约保证金作为违约金。如造成甲方损失或法律纠纷,乙方除需承担甲方损失外,还需承担一切责任。

(八)转让到期或因乙方违约导致甲方提前解除合同、收回房屋的,乙方应在甲方要求的期限内交还房屋,逾期不交,甲方将采取停水停电等管理措施,同时乙方需每天按本合同日经营费用标准的2倍支付房屋使用费。甲方将有权邀请公证部门自行予以清空该房屋并对房屋中的物品自行处置,无需向乙方承担赔偿责任,或通过法律手段收回该房屋。

(九)乙方存在其他违约行为,甲方有权要求乙方进行整改,如乙方拒绝、不配合或逾期整改,甲方或物业公司可采取停水停电等管理措施。如乙方拒绝、不配合或逾期整改达30日(含)的,视同乙方严重违约,甲方可单方解除合同、收回房屋、不予补偿乙方任何装修费用、扣除乙方全部履约保证金作为违约金,并不承担任何违约责任。

(十)乙方受让期内发生的违约金均直接从乙方履约保证金中扣除,履约保证金不足以抵扣违约金的,不足部分乙方另行缴纳,同时,乙方需及时补足履约保证金。

第十二条:其他

(一)乙方自《成交确认书》发出之日起30日内交付首期经营费用和履约保证金并与甲方签订转让合同,逾期未缴纳款项或者不签合同的甲方将移交交易监督管理部门处理。

(二)转让期内,乙方不得以任何理由要求减免经营费用。如因法律法规及市政规定需要拆除或改造转让房屋而导致合同解除的,经营费用按照实际转让时间计算,不足整月的按实际天数计算,多退少补。

(三)转让期内,如甲方或甲方委托的相关单位需对该房屋进行改造升级,乙方无条件配合,不以任何理由索要赔偿或补偿。

(四)原受让人在其经营期内增设的非装修部分投入资产(如变压器、扶梯、道闸等),产权归原受让人(或其招商商户)所有,乙方须自行与其协商。

第十三条:争议的解决方式

如本合同在履行过程中发生争议,双方应协商解决;协商不成的,可采取以下第2种方式处理:

1.向甲方所在地仲裁机构提请仲裁;

2.向甲方所在地人民法院起诉。

第十四条:本合同经甲、乙双方法定代表人或授权代表签字、盖章后生效。合同签订地点:合肥高新区。

本合同一式4份,甲、乙双方执2份。

 

 

甲方(章):                   乙方(章):

法定代表人或授权代表           法定代表人或授权代表

统一社会信用代码               统一社会信用代码  

  

联系电话:                       联系电话:

                                         

 

附件:附件2:安徽公共资源交易集团电子交易操作规程.docx 附件:附件1:竞价文件格式(网).docx