合肥市轨道交通3号线职教城站附属用房(第三层)租赁(2023-2028年度)公告
| 合肥市轨道交通3号线职教城站附属用房(第三层)租赁(2023-2028年度)
|
||||||||||
| 项目编号
|
2023BFFCJ00541
|
|||||||||
| 委托方
|
合肥市轨道交通集团有限公司
|
|||||||||
| 委托方承诺
|
委托方承诺本次转让行为已履行了必要的审批程序,保证本公告的内容不存在任何重大遗漏、虚假陈述或严重误导,并对其内容及所提供资料的真实性、完整性和准确性负责。
|
|||||||||
| 交易监督部门
|
合肥市公共资源交易监督管理局
联系方式:0551-66223530,66223546
|
|||||||||
| 电子交易系统
|
名称:安徽公共资源交易集团电子交易系统 |
|||||||||
| 电子服务系统
|
名称:安徽合肥公共资源交易电子服务系统 |
|||||||||
| 公告期限
|
公告期:2023年9月16日9:00始至2023年10月11日 10:00止。
|
|||||||||
| 一、出租标的情况
|
||||||||||
| 出租标的
|
所在层数
|
结构
|
建筑面积(㎡)
|
租期(年)
|
租金底价(万元/年)
|
交易保证金(万元)
|
||||
| 合肥市轨道交通3号线职教城站附属用房(第三层)
|
地上第三层
|
框架
|
约1085
|
6
|
23.2190
|
2.3
|
||||
| 1.标的坐落位置:淮海大道与相山路交叉口西侧。
2.标的权属情况:该标的无土地使用权证,无房地产权证(房产面积为经测绘单位测绘面积),标的无权属纠纷,委托方将提供该处标的的权属证明或租赁证明,方便承租人办理相关证照。
3.标的房屋位于地上第三层,毛坯状态,目前处于空闲状态。
4.标的以现状移交,水电条件已做容量预留(以现场实际预留为准),标的房屋无上、下水管道需承租人自行敷设路径至商铺内,如需增容,需承租方自行解决增容问题,所产生的增容费用及后果由承租人自行承担。
5.承租人在进行经营时营业时间必须与车站运营时间保持一致,具体时间以车站规定为准。
6.本项目标的的产权方为合肥市轨道交通集团有限公司,合肥市轨道交通集团有限公司委托合肥城市轨道交通资源开发有限公司管理本项目标的。本项目成交后,承租人与合肥市轨道交通集团有限公司及合肥城市轨道交通资源开发有限公司签订三方租赁合同,租金及履约保证金由合肥市轨道交通集团有限公司收取,合肥城市轨道交通资源开发有限公司代为办理手续,发票由合肥市轨道交通集团有限公司开具。
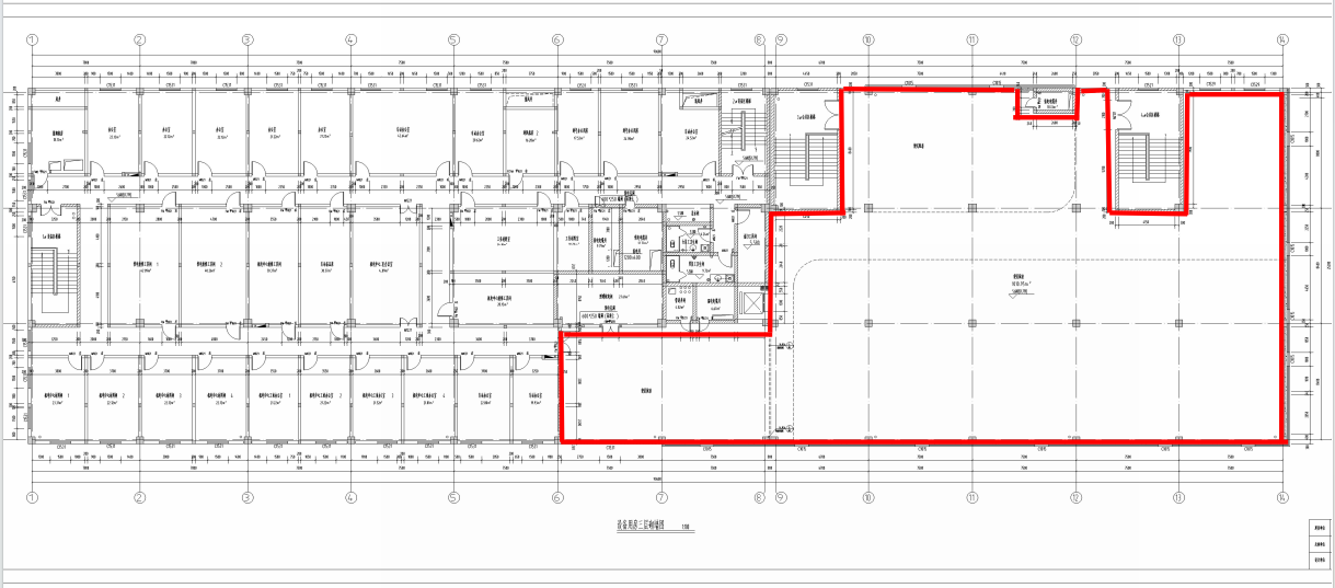
7.标的房屋租赁范围详见公告后附图。
|
||||||||||
| 房屋租赁用途要求
|
1.租赁房屋的租赁用途为生活零售或餐饮行业。承租人使用租赁房屋不得从事幼儿园、废品回收、殡葬服务、汽车维修及美容(含洗车)及产生噪音和刺激性气味的业态项目,不得从事产生重油烟、重油污、刺激性气味的业态,不得经营或存放易燃易爆或有毒有害物品,不得存在安全隐患、污染扰民、不得从事违法项目。
2.承租人使用上述房屋必须符合房屋设计用途及相关法律法规要求,并按要求自行办妥环评、消防及合法经营手续和完善消防安全等设施,如由此造成承租人不能按预想的方案使用房屋并导致租赁合同不能履约的,责任由承租人承担。
|
|||||||||
| 租金及履约保证金支付
|
1.
租金采取“先支付后使用”原则,按年支付。承租人须在合同签订后10个工作日内向委托方缴付第一年租金,每年租期届满前20日,预付下年度租金。第一年、第二年实际租金为首年成交价,第三年、第四年租金为首年成交价基础上递增5%,第五年、第六年租金为第四年租金基础上递增5%。
2.本项目给予免租金装修期3个月,免租金装修期以委托方移交租赁房屋后次日起开始计算,免租金装修期含在租赁期内。免租金装修期包含但不限于承租人对承租范围内的装修设计、施工报审、实施施工、施工验收等一系列装修工作和手续办理,并由承租人自行承担在此期间所产生的一切费用(包含但不限于垃圾清运费、水费、电费及其能耗费等)。
3.履约保证金为首年成交价六个月租金金额总和,承租人须在合同签订前以转账的方式或具备委托方格式条款的银行履约保函向委托方缴纳履约保证金,承租人向委托方缴纳的履约保证金在合同终止且无承租人责任后退还。承租人在合同期内发生违约违法行为的,委托方有权直接从履约保证金中扣除承租人应付的违约金和费用,承租人须在5日内补足履约保证金。
注:上述费用具体缴纳方式详见《租赁合同》。
|
|||||||||
| 二、对意向承租人资格的要求
|
||||||||||
| (一)符合下列条件,并具有完全民事行为能力的境内企事业法人、其他组织,除法律另有规定外,均可参与竞价。
1.未被合肥市及其所辖县(市)、区(开发区)公共资源交易监督管理部门记不良行为记录的,或被记不良行为记录(以公布日期为准),但同时符合下列情形的方可参与项目登记及竞价: 2.意向承租人须具有不少于1家正在营业的生活零售或餐饮行业经营的直营网点(不含境外网点)。
3.截至租赁公告发布日前两年内,意向承租人(包括法定代表人为同一人或存在控股、管理关系的不同单位)未与合肥市轨道交通集团有限公司存在合同违约情况。
4.截至租赁公告发布日前三年内,意向承租人没有因违法经营行为受到刑事处罚或吊销营业执照的重大违法记录,在“信用中国”网站(http://www.creditchina.gov.cn/)中未被列入失信被执行人名单或在国家企业信用信息公示系统(http://www.gsxt.gov.cn/)中未被列入严重违法失信企业名单。
(二)本项目不接受自然人、个体工商户和联合体竞价。
|
||||||||||
| 三、承租条件
|
||||||||||
| 1.意向承租人应在本公告期截止前现场踏勘出租标的,就出租标的相关情况主动向委托方咨询,自行了解使用该房屋可能涉及的相关法律法规及市政规定;完成登记的意向承租人都视同已实地踏勘出租标的,确认了标的位置、范围、面积和现状等并认可租赁要求,自愿承担因上述原因导致的一切后果和法律责任。
2.公告所列示的标的面积仅作参考,最终以标的实际移交面积为准。标的实际移交面积与本公告所列示面积不符的,不调整成交价格。出租面积之外的建筑物、附属物(如车站公共区域等)均不在出租范围内,委托方不提供任何承诺及服务。
3.租赁期内,承租人不得对该租赁场地及设施设备进行任何形式的转租、分租、转让、转借、调换、合作经营或联营,不得将该租赁场地及设施设备对外实施抵押、担保、处分。
4.租赁期内,承租人负责租赁房屋的日常安全管理工作、负责日常维修工作(含对房屋内部墙体屋面及管道渗漏破损、卷帘门等维修),委托方给予协助配合。
5.租赁期内,承租人承担租赁房屋发生的水电、通讯(网络)、垃圾清运、物业管理、日常维修等相关费用。
6.租赁期内,承租人对房屋进行装修、装潢时,装修、装潢方案须报委托方备案同意,且装修、装潢不得改动或破坏建筑结构。如擅自改动或破坏建筑结构,承租人应立即恢复原状,给委托方或第三人造成的损失应由承租人承担赔偿责任。租赁房屋的装修、装潢费用及租期内房屋的维修费用全部由承租人自行承担。承租人如需增加电容量,改造用电线路,须书面申请,经委托方同意,承租人可施工,并承担全部责任与费用。
7.承租人对承租商铺暂无产权证的情形已经知晓并认可,对租赁物的现场情况也已勘踏确认。承租人在装修过程中,装修材料应符合现行的国家标准和消防要求,自行办理消防报验,消防验收等工作及相关费用由承租人负责,并由承租人承担相关责任,委托方将对承租人方使用产品进行检查和抽查,如发现有质量问题的,要及时落实整改,杜绝采购无证或伪造、冒用认证证书、无厂名、厂址等来源不明和不合格商品,一经发现须及时整治。如情节严重的,将移交司法机关处理并终止合同。
8.本项目委托方仅基于现有条件提供房屋,剩余一切设施需要安装或更换的(如内部装修、玻璃隔断、卷帘门、配电箱、灯具插座等),由承租人向委托方申报,取得书面同意后自行安装或更换,费用自理。
9.房屋内若有废弃物由承租人自行清理。
10.房屋内部由承租人自行安装独立水、电表,以计量营业用量指数,水、电表要确保质量须为供水、供电部门指定产品并提供相关合格证书,费用自理。经营房屋的水、电为有偿使用,水、电费按抄表数参照运营公司相关管理规定进行收取。
11.本项目委托方仅提供房屋,承租人自行办理消防报验、审批,工商、卫生等所有相关手续,费用自理,委托方协助。
12.承租人在完成开业准备工作后,如需消防部门验收审批的,由承租人自行办理,若最终因消防部门要求取消商业的,承租人可办理退租手续,委托方不承担任何责任。
13.经营过程中禁止现场加工、禁烟雾、禁明火及一切可能触发消防报警系统的行为,未经委托方同意禁止使用大功率电器,禁止出售存储易燃易爆、有毒有害及法律禁止的产品。
14.本项目委托方仅提供现有网络接口,承租人自行向网络运营商报装并缴纳费用,标的房屋具体位置见公告电子附件图纸中红色标识部分。
15.鉴于轨道交通经营环境的特殊性,出租方有权根据轨道交通建设或运营需要或政府相关部门条令、政策等因素调整轨道交通运营时间,须检修或停运等导致承租方不能正常经营时,承租方须无条件服从,出租方不承担违约责任。
16.租赁期内,承租人不得以任何理由要求减免租金。如因法律法规及市政规定需要拆除或改造租赁标的而导致合同解除的,租金按照实际租赁时间计算,不足整月的按整月计算,多退少补。
17.租赁合同期满或终止时,承租人投入的装修、装潢部分无偿归委托方所有和使用,并将租赁房屋在合同终止后10日内交还委托方,且不得提出任何补偿要求。
18.承租人应在《成交确认书》发出之日起30日内与委托方签订租赁合同。
19.其他未尽事宜详见所附租赁合同。
20.除了特殊说明外,本项目中“日”均指日历天。
|
||||||||||
| 四、意向承租人参与方式
|
||||||||||
| 参与前须知
|
1.意向承租人须登录电子服务系统,首次登录须持有与电子服务系统兼容的数字证书,详情参见电子服务系统办事指南。 |
|||||||||
| 交易保证金交纳
|
1.意向承租人应当在竞价文件提交截止时间前,通过转账形式足额交纳交易保证金到达本项目本次公告指定账号,且应当从意向承租人账号转出。交易保证金账户信息如下:
2.竞价文件提交截止时间后,合肥市产权交易中心将从交易保证金查询系统中查询交易保证金信息,并提交评审委员会评审。
3.交易保证金交纳人名称与意向承租人名称应当一致。分公司或子公司代交交易保证金,视同名称不一致。交易保证金交纳人名称与意向承租人名称不一致的,交易保证金无效。未按要求提交交易保证金的,评审不通过。
注意事项:
1.交易保证金交纳账号采用动态虚拟账号,项目未成交的,交易保证金交纳账号将会发生变化,请意向承租人参与后续项目竞价时,注意勿将交易保证金错交至其他项目虚拟账号或前次公告账号。
2.如本项目前次成交失败,委托方退还意向承租人的交易保证金。意向承租人重新参与竞价的,须向本项目重新公告对应公布的交易保证金账号重新交纳交易保证金。
3.凡转账到其他项目虚拟账户或本项目前次公告账户的,交易保证金无效。
|
|||||||||
| 须递交的竞价文件资料(资格审查资料及报价资料)
|
意向承租人应根据要求制订竞价文件材料,包含但不限于以下内容:
(一)资格审查资料(扫描件)
1.营业执照(或单位法人证书);
2.授权委托书(或法定代表人身份证);
3.承诺函;
4.直营网点清单;
5.根据直营网点清单顺序依次提供各直营网点的营业执照副本; 注:资格审查资料中不得含报价内容,否则评审不通过。
(二)报价资料
报价单。
备注:意向承租人应按照本公告的要求准备竞价文件;并按竞价文件格式要求加盖意向承租人公章或电子签章,详见《竞价文件格式》(本公告上传附件1)。
|
|||||||||
| 竞价文件的制作
|
1.加密竞价文件(未提供的,竞价无效):
(1)加密竞价文件使用安徽合肥公共资源交易中心提供的电子标书制作工具软件制作生成。在竞价文件提交截止时间前通过电子交易系统上传递交。
(2)意向承租人请注意:①意向承租人需采用最新版竞价文件制作工具软件,具体请在安徽合肥·公共资源交易电子服务系统-投标工具下载;②在国际互联网络通畅状态下启用最新版竞价文件制作工具软件;③各意向承租人需注意更新,以免造成加密竞价文件制作错误,因此导致竞价无效,责任自负。
2.本项目不接收未加密的竞价文件。
3.竞价文件组成
(1)加密资格审查资料
有关格式资料见竞价文件格式
(2)加密报价文件
有关格式资料见竞价文件格式
|
|||||||||
| 竞价文件提交截止时间及须知
|
1.竞价文件提交截止时间:北京时间2023年10月11日 10:00
2.竞价文件接收时间:加密电子竞价文件的接收时间自本公告发布时间起至竞价文件提交截止时间止(请意向承租人合理安排加密电子竞价文件的提交时间)。
3.意向承租人须知
3.1意向承租人须对竞价文件进行电子签章并使用数字证书加密,并于公告规定的竞价文件提交截止时间前通过电子交易系统完成上传并递交。
3.2意向承租人应当在竞价文件提交截止时间前完成加密竞价文件的传输递交,并可以补充、修改或者撤回竞价文件。竞价文件提交截止时间后未完成竞价文件传输的,视为撤回竞价文件。未按规定加密或竞价文件提交截止时间后送达的竞价文件,电子交易系统将拒收。
3.3意向承租人未从电子交易系统递交加密竞价文件的,被视为竞价无效。所递交的非加密竞价文件电子交易系统及合肥市产权交易中心拒收。
|
|||||||||
| 竞价文件解密
|
1.意向承租人须在规定的时间内(一般为竞价文件提交截止时间后30分钟)对其加密竞价文件进行解密,现场解密和远程解密均可,解密失败的风险由意向承租人自行承担。
2.意向承租人须按照本公告的要求在竞价文件提交截止时间前登录电子交易系统并保持在线,直到项目评审结束。
3.意向承租人应在规定时间内对本单位的竞价文件进行解密,加密和解密须用同一数字证书。意向承租人未在规定的时间内完成解密的视为其放弃竞价。
4.合肥市产权交易中心在监督员或公证员监督下按规定解密竞价文件,导入并读取成功解密的竞价文件。
|
|||||||||
| 评审时间及地点
|
评审时间:同竞价文件提交截止时间
(以本项目评审地点悬挂的电子屏幕显示时间为准)
评审地点:合肥市滨湖新区南京路2588号(徽州大道与南京路交口)安徽合肥公共资源交易中心4楼。
备注:意向承租人可以在线解密竞价文件,无须到达现场。
|
|||||||||
| 特别说明
|
1.本项目采用网上提交竞价文件方式,有关网上操作详见《合肥市公共资源交易电子招标投标操作规程》(本公告上传附件2),意向承租人必须严格遵守,该规程是本公告的重要组成部分。
2.公告中要求加盖公章或电子签章的,均可以提供加盖公章的扫描件,也可以在网上竞价文件编制时加盖电子签章;公告要求提供的证明资料均应在网上竞价文件制作时制作成电子件上传。竞价文件中提交的资料模糊不清的,评审委员会将按不利于意向承租人的理解进行评审,由此产生的一切后果由意向承租人自行承担。
3.竞价文件的澄清,评审委员会将通过电子交易系统发送给意向承租人,从发起远程网上问询至问询结束原则上为15分钟,意向承租人未能在规定时间内回复的,由此产生的一切后果责任由意向承租人自行承担。
4.因系统出现软件设计或功能缺陷、运行异常等情况,可能影响本次评审活动公平、公正进行的,委托方(或合肥市产权交易中心)有权中止或终止本项目评审活动,意向承租人、委托方、合肥市产权交易中心各方免责。
|
|||||||||
| 五、承租人的确定方式
|
||||||||||
| 本项目采取资格审查后一次性报价(以报价单为准)的方式进行,遵循有效最高价成交的交易原则,分两阶段进行。
第一阶段 资格审查资料评审
合肥市产权交易中心受委托方委托组建该项目评审委员会。由评审委员会对意向承租人的资格审查资料及交易保证金进行审查。评审委员会成员对意向承租人某项资格审查资料如有不同意见,按照少数服从多数的原则,确定该项资格审查资料是否通过。如意向承租人提交的材料中有一项未通过或交易保证金未按要求提交的,则视为资格审查不通过。
第二阶段 开启一次性报价单
资格审查评审结束后,解密通过资格审查的意向承租人一次性报价单,评审委员会对报价有效性进行审查,并按报价从高到低的顺序对意向承租人进行排序,有效报价最高者确定为承租人。
1.如产生1家合格意向承租人的,则按意向承租人的报价(不得低于租赁底价)确定承租人。
2.如产生2家及2家以上合格意向承租人的,以价高者得的方式确定承租人。如最高报价相同按下述情况处理:
(1)如报价相同的意向承租人中有优先承租权人的,则同等价格下,优先承租权人确定为承租人;
(2)如报价相同的意向承租人中无优先承租权人的,由评审委员会以抽签的方式确定其前后次序。抽签办法:采用一次性抽签方式,即被抽中的确定为承租人。
3.项目成交后因故不能签订合同的,不予替补,重新公开招租。
备注:
1.竞价文件中报价单内容与系统中报价信息内容不一致的,以报价单为准。
2.评审过程中,竞价文件中存在不明确、同类问题表述不一致、前后矛盾、有明显文字错误的内容等情况,如需要意向承租人澄清、说明或补正的内容,评审委员会将可能进行问询,意向承租人应登录电子交易系统并保持在线状态,以便及时接收评审委员会可能发出的问询函,并在规定时间内回复,若意向承租人未及时回复,视为放弃澄清。
3.因意向承租人授权代表联系不上、没有及时登录系统等情形而无法接受评审委员会问询的,有关风险意向承租人自行承担。
|
||||||||||
| 六、竞价结束后相关程序
|
||||||||||
| 结果公告及《成交确认书》
|
1.竞价结束且无异常情况,合肥市产权交易中心将在网站上发布结果公告。
2.结果公告发布后,合肥市产权交易中心将通过电子交易系统向成交人发出成交确认书,成交确认书发出即视为送达;成交人请登录电子交易系统领取成交确认书。
|
|||||||||
| 交易保证金处置
|
1.确定承租人(合同签订生效)后,承租人交纳的交易保证金扣除交易服务费后的剩余款项可转为首期租金,其他意向承租人交纳的保证金在确定承租人后5个工作日内原额原途径返还(不计息)。
2.交易保证金只退还至意向承租人交款账户。因收款人与意向承租人名称不一致造成的交易保证金无法退还或迟延退还,合肥市产权交易中心不承担任何责任。
3.经监督部门调查认定出现下列情形之一的不良行为,交易保证金不予返还,交易保证金扣除交易双方交易服务费后,余款转至委托方指定的账户。
(1)意向承租人提供虚假材料,骗取成交资格或实现其他非法目的;
(2)意向承租人之间相互串通的;
(3)意向承租人采取不正当手段影响和干扰其他意向承租人参与交易活动的;
(4)承租人无正当理由放弃成交资格的;
(5)承租人未按交易文件约定交纳履约保证金或签定《租赁合同》的。
|
|||||||||
| 异议方式
|
若对结果公告有异议,可自结果公告发布次日起3个工作日内,以书面形式向合肥市产权交易中心提出异议,异议材料递交地址:合肥市滨湖新区南京路2588号合肥要素市场A区678室,联系电话:0551-66223642。
(一)异议应以书面形式实名提出,书面异议材料应当包括以下内容:
1.异议人的名称/姓名、地址、有效联系方式;
2.项目名称、项目编号、标的号(如有);
3.被异议人名称/姓名;
4.具体的异议事项、基本事实及必要的证明材料;
5.明确的请求及主张;
6.提起异议的日期。
异议人为自然人的,应当由异议人本人签字并附有效身份证明;异议人为法人或者其他组织的,应当由法定代表人或其委托代理人(需有委托授权书)签字并加盖公章。
异议人需要修改、补充异议材料的,应当在异议期内提交修改或补充材料。
(二)有下列情形之一的,不予受理:
1.提起异议的主体不是所异议项目竞价人的;
2.异议材料不完整的;
3.异议事项含有主观猜测等内容且未提供有效线索、难以查证的;
4.异议事项已进入投诉处理、行政复议或行政诉讼程序的。
(三)若异议人对异议处理意见有异议,可在答复期满后7个工作日内以书面形式向交易监督部门提出投诉。
|
|||||||||
| 交易服务费收取
|
交易服务费收取标准为首年成交月租金的10%,不足500元的,按500元收取。
|
|||||||||
| 七、其他说明
|
||||||||||
| 其他说明
|
1.对本项目公告内容要求澄清或有异议的意向承租人,应于公告截止日前3个工作日前,以书面形式向合肥市产权交易中心提出,逾期递交的不予受理。
2.合肥市产权交易中心对本公告进行的澄清、更正或更改,将在网站上及时发布(网址:https://ggzy.hefei.gov.cn/),该公告内容为出租公告的组成部分,对意向承租人具有约束力。意向承租人应主动上网查询。合肥市产权交易中心不承担意向承租人未及时关注相关信息的责任。
3.在公告截止时间前,合肥市产权交易中心可以视具体情况,延长公告截止时间,并在网站上发布变更公告。
|
|||||||||
| 八、联系方式
|
||||||||||
| 现场踏勘
|
联系人:宣工;联系电话:0551-69008852。
|
|||||||||
| 主体库登记
|
联系电话:010-86483801转5-2
|
|||||||||
| 项目负责人
|
联系人:江工,联系电话:0551-66223293、66223918(合肥市滨湖新区徽州大道4872号金融港中心A9幢安徽公共资源交易集团4楼)。
|
|||||||||
| 本项目意向承租人如需咨询,务必首先认真阅读本项目公告,并针对具体条款进行咨询。本公告为本项目唯一法定文书,一切解释以本公告为准。本公告及其附件解释权归委托方和合肥市产权交易中心。
|
||||||||||
附图:

职教城站附属用房范围内租赁场地(第三层)位置图示
肥市产权交易中心
附件:附件1:房屋租赁竞价文件格式(网).docx 附件:附件2:合肥市公共资源交易电子招标投标操作规程.docx 附件:附件3:租赁合同.docx