您现在的位置: 首页 >> 答疑变更 >> 安徽公共资源交易集团项目管理有限公司 >> 货物
一、原公告主要信息
原项目名称: 蜀山区SS202407号地块示范区及样板间软装布置项目
原项目编号: 2025HAFWN00718
原公告日期: 2025年04月11日
二、公告内容(更正事项、内容及日期等)
蜀山区SS202407号地块示范区及样板间软装布置项目询比文件补疑1
2025HAFWN00718
1.招标文件里面,响应表要求对第三章 “招标人要求”逐一列出商务以及技术响应列表。但是技术响应表表格抬头是货物名称,如果将服务要求填进技术响应表格里面进行逐一响应,感觉和抬头里的货物名称不是很契合,请问可以自行增加一个单独的表格吗,专门响应服务要求这块的内容?


答:关于第三章中“服务要求”可以不提供响应表逐一响应。询比文件第三章中“服务要求”是对中标人标后履约的要求,投标阶段无论是否提供”响应表,标后均须按询比文件要求履约。关于第六章中“3.2技术响应表”为投标人采用其他品牌(或型号)的需要填写,采用其他品牌(或型号)的应在“3.2技术响应表”中注明并提供有关技术性能指标证明资料等供评审小组评审,未注明且未提供有关技术性能指标证明资料,或经评审小组评审未通过的,中标后只能从招标人推荐(或参考)品牌中进行选择,合同价格不予调整。
如投标文件中投标人未在“3.1商务响应表”和“3.2技术响应表”中列明的响应情况的条款,视同投标人默认全部响应。
2.工程量清单总说明中的“工程量清单列出的每个细目已包含涉及到与该细目有关的全部工程内容”是否指招标文件中给到的软装清单已包含本次招标的所有工程量要求?

答:是。
3.施工图纸中有,但招标提供的清单中未体现的,是否可以默认为不在本次招标范围内?
答:本次招标范围以工程量清单为准。
4.需要提供软装设计方案,招标清单中产品的材质和尺寸是否可以根据软装设计方案中的产品进行自主调整?
答:投标报价以招标工程量清单为准。中标后须深化设计,但不得低于招标清单中的材质、尺寸等要求,深化方案须报招标人认可后方可实施,结算时价格按中标价计算,不予调整。
5.总报价在最高投标报价范围内,每各细目的综合单价和综合合价能否自行调整?
答:可以。
6.下表售楼部清单中装饰小摆台11组,具体指哪里?

答:卫生间、水吧台、洽谈区等位置。
7.售楼部一层清单中镜前灯用在哪里?


答:用于礼宾台。
8.售楼部一层家具清单中体现为装饰坐凳,平面图纸和效果图则显示未装饰摆台,尺寸及具体款式要求,以哪个为准?




答:摆台即为装饰座凳。
9.工程量清单中没有产品图片这一列,是否可以自行插入?

答:不可以。
10.售楼部招标清单中未体现健身区,是否指该区域的所有物品及健身器材均不在软装设计范围内?
答:健身器材不在此次招标范围内。
11.招标文件只给了9#架空层的清单,是否指只有9#在本次招标范围内?
答:只有9#架空层在本次招标范围内,其余架空层均不在。
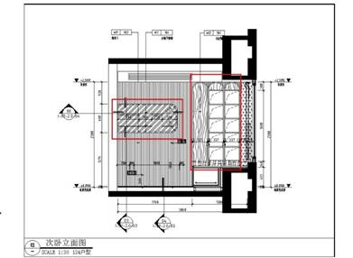
12.134户型:
(1)工程量清单中,客厅茶桌区域只有以下家具及饰品摆件?是根据工程量清单中配置还是按照平面图及效果图配置?




答:投标报价以招标工程量清单为准。中标后须深化设计,但不得低于招标清单中的材质、尺寸等要求,深化方案须报招标人认可后方可实施,结算时价格按中标价计算,不予调整。
(2)清单中露台家具是在图纸中哪个位置?

答:如图所示。

(3)长辈房床头柜清单中只有三件,是否按照平面图配置两件?

答:投标报价以招标工程量清单为准。
(4)工程量清单中,各个空间未配置的地毯、饰品摆件,是否根据具体需求进行增加?
答:投标报价以招标工程量清单为准。
(5)儿童房墙面层板架是否属于软装范畴?定制床是否包含墙面柜子?

答:不属于,不包含柜子。
13.123户型:
(1)工程量清单中,玄关吊灯未配置,是否增加到清单中?

答:投标报价以招标工程量清单为准,进场后中标单位须进行深化设计,并将方案提交招标人,以招标人确认后的物品清单为准。
(2)工程量清单中配置四件床,是否根据实际平面进行减少?




答:投标报价以招标工程量清单为准,进场后中标单位须进行深化设计,并将方案提交招标人,以招标人确认后的物品清单为准。
14.招标文件第58页,响应表,如投标人完全响应招标文件,本页内容是否可以不用填写?
答:如投标文件中投标人未在“3.1商务响应表”和“3.2技术响应表”中列明的响应情况的条款,视同投标人默认全部响应。
15.软装项目结算和付款节点,通常以项目产品配置数量和完成进度设置,付款方式是否可以调整为:
第一次付费,合同签定5个工作日内支付合同额40%;
第二次付费,乙方提供产品完成图片与甲方审查通过后,软装产品进场前5个工作日支付合同额40%;
第三次付费,乙方进场安装完成交货,经甲方验收通过后5个工作日内,支付合同额17%;
第四次付费,软装质保期届满后,5个工作日内支付合同额3%(自安装完毕之日起算);
答:不予调整。
注:此补疑视同询比文件的组成部分,与询比文件具有同等法律效力。
招标人名称:合肥瑞祥辰景置业有限公司
地址:安徽省合肥市蜀山区井岗镇黄山路596号
联系人:万工
联系方式:0551-62198609
招标代理:安徽公共资源交易集团项目管理有限公司
地址:合肥市滨湖新区南京路2588号(徽州大道与南京路交口)六楼
联系人:张工
联系方式:0551-66223236、66223831
2025年4月15日
三、附件
答疑发布日期:2025年04月15日