您现在的位置: 首页 >> 答疑变更 >> 安徽公共资源交易集团项目管理有限公司 >> 货物
一、原公告主要信息
原项目名称: 合肥市第三人民医院新区及市中医院建设项目泛光照明及标识标牌采购及安装
原项目编号: 2022BFFAZ02654
原公告日期: 2022年11月25日
二、公告内容(更正事项、内容及日期等)
合肥市第三人民医院新区及市中医院建设项目泛光照明及标识标牌采购及安装招标文件补疑2
2022BFFAZ02654
第一部分:投标人疑问答复内容
1.招标文件要求:“自2017年1月1日以来(以合同签订时间为准),投标人具有单个合同总金额不少于500万元的公共建筑泛光照明工程供货和安装业绩”。现我司有公建类地铁大型综合性施工业绩,如:武汉市轨道交通5号线(风、水、电、装修)施工、郑州市地铁6号线一期工程风水电安装及装修施工等,此类业绩合同中施工内容包含照明系统安装或动力照明工程施工,实际施工清单中也包含泛光照明安装且金额不低于500万元,请问该类业绩是否满足资格审查和详细评审要求?如我司提供泛光照明清单或者出具业主证明是否可行?
答:按照招标文件执行,不予认可。投标人须按招标文件要求,提供单个合同总金额不少于500万元的公共建筑泛光照明工程供货和安装业绩。
2.招标文件要求:“自 2017 年1月1日以来(以颁奖时间为准),投标人所承建或参建的公共建筑亮化工程,获得建设(行政)主管部门或国内依法登记注册的协会(或学会)颁发的优质工程奖项,地市级及以上(如“琥珀杯”或“黄山杯”或“鲁班奖”或“国家优质工程奖”或“中照奖”或“金手指奖”等)”。现我司有承建的公共建筑综合性施工工程奖项,如武汉市轨道交通8号线一期工程“鲁班奖”、宁波市轨道交通2号线一期工程“国家优质工程奖”,该施工业绩奖项是综合性施工工程,施工内容均包含泛光照明安装,请问该类奖项是否满足招标文件要求?
答:按照招标文件执行,不予认可。招标文件约定须投标人所承建或参建的公共建筑亮化工程获奖。
3.清单中开关电源规格型号HLG-480H-24V;这个型号为IP67防水电源,而项目实际实施过程开关电源是放在电源箱中,IP67防水电源是否可以修改为防雨电源?
答:不修改,按招标文件执行。
4.本项目LED线条灯1、LED线条灯2要求0.15米规格的,鉴于长短灯拼接控制和亮度上要一致,实际生产时线条灯长度为0.2米-0.25米左右,此长度同样可以拼接曲线,请问LED线条灯1、LED线条灯2的0.15米规格可以修改为0.2米-0.25米?
答:不修改,按招标文件执行。
5.裙房顶投光灯固定位置有5mm厚加强板,此加强板是否由投标人供货及安装?

答:由投标人供货与安装,所有费用含在投标报价内。
6.屋顶洗墙灯1 含0.5米长50*90mm挡板,请问此挡板是否由投标人供货及安装?
答:由投标人供货与安装,所有费用含在投标报价内。
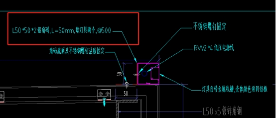
7.裙房顶线条灯2 灯具每米两个角码,请问此角码是否由投标人供货及安装?
答:由投标人供货与安装,所有费用含在投标报价内。
8.市三院新区门诊医技住院综合楼泛光照明清单中LED动态像素灯规格15*0.3W与技术规范书中0.24*3W 不一致,是否以技术规范书中为0.24*3W RGB 为准?
答:按技术规范书0.24*3WRGB 为准,综合单价无误,清单项目特征不做调整,投标报价及后期施工均按“0.24*3WRGB ”执行。
9.市中医院标识标牌清单中有综合单价已填写,是否可以自行修改?
答:投标人自行考虑报价。
10.招标文件投标格式要求如下:
请明确投标货物技术性能指标的详细描述是否为初审指标?因本项目资料仅提供<合肥市中医院建设工程项目设计泛光照明工程设备技术规范书>,此处投标货物技术性能指标详细描述是否仅提供泛光照明工程货物技术性能指标的详细描述即可?
答:此项详细描述不作为初步评审。请投标人根据所投货物、自身情况自行考虑填写。
11.招标文件要求:“自2017年1月1日以来(以合同签订时间为准),投标人具有单个合同总金额不少于 500 万元的公共建筑泛光照明工程供货和安装业绩”。现我司有公建类地铁大型综合性施工业绩,如:武汉市轨道交通5号线(风、水、电、装修)施工、郑州市地铁6号线一期工程风水电安装及装修施工等,此类业绩合同中施工内容包含照明系统安装或动力照明工程施工,实际施工清单中也包含泛光照明安装且金额不低于500万元,请问该类业绩是否满足资格审查和详细评审要求?如我司提供泛光照明清单或者出具业主证明是否可行?
答:详见本补疑回复第1条。
12.招标文件要求:“自 2017 年1月1日以来(以颁奖时间为准),投标人所承建或参建的公共建筑亮化工程,获得建设(行政)主管部门或国内依法登记注册的协会(或学会)颁发的优质工程奖项,地市级及以上(如“琥珀杯”或“黄山杯”或“鲁班奖”或“国家优质工程奖”或“中照奖”或“金手指奖”等)”。现我司有承建的公共建筑综合性施工工程奖项,如武汉市轨道交通8号线一期工程“鲁班奖”、宁波市轨道交通2号线一期工程“国家优质工程奖”,该施工业绩奖项是综合性施工工程,施工内容均包含泛光照明安装,请问该类奖项是否满足招标文件要求?
答:详见本补疑回复第2条。
13.投标编制软件界面的投标文件格式为空白文档,是否可以提供与招标文件一致的 word 格式文件?
答:无Word版格式。
14.明确投标保证金担保机构保函原件是否可以中标后提交,如不可以请确认。
答:投标保证金采用第二类形式的,中标候选人须在中标结果公示发布前将其开具至本项目的银行保函(或担保机构担保或保证保险)原件提交招标人(或招标代理机构),且原件须与投标文件中提供的扫描件一致,如存在未按规定提交或提交内容不一致,或发现弄虚作假的,招标人应当报监管部门依法处理。
15.提保机构可以使保险公司吗?是否需要安徽当地的,请确认。
答:投标保证金采用第二类形式的,关于机构的要求已在招标文件作出相关约定,请投标人自行查看。
16.关于制造商授权书是所有项目实施所使用到的物资类别都需要授权,还是其中主要的材料需要授权?
答:投标人格式中的“制造商授权书”为通用样式,招标文件未要求提供制造商授权书的,无需此件。
17.关于“项目设计泛光照明工程设备技术规范书的要求”,此文件是否是供参考,满足现场安装条件及最终效果即可?
答:“项目设计泛光照明工程设备技术规范书的要求”须严格执行。
18.市中医院标识标牌清单“序号1:楼顶名称标识EX-W-V1,数量为211.4套”,此数量或单位是否有误?
答:单位有误,应为m²,数量和综合单价无误,清单不做调整,投标报价及后期施工均按“m²”执行。
19.泛光照明、标识标牌最终设计方案明天答疑文件里请招标人提供一下。
答:本项目招标所需的所有技术资料均已提供。
20.市中医院门诊医技住院综合泛光照明清单中灰度及动态控制系统与智能照明控制系统是否共用一台PC主控台?如两个系统需分别单独设置PC主控台是否允许?如何报价?
答:按图纸及清单执行,投标人综合考虑报价。
21.灰度及动态控制系统和智能照明控制系统控制软件费用未列明,是否包含于PC主控台报价内?
答:包含在PC主控台报价内。
22.招标文件的第8项,具体技术资料指哪些资料?是否有格式要求?是否与第7项重复?
答:无具体的格式和内容,投标人可根据招标文件要求及所投货物和技术方案自行考虑所需提供的“技术支持资料”。
23.招标文件的第9项,具体技术服务指哪些?是否有范围要求?
答:无具体的格式和内容,投标人可根据招标文件要求及所投货物和技术方案自行考虑所需提供的内容资料。
24.
答:内容对应标题填写,此部分标题为“投标人名称”。
25.商务及技术文件、报价文件详细评审标准-投标人业绩要求如下:
请问此项评审业绩要求“另附买方(或合同甲方)出具的证明资料予以明确说明”是否同样适用招标公告中企业资格审查业绩。即:
投标人资格要求
3.2 业绩要求:自 2017 年 1 月 1 日以来(以合同签订时间为准),投标人具有单个合同总金额不少于 400 万元的公共建筑泛光照明工程供货和安装业绩;
注:公共建筑”系指办公建筑(包括写字楼、政府部门办公室),商业建筑(如商场、金融建筑),旅游建筑(如酒店、娱乐场所),科教文卫建筑(包括文化、教育、科研、医疗、卫生、体育建筑),通信建筑(如邮电、通讯、数据中心、广播用房)、交通运输类建筑(如机场、高铁站、火车站、地铁、汽车站),如业绩证明资料均未能明确反映出招标文件所要求的内容的(如合同总金额、公共建筑等),应另附买方(或合同甲方)出具的证明资料予以明确说明。
答:投标人资格“3.2 业绩要求”的业绩证明材料约定详见招标文件须知前附表附录3资格审查条件(业绩最低要求),请投标人自行查看。
26.LED柔性灯带招标清单内为4000K,灯具规格书内为3000K,请明确。
答:图纸中设计说明为4000K,灯具规格书内为3000K,以3000K为准。综合单价无误,清单项目特征不做调整,投标报价及后期施工均按“3000K”执行。
27.招标清单内LED动态像素灯参数为:L=1.0m,15*0.3W LED 3000K 110°,DC24V;规格书内为:1米10颗,7.2W RGB 120° DC12V,清单是否有误,请复核。
答:清单项目特征描述有误,应为“1米10颗,7.2W RGB 120°DC12V”,综合单价无误,清单项目特征不做调整,投标报价及后期施工均按“1米10颗,7.2W RGB 120°DC12V”执行。
28.请明确“体育场馆”是否属于“公共建筑”?
答:招标文件已明确体育建筑为公共建筑。
注:此补疑视同招标文件的组成部分,与招标文件具有同等法律效力。
招 标 人:合肥市重点工程建设管理局
地 址:潜山路550号
联 系 人:王工
电 话:0551-62865413
8.2 招标代理机构
招标代理机构:安徽公共资源交易集团项目管理有限公司
地 址:合肥市滨湖新区南京路2588号(徽州大道与南京路交口)六楼
邮 编:230000
联 系 人:张工
电 话:0551-66223911、66223831
2022年12月8日
三、附件
答疑发布日期:2022年12月08日