您现在的位置: 首页 >> 答疑变更 >> 安徽公共资源交易集团项目管理有限公司 >> 货物
一、原公告主要信息
原项目名称: 合肥公交集团庐阳停保场复建工程车辆维修设备采购及安装
原项目编号: 2022BFFAZ01769
原公告日期: 2022年08月06日
二、公告内容(更正事项、内容及日期等)
合肥公交集团庐阳停保场复建工程车辆维修设备采购及安装3标段招标文件补疑1
(2022BFFAZ01769-3)
招标文件变更内容。
原招标文件P79“ 一、招标货物清单
| 序号 |
设备名称 |
类型 |
数量 |
备注 |
| 1 |
双通道式六刷洗车机(含循环水过滤再利用装置) |
主机 |
1套 |
|
| 2 |
车牌识别+道闸、监 控及后台远程控制系统 |
配套 |
1套 |
|
”;
现需变更为:“一、招标货物清单
| 序号 |
设备名称 |
类型 |
数量 |
备注 |
| 1 |
单通道式六刷洗车机(含循环水过滤再利用装置) |
主机 |
2台 |
2台独立单通道洗车机,分别安装在场区两处。 |
| 2 |
车牌识别+道闸、监 控及后台远程控制系统 |
配套 |
2套 |
|
”。
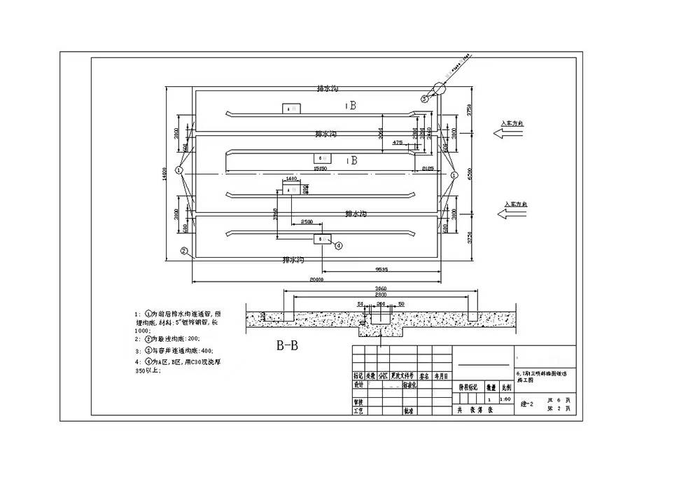
2.原招标文件中P82“附件:基础图


”;
现变更为:“

”。
3.原招标文件P3“2.7 合同估算价:40万元
2.12 其他:本招标项目概算:40万元”;
现变更为“2.7 合同估算价:52万元
2.12 其他:本招标项目概算:52万元”。
4.原招标文件P8“
| 3.2.4 |
最高投标限价 |
□无 þ有,最高投标限价40万元 □有,通过电子服务系统发布 |
”;
现变更为“
| 3.2.4 |
最高投标限价 |
□无 þ有,最高投标限价52万元 □有,通过电子服务系统发布 |
”。
;
注:此补疑视同招标文件的组成部分,与招标文件具有同等法律效力。
招标人名称:合肥公交集团有限公司
地址:合肥市瑶海区和平路272号
联系人:黄工
联系方式:0551-64487489
招标代理:安徽公共资源交易集团项目管理有限公司
地 址:合肥市滨湖新区南京路2588号(徽州大道与南京路交口)六楼
联系人:张工
联系方式:0551-66223270、66223831
2022年8月11日
三、附件
答疑发布日期:2022年08月11日