您现在的位置: 首页 >> 答疑变更 >> 安徽公共资源交易集团项目管理有限公司 >> 工程
一、原公告主要信息
原项目名称: 合肥经开区临湖智能制造产业园基础设施配套二期
原项目编号: 2025BFJGZ01812
原公告日期: 2025年08月13日
二、公告内容(更正事项、内容及日期等)
合肥经开区临湖智能制造产业园基础设施配套二期招标文件补疑1
项目编号:2025BFJGZ01812
第一部分 延期部分内容
1.原招标文件获取截止时间为“2025年09月02日09时30分”,现延期到“2025年09月12日09时30分”;
2.原开标时间及投标截止时间为“2025年09月02日09时30分”,现延期到“2025年09月12日09时30分”;
3.原投标人疑问截止时间为“2025年08月22日17:30”,现延期到“2025年09月02日17:30”;
4.开标地点变更为:合肥市滨湖新区南京路2588号要素交易市场A区(徽州大道与南京路交口)2楼10号开标室。
5.投标人在投标时提供的电子保函、银行保函、保证保险、担保机构担保等形式的投标保证金中,若涉及的开标时间为延期前的开标时间或者延期后的开标时间均予以认可。
第二部分 招标文件调整内容
1.本项目设计效果图文件详见本补疑附件,请及时下载查看。
2.本项目最新版的清单控制价《2025BFJGZ01812项目清单控制价08.28》详见本补疑附件,请及时下载查看,以此为准。
3.根据调整后的最高投标限价,本招标项目评标办法中异常低价评审对应调整为“☑执行,异常低价规定指标:88%,异常低价:140735748.01元,具体见附件2”。
4.鉴于本项目延期开标,项目相应节点工期顺延,暂定2025年9月20日开工。具体开工日期以开工通知为准。
第三部分 投标人疑问招标文件回复内容
1.本项目的建设内容为产业园的配套工程,但招文的资格审查业绩、项目经理业绩、详细评审企业业绩均要求公共建筑工程施工业绩,且项目经理业绩和详细评审企业业绩有匹配度的考察要求,与本项目招标的工程业态不匹配,是否应该将“公共建筑工程施工业绩”改为“工业建筑工程施工业绩或房屋建筑工程施工业绩”?
答:设置条件符合项目情况,具体按招标文件执行。
2.第二章 招标人须知“附录6 资格审查条件中附表1 资格审查评审条件(主要管理人员最低要求)”中要求:项目技术负责人技术职称为建筑工程相关专业高级工程师及以上。
请问:技术职称为土木工程专业高级工程师是否满足资格要求,请明确。
答:满足。
3.“招标公告3.1.3投标人业绩要求”以及“第三章 详细评审标准”中对投标人和项目经理业绩均要求:自2020年1月1日以来(以竣工验收时间为准),在中华人民共和国境内(不含港澳台)须具备单个合同工程总建筑面积不少于3万平方米(或单个合同金额不少于7000万元)的公共建筑工程施工业绩。
请问:公共建筑工程装饰装修施工业绩是否属于公共建筑工程施工业绩,请明确。
答:属于。
4.“第三章 详细评审标准”中对投标人和项目经理奖项荣誉分别要求:投标人奖项荣誉“评标委员会根据投标人承接的公共建筑项目,自2020年1月1日以来(以颁奖文件颁发日期或官网文件发布时间为准)获得市级及以上优质工程奖项情况进行综合评价”;项目经理奖项荣誉“评标委员会根据投标人拟派项目经理在中华人民共和国境内(不含港澳台)承建的公共建筑项目获得市级及以上优质工程奖项情况进行综合评价”。
请问:(1)提供的投标人奖项荣誉、项目经理奖项荣誉均为公共建筑装饰装修参建单位所获得市级及以上优质工程奖项,是否满足招标文件评审得分要求,请明确。
(2)由中国建筑装饰协会评定的“中国建筑工程装饰奖”是否属于市级及以上优质工程奖项,请明确。
(3)项目经理奖项荣誉可否通过提供项目合同或竣工验收报告来佐证项目经理身份,请明确。
答:(1)满足,具体按招标文件要求执行;
(2)
属于,具体按招标文件要求执行;
(3)
可以。
5.联合体投标的,项目经理、技术负责人、业绩、奖项、荣誉是否可为联合体任意一方提供?
答:可以。
6.招标公告中“投标人业绩要求:自2020年1月1日以来(以竣工验收时间为准),投标人在中华人民共和国境内(不含港澳台)具备单个 合同总建筑面积不少于3万平方米(或合同金额不少于 7000 万元) 的公共建筑工程施工业绩。”,请问公共建筑工程施工是否包含公共建筑装饰工程施工?
答:是。
7.详细评审标准中“自2020年1月1日以来(以竣工验收时间为准),投标人在中华人民共和国境内(不含港澳台)具备单个合同工程总建筑面积不少于3万平方米(或合同金额不少于7000万元) 的公共建筑工程施工业绩。”,请问公共建筑工程施工是否包含公共建筑装饰工程施工?
答:是。
8.详细评审标准中“自2020年1月1日以来(以竣工验收时间为准),投标人拟委任项目经理在中华人民共和国境内(不含 港澳台)须具备单个合同工程总建筑面积不少于3万平方米(或单个合同金额不少于7000万元)的公共建筑工程施工业绩。”请问公共建筑工程施工是否包含公共建筑装饰工程施工?
答:是。
9.评标办法投标人奖项荣誉及项目经理奖项荣誉是否包含公共建筑装饰项目获得的市级及以上优质工程奖?
答:是。
10.我司因经营需要,法定代表人正在变更。我司营业执照已完成法定代表人变更手续,安全许可证及资质证书等资料法定代表人变更手续正在办理中,请问投标文件中提供注册地市场监督管理局盖章出具的法人变更信息的证明,是否予以认可?
答:予以认可。
11.本项目建设规模为产业园及基础设施配套项目室外景观绿化及技术中心、食堂、车间一至车间四、主门卫(总建筑面积约 49451 平方米)装饰施工,主要工程内容包括绿化、园建、景观结构、景观电气、景观给排水等景观及其附属工程以及电气、装饰、钢结构、给排水、暖通、智能化等装饰及其附属工程。
从建设规模及施工内容可知,施工范围既有公共建筑,也有厂房。资格要求及详细评审标准中业绩均要求公共建筑工程施工业绩,我司拟提供XXXX产业园项目或XXXX产业园施工总承包,施工内容包含厂房及产业园办公楼、研发楼、展厅、孵化中心、公寓等公共建筑,请问是否符合要求?
答:符合,具体按招标文件要求提供业绩证明资料。
12.竣工验收及四库一平台中项目名称为***地块商业开发项目,是否可作为公共建筑业绩认定?
答:投标人未明确具体业绩内容,实际情况无法判定,具体由投标人提供相关业绩证明材料,由评标委员会依据招标文件进行评审。
13.商务文件详细评审-项目经理奖项荣誉中评标委员会根据投标人拟派项目经理在中华人民共和国境内(不含港澳台)承建的公共建筑项目获得市级及以上优质工程奖项情况进行综合评价。
请问我司提供拟派项目经理在中华人民共和国境内(不含港澳台)承建的公共建筑项目获得市级及以上优质结构工程奖项,是否予以认可?
答:不予认可。
14.招标文件“第二章 投标人须知 1.总则 8.1.1 ......除投标人须知前附表另有规定外,履约保证金为中标合同金额的 10%。”
“第四章 第三节 专用合同条款 3.7 履约保证金的金额:中标合同金额的2%。”
请问:两处关于履约保证金的数额规定不一致,请明确履约保证金数额是否为中标合同金额的2%?
答:按照“第四章 第三节 专用合同条款 3.7 履约保证金的金额:中标合同金额的2%”执行。
15.招标文件“第四章 第三节 专用合同条款 12.4.1 关于付款周期的约定:按月支付经监理、发包人等审核确认的完成投资额的 85%;......”
请问:此处“完成投资额”是否指承包人当月的完工工程量?
答:经监理、发包人等审核确认的工程量对应的投资额。
16.请明确本项目付款方式是否为100%银行转账?若有其他付款方式,请明确。
答:付款方式为银行转账。
17.招标文件中企业业绩和项目经理业绩要求:自 2020 年1月1日以来(以竣工验收时间为准),在中华人民共和国境内(不含港澳台)须具备单个合同工程总建筑面积不少于3万平方米(或单个合同金额不少于7000万元)的公共建筑工程施工业绩。
请问:(1)公共建筑工程室内装饰装修业绩是否给予认可?
(2)如果为联合体业绩,以上指标是否以合同总金额或总建筑面积为准?
(3)请问业绩要求的中标查询网址及截图,江苏省建设工程招标网的中标截图是否认可?
(4)请问如业绩因无法完整反映评审因素,另附其他材料,①和②是否提供任一项即可?
答:(1)可以,具体按招标文件要求提供业绩证明资料;
(2)
投标人如提供联合体业绩,提供业绩证明资料须能体现出投标人在此业绩中承担施工内容符合招标文件业绩要求否则不予认可,具体由评标委员会评审。
(3)
官方网站的查询网址及截图予以认可;
(4)
可以。
18.业绩匹配度问题:在进行匹配度评比时,是否以项目类型为主?另外该项目涉及专业较多,其中装饰工程占比较大,是否评比以装饰金额为主?即:匹配度主要参考项目类型及装饰工程金额进行综合评定。
答:业绩匹配度由评标委员会从项目业态类型、项目规模、业绩合同金额等方面进行综合评审。
19.请问详细评审中的企业实力:
(1)中国建筑装饰协会颁发的“中国建筑装饰行业综合数据统计”前100名证书,是否认可?(因中国建筑装饰协会颁发的百强企业现已变成建筑装饰行业综合数据统计,上面有装饰类的排名)
(2)请问国内依法登记注册的行业协会(学会)(如中国建筑装饰协会、中国施工企业管理协会、中国建筑业协会等)颁发的有关AAA企业信用等级证书,是否认可?
答:(1)认可,具体按招标文件要求执行;(2)认可,具体按招标文件要求执行。
20.请问技术标编制要求,图片中的文字,是否对字体、文字大小无要求?
答:图片中的文字字体大小不作要求,但应便于评委委员会评审。
21.招标文件投标人须知前附表1.3.2计划工期:210日历天,按2025年09月10日开工计算,竣工日期应该为2026年4月7日。与节点工期要求:食堂在2025年12月底前完成全部工程量,技术中心及车间在2026年01月底前完成全部工程量,相互矛盾;请对以上节点工期进行修行,即各单体整体完成时间为2026年4月7日。
答:节点工期满足招标文件要求为准,竣工验收及各专项验收在计划工期内完成。
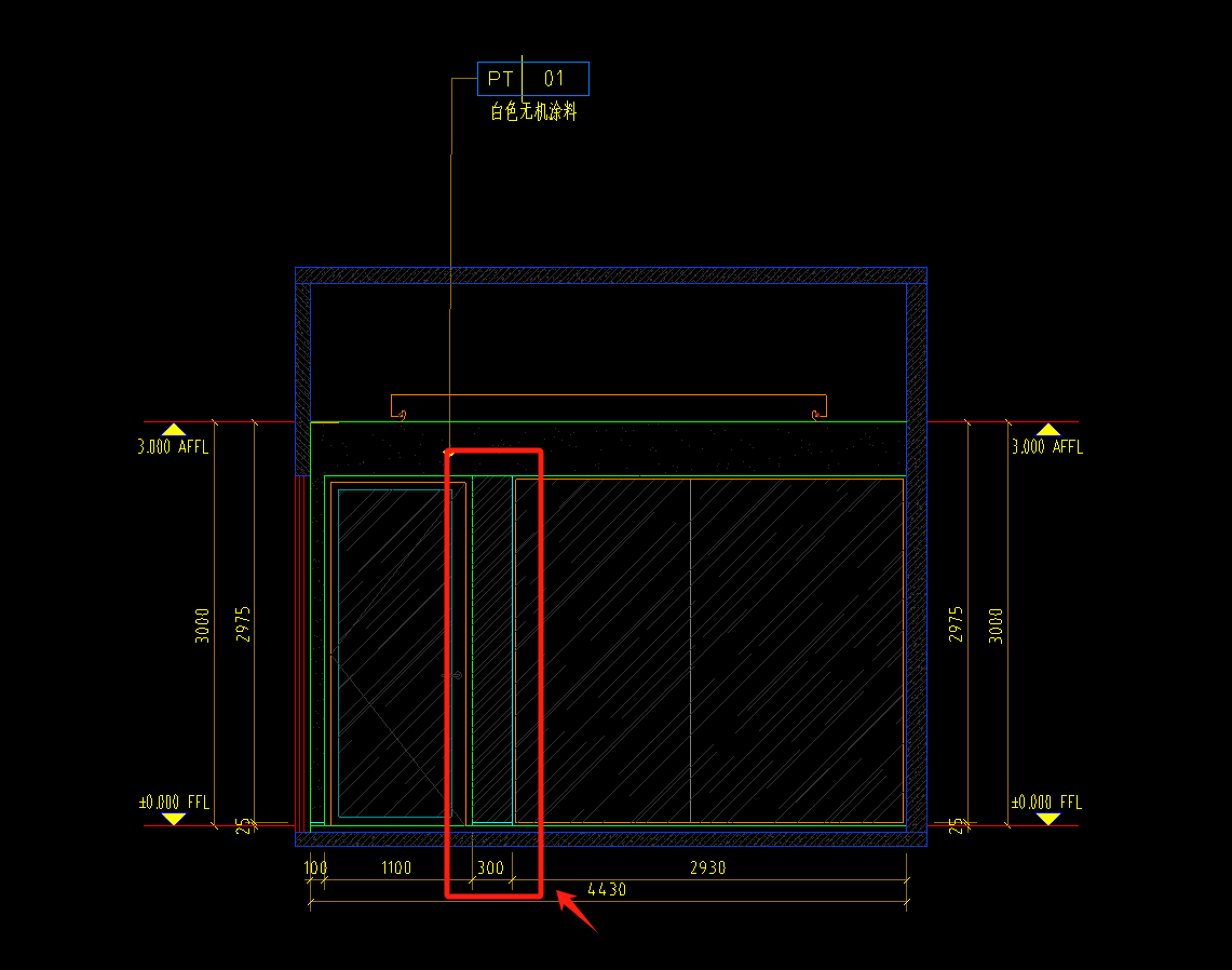
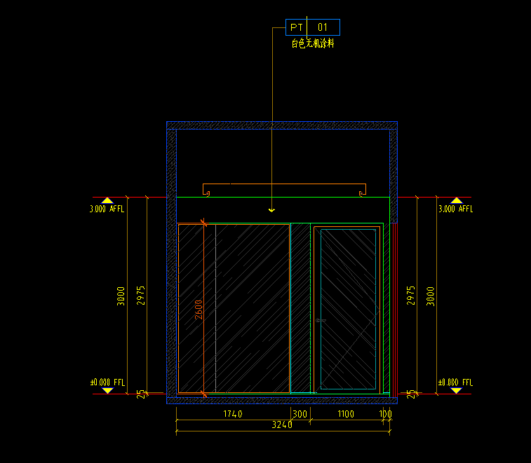
22.招标文件投标人须知前附表1.3.2计划工期:210日历天,按2025年09月10日开工计算,竣工日期应该为2026年4月7日。节点工期要求为:食堂在2025年12月底前完成工程量,技术中心及车间在2026年01月底前完成工程量。请问,除食堂、技术中心、车间有节点工期要求外,其余满足210日历天工期要求即可。
答:节点工期满足招标文件要求为准,竣工验收及各专项验收在计划工期内完成。
23.招标文件投标人须知前附表1.3.2计划工期中的节点工期要求,与图纸04文件夹里的《06-VWA HF2 Interior Decoration Milestone 精装修里程碑节点(1)》文件P9第17)条,及《合肥经开区临湖智能制造产业园及基础设施配套二期项目-精装修技术要求(2)》PPT中的节点要求,以上文件多处节点工期不一致(下面截图仅为其中部分),且PPT中开竣工时间与招标文件也不一致,PPT中多处时间误写成2025年。
请统一以便编制进度计划。如目前无法统一,请问投标时是否按招标文件投标人须知前附表1.3.2计划工期要求执行即可,具体里程碑节点标后商谈?
|
|
|||
|
|
|||
|
|
|||
|
|
|||
|
|
答:以招标文件节点工期要求为准。
24.为方便更好地理解本项目设计,请问能否提供本项目设计效果图文件?
答:可以,详见本补疑附件。
第四部分 投标人疑问清单控制价回复内容
1.如截图所示意,此插座图例是否对应清单中桌面组合插座名称?如图所示的图例是否就是1套?
答:1套
2.如截图所示意,预留地插F是否在地面预留一普通86H50插座盒,预留电线用盲板封闭在盒内即可?如图所示意FX3和TVX4类似标注是否各自在清单中计量为预留地插F数量为3套,单相五孔插座TV数量为4套?
答:是
3.三层电气图中电气系统图与三层智能照明中系统图回路不同,所带负荷描述也不同。以哪个版本为准?
|
|
|
|
答:电气部分清单以电气图纸为准,智能照明部分清单以智能照明图纸为准。
4.四层电气图中电气系统图与三层智能照明中系统图回路不同,所带负荷描述也不同。系统有13APT02-5-1、13APT01-7-1、13APT01-8-1、13APT02-6-1。以哪个版本为准?


答:电气部分清单以电气图纸为准,智能照明部分清单以智能照明图纸为准。
5.四层13ALT02-5-1-B-1电气系统图与智能照明中系统图不同。其它楼层均有类似问题。以哪个版本为准?
答:电气部分清单以电气图纸为准,智能照明部分清单以智能照明图纸为准。
6.四层13ALT01-7-1-B箱,电气系统图中风机盘管5个回路,智能照明中12个,平面图中都有2F12回路。电气系统图中备注智能照明系统详见智能化,以智能化为准。但电气图系统图风机盘管回路也是与平面图不符。其它楼层配电箱也有类似问题。以哪个为准?
答:图纸无误,风机盘管部分以电气图纸为准,本分区风机盘管配电回路共12个,因涉及已安装箱体利旧,故其中七条回路改为13APT01-7-1(利旧配电箱)出线,剩余5条回路由13ALT01-7-1-B(新增配电箱)出线。已复核平面图中也为12条风机盘管回路,故图纸无误,其余类似问题可参照此条回复。
7.二层13ALT02-2-6配电箱,电气系统图中,DALI调光回路画图方式与智能照明图不同。以哪个版本为准?如以智能照明图为准,则系统图和平面皆缺少强电回路。
答:电气部分清单以电气图纸为准,智能照明部分清单以智能照明图纸为准,此13ALT02-2-6箱体共三条照明强电出线回路,系统图与平面图一致。
8.智能照明图中,四层、车间一QA车间、缺少DALI调光系统布线图。
答:详见招标图纸
9.车间二涂装车间,电气图和智能照明图中平面图无图框和图纸名称。
答:图内左边为一层平面,右边为二层平面
10.经过对比发现系统图和系统图、系统图和平面图有不符之处。请提供精简后系统图,避免不同图纸同时体现同一配电箱,影响配电箱报价。
答:图纸中系统图已为最终版本,经复核无重复配电箱,平面图与系统图不一致以系统图为准;电气部分以电气图纸为准,智能照明部分以智能照明图纸为准。投标人综合考虑报价,中标后不予调整。
11.给排水设计说明中,第六大项第2小项中描述,餐厅排水管采用机制铸铁管,法兰承插连接 。清单无机制铸铁管清单项。餐厅给排水无图纸,餐厅内给排水施工是否在本次招标范围?
答:清单有误,详见最新发布的工程量清单及最高投标限价附件。
12.招标编制补疑中,第65页电池车间第2条,系统中照明回路采用电线型号,回复是ZR-BV电线,清单中无ZR-BV电线清单项。
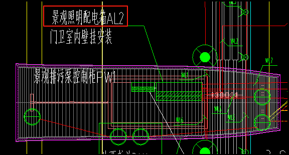
答:清单无误,以图纸为准,详见最新发布招标补疑。
13.地暖清单中交联聚乙烯(PE-Xa)管描述含管卡、管件等辅材。缺少保温板,反射膜,钢丝网片等内容,请补充此部分清单内容。
答:无误,详见装饰清单
14.给排水设计说明中,第六大项第,1小项中描述(1、卫生间及淋浴间冷水热水中水给水管道:PP-R管,热熔套焊连接。
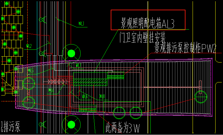
答:经复核清单无误。
15.室内架空冷热水给水管道:食品级SUS304不锈钢管道,氩弧焊接。室内架空中水给水管:内外热镀锌钢管,DN≤50螺纹连接,DN>50沟槽连接。中水优先选用自带中水识别标识的管道。)安装清单中无不锈钢给水管、内外热镀锌钢管清单项。是否本次招标给水管全部采用PP-R水管?请明确。
答:经复核,冷热水管吊顶内及其他架空位置为304不锈钢管,暗敷部分为PPR管,中水管全部采用PPR管,详见最新发布的工程量清单及最高投标限价附件。
16.给排水设计说明中,第六大项第,2小项中描述(2、一层以上卫生间排水支管PVC-U管,立管UPVC中空壁螺旋消音管,承插粘结连接。室内架空及埋地管道采用HDPE塑料排水管,电热熔连接 。)安装清单中无HDPE管清单项。应该怎么理解设计说明中室内架空及埋地管道采用HDPE塑料排水管?是否本次招标排水管全部采用PVC-U排水管。
答:经复核,本次招标范围仅为户内管道排水支管PVC-U管。
17.配电箱、柜推荐品牌中的合肥华尔特电热材料有限公司不是生产配电箱的企业。
答:更改为江苏创致电气有限公司
18.图纸设计坐便器为智能马桶(智能马桶盖+马桶本体),清单中的马桶价格是否为普通马桶价格,不含智能马桶盖价格,价格严重低于市场价。
答:清单马桶均为普通马桶价格,车间及技术中心调整为智能马桶,食堂为普通马桶。详见最新发布的工程量清单及最高投标限价附件。
19.招标文件中的品牌参考表未约定母线插接箱品牌,据了解前期总包母线插接箱有品牌要求,是否需要保持统一?若不保持统一,后期可能会因品牌问题造成母线测温无法正常使用。
答:不在本次招标范围,如有,保持与现有母线品牌一致。
20.清单控制价中管道标识漏项,请复核。
答:管道标识包含在管道安装的清单单价中,请投标人综合考虑报价,中标后不予调整。
21.本工程洁具价格普遍偏低,例如技术中心清单184项座便器、187项洗脸盆,控制价单价仅为1487.71元/组、795.18元/组,且招标文件推荐品牌
![]() |
答:价格有误,详见最新发布的工程量清单及最高投标限价附件。
22.本工程静压箱价格普遍偏低,经我方市场询价,此部分市场成本价格为191万左右,请复核!
![]() |
23.本工程风口风阀价格普遍偏低,根据招标文件要求的品牌英一、Trox 妥思、LOCK AIR洛克埃尔,经我方市场询价,此部分市场成本价格为86万左右,请复核!
|
|
|||
|
|
|||
|
|
|||
|
|
|||
|
|
答:价格有误,详见最新发布的工程量清单及最高投标限价附件。
24.本工程中风机盘管安装是否仅计入风机盘管安装费不含盘管设备费用?例如车间三(总装车间)中清单项115、116,车间四(电池车间)【安装】中清单项115、116,综合单价仅为180.32元/台,请复核!
答:“风机盘管安装”仅为拆改费,不含设备费,具体要求详见招标补疑文件安装部分共性问题第9条。
25.室外安装工程中,清单项40、41中,聚乙烯钢丝网架管DN100、DN150的控制单价均59.71元/m,清单项42项中UPVC管DN150控制单价仅22.98元/m,此部分价格是否有误?且远低于市场价,请复核!
答:价格有误,详见最新发布的工程量清单及最高投标限价附件。
26.技术中心天花清单项目特征描述与节点做法不一致,如波浪形铝板吊顶天棚,清单描述为“3、40*20方管吊架,方管间距按面层尺寸调整 3、3#角钢吊杆,间距≤1200mm;M8膨胀螺栓,50角码固定”,而根据节点I-1-30通用大样节点07,吊顶做法为“φ8吊筋@≤1200MM,M8膨胀螺栓固定,60系列主龙CS60*27*1.2中距≤1200”。请明确基层龙骨做法是否以节点做法为准?如是,请调整对应清单(其余金属吊顶天棚疑问参照此条)。
答:无误,详见补疑文件。
27.施工图设计说明中墙面防水做法有冲突,请贵司明确墙面防水层上翻高度?
|
|
答:详见补疑文件
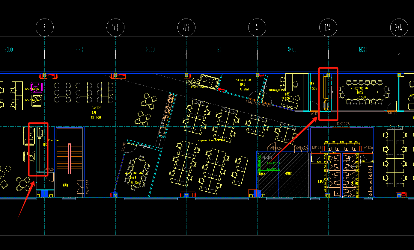
28.强电井、水井等区域的防火门是否在范围?
![]() |
29.3F母婴室柜台未列项,请明确是否在范围?
答:在范围,清单160项已包含
30.3楼E -F轴/7-8轴IT房间门未标明门表编号,请贵司明确此门是否在范围?
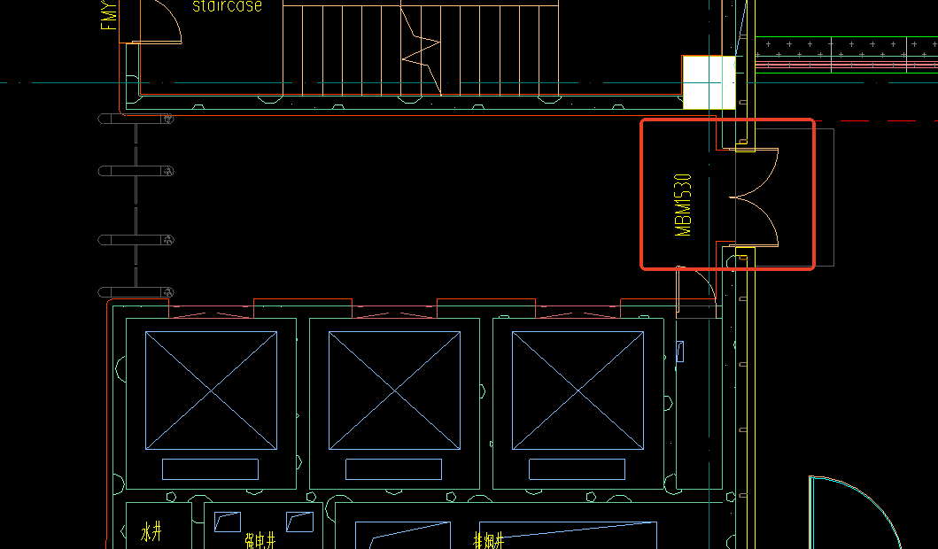
答:在范围,M1530
31.3层电梯厅幕墙处玻璃门是否在范围,请明确?
答:不在本次招标范围
32.4楼活动室2平面图门表编号为M1530,立面图门尺寸为1000*3000,请贵司明确以哪个为准?
答:按照平面图纸
33.4楼活动室1平面图门表编号为M1530,立面图门尺寸为2000*3000,且为玻璃材质,请贵司明确以哪个为准?
答:按照平面图纸
34.2#3#4#5#楼梯间图纸仅有3层4层图纸,请问贵司此楼梯间负一层至二层是否也在范围?
答:在本次招标范围
35.B1F轴F-D~9-1/9处地面部分图纸填充为空白且无说明,请明确此处地面做法?
答:不在本次招标范围
36.B1F红框中的门是否在施工范围?如在请明确门的材质,B1F所有门都未标注做法及材质,请明确?
答:不在本次招标范围
37.B1F立面05中线条为MT-05黑钛不锈钢,节点图中为MT-03蓝色不锈钢,请明确以哪个为准?
答:以立面标注为准,MT-05黑钛不锈钢。
38.1F影音室平面图中门为玻璃门,立面图中为木质门,请明确以哪个为准?
答:按照平面BLM113,耐火隔热极限≥1小时。
39.技术中心门槛石清单未列项,是否在范围,若在,门槛石为何种材质?
答:无门槛石,详见补疑文件
40.清单序号77条,项目名称“预制水磨石楼地面”,清单工程量为463.72平方米,我司工程量为763.15平方米,请贵司复核。
答:经复核无误
41.清单序号82条,项目名称“地毯台阶面层”,清单工程量为69.42平方米,我司工程量为176.51平方米,请贵司复核。
答:经复核无误
42.清单序号89条,项目名称“块料踢脚线”,清单工程量为1188.7m,我司工程量为1279.27m,请贵司复核。
答:经复核无误
43.清单序号102条,项目名称“金属板墙面”,清单工程量为486.76平方米,我司工程量为902.18平方米,请贵司复核。
答:经复核无误
44.清单序号103条,项目名称“金属板墙面”,清单工程量为56.14平方米,我司工程量为65.69平方米,请贵司复核。
答:经复核无误
45.清单序号112条,项目名称“墙面装饰板”,清单工程量为35.77平方米,我司工程量为64.34平方米,请贵司复核。
答:经复核无误
46.清单序号113条,项目名称“墙面装饰板”,清单工程量为63.28平方米,我司工程量为77.11平方米,请贵司复核。
答:经复核无误
47.清单序号120条,项目名称“金属装饰条”,清单工程量为1756.5m,我司工程量为2277.14m,请贵司复核。
答:经复核无误
48.清单序号128条,项目名称“广告灯箱”,清单工程量为54.4平方米,我司工程量为80.64平方米,请贵司复核。
答:经复核清单工程量为80.64平方米,详见最新发布的工程量清单及最高投标限价附件。
49.清单序号129条,项目名称“展示墙置物台”,清单工程量为36平方米,我司工程量为48.02平方米,请贵司复核。
答:经复核清单工程量为48.02平方米,详见最新发布的工程量清单及最高投标限价附件。
50.清单序号130条,项目名称“投影屏、显示屏基层做法”,清单工程量为38.78平方米,我司工程量为123.48平方米,请贵司复核。
答:经复核清单工程量为123.48平方米,详见最新发布的工程量清单及最高投标限价附件。
51.清单序号135条,项目名称“吊顶天棚”,清单工程量为36平方米,我司工程量为105.09平方米,请贵司复核。
答:经复核无误
52.清单序号136条,项目名称“吊顶天棚”,清单工程量为91.74平方米,我司工程量为256.21平方米,请贵司复核。
答:经复核无误
53.清单序号137条,项目名称“吊顶天棚”,清单工程量为712.8平方米,我司工程量为855.22平方米,请贵司复核。
答:经复核无误
54.清单序号139条,项目名称“吊顶天棚”,清单工程量为7419.1平方米,我司工程量为7962.33平方米,请贵司复核。
答:经复核无误
55.清单序号159条,项目名称“玻璃栏板”,清单工程量为34m,我司工程量为45.39m,请贵司复核。
答:经复核无误
56.清单序号203条,项目名称“定制柜体”,清单工程量为374.41平方米,我司工程量为429.64平方米,请贵司复核。
答:经复核无误
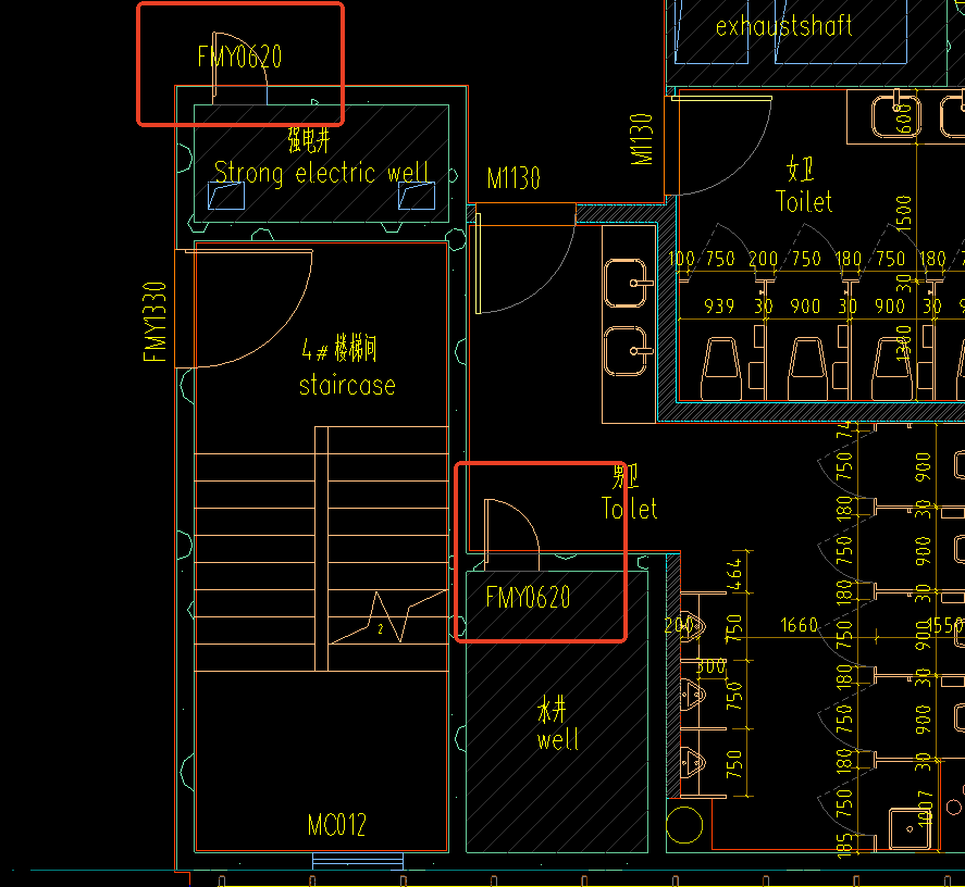
57.1F卫生间前室走廊钢质防火门FMY1524漏项,我司工程量为7.2平方米,请贵司复核。
|
|
答:不在本次招标范围
58.楼梯间防火门FMY1530、FMY0930是否在范围,清单未列项,我司工程量为174平方米,请贵司复核。
答:不在本次招标范围
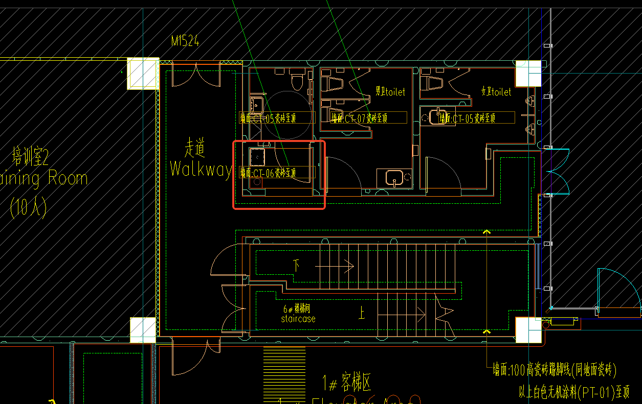
59.1F无障碍卫生间前室墙面CT-06瓷砖漏项,我司工程量为13.59平方米,请贵司复核。
答:经复核瓷砖规格为750*1500*9.5mm,已计入清单95项中。
60.电梯厅电梯门套处白色磨砂透光亚克力灯槽漏项,我司工程量为198m,请贵司复核。
答:经复核电梯门套处为5mm白色磨砂透光亚克力灯槽,详见最新发布的工程量清单及最高投标限价附件。
61.车间一:第27条清单“单面2.5厚铝板面隔墙P14”工程量是否与第14条清单“墙面装饰板”工程量重复,请贵司复核?
答:经复核清单工程量无误
62.车间一:第28条清单“12mm石膏板+2.5厚铝板面隔墙P15”工程量是否与第14条清单“墙面装饰板”工程量重复,请贵司复核?
答:经复核清单工程量无误。
63.车间一:一层冲压车间图纸上为钢制乙级防火门,清单中描述为钢制甲级防火门,请贵司明确以哪个为准?
答:经复核为钢制甲级防火门
64.车间一:一层楼地面装饰工程中楼梯踏步工程量,我司核量存在较大差异。请明确楼梯踏步工程量计算规格,并复核工程量。
答:经复核无误
65.车间一单开铝框双层钢化玻璃门,清单项目特征描述中包含暗藏闭门器,而根据图纸门窗表,闭门器无需。请明确是否需要闭门器。其余描述及图纸矛盾之处,是否均参照此条提疑?
答:以清单为准
66.车间二:请贵司提供标注变形缝位置的图纸?
答:变形缝位于14轴与1/14轴间楼板分隔缝处。
67.
车间二图纸中未找到卫生间成品隔断及小便斗隔断立面图及节点图,请贵司明确卫生间隔断高度及小便斗隔断规格
答:卫生间蹲位隔断高度2.40m;小便斗隔断高度1.80m。材质详见物料表。
68.车间二:会议室聚酯纤维吸音板材料清单编号为AP-04、AP-04a、AP-04b,图纸为AP-04、AP-04a、AP-05、AP-05a,物料表材料编号为AP-04、AP-05、AP-06、AP-06a、AP-06b、AP-06c,请贵司复核?
答:以物料表AP04、AP05进行报价,材料颜色投标人综合考虑,中标后不予调整。
69.车间二:清单第23条原门铝板包面装饰是指哪些门,请明确具体位置。
答:门厅通向楼梯间门。
70.车间三:请问贵司楼梯部位是否有门槛石,若有,门槛石为何种材质?
答:有门槛石,详见补疑文件
71.车间三:小门厅此三处区域为石材门槛石还是环氧磨石,与清单特征描述冲突,请贵司复核?
答:左侧两处为门槛石,右侧为墙体
72.车间三:小门厅、大门厅电梯井外侧墙饰面做法不详,请贵司明确?
答:AL-02 2.0厚铝板面层。
73.车间三:小门厅、大门厅电话间是否有不锈钢踢脚线,请贵司明确?
答:有不锈钢踢脚线。
74.车间三:小门厅03立面\大门厅01立面MT-05电子屏四周不锈钢包套漏项,请贵司复核?
答:经复核已计入清单13项
75.车间三:楼梯瓷砖踢脚线漏项,且一层楼层高度不详,请贵司明确楼梯具体哪些部位在精装修范围内?
答:经复核清单无误。一层层高5米,楼梯间地面、踢脚、墙面及顶棚均在本次招标范围。
76.车间三:小门厅、大门厅暗门漏项,请贵司复核?
答:经复核清单无误。
77.车间三:二层(1~6/A~A1轴区域)此房间无地面做法,请贵司明确是否在范围,若在,请补充做法?
答:按工具间地面做法
78.车间三:二层(1~6/A~A1轴区域)此房间地砖CT-03型号清单中未见,请复核。
答:按照工具间地面做法计算,已计入车间三清单55项内。
79.车间三:二层所有区域除卫生间门洞口外是否均为石材门槛石?
答:详见补疑文件
80.车间三:一二层楼梯清单工程量及对应的楼梯数量需明确;一二层楼梯部位不对应,请明确哪些楼梯在范围?
答:均在本次招标范围
81.车间三:二层所有区域窗帘盒、窗帘漏项,请复核?
答:经复核清单无误,已计入清单序号2、3、28、29。
82.车间三:二层中会议室弧形灯槽未单独列项,请补充?
答:经复核清单无误,见清单序号89。
83.车间三:二层所有休息区吊顶与节点不符,请明确具体做法?
·
答:为I-30-01/03
84.车间三:二层所有区域除会议室、经理室外,其余区域吊顶是否均为原顶?
答:详见装饰设计图纸。
85.车间三:二层卫生间镜面玻璃缺少不锈钢收边清单,请贵司复核?
答:已计入清单76项
86.车间三:二层所有区域打印、复印间柜体及台面固装漏项,餐台、吧台漏项,请贵司复核?
答:经复核清单无误,详见清单序号91中茶水柜5组+4组复印间柜体共9组;清单序号92中茶水吧台5组
87.车间三:二层外墙原始建筑图已体现,是否标注有误?
答:标注无误
88.车间三:二层经理室01立面此饰面材质不详,请明确?
答:白色无机涂料
89.车间三:二层储藏室、复印间等是否有不锈钢踢脚线,请明确?
答:有
90.车间三:二层电梯外饰面做法不详,请明确?
答:AL-01覆膜铝板,面板1.0,背板1.0,蜂窝芯高度18mm 。
91.车间三:二层墙面木饰面、不锈钢水槽漏项,请复核?
答:已包含在柜体清单报价中,投标人自行考虑报价,中标后不予调整
92.车间三:二层三处茶水点是否有P4玻璃隔断墙体,请明确?
答:见新增隔墙图及固定家具设计图纸。
93.车间三:二层小会议室、中会议烤漆玻璃四周是否有不锈钢线条,请明确?
答:见设计图纸I-1-20-04&立面图节点B。
94.车间三:二层区域二(9~13/H1~H2区域)大会议室无立面,请明确具体墙面做法或明确参照哪个立面?
答:详见招标补遗车间三第14条,无立面图的参考其余车间及技术中心房间装修做法。
95.车间三:玻璃隔断立面高度与墙饰面详图高度不一致,请明确?
答:玻璃隔断高度按立面高度。
96.车间四:开放办公区、过厅、茶水区、小会议室、电话间、接待区、工具间无立面图,请补充?
答:见墙身饰面及立面索引图,无索引无立面图的参考其余车间及技术中心房间装修做法。
97.车间四:请贵司提供一层、夹层楼板下及梁下标高尺寸?
答:一层板底高度4.3m,一层梁底高度3.3至3.1m;夹层板底高度5.28m,梁底高度3.28m至4.28m。
98.车间四:平面图未显示地台图示,请明确标注?
答:外幕墙下口均为地台。
99.车间四:请贵司补充夹层各部位立面图?
答:会议室、卫生间已有立面图,其他区域详见墙身材质图
100.门卫:一层楼地面清单卫生间、淋浴间CT-11工程量28.94平方米是否与储藏间、弱电间工程量重复?
答:经复核清单无误
101.食堂:食堂平面图中新建隔墙图有隔墙说明,是否可以提供隔墙做法详图?
答:详见图纸设计说明
102.食堂:食堂清单第11、12条幕墙收口,未找到图纸对应的节点,请贵司明确相应的施工位置及节点图?
答:参照技术中心相关节点做法
103.食堂:食堂清单第93条金属装饰条,未找到图纸对应的节点,请贵司明确相应的施工位置?
![]() |
104.水电工程:招标文件中缺少开关面板物料,请贵司复核。
答:详见招标文件品牌推荐表
105.水电工程:空调是否在我司范围?车间三与车间四内有盘管工程量但并无相应的管道配件等工程量;
答:空调不在,盘管仅涉及拆改,具体拆改内容详见补疑文件安装共性问题第9条
106.水电工程:挡烟垂壁是否为消防单位的施工范围?
答:挡烟垂壁在本次招标范围。
107.水电工程:空调风口(盘管机的风口)是否为空调单位施工,不在本次招标范围;
答:风口均在本次招标范围内。
108.室外工程部分,是否有物料手册,如有,请提供。
答:无
109.景观工程最高限价中,陶瓷PC砖、芝麻灰花岗岩、芝麻白花岗岩、中国黑花岗岩,砖基础、垫层模板、钢筋,综合单价低于市场价,请贵司复核。
答:经复核综合单价无误,投标人综合考虑报价,中标后不予调整
110.彩色混凝土面层,需整体染色,最高限价中综合单价低于市场价,请贵司复核。
答:经复核综合单价无误,投标人综合考虑报价,中标后不予调整
111.最高限价中白色泰科石座凳综合单价低于市场价,请贵司复核。
答:经复核综合单价无误,投标人综合考虑报价,中标后不予调整
112.本项目中的弃土、建渣、淤泥等,是否有集中弃置点?若有,请提供弃置点位置。
答:无指定弃置点,投标人自行考虑综合报价,中标后不予调整。
113.本项目现场是否有现有硬化路面拆除清运、场地土方回填,是否由总包单位负责?
答:本次图纸范围内如有需要破除、场地土方回填等,均含在本次招标范围由中标人实施,投标人综合考虑报价。
114.本项目包括屋顶及露台施工内容,请问:现场是否有垂直运输机械设备可供施工单位运输材料?
答:无,投标人自行考虑垂直运输费用。
115.施工单位进场后,是否需要搭设临时围挡围合?
答:需要。
116.本项目场地内是否可以搭建临时板房,用于办公及住宿?
答:不可以。
117.景观清单第79项,围堰25米,请问:围堰是否仅在一侧布置,莲花湖与河道连通,是否按两侧围堰考虑,如是请修正工程量?
答:清单编制按高水处围堰,具体施工措施由投标人自行考虑,综合报价,中标后不予调整。
118.景观清单第37项,20厚混凝土仿木纹侧封板,未计入,是否漏项?请明确。
答:清单已含侧封板费用,投标人综合考虑报价,中标后不予调整。
119.景观清单第58、86项,清单工程量有偏差,请复核。

答:86项经复核无误,其余量旱溪已计入。清单58经复核无误,投标人自行考虑综合报价,中标后不予调整。
120.景观照明电箱的进线增加熔断器清单未见,是否调整清单?
答:室外景观照明图纸未要求。
121.详见景观图纸8(4/14)对应清单109条,如下图所示,铝合金刮泥地垫无做法详图及铝合金厚度,请补充图纸?
答:做法详见补疑室外工程第21条。
122.“雨水经线性排水沟收集后,通过DN300钢筋混凝土管就近接入附近雨水井,编制按每侧接入长度10m考虑计入,投标人综合考虑报价”,请明确是否如图四个部位都要考虑混凝土管,按40m考虑?
答:投标人综合考虑线性排水沟报价,中标后不予调整。
123.详见图纸景观-8(8/14),如下图所示,请明确折形钢板材质,采用镀锌还是不锈钢?
答:不锈钢
124.如下图所示黑山石,如是整石,最高限价的综合单价过低,是否按拼接考虑?
答:不拼接,为整石;石头材质、造型以建设单位确认为准,投标人综合考虑报价,中标后不予调整。详见最新发布的工程量清单及最高投标限价附件。
125.详见图纸景观-7(6/13)-3,如下图所示,5厚不锈钢冲孔钢板,圆孔,请明确一平方冲孔数量,请提供标准大样?
答:圆孔孔径5mm,两个圆孔之间的中心距为10mm的冲孔钢板,每平方米的冲孔数量是 10,000 个左右
126.景观工程如下清单,请明确具体的施工部位,是指莲花湖将水抽干,然后全面清淤,再将整个湖面挖深?因需要考虑相关措施费用,也未明确湖底整体开挖深度,建议287条288条单价暂估,289条清单工程量及单价暂估?
答:抽水清淤,工程量暂定、价格为固定单价,结算时按实际发生工程量计入。清单289按项计入,投标人综合考虑报价,中标后不予调整。
127.清单第287条如指将莲花湖水抽干,等其它工作完成后,是否重新注水,如是请增加注水清单?
答:不注水。
128.现状青石汀步面层清洗清单中未见,请补充清单?
答:清洗费用由投标人综合考虑,清单不再单独列项。
129.莲花湖西北侧新建生态滤池没有图纸做法,且清单未体现工程量,是否在本次招标范围内?若在请补充清单。
答:生态滤池不在范围。
130.莲花湖东南侧新建初期雨水池图纸没有做法,且清单中未体现工程量,是否在本次招标范围内?若在请补充清单。
答:雨水池不在范围。
131.2.5铝合金刮泥地垫,请补充图纸节点做法做法。
答:做法详见补疑室外工程第21条。
132.景观土建图没有生态滤池溢流溪道做法详图,绿化图中有显示,请确认是否做,若有请补充施工图及工程量清单。
答:生态滤池及溢流溪道不在范围。
133.绿化工程最高限价中罗汉松,结合示意图及种植位置(主入口),综合单价过低,请复核?

答:价格详见最新发布的工程量清单及最高投标限价附件。
134.绿化工程最高限价中杏树、枇杷、染井吉野樱B、翠芦莉、千屈菜、美人蕉、金叶复叶槭、染井吉野樱A、大叶黄杨球A、大叶黄杨球B、大叶黄杨球C、春鹃、瓜子黄杨、万年青、大吴风草、锦熟黄杨、细叶芒等综合单价偏低,请复核?
答:价格详见最新发布的工程量清单及最高投标限价附件。
135.绿化工程量清单中垂直运输费用过低,具体有3664平方米苗木、1099.2m3轻质种植土等工程量需要进行垂直运输,请复核?
答:经复核综合单价无误,垂直运输费用按项计入,投标人综合考虑报价,中标后不予调整。
136.绿化工程量清单中金叶过路黄、常夏石竹、矾根01、墨西哥鼠尾草、欧石竹等项目特征描述使用一加仑盆苗的苗木综合单价过低,一加仑盆苗市场价格基本在5-10元/盆,请复核?
答:价格详见最新发布的工程量清单及最高投标限价附件。
137.电施-02灯具图例及接线系统图中,AL1进线电源进线YJV22-4x25+1x16-SC80电源就近引自建筑内配电总箱,如截图
而电施-05景观照明总平面图一中标注,电源引自单体内部,SC50,如截图
相关疑问如下:
问1:平面图中标注进线配管为SC50,而系统图为SC80,请明确以哪个为准?
问2:AL1进线接至单体内部具体接驳点及接驳路由不清楚,进入室内的电缆及配管工程量无法复核?室外安装招标序号17、24清单量200米是否为暂估量?
答:1、清单按SC80计入,2、按暂定量200米计入,后期按实结算。
138.电施-06景观照明总平面图二中,配电箱AL2~3进线:YJV-5x16-PE50引自门卫室电源未见接驳点及接驳路由不清楚,此部分电缆及配管工程量无法复核,室外安装招标序号20、25配管及电缆清单量是否为50米/箱暂估量计入招标?请明确。
答: 配电箱AL2、3进线均按暂定量50m计入,后期按实结算。
139.按招标资料中附带的答疑回复72条“LED发光板及进线电源为不计入”,电施-02灯具图例及接线系统图中,AL2、AL3配电系统图中的WL6至LED发光板的电源回路是否也按答疑回复72条,按不计入考虑?
答:LED发光板及进线电源为不计入
140.室外安装招标序号7开关电源箱清单项,招标清单量2台,参照电施-06景观照明总平面图二中,应为4台,分别为【中心庭院】1+【技术中心南立面】2+【屋顶及漏台】1,请复核?
答:复核无误。投标人综合考虑报价,中标后不予调整。
141.室外安装招标序号18电缆保护管清单项,招标清单量仅30.56米,参照电施-06景观照明总平面图二中,招标清单中SC32配管漏项如截图中3处绿色箭头中3*SC32配管(平面图上标注的白色管线部分)(排污泵控制柜PW1~3至排污泵)的相关工程量约371米,请复核调整?
答:经复核清单工程量为371m,详见最新发布的工程量清单及最高投标限价附件
142.室外安装招标序号30防水电缆清单项,招标清单量仅20米,参照电施-06景观照明总平面图二中,此排污泵控制柜PW1~3至排污泵的防水电缆共3个回路,长度约为125米,请复核调整?
答:经复核无误,水泵清单中包含随行电缆安装。投标人综合考虑报价,中标后不予调整。
143.电施-06景观照明总平面图二中,新增跌水射灯,30组平面图及电施-02灯具图例及接线系统图中未见回路编号及设计,如截图中绿色箭头所指回路,是否按YJV-2x6 PE32-FC计入?
答:是
144.室外安装招标序号35控制开关清单项,招标清单量11个,按招标图纸为12个,分别为【中心庭院】2+【技术中心南立面】2+【屋顶及漏台】8,请复核?
答:经复核清单工程量应为12个,详见最新发布的工程量清单及最高投标限价附件
145.室外安装招标序号14装饰灯清单项,招标清单量32m,按电施-06景观照明总平面图二中,招标清单量漏计屋顶及露台照明分布图中灯带34m,请复核?
答:经复核工程量为97m,详见最新发布的工程量清单及最高投标限价附件
146.室外安装招标序号21配管清单项,招标清单量2152.51m,按电施-06景观照明总平面图二中,图纸量应为2263m,请复核?
答:经复核无误,投标人综合考虑报价,中标后不予调整。
147.室外安装招标序号22配管清单项,招标清单量1383.4m,按电施-06景观照明总平面图二中,图纸量应为1450m,请复核?
答:经复核无误,投标人综合考虑报价,中标后不予调整。
148.室外安装招标序号23配管清单项,招标清单量316m,按电施-06景观照明总平面图二中,图纸量应为440m,分别是【中心庭院】50*2+【技术中心】50*2+【屋顶及漏台】30+30+30+30+30*2+30*2。请复核?
答:经复核无误,投标人综合考虑报价,中标后不予调整。
149.室外安装招标序号31配线清单项,招标清单量1471.35m,按电施-06景观照明总平面图二中,图纸量应为1665.31m,请复核?
答:经复核无误,投标人综合考虑报价,中标后不予调整。
150.室外安装招标序号37砖检查井清单项,招标清单量16座,按电施-06景观照明总平面图二中,未见电缆井布置相关设计,是否此电缆井量是按招标资料002补疑第73条回复以暂定量计入?
答:经复核清单工程量按16个,清单不作调整,投标人自行考虑报价,中标后不予调整。
151.电施-06水景灯具为准灯具表中找到对应的灯具设计选型,请明确?
答:如下
152.欧司朗,松下,飞利浦只生产光源,是否灯具由其它厂家完成即可?
答:不可以,原厂原装
153.详见景观清单第157、158条,1500*1500*30厚中国黑,规格太大,无此种规格石材,如果定制,费用为普通规格板的几倍,限价远远不够,而且施工容易破碎,请明确是否优化为600*600*30规格?
答:材料规格按招标图纸,详见最新发布的工程量清单及最高投标限价附件。
![]() |
答:见招标图纸。
155.技术中心负一层及三四层、食堂二层,车间一层,结构标高不明,图纸仅标注至吊顶标高,是否能提供土建图纸?
答:投标人自行踏勘现场,综合考虑报价,中标后不予调整。
156.请明确总承包服务费计算是否按照投标报价(不含暂列金额及总包服务费本身)的2%计入投标报价?
答:本项目最高投标限价中总承包服务费按照2825921.68元计入技术中心装饰单位工程其他项目清单,投标人需按照投标报价(不含暂列金额)的2%计入投标报价,无论投标人报价多少,最终结算均按照投标价(不含暂列金额)的2%扣除支付给总包单位。
157.结合本项目存在的清单、图纸等疑问,是否根据答疑回复时间及内容,适当考虑延长开标日期?
答:详见本补疑延期部分内容。
注:此补疑视同招标文件的组成部分,与招标文件具有同等法律效力,请投标人及时下载。
招 标 人:合肥海众新能源科技发展有限公司
地 址:合肥市经开区清潭路 693 号中德合作创新园 9 号楼
联 系 人:马工
电 话:0551-63878909
招标代理机构:安徽公共资源交易集团项目管理有限公司
地 址:合肥市滨湖新区南京路2588号六楼
联 系 人:张工
电 话:0551-66223912、66223831
2025年08月28日
三、附件
答疑发布日期:2025年08月28日