您现在的位置: 首页 >> 答疑变更 >> 安徽公共资源交易集团项目管理有限公司 >> 工程
一、原公告主要信息
原项目名称: 瑶海区2025年老旧小区整治项目施工
原项目编号: 2025BFYGZ01693
原公告日期: 2025年07月25日
二、公告内容(更正事项、内容及日期等)
瑶海区2025年老旧小区整治项目施工
招标文件补疑
2025BFYGZ01693
一、投标人疑问回复
1.投标人业绩要求:自2020年1月1日以来(以竣工验收时间为准),投标人在中华人民共和国境内(不含港澳台)具备单个合同金额不低于1500万元的房屋建筑工程(或老旧小区整治工程)施工业绩。(如为联合体投标,业绩由联合体任意一方提供均可)
我单位承建的某项目工作范围包括13个住宅小区内部雨污水管网混接、错接进行排查、改造小区内部阳台排水、雨污水管网混接、错接点雨污分流改造;检查井、截流井等相关附属设施改建等。合同金额:2063万。
是否符合投标人在中华人民共和国境内(不含港澳台)具备单个合同金额不低于1500万元的房屋建筑工程(或老旧小区整治工程)施工业绩。
答:上述业绩不予认可。招标文件资格审查投标人业绩、商务文件详细评审标准--投标人业绩、商务文件详细评审标准--项目负责人业绩中,如业绩实施内容中仅包含雨污水管网分流及其附属设施改造的,则该业绩不予认可。
2.请问,本项目招标文件P69页要求的投标人奖项荣誉可包含参建奖项,望告知,谢谢。
答:投标人参建项目获得的奖项不予认可。
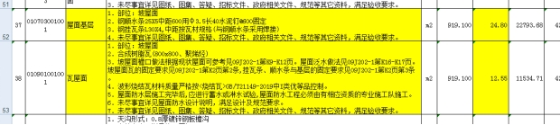
3.本项目交警五大队(建筑工程)、粮食局大院(建筑工程)单位工程中,屋面基层和瓦屋面清单,综合单价明显低于市场成本价,因工程量较大,对总造价有较大影响,请招标人及招标代理中心予以核查明确。

答:投标人应根据实际情况综合考虑报价。发放的最高限价中相应子目价格供投标人报价参考,不做为单个子目限价依据。
4.本项目各单位工程中,不锈钢栏杆(1.75m)清单控制价严重低于市场成本价,且该部分工程量为1802.2米,工程量大,对总造价有较大影响,请招标人及招标代理中心予以核查明确。
答:投标人应根据实际情况综合考虑报价。发放的最高限价中相应子目价格供投标人报价参考,不做为单个子目限价依据。
5.本项目各单位工程中,所有涉及拆除铲除项等类似清单综合单价均为铲除拆除的费用,并未包括垃圾外运等费用,因本老旧小区拆除铲除清单量大,对总造价有较大影响,请招标人及招标代理中心予以核查明确。
答:投标人应根据实际情况综合考虑报价。发放的最高限价中相应子目价格供投标人报价参考,不做为单个子目限价依据。
6.本项目各单位工程中,共62扇金属推拉窗,每扇1.8m2的推拉窗,每平米控制单价仅为352元,综合单价明显低于市场成本价,请招标人及招标代理中心予以核查明确。
答:投标人应根据实际情况综合考虑报价。发放的最高限价中相应子目价格供投标人报价参考,不做为单个子目限价依据。
7.本项目粮食局大院(建筑工程)单位工程中,坡屋面基层清单,综合单价明显低于市场成本价,因工程量较大,对总造价有较大影响,请招标人及招标代理中心予以核查明确。
答:投标人应根据实际情况综合考虑报价。发放的最高限价中相应子目价格供投标人报价参考,不做为单个子目限价依据。
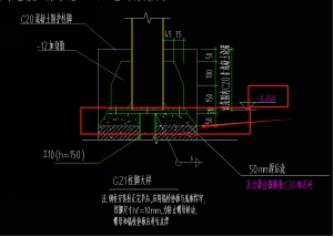
8.本项目各单位工程中,涉及非机动车车棚钢架清单,独立基础部位的混凝土柱柱顶标高具体是多少?图纸显示三个不同标高(分别为正负0、-0.3m、-0.5m),请招标人及招标代理中心予以核查并明确。



答:柱顶-0.3m。
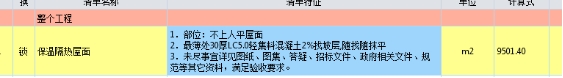
9.本项目所有单位工程中,保温隔热屋面清单,最薄处30厚LC5.0轻集料混凝土2%找坡层综合单价明显低于市场成本价,找坡平均厚度在120mm以上,此部分工程总量为9501.40m2,因工程量较大,对总造价有较大影响,请招标人及招标代理中心予以核查明确。
答:投标人应根据实际情况综合考虑报价。发放的最高限价中相应子目价格供投标人报价参考,不做为单个子目限价依据。
10.本工程是涉及9个老旧小区改造项目, 因招标人提供的涉及拆除改造类的清单控制单价明显低于市场成本价,投标人在投标过程中综合单价报价是否可以超出控制单价,请招标人及招标代理中心予以明示为感。
答:本项目最高投标限价仅控制总价,其余要求详见招标文件第五章中“投标报价参考编制要求”及招标文件合同相关条款要求。
11. 本项目所有单位工程中,保温隔热屋面清单,最薄处30厚LC5.0轻集料混凝土2%找坡层综合单价明显低于市场成本价,找坡平均厚度在120mm以上,此部分工程总量为9501.40m2,因工程量较大,对总造价有较大影响,请招标人及招标代理中心予以核查明确。
答:投标人应根据实际情况综合考虑报价。发放的最高限价中相应子目价格供投标人报价参考,不做为单个子目限价依据。
二、招标文件延期部分
1.招标文件获取时间延期至“2025年8月29日10:30”;
2.投标截止时间及开标时间延期至“2025年8月29日10:30”;因本项目开标时间延期情况,投标人在投标时提供的电子保函、银行保函、担保机构担保等形式的投标保证金中,若涉及的开标时间为延期前的开标时间或者延期后的开标时间均予以认可。
3.开标地点变更为:合肥市滨湖新区南京路2588号要素交易市场A区(徽州大道与南京路交口)2楼1号开标室。
注:此补疑视同招标文件的组成部分,与招标文件具有同等法律效力。
招标人:合肥市瑶海区住房和城乡建设局
地址:合肥市瑶海区建设大厦508
联系人:孙工
联系方式:0551-62190258
招标代理:安徽公共资源交易集团项目管理有限公司
地址:合肥市滨湖新区南京路2588号(徽州大道与南京路交口)六楼
联系人:张工
联系方式:0551-66223200、66223831
答疑发布时间:2025年8月14日
三、附件
答疑发布日期:2025年08月14日