您现在的位置: 首页 >> 答疑变更 >> 安徽公共资源交易集团项目管理有限公司 >> 工程

项目编号:

项目名称:

一、原公告主要信息

     原项目名称: 燃气大厦光储充放示范站EPC项目

     原项目编号: 2025BFFGZ01697

     原公告日期: 2025年07月28日

二、公告内容(更正事项、内容及日期等)

    

燃气大厦光储充放示范站EPC项目招标文件补疑

项目编号:2025BFFGZ01697

投标人疑问回复

1.本次招标文件详细评审标准2.2.2(2)商务文件评分标准中,对投标人奖项荣誉做如下要求:自2021年1月1日以来(以颁奖文件发布时间或颁奖单位官网发布时间为准),投标人承建(或参建)的光伏或储能或充电桩或电力工程项目获得国内依法注册的协会(或学会)或行政主管部门颁发的奖项荣誉,每提供一个得4 分,本项满分4分。

请问投标联合体中,设计方参与设计的光伏或储能或充电桩或电力工程项目获得国内依法注册的协会(或学会)或行政主管部门颁发的奖项荣誉是否可以计入该要求范围内?

回复:设计方参与设计的光伏或储能或充电桩或电力工程项目获得国内依法注册的协会(或学会)或行政主管部门颁发的奖项荣誉予以认可。

 

2.设备制造厂商在满足“3.1.7 本招标项目接受联合体投标。联合体投标的,应满足下列要求”的情况下是否可以以供货方的形式参与联合体投标?

如果可以,在联合牵头人满足“资格审查3.1.1 投标人资质要求”的情况下,供货方是否无其他资质要求,满足“第五章 发包人要求”内技术要求即可?

回复:联合体中承担施工任务的成员方须满足3.1.1(1)要求,承担设计任务的成员方须满足3.1.1(2)资质要求,供货方须符合3.1.6 信誉要求。“第五章 发包人要求”内技术要求无需提供相关证明材料,投标人中标后须按“第五章 发包人要求”实施和完成本项目。

 

3.本次招标范围内的“供配电工程-外线工程”和“供配电工程-内线工程”,电力电缆敷设将涉及道路开挖、回填及恢复等相关工作。请问本项目在电缆敷设过程中,涉及的道路开挖、回填及恢复等相关工作是否由招标方自行负责施工?

回复:本项目在电缆敷设过程中,涉及的道路开挖、回填及恢复等相关工作,部分由招标人负责施工(内容和工程量如下表),其余部分由中标人负责施工,具体内容和工程量可现场踏勘。

 

4.在本次招标范围内的“供配电工程-配电房至终端设备”,投标人是否仅需将新建配电房低压出线部分电力电缆接入相应配电箱(配电柜)的上端口即可?电力电缆接入的相应配电箱(配电柜)是否由招标人自行负责采购、施工及调试?

回复:中标人需将新建配电房低压出线部分电力电缆接入相应配电箱(配电柜)的上端口,电力电缆接入的相应配电箱(配电柜)由招标人自行负责采购、施工及调试。

 

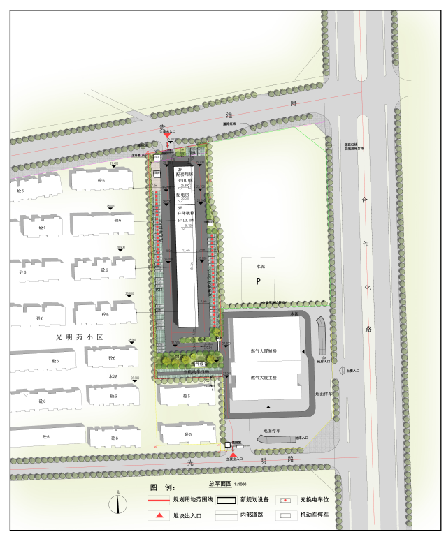
5.请问可否提供停车场站规划总平及建筑图纸等资料?

回复:规划总平见下图,暂无建筑图纸,停车场目前在设计阶段。

 

6.招标文件内清单中内线工程与配电房至终端设备均涉及空调机组、水泵配电柜、1APKT1/2/3(其中1APKT3配电柜出现4处)是否重复或请明确接入需求及设备位置。

回复:不重复。接入需求及设备位置见附件图纸(附件1、附件2)及招标文件。

 

补疑视同招标文件的组成部分,与招标文件具有同等法律效力。

招标人名称:合肥合燃华润燃气有限公司

地址:合肥市蜀山区合作化南路466号

联系人:谭工

联系方式:0551-65191932

招标代理:安徽公共资源交易集团项目管理有限公司

地址:合肥市滨湖新区南京路2588号六楼

联系人:张工

联系方式:0551-66223231

                                          20250808

三、附件

      答疑发布日期:2025年08月08日

附件:附件2.pdf 附件:附件1.pdf 附件:燃气大厦光储充放示范站EPC项目招标文件补疑.pdf