您现在的位置: 首页 >> 答疑变更 >> 安徽公共资源交易集团项目管理有限公司 >> 工程
一、原公告主要信息
原项目名称: “芯庐州”集成电路产业园一期项目(经开智造科创园)幕墙工程
原项目编号: 2024BFLGZ01564
原公告日期: 2024年07月23日
二、公告内容(更正事项、内容及日期等)
“芯庐州”集成电路产业园一期项目(经开智造科创园)幕墙工程招标文件补疑2
项目编号:2024BFLGZ01564
投标人疑问回复
1.招标文件中对投标人业绩及项目经理业绩均要求提供“中标查询网址及查询截图,或住房和城乡建设主管部门网站公布的施工许可证办理查询截图或信用评价体系查询截图。无法提供以上截图的,应当提供住房和城乡建设主管部门证明材料”。
请问,我公司业绩为幕墙分包并满足招标文件中业绩要求,但施工许可证由总包单位办理的总包项目施工许可证,且未体现我公司名称,是否可作为我公司业绩参加投标?
回复:不可以,按照招标文件执行。
2.本项目可以采用联合体形式参与投标,请明确投标人业绩及评分业绩是否为联合体任何一方提供即可?
回复:业绩由联合体任意一方提供均可。
3.本项目如采用联合体形式参与投标,请明确项目经理是否为联合体任意一方提供即可?
回复:项目经理由联合体任意一方提供均可。
4.商务文件评分标准内项目经理业绩与投标人业绩是否可重复?
回复:商务文件详细评审中,若同一业绩均满足项目经理业绩和投标人业绩评审标准,可以重复计取得分。
5.招标文件前附表1.4.4(第11页)关于“本项目对应资质要求的建造师数量”的要求,如为联合体投标,是否为联合体各方都需要满足要求?
回复:是的,联合体各方均需满足该要求。
6.关于投标人现有注册建造师专业、数量满足资质要求的建造师数量问题,若是联合体,是否需要联合体双方都需满足这要求?
回复:是的,联合体各方均需满足该要求。
7.对于 第七章 技术标准和要求 4. 重点难点及危险性较大的分部分项工程 (1)本招标项目重点难点: A.本项目包含异型幕墙,主楼角部有弧形玻璃幕墙,铝板大线条,玻璃板块 较大,加工及安装精度要求高。为保证现场安装精度及整体完成效果,投标单位 需对主体结构(含屋面钢结构)和幕墙工程进行 BIM 建模,根据 BIM 模型指导施工。
投标提疑:目前阶段,招标人未提供主体结构(含屋面钢结构)等图纸资料,不具备上述条款的条件,从第七章第4条文字描述来理解,应该是针对于中标单位的要求,请明确。
回复:招标阶段投标人无需提供BIM 模型,中标后由中标人结合主体结构(含屋面钢结构)和幕墙工程进行 BIM 建模,根据 BIM 模型指导施工。
8.清单问题:
①明确本工程的水电费如何计取?是否可以采用挂表方式?
回复:详见本项目7月24日发布的招标文件补疑中温馨提示第2条以及招标文件中关于水电费的解释。
②贵司提供的图纸中3#楼幕墙平立面图存在“10+12A+10中空超白钢化LOW-E玻璃”,清单中并无此项玻璃清单,请明确是否为漏项?
回复:经复核,3#楼幕墙“10+12A+10中空超白钢化LOW-E玻璃”工程量30.94㎡已并入清单第2项“8+12A+8双中空超白钢化LOW-E玻璃”工程量中,最高投标限价差额约1800元,工程量清单及最高投标限价不作调整,投标人不可自行修改,中标后按此补疑施工。涉及相关费用由投标人在投标报价中综合考虑,中标后不予调整。
③招标文件P159页第10条说明本工程存在样板,请明确对施工样板数量、视觉样板位置面积是否有更具体的要求,以便与我司精确合理报价?
回复:按照招标文件执行,投标人结合项目自行考虑,费用含在总价中,必须满足招标人及总包单位等全部要求。
④通常室内可见铝材粉末喷涂,室外可见铝材氟碳喷涂,不可见铝材阳极氧化处理。铝材表面处理是否按图施工,请明确:
回复:工程量清单及最高投标限价按图纸设计说明(如下截图)编制,中标后投标人按图纸要求施工。涉及相关费用由投标人根据自身特点,综合考虑报价,中标后不予调整。
⑤铝套钢安装方式,钢管微变形等原因,都会导致现场施工难度很大。
回复:工程量清单及最高投标限价按设计图纸编制,中标后投标人按图纸要求施工。涉及相关费用由投标人根据自身特点,综合考虑报价,中标后不予调整。
9.由于本项目资料较多,文件较多,请招标人明确本项目是否予以延期至8月20日投标。
回复:开标时间不予延期。
10.请招标人明确本项目图纸是否以高版本图纸为准。
回复:高低版本内容一致。
11.请招标人明确如何区分本项目1#2#厂房节点图幕施-74与节点图幕施-75对应的立柱。
回复:按图施工,76号节点只用于宽变窄的过渡层,工程量清单及最高投标限价按图纸编制,中标后投标人按图纸要求施工。涉及相关费用由投标人根据自身特点,综合考虑报价,中标后不予调整。
12.请招标人明确此处图例是否为防火固定窗。
回复:此处门窗工程量清单及最高投标限价按防火门窗编制,窗型及安装方式由中标人深化,经设计院确认后方可施工。由投标人综合考虑报价,中标后不再调整。
13.请招标人明确1-B~1-D轴东立面塔冠处是否存在横梁,如下图:
回复:存在。
14.请招标人提供玻璃栏板节点图,3#厂房幕墙节点图中并未提供玻璃栏板节点。
回复:工程量清单及最高投标限价按照15J403-1-D56图集做法编制,投标人根据企业自身特点、结合图纸及现场情况,综合考虑报价,中标后不再调整。
15.请招标人明确本项目四性试验是否仅满足国标即可。
回复:按照施工图纸和相关规范要求执行。
16.请招标人明确本项目视觉样板的板块位置、数量及板块大小。
回复:按照招标文件执行,投标人结合项目自行考虑,费用含在总价中,必须满足招标人及总包单位等全部要求。
17.请招标人明确本项目视觉样板是否拆除。
回复:视觉样板需要拆除,工程量清单及最高投标限价不单独列项,涉及相关费用由投标人在投标报价中综合考虑,中标后不予调整。
18.请招标人明确本项目视觉样板是在工厂制作还是现场制作。
回复:视觉样板要求在现场制作,工程量清单及最高投标限价不单独列项,涉及相关费用由投标人在投标报价中综合考虑,中标后不予调整。
19.请招标人明确本项目3%的总包配合费是否包含水电费。
回复:工程量清单及最高投标限价中的3%的总包配合费不含水电费,投标人根据自身特点,综合考虑报价,中标后不再调整。
20.本项目投标报价总包配合费是否按照投标总价的3%的计入,而非最高限价3%计入。
回复:工程量清单及最高投标限价中的总包配合费按照投标报价(不含暂列金额)的3%计入,结算时按中标价(不含暂列金额)的3%支付给总包单位。投标人根据自身特点,综合考虑报价,中标后不再调整。。
21.请招标人明确本项目超白玻璃是否还需均质处理。
回复:超白玻璃需要均质处理,工程量清单及最高投标限价不单独列项,涉及相关费用由投标人在投标报价中综合考虑,中标后不予调整。
22.设计说明中显示幕墙外立面是电动开启,但立面图及节点显示开启是手动,两处描述不一致,请招标人明确是否以立面图及节点显示开启为准。
回复:经复核,以立面图及节点显示手动开启为准。
23.节点图上玻璃胶深为12mm,远超出常规胶深10mm,请明确本项目玻璃胶深是否按常规考虑。
回复:工程量清单及最高投标限价按玻璃胶深12mm编制,中标后投标人按图纸要求施工。涉及相关费用由投标人根据自身特点,综合考虑报价,中标后不予调整。
24.《01-1#高层厂房2#厂房幕墙平立面大样图(改钢雨棚)》中1F平面图以下位置及节点JD-137/47显示钢立柱通长,但节点JD-46/111显示钢立柱仅到1F层间,2F位置无钢立柱,两处描述矛盾,请明确该处钢立柱是否通长。
回复:工程量清单及最高投标限价按一层云线标注钢立柱通长设置编制,中标后投标人按一层云线标注钢立柱通长设置图纸要求施工。涉及相关费用由投标人根据自身特点,综合考虑报价,中标后不予调整。
25.《01-1#高层厂房2#厂房幕墙平立面大样图(改钢雨棚)》中1#高层塔楼3~12F处300宽铝板装饰线条位置层间节点JD-57及非层间节点JD-73显示两根65mm宽立柱,非层间节点JD-76显示是200宽的立柱,两个立柱对不上,请明确以哪个为准。
回复:此位置节点标注有误,以73号节点为准,76号节点适用于立柱宽窄过渡层。工程量清单及最高投标限价按73号节点编制,中标后投标人按图纸要求施工。涉及相关费用由投标人根据自身特点,综合考虑报价,中标后不予调整。
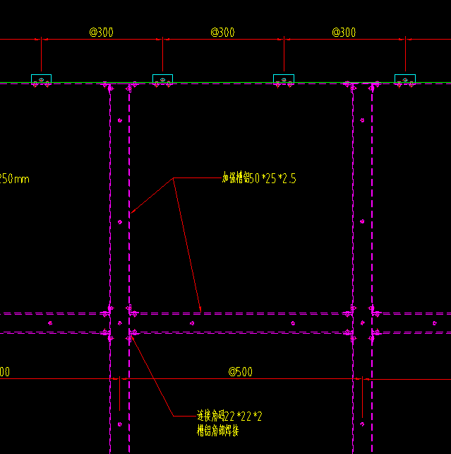
26.图纸技术说明中给定铝板加强筋布置规则,请明确本项目铝板加强筋是否按此规则布置。
回复:工程量清单及最高投标限价按此规则编制,中标后投标人按图纸要求施工。涉及相关费用由投标人根据自身特点,综合考虑报价,中标后不予调整。
27.接上问,请明确层间2mm粉末喷涂铝背板是否也按此规则布置铝板加强筋。
回复:工程量清单及最高投标限价按此规则编制,中标后投标人按图纸要求施工。涉及相关费用由投标人根据自身特点,综合考虑报价,中标后不予调整。
28.接上问,设计说明中铝板加强筋规格是50*35*4槽铝,节点图中铝板加强筋规格是50*25*2.5槽铝,两处不一致,请明确以哪个为准。
回复:工程量清单及最高投标限价按节点图50*25*2.5槽铝编制,中标后投标人按节点图要求施工。涉及相关费用由投标人根据自身特点,综合考虑报价,中标后不予调整。
29.请明确1#塔楼300宽铝板线条/节点JD-81竖向铝板的横向分格。
回复:工程量清单及最高投标限价按节点图编制,中标后投标人按节点图要求施工。涉及相关费用由投标人根据自身特点,综合考虑报价,中标后不予调整。
30.3#厂房立面存在10+12A+10中空双超白钢化LOW-E玻璃幕墙,但清单未列项,请明确该部分是否在本次招标范围?若在,请招标人修正清单。
回复:经复核,3#楼幕墙“10+12A+10中空超白钢化LOW-E玻璃”工程量30.94㎡已并入清单第2项“8+12A+8双中空超白钢化LOW-E玻璃”工程量中,最高投标限价差额约1800元,工程量清单及最高投标限价不作调整,投标人不可自行修改,中标后按此补疑施工。涉及相关费用由投标人在投标报价中综合考虑,中标后不予调整。
31.钢筋混凝土结构非幕墙范围,请招标人将钢筋混凝土结构踢出本次招标范围。
回复:工程量清单及最高投标限价已按图纸钢筋混凝土结构编制,投标人结合招标文件要求,中标后按图纸要求施工。涉及相关费用由投标人根据自身特点,综合考虑报价,中标后不予调整。
32.请招标人明确本项目墙体保温层是否不在本次招标范围内。
回复:结构混凝土部位的保温均不在本次招标范围。
33.本项目配套用房幕墙平立面大样图玻璃图例填充均为Ar,Ar为充氩气,与其他厂家立面及清单不符,请招标人明确配套用房中空玻璃是否不需要充氩气。
回复:经复核,已发布的分部分项工程量清单中部分清单子目的项目特征描述有误,配套用房工程量清单第2条玻璃幕墙清单特征8+12A+8双中空超白钢化LOW-E玻璃,应描述为8+12Ar+8双中空超白钢化LOW-E玻璃,工程量清单第3条6+12A+6中空超白钢化LOW-E玻璃,应描述为6+12Ar+6中空超白钢化LOW-E玻璃。已发布工程量清单及最高投标限价不作调整,投标人不可自行修改,请投标人按此补疑报价和中标后实施。本项涉及的所有费用投标人根据企业自身特点、结合图纸及现场情况,综合考虑在报价中,中标后不予调整。
34.本项目补遗文件文件中电子感应门尺寸为7300mm*3600mm,我司根据立面图、平面图及节点图复核尺寸为4700mm*3600mm,边上为两樘1300mm*3600mm不锈钢地弹门,请招标人复核。
回复:此项工程量清单及最高投标限价按照芯庐州集成电路产业园一期项目幕墙工程招标工程量清单、最高投标限价编制补疑第三条设计文件及技术补充说明中的第1条编制,中标后此项按补疑施工,涉及相关费用由投标人根据自身特点,综合考虑报价,中标后不予调整。
35.为了更好的理解幕墙玻璃各项参数,请招标人提供本项目建筑节能报告或热工计算书。
回复:不予补充。
36.请招标人明确本项目幕墙招标图纸是否经过图审及安评。
回复:图纸已按照相关要求通过审核。
37.为了更好的理解幕墙图纸意图,请招标人提供一份本工程多角度效果图及幕墙三维模型。
回复:不予补充。
38.能否提供本项目幕墙计算书参考。
回复:本项目招标文件附件“芯庐州集成电路产业园一期项目幕墙图纸.zip”中已有幕墙计算书。
39.请招标人明确幕墙现场施工阶段是否有足够的材料堆放及周转场地。
回复:投标人自行踏勘现场,自行考虑,综合考虑报价。
40.请招标人明确现场是否能够提供人员办公场地及工人住宿场地。
回复:不提供,由中标人自行解决。
41.投标文件上传选项中,施工组织设计及新材料、新工艺、新技术应用为两个单独上传链接,招标文件详细评审标准中施工组织设计内容中包含新材料、新工艺,此部分内容是否需重复上传。
回复:无需重复上传。
42.请招标人提供本工程总包进度计划,包含总包脚手架、塔吊、施工电梯拆除时间及厂房结顶时间。
回复:不予提供,请投标人参照芯庐州集成电路产业园一期项目幕墙工程招标工程量清单、最高投标限价编制补疑第二章温馨提示第4条,投标人可自行踏勘现场,根据自身特点,综合考虑报价,中标后不予调整。此项工程量清单及最高投标限价按照芯庐州集成电路产业园一期项目幕墙工程招标工程量清单、最高投标限价编制补疑第三条设计文件及技术补充说明中的第10条编制,中标后此项按补疑施工。
43.请招标人提供本工程装饰装修阶段施工总平面布置图,需包含塔吊及施工电梯位置。
回复:不予提供,请投标人参照芯庐州集成电路产业园一期项目幕墙工程招标工程量清单、最高投标限价编制补疑第二章温馨提示第4条,投标人可自行踏勘现场,根据自身特点,综合考虑报价,中标后不予调整。此项工程量清单及最高投标限价按照芯庐州集成电路产业园一期项目幕墙工程招标工程量清单、最高投标限价编制补疑第三条设计文件及技术补充说明中的第10条编制,中标后此项按补疑施工。
44.请招标人明确本工程总包脚手架拆除时间及未拆除前可否供幕墙单位使用。
回复:请投标人参照芯庐州集成电路产业园一期项目幕墙工程招标工程量清单、最高投标限价编制补疑第二章温馨提示第4条,投标人可自行踏勘现场,根据自身特点,综合考虑报价,中标后不予调整。此项工程量清单及最高投标限价按照芯庐州集成电路产业园一期项目幕墙工程招标工程量清单、最高投标限价编制补疑第三条设计文件及技术补充说明中的第10条编制,中标后此项按补疑施工。
45.招标文件“7.24补遗文件”中要求投标单位在主体施工阶段进行幕墙交叉施工,据我司现场勘探,项目1#厂房以施工至17层,其余楼栋已封顶,根据招标文件工期要求,1#厂房施工工期为120日历天,请明确此交叉施工要求是否为强制要求。
回复:工期要求按照招标文件执行。
46.接上条,若1#厂房需交叉施工,请明确幕墙单位同总包交叉施工硬质安全防护棚是否由总包进行搭设。
回复:由中标单位进行搭设,工程量清单及最高投标限价不单独列项,涉及相关费用由投标人根据自身特点,综合考虑报价,中标后不予调整。
47.幕墙工程成果文件里面有:建设工程施工扬尘污染防治费用表,其中明细有1#2#,无3#和配套用房,此是什么费用,是否要缴纳给总包单位,如何理解?
回复:原建设工程施工扬尘污染防治费用和建筑工人实名制管理费用计算表导出有误(图一),现修改如(图二),具体实施详见招标文件关于建设工程施工扬尘污染防治费用结算解释。
图一:

图二:

48.本项目有无电动排烟窗,如有,能否说明具体位置?且是否包含消防联动?
回复:施工图纸、工程量清单及最高投标限价中均无电动排烟窗项目,投标单位综合考虑报价,中标后不予调整。
49.本项目玻璃是采用单银还是双银?
回复:工程量清单及最高投标限价按双银玻璃编制,投标人按图纸要求施工。涉及相关费用由投标人根据自身特点,综合考虑报价,中标后不予调整。
50.1#2#屋顶新增混凝土梁柱,能否从本次招标范围去除交由土建施工?
回复:不予修改,按照招标文件执行。
51.1#2#清单中有保温隔热墙面,是否是指的铝板幕墙内保温,请明确?且3#及配套用房无此项,是否漏项?
回复:工程量清单及最高投标限价中1#2#楼清单第20项指的是铝板幕墙内填充保温,3#楼及配套用房清单中无此项。投标人按图纸要求施工,涉及相关费用由投标人根据自身特点,综合考虑报价,中标后不予调整。
52.如下图处玻璃幕墙内侧层间梁位置是否需要做保温?是否在招标范围?
回复:工程量清单及最高投标限价中结构混凝土部位的保温均不在本次招标范围,铝板幕墙的岩棉填充在本次招标范围。
53.如下图处填充保温岩棉,招标清单未列项,是否在铝板幕墙中综合考虑?
回复:工程量清单及最高投标限价中1#2#楼清单第20项指的是铝板幕墙内填充保温,3#楼及配套用房清单中无此项。投标人按图纸要求施工,涉及相关费用由投标人根据自身特点,综合考虑报价,中标后不予调整。
54.1#2#楼雨棚及连廊处的主体钢结构招标清单未列项,是否在本次招标范围?如在,请补充连廊钢结构图纸?
回复:工程量清单及最高投标限价中钢结构不在本次招标范围。
55.如下图处玻璃幕墙背面墙柱做法,是否要做涂料,是否包含?
回复:工程量清单及最高投标限价中此处不在本次招标范围。
注:此补疑视同招标文件的组成部分,与招标文件具有同等法律效力。
招标人:合肥庐阳经济开发区建设投资有限公司、中铁四局集团第一工程有限公司
地 址:合肥市庐阳区耀远路368号
联系人:顾工
电 话:0551-65679586
招标代理机构:安徽公共资源交易集团项目管理有限公司
地 址:合肥市滨湖新区南京路 2588 号
(徽州大道与南京路交口)六楼
邮 编:230601
联系人:张工
电 话:0551-66223231
2024年8月7日
三、附件
答疑发布日期:2024年08月07日