您现在的位置: 首页 >> 答疑变更 >> 安徽公共资源交易集团项目管理有限公司 >> 工程
一、原公告主要信息
原项目名称: 合肥市第四十五中学长丰路校区三期改造项目
原项目编号: 2023BFLGZ02596
原公告日期: 2023年11月24日
二、公告内容(更正事项、内容及日期等)
合肥市第四十五中学长丰路校区三期改造项目招标工程量清单、最高投标限价编制补疑
项目编号:2023BFLGZ02596
一、重要提示
本工程措施项目费率和不可竞争费率按“ 建筑 工程取费标准”中“ 民用建筑工程 ”的费率计取。
二、招标需求
(一)招标范围:
本项目分为一个标段,本次招标范围为四十五中长丰路校区北教学楼结构加固及室内装饰和屋面改造,综合楼屋面及外窗改造,综合楼二层食堂部分室内装饰改造,南教学楼部分室内窗改造,综合楼室外污水及废水管网改造等。主要施工内容为:结构加固工程、装饰工程、给排水工程、电气工程、室外排水工程、照明工程等,除特殊说明外,图纸设计范围内的所有内容,均按图计入。
单位工程包括:
1.北教学楼拆除、恢复、加固工程:包括墙体门窗拆除、原装饰面拆除、梁板柱基础加固等图纸设计范围内的所有内容;
2.北教学楼装饰工程:包含室内地面、墙面、天棚装饰工程等设计图纸范围内所有内容;
3.综合楼二层餐厅装饰工程:包含室内原装饰面层拆除、新建地面、墙面、天棚装饰工程等设计图纸范围内所有内容;
4.综合楼门窗、屋面改造工程:包括原建筑外窗、原屋面拆除、新建门窗及屋面层等施工图纸范围内全部内容;
5.南教学楼室内窗改造工程:包括原建筑部分室内窗拆除、新建窗及外遮阳帘等施工图纸范围内全部内容;
6.综合楼污、废水改造工程:包含部分原管网拆除更换、新建隔油池及配套管网、检查井加固等图纸设计范围内的所有内容。
7.北教学楼安装工程:包含北教学楼消防局部改造、装饰配套的安装工程等;
8.综合楼安装工程:包含综合楼消防局部改造、应急照明、空调系统及装饰配套的安装工程等;
图纸上已设计,但不计入本次招标范围的有:后堂厨房设备、食堂桌椅、食堂窗帘等
(二)暂定项目:
1.以下项目按照业主要求,以暂定工程量计入分部分项工程量清单,投标人综合考虑报价,标后按实际工程量结算: 无。
2.以下项目按照业主要求,暂列金额为 0 万元。
3.执行暂估价的材料、设备、专业工程及其金额如下:
3.1材料的名称、规格型号、金额:无。
3.2设备的名称、规格型号、金额:无。
3.3专业工程名称、工程内容、金额:无。
3.4发包人供应材料、工程设备的采购、保管费,控制价中不再另行计取费用,投标人在总报价中综合考虑此费用。
(三)按项列入清单的内容,标后不予调整:无。
(四)补充图纸及修改图纸的说明:本工程以新发放的全套图纸为准,具体详见图纸目录。
(五)总承包服务费:无。
(六)温馨提示:投标人投标报价还须仔细阅读本项目招标文件,慎重报价。
1.本项目实施期间的迎检、庆典、党建、宣传等活动,相关费用含在综合报价中,清单不单独列,结算时不予调整。
2.本工程最高投标限价中不计取赶工措施费用,投标人在投标报价中充分考虑此费用,综合报价,中标后不予调整。
3.因施工造成的部分既有绿化、道路、人行道、综合管线等破坏恢复发生费用,除清单已列项外,相关费用包含在综合报价中,结算时不予调整,投标人根据图纸结合现场踏勘情况,在投标报价时充分考虑。
4.工程临时用水用电接引由中标人应自行解决,以满足施工需要,所有临时用水用电接引(含临时水表、临时变压器等)等费用,费用含在综合报价中,投标人须充分考虑,结算时不予调整。
5.结合设计图纸和现场实际情况,施工范围内与本次改造相冲突的所有部位的拆除、铲除工程等,投标人自行踏勘现场,除清单已列项外,相关费用包含在综合报价中,投标人须充分考虑,结算时不予调整。
6.综合楼二层食堂墙面外部包管道部位根据现场实际情况施工,除清单已列项外,相关费用包含在综合报价中,投标人须充分考虑,结算时不予调整。
7.北教学楼结构加固中植筋和钢筋焊接费用根据现场实际情况结合图纸施工,除清单已列项外,相关费用包含在综合报价中,投标人须充分考虑,结算时不予调整。
8.因各种杆管线(含各类电气、消防、给排水管网等)影响施工,需按照产权单位相关规定做好既有管网线路悬吊或加固保护,杆管线保护所引起的临时支护等保护费用,除清单已列项外,相关费用包含在综合报价中,投标人须充分考虑,结算时不予调整。
9.施工范围内包含地上、地下需拆除的结构、构筑物及障碍物等,均需运至业主指定地点妥善保管,含拆除(开挖)、破碎、集中、现场清理、装车、运输至弃土点、弃土点整理等一切与此相关的费用,除清单已列项外,上述费用均含在综合报价中,投标人自行踏勘现场充分考虑,清单不单独列项,结算时不予调整。
10. 施工范围内包内开槽、恢复、开洞、防水封堵、防火封堵、原有吊扇保护性拆除并移交业主等一切与此相关的费用,除清单已列项外,上述费用均含在综合报价中,投标人自行踏勘现场充分考虑,清单不单独列项,结算时不予调整。
三、设计文件及技术补充说明
土建工程答疑:
一、共性问题:
1.本项目土方开挖、运输及运距(供参考)
1.1本项目工程量清单土方按加固改造方案计算。
1.2本项目最高投标限价各类拆除后的废渣外弃运距按25公里计算,投标人应自行踏勘现场并结合项目周边取、弃土点情况以及管理部门相关要求,综合考虑报价,费用包干,中标后不予调整。
1.3本项目土方运输中产生的涉及渣土消纳处置、土场费、土源费、保洁费及相关管理部门收取的管理费等所有费用均由投标人自行考虑并含在投标报价中,中标后不得以任何理由提出索赔。
2.土建工程
2.1北教学楼层高是否参考其建筑立面图中的高度
答:是参考立面高度。
2.2北教学楼原窗拆除后是否按新做考虑?
答复:北教学楼所有外窗全部拆除后新建,窗材质为断桥铝合金窗,6中透Low-e+15Ar氩气+6白玻 (双玻中空)。
二、北教学楼结构加固:
1、基础埋深请明确。
答:按2米内计算。
2、基础厚度请明确。
答:按1米计算。
3、基础新增的钢筋是否为:双向,三级18间距200钢筋?

答:是。
4、需要加固的基础是否仅需考虑黄色圈内部分的。

答:不是,有定位的都需要。
5、原建筑混凝土强度未知,新建加固的基础、剪力墙、柱、梁板混凝土是否均按C30计算?
答:是。
6、加固柱图中,柱子加固是否仅考虑有标注的,未标注的柱是否不在本次范围?

答:是。
7、此标注是否为梁两侧,每侧1道150宽的碳纤维加固?

答:是。
8、新增剪力墙的数量是否为:1层18处,2层18处,3层16处,4层10处,5层6处。
答:剪力墙均为到相应单体的屋面。
9、通长加固的碳纤维加固梁,U型箍压条是否均用-100*5钢板压条。
答:是,此处不要遗漏。
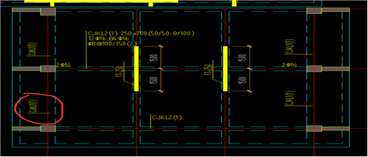
10、2及3层梁图中此处梁标注冲突,是否为CJKL1,余同。

答:是
11、2层梁图中AJL3做法是否参考AJL4?

答:是
12、梁加固第七条,图中未标注的梁(如2图红色框未标注的梁,余同)是否也按此做法?已加大截面的梁是否也需按第七条做法再加固一遍?


答:框架梁2侧加宽已增加箍筋,可不另设置碳布箍。其余所有框架梁均设置,梁尺寸详见梁补图。
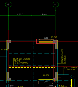
13、4层梁加固图中CJKL1做法请明确。

答:如下:

14、图中未见此图例标注,本次范围是否有此做法。

答:没有。
15、请明确原墙体材质及做法

答:为B06蒸压加气混凝土砌块。
16、拆除恢复后的外墙面做法请明确。
答:同相邻墙面,做法为装饰砂浆详见下图。

17、现场需拆除的原地面、墙面、顶面材质请明确。
答:卫生间地面及墙面为瓷砖面层且蹲位均需拆除,顶面为铝扣板。教室内地面为塑胶地板,顶面铝扣板,墙面为乳胶漆。公区地面为块料地面,墙面为瓷砖+乳胶漆,顶面为乳胶漆。
18、对比加固图中8-9轴办公室红色框内墙体是否需要拆除,如拆除高度是否按500考虑,余同。
答:x向的不拆,Y向的拆除按500mm计入。

19、加固图中需加固的梁下有墙,但拆除图中未标注是否需要拆除墙体,如拆除则高度是否按500mm考虑。
答:拆除,按500mm计入.
20、现场是否考虑部分门窗框、构造柱、圈梁、过梁等零星混凝土修复?
答:考虑,整体按10立方C30混凝土计入。
三、综合楼二层餐厅装饰
1、新增的隔墙做法及材质请明确。

答复:200厚粘土空心砖。
2、现场需拆除的原地面、墙面、顶面材质请明确。

答:地面为块料+塑胶地板,顶面为铝扣板,墙柱面为瓷砖+造型隔墙。

3、墙面防水和地面防水中均有“1.5mm厚JS防水涂料两遍,高度1.8米”做法,两个是否重复,墙面是否需要做两遍。
答复:重复,仅后堂墙面地面均做两遍防水。
4、柱面装饰是否有基层板,如有请明确材质

答复:基层板为9厘阻燃夹板。
5、石膏板吊顶中有防水石膏板和普通石膏板,以哪种为准?

答复:后堂区域为防水石膏板,其他为普通石膏板。
6、食堂预进间感应门是否在本次范围?
答复:在范围,10mm厚钢化玻璃无边框感应移门。
7、原建筑防火门是否按此做法更换?

答复:是的四扇防火门按此做法更换并包门套。
四、综合楼门窗、屋面改造
1、门窗更换是否按门窗表计入,如不是请明确范围。
答:按门窗表计入。
2、更换的门材质是否为铝合金玻璃门,如是请明确玻璃厚度。
答:为铝合金玻璃门,玻璃材质厚度与窗户一致按门窗表。
五、综合楼污水、废水改造
1、本次新建管道是否仅考虑红色框范围内的(含隔油池)
答:室外排水图纸管线和检查井均需施工,部分为原有管线更换,部分为直接新建,红色框范围为新建。
2、污水管材质及接口是否按以下做法。

答:按此做法。
3、检查井更换是否仅更换加固后的井盖
答:井筒井盖均需更换。
4、原路面破除后恢复做法请明确。
答复:路面恢复做法:
15cm厚级配碎石,压实度≥96%
150mm厚C30混凝土基层
6cm厚AC-20中粒式沥青混凝土,乳化沥青结合层(透层封层和黏层),
碾压平整(压实度≥96%)
4cm厚AC-13细粒式沥青混凝土,乳化沥青结合层(透层封层和黏层),
碾压平整(压实度≥96%)
六、北教学楼装饰
1、1-4层图中红框内地面做法未标注,是否同其他教室地面,余同。

答复:相同
2、天棚无机涂料做法是否参考内墙无机涂料做法?

答复:是,仅做饰面层,腻子三遍,面漆三遍
安装工程答疑:
一、 北教学楼
1、1~5层照明平面图设计的均为女卫?
答复:以建筑图为准,电气图中标注有误,不影响安装工程量。
2、图示中“电源引自教室原PZ30箱”,该PZ30箱是否在图纸线缆断开处正上方1.8m处?
答复:PZ30箱在1.6m处,PZ30箱及箱内元器件需要拆除更换;PZ30箱原有进出线缆、配管、线槽原样保留,拆除墙体时需注意保护,若拆除过程中进出线缆、配管、线槽有损坏需无偿更换。

3、图示中标注的电气回路断路器是否在引来的原有配电箱增加断路器?
答复:在更换的PZ30箱增加断路器。

4、所有插座回路敷设方式为WC.CC(沿墙及顶板开槽敷设),是否应为WC.FC?
答复:由于本次按照学校要求只是增加部分插座,所以设计为走墙、顶明敷
5、请明确300*600面板灯、300*300排气扇的规格型号?
答复:LED 300*600面板灯,18W
300*300排气扇,45W
6、卫生间给水是否自层支管开始计(包含闸阀、水表)?JsL-01立管不计?
答:立管也需计入,底层接入管按15米计算,与原有引入给水管无缝对接,投标人自行勘察现场,综合报价,中标后不予调整。
7、一层卫生间排水管计算至何处止?
答:需接至室外污水检查井,室外部分按30m计算,投标人自行勘察现场,综合报价,中标后不予调整。
8、卫生洁具是否计入?
答:需要计入,具体选型以装饰图为准。
9、卫生洁具下水管穿楼板是否需要开洞?
答:需要开洞。
10、直饮机是否计入?若计入,请提供具体规格参数要求。
答:计入。参数要求如下:
(1)出水口:4个龙头(一开三温);
(2)外形尺寸:1250*410*1100mm±3%,美观大方;
(3)电源配置为380V,额定功率≦4.5KW;
(4)热胆容量:不小于30L;制开水45L/h,温开水250L/h;
(5)出水方式:采用步进式逐层加热技术,安全,节能,环保,管道全封闭,无二次污染;
(6)出水水温:温开水出水水温可调控到35-100℃范围中;(水不开水不流出,务必保证开水是达到100度通过热交换的技术变成温开水的;不得采用原水或经过净化处理的原水和热水直接混合方式);
(7)加热方式:步进式加热,采用热交换技术,内外管均采用304不锈钢波纹管;
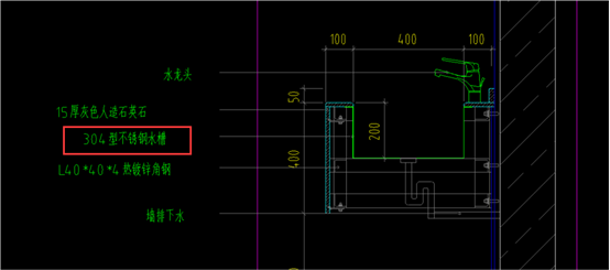
(8)水槽、门板、水罐均采用304不锈钢,水槽具有防溅水设计;
(9)过滤系统:过滤系统采用三级过滤(聚丙烯熔喷滤芯+颗粒活性炭+烧结活性炭);
(10)安全技术:采用水电分离,水电联动阀技术,常压下工作,内胆无压力;
(11)智能技术:温控采用电子温控技术,控温更精确;采用智能电脑芯片智能控制,设有定时开关机;液晶显示屏,显示包含:温度、星期、时间、故障代码等功能:水不开不出水;
(12)具有一键消毒、流量显示和隔夜排空技术功能,配备遥控器,操作方便,确保产品出水更卫生安全;(隔夜排空功能验收时现场演示);
(13)净水器的滤芯与开水器同一品牌,滤芯具有提醒功能,滤芯采用射频识别电子标签防伪识别技术,确保后期更换原装正品,水质有保障;
(14)防干烧,具有防触电保护类型:至少I类,至少通过IP44防护等级;
11、消火栓给水是否仅计算立管接出的支管及消火栓箱?
答:是的。
12、消火栓箱内配置的灭火器规格型号是否同综合楼设计的“内设MF/ABC5型二具”?
答:消火栓箱不带灭火器。
13、男女卫生间大样图中设计的是感应式面盆,装饰图中设计的是304不锈钢盥洗槽,以何为准?
答:以装饰图为准。

14、是否涉及原有灯具、开关、插座、卫生洁具、消火栓箱等内容的拆除?
答:原有灯具、开关、插座、卫生洁具、消火栓箱、给排水管道等均需拆除,具体需满足业主需求。
二、综合楼
1、AL1照明配电箱进线电缆是否计入?
答复:进线电缆引自一层配电间低压配电柜,电缆需要按图计入,另外一层配电间低压配电柜原有两个100A断路器更换为160A断路器。
2、平面图中的AL箱是否为系统图中的AL1?
答复:是
3、消火栓启泵线引自消防泵房,此回路是否仅计算预埋管?

答复:室内管线均计入,室外引入部分仅计预埋管至墙外1.5m.
4、弱电系统需要二次深化设计,本次是否仅计算预埋管、预埋盒?答复:是
5、固定挡烟垂壁是否计入?
回复:计入。
6、冷媒管、分歧管平面图未设计规格型号,是否含在空调设备中综合考虑?
回复:冷媒管包含在空调设备中综合报价。
7、给水是否自一层食堂给水立管接出的支管开始计算?请明确该段管道的规格型号?
答:自一层食堂立管接出的支管开始计算,管径按DN50计。
8、盥洗区洗手盆、清洗间开水器是否计入?若计,请提供图集做法。
答:盟洗区洗手盆计入,其他不计入。
9、是否有其他需要计入的洁具?
答:无。
10、排水管采用钢塑复合管?

答:改为UPVC塑料排水管。
11、请明确下列排水管规格型号?
答:采用DN50。

12、图纸未设计FL-01底层排出管至原厨房隔油池管道走向,该底层排出管是否计入?若计,按35m计入可否?该段管道敷设是否需要破除散水坡、混凝土路面或其他路面,请明确。
答:已确定隔油池重新做,结合室外排水图纸,10m计入,需破除散水及部分绿化。

13、消火栓系统是否仅计算“二层给排水及消防平面图”中消火栓管网及消火栓箱?
答:是的。
14、图示“原消火栓”不计入,未注明“原消火栓”的按图计入?
答:是的。
15、下图所示依次是否为:电动多叶调节阀、消声器、


回复:图一为电动对开多叶调节阀,与风机连锁启闭。图二为消声器,长度为1.0m。
16、艺术吊灯是否计入?

答:计入,灯具按照小的36w,大的60w计入。
17、原有吊扇是否拆除?
回复:需要保护性拆除,并移交业主。
18、办公值班室、备用房间的柜式空调是否计入?若计,请明确空调规格型号。
回复:计入.

19、餐厅壁挂风扇、壁挂电视是否计入?若计,请明确规格型号。
回复:计入

电视按65寸电视计入,且计入壁挂支架。
20、请明确风扇插座、电视插座的安装高度。
答复:补充设计,详下图。

21、食梯是否计入?若计,提供参数型号。
答:计入,速度(m/s)≥0.25 载重(kg)≥200 层站门:2/2/2 井道尺寸:深1500*宽1600 一层层高:4500 顶层层高:4550 原有旧梯拆除、井道整改。
22、抗震支架采用何种做法?
答:水管采用侧向支撑支架,桥架采用双侧支撑支架。
注:此补疑视同招标文件的组成部分,与招标文件具有同等法律效力。
招标人:合肥市庐阳区重点工程建设管理中心
地 址:合肥市庐阳区砀山路2199号
联系人:祝工
电 话:0551- 65699027
招标代理机构:安徽公共资源交易集团项目管理有限公司
地 址:合肥市滨湖新区南京路 2588 号(徽州大道与南京路交口)六楼
联系人:张工
电 话:0551-66223231
2023年11月24日
三、附件
答疑发布日期:2023年11月24日