您现在的位置: 首页 >> 答疑变更 >> 安徽公共资源交易集团项目管理有限公司 >> 工程

项目编号:

项目名称:

一、原公告主要信息

     原项目名称: 大众安徽核心零部件产业园三期施工总承包项目

     原项目编号: 2023BFJGZ00999

     原公告日期: 2023年05月25日

二、公告内容(更正事项、内容及日期等)

    

大众安徽核心零部件产业园三期施工总承包项目招标文件补疑4

项目编号:2023BFJGZ00999

 

1.招文中,要求施工组织设计最多不超过50页,50页是否包含目录及封面?

答:50页包含封面、目录、附图附表内容。

2.招文中,页面排版要求为A4,但施工进度计划网络图等采用A4纸篇幅太小,网络图是否可采用A3排版?

答:按照招标文件执行。

3.未见建筑总平面图CAD版本?

答:园区建筑总平面图在室外景观图纸中,投标人自行查看。

4.5#厂房钢结构图纸图未见该位置板结构图,请补充。

答:详见结施07图。

 

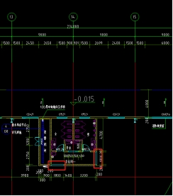
5.5#厂房建筑图未见该位置的门洞标注,请补充。

 

 

答:门洞高度为2400mm,宽度详平面标注。

6.5#厂房建筑图见100厚防火板轻质隔墙1.539m3,清单未见,是否为施工内容,若是请补充此条清单漏项。

 

答:以节点大样图为准,节点大样显示为100厚砖墙,编制的清单也按照节点大样图计入。

7.5#厂房钢结构图纸中 1轴墙梁立面布置图指出标高1m位置为QL,大样中该位置为压顶相矛盾,请明确。

 

 

答:钢结构墙梁布置图中QL为C型钢,混凝土大样QL释义为圈梁,窗台压顶顶标高应在C型钢墙梁下,窗台压顶顶标高应为0.930。

8.5#厂房建筑图未见配电房、弱电机房墙面天棚装饰做法;门厅走道、楼梯间地面墙面天棚,请补充。

答:详见建施03《建筑构造做法一览表》、建施04《装修做法索引表》。

9.5#厂房钢结构未见卸货平台大样,请补充。

答:详见景观图纸LT-1.01,卸货平台路面基础做法。

10.若为联合体投标,项目拟委任项目经理、项目技术负责人、投标人资格业绩是否由联合体任意一方提供均可?

答:联合体投标的,项目拟委任项目经理、项目技术负责人、投标人资格业绩由联合体任意一方提供均可。

11.评标委员会根据投标人自 2022 年 1 月 1 日以来,获得企业注册地省级及以上住房城乡建设主管部门或在国内依法登记注册的行业协会(学会)最新公布的企业综合实力认定结果进行综合评价。因各地主管部门发布的名称不一致,我单位获得企业注册地省级住房城乡建设主管部门发布的建筑业综合实力30强企,请问是否予以认可?

答:认可,由评标委员会综合评价。

12.中国施工企业管理协会官网发布的“关于公布2022-2023年度第一批国家优质工程奖入选工程名单的通知”,因目前只公布入选工程名单,表彰文件及证书在2023年12月颁发,请问此入选名单中获得的2022-2023年度第一批国家优质工程奖,是否予以认可?

答:不予以认可。

13.请问投标文件(技术文件)中包含投标人业绩、投标人奖项荣誉、诚信履约3个模块,此3项内容已在投标文件(商务文件)中体现,能否在模块中填写见商务文件即可?

 

答:施工组织设计中的商务相关节点投标人无需重复上传。

14.补疑3中“(二十一)试车跑道报价表”中的金额不包括在总报价中,请问这部分后续怎么发包?

答:试车跑道及其附属设施残值已评估完成,详见招标文件281“(二十一)试车跑道报价表”。投标人需按招标文件要求填写试车跑道报价表,投标人中标后,招标人提供第三方评估单位出具的试车跑道及其附属评估报告,中标人应以报价价格单独支付给招标人,已评估的试车跑道及其附属设施由中标人自行处置。

15.本项目清单较多,每个清单的控制价能否只作为参考价,不作为每个清单的控制价?

答:按照招标文件执行。

 

注:此补疑视同招标文件的组成部分,与招标文件具有同等法律效力。

人:合肥恒创智能科技有限公司

     址:合经区清潭路693号中德合作创新园9号楼

       人:王工

     话:0551-63832966

      招标代理机构:安徽公共资源交易集团项目管理有限公司

     址:合肥市滨湖新区南京路 2588 号六楼

        人:张工

     话:0551-66223831/66223912

2023年06月08

 

三、附件

      答疑发布日期:2023年06月08日

附件:2023BFJGZ00999项目补疑4.pdf