您现在的位置: 首页 >> 答疑变更 >> 安徽公共资源交易集团项目管理有限公司 >> 工程
一、原公告主要信息
原项目名称: 合肥二中艺术楼抗震加固及美术馆、校史馆等综合装饰改造工程
原项目编号: 2023BFFGZ00827
原公告日期: 2023年04月28日
二、公告内容(更正事项、内容及日期等)
合肥二中艺术楼抗震加固及美术馆、校史馆等综合装饰改造工程招标文件补疑
招标项目编号:2023BFFGZ00827
招标文件修改内容
本项目招标文件第二章投标人须知前附表中10.3.3相关政策要求:
“(6)农民工工资保证金保函严格执行转发《关于印发〈安徽省工程建设领域农民工工资保证金实施办法〉的通知》 的通知(合治欠办[2022] 5 号)。”
现修改为:
“(6)农民工工资保证金保函严格执行转发《关于印发〈安徽省工程建设领域农民工工资保证金实施办法〉的通知》的通知(合治欠办[2022]5号),支持以银行保函、保险机构保单保函方式存储。”
清单、最高投标限价部分
一、重要提示
本工程措施项目费率和不可竞争费率按“ 房屋修缮 工程取费标准”中“房屋修缮工程 ”的费率计取。
二、招标需求
(一)招标范围:
本项目分为一个标段,本标段包括艺术楼、专家楼抗震加固改造及室外景观改造等图纸设计范围内的全部内容。
1. 艺术楼及专家楼加固改造:
1.1结构加固:
主要内容包含艺术楼及专家楼的砌体表面处理、新增洞口及墙体、增设构造柱、墙体加固、板底碳纤维加固、增设圈梁、梁加固、新增钢梁等图纸设计范围内全部改造内容。
1.2综合装饰改造:
主要内容包含艺术楼及专家楼的原有楼地面、内墙面、外立面、顶棚、门吊顶、屋面、门窗、栏杆等综合装饰改造,图纸设计范围内全部改造内容均包含于本次招标范围内。
2.室外景观绿化部分:
2.1土石方工程:
主要内容包含室外景观道排图纸内挖土方、沟槽土方的挖运填等设计范围内的全部施工内容。包括挖、填、外弃、外借等,弃土点、取土点不指定,弃土运距、弃土点及外借土运距、借土点(包括取土场清表、便道、弃土场平整、渣土费、道路管理部门要求缴纳的保洁费等相关费用)由投标人踏勘现场综合考虑,自行报价,含渣土费、土源费,结算时不予调整。必须满足合肥市及包河区区文明创建及扬尘污染相关规定。工程余土外运须符合合肥市及包河区有关部门及招标人的渣土运输及弃土相关规定。渣土运输及道口开设时须提前到城管局办理相关手续,方可施工。
2.2道路、排水工程:
道路、排水工程图纸内道路铺设、室外雨污水管道、雨污水检查井、雨水收水井、化粪池、与已建工程排水管道的连接等设计范围内的全部施工内容。
2.3园建工程:主要包含图纸设计范围内硬化铺装、景观小品、花坛树池等园建设计等全部内容均按图纸设计范围计入。
2.4室外安装工程:主要包含给水系统、消火栓系统、强弱电系统、消防电系统等全部内容均按图纸设计范围计入。
3.安装工程
3.1 给水系统:从单体前水表井(含井及水表、阀门组)后按图纸全部计入;
3.2排水系统:按图纸内容全部计入;地漏、洁具等按图计入;
3.3消防水系统:按图纸内容全部计入;室外阀门井计入;
3.4 强电系统:各单体楼配电总箱及配电总箱出线至末端按图计入,配电总箱前进线部分预埋管、电缆计入室外安装工程;
3.5弱电智能化系统:按智能化图纸内容全部计入;
3.6消防电系统:图纸内容全部计入,消控室设备不计;
3.7暖通系统:图纸内容全部计入。
4.图纸上已有但不在本次招标范围内的有:
4.1绿化工程不在本次招标范围内。
4.2 新风系统不计入本次招标范围。
(二)暂定项目:
1、以下项目按照业主要求,以暂定工程量计入分部分项工程量清单,投标人综合考虑报价,标后按实际工程量结算:
无
2、以下项目按照业主要求:
本项目按照业主要求,暂列金额为25万元(不含税,税金另计),计入艺术楼(修缮)单位工程,投标人应按招标人所列的金额计入投标总价。
(三)补充图纸及修改图纸的说明:
具体详见图纸目录。
(四)总承包服务费:
无
(五)温馨提示
1、 投标人投标报价还须仔细阅读本项目招标文件,慎重报价
2、 本项目所有开挖的土方、淤泥、植被、建筑垃圾等须外运出场,运距自定。若需外借(购)土方,自行解决取土点,回填土质须满足施工图纸设计及相关规范要求,运距自定。投标人应考虑各方面因素后审慎报价,综合报价应考虑土方施工中的渣土费、渣土处置费、渣土运输清理费、渣土保证金、外购土方费用、保洁费、办证、现场苗木、建筑垃圾等杂物的清理及其他可能发生的一切费用,中标后不予调整。同时中标人负责组织协调办理渣土运输证及土方外运过程中所有外围的关系。如由于中标人过程中处理不到位,造成招标人、代建单位的损失(包含费用、工期质量等损失),所有责任由中标人承担。
3、 因施工新建雨污水管、给水管、消防管、弱电等所有工程导致破除及恢复道路、散水坡、入户门厅、栏杆等,室外所有检查井与绿化微地形无缝对接,投标人自行考察、编制施工方案、与物业公司、学校对接等所有费用;如在破除道路时涉及与其他管线及工井协调、文明施工等费用一并考虑,并且满足业主单位要求,涉及的一切费用,清单控制价中不单独列项,投标人自行踏勘现场,综合考虑报价,中标后不予调整。
4、 投标人应认真详细勘察现场,因场地限制,不具备材料堆场、搭设加工区、搭设办公区、搭设生活区的,投标人在投标时应充分考虑,需将临时设施搭设等的所有相关费用充分考虑到投标报价中,中标以后不再调整。
5、 施工至燃气管道区域时,应提前与燃气管理部门取得对接,征得同意后再行施工,此过程需要的各种手续办理,由中标人负责。
6、 本次招标工程内各类报规报建、施工(安全)方案评审、方案专家论证、专家技术指导、竣工档案扫描及归档费用、验收等所发生的费用由中标人支付,不单独列项, 投标人应在报价中综合考虑,中标后不予调整。
7、 在进行土方施工前,应清理现场有碍于工程开展的地面物,如施工场地内有积水或过高的地下水,应设法排走,现场施工影响景观、绿化、道路、排水和安装等本次招标范围内地下隐蔽障碍物拆除及清运,清单不单独列项,投标人自行勘查现场,综合考虑报价,中标后不予调整。
8、 施工现场存在市政管线,中标人应综合考虑相应的保护、迁移、恢复,满足相关管理部门及招标人的要求,清单不单独列项,中标后不予调整。
9、 中标人进场后需拆除、清障、砼道路破除、破除等产生的费用,投标人自行考虑报价,清单中不单独列项,中标后不予调整。
10、 本项目室内外装饰工程(外立面、屋面瓦、门窗、金磨石等)须做样板供设计、业主及规划部门选择确认,待其确认后方可实施。外立面工艺样板要求:每样板面积不少于2平方米,样板数量不少于5种,必须通过上述单位审核确认。该部分费用清单不单独列项,由投标人自行考虑,综合报价。后期如选择的样板工艺与图纸设计不符,报设计审核后按样板施工,该设计做法变更不产生工程费用调整。
三、设计文件及技术补充说明
建筑结构装饰:
1、本项目土方开挖、运输及运距:
1.1本项目工程量清单土方按考虑回填利用方案计算。
1.2本项目最高投标限价余土外弃运距按20公里计算。回填土方场地由投标人自行考虑,投标人应自行踏勘现场并结合项目周边取、弃土点情况以及管理部门相关要求,综合考虑报价,费用包干,中标后不予调整。
1.3本项目土方运输中产生的涉及渣土消纳处置、土场费、土源费、保洁费及相关管理部门收取的管理费等所有费用均由投标人自行考虑并含在投标报价中,中标后不得以任何理由提出索赔。
2、请明确本工程是否采用商品混凝土和预拌砂浆?
回复:该工程采用商品混凝土。
3、请明确隔热铝合金门窗型材的具体规格和壁厚
回复:80A系列聚氨酯浇筑隔热式(最小隔热间距8mm)6白玻G膜+12A+6白玻,门壁厚2.2mm(窗壁厚1.8mm)
4、
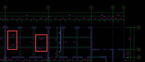
艺术楼《二层梁加固平面布置图》(图号结施-06)中10轴-11轴交D轴-F轴部位梁加固标注冲突,请明确此部分梁加固标注为JL9(6)还是JL8(7)。
回复:该标注为JL9(6)。
5、
![]() |
回复:该节点参2号节点做法。
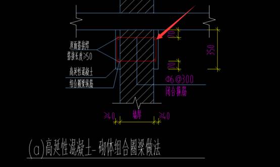
6、
![]() |
回复:该大样圈梁上部钢筋为2根12,下部钢筋为2根12.且钢筋均为3级钢HRB400。
7、请明确艺术楼结施-13中,GL01是否为I16
回复:GL01为(工16:Q235B)

8、请明确艺术楼一层洗手池更换的具体做法、材质、规格。
回复:详16J914-1/XT11
9、请明确艺术楼铝合金方形板吊顶的吊顶高度。
回复:按2800mm控制。
10、
图纸所示金属踢脚线用水泥砂浆粘贴,金属踢脚线是否应用木工板基层粘贴,请明确。
回复:12厚木工板基层粘贴金属踢脚线。
11、请明确小便槽、大便槽面层做法。
回复:面层采用不锈钢成品。大便槽找平做法参考小便池做法。
12、请明确铝合金吊顶是否全部拆除后重新布置。
回复:是。
13、请明确钢质防盗门钢板厚度
回复:钢质门钢板厚度不低于0.8mm。
14、请明确外窗是否设置窗台板
回复:所有窗户窗台采用20厚芝麻灰花岗岩窗台板,宽度300。20厚1:3水泥砂浆粘贴。
15、请明确卫生间地面防水上翻高度。
回复:地面防水上翻300mm。
16、请明确是否按建设单位要求,外墙做法中“5厚干粉类聚合物水泥砂浆,中间压入一层耐碱玻璃纤维网布”修改为“修补找平同步做基层处理”。
回复:是。
17、室外水图说明中表述:“I II类土地段管道5F直接敷设在原土上”,请明确雨污水管道是否需要垫层基础。
回复:直接敷设在原土上,不需要垫层基础。
安装
18、请明确图例中灯具、插座名称、规格;




回复:分别为五孔插座,五孔插座(吸顶),空调插座16A,双管LED灯2*20W。
19、下图图例是否为电风扇?系统图中无电扇回路,回路名称为照明,是否修改?
回复:是吊扇,接W2回路。


20、应急照明WE1回路为消控室应急灯,平面图中无此回路,是否删除?
回复:此回路不接线,作为备用。
21、火灾报警中电源线与信号线是否采用SC25共管敷设?
回复:各自单独敷设
22、艺术楼强电进线应为WDZ-YJY-4x240-SC150,WDZ-YJY-4x50-SC70,RTXMY-0.6/1KV-5x6-SC40,外线图纸为WDZN-YJY-4x240-SC150,WDZN-YJY-4x35-SC50,是否有误?
回复:以系统图为准


23、火灾监控系统图中ALZ箱、ALZT箱均不存在,是否有误?
回复:实为APD、APE箱。

24、能耗监测系统电气图纸中只有系统图,如何计入?
回复:艺术楼、专家楼内各采用数据采集器1台,1对光纤收发器,数据采集器与智能电表、水表间采用WDZ-RYSP-4x1.5连接,数据采集器与光纤收发器之间采用UTP6连接,站控管理层设备利用已有设备。
25、艺术楼内教室中电风扇过多,是否减少数量?
回复:30人、44人、46人、48人教室按4台计入,64人教室按6台计入。
注:此补疑视同招标文件的组成部分,与招标文件具有同等法律效力。
招标人:合肥市重点工程建设管理局
地 址:潜山路550号
联系人:胡工
电 话:0551-65991641
招标代理机构:安徽公共资源交易集团项目管理有限公司
地 址:合肥市滨湖新区南京路 2588 号(徽州大道与南京路交口)六楼
联系人:张工
电 话:0551-66223231
2023年4月28日
三、附件
答疑发布日期:2023年04月28日