您现在的位置: 首页 >> 答疑变更 >> 安徽公共资源交易集团项目管理有限公司 >> 工程
一、原公告主要信息
原项目名称: 蔚来新桥智能电动汽车产业园分布式光伏发电项目
原项目编号: 2022BFFGZ00589
原公告日期: 2022年03月26日
二、公告内容(更正事项、内容及日期等)
蔚来新桥智能电动汽车产业园分布式光伏发电项目补疑8
项目编号:2022BFFGZ00589
一、招标需求
(一)招标范围
本项目位于合肥新桥智能电动汽车产业园蔚来厂区内,共分为1个标段。包含有(1)VDC停车场光伏大棚施工:包含不限于光伏大棚基础施工、地下预埋配管施工、钢结构安装、水清洗系统、照明系统、接地系统(不含10kV高压路径预埋管)等内容。(2)光伏系统设备安装调试:利用蔚来汽车厂区内6个屋顶(总装车间、冲焊联合厂房、电驱电控车间、智慧物流库1#-3#厂房)、停车场光伏大棚区域(含厂前区停车场光伏大棚和VDC停车场光伏大棚,其中VDC停车场光伏大棚需新建)作为光伏场地,建设装机容量约为47.0475MW,分为8个并网点。
除特殊说明外,图纸设计范围内的所有内容,均按图计入,具体详见本项目招标文件、工程量清单、最高投标限价编制补疑等。
1.建筑工程
1.1包含土石方工程(土方挖运、回填、清表、清淤等)、混凝土工程、金属结构工程、油漆、涂料、裱糊工程等计入本次招标范围。
1.2各单体屋面、停车场光伏大棚光伏结构及设备基础工程等图纸设计范围均计入。
2.安装工程
2.1光伏系统:光伏场地区域光伏支架、组件、逆变器、高低压开关柜、变压器、设备预制舱、箱变基础施工及设备安装、二次屏柜安装、桥架安装、电缆敷设,光伏区域内的消防设施、检修通道、水清洗系统、暖通设备、防雷接地以及各项调试内容等均按图全部计入本次招标范围内。
2.2 VDC停车场安装:地下预埋配管施工、水清洗系统、照明系统、接地系统等(不含10kV高压路径预埋管)内容等均按图全部计入本次招标范围内。
3.补充说明:图纸上已设计,但不计入本次招标范围的有:厂前区停车场光伏大棚的基础部分、主体钢结构、预埋管线、照明系统、水清洗系统、地下接地系统不在本次招标范围内。
(二)暂定项目
1.以下项目按照业主要求,以暂定工程量计入分部分项工程量清单,投标人综合考虑报价,标后按实际工程量结算:无。
2.本项目按照业主要求,暂列金额为 60 万元,计入VDC停车场光伏大棚(钢构工程)单位工程其他项目清单,税金另计,投标人应按招标人所列的金额计入投标总价。
(三)补充图纸及修改图纸的说明
本工程在第一次发放图纸后,有补充图纸,本工程以补充图纸为准,具体详见图纸目录。
(四)总承包服务费:无。
(五)温馨提示:投标人投标报价还须仔细阅读本项目招标文件,慎重报价。
1. 本项目中标人需负责新旧管网衔接工作,相关费用包含在投标总价中,投标人自行踏勘现场,综合考虑报价,中标后不予调整。
2. 本项目施工时,对地下管道间距过小或覆土过浅的位置,需要进行混凝土包管,满足规范和业主要求,相关费用包含在投标总价中,投标人自行踏勘现场,综合考虑报价,中标后不予调整。
3. 本项目施工中存在因优化设计,导致现有图纸中组件、逆变器等主要设备尺寸和相关参数变化、厂区屋顶部分设备安装位置变化、光伏组件排布变化以及对局部施工图二次深化设计等变化内容,由此引起工序和工作内容的变化均由中标人负责,相关费用已列入光伏系统设备安装调试单位工程总价中,投标人需自行踏勘现场,综合考虑报价,中标后不予调整。
三、设计文件及技术补充说明
一、共性问题
1、本项目土方开挖、运输及运距
(1)本项目工程量清单土方按人工挖基坑(挖土深度0.25mm)、就地回填、余土外运方案计算。
(2)本项目最高投标限价余土外弃运距按10km计算,不需要借土,投标人应自行踏勘现场并结合项目周边取、弃土点情况以及管理部门相关要求,综合考虑报价,费用包干,中标后不予调整。
(3)本项目土方运输中产生的涉及渣土消纳处置、土场费、土源费、保洁费及相关管理部门收取的管理费等所有费用均由投标人自行考虑并包含在投标报价中,中标后不得以任何理由提出索赔。
二、VDC停车场光伏大棚工程
(1)土建部分
1、缺现有场地标高图和方格网图纸,以便确定场地挖、填方。
答:现有场地标高暂按-550mm计算,基础回填多余土方按外运10km计算。场区回填及面层施工另行招标,不在本次招标范围。
2、现有场地是否考虑场地清表,障碍物拆除、水塘排水换填、建筑
垃圾外运、杆线移位、临时道路等不利因素?
答:不考虑。
3、柱脚加劲板高度未注,是否同宽度,垫片规格未注明,请明示?

答:柱脚加劲板高度为120mm,垫片规格为80*80*20mm。
4、逆变器、汇流箱安装是否计算,连接的槽钢、角钢是否计算?

答:甲供材,总包安装,计入光伏系统项目清单中。
5、屋面钢构LT、XLT规格未注明?
答:LT、XLT为Φ12热镀锌钢筋。
6、甲供材清单中未含钢立柱、斜梁、水平支撑 撑杆、系杆,该部分材料是否为乙供。
答:檩条(LT1,LT2)、拉杆(XLT,LT,T,XT,CG)为甲供材,安装费计入光伏项目清单;檩托及拉条、撑杆等连接件钢材计入VDC停车场清单中。
7、钢架剖面图中,柱脚位置用C15砼保护,出边大于等于50,比柱脚预埋件小,是否调整尺寸?


答:出地面部分不用调整。
8、基础详图中C35后塞砼每边超出预埋铁件的尺寸未注,请明确?

答:每边超出50mm。
9、节点大样中无檩条悬臂端长度,请明确?

答:超出组件边100mm。
10、钢结构是否考虑防火,耐火极限等级未标明?
答:不考虑。
11、C型檩条拉条安装节点中,拉条均为双层,是不是屋面结构布置图中除XG、SC外的XT、CG、T均为双层布置?

答:是。
12、图纸中标注的中压块、边压块是否是太阳能集成板压块,是否计算?

答:计入光伏清单中。
13、檩托加劲板立面和剖面加劲板厚度标注不一致,须统一。
答:均为6厚。
14、屋面拉条、水平支撑、撑杆、系杆等为热镀锌钢材,是否要按图纸要求计算防腐涂层
答:凡热镀锌构件均不需要做防腐涂层。
15、本项目暂列金额按多少计入?
答:暂列金额按60万计入VDC停车场光伏大棚其他项目清单中,税金另计。
16、请设计明确哪些部位为高强螺栓?
答:除系杆(XG)与钢梁连接、水平支撑(SC)与钢梁连接、钢柱与钢梁连接部位为高强螺栓,其余均为普通螺栓。
(2)安装部分
1、照明配电箱、弱电箱进线电源的配管和电缆是否在本次范围?若在,请补充相关的平面图和系统图?
答:照明配电箱进线电源的配管和电缆在本次范围内,弱电系统仅计预埋管。图纸已补充。
2、请补充照明配电箱、弱电箱的系统图,设计明确灯具、配管、配线的规格型号和监控枪机的参数要求?
答:已补充系统图。监控枪机不在本次招标范围内,监控系统仅计预埋管。
3、热镀锌钢管与SC(焊接钢管)是两种管材,请明确用哪种管材?

答:热镀锌钢管。
4、图纸内的桥架是否在本次招标范围内?
答:桥架计入光伏系统设备安装调试工程中。
5、光伏场区、箱变及开关站区域接地网采用L50*50*5热镀锌角钢作为垂直接地体,该角钢的长度按多少计入?
答:每根2.5米。
6、本项目水清洗系统是否计入?
答:按图计入。
7、水表井做法未见,请明确?
答:图集05S502-137页。
8、行车区域埋地水清洗管道是否需要保护管,若有,请明确其型号规格?
答:需要,保护管为DN100的热镀锌钢管。
9、请明确水清洁系统范围。
答:从水表处(含水表井及表前后阀门)计入。
10、清洁设备是否不在本次招标范围?

答:不计入。
11、手孔井大样图显示侧壁为砖砌,说明为钢筋混凝土,请明确?
答:以大样为准,按砖砌计入。
三、光伏系统设备安装调试工程
(1)光伏电气部分
1、室外预埋管是否在本次招标范围内?
答:不在。
2、请明确光伏二次接线的规格型号?
答:按KVVP-2*4MM2,一个并网点2000米计入安装费,主材费不计。
3、图纸设计不明确,请提供二次接线设备清单?
答:详见下列清单,仅计安装费。

4、本项目视频监控系统的配线、摄像机及其立杆是否在本次招标范围?
答:上述不在范围且弱电箱本体及其进线均不计入。
5、请明确本次项目仅计入安装费的主材和设备?
答:光伏发电部分:光伏组件(包含MC4专业接头)、组串式逆变器、电缆(组件串线直流电缆、低压交流电缆、高压电缆、通讯控制电缆和电线)、变压器、高低压开关柜、二次设备及屏柜、预制舱;
6、
图示中的SVG成套装置、SVG出线柜、站用变柜是否计入?
答:不计入,其它并网点配电房设备的SVG成套装置、SVG出线柜、站用变柜均不计入。
(2)水清洗部分
1、请明确水清洁系统范围?
答:屋面水清洁系统自屋面预留处计入。
2、清洁设备是否不在本次招标范围?

答:不在。
3、屋面水管保温做法不明确,请明确具体做法?
答:保温采用50mm厚橡塑保温管外包0.5mm铝合金薄板。
4、屋面水管支架间距及做法不明确,请明确?
答:取消支架,用管卡沿地面固定。
(3)光伏结构及设备基础部分
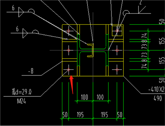
1、箱变基础底板厚度如何考虑?


答:按照250mm计入。
2、箱变尺寸结构图与预埋钢管平面布置图不符,如何考虑?


答:以结构平面布置图尺寸为准。
3、请设计提供栏杆做法?

答:清单按此做法计入。
4、台阶是否按图示计入?


答:台阶均按两个计入。
5、砖砌台阶是否有装饰做法?
答:20厚水泥砂浆。
6、光伏支架连接件、支座卡件是否为甲供材?
答:是,屋面以上均为甲供材。
7、此处是否按钢梁计入?

答:支座处为钢梁,箭头所指非钢梁。
8、屋面变压器、配电柜栏杆请提供做法?
答:同室外栏杆做法,高度为3.0米,基础为埋件螺栓。
9、屋面检修通道请提供具体做法?
答:屋面光伏区检修通道使用玻璃钢材质的格栅板,要求满足JC/T1026-2007的相关要求,网格规格尺寸为38*38*25(长度*宽度*高度,单位:mm),同时要求承载筋条厚度不小于4mm。
10、甲供材热镀锌钢构件是否需要做防腐处理?
答:不需要。
注:此补疑视同招标文件的组成部分,与招标文件具有同等法律效力,请投标人及时下载。
招标人:合肥金太阳能源科技股份有限公司
地 址:安徽省合肥市包河区包河大道398号建投综合办公楼C座
邮 编:230000
联系人:薛工
电 话:0551-62796757
招标代理机构:安徽公共资源交易集团项目管理有限公司
地 址:合肥市滨湖新区南京路2588号(徽州大道与南京路交口)六楼
邮 编:230001
联系人:张工
电 话:0551-66223283
2022年4月12日
三、附件
答疑发布日期:2022年04月12日