您现在的位置: 首页 >> 答疑变更 >> 安徽公共资源交易集团项目管理有限公司 >> 工程
一、原公告主要信息
原项目名称: 合肥高新区2022年第一批房建工程施工
原项目编号: 2022BFGGZ00667
原公告日期: 2022年04月03日
二、公告内容(更正事项、内容及日期等)
合肥高新区2022年第一批房建工程施工项目招标补疑1 项目编号:2022BFGGZ00667
一、 清单、控制价重新发放
1、本项目清单、控制价重新发放,详见本补疑附件。
二、重要提示
本工程措施项目费率和不可竞争费率按“ 建筑 工程取费标准”中“ 民用建筑 ”的费率计取;其中房屋建筑、市政工程中挖或填土石方量大于5000m3的大型土石方工程,其企业管理费率8%、利润率8%,措施项目费率和不可竞争费率按房屋建筑工程相应费率乘0.6系数。
三、招标需求
(一)招标范围:
房建专业: 本项目分为一个标段,其中本标段工程包括1、声谷、安全谷A区、B区、C区、商业中心(又名城西桥家园)配套工程:如垃圾分类投放点、人防标识标牌及配套施工、电梯前室等区域装修、充电桩、三网共建共享、防排烟管道防火层、声谷社区中心VRV及新风系统、绿化工程等。2、南岗惠园商业办公综合楼:总建筑面积约7886.01㎡,主要包括基础工程、主体工程、地下车库、外幕墙工程、排水工程、消防联动、室外道路及路灯、停车位、充电桩、绿化等配套设施。图纸设计范围内的所有内容,均按图计入。
一、声谷、安全谷A区、B区、C区、商业中心(又名城西桥家园)配套工程:
1.建筑工程
1.1土建工程:城西桥家园项目A组团、C组团人防地下室新建排烟机房墙体、防火门、A区地库防倒塌棚架等。
1.2装饰工程:城西桥家园项目A组团、B组团、C组团电梯前室等公共区域墙面贴砖,天棚石膏线条安装等。
1.3其他项目:人防区新增墙体标识、柱体标识、标识标牌等。
2.安装工程
2.1垃圾分类投放点:室外水电接入按图计入。
2.2新增充电桩:A组团地上、地下新增充电桩按图计入。
2.3风管防火:A、B组团、商业中心、A组团社区中心风管防火包裹按图计入。
2.4人防给水:A、B、C组团、商业中心人防地库战时给水按图计入。商业中心战时装配式水箱、变频自动给水设备、洁具等按图计入。
2.5空调系统:A组团社区中心空调系统按图计入。
2.6室外三网工程:弱电机房MODF架后至各单体楼户内弱电信息箱前端的通信管道、检查井、通信光缆、机房MODF架、走线架以及光分纤箱等。
3.室外总体工程
3.1绿化工程:室外绿化、起坡造型、新增排水管井等,二级养护。
3.2其他单位工程:成品垃圾分类投放点采购安装调试等。
二、南岗惠园商业办公综合楼
1.建筑工程
1.1土建工程(包含土石方工程、基坑支护工程、桩基工程、防水、保温、地下室标识标牌、交通标线工程、停车位等)。
1.2装饰工程(包含外墙面装饰工程、室内外门窗工程、内墙面、地面及顶棚装饰工程、玻璃幕墙、入口坡道处的栏杆等、室外工程与主体工程范围划分为外墙面为界)。
2.安装工程
2.1给排水工程:按图全部计入;卫生洁具不在本次招标范围。
2.2暖通工程:防排烟系统、空调系统、厨房排烟系统均在范围内。
2.3电气工程:从变电所接引电源的配电箱进线电缆不计入本次招标范围,配电箱及出线电缆至终端设备均在本次招标范围内;电梯在本次招标范围内;室外充电桩在本次招标范围内,充电桩设备在招标范围内。
2.4弱电工程:消防火灾自动报警系统、电气火灾监控系统、消防设备电源监控系统、防火门监控系统、室内空气质量监控系统、可燃气体探测系统均在本次招标范围内;综合布线系统本次计入桥架及管盒预埋,能耗监测系统不在本次招标范围。
3.室外总体及附属工程
3.1土建工程:主要包括但不仅限于景观铺装、停车位、围墙、岗亭、非机动车棚等,包含图纸设计范围内全部施工内容。
3.2电气工程:室外照明、亮化工程均在本次招标范围内。
3.3给水工程:给水自市政预留给水管处(不含阀门及阀门井)按图计入;灌溉系统在本次招标范围内。
3.4道排工程:主要包括但不仅限于沥青道路、侧石、标线、标志、雨、污水管网、检查井、雨水口、隔油池、化粪池等,与现有市政道路、管网衔接等,包含图纸设计范围内全部施工内容。
3.5绿化工程:主要包括但不仅限于土壤改良、苗木种植、支撑、养护等,包含图纸设计范围内全部施工内容。
3.6其他单位工程:在本次招标范围内的相关说明。
4.补充说明:图纸上已设计,但不计入本次招标范围的有:
4.1声谷、安全谷A区、B区、C区、商业中心(又名城西桥家园)配套工程:1、电梯厅墙面贴砖图纸中仅计原设计中电梯厅墙面未贴砖位置改为贴墙砖;2、垃圾分类用房电气图纸中手孔井仅计新建工井;3、配套图纸中A组团及社区中心、B组团及商业暖通图纸中仅计风管防火做法,社区中心除风管防火外,空调及新风系统按图计入,通风及防排烟系统不计
4.2驻地网通信工程:户内多媒体信息箱不计。机房MODF架前端OLT设备、主干光缆、光交、配线光缆等不计。A区、B区单体、地库内弱电桥架不计入本次招标范围,C区只计地库弱电桥架。
4.3南岗惠园办公综合楼:变电所及从变电所直接接引电源的配电箱进线电缆及排管、电缆井不计入本次招标范围,备用电源配电系统不计入本次招标范围。
(二)暂定项目:
1.以下项目按照业主要求,以暂定工程量计入分部分项工程量清单,投标人综合考虑报价,标后按实际工程量结算。
1.1 城西桥家园项目A区、B区、C区各暂定窨井升降300个,列入各组团绿化单位工程分部分项清单中;
1.2 城西桥家园项目 A区、B区、C区、商业中心各暂定汀步100平方米,列入各组团绿化单位工程分部分项清单中;
1.3 城西桥家园项目A区、B区、C区各暂定马尼拉草皮坪500平方米,列入各组团绿化单位工程分部分项清单中;
1.4 城西桥家园项目暂定红叶石楠1000平方,列入A组团绿化单位工程分部分项清单中;
1.5 南岗惠园商业办公综合楼不良地基处理:C15素混凝土回填200m3,碎石回填200 m3;以上暂定项目均计入土方工程分部分项工程量清单中。
1.6南岗惠园商业办公综合楼不良地基土方挖运暂定量为200m3;以上暂定项目均计入土方工程分部分项工程量清单中。
2.本项目按照业主要求,暂列金额为 100 万元,计入 南岗惠园商业办公综合楼地下(土建) 单位工程其他项目清单,投标人应按招标人所列的金额计入投标总价。
3.执行暂估价的材料、设备、专业工程及其金额如下:
无。
(三)按项列入清单的内容,标后不予调整:
以下项目按照业主要求,按项计入,投标人自行踏勘现场,综合考虑报价,中标后不予调整。
无
(四)补充图纸及修改图纸的说明:
本工程在第一次发放图纸后,有补充图纸,具体详见图纸目录。
(五)总承包服务费:无。
(六)温馨提示:投标人投标报价还须仔细阅读本项目招标文件,慎重报价。
1.本工程采用商品砼及预拌砂浆。
2.所有的专家评审费、论证费等,清单不单独列项,投标人综合考虑报价在投标总价中,中标后不予调整。
3.投标报价除考虑临时设施费用外,还应考虑临时设施的拆除、及其拆除后建筑垃圾外运等费用,做到工程完工时“工完、料尽、场地清”。临时设施包括:施工现场的临时房屋及其基础、临时道路、场地硬化、临时围挡(围墙)及其基础、等设备砼基础及其它为满足施工需要的临时建筑物和构筑物,费用投标报价中综合考虑,中标后不再调整。
4.施工时对场地内的各种杆管线、窨井、侧石、道路等做好保护工作,施工范围内的绿地保洁包含在绿地养护中,投标人在投标报价时综合考虑,中标后不再调整。
5.为打造精品工程,图纸设计中的所有苗木均应为精品苗木,进场均需满足业主要求,投标人在投标报价中应充分考虑苗木价格风险,合理报价。且中标人采购的干径18cm及以上的乔木,地径10cm及以上的灌木必须由招标人在苗木产地选树标记方可运至施工现场,投标人在投标报价时综合考虑。
6.所有土方换填包含水稳层、混凝土等破除,费用由投标人综合考虑在报价中,清单不再单独列项,结算时不再调整。
7.人行道树池必须人工开挖为主,小型机械配合,费用由投标人综合考虑在报价中,清单不再单独列项,结算时不再调整。
8.绿地和铺装范围内各种窨井根据地形、竖向进行提升或降低,费用由投标人综合考虑在报价中,清单不再单独列项,结算时不再调整。
9.养护期内,根据业主要求不定期对道路人行道、非机动车道、辅道等暂未实施区域进行杂草清理,以及绿化弃物外运等内容,费用由投标人综合考虑在报价中,清单不再单独列项,结算时不再调整。
10.渣土管理:投标人须服从主管部门调度弃土指定土场,若因渣土运输手续不全或乱弃土不符合要求造成相关单位、集体或个人投诉或受到相关部门处罚的,招标人将给予加重违约处理。投标人应在投标前了解合肥市、高新区渣土管理相关规定及渣土证办理相关手续,其中《关于印发合肥高新区建筑弃土处置工作方案的通知》(合高管办〔2022〕10号)文件要求,该项目的建筑弃土按要求缴纳“渣土消纳处置费”、“回填点管理维护费用”,其中“回填点管理维护费用”清单不再单独列项,费用由投标人综合考虑在报价中,中标后不予调整。
11.沉降观测费:沉降观测点预留预埋及检测,费用由投标人综合考虑在报价中,清单不再单独列项,结算时不再调整。
12.幕墙检测费:包括但不限于抗风、抗折、抗裂度、气密性能和水密性能及密封胶相容性、剥离粘结性试验,密封胶污染性等,费用由投标人综合考虑在报价中,清单不再单独列项,结算时不再调整。
13.树木标识牌:树木标识牌内容由中标单位深化设计,并经过发包人确认。费用由投标人综合考虑在报价中,清单不再单独列项,结算时不再调整。
四、 设计文件及技术补充说明
一、共性问题
1、本项目土方开挖、运输及运距?
1.1本项目工程量清单土方按大开挖方案计算。
1.2本项目最高投标限价按照全挖全弃考虑,余土外弃运距按10公里计算,借土运距按10公里计算,投标人应自行踏勘现场并结合项目周边取、弃土点情况以及管理部门相关要求,综合考虑报价,费用包干,中标后不予调整。
1.3本项目土方运输中产生的涉及渣土消纳处置、土场费、土源费、保洁费及相关管理部门收取的管理费等所有费用均由投标人自行考虑并含在投标报价中,中标后不得以任何理由提出索赔。
二、声谷、安全谷A区、B区、C区、商业中心(又名城西桥家园)配套工程答疑:
(一)城西桥家园项目绿化工程答疑:
2、各道路绿化土方外弃深度和回填深度及土壤改良标准是什么?
答复:土方换填:乔木按1.5m×1.5m×1m换填,灌木按1m×1m×0.7m换填,绿化带平均按20cm挖运,按60cm种植土回填(含微地形);
土壤改良:乔灌木树穴回填按含20%泥炭土的种植土拌和后回填,色块按表层30cm深土壤的20%泥炭土拌和;草坪铺种前增加2cm厚砂用于地形找平。
3、绿化工程养护等级及养护时间?
答复:养护等级二级,成活养护1月、保存养护1月、日常养护22个月。
4、苗木施基肥标准是什么?
答复:施工期间施一次基肥,养护期内一年两次(3月、11月份)追肥,按乔木250g/株·次,花灌木150g/株·次,色块30g/㎡·次,草坪10g/㎡·次施肥或追肥,肥料须为缓释复合肥,且复合肥品牌须经发包方确认。
5、增加消防登高面铺装的嵌草?
答复:马尼拉
6、回填种植土的土质要求为何?
答复:满足种植要求的素土
7、管道底部是否需要回填砂?
答复:中粗砂垫层。
8、 HDPE排水管具体参数请明确?
答复:图纸调整,原图纸设计HDPEHDPE排水管调整为PE实壁管(PE100级,环刚度S2≥8KN/㎡),管径不变;
9、暂定的汀步做法请明确?
答复:1、素土夯实>93%;2、100mm厚级配碎石垫层;3、80mm厚C20商品混凝土垫层;4、30厚1:2.5水泥砂浆结合层;5、800x400x50青石板花岗岩
(二)人防标识牌部分答疑
10、请明确标志板安装方式是否全部为贴墙安装?
答复:是。
11、车位线是否在本次招标范围?
答复:不计入。
12、人防区墙体涂料面积是否指人防防护单元面积?

答复:是指“区域围护面积”
13、机动车、非机动车坡道墙体标识宽度不清晰,请明确宽度

答复:参考《安徽省人民防空工程 标识技术规定》第9、10页做法。
14、提示性标志牌未注明材质,请明确。具体安装位置请明确?或提供数量。

答复:5mm厚亚克力板,每个地库按20个计入。
(三)人防区新建墙体答疑
15、人防区新建墙体是否均为200厚MU5非承重煤矸石空心砖,M7.5混合砂浆砌筑?
答复:是。
16、新建墙体构造柱如何设置?
答复:按照结构设计总说明相关要求设置。
17、新建房建内外装饰装修做法请明确?是否顶和地均采用原顶地做法,墙面1、15厚1:2.5水泥砂浆打底压实抹平;2、腻子两边;3、防霉乳胶漆面层, 一遍底漆,两遍面漆;
答复:是。
(四)公共区域装饰工程答疑
18、请明确墙面贴砖的具体做法?是否为以下做法?
1. 贴5厚釉300*600面砖,白水泥擦缝,
2. 结合层:瓷砖专用粘接剂
答复:是。
19、瓷砖墙面是否需要白水泥填缝?
答复:是
20、请明确石膏线宽度和其他参数?
答复:50*50石膏线条。
21、请明确墙面贴砖和石膏线条的范围?
答复:城西桥家园A组团、B组团、C组团所有电梯间墙面
(五)垃圾分类用房答疑
22、垫层是否宽出基础100mm?

答复:是的
23、垃圾分类用房图纸只给出了基本参数,各项具体参数请明确
答复:按照以下要求执行
投放点箱体要求、投放区、宣传区、操作间和管理间明细清单
| 投放点箱体要求 |
A类垃圾分类投放点(包含A类分类示范投放点) |
密闭钢结构,室内面积不低于30㎡,需包含投放区,操作间、宣传区、管理间以及相应配置设备等。 |
||||
| B类垃圾分类投放点 |
密闭钢结构,室内面积20(含)—30(不含)㎡,需包含投放区,操作间、宣传区、管理间以及相应配置设备。 |
|||||
| C类垃圾分类投放点 |
密闭钢结构,室内面积20㎡以下,需包含投放区,操作间、宣传区以及相应配置设备。 |
|||||
| 序号 |
项目 |
单位 |
A类 |
B类 |
C类 |
备注 |
| 一、 |
投放区 |
|
|
|
|
|
| 1 |
洗手池 |
套 |
1 |
1 |
1 |
|
| 2 |
水龙头 |
套 |
1 |
1 |
1 |
|
| 3 |
不锈钢灭烟柱 |
只 |
1 |
1 |
1 |
|
| 4 |
灭蝇灯 |
只 |
1 |
1 |
1 |
|
| 5 |
分类操作台 |
只 |
1 |
1 |
1 |
|
| 6 |
防夹手模块 |
项 |
8 |
6 |
6 |
|
| 7 |
定时开关门 |
项 |
1 |
1 |
1 |
|
| 8 |
智能感应照明 |
只 |
3 |
2 |
1 |
|
| 9 |
LED显示屏 |
套 |
1 |
1 |
1 |
|
| 10 |
投放区摄像头 |
只 |
1 |
1 |
1 |
|
| 11 |
精细投放柜 |
组 |
8 |
0 |
0 |
|
| 12 |
身份识别模块 |
套 |
8 |
6 |
6 |
|
| 13 |
地磅称重系统 |
个 |
8 |
6 |
6 |
|
| 14 |
智能中控单元 |
套 |
1 |
1 |
1 |
|
| 15 |
除味杀菌机 |
套 |
1 |
1 |
1 |
|
| 二、 |
宣传区 |
|
|
|
|
|
| 1 |
宣传栏 |
套 |
1 |
1 |
1 |
|
| 2 |
公示栏 |
个 |
1 |
1 |
1 |
|
| 3 |
标识牌 |
项 |
1 |
1 |
1 |
|
| 4 |
宣传展示屏 |
套 |
1 |
1 |
不配置 |
|
| 三、 |
操作间 |
|
|
|
|
|
| 1 |
通风百叶窗 |
套 |
2 |
2 |
1 |
|
| 2 |
高压清洗桶设备 |
套 |
1 |
1 |
1 |
|
| 3 |
可收纳清洗挡板 |
套 |
1 |
1 |
1 |
|
| 4 |
灭火器箱 |
套 |
1 |
1 |
1 |
|
| 5 |
灭蝇灯 |
只 |
1 |
1 |
1 |
|
| 6 |
单冷空调 |
台 |
1 |
1 |
1 |
|
| 7 |
不锈钢污水槽 |
套 |
1 |
1 |
1 |
|
| 8 |
拖把池及挂钩 |
套 |
1 |
1 |
1 |
|
| 9 |
满桶预警传感器 |
项 |
8 |
6 |
6 |
|
| 10 |
烟雾传感器 |
项 |
1 |
1 |
1 |
|
| 11 |
操作间摄像头 |
只 |
1 |
1 |
1 |
|
| 12 |
厨余垃圾袋塑料破袋器 |
个 |
4 |
2 |
2 |
|
| 13 |
物品归置柜 |
个 |
1 |
1 |
1 |
|
| 14 |
金属门 |
个 |
1 |
1 |
1 |
|
| 15 |
钢化玻璃推拉门 |
套 |
1 |
1 |
|
|
| 四、 |
管理间 |
|
|
|
|
|
| 1 |
操作台 |
套 |
1 |
1 |
不配置 |
|
| 2 |
座椅 |
套 |
1 |
1 |
不配置 |
|
| 3 |
储物柜 |
套 |
1 |
1 |
不配置 |
|
| 4 |
金属门 |
个 |
1 |
1 |
1 |
|
| 5 |
监控管理一体机 |
套 |
1 |
1 |
1 |
|
| 6 |
视频监控显示器 |
个 |
1 |
1 |
1 |
|
| 五、 |
其他配置 |
|
|
|
|
|
| 1 |
机柜 |
个 |
|
|
|
数量根据实际需求设置,最少1套 |
| 2 |
数据通信网络 |
项 |
1 |
1 |
1 |
根据业务需求提供相应数量和符合传输要求的数据传输网络,服务期为两年,主要用于传输视频、各种传感器信号以及业务数据等。 |
货物技术参数及要求
| 序号 |
名称 |
技术参数及要求 |
备注 |
| 一 |
投放区 |
|
|
| 1 |
洗手池 |
不锈钢材质的洗手池,采用一体式设计,洗手池有返水边设计,排水连接到操作间的不锈钢排水槽。台面具有置物功能和位置。配套感应灯设计,白光5W,LED人体感应筒灯。 |
|
| 2 |
水龙头 |
不锈钢材质,红外线感应水龙头 |
|
| 3 |
不锈钢灭烟柱 |
壁挂式烟灰柱,不锈钢材质 |
|
| 4 |
灭蝇灯 |
采用双灯管双面诱蚊蝇,采用阻燃PVC外壳,具有封闭护网,安全防止误碰。功率≥30w,UVA紫光灯诱蚊蝇 |
|
| 5 |
分类操作台 |
用于现场居民垃圾分类的操作台,不锈钢折叠式(长100cm*宽40cm),安装高度80cm |
|
| 6 |
防夹手模块 |
投料窗口自动开关门时防止居民投料时夹手模块,可延时2秒后门自动打开功能 |
|
| 7 |
定时开关门 |
系统可设置投放口定时开关门时间,同时支持支持手动开关门 |
|
| 8 |
智能感应照明 |
投放区照明功能(20-30W),白光LED吸顶灯,支持声光感应自动照明 |
|
| 9 |
LED显示屏 |
★1.LED显示(高*宽:不低于320*3200mm)单色屏, 2.像素≤10mm,电压:直流5v±5%, 3.发光亮度≥1400cd/m2 以上标★项参数:投标文件中须提供产品说明书(或第三方有权机构出具的检测报告) |
|
| 10 |
投放区摄像头 |
★1.不低于400万像素 CMOS传感器。 ★2.内置GPU芯片,内置麦克风和喇叭。支持白光报警功能,当报警产生时,可触发联动声音警报和白光闪烁。 3.支持双向语音对讲和单向语音广播功能。 4.支持元数据输出功能,可以在显示端独立进行语义显示,元数据与视频流采用同一通道输出。 5.最低照度彩色:0.001 lx,黑白:0.0001 lx,最大亮度鉴别等级(灰度等级)不小于11级。 6.红外补光距离不小于100米。 7.需支持双码流技术,主码流最高2560x1440@25fps,子码流640x480@25fps。 8.在2560x1440 @ 25fps下,清晰度不小于1400TVL。 9.支持H.264、H.265、MJPEG视频编码格式,其中H.264支持Baseline/Main/High Profile。 10.信噪比不小于62dB。 11.支持声音报警功能,报警声音类型不小于10种,报警声级及报警次数可设置。 12.★需具备智能分析抗干扰功能,当篮球、小狗、树叶等非人或车辆目标经过检测区域时,不会触发报警。 13.不低于IP67防尘防水等级。 14.需支持DC12V供电,且在不小于DC12V±30%范围内变化时可以正常工作。 以上标★项参数:投标文件中须提供产品说明书(或第三方有权机构出具的检测报告) |
|
| 11 |
身份识别模块 |
配合垃圾分类管理信息系统,支持多种通信协议,实现通过刷卡、二维码扫描进行身份识别开门。 |
|
| 12 |
地磅称重系统 |
用于垃圾投放自动称重,含称台、称重传感器、变送器,该装置位于投料口下方,秤台平面不得高于室内地面 |
|
| 13 |
智能中控单元 |
用于智能设备集中控制及数据采集,包括但不限于LED显示屏、宣传显示屏内容的远程更新,地磅称重数据、满桶预警传感器、烟雾感应传感器数据的采集等。可根据需要支持多种数据通信方式,含自控软件。 |
|
| 14 |
除味杀菌机 |
★1、功率:8W-20w 2、工作电压:220V 3、有效去除空间异味、同时具有杀菌功能 以上标★项参数:投标文件中须提供产品说明书(或第三方有权机构出具的检测报告) |
|
| 15 |
其他 |
★1.投放区采用半开放式空间进行设置,若设置在室外时应具有遮挡设施,避免居民投放时受到天气的影响。投放区面积要求A类为8㎡-12㎡、B类为4㎡-8㎡、C类为1㎡-4㎡。 2.分类投放口宜采用窗口形式设置,单个分类投放口尺寸宜为大于760mm*1900mm(宽*高),投放口设置高度宜在1100mm-1200mm之间,方便居民直接投放。投放口应采用ID/IC卡识别、二维码扫描方式等自动开门,并配备手动开门备用,避免人手接触,具有防夹手功能,关闭后可张贴或喷涂垃圾分类宣传内容。 3.垃圾投放口至垃圾桶配备厚度不低于1.0mm的不锈钢导流板(耐腐蚀),让垃圾不落地,防止二次污染,导流板能完全遮挡 240L标准垃圾桶边缘,且具有 翻边防割手。 4.分类投放口下方应设置分类标识或分类投放指引,指导居民正确投放垃圾。分类标识应符合《生活垃圾分类标识》(GB/T 19095 2019)要求。 5.投放区、宣传区采用敞开式设计,方便高峰时期居民密集的投放需求;操作间、管理间采用密闭式设计,便于环境控制。投放区、宣传区宜设置双出口,便于居民投放时人流单向流动,不产生交叉。管理间和操作间宜单独设置出入口,避免两区域的交叉污染;操作间出口宜采用双开门设计,与道路衔接处采用坡道设计,便于收集作业。 ★6、A类:6-8个投放口,B类、C类:4-6个投放口 |
|
| 二 |
宣传区 |
|
|
| 1 |
宣传栏 |
垃圾分类导向图文说明,根据小区特点,结合垃圾分类、资源利用、节能减排进行海报设计。可更换内容,带灯箱。宽度1.0-1.5m,高度1.5-2.0m,PVC材质,安装在外墙面上。(规格、内容、尺寸根据采购人现场情况要求进行设置) |
|
| 2 |
公示栏 |
垃圾分类公示牌。宽度1.0-1.5m,高度1.5-2.0m,画面表面覆 5mm 透明亚克力。(规格、内容、尺寸根据采购人现场情况要求进行设置) |
|
| 3 |
标识牌 |
站点顶部发光字,亚克力镶嵌平面发光字(字体规格及内容根据采购人要求) |
|
| 4 |
宣传展示屏 |
★1.1080P高清画质, 2. 边框采用铝合金材质;内置分屏功能,支持远程电脑操控发布内容;广告可自动循环播放;支持视频、音频、图片等多种格式,多种形式宣传垃圾分类知识;嵌入式钢化玻璃防护设计; 3. 可设定开关机时间(宣传展示屏尺寸:A类43-55寸,B类32-43寸) 以上标★项参数:投标文件中须提供产品说明书(或第三方有权机构出具的检测报告) |
|
| 5 |
其他 |
1.分类投放点宣传区可采用宣传走廊的方式单独建设,也可结合投放区空间进行合并建设。 2.宣传区设置分类宣传海报、公示栏,根据投放点情况设置广告式液晶显示屏,用于播放分类宣传相关视频, 3.应具备远程统一更改显示画面内容的功能。具体宣传内容可结合小区实际宣传需求进行布置。 |
|
| 三 |
操作间 |
|
|
| 1 |
通风百叶窗 |
铝合金材质,防水、防锈、防腐,含铝合金配备通风扇,具备手动开关功能。 |
|
| 2 |
高压清洗桶设备 |
★1.峰值压力:20MPA,峰值流量:450l/H,功率1800w, 2.采用斜盘柱塞泵,整机防水、用电安全。 3.具有自动开关枪停机功能,智能温控,温度过高自动断电,提高安全性,含自动储水桶。 以上标★项参数:投标文件中须提供产品说明书(或第三方有权机构出具的检测报告) |
|
| 3 |
可收纳清洗挡板 |
清洗桶设备配套,防止清洗垃圾桶时溅水。不使用时可折叠收纳,减少占地。 |
尺寸大小根据现场实际情况定 |
| 4 |
灭火器箱 |
不锈钢材质,放置2个5kg具干粉灭火器 |
|
| 5 |
灭蝇灯 |
采用双灯管双面诱蚊蝇,采用阻燃PVC外壳,具有封闭护网,安全防止误碰。功率≥30w,UVA紫光灯诱蚊蝇 |
|
| 6 |
单冷空调 |
★1.功率:1.5匹, 2.空调类型:壁挂式,单冷型: ★3.能效等级:新国标三级及以上 以上标★项参数:投标文件中须提供产品说明书(或第三方有权机构出具的检测报告) |
|
| 8 |
拖把池及挂钩 |
陶瓷纳米釉面工艺,底部/左右侧排污,大口径防堵下水器自带滤网防堵塞,尺寸长40cm*宽30cm*高35cm |
|
| 9 |
满桶预警传感器 |
满桶时警报器警报提醒,同时投放口锁住,支持RS485/232通讯协议 |
|
| 10 |
烟雾传感传感器 |
用于烟雾检测,支持声光告警 |
|
| 11 |
操作间摄像头 |
★1.不低于400万像素 CMOS传感器。 2.具有2颗白光灯。 3.最低照度彩色:0.0005 lx ,灰度等级不小于11级。 4.白光补光距离不小于15米。 5.需支持三码流技术,主码流最高2560x1440@25fps,第三码流最大1920x1080@25fps,子码流704x576@30fps。 6.在2560x1440 @ 25fps下,清晰度不小于1400TVL。 7.支持H.264、H.265、MJPEG视频编码格式,且具有High Profile编码能力。 8.需具备区域入侵检测、越界检测、进入区域、离开区域等功能。 9.同一静止场景相同图像质量下,设备在H.265编码方式时,开启智能编码功能和不开启智能编码相比,码率节约80%。 10.在彩色模式下,当照度降低至一定值时,可自动开启白光补光。 以上标★项参数:投标文件中须提供产品说明书(或第三方有权机构出具的检测报告) |
|
| 12 |
厨余垃圾袋塑料破袋器 |
居民投放厨余垃圾可方便破袋投放,安装在投放口位置 |
|
| 13 |
物品归置柜 |
用于物品有序存放 |
|
| 14 |
钢化玻璃推拉门 |
铝合金推拉门,双层钢化玻璃,具备防火、防腐、保温功能 |
操作间和管理间通道门 |
| 15 |
其他 |
1.操作间应设置备用桶并满足高峰投放时间的存储需求,操作间面积: A类:15㎡-25㎡,支持20-40个标准垃圾桶; B类:10㎡-15㎡ ,支持15-30个标准垃圾桶; C类:6㎡-10㎡,支持10-20个标准垃圾桶。 2.操作间应满足干湿分离要求,将厨余垃圾、其他垃圾、有害垃圾和可回收物分区管理,可回收投放桶应加设防盗装置,厨余垃圾桶需设置安全可靠的破袋装置。 3.湿区操作间内应配置上下水系统,设置垃圾桶高压清洗工具,采用可收纳隔板式设计,节约空间、满足垃圾桶清洗需求;同时应设置拖把池,方便管理人员卫生清洁。 4.操作间应具备通风除臭措施,保证室内环境。应采用机械换风、植物液除臭等方式,采用定时或触发等方式实现除臭。5.操作间墙面应采用光滑、便于清洗、防水坚固的材料(具备防滑、防腐),地面应采用2mm厚不锈钢花纹板(具备防滑、防腐)。操作间室内地坪与室外地坪采用坡道衔接,方便运输和移动垃圾桶。 6.操作间配置双开门(外开),门尺寸宽度为:1.5-1.7m,高度为2.0-2.1m,配置铝合金窗户(中空双层玻璃窗户)。 |
|
| 四 |
管理间 |
|
|
| 1 |
操作台 |
尺寸长宽高120*50*75cm,环保板材、碳素钢架,自带抽屉 |
|
| 2 |
座椅 |
办公座椅 |
|
| 3 |
储物柜 |
落地储物柜,不锈钢材质,尺寸长宽高:90*40*180cm |
|
| 4 |
监控管理一体机 |
1.支持有线和无线两种通信方式,支持三网通(电信、移动和联通) 2.支持1个HDMI,1个VGA,HDMI+VGA组内同源 ★3.配备不低于6T的硬盘 4.支持1个千兆网口+4个PoE 100M网口 5.支持不少于2个USB2.0接口 6.支持报警IO:4进1出 7.带宽:支持40M接入/80M转发 8.支持4路H.265、H.264混合接入解码 9.最大支持4×1080P解码 10.支持Smart 2.0/整机热备/ANR/智能检索/智能回放/车牌检索/人脸检索/热度图/客流量统计/分时段回放/超高倍速回放/双系统备份. 以上标★项参数:投标文件中须提供产品说明书(或第三方有权机构出具的检测报告) |
|
| 5 |
视频监控显示器 |
★1.屏幕尺寸22-24英寸;最佳分辨率1920x1080;屏幕比例16:9(宽屏); ★2.高清标准1080p(全高清);面板类型IPS;亮度250cd/㎡; 4. 节能标准二级;视频接口VGA,HDMI;其它接口音频输出。(C类投放点放置于操作间内) 以上标★项参数:投标文件中须提供产品说明书(或第三方有权机构出具的检测报告) |
|
| 6 |
数据通信网络 |
★1.根据现场情况,配置物联网卡(2年期)等通信方式,支持联通、移动、电信等主流的4G网络制式 1. 实现站点基础数据以及视频监控数据等上传。 |
|
| 7 |
其他 |
1.建筑面积A类:4㎡-8㎡,B类:2㎡-6㎡,C类:不配置。 2.管理间配置单开门,门尺寸:宽度80-90cm、高度200-210cm;配置铝合金窗户(玻璃窗户)。 |
|
| 六 |
智慧化功能 |
|
|
| 1 |
智能识别登录 |
支持ID/IC卡识别、二维码扫描方式进行身份识别后垃圾投放口自动打开进行垃圾投放;可对同一用户短时间识别投放次数进行限制,防止人为损耗或占用资源。 |
|
| 2 |
宣传内容管理 |
通过LED显示屏和宣传区大屏进行宣传视频的播放,宣传口号滚动播放,进行科学引导、教育培训;针对垃圾分类意识差的居民用户进行点对点教育。可实现城管局集中控制室集中管理、分区分时切换宣传内容。 |
|
| 3 |
垃圾称重系统 |
垃圾投放后,通过称重系统和身份识别模块功能,可识别具体户号投放的具体分类垃圾的重量,实现投放人员系统自查和城管局集中控制查询,投放点适时统计显示站点生活垃圾总量,分项显示厨余垃圾和其他垃圾总量、户均量。城管局监管平台适时统计可显示需要统计的小区、社居委、社区服务中心的生活垃圾总量,分项统计“厨余垃圾、其他垃圾、有害垃圾和可回收物”的垃圾总量,居民投递的次数。 |
|
| 4 |
满桶预警提示 |
箱体顶部设有距离传感器,当垃圾桶达到设定容量时,管理间内警报器警报提醒,自动向服务器推送消息,同时满桶位置的投料门自动锁住,待管理人员换桶后自动开锁恢复投料。 |
|
| 5 |
智能防止夹手 |
当投料人员在投料口部位时,门始终保持敞开;投料门在人员出现误操作时,通过压力传感控制投料门的关门力度,当发现关门时有人手夹住,投料门应能自动打开,防止出现人员受伤。 |
|
| 6 |
烟雾感应报警 |
投放的垃圾中可能存在火源,进而引发火灾,垃圾桶上方烟雾传感器感应到烟雾后能及时声光告警,并通知站点负责人,同时支持与站内喷淋设备联动进行灭火。 |
|
| 7 |
智能感应照明 |
设有夜间投料和洗手池感应照明功能,环保节约用电。 |
|
| 8 |
居民用户管理 |
居民用户关注高新区城管局官方微信公众号,通过公众号关联的智能小程序,基于户号建立家庭档案,支持多种方式开门投放,查看家庭的投放记录,同时可针对不文明现象进行上报。居民用户小程序提供给居民用户使用, |
|
| 9 |
快速建档 |
居民用户关注官方微信公众号与智能分类小程序,建立个人或家庭的档案,录入小区、户号信息或通过物业发卡绑卡后,可通过ID/IC卡识别、二维码扫描方式打开投放口进行投放。 |
|
| 10 |
投放查询 |
垃圾投放后可自动计算出重量并进行展示,同时可通过小程序回溯查阅。 |
|
| 11 |
识别开箱 |
ID/IC卡识别、二维码扫描 |
|
| 12 |
全民监督 |
城管局公众号小程序设有监督上报入口,针对垃圾房脏乱及不文明投放等现象可进行上报。 |
|
| 13 |
站点管理监控 |
站点管理监控是提供给高新区城管局、社区服务中心、辖区小区物业的管理APP,管理范围不同. |
|
| 14 |
垃圾站点定位 |
嵌入式监控设备支持基站定位,可通过APP管理端查看区域内垃圾站点位置分布,居民用户也可通过小程序中地图功能进行附件站点搜索。 |
|
| 15 |
视频监控 |
集视频画面在线浏览、录像回放、视频远传、触发报警、云台控制、设备联动于一体,同时支持与其他设备进行联动。 |
|
| 16 |
满桶监测 |
对满桶情况进行实时检测,实现现场显示屏实时显示,支持推送至APP查看。 |
|
| 17 |
收运情况上报 |
垃圾收运公司完成收运后,小区物业可通过APP进行收运情况上报。具备收运提醒功能,包括未收运提醒或存放满溢提醒。 |
|
| 18 |
设备故障上报 |
设备发生损坏或故障可通过APP进行拍照上报,运维人员根据实际情况进行到场维护处理。 |
|
| 19 |
分级权限管理APP |
中标方开发APP系统配备分级权限管理功能,满足高新区城管局、社区服务中心、辖区小区物业三级管理要求,小区物业管理员允许对当前小区垃圾投放点进行操作查看,社区服务中心管理员对辖区小区垃圾投放点进行操作查看及权限分配,高新区城管局管理员允许全部操作查看及权限分配。 |
|
| 20 |
城管局监管平台 |
城管局监管平台是提供给高新区城管局的监管运营平台, |
|
| 21 |
远程集中管控 |
远程在线巡查管理,支持可视化监控、实时监测垃圾房状态指标,城管局后台统一控制垃圾分类房的宣传内容。 |
|
| 22 |
智慧运营管理 |
支持居民档案、投诉上报、故障维修、收运统计管理,保障垃圾分类投放工作的日常运营管理。 |
|
| 24 |
智能集成安全可控 |
具备智能集成相关技术能力和专利,支持接入智慧物业系统、智慧城市、数字城管、智慧园区等相关平台。建设城管局自主专属垃圾分类管理信息系统和智能集成平台,其中智能集成平台可支持接入智慧城管等政务平台。可对公众隐私加密保护、数据传输加密,数据自主可控,相关数据应存放至采购人现有环境。 |
|
| 26 |
其他 |
1、垃圾分类系统综合运用大数据、人工智能、云计算、物联网、安防视频、自动控制等相关技术,建立高新区统一垃圾分类信息系统,实现垃圾分类投放精细化监管、一体化运营、便捷化应用,该平台含站点智能应用系统、居民用户管理系统、站点管理监控APP、城管局监管平台,为高新区垃圾分类工作提供有力支撑。 2、垃圾分类管理信息系统包括站点智能应用系统、居民用户管理系统、站点管理监控APP、城管局监管平台等 3、建成的垃圾分类管理信息系统需无缝对接已建的“智慧城管”平台的“智慧环卫”子模块,中标供应商需统筹考虑视频数据、业务数据以及报警数据接入已有平台的接口开发费用和相关数据对接费用。 4、项目建设中所用设备若涉及到无线传输模块,模块需支持电信、移动和联通三家运营商网络。 |
|
安装部分:
A组团充电桩:
24、请明确室外充电桩基础尺寸规格
回复:C20混凝土基础,600*300*300
城西桥A、B、C组团驻地网通信工程答疑:
25、本工程检查井盖是否全部采用球墨铸铁材质?
回复:是
26、机房MODF架前端OLT设备、主干光缆、光交、配线光缆等设备是否均不在本次招标范围内?
回复:前端OLT设备、主干光缆、光交、配线光缆等设备属于运营商建设范畴,不在本次建设范围内
27、家庭弱电信息箱是否在本次招标范围内?
回复:否
28、A区单体楼、地库内弱电桥架及弱电预埋管是否在本次招标范围内?
回复:不在,本工程仅考虑桥架接续,按200×100金属线槽360m计入。
29、通信机房装饰是否在本次招标范围内?
回复:仅计地面抹灰和墙面抹灰,墙面高度按3m计入;
地面做法:20mm厚1:2水泥砂浆找平;
墙面做法:20mm厚1:2水泥砂浆抹灰+腻子两遍+乳胶漆两遍。
30、机房内走线桥架是否在本次招标范围内?若在,请提供具体尺寸。
回复:是,宽度300mm的铝合金梯形走线架
31、本工程现场是否具备堆放土方条件?是否考虑弃土外运?若考虑请明确运距。
回复:就地堆放。
32、室外排管是否需做包管处理?若包管需提供大样图。
回复:否
33、家庭弱电信息箱出线及户内插座面板等是否不在本次招标范围内?
回复:不在本次招标范围
34、A区手孔井封堵是否需要增加光缆保护管,请提供相关图纸或工程量?
回复:考虑。按DN50波纹管340m计入。。
35、A区标识标牌如何考虑,请提供相关图纸或工程量?
回复:按400块计入。
二、南岗惠园商业办公综合楼
(1)土建工程:
1.请明确电梯厅和门厅的大理石面层的颜色。
答:大理石面层的颜色以浅色为主,具体结合精装设计看样选定。
2.地库墙面和天棚白色防霉涂料的做法是否为防霉耐水腻子两遍、白色防霉无机涂料三遍。
答:耐水腻子一遍,白色防霉无机涂料两遍。
3.楼梯间的白色无机涂料做法是否为腻子两遍,白色无机涂料3遍。
答:腻子一遍,白色无机涂料两遍。
4.地库彩色耐磨混凝土面层,图集备注说明中裂缝控制严格时在面层下20mm处配钢筋网,请问本项目是否需要配钢筋网?
答:不需。
5.楼梯踏步装饰做法是否同楼梯间地面的做法?
答:同楼梯间地面做法。
6.门窗表说明中“本图门窗尺寸仅表示洞口尺寸,安装尺寸应扣除灰缝外保温厚度尺寸。所有门窗的颜色,框料及玻璃规格应由业主委托相应资质的承包方根据使用要求选型确定,有关材料技术要求及安全防护应符合相应的国家技术标准”,按设计说明门窗工程需要深化设计,在总设计说明中也未明确具体窗型材的规格,因此门窗工程是否为业主方单独招标,不在本次招标范围内?
答:门窗应由具有资质的专业厂家深化设计,经设计单位和建设单位审核确定后方可制作安装,并应达到国家和地方现行相关标准的要求。
补充疑问:根据建筑设计说明5.3.5条“本工程专项设计项目(合同约定范围外),诸如玻璃及石材幕墙、室内精装修、玻璃雨蓬、轻钢结构、塑钢或铝合金门窗等,均由建设单位另行委托具有相应设计资质的单位设计提供(部分项目需要另行报审)。承担专项设计及施工的单位必须具有相应资质,并及时配合土建施工做好预埋,不得事后打凿结构影响主体安全。”按此条门窗工程由建设单位委托进行专项设计,因此在本次招标中施工单位是否不用再考虑二次深化设计的费用?
答:门窗应由施工单位找具有资质的专业厂家深化设计。
7.如果门窗工程在本次招标范围内,请明确窗的规格型号。
答:详见说明。


补充疑问:因工程量清单需要对材质和规格描述清楚,由投标人根据项目特征描述进行报价。因此本项目招标,投标人是否可以按此最低要求进行投标,如果不能明确,投标人很难提供合理的报价,同时清单控制价也无法确定门窗工程的价格。
答:详见说明,铝合金门窗主型材壁厚不应低于:门结构型材2.2mm,窗结构型材1.8mm,所有带框玻璃外门窗采用金属隔热型材,隔热条高度26mm(K=2.8)6中透光Low-E+12空气+6(K=1.8),外门窗整窗传热系数K=2.4w/㎡.k。
8.请明确排烟井的装饰做法。
答:20厚砌筑砂浆随砌随抹平。
9.请明确配电室的装饰做法。
答:同弱电进线间做法。
10.地库天棚需刷防水防霉涂料是否为防霉涂料。
答:是。
11.请明确地库天棚防水防霉涂料需要刷几道。
答:防霉涂料2道。
12.一层入口处的钢结构装饰柱外包铝板是否在本次招标范围内,如果在请明确做法和节点图。
答:详见幕墙图纸。
13.室外入口、台阶、坡道装饰面层是否在本次招标范围内,如果在请明确花岗岩的颜色和厚度。
答:30厚火烧面芝麻白花岗岩。
14.地下室停车位线宽如何考虑?
答:按150mm计入
15.出口标识牌、禁止烟火牌图纸无示意位置、数量?
答:出口标识牌4处,分别位于车道四周;禁止烟火牌位于车道四个柱子上,每个柱子2个外面,共8块。
16.楼梯入口标牌无尺寸信息?
答:楼梯入口600*400mm,另外增加电梯标牌600*400mm
17.请明确柱防撞板厚度?
答:8mm
18.应业主要求,雨污水检查井不采用模块式检查井,请提供做法?
答:雨污水检查井采用预制装配式钢筋混凝土检查井,以便增快施工速度,施工详图集06MS201-5。
19.请明确基坑支护临边防护栏杆的做法?
答:1、护栏高度:1500mm,入土深度500mm;120X240砖砌拦水梗
2、横杆材料种类、规格:Φ48X3.0钢管,上端、中部、下部各设一道通长横杆
3、立杆材料种类、规格:Φ48X3.0@1500钢管,L=2000mm
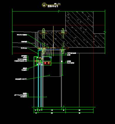
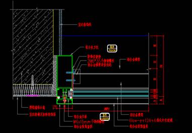
(2)幕墙工程:
1.图纸仅见后置埋件大样图,是否本工程采用后置埋件,若不是后置埋件,请提供预埋件加工大样图。


答:统一采用后置埋件
2.图纸中未明确铝单板幕墙的颜色,是否以业主和设计最终确认的颜色为准。
答:中标单位参照效果图提供样板,业主选样确定;
3.请明确钢方管插芯的型号规格。

答:12.6#热镀锌槽钢;
4.是否140系明框立柱均设置通长12.6#槽钢。

答:标注错误,不用钢插芯通长;立柱140系明框铝合金立柱即可;
5.型材表中未见铝合金横梁玻璃托、幕墙阳角处铝合金阳角压板及扣盖的理论质量,请补充。


答:

6.未见幕墙顶部、底部及墙边节点大样图,请补充。

答:上下口收口节点参照
;
左右侧收口节点参照
。
7.箭头所指位置的地弹门门框是否为50*5热镀锌方钢。

答:应为50*5热镀锌方钢;
8.请明确4JD03幕墙节点大样图用于何处。

答:通用节点;本工程无百叶窗;
9.请明确铝单板柱50*5镀锌角钢的纵向间距。


答:间距按照立面图分缝位置设置
,
纵向龙骨

。
10.请明确背衬板是否按2.5mm厚计入。

答:按照2.0mm铝单板背衬板计入。
11.幕墙工程设计说明中幕墙主龙骨与室内墙体交接处1.5mm热镀锌钢板夹200mm厚防火岩棉封堵,节点图中注明为100mm厚防火岩棉封堵,是否以节点图为准。


回复:层间防火岩棉厚度200mm;

房间隔墙封堵岩棉100计入

(3)室外景观绿化工程:
1.绿化养护如何考虑?
答:成活养护1个月、保存养护1个月,日常养护22个月,养护等级2级
2.土壤换填如何考虑?
答:土方换填:乔木按1.5m×1.5m×1m换填,灌木按1m×1m×0.7m换填,绿化带平均按40cm挖运,按60cm种植土回填(含微地形);
土壤改良:乔灌木树穴回填按含15%泥炭土的种植土拌和后回填,色块、草坪地被按表层20cm深土壤的15%泥炭土拌和;草坪铺种前增加2cm厚砂用于地形找平。
3.此处标注是否有误?

答:冠幅450-500
4.珊瑚树高度是否有误?

答:高度调整为1.5m
5.攀援月季按3株/米,工程量平方株数如何考虑?
![]()
答:按米计算,共计106米。
6.铺装图中立缘石做法与道路图不一致,如何考虑?



答:以景观图纸为准
7.沥青道路做法说明和大样不符,如何考虑?


答:以说明为准
8.绿篱围墙做法如何考虑?

答:绿化图纸中已给出绿篱。
9.地上标线是否同按地下车库标识图例样式施工?

答:是
10.雨水口做法如何考虑?

答:雨水口采用钢筋混凝土,做法参照06MS201-8
11.污水检查井图集不一致,如何考虑?雨污水检查井直径如何考虑


答:以说明为准,雨水检查井尺寸同污水检查井,井盖按700考虑
12.钢丝网围墙基础高度请明确?

答:基础按1.8m考虑
13.非机动车棚基础高度请明确,图集地坪做法与铺装重叠,以何为准

答:基础按1.5m计入,地面做法按铺装计入
14.成品岗亭请提供明确信息
答:参考下图

(4)安装工程:
1.请明确卫生洁具是否在本次招标范围。
回复:不在本次招标范围内。
2.给水系统市政供水是否从下图中市政预留DN300球管处开始计入,加压供水是否从下图中室外第一个水表井(含水表、闸阀)处开始计入,请明确。


回复:给水系统市政供水经与业主沟通确认从前期住宅项目预留处开始计入;加压供水管道按图计入;
3.消火栓系统及喷淋系统是否自下图中云线处开始计入。

回复:消火栓给水系统是从云线处接入,喷淋给水系统前期项目已预留,由地库边接入;
4.给水管道屋顶明露及吊顶内保温、防结露做法未见,请明确。

回复:保温做法说明中已经明确:

5.给水管道水井内是否需要保温、防结露,若需要请明确其做法。
回复:需要,做法详见说明。
6.消火栓系统、喷淋系统保温防冻做法未见,请明确其做法。


回复:答复同问题4。
7.请明确下图中管道型号规格。

回复:管径为DN100。

8.管道保温中橡塑保温材料是否为橡塑管,清明确;铝箔布及铝皮厚度未见,请明确。

回复:保温材料是橡塑,保温外外包铝皮厚度没有厚度要求,此仅为保护作用,耐用不易破即可。
9.请明确下图中图元名称。

回复:快速进气阀。
10.请明确下图中图元名称。

回复:喷灌喷头。
11.请明确下图中图元名称。

回复:快速取水器;
12.消火栓系统水平管道上的蝶阀平面图与系统图数量不一致,请明确以何为准。
答复:以平面图为准。
13.下图为五层卫生间,有一个蝶阀,请明确是否有误,若无误,请明确其管道。

回复:有误,删除。
14.管道穿地下室外墙设计说明中为柔性防水套管,平面图中为刚性防水套管,请明确以何为准。




回复:用刚性防水套管即可。
15.喷淋系统中多处管道无标注、管道有两个或两个以上规格,请明确其规格。




回复:配比管径局部有误的,按以下截图配比:

16.四层喷淋系统图无减压孔板,平面图有,请明确以何为准。
回复:以系统图为准。
17.下图中喷淋管道从何处引入,请明确路径图。

回复:这个本来就是住宅地块预留管道,只需要从室外接口接即可。
18.喷淋进户管阀门单体图为信号阀与水表,室外总图为两个闸阀与水表,请明确以何为准。


回复:是信号阀加水表。
19.消火栓进户管阀门单体图为闸阀与水表,室外总图为两个闸阀与水表,请明确以何为准。
回复:两个闸阀与水表。
20.请明确通气支管距顶板距离。

回复:通气管最高处贴梁底。
21.一层通气管支管系统图未见,请补充。
回复:卫生间详图有管径标注。
22.11FL-1~4出屋面管道规格与主管规格均不一致,请明确是否有误。

回复:改为与主管一致。
23.FL-2系统图出户管标注为DN100,立管为DN150、支管为DN150,出户管平面图标注为DN150,请明确以何为准,若以系统图为准,请明确主管及支管规格。


回复:管径为DN150。
24.FL-3系统图出户管标注为DN100,立管为DN75,出屋面管道为DN100,出户管平面图标注为DN100,请明确以主管规格是否有误,请明确主管规格。


回复:管径为DN100。
25.压力排水CCK-03出户管系统图标注为DN100平面图为DN80,以何为准,若以平面图为准,请明确其余管道规格。


回复:以系统图为准。
26.压力排水出户管穿地下室外墙、顶板套管系统图为柔性防水套管,平面图为刚性防水套管,请明确以何为准。

回复:刚性防水套管即可。
27.消火栓、喷淋管道室外管道型号给排水图纸与室外图纸不一致,请明确以何为准。


回复:出户管以室内说明为准。
28.地面散射型灌水器喷头1.0、1.5、2.0分别表示什么。

回复:分别代表旋转半径。
29.给水管道室内与室外规格不一致,请明确以何为准。


回复:出户管以室内为准,泵房内为DN80,按DN80计入。
30.屋面水表系统图为水流指示器,平面图为水表,请明确以何为准。


回复:笔误,是水表。
31.一层卫生间减压阀与系统图不一致,请明确以何为准。


回复:以系统图为准。
32.设计说明中污水管主管是否为立管,请明确。

回复:主管包括立管和横干管。
33.设计说明中阀门小于等于DN50的均采用截止阀,大于DN50均采用闸阀,厨房给水管道上DN65的阀门为截止阀,屋面水箱补水管上的阀门平面图为闸阀,请明确以何为准。



回复:管径小于等于DN50,用截止发,大于DN50用闸阀。
34.下图中Y型过滤器及截止阀平面图未见,请明确是否计入,若计入,是否按DN40计入。

回复:以系统图为准,按DN40计入。
35.厨房给水、热水、排水等是否不计入,仅预留接口。
回复:厨房仅预留接口即可。
36.回水管道系统图标注为DN20,平面图为DN25,请明确以何为准。


回复:按DN25计入。
37.回水循环泵上的阀门系统图为截止阀、平面图为闸阀,且系统图与平面图阀门数量及类型均不一致,请明确以何为准。


回复:以系统图为准,管径小于等于DN50,用截止发,大于DN50用闸阀。
38.请明确下图中截止阀规格。

回复:放空阀规格为DN40。
39.请明确下图中管道刷色油漆品种。

回复:环保防火油漆即可。
40.请明确下图中面漆品种。

回复:环保防火油漆即可。
41.请明确下图中乳白色漆品种。

回复:环保防火油漆即可。
42.请明确给水、消火栓、喷淋管道阀门材质、连接方式未见,连接方式是否同管道连接方式。
回复:是的。
43.灌溉管道过路保护管是否可采用镀锌钢管。
回复:可以。
44.下图中排水铸铁管埋地者冷底子油和后面未见文字,请明确;外墙明装UPVC给排水管是否仅刷防紫外线两道。

回复:是的。
45.生活泵房内管材未见,是否采用同单体给水管材一致,若不是请明确。

回复:是的。
46.生活泵房内阀门是否均采用法兰连接,若不是请明确。
回复:是的。
47.请明确热水系统、压力排水管道上止回阀型号,请明确。
回复:缓闭式止回阀即可。
48.下图中控制器16站、雨量传感器、电磁阀直埋控制线、止回阀、主管泄水球阀DN40、自动泄水阀平面图未见,请明确。

回复:喷灌控制系统,中标厂家还需要深化图纸; 投标单位综合考虑,自行报价,中标后不得调整。
49.AL1配电箱规格、安装高度未见,若为落地安装请明确其基础做法。
回复:挂壁安装,高度130cm(具体高度可根据现场情况调整)。
50.AL1配电箱各回路敷设方式不应为SCE/CC,请明确其具体敷设方式。

回复:室内部分在吊顶内敷设,屋顶部分沿女儿墙明敷设。
51.请明确L03地埋灯供电管道埋深。

回复:埋深70cm。
52.请明确下图中线缆配管的材质、具体型号、规格及安装方式。


回复:DN20不锈钢金属软管。
53.L04地埋灯安装节点图图未见,请补充。
回复:见灯具安装节点图

54.请明确下图中灯具名称、型号、节点图。

回复:LED抱箍灯 96W/套 AC220V 4000K IP65 光束角10度
安装高度:10米(立柱高点安装)
55.请明确下图中灯具名称、型号、节点图。

回复:同上。
56.平面图中开关电源除屋顶均安装在室内,在室内是否需要配置电源箱,若不需要请明确开关电源如何安装,若需要请明确室内、室外电源箱规格及安装高度。


回复:室内不需要电源箱,安装在吊顶内(需留检修口),室外需要电源箱20cm*30cm*15cm,安装在女儿墙上(就近灯具)。
57.AL1配电箱WL6回路电源开关至灯具平面图为5根线,系统图为4根请明确以何为准,若以系统图为准,请明确平面图如何计入(WL7回路情况相同)。
回复:以系统图为准。
58.L01灯具平面图有三种,图例表中标注有L=500、L=300这两种,请明确第三种规格。
回复:
59.AL1配电箱进线管线是否按亮化图纸计入。请明确。
回复:可以。
60.请明确下图中图例的名称以及安装方式;

回复:电动旁通阀。
61.请明确下图中自动排气阀规格是否是DN20。

回复:是。
62.空调循环水泵连接管道上阀门是以空调循环水泵剖面接管图为准还是冷热源系统原理图为准。


回复:以冷热源系统原理图为准。
63.请明确下图中截止阀的型号规格。

回复:截止阀DN32。
64.请明确电动挡烟垂壁的材质。
回复:卷帘式电动挡烟垂壁不然帆布材质。
65.请明确空调通风管道和新风通风管道风管厚度是中压系统还是低压系统。
回复:低压系统500pa以内。
66.请明确下图中空气源热泵机组重量是否为240kg。

回复:重量为40kg。
67.请明确空调冷冻水系统中DN100的管道材质。
回复:采用无缝钢管,氩电联焊焊接。
68.请明确空调水系统中阀门大于等于100的是否采用法兰连接。
回复:法兰连接。
69.地面散射型灌水器安装角度,平面图中并未体现,请明确如何区分。

回复:绿化中间区域是360;靠墙的为180和90的,主要是考虑不喷射至墙上,影响外墙的防水。
70.铝箔布及铝皮厚度未见,请明确。

回复:0.5mm厚即可,现在市面有带铝箔保护层的保温材料,这个相对便宜。
71.APZ1动力配电箱在平面图未见到,请补充
回复:在此位置

72.电气平面图五层的这个位置配电箱未标注,请补充。

回复:BG6
73.电气平面图负一层此处桥架没标注型号规格,请补充。

回复:此处为消防防火桥架,规格同主桥架。
74.电气平面图此处配电箱名称相同,是否有误?

回复:风机配电箱为5ATBF-CF。
75.消防弱电桥架的规格系统图与平面规格不一致,请明确。


回复:火警桥架调整为200x100。
76.火灾报警系统图中1825是否代表 输入输入模块?并增加消防设备图例及管线敷设要求。
回复:是


77.电梯配电箱及电梯控制柜在平面图中未见,请补充。
回复:已补充,

78.防火门监控平面图与系统图及图例不一致,请完善修改。
回复:已修改,图纸为常闭防火门
![]()


79.五层补充了一段消防桥架,接厨房事故风机的配电箱 。

80.地下室增加了三个泵配电箱,回路在图中圈出标注,配电系统图相应变更。




81.请补充成品值班室配电箱系统图。
回复:已补充

82.调整备用电源输出至APB箱和APB箱进线电缆规格。
答复:进线电缆调整为NH-YJY22-4x120-SC150-WC,FC,增加APB箱至备用电源电缆WDZN-YJY-4x120+1X70-CT/SC150-WC,CE
83.照明平面图中此处两种灯具图例中未标注型号规格,请补充。

回复:![]()
![]()
84.照明平面图中此处灯具图例中未标注型号规格,请补充。

回复:三基色单管日光灯,T5-1*28W(功率因数大于0.9),壁装距地2800mm.
85.照明平面图中此处灯具图例中未标注型号规格,请补充。

回复:防水防溅型自带电源事故消防照明灯,T5-1x28W(应急时间180min)
86.照明平面图中此处灯具图例中未标注型号规格,请补充。

回复:红外感应LED节能吸顶灯 功率为12W
87.远程智慧物联管理系统中WiFi智能温控器与空调控制开关是否重复。
回复:空调控制开关取消。

88.备用电源配电系统是否在本次招标范围内。
回复:不在本次招标范围内。
89.快速取水阀、电磁阀阀门箱基础、垫层做法未见,请在图纸上明确。

回复:C10混凝土垫层下铺碎石或者 卵石层,厚度100mm.
90.电磁阀控制线配管SC25防腐做法未见,请明确。

回复:钢管及钢配件外壁防腐采用GZ-2型高分子涂料按一层底漆,两层面漆做.
91.强弱电总平面图调整室外套管数量,调整后的数量具体如下:

92.室外电动车充电照明配电箱补充雨水浇灌控制箱电源回路,如下:
回复:补充雨水浇灌控制箱电源进线;补充雨水浇灌控制箱至电磁阀的控制线路径同雨水浇灌主管路由,穿线管规格为SC25,控制线规格详见水专业总图图例表.

93.设计说明中要求具有耐火极限要求的排烟风管应采用消防专用绝热玻璃棉包裹,请明确各部位排烟风管的耐火极限值。

回复:本工程防排烟风管仅为车库排烟风管,按0.5h计算耐火极限。

94.喷淋系统中喷头连接的竖向支管与水平管道连接处是否预留下喷接口,如需要预留下喷接口,请明确做法。
回复:需要,做法原管道三通改成四通,弯头改成三通,投标单位综合考虑,自行报价,中标后不得调整。
95.统一室外充电桩及路灯控制箱、门卫、电动门进线管材。
答复:统一调整为SC管。
96.补充路灯配电箱防护等级及安装方式。
答复:防护等级为IP65,落地安装。

97.补充道闸电源路由。
答复:引自APCD1配电箱。
98.消防控制室是否需增设图形显示装置。
答复:增加图形显示装置,与平面图统一。

99.EPS电源配电柜的设备基础做法。
答复:补充电源柜设备基础:

100.未见消防控制室内UPS电源规格
答复:UPS主机/30KVA,应急时间不小于180min。
101.火警系统图点位数量与平面图不符。
答复:根据平面调整火警点位及数量

102.未见负一层弱电进线间风扇电源。
答复:平面图补充风扇电源,调整开关规格。

103.未见负一层火警平面图中消防桥架规格,风机房内消防电话未接线。
答复:平面图补充消防桥架规格:消防设备用金属桥架,梁下100mm安装,尺寸:200x100mm;并补充排烟机房消防电话线 WDZN-RVS-2x1.0,SC15-WC,CC接至临近的消防桥架。
104.图中未见电气火灾监控及消防电源监控平面路由。
答复:补充电气火灾监控及消防电源监控平面,由消防控制室沿消防桥架至各配电箱:





招标人名称:合肥高新城创建设投资有限公司
地址:长江西路2221号
联系人:伍学进
联系方式:0551-65393637
招标代理:安徽诚信项目管理有限公司
地 址:合肥市滨湖新区南京路2588号(徽州大道与南京路交口)六楼
联系人:张工
联系方式:0551-66223672
2022年4月9日
三、附件
答疑发布日期:2022年04月09日
附件:2022BFGGZ00667-项目招标补疑1.pdf 附件:附件合肥高新区2022年第一批房建工程施工定稿及....zip