您现在的位置: 首页 >> 答疑变更 >> 安徽公共资源交易集团项目管理有限公司 >> 工程
一、原公告主要信息
原项目名称: 肥东县八斗镇南钟村安置点建设
原项目编号: 2021BFDGZ02334
原公告日期: 2021年10月20日
二、公告内容(更正事项、内容及日期等)
肥东县八斗镇南钟村安置点建设招标文件补疑
项目编号:2021BFDGZ02334
各投标人:
重要提示
1、人工费执行《关于贯彻执行2018版安徽省建设工程计价依据的通知》(合造价【2018】13号文)和《关于合肥市建设工程人工价格信息发布及计价应用工作的通知》(合造价【2021】8号)。其中定额人工费参与取费、取税,其相对于定额人工费增加的部分 31.79 元只计取税金。
2、本工程取费按“建筑工程取费标准”中“ 民用建筑 ”的费率计取;其中房屋建筑中挖或填土石方量大于5000m3的大型土石方工程,其企业管理费率8%、利润率8%,措施项目费率和不可竞争费率按房屋建筑工程相应费率乘0.6系数。
按业主要求,现对本项目招标工程量清单、最高投标限价编制作出如下补充:
第一部分 招标需求
一、招标范围:
项目分为1个标段,项目位于合肥市肥东县八斗镇陆还社区(南钟村),规划总用地面积约43.35亩,总建筑面积33673平方米,住宅建筑面积32062平方米,五保用房203平方米,配套(白事)用房200平方米,配电房153平方米,党群服务中心1055平方米。主要包括:1#~13#住宅楼、配电房、配套(白事)用房、五保用房、党群服务中心、场区内土方平衡、道路、排水、景观、绿化、室外安装等配套工程。
除特殊说明外,图纸设计范围内的所有内容,均按图计入。
(一)
建筑工程
1、土建工程:包含主体钢筋砼结构、二次结构工程、砌体工程、保温、散水、台阶、坡道、屋面、防水、钢梯、等图示建筑、结构所涉及到的土建范围全部在本次招标范围内。
2、装饰工程:包含室内外墙面、地面及顶棚装饰工程、门窗工程、栏杆、楼栋牌、单元牌、楼层牌、门牌号、竣工标识牌、成品信报箱等。装饰做法均按图纸设计计入。
(二)
安装工程
1、给排水工程:给水自水表后开始计取,排水计取至室外第一个井;五保用房及党群服务中心的卫生洁具按照图示计取;
2、消防工程:按照图示计取;
3、强电工程:自第一级动力箱开始计入;
4、弱电工程:按照图示计入;
5、智能化:按照技术规范书计入;
(三)
室外总体及附属工程
1、土石方工程:包含红线内场地平整土方、建筑基础土石方、室外排水土石方、景观土石方、场地土方平衡、室外安装土石方等。
2、绿化工程:土壤改良及苗木栽植养护等设计图纸范围内的所有内容。
3、景观工程:道路、铺装、景石、室外小品、景观亭、挡墙、公共设施等设计图纸范围内的所有内容。
4、排水工程:雨污水管道、检查井、雨水口、化粪池等设计图纸范围内的所有内容。
6、室外安装工程:
①室外供水及消防水工程:自市政水表井后开始计取
②室外电气工程:自照明配电箱开始计取
(四)
补充说明:图纸上已设计,但不计入本次招标范围的有:
1、
住宅楼电梯不在本次招标范围内。
2、
住宅楼卫生间洗漱台等其他设施不在本次招标范围内。
3、
住宅楼厨房灶台不在本次招标范围内。
4、
污水处理设施不在本次招标范围内。
5、
党群服务中心室外钢楼梯不在本次招标范围内。
6、
五保用房空调外机百叶不在本次招标范围内。
7、
太阳能基础不在本次招标范围内。
8、
配电房地沟、电缆沟、坡屋面保温不在本次招标范围内。
9、
图纸注明用户自理的不在本次招标范围内。
10、住宅楼的卫生洁具不在本次招标范围。
11、水表井及井内水表阀门件均不在本次招标范围
二、暂定项目:无。
(一)以下项目按照业主要求,以暂定工程量计入分部分项工程量清单,投标人综合考虑报价,标后按实际工程量结算。无
(二)以下项目按照业主要求,暂列金额为 300 万元,计入“ 土石方工程”单位工程,投标人应按招标人所列的金额计入投标总价。
(三)执行暂估价的材料、设备、专业工程及其金额如下:无
三、按项列入清单的内容,标后不予调整:
以下项目按照业主要求,按项计入,投标人自行踏勘现场,综合考虑报价,中标后不予调整。无
四、补充图纸及修改图纸的说明:
本工程在第一次发放图纸后,无补充图纸,具体详见图纸目录。
五、总承包服务费:详见招标文件。
六、温馨提示:投标人投标报价还须仔细阅读本项目招标文件,慎重报价。
1.
本工程采用商品砼和预拌砂浆。
2.
完全按照《合肥市住宅工程质量通病防治导则》、《合肥市绿化施工导则》及相关最新文件执行,费用包含在投标总价中,投标人综合考虑,标后不予调整。
3.
严格根据(合建质安监[2011]64号)文件执行,投标人必须在施工过程中,达到规范及验收要求,费用投标报价中综合考虑,施工过程中不得因连接方式不同、工艺调整等原因,提出影响造价的要求。钢筋接头按设计要求、清单中钢筋量已包含马凳筋、布管密集的地方设加强钢筋、阴阳角放射筋及其它施工规范要求的钢筋量,按现行最新规范设置,结算不调整。
4.
土方平衡总平面图的平整后土方标高与图纸设计室外标高可能存在偏差,此部分偏差由投标人自行踏勘现场,费用包含在投标总价中,投标人综合考虑,标后不予调整。
5.
所有的专家评审、专家论证费用,包含在投标总价中,投标人综合考虑,标后不予调整。
6.
施工单位中标后需无条件配合业主办理施工许可证直至竣工备案(含资料扫描费等)结束的一切相关手续所产生的费用,费用包含在投标总价中,投标人综合考虑,标后不予调整。
7.
室外给水、电管道的覆土厚度不满足规范要求,需按照相关规范采取保护措施,费用包含在投标总价中,投标人综合考虑,标后不予调整。
8.
投标报价除考虑临时设施费用外,还应考虑临时设施的拆除、及其拆除后建筑垃圾外运等费用,做到工程完工时“工完、料尽、场地清”。临时设施包括:施工现场的临时房屋及其基础、临时道路、场地硬化、临时围挡及其基础、塔吊等设备砼基础及其它为满足施工需要的临时建筑物和构筑物,费用包含在投标总价中,投标人综合考虑,标后不予调整。
9.
施工围挡满足安全文明施工要求,费用包含在投标总价中,投标人综合考虑,标后不予调整。
10.
所有与设备调试相关产生的人工、材料、机械等费用,费用包含在投标总价中,投标人综合考虑,标后不予调整。
11.
施工进场道路使用时可能未移交交警和城管等进行管理,需投标单位进行道路综合管理养护,包括但不限于道路清扫、洒水、维修、路口交通指挥、道路安全保障、夜间照明等;费用包含在投标总价中,投标人综合考虑,标后不予调整。
12.
供水、供电、燃气、三网、有线电视等附属单位进场施工,总包单位需无条件配合,包含土方回填及多余土方、垃圾的外运,二次施工、拆除、修补、封堵、开孔、开槽、清理、布管穿线、局部改造、室外交叉施工所导致的破复等为满足后期安装以及主管部门验收要求的全部整改,并及时提供临时材料堆放仓库、提供人货电梯、电源接引点等服务;总包单位不得以任何理由阻挠施工,不得以任何理由拒绝提供供水、供电、燃气、三网、有线电视等电源接引点,不得以任何理由拒绝提供临时材料堆放仓库,不得以任何理由拒绝提供人货电梯使用;中标人不得以为满足燃气、有线电视、电信等政府行业部门验收为理由办理任何签证。配合费及水电费包含在投标总价中,投标人综合考虑,中标后不予调整。
13.
室外综合管线及地下管线交叉较多、各投标人应综合考虑管线避让等技术处理措施引起的工程量变化,综合报价,中标后不得以此为由增加相关费用。
14.
基础不良地基、基础超挖换填处理费:基础开挖中如遇不良地基、基础超挖,需用C15商品混凝土填充,现场淤泥需要挖、翻晒、运等;不单独列项,投标人综合考虑,标后不予调整。
15.
水土保持水文监测包括但不限于水文监测、相关实验及验收,须满足国家法律法规、行业主管及相关部门要求和备案相关费用均包含在投标总价中,投标人综合考虑,标后不予调整。
16.
临时用水:临时用水接引至项目现场,管径不小于Φ80,满足总包单位及后期附属单位进场后的总用水量;费用均含管网建设费、增容费、破路、恢复、水表、管道、报装及内部接引等所有费用,费用还需包括开户、施工、一直到最终通水整个期间的一切费用;必须保证证件齐全、手续合法,其他见招标文件说明;施工用水按后期正式用水管径报装;此项费用投标人自行踏勘现场,熟悉招标资料,该项费用不再单独列项,投标人投标报价时需考虑该部分风险,此部分费用综合考虑在投标报价中,中标后不予调整。
17.
临时用电:临时用电设置变压器;投标人报价时需考虑管线铺设、项目完成后的拆除、涉及管道沿线铺设的场地复原及青苗补偿、报装费等相关费用,相关的设施需进行安全防护;本施工项目结束后其相关设备、配套杆、电缆等的残值归投标人所有;此项费用投标人自行踏勘现场,熟悉招标资料,该项费用不再单独列项,投标人投标报价时需考虑该部分风险,此部分费用综合考虑在投标报价中,中标后不予调整。
18.
市政道路开道口与小区出入口位置的协调及处理、新旧道路接头处理:投标单位自行踏勘现场,报价包含市政开道口申报费用、拆除清理费用、与小区出入口连接、绿化移植恢复等费用;此项费用投标人自行踏勘现场,熟悉招标资料,该项费用不再单独列项,投标人投标报价时需考虑该部分风险,此部分费用综合考虑在投标报价中,中标后不予调整。
19.
沟塘淤泥清运、积水排水、苗木迁移等费用:含沟塘淤泥清运、积水排水、苗木迁移,树根、水井、菜地、坟地、苗木处理等,此项费用投标人自行踏勘现场,熟悉招标资料,该项费用不再单独列项,投标人投标报价时需考虑该部分风险,此部分费用综合考虑在投标报价中,中标后不予调整。
20.
清障、建筑物基础破除清运等费用:含施工便道、施工围挡、清障、现状道路破除、建筑物基础破除清运、建筑垃圾清运、拆迁垃圾清运等;此项费用投标人自行踏勘现场,熟悉招标资料,该项费用不再单独列项,投标人投标报价时需考虑该部分风险,此部分费用综合考虑在投标报价中,中标后不予调整。
21.
雨污排水管与市政接口连接:投标单位自行踏勘现场,雨污水管与市政管网的连接、疏通费用(含道路破除申报、破除、恢复等费用);此项费用投标人自行踏勘现场,熟悉招标资料,该项费用不再单独列项,投标人投标报价时需考虑该部分风险,此部分费用综合考虑在投标报价中,中标后不予调整。
22.
管道砼加固、保护处理费用:在车道及停车位下管顶覆土小于0.7米,在人行道下小于0.6米时进行加固处理,基础做法参见图纸或相关验收规范,此项费用投标人自行踏勘现场,熟悉招标资料,该项费用不再单独列项,投标人投标报价时需考虑该部分风险,此部分费用综合考虑在投标报价中,中标后不予调整。
23.
井盖座高度统一调整与加固费用:室外所有检查井包括供电、自来水表井、燃气井等统一调整高程与井口周边加固,此项费用投标人自行踏勘现场,熟悉招标资料,该项费用不再单独列项,投标人投标报价时需考虑该部分风险,此部分费用综合考虑在投标报价中,中标后不予调整。
24.
预留洞口封堵、防水处理费:含各种管道及所有穿楼板管道、电梯安装预留洞、门洞口等封堵、防水处理、微膨胀细石混凝封堵、预埋套管(套管中间焊接10cm宽防水环),配合各分包单位(含水、电、气等)二次开孔、封堵、防水处理、微膨胀细石混凝土封堵,及对原状的破坏及恢复,垃圾清运等全部工作,满足防火构造及防火封堵要求。此项费用投标人自行踏勘现场,熟悉招标资料,该项费用不再单独列项,投标人投标报价时需考虑该部分风险,此部分费用综合考虑在投标报价中,中标后不予调整。
第二部分 :设计文件及技术补充说明
(一)
共性问题
1.
土方开挖及回填的弃置点、取土点、运距及渣土费如何考虑?现场土方是否全部外运?用于基础回填的土方是否堆放在现场?运距按多少公里考虑?
回复:(1)本项目工程量清单土方按土方平衡方案计算,不考虑外运;场地土方平衡另需外借10000方土(包括绿化种植、堆坡造型土方等),其中铺装、道路工程部分回填至底层施工面,压实度须符合图纸及规范要求。
(2)本项目最高投标限价土方运距按3km计算,投标人应自行踏勘现场并结合项目周边取土点情况以及管理部门相关要求,综合考虑报价,费用包干,中标后不予调整。
(3)本项目土方运输中产生的涉及土源费、保洁费及相关管理部门收取的管理费等所有费用均由投标人自行考虑并含在投标报价中,中标后不得已任何理由提出索赔。
2.
楼号牌、楼层牌、单元牌、门牌、竣工牌是否计入?
回复:计入
楼牌号:材质:铝板;型号:高560宽460厚1.5,黑色背景金色字体。
单元牌:材质:铝板;型号:高150宽360厚1.5,黄色背景黑色字体。
楼层牌:材质:铝板;型号:高300宽200厚1.5,黄色背景黑色字体。
门牌号:材质:铝合金;型号:宽150高90厚1.5,背景为红色或黄色,字体黄色或深咖啡色金色字体。
竣工铭牌:材质:2.0钛镁合金板;型号:高600宽800厚2,图案丝网印刷,3mm铝板电脑切割立体字,烤漆。
3.
本工程是否按照《合肥市住宅工程质量通病防治导则》、《合肥市绿化施工导则》及相关最新文件执行?
回复:是
4.
本工程完全按照钢筋(合建质安监[2011]64号)文件规定及相关最新文件执行?
回复:是的
5.
电梯轿厢是否设置防护,如设,请明确做法?
回复:电梯不在本次招标范围内,门洞砖砌墙封死,装饰做法同楼梯间
6.
Φ6钢筋是否按φ6.5计入?
回复:按照φ6.5计入
7.
请明确坡屋面梁、板是否抗渗?
回复:抗渗等级P6
8.
智能化工程量如何计入?
回复:按技术规范书计入
(二)
个性问题
住宅土建
1.
结构图和建筑图中一层节点大样2不一致,且一层对应位置为钢质门,请明确以哪个图纸为准。
回复:以建筑为准
2.
如图,门厅顶部梁仅横轴方向梁顶标高增加0.3m,纵轴方向未增加标高,此处节点在纵轴方向是否考虑修改高度至梁顶。
回复:是
3.
建施图中未见节点14,图纸标准是否有误。
回复:详见节点图14节点
4.
建施图说明中明确厨卫砌体墙采用煤矸石实心砖,做法是否可以参考地下部分填充墙做法。
回复:是的
5.
外墙窗洞下压顶结构图和建筑图中说明不一致,请明确以哪个为准。
回复:以建筑为准
6.
墙身防水反坎建施图中有两处说明,且说明不一致,请明确以哪个为准。
回复:卫生间外墙、开敞阳台外墙、出屋面砖砌墙体的房间根部做墙等宽C30细石混凝土防渗反梁,高300;厨房卫生间内墙设C20砼墙垫,高150
7.
墙身防潮层在建施图中有两处说明,且说明不一致,请明确以哪个为准。
回复:以上面这个为准
8.
墙体不同材料交接处钢丝网片宽度具体为多少?钢丝网片规格是多少?请明确。
回复:采用钢丝直径4mm,网孔150*150mm,,搭接宽度300mm
9.
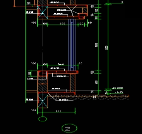
电梯井内壁是否抹灰,若抹灰,请补充做法。
回复:不抹灰
10.
电梯基坑外壁是否做防水,若做,请补充做法。
回复:做防水,做法详见电梯大样图。
11.
外凸线脚滴水线是否采用成品滴水线,或砂浆粉鹰嘴角,请明确
回复:砂浆粉鹰嘴角
12.
北侧外露空调板顶、板底及侧面装饰做法是否参考建施图中节点?
回复:参照建施图中节点
13.
雨棚顶面、底面、侧面装饰做法是否参考建施图中节点4做法。
回复:参照建施图中节点4做法
14.
南侧空调板顶、板底装饰做法是否可以结合建施图中节点大样3,参考外墙2做法,请明确。
回复:外墙2做法
15.
铝合金百叶窗中铝合金厚度多少,请明确
回复:壁厚为1.5的方管铝合金百叶
16.
预埋空调套管材质未见,请明确
回复:PVC套管
17.
排烟道出屋面做法具体采用图集16J916-1第 29页哪个?
回复:采用C系列防倒灌风帽,风帽型号C-FD-500
18.
块料楼梯面层在做法表中说明“二层及以下”和砂浆楼梯面层在做法表中说明“二层以上”。块料踏步是否包括二层至三层踏步。请明确
回复:不包括二层到三层的踏步
19.
入库门厅内墙面采用外墙1做法还是内墙3做法,请明确
回复:入口门厅是外墙1做法
20.
装饰做法表中楼梯间墙面砂浆是否在楼梯间和人流通道钢丝网砂浆面层加强中砂浆面层基础上再增加砂浆面层
回复:是的
21.
本项目电梯为无机房电梯,机房内爬梯是否不考虑布置
回复:不考虑
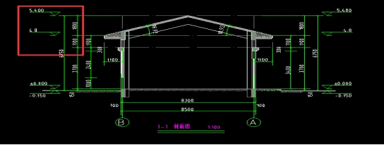
22.
屋面1和屋面2中屋面板混凝土标号不一致,屋面板是否均为抗渗混凝土
回复:均采用P6抗渗混凝土
23.
屋面检修孔是否设置盖板,若设置,请补充做法+
回复:不考虑盖板,由业主后期自行处理
24.
屋顶此房间做法未见,请明确
回复:同楼梯间做法
25.
屋面楼梯间顶部是否为太阳能基础?且太阳能基础是否仅四个角设置基础?基础柱高度多少?基础断面尺寸多少?
回复:不需要考虑太阳能的基础。可以直接放在平屋面上面。
26.
隔热层装饰做法未见,请明确
回复:天棚清水模板,地面1:3水泥砂浆楼地面,墙面1:3水泥砂浆墙面
(三)
党群服务中心
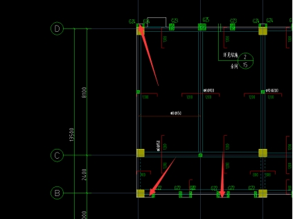
1.
请明确截图箭头处节点做法。
回复:按15页节点2标高7.2米位置上部挑板及砌体,尺寸参照建筑图。
2.
请明确党群服务中心外墙做法。
回复:同住宅楼,节能按说明做法。
3.
请明确办公室地面及值班室装饰做法。
回复:同会议室。
4.
请明确卫生间吊顶高度及铝方板规格。
回复:高度2200mm,300×300×0.6铝合金扣板。
5.
请明确卫生间、退台防水反梁砼强度等级。
回复:C25。
6.
坡道做法详见12J003图集第A5页节点A,图集未明确具体选用哪个坡道,请明确.
回复:同住宅楼。
7.
请明确门厅上平屋面做法。
回复:同坡屋面做法(不含瓦)。
8.
请明确楼梯踏步做法。
回复:按此做法
。
9.
请明确单元牌、楼层牌、竣工牌等材质、数量。
回复:楼层牌3块、竣工牌1块、门牌16块;材质同住宅楼。
10.
请明确卫生间洗刷台面材质?
回复:20厚啡网纹石材台面。
11.
建筑图总说明五第2条与平面图备注第4条对于雨蓬或空调板的做法不一致,以何为准?
回复:以平面图第4条为准。
12.
请明确滴水线材质。
回复:成品塑料滴水线。
(四)
附属用房
配套(白事)用房
1.
配套(白事)用房结构图与建筑图轴网上下进深距离不一致,请确认。
回复:以建筑图为准。
2.
请明确内墙、天棚白色涂料饰面做法。
回复:一底二涂白色涂料。
3.
请明确外墙做法。
回复:同住宅楼,节能按说明做法。
4.
不同材料交接处是否要做加强带钢丝网,若加钢丝网请明确规格。
回复:镀锌钢丝网眼目规格不大于20x20,钢丝直径不小于1.0,固定钢钉间距不大于300mm。
5.
请明确楼牌、竣工牌材质、数量。
回复:楼牌一块、竣工牌一块,材质同住宅楼。
6.
请明确滴水线材质。
回复:成品塑料滴水线。
7.
建筑说明五“屋面工程”与节能说明坡屋面保温厚度不一致,以何为准。
回复:按节能说明65mm厚计算。
五保用房
1.
五保用房用房结构图与建筑图轴网上下进深距离不一致,请确认。
回复:以建筑图为准。
2.
C1616窗尺寸门窗表与大样图及平面图不符,以何为准?
回复:以大样为准。
3.
厨房卫生间四周墙体设C20砼墙垫,与说明不符?
回复:按C25。
4.
不同材料交接处是否要做加强带钢丝网,若加钢丝网请明确规格。
回复:镀锌钢丝网眼目规格不大于20x20,钢丝直径不小于1.0,固定钢钉间距不大于300mm。
5.
请明确起居室内墙面、顶棚涂料具体做法。
回复:一底二涂白色涂料(含卫生间墙裙以上部分)。
6.
请明确外墙做法。
回复:同住宅楼,节能按说明做法。
7请明确楼牌、门牌、竣工牌材质、数量。
回复:楼牌1块、门牌7块、竣工牌1块;材质同住宅楼。
8.
建筑说明中卫生间顶棚、内墙面加设防水砂浆找平层与装修做法表不一致,以何为准?
回复:以装修做法表为准。
9.
请明确滴水线材质。
回复:成品塑料滴水线。
10.
请明确卫生间、厨房天棚面层做法以哪张图纸为准。
回复:以五保用房卫生间、厨房施工图2021923(1)为准(有吊顶)。
11.
请明确卫生间、厨房内墙面面层做法以哪张图为准。
回复:以五保用房卫生间、厨房施工图2021923(1)为准。
12.
请明确卫生间、厨房面层规格、材质
回复:10厚300*600抛光砖,高度2700mm。
13.
请明确洗手台及梳妆镜规格、材质。
回复:按照五保用房卫生间、厨房施工图2021923(1)计算,梳妆镜采用8mm防水镜。
14.
请明确厨房成品低柜材质。
回复:实木复合板,20厚烧结型人造石台面
15.
请明确厨房面砖粘结层做法。
回复:同卫生间墙面。
16.
请明确厨洗菜盆规格尺寸。
回复:824*550mm成品304不锈钢洗菜盆。
配电房
1.
建筑1-5立面图,与2-2破面图不一致,以何为准?
回复:以建筑图1-5立面图为准,其他结构标高相应调整
2.
门窗表与大样不符,以何为准?
回复:以大样为准。
3.
请明确防盗网材质。
回复:金刚网。
4.
请明确沙门纱窗材质
回复:均采用塑料纱窗。
5.
请明确外墙做法。
回复:同住宅楼无保温外墙做法。
6.
内墙是否需要批腻子?
回复:刮两遍成品腻子,底漆一遍,面漆两遍。
7.
结构图与建筑图尺寸不符,以何为准。
回复:进深以建筑标注的尺寸为准。
8.
散水、坡道图集使用与实际不符,图集是否有误。
回复:同主楼做法
9.
配电房中请明确防雨水百叶材质
回复:材质同主楼防雨水百叶(深灰色铝合金百叶)。
10.
请明确楼牌、竣工牌材质、数量。
回复:楼牌一块、竣工牌一块,材质同住宅楼。
11.
请明确地面防水是否考虑上翻?
答复:上翻300mm。
12.
请明确滴水线材质。
回复:成品塑料滴水线。
室外工程
一、
绿化工程
1.
请明确成活养护期、保存养护期?
回复:养护等级为一级,成活养护期1个月,保存养护期为3月,日常养护20个月。绿化种植需保证成活率为100%,投标人报价综合考虑,中标后不予调整。
2.
请明确乔、灌木、地被色带、草坪等基肥用量?
回复:乔、灌木每树穴要施0.5kg基肥,草坪、地被色带基肥用量0.25kg/㎡。
3.
绿化种植是否需要换土?
回复:绿化种植区域种植土需掺15%泥炭土,厚度1m。
4.
草坪、地被10%粗砂改良土壤透气性,请明确10%粗砂计算基数。
回复:草坪、地被种植土需掺10%粗砂改良土壤透气性,厚度30cm。
5.
苗木表中地被、草坪等工程量无法计算,香樟经计算为42棵,图纸为39棵,是否按照苗木表工程量计入?
回复:苗木、草坪、地被工程量均按苗木表计入。
6.
树木支撑如何考虑?
回复:乔、灌木按照四角树棍桩支撑。
二、
景观工程
1.
请明确围墙是否在本次招标范围,若在,需提供平面图及做法。
回复:不在。
2.
请明确本次道路范围。
回复:划线部分为本次沥青道路范围,详见下图。
3.
请明确如何区分车行铺装与人行铺装?
回复:划线部分为车行铺装,详见下图
4.
请明确划线车位尺寸及具体做法。
回复:5.3*2.4m,热熔标线,线宽0.2m
5.
请明确停车位植草砖内是否需要种植绿化。
回复:不需要。
6.
请明确停车位50厚烧结砖收边为何种类型烧结砖?
回复:按50透水砖收边计算。
7.
请明确路缘石材质。
回复:所有路缘石统一按600X300X120厚芝麻灰花岗岩计入。
8.
请明确现状古井如何处理?
回复:标注错误,应为300X300X30厚芝麻灰荔枝面花岗岩;现状古井位置在9#楼西北侧,上做成品木质仿古亭,木质仿古亭6.76㎡,材质防腐木。具体参照下图
9.
请明确图中分界处材料材质、规格。
回复:300X300X30厚芝麻灰荔枝面花岗岩,余同。
10.
请明确图中箭头处是否均为平路牙?
回复:是,余同。
11.
请明确树池尺寸如何选用?
回复:4个3000mm,1个2100mm,位置详见下图。
12.
请明确绿化苗木表工程量是否已包含花钵绿化?
回复:已包含。
13.
请明确河岸置石规格、材质、数量?
回复:散置河石,大景石20块,中景石20块,小景石20块,规格参照下图。
14.
请明确挡土墙底部是否设置砖砌排水明沟?
回复:不设置。
15.
请明确挡土墙具体选用号?
回复:FJA3。
16.
请明确挡土墙是否设置扩展基础?
回复:不设置扩展基础,仅设置C15砼垫层。
17.
请明确石材栏杆材质?
回复:花岗岩。
18.
真石漆下是否有腻子基层
回复:外墙腻子,满批两遍
三、
排水工程
1.
党群服务中心雨污水图纸中未见与市政雨污水井连接管,请明确雨污水排出如何考虑?
回复:污水管按图计入;雨水管排出至市政或其它室外检查井连接管道按d300 30m计算。
2.
雨水口连接管材质是否为Ⅱ级钢筋混凝土承插口管?
回复:是。
3.
图中箭头处是否为水封井?若是,请明确水封井与污水井连接管材质、管径。
回复:水封井,参照图集04S519-39页CS-1,与污水井连接管管径DN200,u-pvc管道。
4.
排水管道回填是否均为素土回填?
回复:道路下面采用百分之四灰土(利用现场开挖土方直接拌合),绿化下面采用素土回填,压实系数及高度详见06MS201-1总说明5.1.2条。
5.
请明确雨污水检查井直径。
回复:管道≤d300采用φ700的井,d400管道采用φ800的井,d500管道采用φ1100的井,d600管道采用φ1300的井,d800管道采用φ1500的井。
6.
请明确化粪池具体型号。
回复:2#化粪池改为5#化粪池M5-12QSF,10#化粪池M10-40QSF,11#化粪池M11-50QSF,12#化粪池M12-75QSF。
7.
景观图纸与雨污水图纸均有雨水口做法,以何为准?
回复:以雨污水图集做法为准。
注:此补疑视同招标文件的组成部分,与招标文件具有同等法律效力。
招标人:肥东县八斗镇人民政府
地 址:八斗镇人民政府(八斗镇合蚌路)
联系人:谢工
电 话:0551-67889520
招标代理机构:安徽诚信项目管理有限公司
地 址:合肥市滨湖新区南京路2588号(徽州大道与南京路交口)六楼
联系人:张工
电 话:0551-66223937;66223831
2021年10月20日
三、附件
答疑发布日期:2021年10月20日