您现在的位置: 首页 >> 答疑变更 >> 安徽公共资源交易集团项目管理有限公司 >> 工程
一、原公告主要信息
原项目名称: 萧县凤城医院建设
原项目编号: 2021BFWGZ02044
原公告日期: 2021年09月14日
二、公告内容(更正事项、内容及日期等)
萧县凤城医院建设补疑7
项目编号:2021BFWGZ02044
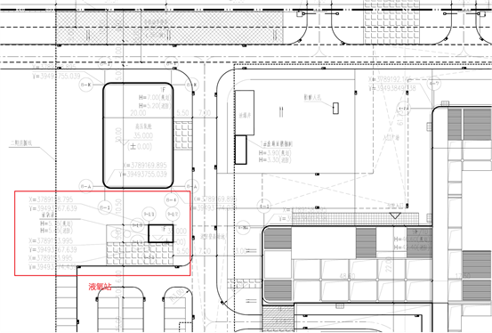
1、建筑-A01_总平面图DF中液氧站位于场地西北角高压氧舱南侧,基坑支护图纸中液氧站位于西南角污水处理站侧旁,两张图中位置不同,是否应以总平图为准?
建筑-A01_总平面图DF:

基坑支护图:

答:详见萧县凤城医院建设补疑6。
2、文件2021BFWGZ02044补疑1中提到精装修区域不在本次招标范围
内,提供的文件中未见精装修范围图(如下图),请确认精装修区域是如何划分的。

答:精装修及二次深化区域详见 “精装修及二次深化区域.rar”(随本补疑同步发放),请用AutoCAD打开,有明确区域标注,此区域图以外房间的装饰在本次招标范围。
3、萧县凤城医院建设补疑 1第76页26条:
![说明: C:\Users\Administrator\AppData\Roaming\Tencent\Users\576203819\QQ\WinTemp\RichOle\((5KUCBJ9MV[~N}0K]6_A%N.png](/uploadfile/46213d43-8f05-4808-b3be-ee10dc5495d3/20210930183002265004.jpg)
中明确自动灭火装置按暂估价计入,而分部分项工程量清单计价表和专业工程暂估价计价表中均未见厨房自动灭火装置,请明确厨房自动灭火装置在那个单体,暂估价格为多少?
答:补遗1中此条款取消,厨房自动灭火装置在本次招标范围内,中标人按照厨房二次设计要求施工,不单独列项,费用综合在医疗综合楼-气体灭火系统的各分部分项工程量清单中,投标人综合考虑报价,标后不予调整。
注:此补疑视同招标文件的组成部分,与招标文件具有同等法律效力,请投标人及时下载。
招标人:萧县泰合投资有限公司、萧县重点工程建设管理中心
地 址:宿州市萧县凤北新区龙腾大道西侧凤北新苑2号楼、安徽省萧县龙凤大道南侧
邮 编:235200
联系人:肖工、张工
电 话:0557-2280008
招标代理机构:安徽诚信项目管理有限公司
地 址:合肥市滨湖新区南京路2588号(徽州大道与南京路交口)六楼
邮 编:230000
联系人:张工
电 话:0551-66223283
2021年9月30日
三、附件
答疑发布日期:2021年09月30日