您现在的位置: 首页 >> 答疑变更 >> 安徽公共资源交易集团项目管理有限公司 >> 工程
一、原公告主要信息
原项目名称: 合肥四水厂迁建工程10kV、六水厂提升改造工程35kV双电源外电施工及厂区、泵站内配电设备安装工程施工
原项目编号: 2021BFFGZ01494
原公告日期: 2021年07月14日
二、公告内容(更正事项、内容及日期等)
合肥四水厂迁建工程10KV、六水厂提升改造工程35KV双电源外电施工及厂区、泵站内配电设备安装工程施工
项目补疑1(项目编号:2021BFFGZ01494)
各投标人:
按招标人要求,现对本项目招标工程量清单、最高投标限价编制作出如下补充:
第一部分:招标文件修改
1、本项目招标文件招标公告中3.3 项目经理资格要求修改为:投标人拟委任项目经理须具备机电工程专业一级注册建造师资格,具备有效的安全生产考核合格证书,且目前未在其他项目上任职或虽在其他项目上任职但本项目中标后能够从该项目撤离。
2、本项目计划工期为180日历天。
第二部分:招标需求
一、招标范围:
合肥四水厂迁建工程10KV、六水厂提升改造工程35KV双电源外电施工及厂区、泵站内配电设备安装工程施工项目共 1 个标段。包括:
(一)
安装工程:外电电缆、排管、工井、厂区高低压设备安装等;
(二)
道排工程:厂区内外沥青道路及混凝土道路破复、市政沥青道路及人行道破复、侧石破复、雨污水管井破复等;
(三)
绿化工程:乔灌木及草皮破复等,养护等级为一级,养护期二年,其中成活养护期一个月,保存养护期三个月,日常管理养护期二十个月;
(四)
大型土石方工程:包括挖、填、运、内倒、外弃等,取土点、弃土点不指定,施工场地有限,清单控制价按随挖随运,回填土全部外借考虑,工程量包死。投标单位应对现场进行详细深入勘查,并考虑现状可能发生的变化,超挖部分所产生的超挖、回填、运弃土等全部费用由中标人自行承担,实测工程量,自行考虑土方挖填平衡及运距。所有费用含在投标报价中(投标报价应包含土源费、弃土场费用、办理渣土证及渣土外运等相关行政许可手续并承担相关费用、城市道路卫生清扫保洁费用等一切可能发生的相关费用),慎重报价,中标后不得以任何理由调整价格;
图纸上已设计,但不计入本次招标范围的有:厂区低压出线内容、建施补图中除灭火器以外的其他内容。
二、暂定项目:
(一)以下项目按照业主要求,以暂定工程量计入工程量清单,投标人综合考虑报价,标后按实际工程量结算。
无。
(二)本项目暂列金额为 200 万元(含税),其中 100 万元(含税),计入四水厂道排工程, 100 万元(含税),计入六水厂道排工程,投标人应按招标人所列的金额计入投标总价。
(三)执行暂估价的材料、设备、专业工程及其金额如下:
1、材料的名称、规格型号、金额,无;
2、设备的名称、规格型号、金额,无;
3、专业工程名称、工程内容、金额,无;
4、发包人供应材料、工程设备的采购、保管费,控制价中不再另行计取费用,投标人在总报价中综合考虑此费用,投标人还应综合考虑安装费、可能的预留预埋、辅材费、总包配合费、沟通协调及货物材料延期到货以及由总包中标人承担的工作内容等涉及或产生的一切费用,涉及或产生的费用不再单独列项,投标人在投标报价中综合考虑,上述费用中标后不得以任何理由要求增加。
甲供材明细表:
1、四水厂
吸水井及二级泵房:
| 序号
|
项目名称
|
| 1
|
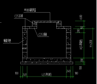
10kV开关柜
|
| 2
|
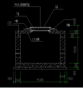
低压配电柜
|
| 3
|
变频器柜(带旁路柜)10KV 560kW
|
| 4
|
变频器柜(带旁路柜)10KV 800kW
|
| 5
|
直流屏
|
| 6
|
模拟屏
|
| 7
|
变压器SCB13-1000kVA 10/0.4kV
|
| 8
|
电力监控柜
|
| 9
|
电力电缆YJV-10-3*70
|
| 10
|
电力电缆YJV22-10-3*70
|
| 11
|
电力电缆YJV-1-2*4
|
| 12
|
控制电缆KVVP-4*4
|
| 13
|
控制电缆KVVP-4*2.5
|
| 14
|
控制电缆KVVP-4*1.5
|
| 15
|
控制电缆KVVP-8*1.5
|
| 16
|
控制电缆KVVP-10*1.5
|
| 17
|
控制电缆KVVP-14*1.5
|
| 18
|
控制电缆KVVP-16*1.5
|
| 19
|
10KV封闭母线桥1250A
|
| 20
|
低压密集型母线槽~380V,2500A/4P
|
| 21
|
低压密集型母线槽~380V,2500A/5P
|
| 22
|
电力监控系统设备及材料
|
巢湖水源厂泵站:
| 序号
|
项目名称
|
| 1
|
10kV开关柜
|
| 2
|
低压配电柜
|
| 3
|
变频器柜(带旁路柜)10KV 800kW
|
| 4
|
直流屏
|
| 5
|
模拟屏
|
| 6
|
变压器SCB13-315kVA 10/0.4kV
|
| 7
|
电力监控柜
|
| 8
|
电力电缆YJV-10-3*70
|
| 9
|
电力电缆YJV-1-2*4
|
| 10
|
控制电缆KVVP-4*4
|
| 11
|
控制电缆KVVP-4*2.5
|
| 12
|
控制电缆KVVP-4*1.5
|
| 13
|
控制电缆KVVP-8*1.5
|
| 14
|
控制电缆KVVP-10*1.5
|
| 15
|
控制电缆KVVP-14*1.5
|
| 16
|
控制电缆KVVP-16*1.5
|
| 17
|
电力监控系统设备及材料
|
2、六水厂
35kV变电所:
| 序号
|
项目名称
|
| 1
|
35kV开关柜
|
| 2
|
6kV开关柜
|
| 3
|
6kV电容器柜
|
| 4
|
低压配电柜
|
| 5
|
直流屏
|
| 6
|
模拟屏
|
| 7
|
变压器SCB13-16000kVA 35/6.3kV
|
| 8
|
电力监控柜
|
| 9
|
电力电缆YJV-6-3*70
|
| 10
|
电力电缆YJV-6kV-3*95
|
| 11
|
电力电缆YJV22-6kV-3*95
|
| 12
|
电力电缆YJV22-6kV-3*120
|
| 13
|
电力电缆YJV22-6kV-3*300
|
| 14
|
电力电缆YJV-35kV-3*240
|
| 15
|
电力电缆YJV-1-2*4
|
| 16
|
控制电缆KVVP-4*4
|
| 17
|
控制电缆KVVP-4*2.5
|
| 18
|
控制电缆KVVP-4*1.5
|
| 19
|
控制电缆KVVP-6*4
|
| 20
|
控制电缆KVVP-8*1.5
|
| 21
|
控制电缆KVVP-10*1.5
|
| 22
|
控制电缆KVVP-12*1.5
|
| 23
|
控制电缆KVVP-14*1.5
|
| 24
|
6KV母线桥
|
| 25
|
6kV铜母排
|
| 26
|
35kV铜母排
|
| 27
|
电力监控系统设备及材料
|
吸水井及二级泵房:
| 序号
|
项目名称
|
| 1
|
低压配电柜
|
| 2
|
变频器柜(带旁路柜)
|
| 3
|
电力电缆YJV-6-3*70
|
| 4
|
控制电缆KVV-16*1.5
|
提升泵房及臭氧池一期:
| 序号
|
项目名称
|
| 1
|
6kV负荷开关柜
|
| 2
|
低压配电柜
|
| 3
|
模拟屏
|
| 4
|
变压器SCB13-2000kVA 6/0.4kV
|
| 5
|
电力电缆YJV-6kV 3*120
|
| 6
|
低压密集型母线槽~380V,4000A/5P
|
提升泵房及臭氧池二期:
| 序号
|
项目名称
|
| 1
|
6kV负荷开关柜
|
| 2
|
低压配电柜
|
| 3
|
模拟屏
|
| 4
|
变压器SCB13-1250kVA 6/0.4kV
|
| 5
|
电力电缆YJV-6kV 3*95
|
| 6
|
低压密集型母线槽~380V,2500A/5P
|
提升泵房及臭氧池三期:
| 序号
|
项目名称
|
| 1
|
6kV负荷开关柜
|
| 2
|
低压配电柜
|
| 3
|
模拟屏
|
| 4
|
变压器SCB13-1250kVA 6/0.4kV
|
| 5
|
电力电缆YJV-6kV 3*95
|
| 6
|
低压密集型母线槽~380V,2500A/5P
|
三、按项列入工程量清单的内容,标后不予调整:
无
四、补充图纸及修改图纸的说明:
本工程在第一次发放图纸后,有补充图纸,具体详见图纸目录。
五、总承包服务费:
详见招标文件。
六、温馨提示:投标人投标报价还须仔细阅读本项目招标文件,慎重报价。
1、水电接引费用,由投标人自行踏勘现场,综合考虑在报价中,清单不单独列项。
第三部分:设计文件及技术补充说明
一、
安装共性问题
1、
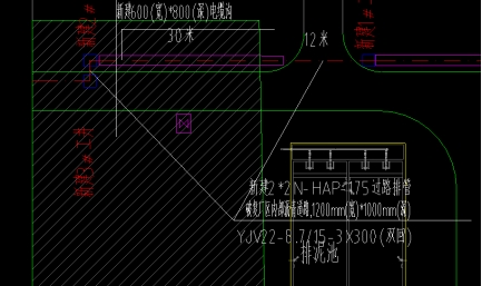
外线图纸中电缆标识牌的规格及数量不详,是否参照“六水厂10kV正式用电”图纸中的300*220规格,绑扎于电缆头下方计入?
回复:是。
2、
平面图中电缆标志桩数量不详,请明确。
回复:按材料表数量计入。
3、
各规格排管埋深不详,是否均参照“六水厂10kV正式用电”图纸中的排管断面图计入?
回复:是。
4、
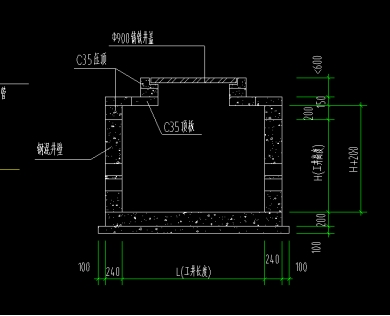
工井示意图中,标注“包封排管主筋深入井壁300”,但排管大样图中,排管保护层及排管之间均采用素混凝土,两者不符,是否以排管大样图为准?若采用钢筋混凝土,请修改排管大样图。
回复:以排管大样图为准。
5、
排管保护层做法四水厂外线图纸与“六水厂10kV正式用电”图纸不同,以何为准?
回复:统一按四水厂外线图排管断面图为准。
6、
1*2、3*4、4*8排管断面图不详,请补充。
回复:参照四水厂外线图的2*2及2*4排管断面图计入。
7、
φ160、φ200规格的CPVC管,壁厚均为6mm,是否有误?
回复:无误。
8、
φ175、φ200规格的N-HAP管,壁厚均为4.5mm,是否有误?
回复:无误。
9、
φ175、φ200规格的MPP拉管,壁厚均为14mm,是否有误?
回复:无误。
10、
各平面图电缆工程量与材料表不符,如何考虑?
回复:以平面图为准,另需增加预留工程量,单根电缆每处转角预留2.5m,每处中间接头预留15m。
11、
二级泵房内变频器柜及电机是否计入本次范围?若计入,是否也按甲供材计入?
回复:电机不计入本次范围内,变频柜(含旁路柜)计入,主材甲供。
12、
泵房控制室内的UPS及PLC是否计入本次范围?
回复:不计入。
13、
图纸中的电缆拆除及电缆迁改,是否按电缆继续利用考虑?
回复:拆除后的电缆放在指定位置,电缆迁改按照新建计入。
14、
本次涉及到的泵房,其中的灭火器是否计入?
回复:计入。灭火器布置见补充的建施图。
15、
高低压柜槽钢基础是否计入?
回复:计入。
二、
安装个性问题
(一)
六水厂
16、
35kV外线图纸中,新建19#、20#工井之间的排管规格不详,是否按2*4MPPφ200拉管计入?
回复:是的。
17、
永青变电站内标注的3处“原工井”,是否按现状工井考虑?
回复:这3处均按新建工井6m*2m*1.9m计入。
18、
材料表中包含2台35kV开关柜(永青变扩建间隔),若这两台开关柜计入本次招标范围,请提供开关柜的系统图。
回复:参照六厂35kV变电站系统图内的开关柜订货图5H柜和8H柜图纸。
19、
材料表中的管道迁改、井拆除修复等内容在图纸中没有体现,是否计入?
回复:计入。工程量按材料表计入,管道迁改的工作内容按管道拆除及管道安装考虑,投标人自行勘察现场,综合考虑施工方案,经业主认可后,方可施工,所有费用计入报价,中标后不予调整。
20、
引自永青变电站的电缆,在变电站内的长度不详,请明确。
回复:按100m计入。
21、
接至取水泵房的电缆,在泵房内的长度不详,请明确。
回复:按30m计入。
22、
外线平面图中电缆中间接头位置不详,请明确。
回复:单根电缆中间接头按8处计入,设置于工井中。
23、
六厂“10kV正式用电线路路径图(二)”中,部分位置电缆沟未标注新建,是否按现状电缆沟考虑?
回复:35kV变电站至新建1#工井之间的排管及电缆沟全部按照现状内容考虑;新建1#工井至取水泵房之间的排管及电缆沟全部按照新建内容考虑。现状电缆沟盖板长度均按500mm考虑。
24、
六厂“10kV、6kV线路迁改路径图”中,厂区内电缆沟及排管均标注为“现状电缆沟”,是否有误?若有新建电缆沟及新建排管,请明确范围及尺寸。
回复:六厂“10kV、6kV线路迁改路径图”中的电缆沟及排管,均按现状内容考虑。
25、
六厂“10kV、6kV线路迁改路径图”中,避雷器、新立水泥杆规格不详,请明确。
回复:HY5WS2-17/50、高度12m 梢径φ190。
26、
35kV变电站图纸中,变压器室的金属网护栏是否计入本次范围?
回复:计入。
27、
35kV变电站系统图中,105G-P1、116G-P1两路电缆为3*120规格,电缆走向表中对应电缆为3*95规格,两者不符,以哪一项为准?
回复:以系统图为准。
28、
35kV变电所内的301~308G开关柜标注为二级泵房改造内容,是否计入本次范围?
回复:计入。
29、
1期、2期提升泵房内灭火器数量不详,请明确。
回复:同3期提升泵房灭火器数量。
(二)
四水厂
30、
四水厂外线平面图中,电缆规格为ZRYJV22-10-3*400,但四水厂吸水井及二级泵房图纸中,高压柜进线电缆规格为ZRYJV-10-3*70,两者不符,以哪一项为准?
回复:以外线图为准。
31、
引自义城变电站的电缆,在变电站内的长度不详,请明确。
回复:按100m计入。
32、
四水厂吸水井及二级泵房系统图中,包含接至反冲洗泵房变压器的回路,反冲洗泵房内两台变压器是否计入本次范围?高压柜至反冲洗泵房电缆是否计入本次范围?
回复:计入,高压柜至反冲洗泵房电缆见补充的电施图。
(三)
巢湖水源厂
33、
平面图中新建工井的尺寸不详,材料表中共包含3种尺寸的新建工井,且总数与平面图符合,是否按材料表对应尺寸的工井计入?
回复:按材料表对应尺寸计入。
34、
平面图中拆井恢复的数量与材料表不符,以哪一项为准?
回复:以平面图为准。
35、
水源厂新立水泥杆规格不详,请明确。
回复:按照高度12m 梢径φ190计入。
36、
水源厂外线图纸中,部分工井标注为拟建工井,是否按现状井计入?
回复:按新建工井计入。
37、
取水泵站的电力监控系统内容不详,请明确。
回复:取水泵站电力监控系统图同四水厂吸水井及二级泵房电力监控系统图。
三、
市政共性问题
38、
请明确下图所示各类指示牌的材质及厚度,且经现场踏勘,下列指示牌是否均为施工期间临时使用,等施工结束后均需拆除。
回复:材质采用优质铝板,厚度为2.5mm,均为临时施工使用,施工结束后拆除。
39、
请明确如下图所示交通标志线的做法规格。
回复:按20cm宽热熔标线计入。
40、
请明确:①彩色道人行道的具体做法及面砖材质;②市政沥青道路的具体做法;③平侧石的具体规格材质及做法,工程量是否仅为图纸所示新建排管破复。
回复:①参照下图做法:
;②市政沥青道路做法:4cm细粒式AC-13C;SBS改性乳化沥青粘层,用油量0.5kg/㎡;6cm细粒式AC-20C;SBS改性乳化沥青粘层,用油量0.5kg/㎡;8cm粗粒式AC-25C;乳化沥青透层、下封层,用油量1.0kg/㎡;34cm5%水泥稳定碎石基层;20cm3%水泥稳定碎石底基层;路基压实(压实度≥94%);③平侧石按C30混凝土预制,尺寸
,每块长0.69m计入,侧石靠背采用C20混凝土现浇,做法参
。破复包含新建排管、新建各类工井、拉管工作面等所有破复,各工程量均按量表计入,投标单位应对现场进行详细深入勘查,综合考虑现状可能发生的变化,并办理相关手续,慎重报价,中标后不予调整。
41、
请明确老厂区沥青道路破损路段基层及底基层处理,是否按维修面积全部铲除新建,并明确原路面及新建路面的基层、面层具体做法。
回复:按全部面积铲除新建,各工程量均按量表表中面积计入,厂区内部沥青路面破复做法均如下:
4cm细粒式AC-13C;SBS改性乳化沥青粘层,用油量0.5kg/㎡;
8cm粗粒式AC-25C;乳化沥青透层、下封层 ,用油量1.0kg/㎡;
34cm5%水泥稳定碎石基层;20cm3%水泥稳定碎石底基层;路基压实(压实度≥94%)。
42、
如下图所示,部分大样中显示手工井为双层井盖,且注明为五防井盖,请明确本项目井盖做法是否一致。
回复:所有井盖均为单层宽边五防球墨铸铁井盖,井内设置防坠网。
43、
请提供工井盖板厚度及配筋信息。
回复:250厚,三级钢φ16@200双层双向。
44、
请明确防水砂浆抹面厚度。
回复:井内壁抹灰,20mm厚。
45、
转弯电缆井是否按图示尺寸计入。
回复:是。
46、
请明确手孔井井壁及底板混凝土等级是否均为C35,并明确内壁是否需要同工井做防水砂浆抹灰。
回复:是,垫层均为C25。
47、
是否工井、手孔井及电缆沟支架均参下图所示注释做法。
回复:是。
48、
请明确量表中铸铁井盖井座工程量是否各类新建工井的井盖,若不是,请明确其规格及做法、部位。
回复:是,铸铁井盖均为各类新建工井井盖井座。
49、
请明确:①雨水管道及其基础的具体做法;②污水管道及其基础的具体做法;③雨、污水检查井及各类阀门井、水表井、路灯手孔井、通信手孔井的具体做法。
回复:①采用承插式钢筋混凝土管(Ⅱ级),管径以图纸为准,基础做法详见06MS201-1 P11,中粗砂基础;②同①;③雨、污水检查井按图集06MS201-3P12、P21,井盖为φ700球墨铸铁宽边五防井盖,垫层混凝土等级为C25,其余均为C35;阀门井按图集05S502-16,水表井按图集05S502-43,路灯手井做法参照下图(尺寸见图纸),通信手孔井做法参照图集YD 5178-2017-T第84页(尺寸见图纸)。
各工程量均按量表计入,投标单位应对现场进行详细深入勘查,包含土方挖、运、弃等所有费用,综合考虑,慎重报价,中标后不予调整。
四、
市政个性问题
(一)
六水厂
50、
请明确下图所示,C35修复灌注路面厚度。
回复:C35混凝土厚22cm,基层按级配碎石厚20cm。
51、
请明确下图所示此段需破复厂区内绿,请明确内部绿化的苗木种类、规格及工程量,是为铲除新建,还是原绿化迁移,等施工后迁回,若为迁移,是否有指定位置。
回复:厂区内绿化为上木为广玉兰,高度400-450cm、胸径15cm,15株;下木为马尼拉草坪,300㎡,均为铲除后新建。
52、
请明确下图所示电缆沟的具体结构及抹面做法,及对应材质、规格尺寸。请明确排水管的材质及工程量如何确定。
回复:
,图示尺寸为800*800mm,具体尺寸以图纸标注为准,做法参照以上图纸,其中垫层为C25,沟壁为C35,盖板采用高强度无机复合盖板,板宽500mm,支架间距2m,排水管不计。
53、
请明确下图所示破除厂区内部沥青道路工程量如何考虑,并明确其具体做法。
回复:上图所示白线指引位置,按1200mm宽度考虑,具体做法如下:
4cm细粒式AC-13C;SBS改性乳化沥青粘层,用油量0.5kg/㎡;
8cm粗粒式AC-25C;乳化沥青透层、下封层,用油量1.0kg/㎡;
34cm5%水泥稳定碎石基层;20cm3%水泥稳定碎石底基层;路基压实(压实度≥94%)。
54、
请明确下图所示如图所示两处是否涉及沥青道路破复。
回复:此处破复按总长117m,宽1m计入。
55、
请明确10kv用电中手孔井规格尺寸。
回复:按2.0*2.0*1.9m计入。
56、
请分别明确下图所示上木、下木绿化迁移的苗木种类、规格及工程量,是均为铲除新建,还是均为原绿化迁移,等施工后迁回,若为迁移,是否有指定位置,工程量是否按量表计入。
回复:上木分别为冬青30株(高度600-650cm,胸径15cm)、红叶石楠球20株(高度150cm,蓬径150cm)、广玉兰10株(高度600-650cm,胸径15cm);下木为马尼拉草坪400㎡;均为铲除新建。
(二)
四水厂
57、
请分别明确下图所示下木绿化迁移的苗木种类、规格及工程量,是均为铲除新建,还是均为原绿化迁移,等施工后迁回,若为迁移,是否有指定位置。
回复:绿化均按下木马尼拉草坪计入,工程量以量表为准,全部铲除新建。
58、
经踏勘现场,是否有乔木锯枝,若有,请明确其具体位置,及乔木种类、规格、工程量。
回复:有,即巢湖水源厂图纸中电源点新立两附杆位置;上木为法梧2株(高度700-800cm,胸径20cm,锯一半)、冬青4株(高度300-350cm,胸径15cm,铲除),下木为阔叶麦冬约80㎡(铲除)。
59、
经踏勘现场,有一处井盖被公交站台座椅覆盖,是否需将座椅拆除重建,若需要,请明确其规格、材质。
回复:施工后按原样恢复,投标人自行踏勘现场,办理相关手续,综合考虑,谨慎报价,中标后不得调整,清单控制价中按规格150cm*40cm*45cm,材质采用防腐实木和铁艺框架计入,数量为2座。
招标人名称:合肥供水集团有限公司
地址:合肥市瑶海区屯溪路70号
联系人:杨林宁
联系方式:0551-64422826
招标代理:安徽诚信项目管理有限公司
地 址:合肥市滨湖新区南京路2588号(徽州大道与南京路交口)六楼
联系人:张工
联系方式:0551-66223672
2021年7月15日
三、附件
答疑发布日期:2021年07月15日