您现在的位置: 首页 >> 答疑变更 >> 安徽公共资源交易集团项目管理有限公司 >> 工程
一、原公告主要信息
原项目名称: 蜀山区第四批交通拥堵治理改造工程施工B标
原项目编号: 2021BFSGZ01296
原公告日期: 2021年06月24日
二、公告内容(更正事项、内容及日期等)
蜀山区第四批交通拥堵治理改造工程施工B标
招标文件补疑1
(项目标段编号:2021BFSGZ01296)
各投标人:
(1)
本项目控制价已随本补疑一同发放。
(2)本项目开标时间延期至2021年7月20日11时0分,投标文件递交截止时间为2021年7月29日11 时0分。开标地点为合肥市滨湖新区南京路2588号要素交易市场A区(徽州大道与南京路交口)3楼 8号开标室。
(3)重要提示等其它说明如下:
重要提示
1、人工费执行《关于贯彻执行2018版安徽省建设工程计价依据的通知》(合造价【2018】13号文)。其中定额人工费参与取费、取税,其相对于定额人工费增加的部分 / 元只计取税金。
2、本工程取费按“ 市政 工程取费标准”中“ 道路、排水、桥涵专业 ”的费率计取;其中挖或填土石方量大于5000m3的大型土石方工程,其企业管理费率8%、利润率8%,措施项目费率和不可竞争费率按市政工程相应费率乘0.6系数。
按业主要求,现对本项目招标工程量清单、最高投标限价编制作出如下补充:
第一部分:招标需求
一、招标范围:
本项目分为1个标段,包含:金寨路与屯溪路交口延伸段(金寨路与绩溪路交口)、长江西路与西二环交口改造。
金寨路与屯溪路交口延伸段(金寨路与绩溪路交口)位于金屯立交南侧,设计范围为金寨路与绩溪路交口以及绩溪路(肥西路-金寨路)及延伸段,道路全长1090.439米,现状红线宽24~34米,为城市支路。改造内容包含道路、排水、交通设施、路灯、绿化及其附属设施等提升改造工程。
长江西路与西二环交口改造为长江西路与西二环交口及其延伸段,改造内容包含道路、排水、交通设施、路灯、绿化及其附属设施等提升改造工程。
单位工程包括:
1)
金寨路与屯溪路交口延伸段(金寨路与绩溪路交口):
(一)
土石方工程:主要包括各专业土石方填方、挖方、借方。
(二)
道路工程:主要包括路基、路面、侧石、人行道铺装层、盲道等。
(三)
排水工程:设计范围内的雨水、污水等。主要内容包含沟槽开挖、回填、管道安装、检查井、雨水口、排水附属工程等设计图纸的所有内容。
(四)
交通工程:主要包括标线、标志牌、交通信号控制系统、监控设施系统、电子警察系统、手井、管线系统等。
(五)
照明工程:主要包括设计图纸范围内管线铺设、基础(含接地、基础预埋铁件等)、灯杆灯具安装、穿线管、电缆、手井、安装、调试等全部内容。
2)
长江西路与西二环交口改造:
(一)
土石方工程:主要包括各专业土石方填方、挖方、借方。
(二)
道路工程:主要包括路基、路面、侧石、人行道铺装层、盲道等。
(三)
排水工程:设计范围内的雨水、污水等。主要内容包含沟槽开挖、回填、管道安装、检查井、雨水口、排水附属工程等设计图纸的所有内容。
(四)
交通工程:主要包括标线、标志牌、交通信号控制系统、监控设施系统、电子警察系统、手井、管线系统等。
(五)
照明工程:主要包括设计图纸范围内管线铺设、基础(含接地、基础预埋铁件等)、灯杆灯具安装、穿线管、电缆、手井、安装、调试等全部内容。
(六)
绿化工程:主要包括树池砌筑、苗木栽植及养护等内容。
二、暂定项目:
(一)以下项目按照业主要求,以暂定工程量计入分部分项工程量清单,投标人综合考虑报价,标后按实际工程量结算:无
(二)以下项目按照业主要求:暂列金额为 100 万元,列入金寨路与屯溪路交口延伸段(金寨路与绩溪路交口)道路工程其他项目清单中招标人部分,投标人应按招标人所列的金额计入投标总价。
(三)执行暂估价的材料、设备、专业工程及其金额如下:
1、材料的名称、规格型号、金额;无
2、设备的名称、规格型号、金额;无
3、专业工程名称、工程内容、金额;无
上述明细投标人应按招标人所列的金额计入投标总价。
三、按项列入清单的内容,标后不予调整:
以下项目按照业主要求,按项计入,投标人自行踏勘现场,综合考虑报价,中标后不予调整。无
四、补充图纸及修改图纸的说明:
本工程在第一次发放图纸后,有补充图纸,清单控制价是按照业主提供最终整理版本的图纸进行编制的,详见图纸目录。
五、总承包服务费:无。
六、温馨提示:投标人投标报价还须仔细阅读本项目招标文件,慎重报价。
1、红线外作业面占用:本项目建设单位不提供临时用地,投标人现场勘察后在投标报价中自行考虑,中标后不予调整。
2、水电接引(含报装费、自备电源):接引方案必须经有关部门同意后才可以实施;包含变压器购买、架设及报装以及与供电、供水部门协调开通、下火、线路架设、管道铺设、拆除等与之相关的一切费用,清单控制价不再单独列项,标后不予调整。
3、现状保留利用排水管、检查井及出水口清淤、疏通:设计范围内保留的管道及排水检查井等排水设施疏通清淤(上下游200米)等,清单控制价不再单独列项,标后不予调整。
4、交口管线沟通:新建管线均需与沿线道路交口原有路灯管线沟通,清单控制价不再单独列项,标后不予调整。
5、交通配合及交通管制费:该项目需向市大建办办理施工期间交通组织疏导工作,包含报批、封路、协助交警安排专人交通疏导、临时信号灯、围挡等安全设施,清单控制价不再单独列项,标后不予调整。
6、第三方检测费:包含标线完工后工程质量、安全、功能等第三方检测、交通设施完工后工程质量、安全、功能等第三方检测,及信号、电子警察、监控等子系统的第三方检测费用及户外壁挂式机箱等设备质量、安全、功能等性能的第三方检测费用,清单控制价不再单独列项,标后不予调整。
第二部分:设计文件及技术补充说明
一、共性问题
1、土方工程:投标人应自行勘察现场,充分考虑弃土场费、土源费、保洁费、渣土费、协调费、清表、修建运输通道及地下障碍物等费用,以及市容、路政、环保部门征收的一切费用,综合考虑在报价中,后期一律不予调整,同时必须满足合肥市文明创建及防治扬尘污染相关规定。土方和垃圾外运运距、渣土费、保洁费、弃土场及证件办理等所有一切费用,投标人需踏勘现场后在投标报价中综合考虑,中标后不予调整。
二、个性问题
(一)金寨路与屯溪路交口延伸段(金寨路与绩溪路交口)
1、道路工程
(1)施工图设计说明要求“在“白加黑”前需对现状机动车道水泥路面的病害进行处理:断板处理、裂缝处理、局部修补及处理、补铺水泥砼部分处理等”,请分别明确“断板处理、裂缝处理、局部修补及处理”工程量。
答复:根据板块检测报告,错台处理0.291㎡、板角修补2.25㎡、接缝料重灌0.03㎡、坑洞修补134.5㎡、条块状修补242㎡、板块破损修补56.6㎡、裂缝处理7.3㎡;板底注浆(聚合物)按9610㎡控制。
(2)
依据“道路破除恢复平面图”计算“机动车道(新建、破除硬化)”面积约663.80m2,而“金寨路与屯溪路交口延伸段(金寨路与绩溪路交口)-道路工程数量表”提供的工程量8627.5m2,二者差距较大,机动车道(新建、破除硬化)与白改黑路面加铺沥青面层工程量是否存在重复?请予以明确。
答复:《道路破除恢复平面图》依据路面检测报告确定,现状水泥路面段,新建、破除硬化机动车道面积8700平方米,白加黑7004.4平方米。现状沥青路面段,铣刨、加铺面积12431.5平方米。
(3)
由于“金寨路与屯溪路交口延伸段(金寨路与绩溪路交口)-道路工程数量表”中“路面挖除”、“40cm车行道级配碎石路床”工程量与“机动车道(新建、破除硬化)”相关,请予以明确。
答复:机动车道挖除、新建时应先回填40cm级配碎石作位路床,再新建路面结构。
(4)
请明确“金寨路与屯溪路交口延伸段(金寨路与绩溪路交口)-道路工程数量表”中“路面挖除”的结构及其厚度。
答复:按22cm水泥砼路面、40cmcm水稳碎石底基层计算。
(5)
人行道抬升、人行道翻新,现状人行道面层是否按拆除考虑?
答复:是。
(6)
金寨路与屯溪路交口延伸段(金寨路与绩溪路交口)-道路工程数量表中的“树池盖板增设”是否应按图号道路-01-01树池大样图对现状树池进行增设并安砌树池石?
答复:是。
(7)
施工范围内的现状侧石是否按全部拆除更换考虑?
答复:是。
(8)
请明确金寨路与屯溪路交口延伸段(金寨路与绩溪路交口)-道路工程数量表中的“现状下面层、基层(必要处理)”具体做法。
答复:详见道路-13-水泥混凝土板块处理大样图 图号道路-13-06-07。
2、排水工程
(1)排水平面图中W1、W2流水高程或现状路面高程有误?流水高程甚至高出现状路面工程,请予以明确。
答复:已调整。
(2)
排水设计总说明沟槽回填采用6%灰土或素土,由于本次W1~W2位于交口部位且数量较少,其沟槽采用级配碎石回填合适?
答复:沟槽回填材料调整为级配碎石,详见“排水-01-02-03:沟槽回填示意图”。
(3)
排水设计说明雨水口连接管包管加固与 砼管包管断面的包管厚度及砼强度等级不一致,请予以明确。

答复:以砼包管大样图为准。
(4)
排水工程材料表中双篦雨水口、多篦雨水口采用标准图号皖16S518-P27、P28均为混凝土支座是否合适?是否应采用标准图号皖16S518-P12、P13?
答复:图集调整为16S518-P12、P13。
(5)
图号排水07-01-01“双箅及多箅雨水口加固构造图”雨水口规格尺寸与采用图集不符,加固图纸为720*180,而图集双箅为1450*380、多箅为2225*380,请重新提供双箅及多箅雨水口加固构造图。
答复:已调整。
(6)
请明确现状检查井井筒提升砌筑材料品种、规格、强度等级及砂浆强度等级、配合比以及井筒提升平均高度。
答复:井筒提升平均高度100mm,采用C25细石混凝土填筑,详见“排水-06-01-01:检查井加固图”。
(7)
排水工程材料表中“现状检查井井筒提升、井座加固及更换井盖”雨水工程86座、污水工程80座。请分别明确位于车行道现状雨污水检查井井筒提升、井盖座更换为宽边防沉降井盖座及周围加固工程量;位于人行道及绿化带现状雨污水检查井井盖座是否保留利用仅考虑井筒提升?如是,请提供位于人行道及绿化带现状雨污水检查井数量。
答复:机动车道雨水检查井46座,污水检查井40座,现状为宽边防沉降井盖,本次设计利用原井盖,现状检查井均需井筒提升、井座加固;人行道雨水检查井40座,污水检查井40座,更换为隐形井盖,现状检查井均需井筒提升、井座加固及更换井盖。
(8)
请提供隐形井盖数量,并明确隐形井盖规格。
答复:雨、污水井盖共80座。电力井井盖共63座;弱电井井盖共120座;给水井井盖共52座;燃气井井盖共20座;热力井井盖共15座。井盖规格均为700*700。
(9)
请明确排水工程数量表“排水管道修复200m”规格及相关施工工艺及技术要求。
答复:管道修复按破除新建处理,管径按d600、管材为II级钢筋混凝土,采用开挖施工,基础采用180度砂石基础,参见06MS201--1P11;接口采用橡胶圈接口,选用06MS201-1P23。
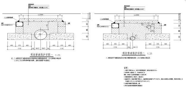
(10)
请明确排水工程数量表“管线保护400m”的管线保护类型及保护结构图。
答复:管线保护调整为200m;燃气50m、给水50m、弱电50m、路灯线50m。管线保护参见下图。
(11)
请明确排水工程数量表“管线迁改600m”的管线迁改类型及相关技术要求。
答复:燃气迁改250m、给水迁改100m、弱电迁改250m。
燃气管材采用焊接钢管,管径DN200,采用180度中粗砂回填,回填图集参见06MS201-2-P54。给水管材采用球磨铸铁管,管径DN200,壁厚采用K9系列,采用180度中粗砂回填,回填图集参见06MS201-2-P54。弱电管材采用PE管,15孔,采用180度中粗砂回填,回填图集参见06MS201-2-P54。
(12)
排水工程数量表中其它工程中的“现状其他检查井井筒提升、井座加固及更换井盖(包括供水、弱电、电力、燃气、热力等其他管线)”570座是否需全部需进行井座加固及更换井盖?如不是,请分别明确井座加固及更换井盖数量?
答复: 570座检查井均需井筒提升、井座加固及更换井盖。机动车道电力井65座,人行道电力井63座;机动车道弱电井140座,人行道弱电井120座;机动车道给水井60座,人行道给水井52座;机动车道燃气井10座,人行道燃气井20座;机动车道热力井25座,人行道热力井15座。产权单位自行提供井盖。
3、
交通标志标线工程
(1)
请明确单柱圆形标志结构是否同单柱三角形标志结构。
答:是。
(2)
请明确标志牌的厚度是多少。
答:8m2以下标志牌厚度为2mm,8m2及以上标志牌厚度为3mm。其中1*2.3标志牌厚度为3mm。
(3)
请提供下图四牌单杆杆件大样图。并明确限速标牌、禁停标牌的直径是否为φ600mm。
答:下部杆件净空高度2.5m,杆件上部高度为标牌直径之和,标牌的直径为φ600mm。杆件做法详见:单柱并杆标志结构设计图。
(4)
请提供下图三牌单杆杆件大样图。并明确标牌的直径是否为φ800mm。
答:下部杆件净空高度为2.5m,杆件上部高度为标牌直径之和。标牌的直径为φ800mm。杆件做法详见:单柱并杆标志结构设计图。
(5)
请明确三级诱导牌160×160×5立杆的高度是多少。
答:参考单柱并杆标志杆件。诱导牌下部杆件净空高度为2.5m。
(6)
请提供三级诱导牌砼基础大样图及基础材料数量表。
答:参考单柱并杆标志杆件基础大样图。
(7)
请明确交通杆件基础回填土材料。
答:级配碎石回填。
(8)
请提供原有交通标志标牌杆件中需迁移杆件的类型、数量、规格;需移位再利用的杆件的类型、数量、规格。并提供移位再利用杆件的砼基础大样图。
答:迁移及拆除工程量详见下表,杆件基础详见设计图 。
(9)请明确此项费用是否记取。
答:不计。
(10)请提供标线铣刨工程量。
答:200m2。
(11)请明确停车诱导屏是否有箱柜?
答:有,箱柜(抱杆)。
4、交通监控
(1)绩溪路上平面图中有40个手工井,材料表中为54个,请问以何为准?
答:实际手孔井个数为41座
(2)请明确交通信号手孔井的混凝土强度等级。
答:C30素混凝土
(3)材料表的意思是否为PE63工程量为800m,过路钢管为800m?
答:改造现场无过路钢管,仅考虑PE63工程量(长江西路情况相同)
(4)请提供绩溪路上需迁移及拆除的内容及工程量?
答:迁移及拆除工程量详见下表,杆件基础详见设计图 。
| 杆件迁移工程量统计
|
||||
| 序号
|
类型
|
数量
|
规格
|
备注
|
| 1
|
人行信号灯
|
3套
|
基础规格详见 结构-09
|
灯盘、杆件利用,基础新建
|
| 2
|
单立柱式车行灯
|
2套
|
基础规格详见 结构-10
|
灯盘、杆件利用,基础新建
|
| 交通设施拆除工程量统计
|
|||
| 序号
|
类型
|
数量
|
备注
|
| 1
|
现状电警/卡口
|
3套
|
含摄像头、杆件及基础拆除
|
| 2
|
现状监控
|
20套
|
含摄像头、杆件及基础拆除
|
(5)二级停车诱导屏、三级停车诱导屏屏电源从哪里接入?电缆型号,长度是多少?电缆敷设方式是什么,是否穿管?若穿管,管道的管径、规格、材质是什么?
答:二级停车诱导屏、三级停车诱导屏:电源接入点为绩溪路与肥西路交口、绩溪路与金寨路交口信号机柜,电缆与沿线监控共用,型号为YJV5*6,在原金寨路与绩溪路交口交通、信号管线清单的工程量基础上新增长度200米,利用本次设计的穿线管穿线,不新增穿线管工程量
5、照明工程
(1)绩溪路原路灯全部拆除,拆除路灯的工程量为多少
答:30套
(2)绩溪路上路灯全部重建,所有新增工程量是否按照材料表中计入?
答:是
(二)长江西路与西二环交口改造
1、道路工程
(1)依据“道路破除恢复平面图”计算“机动车道(新建、破除硬化)”面积约1896.78m2,而“长江西路与西二环交口改造施工图-道路工程数量表”提供的工程量20004.7m2,二者差距较大,机动车道(新建、破除硬化)与机动车道(铣刨、加铺)沥青面层工程量是否存在重复?请予以明确。
答复:路面铣刨面积16453.0平方米, 3514.0平方米老路破除、新建路面。
(9)
请明确“长江西路与西二环交口改造施工图-道路工程数量表”中“路面挖除”的结构厚度。
答复:按4+6+8cm沥青面层、36+20cm水稳基层及40cm灰土路床量计算。
(10)
人行道抬升、人行道翻新,现状人行道面层是否按拆除考虑?
答复:是。
(11)
现状侧石是否全部按拆除更换考虑?
答复:是。
2、排水工程
(1)排水设计说明雨水口连接管包管加固与 砼管包管断面的包管厚度及砼强度等级不一致,请予以明确。

答复:以砼包管大样图为准。
(2)
图号排水07-01-01“双箅及多箅雨水口加固构造图”雨水口规格尺寸与采用图集不符,加固图纸为720*180,而图集双箅为1450*380、多箅为2225*380,请重新提供双箅及多箅雨水口加固构造图。
答复:已调整,详见附图。
(3)
请明确现状检查井井筒提升砌筑材料品种、规格、强度等级及砂浆强度等级、配合比以及井筒提升平均高度。
答复:井筒提升平均高度100mm,采用C25细石混凝土填筑,详见检查井加固图。
(4)
请提供隐形井盖数量,并明确隐形井盖规格。
答复:雨、污水井盖共35座。电力井井盖共20座;弱电井井盖共20座;给水井井盖共20座;燃气井井盖共20座;热力井井盖共20座。井盖规格均为700*700。
(5)
请明确排水工程数量表“管线保护200m”的管线保护类型及保护结构图。
答复:燃气100m、给水100m。管线保护参见下图。
(6)
请明确排水工程数量表“管线迁改150m”的管线迁改类型及相关技术要求。
答复:弱电迁改150m。弱电管材采用PE管,采用180度中粗砂回填,回填图集参见06MS201-2-P54。
(7)
排水工程数量表中其它工程中的“现状其他检查井井筒提升、井座加固及更换井盖(包括供水、弱电、电力、燃气、热力等其他管线)”530座是否需全部需进行井座加固及更换井盖?如不是,请分别明确井座加固及更换井盖数量?
答复:位于机动车道上的100座检查井均需井筒提升、井座加固及更换井盖,产权单位自行提供井盖。
3、交通标志标线工程
(1)请明确此反光膜用于何处。
答:粘贴在南侧停车位标线附近路灯灯杆,见平面图说明。
(2)请提供限时段停车位标志单柱式杆件的大样图及杆件基础大样图。
答:参照单柱矩形标志结构设计图,下部杆件净空高度为2.5m,杆件上部高度为标牌直径之和。
(3)请提供防撞桶的规格尺寸、材质。
答:直径65cm,高度85cm,橡胶或者塑料材质。
(4)请明确交通杆件基础回填材料。
答:级配碎石。
(5)请明确标志牌的厚度是多少。
答:8m2以下标志牌厚度为2mm,8m2及以上标志牌厚度为3mm。其中1*2.3标志牌厚度为3mm。
(6)
请明确护栏种类,并提供护栏大样图。
答:大样图参见金寨路与屯溪路交口延伸段(金寨路与绩溪路交口)人行护栏大样图 道路-25-01-01。
(7)请提供原有交通标志标牌杆件中需迁移杆件的类型、数量、规格;需移位再利用的杆件的类型、数量、规格。并提供移位再利用杆件的砼基础大样图。
答:迁移并再利用杆件为:F杆指路标志2处、路名牌移位1处。规格及砼基础参考大样图。
(8)
请明确交通标志工程量表中此项工程量是否有误?
答:此项内容不计入本次招标范围。
(9)
此标志牌,单柱式工程量为3套,附着式工程量为4套。
4、
交通信号及监控
(1)请提供长江西路平面图中需拆除哪些内容,请提供拆除内容的工程量?
答:交通监控杆件移位2处(基础新建参照结构-08-02-03 交通监控大样图)、L杆信号灯杆件1处(10m)(基础新建参照结构-09-02-03 信号灯杆件大样图)、立杆信号灯移位2处(基础新建参照结构-08-02-02 机动车信号灯大样图);拆除交通监控杆件2处、电子警察杆件2处、信号灯立杆2处(拆除后信号灯再利用,安装到监控杆上)。具体位置见平面图,其中新建电警杆件未淡显(代替旧杆件的作用)。电警/卡口:拆除4套,迁移再利用3套,新建安装5套(材料表中有);频闪灯和爆闪灯迁移再利用合计16套。
(2)交通信号手孔井的具体规格?
答:如图
具体参照绩溪路与金寨路交口手井大样图,预制井混凝土标号为C30素混凝土。
5、
照明工程
(1)本次照明工程是否仅计入路灯迁移工程?
答:是,原道路路灯迁移至业主指定位置后灯具及灯杆重新利用
(2)材料表中的工程量是为迁移过程中新增的工程量?这些工程量是否按照材料表计入?
答:是。
(3)明确路灯迁移后新建路灯基础做法
答:路灯基础参照绩溪路路灯基础;基础尺寸为1500x700x700,采用C25商品砼.
(4)现状路灯电缆的规格是什么?
答:vv-4*25+1*16
6、绿化工程
(1)请明确绿化养护期和养护等级。
答:养护等级一级,成活养护一个月,保存养护两个月,日常管理养护两年。
注:此补疑视同招标文件的组成部分,与招标文件具有同等法律效力。
合肥市蜀山区城市管理局
地址:合肥市蜀山区怀宁路与樊洼路交口民生大厦
联系人:齐学平
联系方式:0551-62156801
安徽诚信项目管理有限公司
地址:合肥市滨湖新区南京路2588号(徽州大道与南京路交口)六楼
联系人:张工
联系方式:0551-66223803
2021年7月5日
三、附件
答疑发布日期:2021年07月05日