您现在的位置: 首页 >> 答疑变更 >> 安徽公共资源交易集团项目管理有限公司 >> 工程
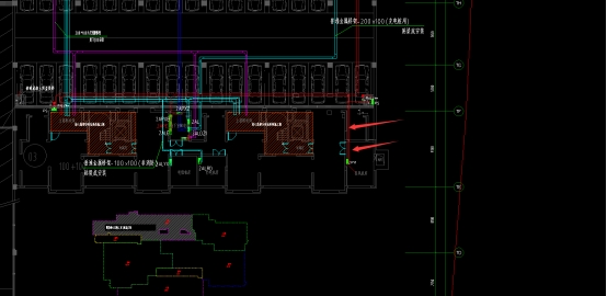
一、原公告主要信息
原项目名称: 左店乡安置点建设
原项目编号: 2021BFCGZ01311
原公告日期: 2021年06月25日
二、公告内容(更正事项、内容及日期等)
左店乡安置点建设项目招标文件补疑1
(项目标段编号:2021BFCGZ01311)
各投标人:
一、本项目清单控制价随本补疑重新发放。以本次发放的“左店乡安置点建设成果文件2020.7.5”为准。
二、“左店乡安置点建设清单2021.6.25”作废。
三、重要提示等其它内容如下:
重要提示
1、人工费执行《关于贯彻执行2018版安徽省建设工程计价依据的通知》(合造价【2018】13号文)。其中定额人工费参与取费、取税,其相对于定额人工费增加的部分 / 元只计取税金。
2、本工程取费按“ 建筑 工程取费标准”中“民用建筑”的费率计取;其中房屋建筑、市政工程中挖或填土石方量大于5000立方米的大型土石方工程,其企业管理费率8%、利润率8%,措施项目费率和不可竞争费率按房屋建筑工程相应费率乘0.6系数。
按业主要求,现对本项目招标工程量清单、最高投标限价编制作出如下补充:
第一部分:招标需求
一、招标范围:
本项目分为一个标段,项目位于长丰县左店镇左店街道小岗组,占地面积约62.16亩,总建筑面积约8万平方米,主要内容包括12栋住宅楼(楼层均为11层),2栋商业楼、配电房、门卫、地下车库及室外道路、排水、绿化、景观等相关附属设施。除特殊说明外,图纸设计范围内的所有内容,均按图计入。
(一)建筑工程
1、土建工程:包含土石方工程、基坑支护、桩基工程、主体结构工程、二次结构工程、砌体工程、屋面、保温、防水、散水,地下室停车位标志、标线、标识、车档、减速挡、防撞板等。
2、装饰工程:室内外门窗工程、内外墙面、地面及顶棚装饰工程、栏杆、信报箱、楼栋标识牌(户牌、楼层牌、单元牌、竣工牌、指示牌)等。
(二)安装工程
1、
给排水工程:
(1)给水系统单体楼以水井内水表为界,水表及水表前只计套管预埋,水表不计入,从表后开始计入;地库生活泵房内管线及设备、泵房到各单体楼的给水干管(地库平时给水系统)不计入本次范围,仅计入预留预埋套管及后期封堵;公建商业部分给水系统计至室外水表井。(不含水表井及井内阀门、水表,水表与供水公司地表管道连接)
(2)排水工程单体楼与室外以出户第一个检查井为分界,不含井,排水管道全部按图计入;住宅卫生洁具不计入本次范围,商业卫生洁具计入本次招标范围;
(3)热水系统全部按图计入,太阳能系统及配套设备均在本次范围;
(4)消防系统全部按图计入,地库消防泵房内设备及管线全部按图计入本次范围;
(5)给排水各类套管、空调洞套管、预留洞口及封堵全部按图计入;
2、
暖通工程:
(1)
通风系统全部按图计入;
(2)消防排烟系统全部按图计入;
(3)人防地库通风战时部分按图计入;
3、
强电工程:
(1)单体楼动力总箱进线预埋管计至室外1.5m处;单体楼动力总箱至各级配电箱的电缆、电管均按图计入;自管配电房低压出线及自管配电房设备不计入;住宅楼电表箱之前的电缆及第一级动力箱、电表箱均不计入,表箱前只计预留预埋管道及桥架,电表箱后按图计入。灯具按设计图纸计入。电梯(包含电梯调试电缆,电梯设备自带配电箱与单体楼配电箱连接)计入本次招标范围。
(2)风机电源箱至风机控制箱的配管、电缆均按图计入;
(3)潜污泵电源箱至潜污泵控制箱的配管、电缆均按图计入(电缆随由厂家配套提供);
(4)人防地库强电系统战时部分除图纸说明临战明敷和战时安装部分不计入,其他按图纸计入;战时通信仅计预留预埋,通风方式信号系统按图计入。
4、
弱电工程:
(1)
火灾报警系统、火灾漏电报警系统、消防电源监控系统、防火门监控系统、空气质量监测系统等全部按图计入;
(2)
单体楼电视、网络及电话系统、三网合一工程(仅计管道预留预埋管、盒)、智能化工程均计入本次招标范围。
5、
消防工程:火灾自动报警系统由进单体第一个端子箱后(含端子箱)按图示计入本次招标范围。消防设备电源监控系统、电气火灾监控系统、防火门监控系统、室内空气质量监控系统按图示计入本次招标范围。消防控制室设备及消防控制室至各单体配线按图示计入本次招标范围,统一计入室外工程。消火栓、喷淋、消防泵房图纸范围内全部计入,水泵接合器均由室外工程计入。
6、
人防地下车库中战时部分:①给水系统:战时给水进水管防护密闭阀门后管道不计入,防护密闭阀门前按图示计入。含管道、防护阀门、套管等;计至出地库外墙1.5米处(不含室外的表、阀、井)(要求计入井);战时水箱、水泵、设备基础等不在本次招标范围;冲洗龙头防护阀门前管道不计入,防护阀门后按图计入,含管道、防护密闭阀门、套管、冲洗龙头等。②排水系统:防爆地漏、防爆地漏连接管道、预埋套管等按图示计入。压力排水战时部分的潜污泵及相关附件均不在本次招标范围。③强电系统:战时部分除图纸说明明确不实施的内容外,临战明敷和战时安装部分及其他均按图纸计入,防护防化设备电源按图计入。④战时通风方式信号及通信系统:按图纸计入。⑤通风系统:战时按图计入本次招标范围。空气质量检测仪、空气放射性检测仪、毒剂检测仪不计入本次招标范围。⑥安徽省人防办 2016【131】号文《安徽省人防办关于人防工程平战转换要求的通知》及合肥市人防验收要求的所有工作内容包含在本次范围。
(三)室外总体及附属工程
1、室外安装工程:包含室外景观电气、室外消防弱电、室外照明、室外消火栓及喷淋系统、一体化雨水回收利用系统等;
2、道排工程:包含基层、路面、侧石、道路附属工程、管道沟槽土石方工程、排水管道铺设、检查井、雨水口、化粪池、隔油池等;
3、景观工程:包含土方、基层、铺装、停车位、围墙、小区内部道路等设计图纸招标范围内的所有内容;
4、绿化工程:包含整理绿化用地、绿化苗木栽植、养护等。
(四)补充说明:
1、图纸上已设计,但不计入本次招标范围的有:战时水箱、水泵、战时排水泵等临战安装的设备及配套不计入本次招标范围。
2、土建工程单体楼与地下车库从单体楼夹层顶板划分,顶板以下(含顶板)计入地下车库(注:地库内单体楼楼梯及栏杆计入各单体)。
二、暂定项目:
(一)以下项目按照业主要求,以暂定工程量计入分部分项工程量清单,投标人综合考虑报价,标后按实际工程量结算。
无
(二)以下项目按照业主要求,暂列金额为 500 万元,计入 基坑支护 单位工程,投标人应按招标人所列的金额计入投标总价。
(三)执行暂估价的材料、设备、专业工程及其金额如下:
1、材料的名称、规格型号、金额:无
2、设备的名称、规格型号、金额:无
3、专业工程名称、工程内容、金额:无
上述明细投标人应按招标人所列的金额计入投标总价。
4、发包人供应材料、工程设备的采购、保管费,控制价中不再另行计取费用,投标人在总报价中综合考虑此费用。
三、按项列入清单的内容,标后不予调整:
以下项目按照业主要求,按项计入,投标人自行踏勘现场,综合考虑报价,中标后不予调整。
无
四、补充图纸及修改图纸的说明:
本工程在第一次发放图纸后,有补充图纸,具体详见图纸目录。
五、总承包服务费:详见招标文件
六、业主提示:投标人投标报价还须仔细阅读本项目招标文件,慎重报价。
1、
工程施工应完全按照《合肥市住宅工程质量通病防治导则》、《合肥市绿化施工导则》、省地标DB34/1659-2012及合建质安监[2011]11号执行,当几者不一致时,从严执行。投标人应综合考虑相关费用,自行报价,中标后施工单位不得以任何理由办理经济签证。
2、
严格按照(合建质安监[2011]64号)文件执行,投标人在施工过程中,必须达到规范及验收要求,施工过程中不得因连接方式不同、工艺调整等原因,提出影响造价的要求。清单中钢筋量已包含马凳铁及其它施工规范要求的钢筋量,结算不予调整。
3、
土方平衡总平面图的平整后土方标高与图纸设计室外标高如有偏差,此部分偏差由投标人自行踏勘现场,费用包含在投标总价中,投标人综合考虑,标后不予调整。
4、
现场土方根据地形图,挖土起点以场地现状为准,投标人必须提前认真勘察现场,做好测绘测量复查工作;因事先不勘察现场、不进行测绘测量复查工作等原因造成的所有一切损失,均由投标人自行承担,中标后不得以任何理由要求增加造价,一律不予办理经济签证。
5、
所有的专家评审、专家论证费用,包含在投标总价中,清单控制价中不单独列项,投标人综合考虑,标后不予调整。
6、
电梯配合安装及调试电缆:包含电梯门洞口的封堵,配合电梯厂家安装,必须满足电梯运营要求,直至电梯安全运营,且包含调试用的电缆、配电箱;费用包含在投标总价中,清单控制价中不单独列项,投标人综合考虑,标后不予调整。
7、
请投标单位投标前仔细勘查现场,结合基坑支护图纸,慎重报价,后期不因设计方案的变更而调整任何费用;投标报价中综合考虑,中标后不再调整。
8、
施工单位中标后需无条件配合业主办理施工许可证直至竣工备案结束,所产生一切相关手续所产生的费用包含在投标总价中,投标人综合考虑,标后不予调整。
9、
投标单位自行踏勘现场,应做好周边建筑物、构筑物(含管网)等的安全防护工作,安全防护费用包含在投标总价中,清单控制价中不单独列项,投标人综合考虑,标后不予调整。
10、
钢结构、幕墙、雨水调蓄池雨水收集与利用系统、采光顶、玻璃雨篷等工程,投标人慎重报价,后期深化设计费及因方案的优化和调整增加费用均包含在投标总价中,投标人综合考虑,自行报价,标后不予调整。
11、
室外水、电管道的覆土厚度不满足规范要求,需按照相关规范采取保护措施,费用包含在投标总价中,清单控制价中不单独列项,投标人综合考虑,标后不予调整。
12、
控制柜、配电柜、箱后期安装调整位置费用,费用包含在投标总价中,清单控制价中不单独列项,投标人综合考虑,标后不予调整。
13、
投标报价除考虑临时设施费用外,还应考虑临时设施的拆除、及其拆除后建筑垃圾外运等费用,做到工程完工时“工完、料尽、场地清”。临时设施包括:施工现场的临时房屋及其基础、临时道路、场地硬化、临时围挡及其基础、塔吊等设备砼基础及其它为满足施工需要的临时建筑物和构筑物,费用包含在投标总价中,投标人综合考虑,标后不予调整。
14、
投标单位应认真详细勘察现场,因场地限制,不具备材料堆场、搭设加工区、搭设办公区、搭设生活区的,投标人在投标时应充分考虑,需将临时设施搭设等的所有相关费用充分考虑到投标报价中,标后不予调整。
15、
施工围墙铺挂绿篱及公益广告,费用包含在投标总价中,清单控制价中不单独列项,投标人综合考虑,标后不予调整。
16、
地下室人防封堵除图纸设计外,其他平时及战时封堵需满足人防验收要求,保证人防验收合格,新增的封堵费用,费用包含在投标总价中,清单控制价中不单独列项,投标人综合考虑,标后不予调整。
17、
布管密集的地方设加强钢筋、阴阳角放射筋等按现行最新规范设置,结算不调整。
18、
所有部位要求列入报价的墙砖、地砖,投标单位在投标报价时应综合考虑砖的切割、加工、铺贴、拼花、勾缝剂、砖损耗等所有费用,自行分析含在报价内,标后不予调整。
19、
电梯安装验收合格后至工程竣工交付使用期间,总包单位不得以任何理由拒绝附属单位使用电梯,期间电梯发生故障及定期的维护保养产生的相关费用,费用包含在投标总价中,清单控制价中不单独列项,投标人综合考虑,标后不予调整。
20、
所有与设备调试相关产生的人工、材料、机械等费用,费用包含在投标总价中,清单控制价中不单独列项,投标人综合考虑,标后不予调整。
21、
室外综合管线及地下管线交叉较多、各投标人应综合考虑管线避让等技术处理措施引起的工程量变化,投标人综合考虑,标后不予调整。
22、
本项目所有空调机组下需设置隔振器或隔振垫做好减噪、减震措施,费用由投标人自行考虑列入投标报价,清单控制价中不单独列项,标后不予调整。
23、
所有位于行车道上的检查井、雨水口均需考虑加固,费用由投标人自行考虑列入投标报价,清单控制价中不单独列项,标后不予调整。
24、
本项目采用 BIM 技术辅助施工,清单不单独列项,请投标人综合考虑,中标后不增加与之相关的任何费用。
25、
施工用水开户等:满足总包单位前期施工用水以及项目建成后的总用水量(按图纸设计的位置、表径、数量向供水集团申请报装);以上均含管网建设费、增容费、破路、恢复、水表、管道、报装及内部接引、看护、日常管养(含配合施工迁移)等所有费用,含附属施工完毕项目建成投用后,将该水表到供水集团办理水表变更为正式用水表,其他见招标文件说明。投标人需考虑后期各单项分包总用水容量、必须保证证件齐全、手续合法。清单不单独列项,投标人综合考虑,自行报价,标后不予调整。
26、
临时施工用电报装及接引费:不少于1台400KVA,含线路及设备费用等,报价中须包括含供电设计、监理、施工及确保最终送电以及过程中一切报建手续费用等其他费用等,后期考虑残值、折旧回收处理,清单不单独列项,投标人自行踏勘现场,综合考虑报价,中标后不予调整。
27、
开道口费:开设道口以及临时施工道口(含临时道口拆除恢复)计入本次清单范围内,报价中须包括手续申报(必须保证证件齐全、手续合法)、施工等一切费用(含绿化迁移,市政设施破复、施工便道、围墙等费用),清单不单独列项,投标人自行踏勘现场,综合考虑报价,中标后不予调整。
28、
雨水、污水排水管与市政接口连接费:雨污水管与市政管网的连接、疏通费用(含道路、破除、恢复等费用),清单不单独列项,投标人自行踏勘现场,综合考虑报价,中标后不予调整。
29、
新旧道路衔接费:新建路面层与现状路面搭接,清单不单独列项,投标人自行踏勘现场,综合考虑报价,中标后不予调整。
30、
现场建筑垃圾、生活垃圾、树木、植被等杂物的挖运:清单不单独列项,投标人自行踏勘现场,综合考虑报价,中标后不予调整。
31、
水塘、水池、沟渠等的排水等费用:清单不单独列项,投标人自行踏勘现场,综合考虑报价,中标后不予调整。
32、
现场建筑物构筑物基础的拆除、道路硬化的拆除、障碍物的拆除及拆除垃圾的外运费用:清单不单独列项,投标人自行踏勘现场,综合考虑报价,中标后不予调整。
33、
雨污水管道、其他综合管线交叉处理:雨污水管道、其他综合管线交叉处理净距不能满足规范要求时,按设计要求进行处理,投标人综合考虑报价,清单不单独列项,投标人自行踏勘现场,综合考虑报价,中标后不予调整。
34、
配合燃气、供水、供电、有线、通信等各类专业与市政管道的接引、破复、绿化迁移等相关费用:清单不单独列项,投标人自行踏勘现场、自行报价,费用含在综合报价中,中标后不予调整。
35、
现有杆、管线(供电杆线、强弱电)迁移,包含杆线、变压器、T接点:中标单位施工前需对接有关产权单位,办理相关施工协议,制定迁移措施,并征得产权单位同意后方可施工,确保施工和管线运营安全,清单不单独列项,投标人自行踏勘现场、自行报价,费用含在综合报价中,中标后不予调整。
36、
配电箱背面粉刷加固:非防火墙上凡消火栓、配电箱需穿透墙身嵌装时应在其后壁加钢板网1.2mm厚孔径≮9mm,控制价按1项分别列入各单体土建单位工程分部分项清单中,投标人自行踏勘现场,综合考虑报价,中标后不予调整。
37、
沉降观测点预埋费用(仅计预埋):投标单位根据现有的图纸资料、招标文件和施工规范等资料,充分考虑,清单不单独列项,投标人自行踏勘现场,综合考虑报价,中标后不予调整。
38、
屋面排气、透气管:排气道采用φ50镀锌钢管排气管,管口距地不小于0.4m,纵横间距不大于6m,详12J201第A21页做法,清单不单独列项,投标人自行踏勘现场,综合考虑报价,中标后不予调整。
39、
基坑变形监测、观测、监控费(含监测点布置):监测内容包括但不限于:围护结构顶部水平位移、地下管线、道路沉降、坑边地面沉降;中标人须委托具有相关资质单位对边坡、围护结构及周围环境进行监控,观测单位的选定和观测方案应征得建设单位及监理单位的同意,清单不单独列项,投标人自行考虑,综合报价,中标后费用不再调整。
第二部分:设计文件及技术补充说明
一、
土建共性问题
1、
请明确本工程土方是否考虑利用?土方运距按多少公里考虑?
答:土方按余土外弃考虑,包括挖、填、运、内倒、外弃等,取土点、弃土点不指定,工程量包死。投标单位应对现场进行详细深入勘查,并考虑现状可能发生的变化,实测工程量,自行考虑土方挖填平衡,中标后不得调整。土方施工包含施工区域范围内地下室及单体楼基坑开挖、土方外运及回填,现场超挖部分所产生的超挖、回填、运弃土等全部费用由中标人自行承担,中标后不得调整。挖、填、内倒、弃土运距、弃土点及借土运距、借土点(包括取土场清表、便道、弃土场平整等),所有费用含在投标报价中(包括土源费、渣土费等相关一切费用),慎重报价,中标后不得以任何理由调整价格。
2、
建筑物沉降观测是否计入仅计预埋?
答:是。
3、
图纸中φ6mm钢筋是否按φ6.5mm计入?
答:是。
二、
住宅土建共性问题
4、
信报箱是否计入本次招标范围,若计入,请明确铝合金材质壁厚?
答:计入,壁厚2mm。
5、
建筑永久铭牌、楼栋牌、单元牌、楼层牌、门号牌是否计入本次招标范围,若计入,请明确具体数量、材质、尺寸、规格?
答:计入,做法详补图。
6、
请明确本次招标装修部分的具体范围?
答:按图计入。
7、
门窗表中“仅预留洞口”部分是否不计入本次招标范围?
答:单元门、入户门、阳台门、防火门计入到位,其余户内门不计。
8、
如下截图,结施总说明不同材料交接处加强网带做法与建施总说明做法不一致,请明确以哪个为准?
结施:
建施:
答:以结构说明钢丝网为准。
9、
如下截图,结构说明中楼梯间、人流通道抹灰做法与装修表中抹灰是否重复,若不重复,请明确以何为准?
答:重复,以装修表为准。
10、
外窗纱窗是否计入本次招标范围,若在,请明确纱网材质、规格及其框料材质、规格?
答:计入,纱窗为铝合金材质普通纱窗。
11、
如下截图,请明确防盗措施是否在本次招标范围,若在,请明确具体材质、规格、壁厚等做法?
答:不计入本次招标范围。
12、
门窗表中“铝合金防雨百叶窗、可开启防飘雨铝合金百叶窗”的壁厚、规格不详,请明确?
答:壁厚1.2mm。
13、
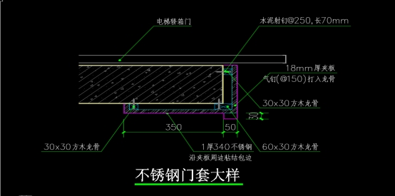
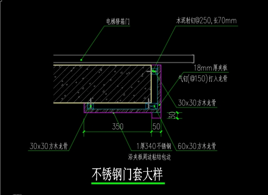
电梯门套是否计入本次招标范围,若计入,请明确具体材质及做法?
答:电梯门套计入,做法详见附图
14、
建筑说明中各部位保温材质及厚度与节能表中保温层材质及厚度不符时,请明确以何为准?
答:节能表为准。
15、
如下截图,空调百叶内部装饰做法(墙面、地面、顶棚)不详,请补充?
答:墙面:真石漆外墙面,地面:楼1(水泥砂浆楼地面),顶棚:棚3a(无机涂料顶棚)。
16、
空调板、太阳能挑板等外挑板板面、板底、板外侧饰面做法不详,请明确?
答:板面、板底、板外侧饰面做法均为真石漆做法。
17、
女儿墙内侧饰面做法不详,请明确?
答:饰面做法为真石漆做法。
18、
构架饰面层做法不详,请补充?
答:真石漆做法。
19、
电梯井、风井内壁是否需做抹灰,若需做,请明确抹灰厚度及砂浆配比?
答:需要做抹灰,20mm厚1:2.5砂浆。
20、
飘窗台面装饰做法不详,请明确?
答:20厚1:2.5水泥砂浆。
21、
烟道止回阀材质及耐火等级不详,请明确?
答:不锈钢材质,耐火极限为≥1小时。
22、
如下截图,单体楼平面图说明中防水做法中1:2水泥砂浆找平与装饰表中水泥砂浆找平层是否重复,请明确?
答:重复了,按装修表计入。
23、
如下截图,板平面施工图与叠合楼板平面布置图中阴影区域标注范围不符,请明确以何为准?且明确此阴影区域是否为现浇板?
答:板布局以叠合板平面布置图为准,阴影区为现浇板区域。
24、
如下截图,空调板在叠合楼板平面布置图中为预制叠合板,与大样图中为现浇板不符,请明确以何为准?若为叠合板(预制+现浇),其翻边如何处理?
答:预制板为叠合板,线条现场现浇。
25、
如下截图,说明中配筋双层双向或未注明板底筋双向配置,请明确说明中配置的板底筋是指叠合板现浇部分还是指叠合板预制部分?
答:板底筋配置为叠合板预制部分。
26、
如下截图,桁架预制板中的桁架信息没有,请补充?
答:补充“预制构件参考图”,具体桁架钢筋规格后期构件生产图中明确。
27、
砌体材质结构说明、建筑说明与户型大样图中材质对不上,请明确是否以户型大样图中材质为准?且首层无大样图,无法区分实心砖与预制内隔墙?
答:砌体材质以户型大样图为准,首层及顶层均为煤矸石空心砖。
28、
节能表中分户墙为煤矸石空心砖,户型大样图中为预制成品内隔墙,请明确以何为准?
答:砌体材质以户型大样图为准。
29、
预制内隔墙结构图及装配式设计说明图中为轻质内隔墙ALC条板,户型大样图中为预制成品内隔墙,请明确以何为准?
答:轻质内隔墙ALC条板。
30、
如下截图,此处图例做法不详,请明确?
答:为成品GRC造型线脚
31、
结构说明中厨卫止水反梁砼等级同楼板,建筑说明中为C20,请明确以何为准?
答:圈梁及防水反梁均采用C25。
32、
如下截图,卫生间前室装饰是否同卫生间?
答:是。
33、
水电管井内装饰做法不详,请明确?
答:楼面:楼1(水泥砂浆楼面);墙面:内墙1(刮腻子内墙);天棚:顶棚1(刮腻子顶棚)。
34、
餐厅内装饰做法是否同客厅?
答:是。
35、
筏板基础是否采用砖胎膜,若是,请明确砖模厚度及抹灰做法?
答:采用砖胎膜,基础高度≤800,墙厚120;800<高度≤1200,墙厚240;高度>1200,墙厚370。内侧20厚1:2.5水泥砂浆找平。
36、
地库外楼栋无地下室,请明确筏板等地下部位是否需采用抗渗砼?且明确卷材防水等防水构造措施是否需做?
答:地下部分采用内掺膨胀剂的密实补偿收缩抗渗混凝土,抗渗等级P6,卷材防水等防水构造措施不做。
37、
外墙外保温系统每层托架及变形缝做法不详,请补充?
答:托架做法皖2018JZ127-15-3,系统变形缝做法:皖2018JZ127-21-4。
38、
如下截图,首层为储藏室在墙身大样图为顶棚做保温、外墙不做保温,而装修表中储藏室顶棚做法无保温,请明确以何为准?
答:首层改为走外墙保温,只有架空楼板处走顶棚保温。
39、
石膏板隔墙图集做法中龙骨材质、规格不详,石膏板厚度为单层还是双层不详,请明确?
答:50系列轻钢龙骨,双层12mm厚石膏板。
三、
住宅土建个性问题
(一)2#3#5#6#楼土建:
1、
如下截图,±0标高处此梁做法是否均为“配筋及截面参照二层该位置”?

答:是;
2、
结施-23图中节点3,其他楼层是否按此节点?
答:是。
3、
北边首层空调板做法无节点大样,请补充?
答:做法参照上部空调板做法计入。
4、
如下截图,首层此处平面图与立面图不符,如何处理?装饰做法需补充?
答:以平面图为准,此处为洞口。装饰做法:地4、外1、顶棚3a。
(二)1#10#11#楼土建:
1、请设计明确10#、11#地下空腔部分除设计说明要求的防水外,是否考虑其他防水做法?
答:无需考虑。
2、基础说明中,请设计明确回填材料按什么考虑?
答:按照素土回填考虑。
(三)4#7#8#9#楼土建:
1、请明确4#架空层地面的做法?
答:按照地面4做法。
2、
请明确电梯基坑四周回填采用什么材料?
答:素土。
3、空调板平面图厚度与大样图不符,请明确以哪个为准?
答;节点大样。
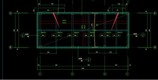
(四)12#楼土建:
1、
如下截图,结施-05外墙大样中筏板顶标高为-1.95与结施-03基础说明中筏板顶标高为-2.65不一致,以哪个为准,请明确?
结施-05:
结施-03:
答:以结施03基础说明-2.650m标高为准。
2、
如下截图,结施-04墙、柱平面定位图中外墙宽度为200mm与结施-05外墙大样中墙宽为250/300mm不一致,以哪个为准,请明确?
答:以平面为准,配筋不变。
3、
如下截图,结施-08墙、柱平面定位图中GBZ-1长度与柱大样不一致,以哪个为准,请明确?
答:经复核,尺寸修改为700长。
4、
如下截图,结施-10墙、柱平面定位图中GBZ-2是否标注有误,与柱大样不符,请明确?
答:4轴交C轴墙柱编号为GZB-1。
5、
如下截图,结施-20二层板平面施工图中挑板厚度与节点大样不一致,以哪个为准,请明确?
二层板图:
节点大样:
答:以节点大样为准。
6、
如下截图,结施20~结施22板平面图中暗梁与结施26~结施27预制板平面图中后浇带位置重复,以哪个为准,请明确?
结施板图:
结施预制板图:
答:以后浇带为准。
7、
如下截图,飘窗预制板为上飘窗板还是下飘窗板,图纸中未明确,请明确?
答:飘窗板下。
8、
如下截图,节点大样中,钢筋规格未明确,请补充?
答:c8。
9、
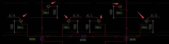
如下截图,结施-17屋面梁平法施工图中XL1高度与节点大样一中高度不一致,以哪个为准,请明确?
答:500mm。
10、
如下截图,节点大样一中三层线条宽度与节点大样九中腰线不一致,以哪个为准,请明确?
答:150mm。
11、
如下截图,结施-30墙身大样五飘窗宽度与建施-17墙身大样五不一致,以哪个为准,请明确?
结施:
建施:
答:250mm。
(五)S-1#S-2#配套用房土建:
1、
如下截图,建施-03说明13.5中井道圈梁结构图中未见明确设置,请补充?
答:
2、
如下截图,结施-01说明3.2.8除锈做法与建施-02说明3.9除锈做法不一致,以哪个为准,请明确?
建施:
答:以建筑做法为准。
3、
请明确本次招标装修部分的具体范围?
答:按图计入。
4、
如下截图,结构说明与建筑说明中砌筑砂浆做法不一致,以哪个为准,请明确?
结构说明:
建筑说明:
答:以结构说明为准。
5、
如下截图,结施-02说明9.3中楼梯间和人流通道墙面做20厚M5砂浆抹面与装饰表中楼梯间及人流通道抹灰是否重复,请明确?
答:重复,按装修表计入。
6、
如下截图,结施-02说明9.5内、外墙不同材料交接处加强网带做法与建施-01说明做法不一致,以哪个为准,请明确?材质规格、搭接宽度未明确,请补充:
结施:
建施:
答:以结构为准计入。
7、
如下截图,图集12J003-A2-6B散水回填土具体厚度未明确,请补充?
答:300厚。
8、
如下截图,图集12J003-B3-9B台阶地砖规格未明确,请补充?
答:10厚。
9、
如下截图,建施-04装饰表中防滑地砖楼地面地砖规格未明确,请补充?
答:600x600。
10、
如下截图,建施-04装饰表中内墙3墙砖规格未明确,请补充?
答:250x250。
11、
如下截图,建施-04装饰表中顶棚1无机涂料饰面几遍未明确,请补充?
答:无机涂料二道。
12、
如下截图,配电房、弱电机房装饰做法是否同消防控制室,请明确?
答:是的。
13、
如下截图,卫生间前室装饰做法是否同卫生间做法,请明确?
答:是的。
14、
如下截图,建施-08二层平面图中女儿墙为无保温外墙,无保温外墙装饰做法图纸中未明确,请补充?

答:同住宅的真石漆外墙面(非保温)
15、
如下截图,建施-07一层平面图空调处墙面做法未明确,请明确?
答:地面1水泥砂浆毛地面,顶棚1无机涂料顶棚,墙面同外墙。
16、
如下截图,图集11 J930-A24页-2室外坡道栏杆高度未明确,请明确?
答:900mm。
17、
如下截图,二层、三层此线条是否为GRC成品线脚,请明确?
答:是。
18、
外窗防盗格栅做法未明确,请补充?
答:∅16不锈钢管防盗格栅,壁厚1.5mm,间距100。
19、
电梯门套是否计入本次招标范围,若计入,请明确具体材质及做法?
答:电梯门套计入,做法详见附图。
20、
铝合金门窗材质壁厚未明确,请补充?
答:铝合金门、窗主型材可视面最小壁厚不小于2.2mm和1.8mm
21、
卫生间洗漱台做法未明确,请补充?
答:详见图集16J914-1第XT11页1做法。
22、
无障碍卫生间坐便器处扶手做法未明确,请补充?
答:详见图集12J926第J10页3做法,2.5厚不锈钢钢管。
23、
无障碍卫生间坐便器处扶手做法未明确,请补充?
答:详见图集12J926第J14页1做法,2.5厚不锈钢钢管。
24、
卫生间隔断厚度未明确,请补充?
答:20mm。
25、
卫生间大便蹲位做法未明确,请补充?
答:做法参见图集16J914-1第XT18页节点3。
26、
卫生间挂钩材质、材质规格未明确,请补充?
答:2.5厚不锈钢挂钩。
(六)配电房土建:
1、
电缆沟、电缆沟盖板是否计入本次招标范围,若计入,做法未明确,请补充?
答:不计入。
2、
如下截图,防雨百叶窗具体材质、壁厚未明确,请补充?
答:可开启防飘雨铝合金百叶,壁厚1.2mm。
3、
如下截图,结施-04屋面板平面施工图中雨棚布置范围与建施-04屋顶层平面图雨棚布置范围未明确,请补充?
结施:
建施:
答:以建筑施工图为准。
4、
如下截图,结施-04一层梁平法施工图中梁规格未明确,请补充?
答:300*700mm。
5、
如下截图,结施-05二层板平面施工图中板标高是否标注有误,请明确?
答:修改为5.2m。
6、
如下截图,图集12J003-A2-6B回填材质、厚度未明确,请明确?
答:300厚种植土。
7、
如下截图,建施-03防静电环氧楼地面中抗静电涂料厚度未明确,请补充?
答:2厚环氧抗静电涂料。
8、
如下截图,建施-03水泥砂浆踢脚面层厚度未明确,请补充?
答:2厚环氧抗静电涂料。
9、
如下截图,图集11J930-L23-1b中外窗防盗栏杆高度未明确,请补充?
答:1500mm。
10、
如下截图,吊装平台栏杆做法未明确,请补充?
答:做法详见图集15J403-A6。
11、
本次装修范围未明确,请补充?
答:按图全部计入。
(七)门卫土建:
1、
如下截图,结施-03基础平面施工图中DJ2尺寸规格与独基表中不一致,以哪个为准,请明确?
答:1900*1900mm。
2、
如下截图,结施-03基础平面施工图中DJ3尺寸规格与独基表中不一致,以哪个为准,请明确?
答:2000*2000mm。
3、
本次装修范围未明确,请补充?
答:按图全部计入。
(八)地库土建:
1、
非人防地库筏板马凳筋间距、规格、样式需明确?
答:筏板内板凳C18@1500。
2、
地库砖砌墙体具体采用材料品种及砌筑砂浆配比未统一,建筑设计说明与结构设计说明不符,人防地库与非人防地库不符,请提供统一做法?
答:墙体做法以非人防结构计入。
3、
砖胎膜厚度及相关做法请明确?
答:砖砌侧模充分湿润≥120mm; MU10砖、M5水泥砂浆。
4、
人防地库与非人防地库室内装修做法未统一,建议提供统一做法的装饰表?
答:按照非人防地库做法统一。
5、
地下室外墙灰土回填宽度请明确?
答:1.5米。
6、
地下室顶板防水A做法(道路、铺装、建筑室内)中仅设计了一道卷材防水层,是否有误?
答:根据最新的图纸提供的防水材料计入。
7、
建筑设计说明要求地下室消防水池侧壁、底板的迎水面上设2厚聚合物水泥防水涂料,20厚水泥防水砂浆保护层。请明确此处20厚水泥防水砂浆配比?
答:1:2.5。
8、
地库标识标线、导线箭头等平面布置图需提供,否则工程量无法计算?
答:详见附图。
9、
地库防火门采用木质是否合适?是否改为钢质防火门?
答:修改为钢质防火门。
10、
人防地库汽车坡道做法能否按非人防地库做法统一?
答:按照非人防做法统一。
11、
地库构造柱、圈过梁等二次结构混凝土强度等级是否同地上按C25计入?
答:是。
12、
人防地库与非人防地库集水坑盖板分别为型钢盖板和钢筋砼盖板,是否统一做法?
答:是,按人防地库做法计入。
13、
外贴式止水带做法图纸未明确?
答:300*8mm外帖式橡胶止水带。
14、
地库装饰做法内墙面1涂料饰面无腻子?涂料涂刷遍数需明确?
答:2厚面层耐水腻子分遍刮平;一底两面。
15、
地库电梯间装饰做法仅明确了地面做法,墙面及顶棚做法未明确?
答:墙面按内墙1、顶棚按顶棚1。
16、
地库未注明装饰做法的房间参照什么做法?
答:未注明房间按地面2、踢脚1、内墙1、顶棚1做法计入。
17、
地库顶板防水分种植与非种植,图纸上面界线划分不明确,如何计算?
答:住宅楼室内按非种植屋面,其他室外部分按种植屋面计算。
18、
如图,地库玻璃顶棚钢骨架采用镀锌不锈钢方通是否有误?
答:采用镀锌方钢管。
19、
如图,地库楼梯间玻璃屋面图纸注明详见结构图,结构图无相关做法?
答:钢骨架做法参照汽车坡道玻璃顶棚。
20、
地库人防标识标线工程图纸未设计,如何计入?
答:按下表清单做法及工程量计入
| 序号
|
项目名称
|
项目特征描述
|
计量 |
工程量
|
|
|
人防标识标线工程
|
|
|
|
| 1
|
标志板
|
1、类型:防毒通道标牌 |
块
|
2
|
| 2
|
标志板
|
1、类型:密闭通道标牌 |
块
|
3
|
| 3
|
标志板
|
1、类型:简易洗消间标牌 |
块
|
2
|
| 4
|
标志板
|
1、类型:进风机房标牌 |
块
|
2
|
| 5
|
标志板
|
1、类型:排风机房标牌 |
块
|
2
|
| 6
|
标志板
|
1、类型:滤毒室标牌 |
块
|
2
|
| 7
|
标志板
|
1、类型:扩散室标牌 |
块
|
4
|
| 8
|
标志板
|
1、类型:防化通信值班室标牌 |
块
|
2
|
| 9
|
标志板
|
1、类型:平战转换封堵构件储藏室 |
块
|
1
|
| 10
|
标志板
|
1、类型:战时干厕 |
块
|
2
|
| 11
|
标志板
|
1、类型:战时排风机房 |
块
|
2
|
| 12
|
标志板
|
1、类型:战时进风机房 |
块
|
2
|
| 13
|
标志板
|
1、类型:电梯牌 |
块
|
3
|
| 14
|
标志板
|
1、类型:楼梯牌 |
块
|
4
|
| 15
|
标志板
|
1、类型:战时主要出入口标牌 |
块
|
2
|
| 16
|
标志板
|
1、类型:战时次要出入口标牌 |
块
|
3
|
| 17
|
标志板
|
1、类型:人防工程维护管理制度标牌 |
块
|
1
|
| 18
|
标志板
|
1、类型:人防工程平时使用须知标牌 |
块
|
1
|
| 19
|
人防标识牌
|
1、类型:人防工程标识牌 |
套
|
2
|
| 20
|
人防指示牌
|
1、类型:人防工程指示牌 |
套
|
4
|
| 21
|
标志板
|
1、类型:人员掩蔽工程导引图1 |
块
|
4
|
| 22
|
标志板
|
1、类型:人员掩蔽工程导引图2 |
块
|
1
|
| 23
|
标志板
|
1、类型:干厕平战转换措施示意牌 |
块
|
1
|
| 24
|
标志板
|
1、类型:水箱平战转换措施示意牌 |
块
|
1
|
| 25
|
标志板
|
1、类型:电气预埋备用管指示牌 |
块
|
14
|
| 26
|
标志板
|
1、类型:防爆呼叫按钮指示牌 |
块
|
2
|
| 27
|
标志板
|
1、类型:气密测量管指示牌 |
块
|
6
|
| 28
|
标志板
|
1、类型:测压管指示牌 |
块
|
2
|
| 29
|
标志板
|
1、类型:超压排气活门示牌 |
块
|
2
|
| 30
|
标志板
|
1、类型:战时给水管指示牌 |
块
|
2
|
| 31
|
标志板
|
1、类型:战时冲洗管指示牌 |
块
|
2
|
21、
如下图,左店乡安置点项目土方量计算图纸中总挖方工程量是否包含地库基坑土方挖方工程量?
答:是。
四、
绿化
1、
请明确绿化的养护等级及养护时间?
答:养护等级一级,成活养护1个月,保存养护3个月,日常管理养护32个月。
2、
请明确本工程是否采用种植土,请明确种植土的做法?
答:乔木按每株0.5方泥炭土与种植土拌合,灌木按每株0.4方泥炭土与种植土拌合,色块、地被类苗木深翻30cm,拌合30%泥炭土,草坪深翻20cm,拌合40%泥炭土。
3、
请明确本工程乔木是否需要设置透气管,若要,请明确?
答:需要,乔木需要设置透气管。
4、
请明确本工程是否需要设置中粗砂,请明确?
答:草坪增加3cm粗砂。
五、
排水
1、请明确管基础至管顶以上0.3m范围内采用什么材料回填?
答:砂石回填。
2、请明确雨水口的具体做法?
答:详见设计图纸及图集06MS201-8-P6。
3、请明确本工程的化粪池的做法?
答:03S702,型号13-100SQF。
4、请明确雨污检查井和雨水篦子加固井圈的混凝土等级?
答:检查井为C40,雨水篦子为C30。
六、
景观
1、
在沥青道路做法详图中,箭头所指透层、粗粒式沥青混凝土、细粒式沥青混凝土具体强度等级、材质规格请设计明确?
答:乳化沥青PC-2,每平米0.4L;AC-20粗粒式改性沥青混凝土;乳化沥青PC-3,每平米0.4L;AC-13细粒式改性沥青混凝土。
2、淤泥路段图纸未明确,是否考虑淤泥路段路基回填做法?如需考虑,请明确淤泥路段范围及回填具体深度?
答:不考虑。
3、请明确沥青道路侧石找平层的砂浆配合比?
答:1:3水泥砂浆。
4、请明确青石板水泥砂浆找平的砂浆配合比?
答:1:3水泥砂浆。
5、请设计明确箭头所指彩色透水沥青混凝土的强度等级?
答:C25。
6、请明确以下截图部分是否计入本次招标范围,若计入,请明确具体材质、规格参数?
答:在本次招标范围,具体材质规格已补充图纸。
7、请设计明确树池基层做法?
答:素土夯实;200mm厚级配碎石垫层;300mm厚C25混凝土。
8、围墙图纸中,说明中基础标高与基础详图标高不一致,请设计明确以何为准?
答:以大样为准。
9、在围墙说明中,请设计明确是否考虑灰土换填?
答:不考虑。
10、请设计明确围墙是否考虑抹灰?
答:需考虑抹灰,20厚1:2.5水泥砂浆找平层。
11、请设计明确围墙处排水沟内侧是否考虑抹灰?
答:需考虑抹灰,20厚1:2.5防水砂浆找平层。
22、
围墙说明中有柔性面砖墙面做法,立面图纸中,图例仅有真石漆墙面做法,请设计明确是否有柔性面砖墙面?
答:按照外立面示意计入,不考虑柔性面砖墙面。
七、
安装
(一)电气:
共性问题:
1、请设计明确此栋楼火灾自动报警系统配线管径是否参照其他楼栋按JDG16计入?
答:均采用JDG20管。
个性问题:
1#、10#、11#楼:
1、在YJ应急照明系统图中,未在平面图中见-1层的应急照明。且-1~11层公共照明线路在平面图中反馈的是-1~1层的应急照明。具体线路请设计明确?
答: We2回路为1~11层公共照明线路
2、在平面图中未见PS配电箱系统图线路,请设计明确?
答:
3、平面图中电梯控制箱图列中未有,安装高度请设计明确?
答:该柜为电梯厂家自带,不计入。
4、ALE1系统图中配电井,电井照明线路反馈在平面图中为ALG1的分支线路。新线路请设计明确?
答:
5、在一层照明平面图中未见走廊处照明灯引线,是否为ALG1配电箱门厅照明线路在一层照明线路分支,线路请设计明确?
答:是的。
6、请设计明确此桥架规格型号?
答:消防桥架100*100。
7、请设计明确此开关图列名称及安装高度?
答:防潮三联开关,距地1300。
8、请设计明确此灯具名称规格型号及安装高度?
答:壁挂荧光灯 自带蓄电池,应急时间大于180分钟,T5 1*28w 距地2500。
9、请设计明确此灯具名称规格及安装高度?
答:双管荧光灯2*28w 吸顶。
10、请设计明确下图箭头所指处1-MJ*2, 2-DY1, 3-XH, 4-JH, 5-S*2,
6-
AN*2所表示的管线规格?
答:1. MJ: 2*RVV2*1.0+Utp5 2PVC25-/WC/CC/FC
2.DY1: PC20-RVV3*0.75CT/WC/CC
3.XH: RVV3*0.75+SYV75-3 2PC20 CT/WC/CC
4.JH: PC20-CAT5e CT/WC/CC
5.S: PC20-RVV2*1.0/WC/CC
6.AN: PC20-RVV2*0.5/WC/CC
11、请设计明确此图列名称规格及安装高度?
答:消防接线端子箱HJ-1701 距地1500。
2#、3#、5#、6#楼:
1、负一层配电平面图中右侧主楼配电箱名称与左侧主楼配电箱名称不同,从左到右顺序是否为ZAP4.ZAP3.ZAL2,请设计明确?
答:是的,顺序为ZAP4.ZAP3.ZAL2。
2、在配电箱PF系统图中未见平面图中所画的照明与插座线路,具体的管线型号请设计明确?
答:照明,插座均引自PF箱,管线为WDZN-BYJ-3*2.5-JDG20。
3、在配电箱N系统图中系统线路与平面图中线路名称和线路数不符,是否有新的线路图或修改请设计明确?
答:
4、请设计明确此桥架规格型号。
答:200*100金属桥架.
4#、7#、8#、9#楼
1、在一层配电平面图中右侧抄表间桥架尺寸与左侧尺寸不同,参考其余楼层相同位置桥架尺寸该处桥架是否为250*150金属桥架。请设计明确?
答:为250*150金属桥架。
2、ALE1系统图中配电井,电井照明线路反馈在平面图中为ALG1的分支线路。是否直接从灯管处连接ALE1电箱。请设计明确?
答:是的。
3、在一层配电平面图中未见ALG1配电箱的配电间插座分支线路,是否存在请设计明确?
答:
ALG就近放置插座。
4、在PF配电箱系统图中未见其在负一层照明平面图中的照明线路,具体的线路管型请设计明确?
答: 照明,插座均引自PF箱,管线为WDZN-BYJ-3*2.5-JDG20。
5、ALG1配电箱门厅照明线路在一层平面图中线路未正确连接,按ALG2平面图线路是否可行,请设计明确?
答:以图2为准。
6、4号楼消防负一层桥架平面图未见规格型号,是否参照其他楼栋100*100封闭式镀锌金属防火桥架,请设计明确?
答:是。
12#楼:
1、配电箱N系统图与平面图不符,请优化。
答:
2、强电井照明在系统图上是ALE箱引出,而在平面图中是ALG箱引出,以哪个为准,请明确。
答:引自ALE。
3、电井、水井照明的灯具及卫生间防水开关、排气扇、成品铁艺灯箱,在图例中未见,请补充。
答:
4、平面图中洗衣机插座图示与图例不一致,请明确。
答:洗衣机以图例为准。
5、太阳能插座在平面图上显示的是热水器插座,而图例上解释以壁挂空调的插座,请明确,以哪个为准。
答:太阳能热水器插座同壁挂空调插座。
6、可视对讲配管系统中,楼层保护器到对讲室内机的配管是1根还是2根PC20管,请明确。
答:一层2根,即一户一根。
7、一层门口门禁配管,配线均未给,图例中也未见其参数,请明确具体管线及参数。
答:
8、门口监控系统图未见,请补充完善。
答:
9、可视对讲配管系统中户内紧急按钮及燃气报警器在图例中未见,请明确。
答:
10、自动火灾报警系统图中的消防端子箱到区域报警器的配管未标注,请补充。

答:JDG20。
S-1配套用房
1、
请设计明确此图列名称规格及安装高度?
答:卤化灯 120W 吸顶。
2、
请设计明确下图三处图列名称规格及安装高度?
答:1. 短路隔离器 消防端子箱内安装
2.消防电源监控模块:FP-V2 配电箱外安装
3. 消防接线端子箱 距地1500。
3、
弱电每层平面桥架,平面图标注为100*100,系统图标注为200*100,请设计明确?

答:100*100。
4、
请设计明确此图列名称规格及型号?
答:LED吸顶灯,18w。
5、
S-2号楼一层消防,弱电平面图直通电话进线,图纸未明确管径配线,请设计明确?
答:2*sc32。
6、
请设计明确消控室,消防电源监控至DYJK未见系统图,请设计明确配管配线?
答:电源线ZRN-BV-2*1.5+通信线ZRN-RVS-2*1.0-SC25。
7、
请设计明确消火栓联动系统,DZ是什么箱,未见其图列?
答:消防端子箱 距地1500。
8、一二三层照明箱1AL,2AL,3AL至卫生间回路是卫生间插座还是卫生间照明,请设计明确?
答:卫生间插座照明同一回路。
9、请设计明确下图灯具名称及规格型号?
答; 130w,金卤灯,距地2800吊装。
非人防地库:
1、在电力配电平面图中该段桥架未标注型号,请设计明确?
答:50*50普通金属桥架。
2、在电力配电平面图中该段桥架未标注型号,请设计明确?
答:200*100火灾报警消防桥架。
3、在电力配电平面图中该段桥架未标注型号,请设计明确?
答:100*100消防桥架。
4、在电力配电平面图中该段桥架未标注型号,请设计明确?
答:200*100消防桥架。
5、在电力配电平面图中该段桥架未标注型号,请设计明确?
答:100*100非消防负荷普通金属桥架。
6、在电力配电平面图中该两段桥架未标注型号,请设计明确?
答:100*100自管普通金属桥架
300*100局管普通金属桥架。
7、在电力配电平面图中该段桥架未标注型号,请设计明确?
答:100*100消防负荷耐火桥架。
8、在电力配电平面图中该段桥架未标注型号,请设计明确?
答:100*100耐火桥架。
9、在电力配电平面图中该段桥架未标注型号,请设计明确?
答:200*100耐火桥架。
10、在电力配电平面图中该段桥架未标注型号,请设计明确?
答:100*100普通金属桥架。
11、在电力配电平面图中该段桥架未标注型号,请设计明确?
答:100*100普通桥架。
12、在电力配电平面图中该段桥架未标注型号,请设计明确?
答:火灾报警100*100耐火桥架。
13、在电力配电平面图中该两段桥架未标注型号,请设计明确?
答:100*100普通桥架
200*100普通桥架。
14、在电力配电平面图中该两段桥架未标注型号,请设计明确?
答:100*100耐火桥架。
15、在电力配电平面图中该两段桥架未标注型号,请设计明确?
答:均为200*100耐火桥架。
16、在电力配电平面图中该两段桥架未标注型号,请设计明确?
答:200*100耐火桥架。
17、在电力配电平面图中该两段桥架未标注型号,请设计明确?
答:100*100耐火桥架。
18、在电力配电平面图中该两段桥架未标注型号,请设计明确?
答:200*100耐火桥架。
19、在电力配电平面图中消防泵房内该段桥架未标注型号,请设计明确?
答:200*100普通桥架。
20、在电力配电箱1ALDZ1、1ALDZ2、1ALDZ3、1ALDZ4、1ALDZ5、2ALDZ1系统图中所有单口充电桩分支线路在平面图中未见,请设计明确?
答:直接引自充电桩上方专用桥架。
21、如图标志图列中未有,名称型号安装高度请设计明确?
答:壁式排风机,详见暖施。
22、如图标志图列中未有,名称型号安装高度请设计明确?
答: 同下图例
23、如图标志图列中未有,名称型号安装高度请设计明确?
答:同下图例
24、设计说明中应急照明线路中的灯具有三种图列安装标准,以第几张图片为准,请设计明确?
答:以图1应急照明说明图例为准。
25、如图标志图列中未有,名称型号安装高度请设计明确?
答:
26、如图标志图列中未有,名称型号安装高度请设计明确?
答:安全防水插座,220V10A 距地300。
27、在电力平面图中1PY1、1PY3、1PY2、等电箱线中风机线路在平面图中仅有线,该线是否为直接连接风机线路请设计明确?
答:是。
28、在电力动力平面消防泵房中的如下图配电箱在消防泵房系统图中未见,请设计明确?
答:
29、火灾报警平面图中如图标志图列中未见,具体型号请设计明确?
答:无模块箱。平面删去。
30、生活泵系统图中线路在平面图中未见,请设计明确?
答:
31、在电力动力平面图中可见RS卷帘门控制箱的分支线路,但无对应的RS系统图,是否有对应的系统图请设计明确?
答:厂家配套。
32、在平面电力动力图中两处电箱是否为PS电箱,与桥架的连接线路请设计明确?
答:均引自主楼配电,详见单体图纸。
33、在生活泵房照明平面图中插座照明线路中间有隔断,是否按红色箭头所示绕泵房一周连接,请设计明确?
答:
引自就近插座
门卫:
1、请设计明确门卫弱电箱至电话数据终端盒配管配线型号,及系统图显示入线为SC50,但平面图为SC32,以哪个为准。

答:预留2*sc50,电话网络管线为(2*UTP6-4*2*0.5)-PC25。
2、请设计明确下图图列,名称规格。
答:280度防火阀。
(二)给排水:
共性问题:
1、请设计明确图纸雨水,冷凝水管材?
答:采用UPVC塑料排水管(防紫外线型)。
个性问题:
1#、2#、4#楼:
1、消防系统一层平面图与系统图不符,消火栓差距俩个,且一层消火栓没有配灭火器,请设计明确?

答:以平面图4个消火栓就为准,每个消火栓箱内配备MF-ABC3型手提式干粉(磷酸铵盐)灭火器2具。
2、集水井系统,潜污泵型号系统图与平面图不符,请设计明确?

答:以系统图为准,JYWQ65-25-13-1400-2.2。
3、消防系统,图纸说明1~11层消火栓为减压稳压消火栓,那负一层消火栓为普通消火栓还是减压稳压消火栓,请设计明确?
答:负一层消火栓也采用减压稳压消火栓。
S-1、S-2#楼:
1、给水大样图与系统图不符,请设计明确?
答:以平面图为准
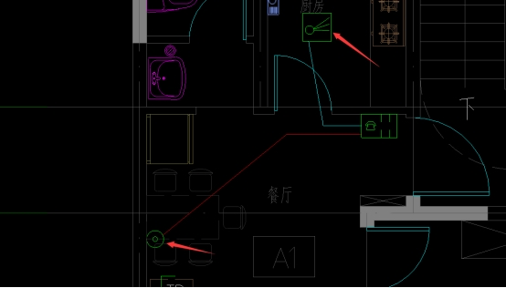
2、一层卫生间排水,残卫至污水井,平面未显示,请设计明确?

答:
以上图修改版为准。
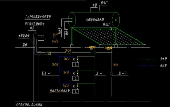
3、屋顶太阳能系统,JL-2和RJL-1为标明管径,及RJL-1一至三层顶立管未见其系统图,请设计明确?
答:以下图修改版为准
地下车库:
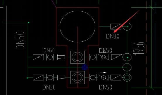
1、生活泵房中有阀门在图例中未见,请补充。
答:为电动阀。
2、生活泵房中生活水箱连接消毒机的管材规格未见,请补充完善。
答:给水管采用聚丙烯(PP-R)给水管,电热熔连接,S5管系;DN150。
3、喷淋系统中废水管材未见,请补充。
答:废水排水均采用硬聚氯乙烯排水管(UPVC),粘接,安装详见国集10S406。
人防地库:
1、战时给水中到立式气压罐的管材规格,平面图与系统图不一致,请明确。
答:DN50(图集07FS02第28、29页),具体以厂家样本为准。
临战转换时安装,平时不安装。
2、战时给水中有设备阀门在图例中未见,请补充。
答:防回流污染止回阀。临战转换时安装,平时不安装。
(三)暖通:
人防地库:
1、配电间中排气扇风管规格未见,请补充。
答:该段为Φ100软管。
地下车库:
1、防火阀大小与风管大小不一致,是否正确,请明确。
答:以所在风管尺寸为准。
2、风机PF(Y)-DF-5、PF(Y)-DF-6、PF(Y)-DF-7在材料表中未见参数,请补充完善。
答:PF(Y)-DF-5、PF(Y)-DF-6风机参数同材料表中的第二行PF(Y)-D-1参数;PF(Y)-DF-7风机参数同材料表中的第一行PF(Y)-DF-4参数。
注:此补疑视同招标文件的组成部分,与招标文件具有同等法律效力。
招标人:长丰县左店镇人民政府
地址:左店镇左店街道
联系人:丁敬帅
联系方式:0551-69016625
招标代理机构:安徽诚信项目管理有限公司
地址:合肥市滨湖新区南京路2588号(徽州大道与南京路交口)六楼
联系人:张工
联系方式:0551-66223803
2021年7月5日
三、附件
答疑发布日期:2021年07月05日