您现在的位置: 首页 >> 答疑变更 >> 安徽公共资源交易集团项目管理有限公司 >> 工程
一、原公告主要信息
原项目名称: 南岗惠园配套南岗第二小学和惠园幼儿园施工
原项目编号: 2021BFGGZ01334
原公告日期: 2021年06月26日
二、公告内容(更正事项、内容及日期等)
南岗惠园配套南岗第二小学和惠园幼儿园施工项目
招标文件补疑1
项目编号:2021BFGGZ01334
各投标人:
重要提示
1、人工费执行《关于贯彻执行2018版安徽省建设工程计价依据的通知》(合造价【2018】13号文)。其中定额人工费参与取费、取税,其相对于定额人工费增加的部分 / 元只计取税金。
2、本工程取费按“ 建筑 工程取费标准”中“民用建筑”的费率计取;其中房屋建筑、市政工程中挖或填土石方量大于5000m3的大型土石方工程,其企业管理费率8%、利润率8%,措施项目费率和不可竞争费率按房屋建筑工程相应费率乘0.6系数。
按业主要求,现对本项目招标作出如下补充:
第一部分:招标文件答疑
投标人要求澄清招标文件时间为:2021年7月9日17时30分。
第二部分:招标需求
一、招标范围:
本项目是新建一所30班南岗第二小学和15班惠园幼儿园,包括教学楼、实验楼、幼儿园、运动场、篮球场、地下室、室外附属工程(含景观(硬质铺装、停车位、消防登高面)道路、围墙、大门、给排水、路灯照明、智能化管线槽预留及预埋等)等。项目总建筑面积约31529.5㎡(其中地下面积约8257㎡);除特殊说明外,图纸设计范围内的所有内容,均按图计入。
(一)建筑工程
1、土建工程:包含土石方工程、基坑支护、桩基工程、主体结构工程、二次结构工程、砌体工程、屋面、保温、防水、散水,地下室停车位标志、标线、标识、车档、减速挡、防撞板等。
2、装饰工程:室内外门窗工程、内外墙面、地面及顶棚装饰工程、幕墙工程、栏杆、标识牌(楼层牌、楼栋牌、竣工牌、指示牌等)等。
(二)安装工程
1、
给排水工程:给水系统从水井内水表后按图计入本次招标范围。卫生洁具按图计入本次招标范围。排水按图示计入室外第一个雨污水检查井,不含检查井(雨污水检查井及后端管路由室外雨污水计入)。潜污泵按图示计入本次招标范围。
2、
强电工程:配电从自管配电房高低压柜出线至单体内的第一级动了箱线缆不计入,仅按图示计入预留预埋管道、桥架,从第一级动力箱往后按图计入本次招标范围。室外供电排管、工井、高低压线缆不在本次招标范围。防雷接地按图示计入本次招标范围。电梯计入本次招标范围。地下车库充电桩计入本次招标范围。
3、
弱电工程:仅计预留预埋、桥架。
4、
消防工程:按图示计入本次招标范围。
5、
暖通工程:按图示计入本次招标范围。
人防地下车库中战时部分:①给水系统:战时给水进水管防护密闭阀门后管道不计入,防护密闭阀门前按图示计入。含管道、防护阀门、套管等;计至出地库外墙1.5米处(不含室外的表、阀、井)(要求计入井);战时水箱、水泵、设备基础等不在本次招标范围;冲洗龙头防护阀门前管道不计入,防护阀门后按图计入,含管道、防护密闭阀门、套管、冲洗龙头等。②排水系统:防爆地漏、防爆地漏连接管道、预埋套管等按图示计入。压力排水战时部分的潜污泵及相关附件均不在本次招标范围。③强电系统:战时部分除图纸说明明确不实施的内容外,临战明敷和战时安装部分及其他均按图纸计入,防护防化设备电源按图计入。④战时通风方式信号及通信系统:按图纸计入。⑤通风系统:战时按图计入本次招标范围。空气质量检测仪、空气放射性检测仪、毒剂检测仪不计入本次招标范围。⑥固定电站冷却水系统按图计入本次招标范围。固定电站供油系统仅按图计入预埋套管。⑦安徽省人防办 2016【131】号文《安徽省人防办关于人防工程平战转换要求的通知》及合肥市人防验收要求的所有工作内容包含在本次范围。有新文件(安徽省人民防空工程 标识技术规定 安徽省人民防空办公室 二〇二〇年七月)
(三)室外总体及附属工程
1、
土石方工程:图纸设计范围内道路、停车位、硬质铺装、消防登高面、围墙、雨污水土方挖填、运输等内容。
2、
道路工程:图纸设计范围内道路、侧石、标线、标牌等内容;
3、
排水工程:图纸设计范围内雨污水管道、检查井、雨水口(雨污水管道CCTV检测、雨、污水水质监测井及设备计入)、隔油池、雨水回收系统等内容
4、
室外附属安装及智能化:
(1)室外供水及消防水工程:市政水表(含水表井)由供水集团施工,表后均按图示计入本次招标范围,总包需配合市政供水集团对道路的破除恢复。
(2)室外电气工程:不计入本次招标范围。
(3)室外消防电工程:按图示计入本次招标范围内(包含消防消控室设备)。
(4)景观照明工程:按图示计入本次招标范围内。
(四)补充说明:
1、
室外绿化苗木、景观小品不在本次招标范围。
2、
电力排管、工井工程不计入本次招标范围。
二、暂定项目:
(一)以下项目按照业主要求,以暂定工程量计入分部分项工程量清单,投标人综合考虑报价,标后按实际工程量结算。
1、与地勘报告不符处的不良地基处理暂定C15素混凝土300m³,C25素砼300m³,碎石300 m³,以上暂定项目均计入暂定量工程单位工程分部分项工程量清单中。
2、暂定工程量零星砌体50m³(煤矸石砖,M5水泥砂浆砌筑),开孔φ100共30个,φ150共30个,φ200共30个,以上暂定项目均计入暂定量工程单位工程分部分项工程量清单中。
3、为配合后期有线电视、燃气、供水、供电等施工时多余土方的挖运,暂定土方量1000m³,计入暂定量工程单位工程分项工程量清单中。
4、所有管道(含职能部门施工的强电、自来水、燃气及供电等)施工后埋深不能满足规范要求或过路管道的需要,用C15混凝土满包,暂定工程量200m³,计入暂定量工程单位工程分项工程量清单中。
6、招标范围内与地勘报告不符或深埋的建筑物基础、砖块、砼块等建筑垃圾的拆除、外运暂定工程量500m³,计入暂定量工程单位工程分项工程量清单中。
(二)以下项目按照业主要求,暂列金额为 500 万元,计入暂定量工程单位工程,投标人应按招标人所列的金额计入投标总价。
(三)执行暂估价的材料、设备、专业工程及其金额如下:
1、材料的名称、规格型号、金额:无
2、设备的名称、规格型号、金额:无
3、专业工程名称、工程内容、金额:无
上述明细投标人应按招标人所列的金额计入投标总价。
4、发包人供应材料、工程设备的采购、保管费,控制价中不再另行计取费用,投标人在总报价中综合考虑此费用。
三、按项列入清单的内容,标后不予调整:
以下项目按照业主要求,按项计入,投标人自行踏勘现场,综合考虑报价,中标后不予调整。
1、抗震支架制作、安装:内容包括本项目风、水、电各专业所涉及到的所有抗震支架。满足现行规范和技术的要求。需深化设计报建设单位、设计院确认,含设计及深化、施工等一切费用,各单体按一项计入单位工程分部分项清单中,投标人自行踏勘现场,综合考虑报价,中标后不予调整。
四、补充图纸及修改图纸的说明:
本工程在第一次发放图纸后,有补充图纸,具体详见图纸目录。
五、总承包服务费:详见招标文件
六、业主提示:投标人投标报价还须仔细阅读本项目招标文件,慎重报价。
1、
电梯基坑缓冲柱及基坑设备基础费:电梯基坑缓冲柱及基坑设备基础及后期按照电梯设备厂家需求增设的圈梁等因设备安装增加的土建费用,投标人须根据电梯厂家具体设备要求设置,自行考虑在投标总价中,清单不单独列项,中标后不予调整。
2、
投标单位应认真详细勘察现场,因场地限制,不具备材料堆场、库房、搭设加工区、搭设办公区、搭设生活区的,投标人在投标时应充分考虑,需将临时设施搭设等的所有相关费用充分考虑到投标报价中,清单不单独列项,中标后不予调整。
3、
钢筋接头按设计要求、施工规范要求及合建质安监[2011]64号文件执行,决算时不予调整,清单中钢筋量已包含马凳铁及其它施工规范要求的钢筋量,决算不予调整。同时应采取必要措施,费用自行考虑;确保钢筋砼保护层厚度满足规范要求,马凳铁采取防锈处理。
4、
室外道路、化粪池、雨污井、管道以及与建筑单体连接均在招标范围内。地下车库排水管道与道路排水管网连接含在招标范围内,图纸上无明确的,施工单位应自行考虑连接费用,中标后不予调整。
5、
门窗(含公共部位限位)具体颜色由中标单位提供样品,设计单位及招标人确定,投标考虑此项因素,因颜色调整不得调整单价。
6、
本项目土方为综合类土(含部分杂质土、建筑垃圾、淤泥土、石块、岩层等),回填土满足施工图纸设计要求;土方全部外运,用于基础回填的土方不堆放在现场。投标人需要结合地质勘查报告、土方测绘图、总平面图、施工图等,自行勘查现场,运距自行考虑,自行分析报价,投标人综合报价应考虑土方施工中的实际运距或超出部分的运距、渣土费、渣土运输清理费、保洁费、弃土场及消纳管理费等所发生的一切费用,中标后不予调整,且严格执行高新区渣土运输管理规定。
7、
基坑应急措施处理费及基坑支护观测费用,含坡顶水平位移及竖向沉降、深层水平位移、锚杆内力、管线应急处理措施等,费用包含在投标总价中,投标人综合考虑,自行报价,标后不予调整。
8、
桩基检测等检验、检测后期由业主单独委托,不计入本次招标范围。
9、
地下室外墙后浇带先回填外围留置工作井费,后期采用大体积砼浇筑专项措施费,费用包含在投标总价中,清单不单独列项,中标后不予调整。
10、
施工便道费用包含在投标总价中,清单不单独列项,中标后不予调整。
11、
中标后招标人有权要求中标人按照国家、省、市关于水土保持的文件及要求进行生产建设活动中水土保持方案编制、施工监测及验收等,并通过相关验收及检查,投标人自行踏勘现场、自行报价,费用含在综合报价中,中标后不予调整。
12、
施工现场由于原状地貌发生变化新增的土方挖运费用,投标人充分考察现场,中标公示结束后,自行看护,红线范围内的场地因此增加的土方挖运等费用不再另行计量。
13、
项目红线外部分段落土方高差较大,投标人应充分考虑季节性施工带来的雨水冲刷,保证道路范围内及周边构筑物水系畅通,投标人在报价时应充分考虑此部分费用,清单不单独列项,中标后不予调整。
14、
农民工工资网上信息管理系统,农民工实名制管理系统相关费用软件购买、专利、信息管理费用,清单控制价不单独列费用,费用含在投标报价中,投标人在投标报价中应综合考虑,中标以后不再调整。因中标人原因达不到标准的,将予以10万元的违约金处罚。
15、
消防检测费:检测内容主要包含火灾自动报警系统、消防联动系统、消防给水系统、气体灭火系统、防火卷帘及防火门系统、防排烟系统、应急照明及疏散指示系统等;检测项目主要包含外观检查、布线检测、安装检测、系统功能试验检测等。投标单位必须确保整个消防验收通过。清单控制价不单独列费用,费用含在投标报价中,投标人在投标报价中应综合考虑,中标以后不再调整。
16、
本工程投标单位须按照全程抢工考虑,投标人在投标报价中应综合考虑,中标以后不再调整。
17、
施工用水开户等:满足总包单位前期施工用水以及项目建成后的总用水量(按图纸设计的位置、表径、数量向供水集团申请报装);以上均含管网建设费、增容费、破路、恢复、水表、管道、报装及内部接引、看护、日常管养(含配合施工迁移)等所有费用,含附属施工完毕项目建成投用后,将该水表到供水集团办理水表变更为正式用水表,其他见招标文件说明。投标人需考虑后期各单项分包总用水容量、必须保证证件齐全、手续合法。上述费用清单控制价不单独列费用,费用含在投标报价中,投标人在投标报价中应综合考虑,中标以后不再调整。
18、
临时施工用电报装及接引费:不少于1台400KVA,含线路及设备费用等,报价中须包括含供电设计、监理、施工及确保最终送电以及过程中一切报建手续费用等其他费用等,后期考虑残值、折旧回收处理,上述费用清单控制价不单独列费用,费用含在投标报价中,投标人在投标报价中应综合考虑,中标以后不再调整。
19、
开道口费:(三处)开设道口以及临时施工道口(含临时道口拆除恢复)计入本次清单范围内,报价中须包括手续申报(必须保证证件齐全、手续合法)、施工等一切费用(含绿化迁移,市政设施破复、施工便道、围墙等费用),上述费用清单控制价不单独列费用,费用含在投标报价中,投标人在投标报价中应综合考虑,中标以后不再调整。
20、
雨水、污水排水管与市政接口连接费:雨污水管与市政管网的连接、疏通费用(含道路、破除、恢复等费用),上述费用清单控制价不单独列费用,费用含在投标报价中,投标人在投标报价中应综合考虑,中标以后不再调整。
21、
新旧道路衔接费:新建路面层与现状路面搭接2米,上述费用清单控制价不单独列费用,费用含在投标报价中,投标人在投标报价中应综合考虑,中标以后不再调整。
22、
现场建筑垃圾、生活垃圾、树木、植被等杂物的挖运:上述事宜所需费用投标人结合设计图纸自行踏勘现场后综合考虑报价,一次性包死,清单控制价不再单独列费用,结算时不再调整。
23、
现场建筑物构筑物基础的拆除、道路硬化的拆除、障碍物的拆除及拆除垃圾的外运费用:上述事宜所需费用投标人结合设计图纸自行踏勘现场后综合考虑报价,一次性包死,清单控制价不再单独列费用,结算时不再调整。
24、
雨污水管道、其他综合管线交叉处理:雨污水管道、其他综合管线交叉处理净距不能满足规范要求时,按设计要求进行处理,上述事宜所需费用投标人结合设计图纸自行踏勘现场后综合考虑报价,一次性包死,清单控制价不再单独列费用,结算时不再调整。
25、
智能围挡喷雾系统: 具体详见高新区相关规定;所有安装降尘助理系统的工地,需联网到相关监管单位降尘助理平台(包括施工期间的日常维护、破旧围挡的更换等);上述事宜所需费用投标人结合设计图纸自行踏勘现场后综合考虑报价,一次性包死,清单控制价不再单独列费用,结算时不再调整。
26、
配合燃气、供水、供电、有线、通信等各类专业与市政管道的接引、破复、绿化迁移等相关费用:上述事宜所需费用投标人结合设计图纸自行踏勘现场后综合考虑报价,一次性包死,清单控制价不再单独列费用,结算时不再调整。
27、
现有杆、管线(供电杆线、强弱电)迁移,包含杆线、变压器、T接点:中标单位施工前需对接有关产权单位,办理相关施工协议,制定迁移措施,并征得产权单位同意后方可施工,确保施工和管线运营安全,上述事宜所需费用投标人结合设计图纸自行踏勘现场后综合考虑报价,一次性包死,清单控制价不再单独列费用,结算时不再调整。
28、
现有各种杆、管线(供电杆线、强弱电、国防光缆、供水、燃气、热力等)及建筑物支撑、保护及加固等:中标单位施工前需对接有关产权单位,办理相关施工协议;制定加固保护措施,并征得产权单位同意后方可施工,确保施工和管线运营安全。中标单位在开工前应委托有相关资质的单位进行地下管线调查并出具报告提交业主及监理,中标人根据调查报告采取必要措施对管线进行保护并合理确定施工方案,施工过程中造成杆线、地下管线、建筑物等损坏,维修费用由中标单位负责,上述事宜所需费用投标人结合设计图纸自行踏勘现场后综合考虑报价,一次性包死,清单控制价不再单独列费用,结算时不再调整。
29、
电梯施工配合事项:电梯间(地下和地上电梯间)的电梯基坑爬梯制作、安装,机房开孔、补洞、修补等零星工程,各层电梯楼层显示盒及按钮盒等预留洞口,电梯安装后门框边与墙体间塞实及修补,上述事宜所需费用投标人结合设计图纸自行踏勘现场后综合考虑报价,一次性包死,清单控制价不再单独列费用,结算时不再调整。
30、
预留洞口封堵、防水处理费:含各种管道及所有穿楼板管道、电梯安装预留洞、门洞口等各专业配套工程封堵、防水处理、微膨胀细石混凝封堵、预埋套管(套管中间焊接10cm宽防水环),及对原状的破坏及恢复,垃圾清运等全部工作,上述事宜所需费用投标人结合设计图纸自行踏勘现场后综合考虑报价,一次性包死,清单控制价不再单独列费用,结算时不再调整。
31、
沉降观测点预埋费用(仅计预埋):投标单位根据现有的图纸资料、招标文件和施工规范等资料,充分考虑,上述事宜所需费用投标人结合设计图纸自行踏勘现场后综合考虑报价,一次性包死,清单控制价不再单独列费用,结算时不再调整。
32、
各类专项施工方案论证:投标人应充分熟悉设计图纸,对业主按规定可能要求做专家论证的施工方案,由投标人自行按照相关规定进行组织审图和专家论证等工作,经论证通过的专项方案须报经建设单位、监理单位等单位审核上述事宜所需费用投标人结合设计图纸自行踏勘现场后综合考虑报价,一次性包死,清单控制价不再单独列费用,结算时不再调整。
33、
预留洞口封堵及墙顶填缝:砌筑墙留洞待管道设备安装后,用C20细石混凝土填实;变形缝处双墙留洞的封堵,应在双墙分别增设套管;凡墙上预留有设备箱、柜等与墙体等宽时,在粉刷前加铺一层镀锌钢丝网,周边宽出300,丝径1.0, 屋面下砌体填充墙或隔墙的顶部为斜面时,待墙体砌好五天后,在墙顶部两边用干硬性的C20细石混凝土塞入顶部缝内,务必嵌实,上述事宜所需费用投标人结合设计图纸自行踏勘现场后综合考虑报价,一次性包死,清单控制价不再单独列费用,结算时不再调整。
34、
电源调试电缆:包含电梯电源、消防电源、设备电源等电源调试所需要的电缆,上述事宜所需费用投标人结合设计图纸自行踏勘现场后综合考虑报价,一次性包死,清单控制价不再单独列费用,结算时不再调整。
35、
原有围墙拆除:现有围墙,围墙与基坑支护冲突处,施工时需拆除围墙,含现场围墙基础、围墙、栏杆等全部拆除及垃圾外运,此段室外弱电在施工阶段将线缆架空敷设,架空高度及具体位置,根据现场实际情况定,靠近的围墙的监控设备根据现场实际情况移位,在施工结束后相关室外弱电按原图纸复原,相关位置的管、线缆、设备等需采取保护性措施,上述事宜所需费用投标人结合设计图纸自行踏勘现场后综合考虑报价,一次性包死,清单控制价不再单独列费用,结算时不再调整。
36、
BIM技术应用费用、智慧工地终端建设费用:具体详见“招标文件”,以上所列的“BIM技术应用”和“智慧工地终端建设”在实施前须编制具体的实施方案,报建设单位同意后方可实施。建设单位将组织相关专家对中标人完成的“BIM技术应用”和“智慧工地终端建设”进行专项验收,因中标人原因最终达不到验收要求的,将分别予以200万元的违约金处罚。清单控制价不单独列费用,费用含在投标报价中,投标人在投标报价中应综合考虑,中标以后不再调整。
第三部分:设计文件及技术补充说明
一、
土建工程
(一)
共性问题
1.
土方:包括挖、填、运、内倒、外弃等,取土点、弃土点不指定,工程量包死。投标单位应对现场进行详细深入勘查,并考虑现状可能发生的变化,实测工程量,自行考虑土方挖填平衡,中标后不得调整。土方施工包含施工区域范围内地下室及单体楼基坑开挖、土方外运及回填,现场超挖部分所产生的超挖、回填、运弃土等全部费用由中标人自行承担,中标后不得调整。挖、填、内倒、弃土运距、弃土点及借土运距、借土点(包括取土场清表、便道、弃土场平整等),所有费用含在投标报价中(包括土源费、渣土费等相关一切费用),慎重报价,中标后不得以任何理由调整价格。
2.
本项目场区土方开挖及回填工程量、施工顺序清单控制价应如何考虑?
答:场区土方平衡工程量按照测绘结果计入。土方开挖及回填施工顺序清单控制价按照:各单体、地库按场地平衡后的标高开挖至基础垫层底部进行主体结构的施工;主体结构施工完毕后,回填至室外铺装结构层下底面标高或相邻单体楼室外散水标高。硬质铺装、园区道路、室外景观园建、室外管道等按反挖施工,具体施工方案由投标人自行踏勘现场,综合考虑一切费用进行报价,中标后不予调整。
3.
本项目是否所有混凝土、细石混凝土均采用商品混凝土?所有砂浆均采用预拌砂浆?
答:均采用商品混凝土、均采用预拌砂浆。
4.
一级钢∅6市场无法购置到,是否用一级钢∅6.5代替?
答:可以。
5.
本工程所有不锈钢是否均采用304不锈钢?
答:均采用304不锈钢。
(一)基坑支护问题
1、
防护栏杆大样,如下图,请明确挡板是用密目网还是用踢脚板?若用踢脚板,请明确具体材质?
答:采用200mm宽10mm厚复合木模板踢脚板。
2、
桩间拱墙详图中,M10水泥砂浆抹面的厚度是多少?
答:M10水泥砂浆 10mm厚。
3、
集水坑的底部做法图纸中未明确?
答:150mm厚C20砼底板。
4、
围护桩的入岩深度是多少?
答:按照1m计入。
5、
钢筋网片大样,如下图,请明确,本工程具体适用那个大样?
答:本工程适用钢筋网片大样(适用于放坡、桩间挂网)。
(二)
地库土建问题
1.
非人防区筏板、地库现浇板的马凳筋是否设置?如设置请明确其具体规格型号,其布置方式是矩形布置还是梅花布置?
答:结施33已注明底板马凳筋规格,顶板马凳筋按规格按12@1000x1000设置。
2.
人防地下室顶梁配筋平面图结施08/09中,1-7轴/X轴处梁C-KL13(4)400*600信息不完整,请予以明确?
答:经复核,此梁截面及配筋图纸均已完整表达。
3.
请明确电梯基坑坑底标高?
答:底标高为-7.500。
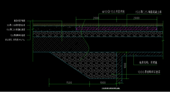
4.
幼儿园地库消防水池X向间距结构图与建筑图不一致(如下图),请明确以何为准?
答:以建施为准。
5.
人防地下室建施-02/08,S-R轴/9轴处的人防门标识与截面尺寸不一致(如下图),请明确以何为准?
答:按GHSFM5528(6)为准。
6.
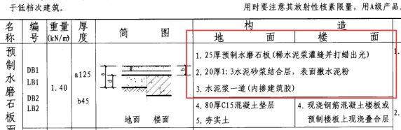
本工程筏板、集水坑、电梯井等是否需要设置砖胎膜?若设置,请明确砖胎膜材质及砌筑砂浆、抹灰砂浆做法?
答:设置砖胎膜,如下图,其中抹灰砂浆20厚:
7.
地库现浇板的分布筋,图纸未明确?
答:地库顶板均为双层双向配筋。
8.
地下室外墙2:8灰土的回填范围,图纸未明确?
答:回填材料采用粘性土或亚粘土(粉质粘土),具体做法详见结施总说明5.9条。
9.
建施C-D#一层平面图与结构地下室顶板结构平面布置图一中圆形采光井不一致(如下图),请明确以何为准?
结构地下室顶板结构平面布置图一:
建施C-D#一层平面图:
答:采光井布置按建施设置,结构调整此处楼板采光井开洞。
10.
(战时)进风机房、排风(烟)机房、厨房烹饪加工区、各类库房区、备餐、分拣区、女更、男更、淋浴间、卫生间的吊顶高度分别是多少?墙面粉刷层和装饰层是否施工到吊顶底部?
答:吊顶贴管道下方设置,且不小于3.2m。粉刷层和装饰层施工到吊顶底部上100.
11.
人防地下室负一层平面图建施02/08中(如下图),此构件是否为砖砌体,其标注的洞口具体尺寸是多少?
答:砖砌体,洞口2.3m高。
12.
下沉庭院墙面、顶棚无具体做法?
答:下沉庭院墙面按外墙有保温做法。顶棚为白色无机防霉涂料顶棚。
13.
下沉庭院处的乒乓球桌在不在本次招标范围之内?若在请提供具体参数?
答:不计入。
14.
卫生间、淋浴间的隔断是否在在本次招标范围之内?若在请提供具体详图及参数?
答:在本次招标范围,具体详图及参数见建施26.
15.
如下图,洗手台、洗手池是否在本次招标范围之内?若在请提供具体做法及参数?
答:在本次招标范围,卫生间内具体详图及参数见建施26.分拣区内的洗手池采用不锈钢成品洗手池。
16.
筏板(含变截面)、柱墩、排水沟、截水沟混凝土中是否同地下室外墙、地下室顶板楼盖(1F)室外区,掺加聚丙烯腈合成纤维?
答:否。按图纸说明,仅外墙、顶板掺加。
17.
地下室基础平面布置图(一)基础垫层为100厚,建筑构造做法一览表中基础垫层为150厚,请明确已经何为准(如下图)?
结施:
建施:
答:以结施为准。
18.
地下室电梯间前室、弱电间、强电间、办公室、排烟井、油烟井、电井的墙面、地面、顶棚的装饰做法未明确?
答:具体构造做法详建施04:
| 位置
|
地面
|
墙面
|
踢脚/墙裙
|
顶棚
|
| 地下室电梯间前室
|
楼10(水泥基自流平)
|
内1(无机涂料)
|
踢1(水泥砂浆)
|
棚1(防霉无机涂料)
|
| 弱电间、强电间、排烟井、油烟井、电井
|
楼2(细石混凝土防水)
|
内3(水泥砂浆防水)
|
/
|
棚1(防霉无机涂料)
|
| 办公室
|
楼3(防滑地砖)
|
内1(无机涂料)
|
踢2(地砖)
|
棚1(防霉无机涂料)
|
19.
如图所示,管道进、水泵房的墙面、顶棚是否需要设置减震措施?若需要,请明确具体做法?
答:不需要.
20.
风井顶板、雨棚是否需要设置防水设置?若需要,请明确具体做法?
答:1:2水泥砂浆掺15%防水剂最薄处20厚.
21.
高压喷射扩大头锚杆详图及说明中,杆体钢筋型号不一致,请予以明确?
答:杆体钢筋直径为36mm。
22、
结构总说明中,如下图,是否按照说明中要求,所有构件均需要掺加膨胀剂?
答:地下室基础、外墙柱需要掺加膨胀剂。
23、
人防的标识标牌是否需要按照二〇二〇年七月的《安徽省人民防空工程标识技术规定》进行设置?若是,请明确具体规格、材质、数量?
答:按照二〇二〇年七月的《安徽省人民防空工程标识技术规定》进行设置,具体规格材质数量如下:
导引标识牌—人防工程标识牌共计1套,规格尺寸:700*450mm,材质:面层采用工程级反光材料,图徽及边 框为白色反光膜,单面贴膜,反光膜应具备较好的逆反射性 能,耐久时限应在 7 年以上。字体为微软雅黑,加粗。
导引标识牌—人防工程指示牌共计1套,规格尺寸:950*400mm,材质:面层采用工程级反光材料,图徽及边 框为白色反光膜,单面贴膜,反光膜应具备较好的逆反射性 能,耐久时限应在 7 年以上。字体为微软雅黑,加粗。
导引标识牌—掩蔽工程导引标识牌共计2块,规格:800*540*5mm,材质:厚度不小于 5mm 的双面亚克力板,UV 打印;标题字体为国标黑体,字高 50mm,正文字体为微软雅黑,正文字高 10mm,右侧标注字体 为微软雅黑,字高 30mm。
导引标识牌—人防工程主、次要出入口标识牌共计2块,规格:800*540*5mm,材质:厚度不小于 5mm 的双面亚克力板,UV 打印;标题字体为国标黑体,字高 50mm,正文字体为微软雅黑,正文字高 10mm,右侧标注字体 为微软雅黑,字高 30mm。
导引标识牌—人防车位标识牌共计36块,规格:350*190*5mm,材质:材质为亚克力板,厚度为 10mm,背丝印,正面设置透明亚克 力插槽,插槽厚 2mm。
导引标识牌—电梯、楼梯、战时主(次)出入口标识牌共计8块,规格:1000*400*5mm,材质:2mm厚不锈钢折边彩喷,字体为微软雅黑,子目Times News Roman 字体。
管理标识-人防工程示意图共计1块,规格:1300*800*5mm,材质:为厚度不小于 5 mm 的双面亚克力板, 文字颜色应为黑色,字体为国标黑体。
管理标识-人防工程维护管理制度共计1块,规格:600*800*5mm,材质:为厚度不小于 5 mm 的双面亚克力板, 文字颜色应为黑色,字体为国标黑体。
管理标识-人防工程平时使用须知共计1块,规格:600*800*5mm,材质:为厚度不小于 5 mm 的双面亚克力板, 文字颜色应为黑色,字体为国标黑体。
设施标识-功能间标识牌共计20块,、规格:500*170*5mm,材质:功能间标识牌应采用 5mm 塑料板彩喷,黑色图形 符号、边框、文字背面丝印。标识牌字体为国标黑体,字母 为 Times New Roman 字体。
设施标识-平战转换标识牌共计2块,规格:1200*800*5mm,材质:厚度不小于 5mm 的双面亚克力板,UV 打印;标题字体为国标黑体,字高 50mm,正文字体为微软雅黑,正文字高 10mm,右侧标注字体 为微软雅黑,字高 30mm。
设备标识-通风方式显示装置三格灯箱式共计8套,规格:700*280mm,材质及做法:通风方式显示装置制作成电子显示屏显示 三种通风方式,清洁式通风显示文字“清洁”,文字颜色为- 20 - 中国颜色体系标号(颜色编码)1.9G7/6.8(1161);滤毒式 通风显示文字“滤毒”,文字颜色为中国颜色体系标号(颜 色编码)0.6GY8/8.8(1101);隔绝式通风显示文字“隔绝”, 文字颜色为中国颜色体系标号(颜色编码)6.9R4/11.(6 1085)。
管线标识-电缆线标识牌共计80块,规格:80*40*2mm,材质及做法:标注内容为:规格型号、电压等级、电缆走向(去向和来向)、 电缆长度和工程竣工图中的电缆编号等。电缆管线标识牌材 质为厚度不小于 2mm 的国家标准平板铝合金。印制方式为烤 漆,耐久时间应在 10 年以上不褪色。电缆管线标识牌背景颜 色为绿 色 RGB (8 ,119 ,21 ), 文字颜 色为白色 RGB (255,255,255),字体为黑色,字号大小适当,同一工程应一致。
提示性标识共计8块,规格:500*200*5mm,材质及做法:“人防工程 严禁破坏”、“地面湿滑 小心滑倒”、“注意管线 小心碰 头”、“内部空间 严禁吸烟”,标识牌采用 5 mm 亚克力板彩喷,黑色图形符号、边框、 文字背面丝印。字体应为国标黑体。
人防涂刷色标识标线共计120m2,涂刷部位:管理标识、导引标识、设施标 识、设备标识、管线标识、提示性标识标线。
24、
如下图:配电房、工具间处结构标高与建筑标高有1m的高差,此处是否有C20泡沫混凝土进行回填?
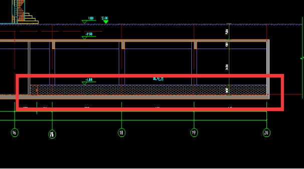
答:配电房处楼面做法完成后的标高符合图纸所示的建筑标高,所以配电房不要用C20泡沫混凝土进行回填,工具间楼地面需要用50mm厚C20泡沫混凝土进行回填。
25、
如下图,楼面10(水泥基自流平地面),找平层:50厚的C25细石混凝土的混凝土强度是否满足施工要求?
答:找平层修改为50厚C30细石混凝土。
(三)
教学楼土建、装饰
1、
如图,图纸结施07此节点圈梁截面尺寸图纸未明确?
答:尺寸为墙厚x400
2、
如图,图纸结施09此处圆形梁图纸未明确具体做法?
答:按此大样。
3、
如图,此类板负筋是否均为附加筋?板面筋是否均设置双向钢筋?
答:均为附加,板面筋是双层双向。详板配筋图中说明1.
4、
如图,D区二层柱大样缺少D1-KZ12配筋图?
答:D1-KZ12在4.700~9.200m标高柱配筋详见下图:
。
5、
建筑设计说明要求竖井内壁砌筑灰缝需饱满,随砌随原浆抹平,请明确此抹灰层厚度及砂浆配比?
答:9厚1:2.5水泥砂浆。
6、
如图,外墙保温做法是否按注释2要求,采用两道耐碱网格布?
答:是。
7、
建筑设计说明第4.1条要求有水房间地面、墙面采用1.5厚聚合物水泥防水涂料,而建筑构造统一做法表中为1.5厚JSII型防水涂料,是否矛盾?
答:所有均统一为1.5厚JSII型防水涂料。
8、
建筑设计说明建筑构造统一做法表中内2墙面砖规格尺寸未明确?
答:300X600,见建施04.
9、
建筑设计说明建筑构造统一做法表中楼/地3、楼/地4、楼/地5面砖规格尺寸未明确?
答:见建施04.
10、
建筑设计说明建筑构造统一做法表中楼/地9无缝陶瓷面防静电地板规格尺寸未明确?
答:600X600.
11、
建筑设计说明建筑构造统一做法表中棚6岩棉板容重需明确?
答:干密度160 kg/m³.
12、
建筑设计说明建筑构造统一做法表中裙1、裙2釉面砖规格尺寸未明确?
答:见建施04.
13、
建筑设计说明建筑构造统一做法表中裙2做法镀锌电焊网规格未明确?
答:如下表。
14、
建筑设计说明建筑构造统一做法表中台1毛面花岗岩品种及规格未明确?
答:详景观施工图。
15、
如图,变形缝做法中铝合金盖板厚度需明确?
答:2.0厚。
16、
如图,屋面消防水箱设备基础做法请明确?
答:设备基础做法详见结施。
17、
如图,此设备基础是否计入本次招标范围?若计入请明确具体做法?
答:每块集热器按4个矩形素混凝土基础计入,单个基础尺寸200*200*500(高),强度C25.基础施工前需热水器厂家确认定位布置。
光伏板基础同上。
18、
如图,此处回填是否采用素土回填?


答:首层室内回填土区域做法:素土分层夯实回填(压实系数≥0.94。),100厚碎石垫层,100厚C25钢筋混凝土地坪,配双层双向Φ8@200钢筋。
其上再按相应的建筑面层构造做法计入。
19、
如图,室外台阶结构做法请明确?
答:砖砌台阶+80厚C20混凝土垫层,内配Φ8钢筋,双向@200+素水泥浆一道(内掺建筑胶)+20厚1:3水泥砂浆粘结层+撒素水泥面(洒适量清水)+30厚毛面花岗岩石板铺面,背面及四周边满涂防污剂,灌水泥浆擦缝+台口双层加厚处用硅酮胶粘贴与面板相同石条;
20、
如图,图纸建施26要求卫生间门洞做不锈钢门套,请提供节点大样图?
答:13J404的2/40和4/40.
21、
如图,大便蹲位图集做法中未明确蹲位高度?蹲位外围砌筑做法未明确,蹲位内填充做法未明确?
答:复核结构已降板,蹲位平建筑完成面。
22、
卫生间大便隔断、小便隔断抗倍特板厚度需明确?
答:12mm厚.
23、
如图,卫生间化妆台大理石厚度、品种需明确?台面竖向挡水板高度需明确?
答:黑色大理石台面,15mm厚。挡水板高度80mm.
24、
卫生间化妆镜厚度需明确?
答:5mm厚。
25、
卫生间盥洗池装饰面层做法需明确?
答:黑色大理石台面,15mm厚;挡水板高度80mm;配置品牌(业主定)龙头,水池直径400mm,深度180mm,配304不锈钢下水器。
26、
无障碍卫生间各类抓杆是否均采用不锈钢材质?
答:采用304不锈钢,表面防滑处理。
27、
百叶窗壁厚、材质请明确?
答:百叶1.2厚,铝合金。
28、
如图,屋面排水沟中铸铁篦子及支架具体规格、间距等做法未明确?
答:400x600x220(高),满铺.
29、
如图,教室外走廊排水沟盖板具体材质、做法未明确?
答:预制25mm厚水磨石板。
30、
如图,小便槽支架的立柱、横梁规格、壁厚、间距需明确?304不锈钢格栅请提供大样样式?
答:不锈钢格栅950×1200×10(耙齿栅隙)×70。
31、
如图,厨房地沟不锈钢格栅请提供大样样式?
答:不锈钢格栅950×1200×10(耙齿栅隙)×70。
32、
如图,走廊竖向阳角护角条两侧尺寸请明确?
答:60mm。
33、
如图,A-AC立面图此处外墙做法图例中未标注,请明确具体材质及做法?此处圆形图案做法需明确?
答:实墙板挖圆洞,洞侧面装饰面层为无保温橙红色装饰砂浆。
34、
楼梯间地面是否采用水磨石地面?
答:做法详见下图
35、
如图,B区此处墙身参照哪种大样做法?
答:参8大样。
36、
如图,走廊成品排水沟材质、壁厚需明确?
答:树脂混凝土{缝隙式排水沟(侧边三缝)}
37、
门窗洞口侧边保温是否按保温砂浆考虑,请明确做法?
答:是。参皖2018JZ128的第17页。
38、
装修做法表中楼地面12水磨石地面做法无保温层是否有误?此做法为教室、办公室等地面做法。
答:无误,楼地面不做保温。
39、
水磨石地面分隔尺寸为多少?
答:800x800。
40、
装修表楼13运动木地板对应做法是否为楼/地8:运动木地板楼面?
答:是,楼地面保温不计入。做法按下图:
41、
教学楼所有的保温及对应的保温保护层均取消不计入。
42、
室外楼梯地面装饰面层做法需明确?
答:30厚毛面花岗岩石板铺面,20厚1:3水泥砂浆粘结层;
43、
装修做法表中计算机教室、录播教室顶棚参照棚6做法是否有误?是否参照棚1做法?
答:是,按棚1做法。
44、
装修做法表中卫生间顶棚参照棚3做法是否有误?是否参照棚4做法?
答:是,按棚4做法。
45、
建筑立面图中图例深灰色埃特板、穿孔铝板、U型玻璃砖墙面的具体做法需明确?
答:深灰色埃特板采用干挂,做法参外3,穿孔铝板做法见附件-穿孔铝板节点图,U型玻璃砖墙面做法见国标06J505-1第F12页。
46、
如图,室外楼梯此处栏杆材质及做法需明确?
答:此大样主要是表达楼梯详图,平台栏杆按平立面,为钢质平台栏杆;楼梯栏杆参见国标15J403-1第B39页A32型。
47、
窗台是否考虑设置窗台板?
答:设置,与瓷砖墙裙圆角连接。
48、
报告厅屋面是否为上人保温平屋面做法?
答:是。
49、
如图,D区三层建筑图此处屋面参照哪种做法?
答:屋1, I级防水, 不上人保温平屋面。
50、
如图,C区二层建筑图此处小剧场屋面参照哪种做法?
答:屋2,I级防水 ,上人保温平屋面。
51、
如图,C区二层建筑图此处屋面参照哪种做法?
答:屋4 ,I级防水, 不上人不保温平屋面。
52、
如图,一层兴趣角、备用房间此处窗户做法图纸未明确?
答:窗户做满在内侧,外侧为造型砌体。
53、
如图,建施33此处栏杆做法未明确?
答:此大样主要是表达楼梯详图,平台栏杆按平立面,为钢质平台栏杆;楼梯栏杆参见国标15J403-1第B39页A32型。
54、
如图,报告厅屋面栏杆高度立面图为900mm,请明确高度及具体做法?
答:屋面栏杆高度1200,钢质平台栏杆做法见国标15J403-1第D16页PA4型。
55、
墙裙1、2、3高度是否为1.2米?
答:是。
56、
保安室内装做法是否参照行政办公做法?
答:是。
57、
排烟机房内装做法未明确?
答:楼3(防滑地砖),内4(石膏板吸声墙面),踢2(地砖),棚3(石膏板吸音吊顶)
(四)
教学楼精装修
1、
如图,PVC塑胶地板做法图纸未明确?
答:PVC塑胶地板做法详见图集做法,基层自流坪做法: 3mm厚自流平找平层
+2mm水泥自流平界面剂。
2、
如图,图书馆楼梯采用架空木地板是否合适?是否为平铺木地板做法?
答:为平铺木地板做法。
3、
报告厅F-5 600*600-30全钢制抗静电地板做法图纸未明确?
答:全钢制抗静电地板做法详见此节点做法。
4、
白枫木色覆膜金属复合板墙面型钢龙骨竖向、横向间距需明确?
答:钢龙骨竖向间距不大于1200、横向间距不大于2400,具体详见立面图纸分缝。
5、
报告厅舞台型钢地台龙骨间距需明确?
答:钢地台龙骨间距不大于1200。
6、
报告厅白枫木烤漆木挂板墙面具体做法未明确?
答:白枫木烤漆木挂板墙面具体做法详见节点做法。
(五)
教学楼幕墙
1、
如图,幕墙图纸E001铝合金窗套A-B#A-D轴立面图、A-B#D-A轴立面图无索引做法,请明确具体做法?
答:做法同其他窗套,详节点D001、D002、D003
2、
如图,铝合金窗套壁厚未明确?
答:壁厚2.5mm。
3、
如图,幕墙图纸A-B#1-16轴立面图此处屋面女儿墙建筑图为栏杆做法,幕墙图纸为穿孔铝板,以何为准?
答:以建筑图为准,改为栏杆。
(六)
幼儿园土建
1、
如下截图,关于砌体材质及砌筑砂浆这块结构说明与建筑说明不符,请明确以何为准?
答:以建筑为准。
2、
如下截图,人流通道钢丝网加强做法结构说明与建筑说明不符,请明确以何为准?且抹灰做法与装修表中抹灰重复,请明确以何为准?
答:以建筑为准,抹灰做法按装修表。
3、
如下截图,请明确砂浆抹平厚度及配比?
答:20厚1:2.5水泥抹灰砂浆抹面压实赶光。
4、
结施-08图,1-C~1-D轴下截图部位梁代号及信息未标注,请明确?
答:此为水平折梁,配筋截面为ZL3(2)所注明配筋截面。
5、
结施-10图,2-E轴交2-1~2-2轴下截图部位梁代号及信息未标注,请明确?
答:按右图所示:
6、
外墙饰面做法中“20厚聚合物水泥防水砂浆找平层”,需明确砂浆配比?
答:1:2聚合物水泥防水砂浆。
7、
内1:无机涂料墙面做法中“墙面满刮腻子找平”,需明确腻子批几遍?
答:两遍。
8、
楼/地4:阻燃型塑胶地板做法中“自流平找平层”,需明确找平层厚度?
答:5mm厚。
9、
楼6:防静电活动地板做法中“无缝陶瓷面防静电地板”,需明确防静电地板具体材质、规格及厚度?
答:楼6按下图做法。
10、
棚6:板底贴岩棉板保温顶棚做法中“无机外墙涂料饰面”,需明确具体做法?
答:此处参考“外1”无保温装饰砂浆墙面做法。
11、
踢2:地砖踢脚做法中“5~10厚地砖踢脚”,需明确地砖具体厚度?
答:10厚。
12、
门窗表中防火门为木质还是钢质?
答:钢制。
13、
铝合金百叶壁厚需明确?
答:百叶壁厚1.0。
14、
断热铝合金中空玻璃5+19A(百叶)+5+6A+5,窗内百叶材质及壁厚需明确?
答:铝合金百叶,1.0mm壁厚。
15、
FM甲1123门窗表尺寸1500X2300是否有误?
答:FM甲1123洞口尺寸1100X2300。
16、
MLC2631门窗表尺寸1500X3100是否有误?
答:MLC2631洞口尺寸2600X3100。
17、
LC4317门窗表尺寸41000X1750是否有误?
答:LC4317洞口尺寸4300X1750。
18、
女儿墙内侧饰面做法是否同外立面?
答:装饰砂浆,同外立面
19、
如下截图,外立面字体是否计入本次招标范围,若计入,请提供详细规格、材质及做法?
答:不计入本次招标范围。
20、
幕墙及精装图纸中门窗材质描述与建筑图不符时,请明确是否以幕墙及精装图纸为准?
答:是
21、
如下截图,活动室柜体是否均不在本次招标范围?
答:计入,柜子深度为600,背板材料为18mm厚烤漆木挂板,饰面及柜门为18mm厚烤漆木挂板;柜体内部分隔同门板分割。颜色封样确定、柜板正式下料加工前需业主确认。
22、
如下截图,图中示意扶手是否在本次招标范围,若在,请明确规格及材质?
答:计入;壁厚2.0,304不锈钢扶手。
23、
结构墙身节点与建筑不符处,类似结构为砼建筑为砖砌、尺寸对不上等,请明确以何为准?
答:以结构为准。
24、
门窗表中LC3623尺寸3600*2350与大样尺寸3650*2350不符?
答:改为3650*2350。
25、
门窗表中C9223、LC9223、LC9223a尺寸9200*2350与大样尺寸9250*2350不符?
答:改为9250*2350。
26、
饮水处内装做法是否同相邻卫生间?
答:是。
27、
四层戊类储藏室内装做法不详,请明确?
答:同资料室。
(七)
安装问题
1、
幼儿园消防电力桥架平面图中未标注,请明确。
答:一层水平消防电力桥架规格150*75;
二层水平消防电力桥架干线规格150*75,支线规格100*50;
三层水平消防电力桥架规格100*50;
2、
室外景观照明的系统图未见,请补充。
答:图纸在DWG图纸布局中“DS-01”;
3、
配电箱2N-1照明回路系统图中有5路,而在平面图中有7个回路,线缆是否还是按照其他5路回路
答:平面共五路,其中过厅照明与舞台,音控室照明为一路,紫外线为单独回路。
4、
配电箱1APX的回路中到排烟机房照明,而在平面图中未连接到位,请重新规划。
答:排烟机房照明引自一层强电井内1APX箱,路由详见附图。
5、
平面图中有备餐区照明,回路是从哪个配电箱引出,管线明确大小。
答:1ALg箱新增备餐间照明回路,如图:
6、
平面图中很多装饰灯具在图例中未见,请补充完善。
答:装饰灯具图例如下:
给排水
7、
惠园幼儿园1-5~1-6轴只给了首层活动室卫生间排水大样图,2、3层未给具体排水大样图,请明确。
答:2、3层已在图中表示;
(八)
雨污水
1、
请明确雨水、污水井的直径大小?
答:D≤400mm,采用φ700;D>400mm,采用φ1000mm。
2、
如图,请明确雨水水封井连接管的管径大小?连接管是何材质?
污水水封井连接管的管径大小?连接管是何材质?
答:此处为De75,类似情形详见单体图纸(平面图或系统图)。材质详单体管材表。连接管管径与材质同出户管。
3、
如图,请明确污水水封井连接管的管径大小?连接管是何材质?
答:此处为De110,类似情形详见单体图纸(平面图或系统图)。材质详单体管材表。连接管管径与材质同出户管。
4、
如图
污水管为球墨铸铁管是否有误?是否同雨水管一样为HDPE?
答:为球磨铸铁管。雨水按管径,管材由区分。
5、
本工程是否需要顶管施工?
答:不需要。接口均为市政预留接口。
7、请明确水封井直径大小?盖板是何材质? 图集里均未明确
答:详见图集04S519-P39,GS-1。
8、
室外预留洗手池排水管DN110 是何材质的管材?
答:加厚UPVC排水管。
(九)
景观工程
1、
铺装平面标注为50厚透水砖,说明图样中为55厚?以哪个为准?
答:50厚透水砖。
2、
如图
此处塑胶是否为13厚PU硅胶?
答:统一如下:
13mm厚一体结构预制型环保橡胶卷材-操场
8mm厚一体结构预制型环保橡胶卷材-其他区域
4、如图,升旗台旗杆高度不一致?以哪个为准?
答:尺寸标注为准,8m高
5、如图,同样铺装,一个标注芝麻白一个芝麻灰,以哪个为准?
答:以芝麻灰为准。
6、如图
艺术园分割(画圈处)是何材料?
答:100x500x30mm芝麻灰烧面花岗岩
7、
如图
下沉庭院划圈处是何材料?
答:100宽白色标漆线
8、
如图,操场看台无做法?
答:补充提供看台详图。
9、
如图,铝合金道牙是就这一圈有?还是操场所有圈都有?
答:仅内侧一圈设置。
11、岗亭、车行道闸、人行道闸、成品伸缩门 是否在本次招标范围?若在,请提供具体各参数或详图?
答:详见TY8-01室外小品示意图。
12、屋顶花园人工草坪无基层做法?请明确
答:景观图纸中的屋面人工草坪取消;以建筑图种植屋面为准
13、
屋顶花园绿化是否在本次范围?若在请提供屋顶绿化图纸?
答:绿化不在本次设计范围内。
14、
华丰及惠园小区交接处围墙翻新,请明确具体做法和工程量?
答:原围墙修缮,饰面腻子两道,防水外墙涂料两道。围墙高度按3米计入;
15、
下沉庭院塑胶和石材基层做法请明确?
答:下沉庭院基层为结构筏板基础。
16、
幼儿园涂鸦墙图纸中,请明确黑板是何材质?
答:黑板改成黑色黑板漆涂料。
17、
地库顶板和景观交接处需不需要加做法?
答:要,补图如下:

18、
请提供操场草皮、塑胶参数规范要求?
答:按以下标注




注:此补疑视同招标文件的组成部分,与招标文件具有同等法律效力,请投标人及时下载。
招标人:合肥高新区南岗科技园管理委员会
地 址:合肥高新区南岗科技园大别山路与天龙路交口
联系人:付家庚
电 话:0551-65393393
招标代理机构:安徽诚信项目管理有限公司
地 址:合肥市滨湖新区南京路2588号(徽州大道与南京路交口)六楼
联系人:陈工
电 话:0551-66223928、66223831
2021年6月28日
三、附件
答疑发布日期:2021年06月28日