您现在的位置: 首页 >> 答疑变更 >> 安徽公共资源交易集团项目管理有限公司 >> 工程

项目编号:

项目名称:

一、原公告主要信息

     原项目名称: 合肥金融广场D地块廊桥及跨街天桥工程

     原项目编号: 2021BFFGZ00351

     原公告日期: 2021年04月03日

二、公告内容(更正事项、内容及日期等)

    


合肥金融广场D地块廊桥及跨街天桥工程(第1次重新招标)招标文件补疑3

2021BFFGZ00351

 

第一部分:开标通知

1.本项目具体开标时间延期至 2021年5月27日10时00分,投标文件递交截止时间为2021年5月27日10时00分。开标地点为合肥市滨湖新区南京路2588号要素交易市场A 区(徽州大道与南京路交口)3楼2号开标室。

2.本项目招标人要求澄清招标文件时间:202105月17日17 30 分前。

 

第二部分:招标文件澄清

各投标人

1.本项目招标文件第二章附录5的“3.若投标人提供的业绩证明材料无法反映出本项目业绩要求中关于“一个市政公用工程施工业绩(且此业绩中须含有市政桥梁施工内容)”相关指标的,投标人须增加提供建设单位出具的证明文件(须盖建设单位公章),格式自拟。”改为“若投标人提供的业绩证明材料无法反映出该业绩含市政桥梁施工内容的,投标人须增加提供建设单位出具的证明文件(须盖建设单位公章),格式自拟。

2.本项目招标文件第三章附件1有效值计算方法中初步筛查内容调整如下:

2.1根据“电子交易系统”随机产生的各投标人的签号,对规定签号数以内的投标人进行初步筛查,对不符合初步筛查标准的进行排除并依次递补,直至符合初步筛查的投标人数量满足下表规定。

项目类别 

投标单位数量(记为“X”) 

纳入中位值计算的投标报价范围 

□房建、装饰、园林、安装、仿古类项目 

X≤9 

全部 

X=10 

签号前9家的投标报价 

10<X≤15 

签号前(X-2)家的投标报价(不少于9家) 

X>15 

签号前15家的投标报价 

市政、绿化类项目 

X≤15 

全部 

X=16 

签号前15家的投标报价 

16<X≤20 

签号前(X-2)家的投标报价(不少于15家) 

X>20 

签号前20家的投标报价 

2.2对在规定时间内成功解密,并成功导入评标系统的投标文件按照以下标准进行初步筛查,直至符合初步筛查的单位数量满足上表规定。初步筛查符合的投标报价纳入中位值计算范围;有一项不符合评审标准的,其投标报价纳入中位值计算范围

1)投标总报价不高于最高投标限价;

2)按招标公告规定方式获取招标文件;

3)投标保证金符合招标文件规定;

4)投标总报价未出现明显失误,如数量级错误、金额单位错误等;

5)投标报价降幅M值规定[降幅=(1-投标报价/最高投标限价)*100%];

6)行业主管部门信用评价良好:获得合肥市城乡建设局官网最新布的合肥市施工总承包企业信用综合评价结果市政专业分级情况为AAA级或AA级 

备注:如出现符合初步筛查单位数量不能满足2.1规定的符合初步筛查单位的投标报价全部纳入中位值计算范围;如出现无投标单位纳入中位值计算范围的情况,该招标项目按流标处理

②行业主管部门信用评价:投标人按照第八章投标文件格式提供信用评价承诺,如未提供信用评价承诺或提供的信用评价承诺与投标人实际信用不符的,视为此项不符合评审标准,不纳入中位值结算范围。

 

第三部分:工程量清单与最高投标限价编制补疑

各投标人

重要提示

1、 本项目在5月11日之前发布的工程量清单文件作废,以5月11日发布的清单控制价为准,修改后的清单控制价随本次答疑一同发放,请各投标人及时查看。

2、 2、人工费执行《关于贯彻执行2018版安徽省建设工程计价依据的通知》(合造价【2018】13号文)。其中定额人工费参与取费、取税,其相对于定额人工费增加的部分  /  元只计取税金。

3、本工程取费按  市政  工程取费标准”中“ 道路、排水、桥涵工程 ”的费率计取;其中房屋建筑、市政工程中挖或填土石方量大于5000m3的大型土石方工程,其企业管理费率8%、利润率8%,措施项目费率和不可竞争费率按房屋建筑工程或市政工程相应费率乘0.6系数。

按业主要求,现对本项目招标工程量清单、最高投标限价编制作出如下补充:

1部分:招标需求

一、招标范围:

 本项目分为1个标段,项目位于庐阳区黄桂路与林湖路交口东侧,拟建钢连廊天桥上跨冬青街路及金融广场项目D地块项目,采用钢筋混凝土管桩承台,钢结构桥身,主桥总长约141米,宽约5米,以及其附属廊桥亮化及装饰等工程,单位工程包括:

(一)  桥梁工程:包含廊桥桩基础、钢结构桥身、护栏等;

(二)  装饰工程:包含桥身铝板装饰、楼梯玻璃盒等;

(三)  安装工程:包含桥面雨水系统、泛光照明等;

图纸上已设计,但不计入本次招标范围的有:花箱组合坐凳及绿化工程。

二、暂定项目:

(一)以下项目按照业主要求,以暂定工程量计入分部分项工程量清单,投标人综合考虑报价,标后按实际工程量结算。

(二)以下项目按照业主要求,暂列金额为  50  万元(税金另计),计入桥梁工程其他项目清单,投标人应按招标人所列的金额计入投标总价。

(三)执行暂估价的材料、设备、专业工程及其金额如下:

1、材料的名称、规格型号、金额:无

2设备的名称、规格型号、金额:无

3、专业工程名称、工程内容、金额:无

上述明细投标人应按招标人所列的金额计入投标总价。

4、发包人供应材料、工程设备的采购、保管费,控制价中不再另行计取费用,投标人在总报价中综合考虑此费用。

三、按项列入清单的内容,标后不予调整:

以下项目按照业主要求,按项计入,投标人自行踏勘现场,综合考虑报价,中标后不予调整。

1、  大型机械设备进出场及安拆,按1项列入合肥金融广场D地块廊桥及跨街天桥工程-桥梁工程分部分项清单中,投标人自行踏勘现场,综合考虑报价,中标后不予调整。

2、  道路及绿化破除、恢复,按1项列入合肥金融广场D地块廊桥及跨街天桥工程-桥梁工程分部分项清单中,投标人自行踏勘现场,综合考虑报价,中标后不予调整。

3、  脚手架,按1项列入合肥金融广场D地块廊桥及跨街天桥工程-桥梁工程分部分项清单中,投标人自行踏勘现场,综合考虑报价,中标后不予调整。

4、  幕墙防雷系统,按1项列入合肥金融广场D地块廊桥及跨街天桥工程-幕墙工程分部分项清单中,投标人自行踏勘现场,综合考虑报价,中标后不予调整。

四、补充图纸及修改图纸的说明:

本工程在第一次发放图纸后,有补充图纸,具体详见图纸目录。

五、总承包服务费:

本项目控制价中总承包服务费按照最高投标限价(扣除暂列金额和设备费)的3%计入,投标人自行报价,无论投标人报价多少,最终结算均按照投标价的(不含暂列金额和设备费)的3%扣除。

六、温馨提示:投标人投标报价还须仔细阅读本项目招标文件,慎重报价。

1、  本项目土方为综合类土(含淤泥、青苗、渣土、植被、土方、建筑垃圾等)。投标人须自行踏勘现场,多余土方、淤泥、植被、建筑垃圾等须外运出场,运距自定。若需外借(购)土方,自行解决取土点,回填土质须满足施工图纸设计及相关规范要求,运距自定。投标人应考虑各方面因素后审慎报价,综合报价应考虑土方施工中的渣土费、渣土运输清理费、外购土方费用、保洁费、办证、现场苗木、建筑垃圾等杂物的清理及其他可能发生的一切费用,中标后不予调整。

2、  本工程的施工用水电接引点位于园区内,投标人应详细踏勘现场,投标单位中标后负责自行将施工用水用电引入各施工单体,水、电接引穿过厂区道路时必须埋设暗管。施工用水电接引(含电线电缆、临时配电房、配电箱、水管等)施工及使用期间所有维护费用不再单独列项,请投标人自行踏勘现场,涉及费用请投标人在投标报价时综合考虑,不再单独列项,中标后不再因此增加任何费用。

3、  施工过程中可能涉及到的安全文明施工中围挡、大门、值班室、门楼、图牌、施工场地、宣传等必须符合当地主管部门相关文件要求,不再单独列项,费用由投标人在措施费中考虑。

4、  本次招标工程内各类施工(安全)方案评审、竣工档案扫描及归档费用、验收等所发生的费用由中标人支付,在投标报价中综合考虑。

5、  投标人应自行了解项目所在地的相关税费征缴规定,投标报价中应综合考虑,中标后不予调整(除增值税税率按政府相关文件执行外)。

6、  防雷技术服务费由中标人支付,投标人在投标报价中自行考虑。

7、  投标人应综合考虑地基处理机械、桩基机械设备的进场路线、作业面的加固处理,相关费用综合在投标报价中。

8、  所有施工环节中,涉及的降水、排水等工作由中标人负责,不单独列项,相关费用在投标报价中综合考虑。

9、  施工中实施的建设工程施工扬尘治理措施费用以建设单位认可的签证为确认依据,否则在工程结算时按照合造价(2018)13号文等相关文件规定扣除相应费用。

10、  现场如存在与其他工程交叉施工的情况,中标人在施工过程中注意成品保护,如有损坏,必须无条件原样修复,并承担因此造成的其他损失费用,如拒不修复的,招标人自行修复的费用由中标人承担,并在项目结算时直接等额扣除。

11、  图纸中如有φ6钢筋,实际直径为6.5mm。

12、  图纸中如有C10混凝土,实际为C15混凝土。

13、  本项目砼采用商品砼,砂浆采用预拌砂浆。

14、  图纸设计与审图意见及答复有冲突的,以审图意见及答复为准;审图意见及答复与本次招标答疑有冲突的,以本次招标答疑回复为准。

15、  本标段施工中,对相邻建(构)筑物的防护措施由中标人负责,不单独列项,所需费用在投标报价中综合考虑。

16、  现场情况及地形复杂,投标人须充分考虑材料二次搬运费,由投标人自行踏勘现场,综合考虑,自行报价,标后不予调整。

17、  投标人应充分考虑与其他施工单位的交叉施工及配合问题,可能涉及的费用及工期等均应在投标时综合考虑。

18、  投标人要充分考虑品牌和性能兼容问题,综合在投标报价内,中标后不得以此要求增加任何费用。

19、  桩长暂按图纸长度计入,后期施工中无论实际桩长为多少,均按投标报价中的相应综合单价进行结算,工程量按实际有效桩长结算。投标报价中应包含截桩、接桩、送桩、填芯等一切费用,并按相关图集及相关规定要求对桩顶与承台连接进行施工,以上相关费用均包含在投标报价内。其他未尽事宜按图纸和相关规范、图集计入投标报价。投标人应综合考虑各类施工机械、设备的进场路线、作业面的加固处理,相关费用综合在投标报价中。

20、  施工场地区域可能有地下管网,地下作业时须谨慎施工,注意成品保护,如有破坏必须无条件原样恢复,并承担相应损失费用,涉及费用请投标人自行踏勘现场,综合考虑在投标报价内,中标后不再因此增加任何费用。

21、  本工程完工后,承包人应做到“工完料尽场地清”,工程所产生建筑垃圾应全部清运出现场(不得堆放在场区周边),恢复施工场区及周边区域原状,由此发生的费用由投标单位综合考虑在投标报价中,中标后不予调整。

22、  行车、行人干扰增加费、赶工措施费由投标人在投标报价综合考虑,中标后不再因此增加任何费用。

23、  本工程属于廊桥及跨街天桥工程,内容比较复杂,投标人需自行勘查现场,自行考虑垂直运输费用,后期不再调整,中标后须自行完成招标范围内的所有内容,不得因不了解现场为由而进行索赔。

24、  本次各投标价包含中标人按照有关标准规定,对建筑以及材料、构配件和建筑安装物进行一般鉴定、检查、检测所发生的费用,包括中标人自行委托的检测机构、自设试验室进行检测试验所耗用的材料等费用。建设单位委托检测机构进行检测的费用,由建设单位自行支付,但检测不合格的,该检测费用由中标人支付,并且无条件按招标人要求进行整改。上述内容请投标人综合考虑到报价中,中标后不再因此增加任何费用。

25、  天桥护栏上需设置如《严禁攀爬护栏》、《禁止高空坠物》等文明标牌、标语或标志等。样式、数量及位置需满足业主要求。清单控制价不单独列项,投标人综合考虑进行报价,费用含在投标报价中,中标后不予调整。

26、  天桥实施过程中交通管制费,清单控制价不单独列项,投标人综合考虑进行报价,费用含在投标报价中,中标后不予调整。

27、  铝合金型材及玻璃颜色最终以招标人确认现场样板色为准,相关费用包含在投标报价内。

28、  本项目中钢管柱、钢柱、钢支撑、钢箱梁、钢梁等相应清单子目中均包含钢结构加工厂与施工现场之间的构件运输费用,投标人综合考虑进行报价,中标后不予调整。

2部分:设计文件及技术补充说明

一、  个性问题

(一)  桥梁及装饰工程

1、  设计图纸D地块跨街天桥S-TQK-31-01中详楼梯一说明详楼梯说明均标明其短跨方向下端设次梁LL-1角钢∠50×5,材质为Q235B间距不大于500mm”请明确次梁LL-1仅在平台处设置还是在楼梯踏步平台均设置

答:仅在平台位置。

2、  设计图纸D地块跨街天桥S-TQK-90-03中楼梯踏步大样图标明踏步为10mm厚钢板但设计图纸S-TQK-31-01中楼梯二的标明踏步的踢面踏面均为6mm厚镀锌花纹钢板二者不一致是否需要统一

答:无需统一。

3、  设计图纸D地块跨街天桥S-TQK-90-03中楼梯二纵剖面详图标明第一梯段及休息平台两侧楼梯梁为GL3但钢梁平面布置图中第一梯段及休息平台两侧楼梯梁为GL2二者不一致,请明确以哪个为准

答:以钢梁平面布置图为准。

4、  设计图纸中D地块跨街天桥S-TQK-01-01中钢结构设计说明主钢构材质为Q355D,但D地块廊桥天桥S-TQ-01-01中钢结构设计说明主钢构材质为Q235B、Q345B,二者不一致,请明确钢构件材质是否可统一?

答:D地块跨街天桥钢构材质为Q355D,连廊天桥钢构材质为Q345B

5、  设计图纸中D地块跨街天桥S-TQK-11-01中桩与承台的构造大样图标注管桩顶填芯混凝土高度为7m;但桩基础设计说明中明确管桩顶填芯混凝土高度不小于桩径3D,且不小于3m。二者不一致,请明确以哪一个为准?

答:桩与承台的构造大样图标注管桩顶填芯混凝土高度为3m。

6、  设计图纸中D地块跨街天桥S-TQK-90-01中Ф800×22、Ф500×14柱脚详图标注室外地面 (标高-0.050) 以下内填C40混凝土,但KZ1、KZ2柱配筋图标注内填混凝土C40(标高0.050以下)二者不一致,请明确以哪一个为准?

答:图纸柱脚详图中并无标注室外地面 (标高-0.050) 以下内填C40混凝土。

7、  设计图纸中D地块跨街天桥S-TQK-90-01中桩配筋图的栓钉Ф19×120大样图不详,请给予补充。

答:在钢柱内外壁各均匀设置8颗栓钉,与钢柱焊接。

8、  请明确成品盆式支座的具体规格。

答:

9、  设计图纸中D地块跨街天桥S-TQK-90-02中楼梯平面图中标注TL1内填充预制混凝土配重块,但设计图纸中无预制混凝土配重块大样图,请给予补充。

答:仅在部分GL1内填C20素混凝土,填充高度为截面高度的1/2,填充范围详见图纸标注填充区域。

10、  请明确多余土方的的外运弃置的运距、弃土场费用如何考虑?

答:项目多余土方投标人须自行踏勘现场,土方外运出场,清单控制价在中运距按20km,投标人自行考虑。投标人应考虑各方面因素后审慎报价,综合报价应考虑土方施工中的渣土费、渣土运输清理费、外购土方费用、保洁费、办证、现场苗木、建筑垃圾等杂物的清理及其他可能发生的一切费用,中标后不予调整。

11、  ±0.0对应的绝对标高是多少?

答:D地块跨街天桥的绝对标高为22.05。

12、  如下图所示

 

请明确成品装饰台阶的材料、参数要求。

答:木材品种同桥面,颜色同室外木平台。一共三个,其中两个四阶、一个两阶。长度均为2000mm,每阶踏步宽度均为300mm,高度150mm。

13、  在景观图中木平台做法与建施图中做法不一致,请明确按哪个为准?

答:以景观图纸为准。

14、  请明确变形缝4处500mm高防护栏杆是否计入本次招标范围?

答:不在本次招标范围。

15、  在建施图和结施图中关于钢结构防火涂料、除锈等级要求不一致,请明确钢结构防火涂料、除锈做法按哪个图纸中做法为准?

答:以结构为准。

16、  请明确幕墙检测费、桩基检测费是否需计入本次招标范围?

答:不计入。

17、  请明确是否需考虑试桩?如考虑,试桩是否利用于后期工程桩?

答:需考虑试桩,试桩利用于后期工程桩。

18、  请明确钢柱如何与桩承台连接?未见相应节点构造图。

答:详见结施S-TQK-90-01柱脚详图。

19、  请明确S-TQ-32-01钢柱平面图中所有钢柱是否均位于地库顶板上?且其柱脚大样图与现场实际不符。

答:除桩承台外的,其余的钢柱锚栓在地库顶板上的柱墩基础上预埋。柱墩基础详地库结构图中,地库范围线内的柱脚预埋不在本次招标范围。

20、  请明确跨冬青街处是否有道路破除恢复、绿化破除恢复?如有,请明确其具体破除道路种类及结构层做法、绿化种类及苗木规格。

答:拆除与恢复,因天桥施工对现场部分人行道、停车场沥青路面及混凝土路牙的破坏与恢复,对天桥冲突的绿化带及苗木进行迁移和恢复。清单控制价按破坏恢复人行道200m2,破坏恢复沥青400m2;破坏恢复混凝土路牙按200m;迁移恢复苗木按500m2,其中60CM高,25株/m2的红叶石楠100m2,麦冬150m2,草皮100m2,沿阶草150m2; 10株胸径15香樟;高度4m的夹竹桃20株。迁移苗木按50M2,其中5株/m2刚竹50m2;30株胸径20香樟,1株胸径25合欢,30株胸径8cm的樱花。投标人需考虑实际破除恢复的工程量误差,中标后量价均不予调整。以上项目若需合肥市城管局园林办施工及恢复,费用由投标人参照合肥绿化和道路挖掘及恢复收费标准自行报价,中标后费用若需招标人缴纳的,由招标人缴纳后,在下一次工程款支付时予以扣回。含道路破除实施过程中,现状杆管线保护,道路结构层恢复标准不低于现状标准,并满足相关主管部门要求,投标人自行踏勘现场,综合考虑报价,中标后不予调整。

21、  请明确LJD.03节点图中14mm厚成品不锈钢立杆的具体尺寸?

 

答:详见LJD.02。

22、  请明确连桥底部格栅的具体材质及规格?并提供其节点构造做法。

 

答:详见LJD.02。

23、  请提供铝板包柱平面图,明确具体哪些部位的柱子需考虑包柱。

答:所有连桥下柱。

24、  请明确LJD.01节点图中,下图箭头所示部位是否为3厚铝单板?

 

答:是,详见LJD.02标注。

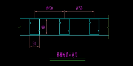
25、  图纸中连桥底部格栅未明确具体材质及固定方式,请明确?

 

答:铝合金格栅,固定方式看剖面图及钉子标注,详见LJD.02标注。

26、  请明确连桥钢梯1、2、3底部是否设置与连桥底部相同的格栅吊顶?

答:是。

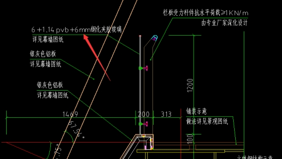
27、  连桥两侧玻璃栏板建筑图标注为“6+1.14pvb+6mm钢化夹胶玻璃”,而幕墙图标注为“8+1.52pvb+8mm钢化夹胶玻璃”,请明确此处是否以幕墙图纸为准?

 

 

答:以幕墙图纸为准。

28、  请明确玻璃盒子内“战时防倒塌桁架”是否计入本次清单范围?若计入,请明确做法?

 

答:不在本次招标范围。

29、  请明确玻璃盒子B-A立面是否参照A-B立面做法?

答:分格一样,无百叶。

30、  请明确是否所有铝单板是否均为氟碳喷涂

答:是。

31、  玻璃盒子门口部位坡道是否在本次招标范围内,如在,补充设计说明与做法。

答:不计入本次招标范围。

32、  请明确玻璃盒子处玻璃幕墙预埋件是否计入本次招标范围?

答:计入。

33、  请明确跨街天桥计入庐州公园后是否需要考虑相应衔接?如有,请补充相应图纸。

答:不考虑。

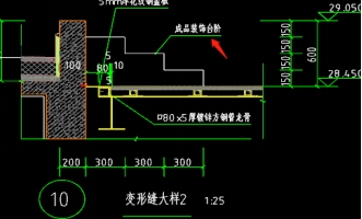
34、  在连廊天桥结施S-TQ-90-01柱脚节点大样图中,如下图所示

 

 

请明确柱脚包裹的材料种类、包裹厚度按哪个为准?

答:采用C40微膨胀细石混凝土二次灌浆包裹,包裹厚度为100mm。

(二)  安装工程

35、  请明确雨水井具体做法;

答:不在本次招标范围。

36、  请明确雨水管埋深,回填时是否需要砂垫层,若需要,请明确垫层厚度;

答:雨水管埋深在系统图中已表示,回填措施参照《给排水管道工程及验收规范》(GB 50268-2008)相关规定执行。

37、  请问下图箭头所指设备到底采用地漏还是雨水斗,若是雨水斗请明确材质、规格、类型。

 

答:图中设备为地漏采用不锈钢材质,地漏与雨水管连接详图集04S301 《建筑设备排水附件选用安装》第22页

38、  电气工程中ALZ1配电箱位置为暂定位置,请问其对应本次清单工程量是否按暂定量计入。

答:最终位置确定在金融城天桥电梯旁,非标室外落地安装。

 

39、  HJAL2配电箱到ALZ1箱回路是否有段埋地部分,若有,请明确管道材质、规格已经埋深;

答:若前端配电箱HJAL2在室外则ALZ1前端引线有埋地部分,埋地具体长度以实际测量为准,具体管线管道材质为SC32钢管,室外埋地深度约为0.7米,具体可查《低压配电设计规范》GB50054-2011第47页。

 

 

 

注:此补疑视同招标文件的组成部分,与招标文件具有同等法律效力。                          

 

 

 

招标人:合肥庐阳金融城投资

发展有限公司

址:合肥市庐阳区四里河

街道临泉路 4999 号

联系人:施工

话:0551-65679205

招标代理机构:安徽诚信项目管理有限公司

址:合肥市滨湖新区南京路 2588 号

(徽州大道与南京路交口)六楼

编:230601

联系人:张工

话:0551-66223281

2021 年511

 


 

三、附件

      答疑发布日期:2021年05月11日

附件:2021BFFGZ00351清单控制价(5.11发布).zip 附件:2021BFFGZ00351补遗3.pdf