您现在的位置: 首页 >> 答疑变更 >> 安徽公共资源交易集团项目管理有限公司 >> 工程
一、原公告主要信息
原项目名称: 方兴大道景观绿化提升(高新区段)施工
原项目编号: 2021BFGGZ00775
原公告日期: 2021年04月26日
二、公告内容(更正事项、内容及日期等)
方兴大道景观绿化提升(高新区段)施工项目补疑1
(项目编号:2021BFGGZ00775)
各投标人:
重要提示
1、人工费执行《关于贯彻执行2018版安徽省建设工程计价依据的通知》(合造价【2018】13号文)。其中定额人工费参与取费、取税,其相对于定额人工费增加的部分 0 元只计取税金。
2、本工程取费按“ 园林 工程取费标准”中“ 绿化、景观工程”的费率计取;其中房屋建筑、市政工程中挖或填土石方量大于5000m3的大型土石方工程,其企业管理费率8%、利润率8%,措施项目费率和不可竞争费率按园林工程相应费率乘0.6系数。
按业主要求,现对本项目招标工程量清单、最高投标限价编制作出如下补充:
第一部分:招标需求
一、招标范围:
本项目分为1个标段,本项目位于高新区方兴大道(高新区段)两侧,北起长江西路,南至铭传路南,全长约6.5千米,绿化提升总面积约61845平方米。其中包括土石方工程、绿化工程、景观工程等施工。除特殊说明外,图纸设计范围内的所有内容,均按图计入。
(一)单位工程包括:
1、绿化工程:含乔木、灌木、草坪等苗木栽植,及现状苗木的修剪、嫁接、移除清理等;一级养护,成活养护期1个月,保存养护期6个月,日常养护期2年,其中成活养护及保存养护清单不单独列项,所产生费用由投标人综合考虑在报价中,日常养护按2年考虑(从项目竣工验收后开始)。
2、景观工程:花箱、小品、种植池、宣传标语、侧石更换等图纸范围内所有内容;
(二)补充说明:现状保留的苗木进行养护,按日常养护考虑(从项目开工后开始),养护期2.58年,一级养护。
二、暂定项目:
(一)以下项目按照业主要求,以暂定工程量计入分部分项工程量清单,投标人综合考虑报价,标后按实际工程量结算。
本项目无
(二)本项目按照业主要求,暂列金额为 40万元(税金另计) ,计入方兴大道景观绿化提升(高新区段)工程-专业土石方工程,投标人应按招标人所列的金额计入投标总价。
(三)执行暂定价的材料、设备、专业工程及其金额如下
1、材料的名称、规格型号、金额:
本项目无
2、设备的名称、规格型号、金额:
本项目无
3、专业工程名称、工程内容、金额:
本项目无
上述明细投标人应按招标人所列的金额计入投标总价。
三、按项列入清单的内容,标后不予调整:
以下项目按照业主要求,按项计入,投标人自行踏勘现场,综合考虑报价,中标后不予调整。
本项目无
四、补充图纸及修改图纸的说明:
本工程在第一次发放图纸后,有补充图纸,具体详见图纸目录。
五、总承包服务费:详见招标文件。
六、温馨提示:投标人投标报价还须仔细阅读本项目招标文件,慎重报价。
1、投标人必须考虑到开工时间的不确定性,在其投标报价中充分考虑到材料、人工、设备价格升降等因素,中标后不得因此原因提出工期及费用索赔。
2、现场的相关临时用地、办公用房及工人住宿用房、材料堆放、加工场地的建设等要充分考虑场地的限制,投标人踏勘现场后,自行解决临时用地等相关事宜(需属地政府及相关部门同意手续)。上述所有相关费用已包含在施工组织措施费中的临时设施费内。
3、临时水电报装、接引及协调费,投标人自行踏勘现场,根据现场水、电可接引点和实际施工需求,所产生费用由投标人综合考虑在报价中,清单不再单独列项,中标后不予调整。
4、景观绿化施工及养护满足《合肥市绿化施工导则》、《合肥市绿化养护导则》及业主对现场文明施工的要求。
5、种植时应注意避开各种地下设施、电缆等管线,并按照规范保证树木与管线的最小距离,施工过程中对施工范围内涉及的所有原有综合管线(含检查井)及杆线进行保护、必要时需进行移位、升降、加固、井盖更换;杆管线保护所引起的临时支护等保护费用,杆洞等回填方处理(迁移后的杆洞回填方满足设计需求)产生的费用;上述所产生的费用,投标人综合考虑在报价中,清单不再单独列项,总价包死,结算时不予调整。
6、中标单位需做好现场成品保护,对现状保留苗木、沿线人行道板、机动车道、非机动车道、侧石、及雨水箅等做好保护工作,破坏后自行按原样恢复,该项清单不单独列项,投标人综合考虑在投标报价内,中标后不予调整。
7、本工程完全按照《合肥市绿化施工导则》、《合肥市绿化养护导则》及相关最新文件执行。投标人应充分考虑相关费用,综合到投标报价中,中标后施工单位不得以任何理由办理经济签证。
8、工程完工后,各种设施和建筑垃圾应在发包人要求的时限内无条件完成拆除、清运。
9、现场如存在与其他工程交叉施工的情况,中标人在施工过程中注意成品保护,如有损坏,必须无条件原样修复,并承担因此造成的其他损失费用,如拒不修复的,招标人自行修复的费用由中标人承担,并在项目结算时直接扣除。
10、更换的新侧石与老路面衔接处缝隙处理,采用沥青灌缝,具体满足设计及业主要求,该项清单中不单独列项,投标人综合考虑在投标报价内,中标后不予调整。
11、方兴大道属于快速道,施工单位施工时应注意人员安全,做好安全防护措施,保证施工人员安全。
12、现状苗木移除,苗木品种及数量详见图纸,移除后的苗木清理外运,运距投标人综合考虑,该项清单不单独列项,投标人综合考虑在投标报价内,中标后不予调整。
13、现状紫薇嫁接,嫁接后的紫薇保证成活率且达到观赏效果,具体工程量详见图纸,该项清单不单独列项,投标人综合考虑在投标报价内,中标后不予调整。
14、现状侧石拆除(含基础),拆除后垃圾清理及外运(含下穿修复道路现状碎石清理),运距投标人综合考虑,该项清单不单独列项,投标人综合考虑在投标报价内,中标后不予调整。
15、整理绿化用地按设计要求构筑地形,令其自然沉降,且回填土,达到设计标高,无特殊设计之地形坡度可定在3%左右,以利排水,所有靠路边或路牙沿线的绿化地面应统一低于路边或路牙线2厘米,自然式驳岸地形处理如无特殊要求,坡度可定在3%左右;种植前土壤处理:首先对场地进行深耕、去杂处理,深耕深度要求砂质土壤不低于30厘米,一般土壤不低于40厘米,粘重土壤不低于50厘米,杂质的范围包括建筑垃圾、生活垃圾、粒径大于5CM的土块。该项清单不单独列项,投标人综合考虑在投标报价内,中标后不予调整。
第二部分:设计文件及技术补充说明
1、本工程土方运距如何考虑?
答:本项目绿化种植土均采用换填,土方全部外运(外借),运距投标人自行勘察现场,综合报价(报价应包含土源费、弃土场费用、办理渣土证费用、城市道路卫生清扫保洁费用、取土场恢复等一切可能发生的相关费用),中标后不予调整;具体包括土方开挖(含建筑垃圾)、装车、场内运输、场外运输、弃土场卸土及整平、场内及弃土场土方运输车辆临时便道修建及养护、场内回填、场内及弃土场地面积水排除等全部施工内容。
2、本工程土壤类别如何考虑,请明确?
答:投标人自行勘察现场,综合报价,中标后不予调整。控制价按三类土计入。
3、苗木的工程量是否按苗木表工程量计入,请明确?
答:是
4、苗木养护期及养护等级未明确,请明确?
答:新栽植的苗木一级养护,成活养护期1个月,保存养护期6个月,日常养护期2年,其中成活养护及保存养护清单不单独列项,所产生费用由投标人综合考虑在报价中,日常养护按2年考虑(从项目竣工验收后开始)。
现状保留的苗木进行养护,按日常养护考虑(从项目开工后开始),养护期2.58年,一级养护。
5、
苗木表备注所有苗木种植前均要进行土壤改良,拌和泥炭土及肥料,请明确泥炭土拌和量及明确种植土是否采用原土拌和?
答:种植土采用换填,回填土掺30%泥炭土;
换填深度如下:
2 米侧分带更换种植土:侧分带种植土换填14029.5立方米,换土深度为 0.5米,
下穿两侧人行道成品花箱种植土:种植土回填1472立方米,回填深度0.6米,
岛头花池种植土:种植土回填488.02立方米,回填深度 0.8米,
交口花境微地形土方堆积量为:种植土回填1900立方米,回填深度1米,
习友路高架悬挂花箱土方:种植土回填450立方米,回填深度0.3m,
岛头成品花箱:种植土回填146立方米,600毫米高花箱回填深度0.45米,800毫米高花箱回填深度0.6米,
下穿50米花境,10个下穿花境:种植土换填2000立方米,换土深度为1米,
中分带补植,种植土换填6158立方米(乔灌木单株换土范围2m*2m),乔灌木、色块换土深度均1米,
一米侧分带补植,种植土换填1024立方米(乔灌木单株换土范围1米*2米),乔灌木、色块换土深度均0.5米。
6、苗木表中现状法梧移植,请明确现状法梧的具体规格及移植距离?
答:法梧规格胸径16-18厘米,树高700-800厘米,移植地点在高新区范围内,具体位置由业主现场指定,投标人自行踏勘现场综合考虑报价,中标后不予调整。
7、请提供时花的具体品种?
![]()
答:瓜叶菊、一品红、香石竹、雏菊、四季樱草、非洲菊、西班牙鸢尾、三色堇、紫罗兰、虞美人、万寿菊、羽衣甘蓝、报春、醉蝶花、夏堇、金盏菊、百日草、矮牵牛、硫华菊、五色花、彩叶草等。
8、岛头及交口的时令草花
,规格及更换次数未明确,请明确?
答:冠幅:20厘米;高度:20厘米;四季更换,日常养护2年;瓜叶菊、一品红、香石竹、雏菊、四季樱草、非洲菊、西班牙鸢尾、三色堇、紫罗兰、虞美人、万寿菊、羽衣甘蓝、报春、醉蝶花、夏堇、金盏菊、百日草、矮牵牛、硫华菊、五色花、彩叶草等。
9、岛头及交口
草坪具体品种未明确,请明确?
答:果岭草
10、所有花镜的栽植密度未明确,请明确?

答:花镜栽植密度均为64株/平方米,满栽密植。
11、工程量表中小品28个,请明确规格、材质、样式?
答:详见成品设施表。
12、下穿桥两侧50厘米铺装上安置塑木花箱,板材厚度未明确,请明确?
答:塑木花箱调整为防腐木花箱,碳化处理,板厚1.5厘米,规格1200X450X800毫米。
13、景石86个,请明确景石的具体品种及景石的具体分布?
答:分布在花镜内,具体布置现场调节(置石A:13个,置石B:31个,置石C:42个)组合形式施工方深化。
14、景石是否考虑基础,请明确?
答:不考虑。
15、60组成品花箱,请明确具体材质?
![]()
答:铝合金花箱(木纹热转印)。
16、宣传标语,请明确材质、规格、样式?
答:标识标牌尺寸14米长X0.8米宽X2.8米高,材质为不锈钢板,外侧烤漆;具体样式由业主确认,需满足业主要求。



17、下穿修复路段,请明确工程量?

答:中分带下穿段现状无绿化,应业主要求铺设透水砖,工程量为2500平方米。
18、X9-2节点图下穿修复道路,侧石是否更换?

答:侧石为现状侧石,单个破损超过1/3更换,施工过程中损坏的侧石更换,工程量已在量表中考虑。
19、种植池池壁混凝土强度等级未明确,请明确?
答:C25。
20、种植池防水靠栏板侧遇墙上翻多少,请明确?
答:上翻800毫米。
21、小品成品设施表中球形灯,是否考虑电源,请明确?
答:不考虑。

22、宣传标语基础图纸标注为10米长,而标牌有14米长,是否有误,请明确?
答:14米长C25钢筋混凝土基础。
23、习友路高架桥上悬挂成品花钵,请明确安装方式?
答:高架桥现状有支架,直接放入支架中。
24、
习友路高架的花箱苗木一年更换2次,2年养护期,苗木工程量量表中的工程量为更换几次的工程量,请明确?
答:大花月季及云南黄馨合计2092平方米为更换4次的工程量。
25、工程量表中文化侧石125组,请明确一组如何组成?
答:一组为一个1000X320X100毫米厚芝麻灰机切面花岗岩(按型切割)+一个600X400X100毫米厚芝麻灰机切面花岗岩(按型切割)。
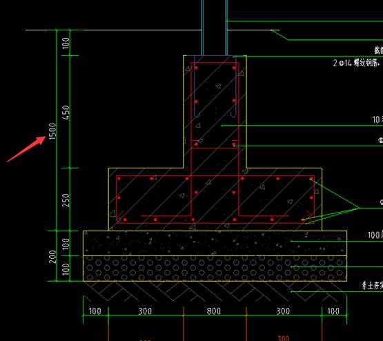
26、
标识标牌基础箭头所指位置标注深度1500毫米是否有误,请明确?
答:有误,应为800毫米。
27、红花继木桩地径、高度未明确,请明确?![]()
答:地径20-21厘米,高度250-300厘米。
28、现状石榴保留养护,请明确现状石榴规格?
![]()
答:冠幅180-200厘米,高度200-250厘米
招标人名称:合肥高新技术产业开发区城市管理局
地址:合肥高新区机电产业园8栋
联系人:李工
联系方式:0551-65397941
招标代理:安徽诚信项目管理有限公司
地 址:合肥市滨湖新区南京路2588号(徽州大道与南京路交口)六楼
联系人:张工
联系方式:0551-66223672
2021年4月28日
三、附件
答疑发布日期:2021年04月28日