您现在的位置: 首页 >> 答疑变更 >> 安徽公共资源交易集团项目管理有限公司 >> 工程
一、原公告主要信息
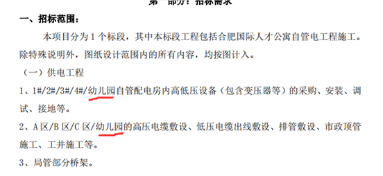
原项目名称: 合肥国际人才公寓自管电工程
原项目编号: 2020BFFGZ02444
原公告日期: 2020年12月23日
二、公告内容(更正事项、内容及日期等)
合肥国际人才公寓自管电工程施工招标补疑3
(项目编号:2020BFFGZ02444)
1、请提供自管配电房内的桥架走向图纸。
答:电缆沟敷设。
2、根据招标图纸,如下图:


请问A区1#公建自管配电房至B区4#公建自管配电房之间的联络电缆是从此路径敷设吗?
答:请查新图,结合A区“人才公寓自管A”桥架图中高压桥架敷设路径和“高低压平面图”中高压路径图有明确表示。


3、问:招标文件第三章 评标办法履约信誉中,信用评分要求投标人具有中国电力企业联合会出具的 3A 信用等级证书得 2 分,没有不得分。 银行、行业协会等相关正规机构均可出具3A 信用等级,这些机构审核3A 信用等级和中国电力企业联合会审核原则一致,如果只是要求中国电力企业联合会内部颁发,则完全违背政府营造开放营商环境政策,有明显针对性设置意愿。本着公平、公正、公开原则,建议改为具有企业信用等级 AAA 证书即可。
答:按招标文件执行。
疑 问
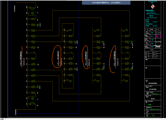
4、根据招标清单及图纸,如下图:

在图纸中没有找到市政工井,请提供市政工井图纸。

答:请查新图
5、根据招标清单及图纸,如下图:



② 《自管高低压路径图》中工井尺寸和清单中不一样,请问以哪个为准?
②《自管高低压路径图》中工井数量比清单中少71座,请问这71座工井的具体位置在哪里,并提供图纸?
答:请查新图
6、根据招标清单及图纸,如下图:




① 《自管高低压路径图》中电缆保护管是SC150和MPP160,和清单中管材不一致,请问以哪个为准?
答:请查新图。
② 《自管高低压路径图》中电缆保护管数量和清单中不一样,请问以哪个为准?
答:请查新图。
7、根据招标清单及图纸,如下图:

在图纸中没有找到局管桥架,请提供局管桥架图纸。
答:请查新图。
8、根据招标清单及图纸,如下图:
![]()
![]()

![]()
![]()
![]()

![]()
![]()
在图纸中找不到这些电缆型号,只有YJV22-10KV的电缆型号,请问以哪个为准?
答:请查新图。
9、根据招标清单、招标范围及图纸,如下图:


清单中和招标范围中有幼儿园自管配电房,但图纸中没有幼儿园自管配电房,只有A区1#公建自管配电房、A区2#公建自管配电房、C区3#公建自管配电房、B区4#公建自管配电房,请提供幼儿园自管配电房系统图、电缆路径图及相关图纸?
答:请查新图。
10、根据招标清单及图纸,如下图:







①请问清单第90项的高压母线槽TMY-3x(80x8)是指A区2#公建自管配电房《平面布置图》中1250A/31.5kA密集母线吗?如果是的话那么B区4#公建自管配电房《平面布置图》中没有高压母线槽,请问清单第184项中高压母线槽TMY-3x(80x8)是否有误?
答:请查新图。(请参考每个配电房分部内清单内容)
②请问清单第251项的高压母线槽TMY-3x(80x8)是指C区3#公建自管配电房《平面布置图》中1250A/31.5kA密集母线吗?
答:请查新图。(请参考每个配电房分部内清单内容)
③清单中的母线槽和图纸中的母线槽数量及型号都对不上,请问以哪个为准?
答:请查新图。(请参考每个配电房分部内清单内容)
11、请问图纸经当地供电局审核通过了吗?
答:最终版已通过。
12、请问高可靠性费用在本次招标范围内吗?
答:不在本次招标范围内。
13、请问监理费在本次招标范围内吗?
答:不在本次招标范围内
14、根据招标清单及图纸,如下图:

图纸中A区1#公建自管配电房环网柜内高压柜是18台,但清单是20台,请问清单工程量是否有误?
答:请查新图。
15、根据招标补疑1及图纸,如下图:

在市招平台中没有看到补图,图纸目录中补图是空的,请问本工程有补图吗?如有的话提供补图。
答:所有图纸参考图纸目录。
16、根据招标图纸目录,如下图:


图纸目录中有部分图纸找不到,请提供。
答:请查新图。
17、根据招标补疑1及清单,如下图:


补疑第5条说接地不在,但清单中每个自管配电房的备品备件、安全工器具描述中都有接地线,请问清单描述是否有误?
答:此处接地线仅指高低压设备的接地线。
招标人名称:合肥文旅博览集团有限公司
地址:安徽省合肥市政务文化新区习友路988号
联系人:吴艺
联系方式::0551-6353068
招标代理:安徽诚信项目管理有限公司
地 址:合肥市滨湖新区南京路2588号(徽州大道与南京路交口)六楼
联系人:张工
联系方式:0551-66223672
2021年1月4日
三、附件
答疑发布日期:2021年01月04日