您现在的位置: 首页 >> 答疑变更 >> 安徽公共资源交易集团项目管理有限公司 >> 工程
一、原公告主要信息
原项目名称: 涡阳县幸福花园安置小区工程施工
原项目编号: 2020BFWGZ03374
原公告日期: 2020年12月11日
二、公告内容(更正事项、内容及日期等)
涡阳县幸福花园安置小区工程施工招标补疑1
(项目编号:2020BFWGZ03374)
各投标人:
按业主要求,现对本项目招标工程量清单、最高投标限价编制作出如下补充:
第一部分招标文件修改
1、本项目招标项目编号和招标项目标段编号修改为:2020BFWGZ03374
第二部分招标需求
一、招标范围:
本项目位于安徽省亳州市涡阳县。涡阳县幸福花园安置小区工程施工,总建筑面积约26.1万平方米,包括地下室、住宅楼、商业、幼儿园、场区内土方平衡、基坑整体开挖及回填等。具体详见招标文件、工程量清单、图纸及答疑文件。 除特殊说明外,招标文件、工程量清单、图纸以及补充答疑文件的所有内容全部计入。
(一) 建筑工程:
1、 土建工程:包含土石方工程(土方挖运、回填、清表、清淤等)、地基基础、主体钢筋砼结构、墙体、保温、台阶、坡道、散水、等图示建筑、结构所涉及到的土建范围全部在本次招标范围内。
2、 装饰工程:包含外门窗及防火门,墙面、地面、顶棚等图纸设计范围内装饰内容;
(二) 安装工程:
安装范围:
1、给水工程:单体楼、公建给水系统计至出户外第一个阀门井(含井及阀门)处;单体楼、公建卫生洁具均不计入;太阳能热水器、燃气热水器、电热水器均不计入,预埋管及阀门计入;其余按图纸计入。2、排水工程:单体楼、公建排水系统按单体图计入计至出户外第一个雨污水井(不含井)。室外雨污水按图计入。
3、强电工程:自管电、局管电部分均以单体楼、公建第一个总配电箱为界,总配电箱(含总配电箱)后端全部在招标范围,第一个总配电箱前端仅计入预埋管。
4、三网系统:单体楼综合布线系统、有线电视配管系统自家庭信息配线箱后(含家庭信息配线箱)按图计入,家庭信息配线箱前仅计预埋管、盒、桥架;公建部分综合布线系统、有线电视配管系统由楼层弱电井后(含楼层弱电井内设备)全部计入,楼层弱电井内设备前仅计预埋管、盒、桥架; 单体楼、公建监控系统、可视对讲系统、电梯五方对讲电话系统仅预埋管、盒、桥架。其余均按智能化工程量清单计入招标范围。
5、消防工程:火灾自动报警系统、消防设备电源监控系统、电气火灾监控系统、防火门监控系统等消防电系统按单体图计入;单体楼、公建消火栓系统、自动喷淋系统计至出户外第一个阀门井(含井及阀门)处。
6、暖通工程:按图计入本次招标范围内。
7、电梯工程:按图计入本次招标范围内。
8、抗震支架:按图计入本次招标范围内。
(三) 室外工程:
1、景观工程:机动车、非机动车、中心景观、儿童老年人活动场地、幼儿园内铺装、透水砖、消防通道、花池、树池、围墙等;按图计入。
2、道排工程:沥青道路、雨污水、隔油池、化粪池等;按图计入。
3、绿化工程:苗木、色块、草皮栽植、养护等;按图计入。
4、消防工程:室外消防水电计入。
5、路灯照明系统计入。室外智能化系统计入。室外强电不计入。
(四) 补充说明:
图纸已设计但不计入本次招标范围的有:
1、室外生活给水系统;二次加压泵房不计入。
二、暂定项目:
(一)以下项目按照业主要求,以暂定工程量计入分部分项工程量清单,投标人综合考虑报价,中标后按实际工程量结算。
无
(二) 以下项目按照业主要求,
1、本项目不设置暂列金。
(三)执行暂估价的材料、设备、专业工程及其金额如下:
1、材料的名称、规格型号、金额;无
2、设备的名称、规格型号、金额;无
3、专业工程名称、工程内容、金额:无
三、按项列入清单的内容,中标后不予调整:
以下项目按照业主要求,按项计入,投标人自行踏勘现场,综合考虑报价,中标后不予调整。
1、项目名称:细石混凝土封堵;工作内容:包括但不限于预留洞口、管道穿越墙体留洞等一切需封堵的二次灌浆等所产生的一切费用,最高投标限价按一项列入各土建单位工程分部分项工程量清单中。投标人根据设计图纸并结合现场踏勘情况综合考虑报价,一次性包死,中标后不得因此提出任何形式的费用增加,中标人须按照图纸要求及相关规范完成上述工作内容并确保验收移交。
2、项目名称:梁柱接头砼强度差处理;工作内容:梁柱接头砼强度差处理,交接处铺设专用钢丝网,按一项列入各住宅单体单位工程分部分项工程量清单中。投标人根据设计图纸等相关要求综合考虑报价,中标后不予调整。
3、项目名称:开道口费;工作内容:后期涉及到开设道口以及临时施工道口(含临时道口拆除恢复)计入本次清单范围内,报价中须包括手续申报(必须保证证件齐全、手续合法)、施工等一切费用,中标后不予调整,其他见招标文件说明。道口位置及宽度应和规划总平图要求的小区出入口统一,若另外再增加道口,此道口开设和恢复费用均包含在此次报价中。按一100000列入土石方工程分部分项工程量清单中,投标人综合考虑,自行报价,中标后不予调整。
4、项目名称:临时施工用水费;工作内容:包括开户、施工、一直到最终通水整个期间的一切费用。水表不小于Φ50,满足总包单位及后期附属单位进场后的总用水量;以上均含管网建设费、增容费、破路、恢复、水表、管道、报装及内部接引等所有费用,含附属施工完毕后,将该水表到供水集团办理迁移水表变更为绿化用表,其他见招标文件说明。投标人需考虑后期各单项分包总用水容量、必须保证证件齐全、手续合法。按一项150000元列入土石方工程分部分项工程量清单中,投标人综合考虑,自行报价,中标后不予调整。
5、项目名称:临时施工基建变费;工作内容:投标人需考虑后期各单项分包总用电容量,本次招标不得少于2台变压器(规格400KVA),必须保证证件齐全、手续合法。报价中须包含线路及设备费用、供电设计、监理、施工及确保最终送电以及过程中一切报建手续费用等其他费用等,临时基建变在中标通知书发放后一个月内完成并通电。如中标单位开工时临时基建变没有正式送电,必须自备发电机保证现场施工、办公、生活,费用含在投标报价中,其他见招标文件说明。按一项250000元列入土石方工程分部分项工程量清单中,投标人综合考虑,自行报价,中标后不予调整。
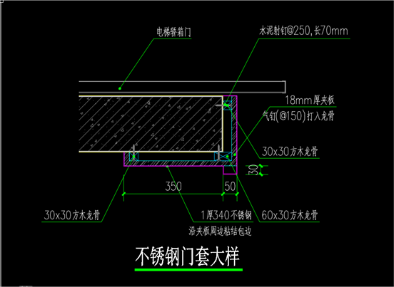
6、项目名称: 池塘、水沟排水、清淤及清运、建筑垃圾清运等费用;工作内容:包括沟塘淤泥(明沟塘、隐暗沟塘)、树根、清淤、建筑垃圾、房屋(大棚)遗留基础拆除、水井、菜地、遗留杂物处理等费用,费用由投标人自行考虑,自行勘查现场,综合考虑报价,中标后不作调整;按一项100000元列入土石方工程分部分项工程量清单中,投标人综合考虑,自行报价,中标后不予调整。
7、项目名称:地下管网保护费用;工作内容:施工范围内所有地下管网保护,投标人自行勘踏现场,综合考虑报价,中标后不予调整;按一项100000元列入土石方工程分部分项工程量清单中,投标人综合考虑,自行报价,中标后不予调整。
8、项目名称:杆线迁移费;工作内容:施工红线范围内,存在影响施工作业的杆线,由投标人进行迁移,杆线迁移方案需经业主统一后方可施工;投标人自行勘踏,综合考虑报价,中标后不予调整;按一项100000元列入土石方工程分部分项工程量清单中,投标人综合考虑,自行报价,中标后不予调整。
9、项目名称:抗震支吊架;工作内容:包含给排水、电气、消防及通风所有抗震支吊架,满足GB50981-2014《建筑机电工程抗震设计规范》及《抗震支吊架安装及验收规程》的要求;确保整个抗震支吊架验收通过。本项目所有的抗震支吊架最高投标限价按一项列入各单体安装单位工程分部分项工程量清单中。投标人根据设计图纸并结合现场踏勘情况综合考虑报价,一次性包死,中标后不得因此提出任何形式的费用增加,中标人须按照图纸要求及相关规范完成上述工作内容并确保验收移交。
四、补充图纸及修改图纸的说明:
有补图,详见最终上传图纸,具体详见图纸目录。
五、总承包服务费:具体详见招标文件。
第三部分:设计补充说明
一、土建部分
(一)共性问题
1、桩基检测、消防检测、沉降观测(含观测点预留预埋)是否不在本次招标范围内?
回复:在本次招标范围,投标人须按照图纸要求及相关规范完成上述工作内容并确保验收移交;该部分费用含在总价中,清单不单独列项,投标人综合考虑,中标后不予调整。
2、本工程φ6钢筋是否均改为φ6.5?
回复:可以。
3、现场土方是否全部外运还是留土回填后外运?土方开挖及回填的弃置点、运距如何考虑?
回复:施工范围内土方考虑现场利用,多余土方、淤泥、排水、植被、建筑垃圾等须外运至招标人指定的弃土点(如招标人没有指定的弃土点,投标人自行解决)。若需外借土方,自行解决取土点,回填土质须满足施工图纸设计及相关规范要求。投标人须自行踏勘现场,根据现场实际情况,自行考虑各方面因素后审慎报价,综合报价应考虑土方施工中的渣土费、弃土场、弃土点的平整、渣土运输清理费、降排水、外购土方费用、保洁费、办证、现场苗木、建筑垃圾等杂物的清理及其他可能发生的一切费用由投标单位勘察现场后自行考虑,中标后量、价均不予调整。 控制价编制土方运距按5公里计入。
4、请明确竣工指示牌、楼栋牌、楼层牌(楼梯间)、楼层牌(电梯厅)、单元牌、门号牌是否计入本次招标范围?如计入,请提供相关材质及做法?
回复:按补充图纸(表格)计入;
5、结构说明中注明:
,请明示本工程是否采用抗震钢筋,若采用,请明确使用部位?
回复:采用,图中HRB400E抗震钢筋用于框架柱、框架梁、楼梯的梯梁、梯板、梯柱;
6、结构说明3.1中二次构件混凝土标号为C25,9.2.3及9.7中二次构件混凝土强度等级为C20,是否统一为C25?



回复:统一采用C25;
7、门窗设计说明仅描述铝合金平开窗采用80系列型材,是否所有铝合金窗均采用90系列型材,同时铝合金门采用100系列是否合适?请明确。
回复:是。
8、电梯井道及风井内壁是否需要增加:“20mm厚1:2.5水泥砂浆随砌随抹”?
回复:是的;
9、请明确钢质门是否需要门框灌浆?
回复:钢质门槛两侧采用细石混凝土灌浆,灌浆高度为70%门槛高度;
10、烟道具体做法不详,请明确。
回复:图集16J916-1第7页C-C-28型,烟道出屋面做法参见本图集第65页。
11、如下图所示,关于砌筑工程材质的描述,建筑设计说明与结构设计说明不一致,请明确以哪个为准?
建筑设计说明:

结构设计说明:
回复:以结构设计说明为准;
12、如下图所示,标准层平面大样图中,描述部分墙体采用煤矸石实心砖,是否按MU10煤矸石实心砖,M10水泥砂浆砌筑?


回复:按MU7.5煤矸石实心砖,M5.0水泥砂浆砌筑;
13、阳台内墙面做法不详,是否参照内墙1做法计入?
回复:是的;
14、建筑标准层平面大样图保温线显示从阳台内侧走向,如下图所示,请明确是否有保温一侧(A面)按外墙做法计入,其余面按阳台内墙做法计入?

回复:是的;
15、如下图所示,请明确该空调百叶窗内侧墙体是否需要考虑真石漆?

回复:按照真石漆计入;
16、如下图所示,该处箭头指示部位做法是否为均为:“20mm无机保温砂浆”?请明确?


回复:是的;
17、无保温处外墙面做法不详,请明确?
回复:按照真石漆外墙面做法;
18、图注的门厅成品铁艺灯箱是否计入?若计入,请提供规格、参数及样式。(放入安装)
回复:全塑料灯箱,高1200,宽150;
19、
钢筋连接是否除直径d≥25mm的纵向受力钢筋和一层梁柱钢筋为机械连接或焊接外其余钢筋均为搭接连接?
回复:是;
20、试桩是否不作为工程桩使用?
回复:试桩作为工程桩使用;
21、请明确工程构造做法一览表外墙2保温做法中的25厚防火构造层的具体做法。
回复:保温砂浆;
22、请明确工程构造做法一览表外墙1中270厚非承重复合保温砌块的材料种类和构造做法。
回复:25厚的防火构造层和30厚的外叶按照保温砂浆,具体的构造做法参图集皖2019JZ118保温节能与结构一体化系统构造(一);
23、![]()
图注未至持力层处采用C15砼换填,请明确换填的面积及深度。
回复:此条取消,本工程基础以下回填土换填深度见原设计图纸;
24、地下室外墙防水做法中注明地下室外墙采用2:8灰土回填,请明确灰土回填的宽度。
回复:紧贴地下工程周围800mm以内用2:8灰土
25、请提供轻钢结构玻璃雨棚的具体做法。
回复:轻钢玻璃雨篷型号为JP1-B1527-2,作法详《钢雨篷玻璃面板图集》(07J501-1)-12页、《钢雨篷(一)》(07SG528-1)-19页、85页。玻璃采用8+1.52PVB+8夹胶玻璃。
26、基础平面布置图中注明16/E轴处设置两座集水井,而半地下室平面图中16/E轴处无集水井,请明确以哪个为准?
回复:以基础平面布置图为准;
27、结施03第3.5条注明“地下室外侧应采用中粗砂分层夯实,地下室沉降缝间空隙应用中粗砂填实,压实系数≥0.94”,是否不计入?
回复:本工程紧贴地下外墙周围800mm以内用2:8灰土回填,故本条不计入。
28、门窗表中注明BLM2624的高度为2100mm,是否应为2400mm?
回复:是的;
29、室内窗台板面是否采用20厚1:2.5水泥砂浆抹平?
回复:是的;
30、地下室排水沟内壁及底板防水做法是否参照电梯基坑做法计入?
回复:是的;
31、屋面檐沟做法不详,请明确?
回复:参照屋面1做法(取消保温层)
32、地下室配电间是否为装修做法表中的抄表间?
回复:是的;
33、屋面造型柱无配筋
,请补充?
回复:钢筋为4C10,箍筋为A6@200;
34、室外空调隔板间内侧是否按照外墙做法?
回复:是的;
35、如下图所示,成品信报箱是否计入本次招标范围,如需要计入,请明确具体材质参数及做法。

回复:计入,本工程信报箱为普通开口式单元信报箱,信报箱各部分采用不小于1.0厚不锈钢板制作,安装方式为附墙式。
36、如下图所示,外墙四周排水沟无大样图及具体做法,请明确。

回复:参加图集07J306-P24页-04,图集中C10混凝土垫层调整为C15混凝土垫层。
37、如下图所示,是否红色框线范围内填充400mm厚轻骨料混凝土,并明确轻骨料混凝土等级是否为LC10?

回复:是的;
38、如下图所示,不同基体交接处,加强处理结构设计与建筑设计说明中描述不一致且材质不明确?请明确具体做法。
结构设计说明:![]()
建筑设计说明:

回复:按“不同材料的交接处(包括埋设管线的槽),应增设钢丝网片(1mm厚钢板网(网眼尺寸不小于10X10mm)),搭接宽度每侧≥250mm”。内外墙均采用此做法。
39、关于楼梯间及人流通道钢丝网加强处理做法结构设计说明与建筑设计说明不一致,请明确是否以结构设计说明中做法为准?
结构设计说明:
建筑设计说明:
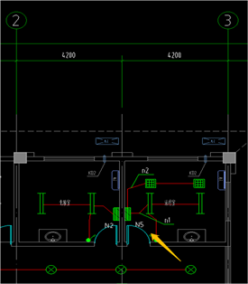
回复:以结构设计说明为准。
40、关于楼梯间及人流通道钢丝网加强处理做法按结构设计说明种做法计入,20mmM5砂浆面层是否与楼梯间墙面中抹灰做法叠加?还是仅计取楼梯间墙面中砂浆抹灰做法?
回复:仅计取楼梯间墙面中砂浆抹灰;
41、电梯机房爬梯做法,是否为图纸说明中的:图集《15J401》-A6-(T3A08a-1.8)

回复:是的;
42、门窗表中单元门玻璃材质描述为8+12+8中空玻璃,门窗说明中描述外门窗玻璃材质均采用6高透光Low-E+12空气+6透明中空玻璃,请明确以哪个为准?
回复:单元门玻璃材质为8+12+8中空玻璃;
43、所有铝合金门窗铝合金型材壁厚不详,请明确?
回复: 门框型材壁厚不小于2.0mm;窗扇型材壁厚不小于1.4mm。
44、装饰做法表中卫生间墙面防水做法为1.5mm厚聚氨酯涂膜,建筑说明中描述到:“所有卫生间墙面及顶棚均涂刷2mm厚水泥基防水涂料”,后者是否为附加防水?
回复:是的;
45、如下图所示,防水涂膜厚度不详,按2.0厚计入是否合适?请明确。

回复:厚度为2.0;
46、厨房、阳台楼地面防水是否按上翻300mm高考虑?
回复:是的;
47、所有屋面防水材质不详,请明确?

回复:1.2厚合成高分子防水卷材+1.5厚聚合物水泥防水涂料;
48、如下图所示,屋面找坡层轻集料混凝土等级不详,是否按LC10考虑?请明确。

回复:是的;
49、坡屋面沥青瓦规格不详,请明确?
回复:长度1000mm,宽度333mm,厚度25mm;
50、楼面做法中保温厚度为10mm,节能表中保温厚度为15mm,是否以节能表为准?
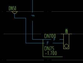
回复:以节能表为准;
51、楼梯间楼梯面做法是否参照电梯厅做法计入?请明确。
回复:是的;
52、电梯门套是否计入本次招标范围?如计入,请提做法大样图?
回复:电梯门套计入;采用2.0mm厚304拉丝不锈钢包边,基层板改为18mm阻燃板,详见附图
53、墙面、顶棚无机涂料饰面涂刷遍数不详,是否按一底两面计入?
回复:是的;
54、侯梯厅顶棚是否参照顶棚三考虑?
回复:是的;
55、外立面弹性底图,柔性耐水腻子涂刷遍数不详,按2遍考虑是否合适?请明确。
回复:是的;
56、本工程楼梯是否布置靠墙扶手?如需要,请明确布置范围?
回复:一层到半地下室设置靠墙扶手,硬木扶手规格为:,不锈钢连接件壁厚按1.5mm计入,
;
57、飘窗护栏、阳台护栏图集做法中扶手材质有两种,请明确是否采用φ50*2.0不锈钢管扶手,请明确。
回复:是的;
58、请明确集水坑盖板是否在本次范围?如在请提供具体规格、材质?
回复:是的,盖板参见图集07J306-J2页-2(100厚C20混凝土);
59、请明确排水沟盖板是否在本次范围?如在请提供具体规格、材质?
回复:是的,地下室排水沟盖板参见图集07J306-P28页-5;
60、如下图所示,基础回填材料不详,请明确具体回填材料?

回复:此条取消,本工程基础以下回填土换填深度及材料见原设计图纸;
61、如下图所示,基槽四周回填材料不详,请明确具体回填材料?

回复:本条以3.5条第2款计入;回填土采用2:8灰土
62、基础平面布置图中说明描述“若基槽开挖至设计标高时未进入持力层200,应继续开挖至2层黏土层内200mm,并用C15素混凝土回填至设计标高”,且在结构设计总说明中也描述“超挖部分采用C15素混凝土振实填平”,桩基布置图中描述如下:
且在桩基布置图未见阴影区域,是否指整个筏板区域?并明确厚度是否按图纸中给出的平均厚度计算,换填全部采用C15素混凝土?
回复:阴影区为整个筏板区域,换填深度按平均深度计入,材料采用粉质黏土回填压实;
(二)个性答疑:
100+100户型:
63、基础顶~-0.1m标高墙柱平面定位图,如下图所示,该部分外墙是否按WQ1布置?

回复:是;
64、基础顶~-0.1m标高墙柱平面定位图,如下图所示,L1(1)无截面尺寸及配筋信息,请明确?

回复:L1(1)截面及配筋同KL22;
65、二层板平面布置图中,如下图所示该区域在说明中描述为C8@100双层双向通长布置,而钢筋布置图中描述的C8@100跨板筋是附加筋还是仅仅只是重复描述?(其余有类似描述问题同样参照此疑问答复)
回复:单独布置部位非附加钢筋,此部位仅表示配筋特殊加强部位;
66、如下图所示,墙身大样2(空调板处)中间是否为混凝土板?若是,请提供节点大样及配筋做法?

回复:此处为钢结构;不计入本次招标范围。
67、如下图所示,空调板底部200高素混凝土反坎混凝土强度等级不详,按C25计入是否合适?
回复:未注明二次构件混凝土强度均采用C25;

68、如下图所示,设备管井门槛混凝土强度等级按C25计入是否合适?
![]()
回复:未注明二次构件混凝土强度均采用C25;
69、如下图所示,强电井处门洞口开在剪力墙部位,请明确是否需要修改调整?

回复:此处垛子取消,垛子2根纵向钢筋取消;
70、如下图所示,25-27轴交B轴处该部位为TC1617,窗宽为1600,结构图中该部位GZ2间距为1400,将右侧GZ2右移至窗边是否合适?

回复:是;
71、桩基设计说明中关于桩长描述为“有效桩长不小于10米”,请明确是否按10米计入?
回复:是;
72、如下图所示,地下室部分墙柱混凝土强度等级是否按楼层表中强度等级计入?
楼层表:
设计说明:
回复:按楼层表计入;
80户型:
73、结构图板图中说明中的阴影
与平面图
不符是否标注错误?
回复:说明第4条表示为楼电梯前室部位,第5条表示为厨房及卫生间部位,具体可参见120+120户型;
74、楼层表中
-1-3层墙柱为C35,是到三层楼板还是三层顶板?
回复:至三层顶板;
75、结构图板图中GZ3、GZ4无节点,请补充,节点中有GZ1,平面图未布置,请明确?
回复:未注明未布置的构造柱为GZ1;GZ3、GZ4大样见结施26;
76、地下室排水沟增加节点做法,排水沟及集水坑上是否应增加盖板?
回复:是的;
77、屋面造型柱无配筋
,请补充?
回复:钢筋为4C10,箍筋为A6@200;
78、地下室配电间是否为装修做法表中的抄表间?
回复:是的;
79、结施31楼梯间7.25m屋面处栏板造型结构无节点
,请给出节点尺寸及配筋?
回复:见右图
80、80+80+80架空户型首层M1221是否断热铝合金可视对讲单元门?
回复:修改为BLM1424,单元入户门,带可视对讲
81、图纸地下室已注明做法,建筑做法表储藏间也给出了装修做法,以哪一个为准?
回复:储藏间以地下室做法为准;
82、80+80+80户型结构图中基础图与梁图均布置了温度后浇带,板图为表示,是否从基础层到屋面层同位置均布置温度后浇带?
回复:是的。
配电房共性问题:
83、电缆沟及配电房地面装饰是否计入本次招标范围?
回复:电缆沟及配电房地面装饰不计,由供电公司施工;首层配电房地面考虑填充层以下做法。配电间踢脚线不计;
84、如下图所示,关于散水图集做法种植土厚度不明确;垫层做法不明确,请明确。
回复:种植土按300mm厚,垫层采用150厚粒径10-40卵石灌M2.5混合砂浆;
85、如下图所示,关于垫层做法不明确,
请明确。
回复:300厚粒径10-40卵石灌M2.5混合砂浆分两步灌注,宽出面层100mm;
86、楼梯4.4m标高处TZ2
无截面配筋大样图,请明确?
回复:参照TZ1;
87、结构说明框架结构混凝土强度等级详见楼层表,而图纸中未见楼层表,请明确?
回复:结构框架(柱梁板)混凝土强度等级均为C30;
88、如图示二层结构梁宽为250mm
而L1宽为300mm,是否有误请明确?
回复:按250*400计入;
89、基础层与一层柱子标高冲突,请明确以哪个为准?


回复:基础层柱子高度从基础顶~-0.8;
90、结构图中一层梁顶为-0.8,建筑图中梁顶为±0,请明确以哪个为准
回复:以结构图为准;
91、请提供台阶面层地砖规格、材质
回复:800*800*10厚防滑地砖;
92、防雨百叶是否为铝合金防雨百叶,百叶窗百叶厚为1.2mm,边框壁厚为1.4mm?
回复:是;
93、请提供窗户压顶做法
回复:压顶尺寸为墙宽*100;配筋为2C6 C6@200(C为三级钢);
商业、幼儿园共性问题:
94、建筑说明中屋面防水采用1.2厚防水卷材+1.5防水涂料,请明确卷材和防水涂料的材质?
回复:同住宅做法;
95、建筑说明中屋面做法中瓦屋面,是否全部为沥青瓦,规格请明确?
回复:S-1#、S-2#为平瓦,社区服务中心为沥青瓦;
96、无机涂料内墙面是否采用一遍底漆两遍面漆?
回复:是的;
97、地下室筏板(含基础上柱墩)、外墙及梁板是否全部为抗渗等级为P6的混凝土浇筑?
回复:地下室外墙、筏板基础(含基础上柱墩)均采用内掺膨胀剂的密实补偿收缩抗渗混凝土,其抗渗等级为P6,其余部位采用普通收缩混凝土;
98、内墙腻子是否为耐水腻子两遍?
回复:是的;
99、公共卫生间是否设置300高轻质砌块垫高蹲位?
回复:是的;
100、商业内墙及顶棚变形缝未给出具体做法,是否能参照主楼结构说明图十中的做法?
?
答:是的,盖板为铝合金盖板。
商业:
101、结构图板图二三层及闷顶图中未标注底筋配置型号间距,是否未标注的均为三级钢8@200?
回复:是;
102、建施09
此处做法是否同卫生间?
回复:是的;
103、商业公共过道做法是不是同楼梯间?
回复:楼面为楼面3,墙面为内墙2,顶棚为顶棚2
104、商业此处外立面是否为GRC线条?

回复:是的
105、平面图中的M1121室内门是否同门窗表中的M1221一样为双面胶合板门?
回复:是的;
106、独立基础下面C15素砼换填高度是多少
?
回复:这个根据后期现场实际开挖来,暂不考虑换填量。
幼儿园:
107、建施11屋顶层平面图
外立面处设置MLC是否标注错误?
回复:是的,屋顶层平面图这个位置的窗户是三层阳台门联窗;
108、建筑说明中幼儿用房突出尖角部分用软包墙裙是否为幼儿用房整体墙裙1200mm以下全部软包,软包材料是否为亚麻布?
回复:是的;
109、建筑图纸平面图中未见幼儿用房字样,是否不设置幼儿用房?
回复:幼儿用房为活动室兼寝室,兴趣活动室,教具制作室,图书阅览室,美工室,多功能活动室,科学室房间;
110、图纸中的M1327门材质是什么?
回复:详立面形式详图,门材质为实木套装门(设置6厚单层安全玻璃观察窗);
111、装修做法表在内墙2中的2厚聚合物水泥基防水涂料(两道)
是否为2厚聚合物水泥基防水涂料分两次涂刷?
回复:是的。
门卫:
112、门卫节点建筑图与结构图不一致,请明确以哪个为准?


回复:以结构图为准;
113、请提供柱子外围是否为砖砌墙体?

回复:是;
114、请提供窗户压顶做法。
回复:压顶尺寸为墙宽*100;配筋为2C6 C6@200;
115、图集中无此散水做法,是否参照社区中心散水做法

回复:是;
116、坡道做法图集引用不正确,图集无此做法,是否参照社区中心坡道做法
回复:是;
社区服务中心:
117、-0.100~4.100标高柱平法施工图
箭头处KZ1x尺寸为500*600,与大样图不一致,请明确以哪个为准?
回复:以平面尺寸为准,配筋同KZ-2;
118、一层模板平面布置图中
无柱大样图,请提供配筋信息。
回复:截面尺寸为300*300,配筋为8C12,箍筋为C6@100/200;
119、大样图中电梯基坑底标高为-1.8,平面图中为-1.6,请明确以哪个为准?


回复:以平面图标高为准;
120、二层板平面施工图无此构造柱大样,请提供配筋信息。

回复:大样如下:
;
121、构造柱、压顶、过梁、圈梁等构件是否为混凝土等级是否为C25?


回复:是;
122、箭头处是否为砖砌墙体?
回复:此处做法参见结施14页窗与柱间墙垛做法;
123、请提供窗户压顶做法。
回复:压顶尺寸为墙宽*100;配筋为2C6 C6@200;(C为三级钢);
124、图纸中无电梯井圈梁做法,是否同水平系梁做法?
回复:电梯井,从基础梁顶标高开始,层高≥5m的在1m、3m位置设圈梁,其他情况均在电梯门顶设圈梁一道,圈梁断面200X300,配筋4C14,箍筋A6@200;门洞上部未设置过梁处设置过梁一道,过梁断面200X240,配筋4C14,箍筋A6@200;(A为一级钢,C为三级钢);
125、卫生间隔断、无障碍抓杆、化妆镜、卫生纸盒、多功能台、洗手池台面等是否计入?
回复:是;
126、种植散水面层是种植土还是回填土?
回复:300厚种植土;
127、种植散水基层是否为150厚粒径10~40卵石灌M2.5混合砂浆?
回复:是;
128、请提供台阶地砖面层材质、颜色、规格及厚度
回复:芝麻灰PC仿石材砖,500mmx500mmx50mm厚;
129、如下图所示,关于垫层做法不明确,
请明确。
回复:300厚粒径10-40卵石灌M2.5混合砂浆分两步灌注,宽出面层100mm;
130、楼梯间面层做法是否同楼面2(防滑地砖楼面)做法?
回复:是的;
131、卫生间墙面防水层是否施工到顶?
回复:是的;
132、门和窗框材厚度多少?
回复: 门框型材壁厚不小于2.0mm;窗扇型材壁厚不小于1.4mm;
133、成品无障碍卫生间平开门为什么材质?
回复:铝合金玻璃平开门,玻璃为6中透光Low-E+12空气+6;
134、卫生间成品铝合金玻璃平开门玻璃厚度多少?
回复:6厚单玻;
135、楼梯此处台阶是否为砖砌?

回复:是的;
136、请提供屋顶女儿墙内侧做法
回复:同真石漆外墙面,无保温;
137、空调间是否同外墙做法?

回复:是的,同真石漆外墙;
138、四层平面图中电井门为FM丙0818,在电梯楼梯乙四层平面图中电井门为FM甲0818,请明确以哪个为准?
回复:以四层平面图为准;
139、请明确电梯基坑底部砂石垫层换填深度

回复:换填深度1m,底部宽出基坑底部0.8m;
140、电梯井基坑及井壁是否采用内掺膨胀剂的密实补偿收缩抗渗混凝土,其抗渗等级为P6?
回复:是;
141、小便池隔断尺寸是否为400mm宽*800mm高?
回复:是;
142、无障碍卫生间扶手是否为不锈钢材质?
回复:是;
143、公共卫生间是否设置300高轻质砌块垫高蹲位?
回复:是的;
144、卫生间
化妆镜尺寸多少?是否所有洗手盆都安装化妆镜?
回复:都安装,尺寸为1000mm*1000mm*5厚;
145、此处卫生间镜子尺寸多少
?
回复:3000mm*1000mm*5厚;
146、请提供无障碍卫生间多功能台具体尺寸,材质。
回复:展开尺寸为850*560*495mm,PE材质;
二、安装工程:
共性问题:
147、请明确本工程是否甲供材及推荐品牌?
回复:无甲供材,推荐品牌具体详见招标文件
148、每户给水系统是给水接口全部用丝堵或计入一个水龙头(方便用水),其他接口用丝堵,请明确?
回复:计入一个水龙头,其他用丝堵。
社区中心图纸答疑:
149、电施图中N6配电箱进线是否引自配电箱1AL~4AL?回路线、管型号是否为WDZ-BYJ-3*10-PC40-WC.CC?

答:是的,N6引自所在层照明配电箱,管型号为WDZ-BYJ-3*10-PC40-WC.CC
150、电施图中N5配电箱进线是否引自配电箱AL1?回路线、管型号是否为WDZ-BYJ-3*6-PC32-WC.CC?

答:引自WSYAL配电箱,管型号为WDZ-BYJ-3*6-PC32-WC.CC
151、一层照明平面图中N2配电箱是否标注错误?为N5配电箱?

答:是的,为N5
152、请提供排气扇的规格、型号及安装方式?

答:详见暖通图纸。
153、配电箱N1-N6系统图数量与平面图均不一致,是否以平面图为准?
答:以平面图为准。
154、请补充一层照明平面图中WSYAL配电箱照明出线回路管线型号?

答:BV-3*2.5-PC20-WC.CC。
155、请提供管、线的规格材质以及敷设方式?

答:pc20 (UTP6e+ RVB 2*0.5) wc,
配电房、门卫
156、门卫电施图:请提供管、线的规格材质以及敷设方式?

答:pc20 (UTP6e+ RVB 2*0.5) wc,
157、门卫电施图中弱电进线预埋管系统图与平面图不一致,请明确以哪个为准?


答:以系统图为准,2*sc50。
158、门卫道闸电机及道闸是否计入?

答:计入智能化清单中。
159、轴流风机参数是否为0.37KW?

答:为0.37KW。
160、配电房内柜式空调是否计入?若计入,请提供具体参数?
答:预留空调插座,空调不计入。
单体楼(100+100户型):
161、请明确卫生间排气扇型号参数?

回复:32w排气扇, 吸顶安装
162、请明确灯具名称规格型号参数?


回复:节能led壁灯 5w 距地2500安装
163、请明确灯具名称规格型号参数?

回复:应急照明两用T5灯管,自带蓄电池 1*28w 吸顶安装
164、请明确电梯机房排气扇型号参数?

回复:55w 壁挂排气扇。
165、请明确灯具名称规格型号参数?

回复:2*28w led节能灯
166、电气图纸中,请明确一层入户处成品铁艺灯箱参数?

回复:10W,灯具样式如下,全塑料灯箱,高1200,宽150

167、火灾自动报警系统中系统图线型跟表格中不一致,请明确按哪个计入?


回复:以系统图为准。
168、排水图纸中,一层无排水平面图及系统图,请补充。(可否按标准层计入,出户按照系统图计入?)

回复:参见给排水系统图(所有楼层均相同)。
单体楼(120+120户型):
169、5#楼雨水系统YL-15、16、,系统图中有,平面图中无,请明确。
回复:一层平面2、6号立管标号未改,应为15、16号立管。
170、5#楼雨水系统YL-2、6、,系统图中与平面图不一致,请明确是否以平面图为准。
回复:立管2、6排至3层屋檐,以系统图为准。
单体楼(60+60户型):
171、15#楼废水排水系统中一层设计的是单独采用DN75的管子排到雨水井,而平面图中一层设计是接入DN100的管子排到污水井,请明确?
回复:底层单排,采用DN75;其余层为DN100。
![]() |
|||
![]() |
|||
172、每户给水系统是给水接口全部用丝堵或计入一个水龙头(方便用水),其他接口用丝堵,请明确?
回复:计入一个水龙头,其他用丝堵。
173、15#楼污水系统中的系统设计的一层为单独一根DN100的管道接到污水井,而平面图设计是与楼上公用一个管道接到雨水井?请问以哪个为准?
回复:底层单排,DN100,可共用污水井。
![]() |
|||
![]() |
|||
室外给水、强弱电工程:
174、室外给排水图纸标注不全,请明确。
回复:市政给水水表后主管为DN150,入户管详见单体。消火栓系统、喷淋系统主管为DN150,入户管详见各单体。
175、室外消火栓给水系统是否需要增设阀门及阀门井,请明确。
回复:阀门及阀门井数量19个。
176、请明确室外阀门井是否为砖砌阀门井。
回复:钢筋混凝土矩形阀门井,详见05S502.
177、室外给排水图纸,如下图,请明确是否在本次报价范围。

回复:此图为管综图,截图部分为电气智能化部分,按图纸计入。
178、请明确室外供配电、消防管线、弱电管线是否在本次报价范围。
答:室外供配电图纸由当地供电公司提供,不在本次报价范围。消防管线图纸详见补充图纸(消防联动图纸),弱电管线详见智能化图纸,按图计入报价。
179、室外道路及景观照明图纸说明:“各光源颜色、灯具型号及样式由业主自主选购,灯具的安装及调试由相关专业灯具厂家负责完成”。请明确室外灯具安装是否在本次报价范围。
答:在本次报价范围,灯具选型必须经过业主确认后方可采购施工。
180、室外消防联动图系统图中的信号线等各种线的型号与各单体楼火灾自动报警图中的型号不一致,以哪个为准?


答:以室外消防联动系统图中的型号为准。
181、室外照明图纸中配电房低压控制柜至路灯配电箱的进线电缆是否在本次招标范围内,请明确。
答:不在本次招标范围内。
幼儿园:
182、
此图例表示两种灯具,主要分布于门厅及每层过道,是否区域不同灯具不同,若是,请明确何处用圆盘灯,何处用筒灯?
答:门厅用筒灯,过道用圆盘吸顶灯。
183、“活动室兼寝室”是否用防眩型灯具?
答:是。
184、请明确电话、信息插座穿管及穿线规格?
答:网线UTP6E,电话线用RVB 2X0.5 pc20
80户型:
185、请明确井道壁灯规格型号?
答:5w led
186、请明确如图灯具规格型号?
答:应急照明两用T5灯管,自带蓄电池 1*28w节能灯
187、请明确双管荧光灯规格型号?![]()
答:2*28w
S1、S2商业:
188、请明确此灯具规格型号?
答:1*18w led
189、请明确此开关名称规格型号?
答:双控开关
190、请明确消控室主机设备是否计入本次招标范围?
答:计入本次招标范围,消防单位深化以后,由消防单位提供具体参数,满足业主及验收要求。
191、生活泵房设备本次是否计入?
答:生活泵房内供水设备、阀门、管道本次不计入,后期由供水公司施工。
三、室外工程:
(一)道路工程:
192、请明确封层及透层含油量?
答:封层按纯沥青量0.5~0.7kg/㎡,透层油透入深度为5-10mm,用量控制在0.7~1.5L/㎡范围内,增加一道粘层,粘层0.4—0.6 kg/㎡,增加一道20mm橡胶沥青应力吸收层。
193、请明确沥青面层AC-13改性沥青混凝土为普通改性沥青混凝土还是玄武岩改性沥青混凝土?
答:普通改性沥青混凝土
194、请明确图纸说明中路槽间隔土回填的范围及具体厚度?
答:取消间隔土。
195、请明确侧石下碎石是否与道路级配碎石基层为同一整体层面?
答:侧石下碎石修改为同道路200mm厚级配碎石垫层。
(二)围墙:
196、请明确围墙说明中柔性面砖使用在何处?
答:无饰面砖,取消;
197、请明确围墙说明中描述基底标高暂定为-4.5m,请确定具体基底标高?
答:按照4.5m计入;
198、围墙边砖砌地沟是否内粉,是否需要外接出水管,如需要,请明确长度及做法?
答:取消围墙边砖砌地沟;
(三)景观工程:
199、请明确全民活动场地A两侧画圈处面层材质是什么?是否同沥青道路做法?

答:同沥青道路做法。
200、请明确社区卫生服务站前的商业及服务用房前透水砖铺装是否有走边,如有,请明确做法?
答:有走边,做法为:50厚200*100黄色透水砖。
201、请明确商业及服务用房前透水砖铺装基层做法为人行还是车行?
答:商业及服务用房前透水砖铺装基层为车行。
202、台阶结构做法中描述,视现场情况配筋,请明确台阶混凝土结构层是否配筋?
答:需要配筋。
203、请明确消防登高面四周走边是否为30厚200*200芝麻白火烧面压边?
答:是的
204、请明确非机动车停车位铺装结构层做法是什么?
答:采用车行结构。
205、请明确中心花园下面两处铺装是否统一材质?
答:统一采用透水砖材质铺设。
206、请明确全民活动场地A部分指引是否有误?
答:个别指引以下图为准


207、请明确室外小品的材质规格?如:果皮箱、标志牌等。
答:1)果皮箱

具体样式后期跟踪采购
2)防腐木坐凳

具体样式后期跟踪采购
3)休闲石桌凳:材质花岗岩,石桌直径90厘米,高65厘米,石凳直径23厘米,高35厘米

4)健身器材

具体样式后期跟踪采购
5)小型户外玩具

6)大型儿童玩具

具体样式后期跟踪采购
7)门卫

成品门卫尺寸为3m*4m*2.8m,自动伸缩门计入室外清单内,具体样式后期跟踪采购。
自动伸缩们为成品采购,长度为10米,含采购、安装、电机、电箱、管线、智能控制系统、LED显示屏等,满足使用功能。示意图如下,具体样式后期跟踪采购。

门卫处增加沥青道路范围如下,做法同小区内沥青道路做法:

8)指示牌


具体样式后期跟踪采购。
9)标示牌

具体样式后期跟踪采购。
(四)绿化工程:
208、绿化图纸说明绿化养护期为两年,请具体明确绿化成活养护期和保存养护期、日常管理期各为多少?
答:成活养护期1个月,保存养护期3个月,日常管理期养护3年。
209、请明确以下两个苗木的修剪高度是否有误?
答:修剪高度分别为40cm和35cm。
210、图纸说明有两处关于土壤改良方式(如下图),具体做法不详,请明确绿化具体回填深度及换填方式?

答:整体绿地按30cm深度换土,换填种植土均需掺拌30%泥炭土。
(五)排水工程:
211、请明确雨水口做法?
答:混凝土雨水口。图集P31.32页。
212、请明确隔油池做法?
答:参见SHZ玻璃钢隔油池选用及安装11BSZ2-1/SHZ-3A(B),有地下水类型,垫层混凝土为150厚C15混凝土。
213、请明确排水沟槽回填材质?
答:管道基础面至管顶以上0.3m回填材质中粗砂,以上采用素土回填。
214、请明确污水处理一体化设备及污水提升泵站是否在本次招标范围内?如在,请明确具体做法?

答:污水处理一体化设备及污水提升泵站不在本次招标范围内,管线按图施工。
215、请明确景观雨水口是否有雨水管设置?
答:每个景观雨水口按15米预留连接管,排水沟处预留30米连接管,管材同原设计。
招标人名称:涡阳县重点工程建设管理服务中心
地址:涡阳县城管大楼4楼
联系人:鲁工
联系方式:0558-2861571
招标代理:安徽诚信项目管理有限公司
地 址:合肥市滨湖新区南京路2588号(徽州大道与南京路交口)六楼
联系人:张工
联系方式:0551-66223672
2020年12月14日
三、附件
答疑发布日期:2020年12月14日