您现在的位置: 首页 >> 答疑变更 >> 安徽公共资源交易集团项目管理有限公司 >> 工程
一、原公告主要信息
原项目名称: 五里片区A组团二期复建点(E、F地块)主体工程施工
原项目编号: 2020BFLGZ03318
原公告日期: 2020年12月04日
二、公告内容(更正事项、内容及日期等)
五里片区A组团二期复建点(E、F地块)主体工程施工 招标文件补疑1
项目编号:2020BFLGZ03318
各投标人:
现对招标文件有如下说明:
(1)2020年12月3日发放的清单作废,清单控制价以随本补疑一同发放的“2020BFLGZ03318 五里片区A组团二期复建点(E、F地块)主体工程施工”为准。
(2)本项目清单控制价有如下补充:
重要提示
1、人工费执行《关于贯彻执行2018版安徽省建设工程计价依据的通知》(合造价【2018】13号文)。其中定额人工费参与取费、取税,其相对于定额人工费增加的部分 0 元只计取税金。
2、本工程取费按“建筑工程取费标准”中“ 民用建筑 ”的费率计取;其中房屋建筑中挖或填土石方量大于5000m3的大型土石方工程,其企业管理费率8%、利润率8%,措施项目费率和不可竞争费率按房屋建筑工程相应费率乘0.6系数。
按业主要求,现对本项目招标文件作出如下补充:
第一部分 招标需求
一、招标范围:
本项目分为1个标段,包括: E地块地下车库、 F地块地下车库、单体住宅9栋、2栋门卫及3栋公建,地上建筑面积10.6万平米、地下建筑面积5.5万平米。本项目含有深基坑,最大基坑深度约10.2米。除特殊说明外,招标文件、工程量清单、图纸以及补充答疑文件全部内容。
各专业:
(一)建筑工程
1、土建工程:包含土方工程、基坑支护工程、桩基工程、主体钢筋砼结构、墙体、保温、室外散水、台阶和残疾人坡道、屋面及防水等,图示建筑、结构等涉及到的土建范围全部计入本次招标范围。
2、装饰工程:含单体的内外墙面、地面及顶棚装饰工程、幕墙工程、门窗工程、栏杆、不锈钢成品奶报箱、竣工牌、楼栋牌、单元牌、楼层牌及入户牌等。各楼栋装饰做法按图纸设计计入。
3、土方工程:土方开挖由原地貌标高挖至设计图纸标高,地库回填土按照设计图纸要求土质回填至室外设计标高。土方涉及的范围包含±0.000米以上标高红线范围内及红线范围外5米处的土方平衡。
(二)安装工程
涉及到强弱电、雨污水、供水等出单体套管以及出墙管均计入室外的第一个井(无工井按出单体1.5米计入本次清单)。涉及到市政开闭所、局管、自管配电房、所有单体供电、供水庭院管、生活泵房、立管进出水管出单体套管、燃气套管、有线电视套管、消防报警等其他弱电不满足后期通道重新需要增加开洞、补洞、堵洞、套管(采用专用止水套管和电线电缆、弱电、供水管、燃气管施工后防水堵洞等)均由中标人承担,费用包含在投标总价中,投标人综合考虑,自行报价,标后不予调整。
1、给排水工程:图示给排水、消防水、喷淋水、卫生洁具、淋浴器、太阳能(含电加热)、屋顶水箱、管道、供水集团施工的水表后供水管网对接(含)、雨水、排水、屋顶水箱进水管和水管井高压管供水集团安装的屋顶水表表后对接、生活泵房排水沟、排污泵等涉及水专业工作内容计入本次招标范围。
除以下描述不计入本次招标范围的除外:
1.1、供水庭院管网、供水立管不计入本次招标范围;立管安装的水表不计入本次招标范围。
1.2、水表后对接均计入本次招标范围。水表后对接均由中标人负责。
1.3、生活泵房供水设备和水箱不计入本次招标范围。
1.4、雨水、排水全部按图计入,排水接至室外第一个窨井,管顶以上50公分均由砂包管进行处理,雨污水管道基础垫层不满足承载力要求时,中标单位负责用砼、砂换填,保证管道不下沉、不断裂,确保满足验收要求,所有一切费用均含在中标单位投标报价中,中标后不予调整。
2、电气工程:图示单体的强弱电、消防报警等涉及电专业工作内容计入本次招标范围。
除以下描述不计入本次招标范围的除外:
住宅楼电表箱仅计取安装费,电表箱体前仅计预留预埋、修复、桥架,电表箱前进线电缆不计取,强电出墙管接入室外第一个供电工井(钢管接入)(不含手工井和井盖) ;地库、以及其他配套公建强电出墙管接入室外第一个供电工井(钢管接入)(不含手工井和井盖)。
具体如下:
2.1、单体楼电表箱(住宅楼、地库、配套公建至第一级动力总分支箱)后按图计入,自管配电房至第一级动力总分支箱(住宅楼、地库、配套公建至第一级动力总分支箱)电缆计入配电房预留配电房半周长,第一级动力总分支箱(包含动力总分支箱箱体及安装)后至电梯、风机、排污泵、公共照明等所有分支动力箱、线缆、桥架(含住宅楼、地库、配套公建前后桥架)、电管预埋全部计取。
2.2、消防、喷淋泵房配电总箱进线电缆计入配电房预留配电房半周长,消防、喷淋泵房配电总箱出线电缆(包含配电总箱箱体及安装)至控制柜、消防、喷淋泵末端的所有电缆、配电设备桥架、电管预埋全部计取,自管配电房至消防、喷淋泵房配电总箱进线桥架、电管预埋计取。
2.3、局管配电房至生活泵房的配电房的动力进线电缆不计取,充电桩动力箱进线电缆不计取,其它全部计取。
2.4、住宅楼属于住宅部分电图上干线图位于一层或地下室动力柜AMP箱不计取,住宅楼局管配电房到电表箱前进线电缆不计取,局管配电房到自管配电房的进线电缆不计取。
2.5、自管和局管配电房设备、设备基础及电缆沟不计入。(备注:局管是指给住户电表箱和生活泵房、幼儿园供电的配电房、充电桩。自管指给电梯、公共照明、室外路灯、大门、地库以及其他用电设备供电的配电房。)
3、弱电工程发包范围:
3.1、户内综合多媒体箱前仅计取预留、预埋、修复及管道井弱电桥架,单体楼室外有线电视、电话、宽带(三网合一)计入预留、预埋;多媒体箱后按图计入。
3.2、单体楼内消防接线端子箱后按图全部计入(端子箱前仅计预埋,算至出外墙1.5m)(包括防火门监控系统、电气火灾监控系统、消防电源监控系统、余压监控系统、应急广播系统),彩色可视对讲系统,电梯五方对讲系统、供水立管远程抄表线的室内等弱电的管线按图全部计入,室内出单体出墙套管接入室外第一个手工井(钢管接入)(不含手工井和井盖)。地库内火灾自动报警系统、防火门监控系统、电气火灾监控系统、消防电源监控系统、余压监控系统、应急广播系统均按图全部计入消防控制室预留消防控制室半周长。空气质量监控系统按图全部计入监控中心预留监控中心半周长。气体灭火系统按图全部计入。
3.3、电梯计入本次招标范围(含电梯大小不绣钢门套)
3.4、消防控制室位于商业楼,从消防控制室到各单体楼的所有配线、配管均不计入本次招标范围。
消防控制室内设备均不计入;
3.5、有线电视机房设备和三网合一机房的设备不计入。
4、招标范围不包括的工程内容:
以下专业工程不在本次招标范围之内:燃气工程、局管自管供电工程、三网合一工程、安防工程、有线电视工程、供水集团实施的供水工程,主楼架空层地面面层装饰(计在室外景观中),地下室的标识、标线、标牌、护角等不在本次招标范围内。
二、暂定项目:无。
三、按项列入清单、措施费的内容,标后不予调整:
(一)、土建列项部分
1、开道口费、移植和恢复苗木费:1、后期涉及到开设道口以及临时施工道口(含临时道口拆除恢复)计入本次清单范围内,报价中须包括手续申报(必须保证证件齐全、手续合法)、施工等一切费用,中标后不予调整,其他见招标文件说明。道口位置及宽度应和规划总平图要求的小区出入口统一,若另外再增加道口,此道口开设和恢复费用均包含在此次报价中。按一项10万元列入五里片区A组团二期复建点(E、F地块)主体工程施工-土方工程分部分项工程量清单中,投标人综合考虑,自行报价,标后不予调整。
2、临时施工用水费:报价中须包括开户、施工、一直到最终通水整个期间的一切费用。地表不小于Φ50,满足总包单位及后期附属单位进场后的总用水量;以上均含管网建设费、增容费、破路、恢复、水表、管道、报装及内部接引等所有费用,含附属施工完毕后,将该水表到供水集团办理迁移水表变更为绿化用表,其他见招标文件说明。投标人需考虑后期各单项分包总用水容量、必须保证证件齐全、手续合法。按一项50万元列入五里片区A组团二期复建点(E、F地块)主体工程施工-土方工程分部分项工程量清单中,投标人综合考虑,自行报价,标后不予调整。
3、临时施工基建变费:规格400KVA,报价中须包含线路及设备费用、供电设计、监理、施工及确保最终送电以及过程中一切报建手续费用等其他费用等,临时基建变在中标通知书发放后一个月内完成并通电。如中标单位开工时临时基建变没有正式送电,必须自备发电机保证现场施工、办公、生活,费用含在投标报价中,其他见招标文件说明。投标人需考虑后期各单项分包总用电容量,本次招标不得少于四台变压器,必须保证证件齐全、手续合法。按一项100万元列入五里片区A组团二期复建点(E、F地块)主体工程施工-土方工程分部分项工程量清单中,投标人综合考虑,自行报价,标后不予调整。
4、临时雨污水费用:考虑红线外临时雨污水管道实施满足施工期间的雨污水排放。按一项9万元列入五里片区A组团二期复建点(E、F地块)主体工程施工-土方工程分部分项工程量清单中,投标人综合考虑,自行报价,标后不予调整。
5、所有地上地下杆管线及建筑物保护,沟塘淤泥清运、积水排水、苗木迁移,树根、水井、菜地、绿色植物处理,施工便道、施工围挡、清障、现状道路破除、建筑物基础破除清运、建筑垃圾清运、拆迁垃圾清运、淤泥土换填、不满足基础承载力的部位用混凝土处理和换填等一切拆除、回填、清运、换填、处理、保护。具体如下:
A、所有地上地下杆管线及建筑物保护,沟塘淤泥清运等处理费用:含所有地上地下杆管线及建筑物保护、现场及红线外余、亏土方处理等,沟塘淤泥清运,所有红线外高土方影响本工程施工安全的,必需在红线范围外进行放坡处理;按一项9万元列入五里片区A组团二期复建点(E、F地块)主体工程施工-土方工程分部分项工程量清单中,投标人综合考虑,自行报价,标后不予调整。
B、积水排水、苗木迁移等费用:含积水排水、苗木迁移,树根、水井、菜地、坟地、绿色植物处理等,按一项9万元列入五里片区A组团二期复建点(E、F地块)主体工程施工-土方工程分部分项工程量清单中,投标人综合考虑,自行报价,标后不予调整。
C、清障、现状道路破除、建筑物基础破除清运等费用:含施工便道、施工围挡、清障、现状道路破除、建筑物基础破除清运、建筑垃圾清运、拆迁垃圾清运等;按一项9万元列入五里片区A组团二期复建点(E、F地块)主体工程施工-土方工程分部分项工程量清单中,投标人综合考虑,自行报价,标后不予调整。
D、混凝土处理和换填:低于地下室底板设计标高以下发现的淤泥土、水塘、建筑垃圾、水井、设备基础等不满足基础承载力的部位用混凝土处理和换填等;按一项9.5万元列入五里片区A组团二期复建点(E、F地块)主体工程施工-土方工程分部分项工程量清单中,投标人综合考虑,自行报价,标后不予调整。
6、梁柱接头砼强度差处理:工作内容包括:梁柱接头砼强度差交接处铺设专用钢丝网。按一项列入各单位工程土建分部分项工程量清单,此项费用一次性包死,投标人综合考虑,自行报价,标后不予调整。
7、伸缩缝处理:工作内容包括:对于外露的现浇钢筋混凝土女儿墙、挂板、栏板、檐口及压顶等构件,当其水平直线长度超过12m时,应按結施图 1所示设置伸缩缝,伸缩缝间距≤12m,用建筑防水油膏嵌缝。按一项列入各单位工程土建分部分项工程量清单,此项费用一次性包死,投标人综合考虑,自行报价,标后不予调整。
8、预留洞口封堵:工作内容包括:根据相关专业图纸和现场实际情况做好预留洞口封堵确保不漏水。按一项列入各单位工程土建分部分项工程量清单,此项费用一次性包死,投标人综合考虑,自行报价,标后不予调整。
9、BIM专项费用:本工程采用BIM技术系统,建设过程中必须采用BIM技术应用于项目管理,且提交BIM成果报告。具体详见招标文件,按一项160万元列入五里片区A组团二期复建点(E、F地块)主体工程施工-土方工程分部分项工程量清单中,投标人综合考虑,自行报价,标后不予调整。
(四)、安装列项部分(列入五里片区A组团二期复建点(E、F地块)主体工程施工-E地块地下车库安装工程措施项目清单中)
1、给水工程专项配合费(含施工水电费、庭院管立管冲洗试压用水电费):满足供水集团施工要求,详见招标文件及上述招标范围,按一项列入五里片区A组团二期复建点(E、F地块)主体工程施工-E地块地下车库安装项目清单中,投标人综合考虑,自行报价,标后不予调整。
2、生活泵房专项配合费(含水电费):生活泵房土建全部计取,为保证满足供水集团对生活泵房土建要求,此专项配合费含调试泵房的水电费并提供满足调试要求的电缆,详见招标文件及上述招标范围,按一项列入五里片区A组团二期复建点(E、F地块)主体工程施工-E地块地下车库安装工程措施项目清单中,投标人综合考虑,自行报价,标后不予调整。
3、燃气、有线电视、三网合一、安防等政府行业部门配合费(含水电费):此配合费包含新建有线电视机房土建工程、三网合一机房土建、提供机房照明、插座、从机房引桥架到附近弱电桥架等工作内容,满足有线电视、电信机房要求,详见招标文件及上述招标范围,按一项列入五里片区A组团二期复建点(E、F地块)主体工程施工-E地块地下车库安装工程措施项目清单中,投标人综合考虑,自行报价,标后不予调整。
4、供电配合费(含水电费)和配电房零星项目费(含验收费):该项目电表箱体前仅计预留预埋、修复、开洞、堵洞、桥架大小头及强电出墙管接入室外第一个供电工井(钢管接入)以及该项目所有配电房防鼠挡板、不锈钢防小动物网、防盗窗、接地、空调除湿机支架、轴流风机、排气扇等;供电部门施工完成后污染的墙地面修复、垃圾外运等(其中包括放电缆后引起的消防封堵、桥架损坏(桥架区分局管电缆和户内进线)、进线修复、重新拆除桥架盖板、扣去电表箱增加。每个自管配电房需配备除湿机一台),弃置点、弃置运距自行考虑;满足供电局要求的线路改造,增加线路、插座、照明等;满足供电部门验收的其他一切要求;按一项列入五里片区A组团二期复建点(E、F地块)主体工程施工-E地块地下车库安装工程措施项目清单中,投标人综合考虑,自行报价,标后不予调整。
四、暂定项目:
(一)以下项目按照业主要求,以暂定工程量计入分部分项工程量清单,投标人综合考虑报价,标后按实际工程量结算。
无
(二)以下项目按照业主要求,暂列金额为2600.00万元,计入“五里片区A组团二期复建点(E、F地块)主体工程施工-土方工程”其他项目清单,投标人应按招标人所列的金额计入投标总价。
五、补充图纸及修改图纸的说明:
六、推荐品牌:详见招标文件。
七、其它注意事项:
1、保温、水泡砂、真石漆位置详见各单体楼图纸设计:架空层一层柱墙面均为水泡砂饰面(设计为干挂大理石或板材的以大理石、板材计入)计入本次招标范围。干挂石材详见图纸计入本次招标范围。
2、本工程采用商品砼和预拌砂浆。
3、本工程投标单位须按照全程抢工考虑,措施费用应自行考虑在投标报价中,赶工措施方案投标人自行考虑,需满足招标人要求。
4、所有电缆桥架的支吊架要求但不限于以下内容:均为L50*5角钢制作,电缆桥架厚度不得低于3.0mm,防腐按标准,支吊架安装间距不得大于1.5米,确保桥架牢固,确保满足电缆安装后荷载。费用含在投标报价中,投标人在投标报价中应综合考虑,中标以后不再调整。
5、考虑工程施工进度和质量要求,模板工程等周转材料一次性全部投入到位,模板使用不得超过5次,对不符合要求的必须全部全新更换。除地下室模板工程外,所有楼同时施工,每栋单体楼模板需要投入不低于4套。清单控制价不再单独列费用,费用含在投标报价中,投标人在投标报价中应综合考虑,中标以后不再调整。
6、本工程所有电梯调试所用临时用电电缆及使用期所消耗的费用均含在投标报价中,中标人必须给予电梯单位提供,且电缆满足电梯使用要求。清单控制价不再单独列费用,费用含在投标报价中,投标人在投标报价中应综合考虑,中标以后不再调整。
7、供水、供电、有线、电信、燃气、消防、喷淋管道等所有楼板及侧墙开洞、封堵、防水处理;电梯门套施工、封堵等所有费用;必须满足供水、供电、有线、电信、燃气、消防、喷淋等的开洞数量和尺寸要求,以及电梯使用、验收要求。清单控制价不再单独列费用,费用含在投标报价中,投标人在投标报价中应综合考虑,中标以后不再调整。
8、凡涉及到本次招标范围内的所有试验、检测、综合竣工验收费用(招标人委托的第三方检测不在内)均由中标人承担;包括但不限于城市道路占用费、城市道路挖掘修复费、防雷装置施工跟踪检测费、防雷装置设计技术审查费、雷电浪涌保护器(SPD)测试费、互感器检测费、环境检测费、环境监测费、竣工验收资料备案费(含扫描费)、门窗专项检测费、各种设备和材料的专项检测费、基坑变形检测、沉降观测、幕墙五性检测费、桩基检测费、消防检测等,所有试验、专项检测、综合竣工验收费用均由投标人在投标报价中综合考虑,确保所有试验、检测满足综合竣工验收需要;清单控制价不再单独列费用,所有费用均含在投标报价中,中标以后不再调整。
9、所有井盖均采用五防(防响、防跳、防盗、防坠落、防位移)重型球墨铸铁材质(重量不小于120kg,并设置防人跌入网,材质为聚乙烯网绳),承载力不小于30吨,雨水口箅及箅座均采用球墨铸铁材质。
10、投标报价应考虑施工便道维护修建费、临时围墙修建费(需满足合肥市相关部门最新规定),以及考虑施工、生活废水排放疏通维护费。还应考虑临时设施(临时房屋及其基础、临时道路、场地硬化、临时围挡及其基础、塔吊等设备砼基础、其它为施工服务的临时建筑物和构筑物)的拆除及其拆除后建筑垃圾外运等费用,做到工程竣工时“工完、料尽、场地清”。临时设施包括:施工现场的临时房屋及其基础、临时道路、场地硬化、临时围挡及其基础、塔吊等设备砼基础、其它为满足施工需要的临时建筑物和构筑物。
11、外墙保温工程需满足合肥市最新质量验收标准,确保验收通过,投标人在投标报价中应综合考虑,费用含在投标报价中,中标以后不再调整。
12、所有楼图纸设计的电表箱和桥架与供电局要求电表箱桥架的数量、规格、材质、基础不一致的,以供电局要求的为准,确保供电验收通过,此项费用投标人在投标报价中综合考虑,费用含在投标报价中,中标以后不再调整。
13、建设工程质量保证金、农民工工资保障金等费用由施工单位先缴后返的,施工单位需按时缴纳并负责要求返还,施工单位需先行缴纳至建设单位账户,建设单位仅开具收据,以上费用均含在投标报价中,投标单位自行考虑,中标后不予调整。
14、投标单位应认真详细勘察现场,因场地限制,不具备材料堆场、库房、搭设加工区、搭设办公区、搭设生活区的,投标人在投标时应充分考虑,需将临时设施搭设等的所有相关费用充分考虑到投标报价中,中标以后不再调整。
15、现场土方根据地形图,挖土起点以场地现状为准,投标人必须提前认真勘察现场,做好测绘测量复查工作;因事先不勘察现场、不进行测绘测量复查工作等原因造成的所有一切损失,均由投标人自行承担,中标后不得以任何理由要求增加造价,一律不予办理经济签证,同时施工单位确保施工至设计标高。
16、每个单元门门禁卡,一层单元门禁卡按每户5张卡考虑,每栋楼水电管井钥匙各1把,每栋楼配电箱和地库配电箱钥匙各1把,机房层钥匙每个门1把,费用含在投标报价中,投标单位自行考虑报价,中标后不予调整。
17、所有高层单体电梯动力箱至电梯控制箱系统电源电缆及配管桥架,要求无缝对接,并满足电梯验收全部要求,投标人在投标报价中应综合考虑,费用含在投标报价中,中标以后不再调整。
18、施工现场除投标人设置的安防系统外另增加监控系统(含摄像机、录像机、计算机、主机、线缆等所有配套的附件),满足业主使用要求,投标人在投标报价中应综合考虑,费用含在投标报价中,中标以后不再调整。
19、本项目所有玻璃均为钢化玻璃。
20、中标人后期报送结算审计资料中竣工资料若发生少报漏报或和现场不一致需要增加结算审计价款的,建设单位一律不再签认任何补报资料,中标人自行协商审计部门。
21、后期发包人招标的附属工程按中标价扣除预留金的3%给予总包单位配合费(政府行业部门供电工程、供水工程、燃气工程、有线电视、电信不给总包单位配合费),进场后一个月内由附属工程直接支付给总包单位的共管账户,总包出具收款证明并开具发票;总包配合服务的内容包括但不限于以下内容:
为分包单位的现场施工提供便利条件,包括施工所需的轴线和标高,免费提供非单独搭设的垂直运输、脚手架(电梯井道内脚手架除外)的使用,提供材料堆放及施工用房及场地,以及留出合理的工期。
为分包单位提供现场水电接引点。(含水电费,分包单位支付总包配合费不再支付水电费,总包单位必须从工地现场给予分包单位接引水电,总包单位还应免费提供给政府行业部门供电、供水、燃气、有线等工程进场施工水电接引且不得收取任何水电费,并提供材料堆放房间承担房间污染后清理和修复等工作)为分包工程留洞补眼,修补门窗缝、安装切槽及修补等。
22、按施工进度和发包方要求接收经验收合格的分包工程,进行统一管理,并承担其成品保护及防偷盗的责任,赔偿因保护不当造成的损坏和丢失。
23、负责接收、汇总分包单位的竣工验收资料,承担分包单位(电梯、其他附属工程)档案扫描费,由总包单位统一牵头移交至档案馆。
24、对分包单位统一进行现场管理、安全文明质量管理。
25、电梯调试所用临时用电电缆、满足电梯正常运行用电缆,电缆线径必须满足电梯正常运行;电梯轿厢内和门套木工板防护、电梯基坑排水;电梯用临时电源运行带来电梯设备损坏后修复等。费用含在投标报价中,投标人在投标报价中应综合考虑,中标以后不再调整。
26、为分包单位的土建预留、开洞、电梯召唤孔、墙面污染和其他修复,电梯坑排水,电梯安装时的安全门防护(防火标准不低于人货电梯防护门),电梯安装后到交房前维护、人为损坏、基坑积水导致电梯元器件损坏更换等费用,按1.5米一道增加的固定电梯导轨的圈梁,电梯安装后植筋用混凝土修补门洞、固定门头增加钢板、提供固定电梯穿墙螺杆,电梯井清理垃圾和资料汇总报验等。清单控制价不再单独列费用,所有费用均含在投标报价中,中标以后不再调整。
27、消防、环保、排水、规划、卫生、人防等所有的验收必须总包单位牵头,确保验收通过。消防验收时必须用临时基建变和临时水启动,临时电缆线径必须满足消防验收需要,保证所有消防设备正常启动。
28、总包单位需和附属单位办理相关交接手续,若未办理相关交接手续,争议部分全部由总包单位负责实施。
29、总包单位的所有配合服务所发生的费用,以及供电、供水、燃气、有线电视、电信等政府行业部门的配合所发生的费用,均不支付任何配合费。
30、招标人另行招标的附属工程、绿化工程、电力工程等所有主体以外的工程,总包单位施工必须和这些工程施工无缝对接,包括根据现场实际需要增加工程内容、增加工程量等,最终满足业主及验收要求,以上费用均包含在总包服务费内。
31、总包单位还需对附属单位的安全负责。若发生政策性调整需要增加工程造价,建设单位可将分部工程单独招标,结算审计时予以扣除,中标单位不得因此提出任何索赔费用,中标单位必须无条件签署分包协议,验收由总包单位负责。
32、整体工程竣工验收由主体总包单位全权负责,包括申报、协调等所有工作内容,满足验收单位一切整改要求,确保工程整体验收通过;附属单位、建设单位配合, 主体总包中标单位不得以附属、供电、供水、燃气、有线电视等工程是招标人二次招标不是自己施工为理由提前要求进行竣工验收,总包中标单位必须在消防、规划、环保验收结束后办理竣工验收结束且办理竣工验收备案后方能计算质保期,中标人不得以附属工程(含绿化、供电、供水等工程)不是本单位施工为借口提前办理结算审计和提前进行竣工验收索要工程款以及计算质保期。
33、招标范围所涉及的专列费用和所有配合费,中标单位必须在完成和配合后,经业主和监理确定后方可列入进度款中支付。对于投标人拒不按业主及监理要求实施,或实施不符合要求拒不整改的,招标人将给予中标单位按控制价所列费用的两倍予以处罚,同时,招标人直接从结算中扣除上述投标子目费用。总包方如果不能很好的履行上述服务,招标人将不在审批打入中标人共管账户的总包配合服务费并且将总包配合费返还招标人账户。
34、总包单位以上配合服务所发生费用均包含在配合费(政府行业部门供电工程、供水工程、燃气工程、有线电视、电信等工程除外)内,投标单位自行勘察现场,自行报价,中标后不予调整。此外,总承包单位必须与招标人单独招标附属工程签订总分包合同,并不得收取任何保证金,否则招标有权取消中标人资格。
35、本项目厨房和卫生间以及阳台地漏均采用不锈钢水龙头、地漏,厨房、卫生间、阳台的整个墙面、地面、天棚均按防水计入本次招标范围。
36、在红线范围内外中标人所有临时设施、材料堆场、库房等构筑物阻碍后期自己和附属施工的,须在规定的日历天内拆除完毕,拆除及二次搭设等一切费用投标单位在投标报价中予以充分考虑,中标以后不再调整。
37、本工程工期紧,任务重,投标人对工程量清单控制价有任何疑问(清单描述不明确的,以施工图设计文件、技术规范书和相关施工验收规范、图集为准;清单与图纸、技术规范书技术标准不一致的,以较优的技术标准为准),应于招标文件规定的疑问提交截止日前提出,否则视为投标人已经认可该工程量清单控制价已包括了招标范围(图纸设计、答疑、相关技术规范等)的全部内容,后期一律不予办理经济签证,均视为中标优惠或列入其他组价中,投标人应认真查看该工程量清单控制价全部内容、仔细踏勘现场,根据自身实力考虑各种潜在的风险,慎重合理报价。
38、投标单位自行考虑现场土方的挖、填、运等费用,施工至设计标高,若现场发生缺土,自行考虑购置,填至设计标高,现场不得有建筑垃圾、生活垃圾、砼块等,满足后期所有验收、移交绿化单位等所有一切要求,所有工作内容费用均含在投标单位投标报价中,投标人自行考虑报价,中标以后不再调整。
39、所有设备均包含设备基础、动力电源、桥架、配电箱、照明、插座、开洞安装排气扇及相关配件配套费用,所有费用均含在投标单位投标报价中,投标人自行报价,满足所有设备正常使用要求,中标后不予调整。设备基础图纸设计与设备要求尺寸不一致时,由中标单位统一考虑,组价于设备安装子目中,设备基础规格尺寸最终满足设备厂家具体要求,其中砼采用C30商品砼以上,所有费用均含在投标单位投标报价中,中标后不予调整。
40、消防控制室、三网合一机房、五方对讲机房内增加操作平台、桥架、开洞(修补防水)、照明、插座等,满足所有验收要求,以上所有一切费用均含在投标单位投标报价中,中标后不予调整。
41、建设单位有权根据实际情况,取消部分工程内容等,审计时据实扣除,中标单位不得以此提出任何索赔等,不增加任何费用。
42、本标段所有外空气接触门窗应环保局要求,建筑物均安装具有降噪效果的通风隔声窗,门窗均采用消音玻璃,且室内检测噪音不得超过35分贝,确保环保检测和验收通过和绿建验收通过。
43、中标人所有分包单位、劳务班组、材料必须经招标人、监理考查后方可签订合同,针对在庐阳区履约较差的不予使用,否则中标人无条件清场分包单位、劳务班组、供应都现场的材料。
44、屋面沉降缝位置女儿墙或者栏杆高度需满足规范要求,如需增加,一切费用包含在投标单位投标报价中,中标后不予增加。
45、所有外墙剪力墙部位采用穿墙螺栓,含穿墙止水螺栓、凿槽、切割、阻锈、封堵,不得采用套管,螺栓不循环使用,费用包含在投标总价中,投标人综合考虑,自行报价,标后不予调整。
46、本工程所有的木门门锁样式如下:投标人综合考虑,自行报价,标后不予调整。
![]() |
47、本工程的淋浴器(阀门为全铜)样式如下:投标人综合考虑,自行报价,标后不予调整。

48、本工程的卫生间洗脸盆和水龙头样式如下:投标人综合考虑,自行报价,标后不予调整。
49、灯具按大白灯样式如下:投标人综合考虑,自行报价,标后不予调整。

50、信报箱计入(304不锈钢1.2MM厚,固定门厅或者室外含雨棚)。
51、所有幕墙螺栓必须为品牌螺栓,经业主同意后才可实施,投标人综合考虑在报价中,中标后不予调整。
52、招标文件中的工程技术经济要求和本答疑不一致的,以本答疑为准。
53、所有设备均包含设备基础、动力电源、桥架、配电箱、照明、插座、开洞安装排气扇及相关配件配套费用,所有费用均含在投标单位投标报价中,投标人自行勘查报价,满足所有设备正常使用要求,中标后不予调整。设备基础图纸设计与设备要求尺寸不一致时,由中标单位统一考虑,组价于设备安装子目中,设备基础规格尺寸最终满足设备厂家具体要求,其中砼采用C30商品砼以上,所有费用均含在投标单位投标报价中,中标后不予调整,投标人在投标报价中应综合考虑。
54、投标总价中包含0.3%的现场以及红线外临时设施的垃圾处理费,如垃圾不能按要求及时处理完毕并清理出施工场地范围内,费用给予扣除,清单不单独列项,费用包含在报价中。
55、人防检测费(含验收费)、噪声超标排污费、噪声检测费、环保费(含验收费)等:除建设单位委托的第三方检测以外的检测内容,投标单位必须确保整个人防检测及验收通过,投标单位必须确保整个噪声超标排污、噪声检测、环保等验收通过。包含整个噪声超标排污、噪声检测费、环保等验收通过所需要发生的一切费用,此费用还包含验收主管部门提出的所有需要整改的内容,中标人不得以验收主管部门提出整改意见为由办理任何签证。清单不单独列项,所有费用均含在投标单位投标报价中,投标人在投标报价中应综合考虑,中标后不予调整。
56、本工程设有无障碍电梯,无障碍住宅电梯的侯梯厅及电梯轿厢设施应满足GB50763-2012第3.7.1及第3.7.2要求,具体详见图纸设计要求。清单不单独列项,费用包含在报价中。
第二部分 :设计文件及技术补充说明
单体划分:
(土建和装饰部分)地库上的单体自地库顶板板面始算,板面(含板)以下的工程量计入地库,板面以上的工程量计入单体;(安装部分)按照图纸内容计入各单体。
一、土建部分
(一)共性问题
1、挖土方时产生的土方除了基础回填的土方堆放在现场外,其余多余土方是否全部外运?运距按多少计入?
答:全挖全运,各投标单位自行勘察现场,土方运距、弃置点、土源费、渣土费等均由投标人自行考虑。各投标单位综合报价时应充分考虑报价风险,中标后在任何情况下量、价均不予调整。
2、实际施工中,10外三级钢不易区分抗震或非抗震,为保证工程质量,是否10外三级钢均采用抗震钢筋?

答:是。
3、施工图中的Φ6一级钢筋,市场无此规格,是否按Φ6.5计入?
答:改为三级钢。
4、结构说明中砖砌体所需的专用砂浆是否为普通预拌砂浆?

答:为与砌体相匹配的砌筑砂浆。
5、住宅楼±0.00以上填充墙、自承重墙的煤矸石空心砖、煤矸石实心砖强度等级不详?
答:强度等级大于Mu5.0。
6、住宅楼砖砌电梯井道是否每层设置一道圈梁(电梯门一侧不设圈梁)?

答:电梯圈梁具体位置及间距详电梯土建资料,并避开门洞设置(清单按竖向间距不大于2米计入)。
7、住宅楼厨卫是否均设置200高C25圈梁?

答:是。
8、结构说明中,住宅楼墙体与不同材料的交接处,设加强型耐碱玻纤网格布,搭接宽度每侧不小于250mm。而建施为热镀锌电焊钢丝网,以何为准?

答:以结构为准。
9、结构说明中,住宅楼楼梯间和疏散通道的填充墙,应采用钢丝网砂浆面层加强。采用镀锌电焊网规格DHW2.0x50.8x50.8,水泥砂浆强度M7.5,厚度20mm。而与建施做法和砂浆厚度不同,以何为准?

答:以结构为准。
10、合建质安监[2011]64号文中规定:当钢筋连接采用电渣压力焊时,对于直径16mm以下的墙柱竖向钢筋,不得使用电渣压力焊连接。采用绑扎搭接。本工程是否执行该条款?
答:按当地要求执行。
11、住宅楼门窗边填充小墙肢且不能砌筑时,按下图计入,此宽度按住宅通病到则是否放宽到360mm?

答:是。
12、住宅凸窗空调上下板、凸窗翻边墙、凸窗空调线条砼强度等级是否同梁板?
答:同楼层梁板。
13、住宅各层栏板、女儿墙砼强度等级是否同二次构件?
答:混凝土强度为C30。
14、住宅楼每层梁板中的LL梁同强度等级是否同梁板?
答:按图纸计入。
15、住宅楼建施说明中,50mm岩棉板+石膏板保护层是否做在粉刷层外面,石膏板厚度不详?
答:本工程无此类型
16、住宅楼建施说明中,外墙找平层满铺玻纤网,在做法中没有,是否补充?
![]()

答:满铺
17、断热铝合金门窗为何种系列?
答:本项目所有推拉外窗(门)为105系列,平开外窗(门)、上悬窗为65系列。
18、建施门窗表中,厨房门TLM1824’普通铝合金推拉门的型材、玻璃厚度不详?
答:普通铝合金玻璃推拉门,105系列,12厚钢化玻璃。
19、建施门窗表中,M1424为何种门?
答:普通铝合金玻璃推拉门,105系列,12厚钢化玻璃。
20、住宅楼所有外门窗开启扇纱窗设置由业主自理,是否不计入?

答:计入
21、住宅楼所有底层外窗和阳台门、下沿低于2米且紧邻走廊和共用上人屋面的窗和门的防盗设施是否补计入?
![]()
答:不计入
22、住宅楼是否所有南向外门窗玻璃均采用内置中空百叶?

答:住宅楼所有南向外窗玻璃均采用内置中空百叶,带内置百叶的玻璃规格由6+12A+6改为6+19A+6。
23、住宅楼户内成品木质节能门、户内胶合板门做法厂家提供,是否提供做法?
答:成品胶合板门。

24、住宅楼建施说明中,厨房、卫生间、室外走廊楼地面做1.5厚无机高聚物改性防水浆料,内墙已做防水,楼地面是否不再需要上翻?
答:上翻300
25、住宅楼建施说明中,阳台楼地面做1.5厚无机高聚物改性防水浆料,内墙已做防水,楼地面是否不再需要上翻?
答:上翻300
26、住宅卫生间前室室内做法是否同卫生间?
答:是
27、住宅凸窗平台地面做法是否同卧室(15厚纳米橡塑保温隔声板是否要做)?
答:平台地面20厚1:2.5水泥砂浆面层,所有住宅楼的楼地面保温取消不做。
28、住宅电梯井壁砖内壁是否粉刷?

答:否,随砌随抹,20厚1:2水泥砂浆
29、住宅楼建施说明中,室外走廊保温板阳角处设1.5厚不锈钢护角线,宽度不详?
答:L30*1.5不锈钢

30、住宅楼建施说明中,踢脚线高度不详?
答:60
31、住宅楼是否提供门厅的干挂石材幕墙图纸?幕墙上成品灯饰由专业厂家深化设计制作安装,是否计入?
答:按图计入,中标后由中标人委托专业厂家深化设计并施工,费用不再调整,石材25厚褐色石材。幕墙上成品灯饰不计入
32、住宅楼百叶内的外墙面、空调板、雨棚板上下表面、女儿墙内侧是否均按真石漆计入?
答:1~3层为水泡砂。4及4层以上为真石漆。
33、室内乳胶漆是否均为二遍腻子三遍乳胶漆计入?
答:按图
34、住宅楼厨房灶台是否不计入?
答:不计入
35、住宅楼奶报箱、信报箱是否计入?如计入请提供做法?
答:竣工铭牌每栋楼宇一个,材质2.0拉丝不锈钢,板厚50mm,文字蚀刻填漆,规格尺寸:800x600mm;楼号牌每栋2个,电解板外烤漆2.0mm,板厚30mm,字体喷涂白色,耐雨水冲刷,规格尺寸:840X520mm;单元
牌每单元一个,材质:电解板外烤漆1.5mm,板厚20mm,字体喷涂赭石色,耐雨水冲刷,规格尺寸:350X230mm;楼层牌、房号牌、电解板外烤漆1.5mm.具体产品材质,工艺,规格,样式,颜色后期中标人二次深化设计,需经业主确认,不再另计取费用。
36、节能表中,住宅分户墙为煤矸石空心砖,而建筑平面附注为加气砼砌块,以何为准?
![]()

答:煤矸石。
37、请明确石膏板吊顶是否在本次招标范围,如果在,请明确石膏板吊顶规格及面层做法?
答:是本次招标范围,石膏板为:耐火纸面石膏板,构造(12mm+75mm其中5.0%厚岩棉+12mm)。面层同室内顶棚做法。
38、请提供住宅楼电表间屋面女儿墙做法?
答:现浇混凝土150厚.具体做法参见图纸S-E1-37页G节点
39、百叶窗尺寸大样与立面不一致,是否以立面图为准?(共性问题)
答:以平面标注为准
40、屋面出入口做法不详?
答:屋面出入口做法详见12J201-A17-2。
41、架空层外围栏杆做法不详?
答:架空层外围栏杆做法参屋面防护栏杆大样,取消下部100翻边栏杆高度为完成面向上900mm高。
42、住宅架空层的地面、内墙面?
答:架空层地面做法:细石混凝土面层
1)40厚C25细石混凝土内配∅4@100钢丝网片,表面1:1水泥砂子随打随抹光,表面涂密封固化剂
2)水泥浆一道(内掺建筑)
3)现浇混凝土楼板
内墙面为水泡砂。
43、请明确屋面格栅处栏杆做法及高度?(共性问题)
答:此处为不上人屋面,栏杆取消。
44、建施装修表中,一层室外走廊属于全封闭,内墙装饰做法是否同一层前室?
答;白色无机涂料内墙,燃烧性能等级:A.
45、屋面防护栏杆节点与平面高度不一致,以哪个位置准?

答:以屋面防护栏杆大样为准。
46、建施大样中,JXM门宽度为900,而门窗表为600,以何为准?
答:900
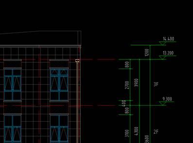
47、请明确一层门廊吊顶高度?
答:平齐梁底。1、吊顶材质、规格:3厚铝单板,表面三涂三烤氟碳漆处理。2、骨架及吊杆材料种类、规格:含70x50x5mm镀锌方钢管主龙骨及吊杆(主龙骨跨度不大于4.5m,吊杆跨度不大于2.8m)、L50x5镀锌角钢、L70x50x4mm热镀锌角码连接件、2-M8x30mm不锈钢螺栓等
3、隐蔽钢件外表面热浸镀锌防腐处理,现场焊缝采用环氧富锌漆二道,外露钢件外表面氟碳喷涂处理,喷涂厚度≥50μm
48、电表间屋面是否为保温不上人屋面?电表间外天棚是否为保温天棚?
答:电表间为保温不上人屋面,电表间外顶棚做法为保温真石漆顶棚.
49、建施装修表中,未注明的水泥砂浆找平层配合比均为1:3?
答:是。
50、明确屋面构架板装饰做法(板底及板面)?


答:按照F区的屋面构架梁真石漆做法。
51、住宅F1、F4底层外窗和阳台门、及所有住宅门厅、及顶层处外窗和阳台门均设置红外探测防盗装置,本次招标是否计入?
答:不计入。
52、住宅楼北入口门厅干挂石材外墙里的竖线是否为百叶?

答:按F-5#楼做法计入。
53、请设计明确女儿墙顶金属盖板具体材质、规格?

答:3厚铝单板,翻边150mm
54、请确认空调支架是否计入?

答:不计入
55、请雨棚大样与设计说明不一致,以何为准?

答:以下面截图为准

(二)、商业共性问题:
1、如下图卫生间墙体结构说明与建筑说明不一致,请设计明确?

![说明: 4%RFW(K%SOL]~K[]E}W]AR6](/uploadfile/a7918d19-a8ae-40dc-9b16-9bb046d95920/20201209192546882036.jpg)
答:住宅厨卫部分砖墙为煤矸石实心砖,公建卫生间部分砖墙为煤矸石空心砖。
2、请明确洗漱台台面材质、规格?
答:20厚人造石台面,参02J915-48,49
3、请设计明确卫生间隔断具体材质?
答:参02J915-45,18mm复合板
4、请设计明确卫生间多功能台具体做法?
答:参12J926-J6,18mm复合板
5、请设计明确卫生间取纸器具体材质、规格?
答:304不锈钢,参02J915-61
6、如下图填充墙与不同材料交接设置钢丝网或玻璃纤维网格布,请设计明确采用何种?

答:按玻璃纤维网格布计
7、卫生间洗漱台是否设置银镜,如设置规格如何?
答:不计入
8、卫生间铝合金条板规格及吊顶高度如何?
答:改为铝合金扣板吊顶,规格300×300,吊顶高度:底层+3.600,二三层+3.000做法参05J909-棚36B,详见更新的工程做法表
9、卫生间前室内装饰做法是否同卫生间?
答:前室同卫生间做法,详见更新的工程做法表
(三)地下车库共性问题
1、地下车库“建筑设计说明(一)”中注明地下车库顶板防水分为种植顶板、非种植顶板,请明确具体范围?
答:按照“地面一层平面图”
道路及消防登高场地下为非种植顶板,其余为种植顶板。
2、建筑设计说明中注明
,但结构图中注明
,两者不一致,请明确以何为准?
答:以结构为准,施工前应先清除基坑中的杂物,在地下室周围2米范围内应采用2:8灰土分层回填夯实密实度≥0.94。
3、请明确地下车库标志标线是否在本次招标范围内?
答:不在。
4、请明确预制钢筋混凝土方桩的试验桩数量,并请明确试验桩是否作为工程桩?
答:施工完成后的工程桩应进行应进行抗拔检测,检测桩数不少于3根,且不少于抗拔桩数1%,试验桩作为工程桩。
5、请明确基础平面布置图中“现场局部放坡图示意图”的具体部位
?
答:由投标单位自行考虑报价,清单中不单独列项。
6、请明确
是否仅指集水坑折角为90°时侧边采用砖胎膜,其余部位无,并请明确砖胎膜内侧是否需要抹灰?
答:是,其余部位由投标单位自行考虑报价,砖胎膜内侧需要20厚1:2水泥砂浆抹灰。
7、结构工程说明(三)中注明“施工后浇带在新浇筑混凝土前,应将接缝处已有混凝土表面杂物清除,刷纯水泥浆两遍后,用比设计强度等级提高一级的微膨胀混凝土及时浇筑密实。”,请明确微膨胀混凝是否同“混凝土中掺入膨胀纤维抗裂防水剂的补偿收缩混凝土”?
答:是。
8、请明确单体楼地下室底板、侧墙防水做法是否与地下车库一致?
答:是。以地下车库做法为准。
9、建筑设计说明(一)中注明“煤矸石多孔砖墙根部均浇筑200mm高配筋C20防水混凝土反梁。”,请明确是否所有的煤矸石多孔砖墙根部均需要按照此做法?
答:不需要,有防水要求的按照300mm高C20设防水反梁。
10、请明确配电房的地面、墙面、天棚的装饰做法?
答:同配电间做法。
11、请明确建筑平面图中的300高泛水
是否指300mm高混凝土门槛,若是,请明确混凝土强度等级?
答:是,C25。
12、结构图中注明为煤矸石空心砖
,但是建筑图中注明为煤矸石多孔砖
,请明确以何为准?
答:煤矸石空心砖MU5.0。
13、结构工程说明(四)中注明“7、填充墙与钢筋混凝土梁、柱、墙等构件相接处,应在该处双面粉饰层内设置钢丝网或耐碱玻璃纤维网格布聚合物砂浆加强带进行抗裂处理,内墙每边不应小于150mm,外墙每边不应小于250mm。8、墙体与不同材料的交接处(包括埋设管线的槽),应增设加强型耐碱玻纤网格布,搭接宽度每侧不小于250mm。外墙抹灰层变形敏感的部位如:外檐口下部、外窗上下部及45度区域范围内,应增设加强型耐碱玻纤网等防裂加强措施。 ”,但建筑设计说明(一)中注明“1.2.6在两种不同基体交接处,交接面应采用钢板网抹灰(网宽度≥300mm、1mm厚、网眼尺寸不大于10mmx10mm)或耐碱玻纤网格布聚合物水泥砂浆加强带进行处理,加强带与各基体的搭接宽度不应小于300mm,以防止开裂。”,请明确以何为准?
答:以结构为准,墙体与不同材料的交接处(包括二次结构与砖墙交界处、埋设管线的槽),应增设加强型耐碱玻纤网格布,搭接宽度每侧不小于250mm。
14、结构工程说明(四)中注明“楼梯间和人流通道的填充墙,应采用钢丝网砂浆面层加强。可采用镀锌电焊网规格DHW2.0x50.8x50.8或其他可用钢丝网,水泥砂浆强度M7.5,厚度20mm。”,但建筑设计说明
,两者不一致,请明确以何为准?
答:以结构为准。
15、请明确是否仅有消防电梯基坑要设置钢爬梯,并请明确钢爬梯的具体做法?
答:消防电梯及无障碍电梯均要设置钢爬梯,参照图集02J401第79页TW Wa-30。
16、请明确消防水池与消防泵房间洞口处18目防虫网的材质?
答:不锈钢防虫网。
17、请明确非机动车坡道玻璃雨棚处驳接爪的材质是否同汽车坡道玻璃雨棚?
答:是。
18、请明确汽车坡道的玻璃雨棚钢骨架是否为热镀锌钢材?
答:是,具体参照各单体钢结构设计补充说明。
19、各单体结构图钢结构设计补充说明中注明“3.2 所有钢结构构件均采用热镀锌钢材。”,但第8.1条又注明“本工程建筑耐火等级为二级,构件耐火极限:钢柱2.5h,钢梁为1.5h,本工程所有钢构件防火做法为:在涂漆前要彻底除锈,除锈达到Sa2.5级,红丹防锈底漆二度,外刷防火涂料,面漆可结合防火涂料综合考虑钢梁柱按<<建筑设计防火规范>>GB50016-2014中相应条款进行防火处理。室外工程的除锈级别高些 涂层干漆膜总厚度: 室内≥125μ,室外≥150μ 。”,请明确是否有冲突,热镀锌钢材是否要刷防锈漆及防火涂料?
答:热镀锌钢材也要刷防锈漆及防火涂料。
20、请明确是否所有防火门均为钢质防火门?
答:是。
21、建筑设计说明(一)中底板防水做法
与图集
做法不一致,请明确以何为准?
答:以做法表为准。
22、请明确单体楼出地下室顶板处侧墙覆土层
防水做法是同地库外墙还是同地下室顶板?
答:同地下室侧墙防水做法,防水上翻覆土层顶500mm,覆土层以上500mm不需要做50厚挤塑聚苯乙烯泡沫板塑料板保护层。
23、请明确风井顶板防水做法?
答:2mm厚弹性水泥防水涂料防水层+20mm厚1:2.5水泥防水砂浆向外找坡1%(内掺5%防水剂)。
24、请明确消防水池内壁刷水泥基渗透结晶型防水涂料的厚度,消防水池仅需做至防水层?
答:地面、墙面、天棚均做1.0mm厚水泥基渗透结晶型防水涂料,用量不小于1.5kg/m ²,消防水池仅做防水层无需抹灰。
25、请明确电梯基坑、集水坑、排水沟地面及内壁防水做法设计说明与大样不一致,请明确以何为准?
答:20厚1:2.5防水砂浆。
26、请明确截水沟地面及内壁是否同排水沟做20厚1:3水泥砂浆粉面(内掺5%防水浆)?(共性问题)
答:20厚1:2.5防水砂浆。
27、请明确汽车坡道、非机动车坡道外侧墙面及风井外墙面装饰做法?
答:20厚1:3水泥砂浆找平+满刮柔性耐水腻子二道+喷(刷)外墙真石漆饰面。
。
28、建筑设计说明(一)中注明了“凡有水设备间楼地面均做地面防水”的防水做法,请明确哪些房间需要做防水?
答:生活泵房、消防泵房,具体做法为:20厚1:2砂浆找平+1.5厚聚氨酯防水涂料上翻500mm+15厚1:2水泥砂浆找平层+5厚1:1水泥砂浆结合层+10厚800*800地面砖面层。
29、请明确“地面3”中环氧砂浆地面的厚度及打底料一道为何种材质?
答:5厚环氧砂浆,环氧底涂一道。
30、地下车库室内装修做法表中的水电井做法与各单体住宅楼工程构造做法中地上部分的水电井做法不一致,请明确以何为准?
答:以单体楼做法表中的做法为准。
31、请明确“电表间,强、弱电井,电缆井”的装饰做法是否同地上?
答:是。主楼内的同地上,面层应参照05J909 TL10页内涂1。
32、各单体住宅楼工程构造做法中注明自行车库地面面层为4-5厚环氧砂浆耐磨地坪,请明确环氧砂浆耐磨地坪的具体厚度?
答:5厚。
33、各单体住宅楼工程构造做法中注明的地下室侧墙做法与地下车库建筑设计说明的做法不一致,请明确以何为准?
答:以地下车库建筑设计说明为准。
34、请明确风井、电梯井道墙面是否随砌随抹,砼墙面是否要抹灰?
答:砖墙面20厚1:2水泥砂浆粉平随砌随抹,砼墙面不需要抹灰。
35、请明确地下车库顶棚1是否需要刮腻子?
答:不需要。
36、请明确水电井是否有必要做踢脚线?
答:不需要做。
37、请明确主楼地下部分楼梯间、合用前室、电梯厅天棚装饰做法是否同自行车库?
答:是。防霉涂料燃烧性能A级。第一遍局部腻子、抹平+第二遍满刮腻子、抹平+面漆一遍后第三遍复补腻子、抹平+封底涂料一遍、乳胶漆(A级)四遍。
38、请明确地下车库汽车坡道栏杆埋件做法?
答:15J403-1,M5/E22。
39、汽车坡道出地库顶板处做法结构
与建筑
不一致,请明确以何为准?
答:以结构为准,2:8灰土压实,压实系数0.97+在结构板上做40厚彩色细粒式沥青混凝土。
40、请明确汽车坡道、非机动车坡道出地库顶板处坡道底板是否应增设100mm厚C15混凝土垫层,且底板宽度较汽车坡道侧墙两边各延伸400mm宽,C30混凝土填充的的宽度同坡道底板的宽度?
答:是。
41、请明确汽车坡道及非机动车坡道墙面及天棚装饰做法是否同地下车库?
答:是。
42、报警阀室装饰做法是否同配电间?
答:是。
43、请明地下室外墙附墙框架柱混凝土是否同地下室外墙?
答:是。
44、请明确单体住宅楼做法表中的“楼电梯间”是否指楼梯间和电梯间?
答:是。
45、请明确住宅电信、住宅配电装饰做法是否同配电间?
答:是。
46、请明确箭头所指部位墙面装饰做法
、
?
答:同地下车库墙面。
47、请明确自行车库的踢脚线是否同地下车库踢脚线做法?
答:同地上水泥砂浆暗踢脚。
48、各单体楼地下部分楼梯大样图中靠墙扶手索引做法为“15J403-1第B14页节点A1”,请明确是否有误,做法是否同“楼梯间靠墙扶手”大样图?
答:是,具体做法同楼梯间靠墙扶手大样图
。
49、建筑说明中注明桩头防水做法参照10J301第59页,请明确桩头防水做法中水泥基渗透结晶型涂料防水层的厚度?
答:1.2mm厚水泥基渗透结晶型涂料防水层,桩头防水范围为桩截面外扩250mm,且该区域不需要再做卷材防水。
50、请明确种植顶板防水做法中“PDS防护虹吸收集系统”具体做法?
答:材质:HDPE防护排蓄板、HDPE成品线性排水沟,含HDPE虹吸排水槽、透气观察管、粘霸、透气防尘盖、虹吸管、沉淀观察井、排水槽上粘贴土工布等。
51、请明确自行车坡道
该处回填土是否为素土回填?
答:是。
52、请明确生活泵房、消防泵房墙面砖的规格?
答:6厚300*600mm墙面砖。
53、请明确商业及地库的预制混凝土方桩桩型号是否统一为“AZH-400C-9S”?
答:是。
二、土建个性问题
E-1#2#住宅楼:
1、请明确构架层屋面是否按不保温不上人屋面做法计入?
答:是。
2、屋面水箱基础混凝土强度等级是否为C25?
答:是。
E-3#住宅楼
1、二十一层电表间门未标注,是否为FM乙1018?

答:此处门同三层电表间门,FM乙1018。
2、二十一层平面图中入户防盗门均为FDM1121,门窗表中均为FDM1122,请设计明确?
答:平面图中有误,入户门均为FDM1122.
3、如下图机房层WLLk11a梁标高是否有误,是否为标高71.4m?

答:应为71.400m
如下图中机房层梁标高是否标注有误?

答:应为构架顶标高73.150m
如下图构造柱与与剪力墙重合,是否有误?

答:剪力墙外侧设GZ10,窗侧与剪力墙之间素混凝土浇筑。
E-4#住宅楼
1、 一层平面中DJM-2平面尺寸与门窗表中尺寸不一样,请问以哪个为准?
答: 经复核,DJM-2尺寸为2400X2700.
2、结构图中二层平面布置中3/31节点平面尺寸宽度为600而立面宽度为800,请问是否以节点图为准?
答:以节点为准。
3、请明确如图所示部位建筑图与结构图不一样,请问以哪个为准?![]()

答:以建筑为准。
4、请明确构架层屋面是否按不保温不上人屋面做法计入?
答:是。
E-5#商业
1、请明确此处雨篷梁箍筋?

答:箍筋为c8@100。
2、如下图雨棚柱纵筋是否有误?

答:纵筋为8c16。
3、建筑说明中散水宽度与平面图中散水宽度不一致,以哪个为准?
答:按600宽计
4、平面图中有门FHM甲1222,而门窗表中无,是否同门FM甲1222?
答:同门FM甲1222
5、如下图此门洞口宽度是否有误?
![说明: LH)1J%]{9TVC]_U[I9T6J7R](/uploadfile/a7918d19-a8ae-40dc-9b16-9bb046d95920/20201209192547860066.jpg)
答:有误,应为1200
6、平面图中有门FHM乙1922,而门窗表中无,是否同门FM乙1922?
答:同门FM乙1922
7、通讯间装饰做法是否同配电间?
答:同配电间
8、请设计明确楼梯面层做法如何?
答:600宽,详见更新的工程做法表
9、风井屋面做法是否同雨篷?
答:同雨篷
10、请明确室内降板处回填的泡沫混凝土强度等级如何?
答:强度等级为C25。
11、如下图钢丝网规格如何?

答:同住宅楼
12、如下不锈钢天沟做法标注不一致,请明确?


13、如下图是否为不锈钢菱形网纱窗?

答:是的
F-2#住宅楼:
1、屋面水箱基础混凝土强度等级是否为C25?
答:是。
2、请明确二层门廊东边雨棚位置平面图为砖墙而立面图有格栅,请问以哪个为准?
答:以立面图为准。
F-1#3#4#住宅楼
1、S-F1-13中,10*K轴的YBZ10是否应为YBZ10a?
答:应为YBZ10a。
2、S-F1-28中,4节点为风井,此风井墙做法不详?
答:未明确的风井墙体均为砌体墙。
3、S-F1-16中,2.9m标高屋面做法不详?2.4m标高屋面做法不详?
答:2.9米处标处在门厅内部屋面仅为混凝土屋面,压实抹光;
2.4米处为雨棚,做法见此图:

4、建施门窗表中,FM乙0910是否多余?
答:此门应为检修门JXM ,为成品乙级防火保温门。
5、A-F3-24中,楼梯间北入口有雨棚,做法不详?
答:按屋面机房雨棚做法计入。
F-5#住宅楼
1、请补充此处女儿墙结构节点及标高
答:此处为非女儿墙做法,变形缝做法参图集14J936,外墙3/AQ1-33页,屋面1A1B/AW1-38页。
2、请明确是否设置变形缝,如设置,请明确屋面、墙身等变形缝做法?
答:变形缝做法参图集14J936,外墙3/AQ1-33页,屋面1A1B/AW1-38页。
3、屋面防护栏杆节点与平面高度不一致,以哪个位置准?

答:以屋面防护栏杆大样为准。
F-6#商业
1、建施一层平面图,1轴墙体平面图厚度为300,大样图为400,是否以大样图为准?


答:一层为300,二三层为400,
2、建筑立面图女儿墙标高14.4,大样图14.9,是否以建施立面图为准?


答:女儿墙是斜向的,以建筑图为准
3、如图所示,外墙饰面做法不明,请明确?

答:详更新后的工程做法表

4、建筑说明中卫生间顶棚需要做聚氨酯防水,做法表中卫生间吊顶无防水,请设计明确?
答:顶棚设聚氨酯防潮层,卫生间吊顶计入。
F-7#商业
1、如下图填充墙与不同材料交接设置钢丝网或玻璃纤维网格布,请设计明确采用何种?

答:按玻璃纤维网格布计。
E地块地库
1、请明确此处洞口宽是否800mm?

答:800宽。
2、请明确地库砖砌踏步砖材质及砂浆配合比?
答:砖砌踏步,MU10煤矸石实心砖,M7.5混合砂浆砌筑,20厚1:2水泥砂浆抹面。
3、风机房、配电房是否需要隔声降噪,若需要请明确隔声降噪具体做法?
答:E地块不做隔声处理。
4、请明确此处梁顶标高及挡墙墙顶标高?

答:梁标高就低板,墙顶标高按出室外覆土标高+0.3m。
5、请明确此楼梯挡墙墙顶高度?

答:墙顶标高为室外覆土标高+0.3m。
6、请明确汽车坡道二出地库顶板处基层做法是否按结构图?

答:1、素土夯实,压实系数0.97;450厚2:8灰土压实,压实系数0.97;100厚C15混凝土垫层宽出面层100;钢筋混凝土底板 ;40厚彩色细粒式沥青混凝土。
7、E2#基础顶面~-5.450剪力墙平法施工图中,27轴交K轴YBZ4b柱大样与平面尺寸不符,请明确以何为准?
答:按平面
。
8、E4#基础顶面~-5.450剪力墙平法施工图中,2轴交E轴YBZ5c柱大样与平面尺寸不符,请明确以何为准?
答:以平面图为准,主筋改为12C20。
9、E4#基础顶面~-5.450剪力墙平法施工图中,11轴交G轴YBZ13柱大样与平面尺寸不符,请明确以何为准?
答:以平面尺寸为准,具体配筋同-5.450~-0.050剪力墙平法施工图中YBZ13。
10、E4#排水沟无结构大样配筋图,请提供。

答:同排水沟做法。
11、E5#基础底板配筋标注是否有误?请明确。

答:基础底板配筋:Y向板面:C25@100,Y向板底:C16@100
X向板面:C22@100,X向板底:C16@100
12、请明确E5#此处集水井深度是否参照建筑图深度?

答:深度参照建筑。
F地块地下:
1、请明确S-6#楼“一层梁梁平法施工图”中3-4轴/A-B轴
梁截面尺寸及配筋?
答:
2、请明确4#楼-1层“一层梁平法施工图”中1-3轴/K轴、27-29轴/K轴处梁的截面尺寸及配筋?
答:
3、请明确3#、4#楼“地下二层平面图”中L-M轴/2轴处洞口尺寸
?
答:H留洞:800x600(H),洞口贴梁底设置
4、请明确1#、4#楼地下一层平面图中17-19轴/M-Q轴处洞口的宽度是否应以平面图为准?
答:
5、请明确2#、3#楼“地下一层平面图”中L-M轴/2轴处洞口尺寸
?
答:H留洞:800x600(H),洞口贴梁底设置
6、请明确地下车库箭头所指部位集水坑
是否参照大样
?
答:是。
7、请明确建筑平面图中的300高泛水
是否指300mm高混凝土门槛,若是,请明确混凝土强度等级?
答:是,C25。
8、请明确台阶的具体做法
?
答:MU10煤矸石实心砖,DMM7.5水泥砂浆砌筑,20厚1:2水泥砂浆抹面。
9、请明确消防水池与消防泵房间洞口处18目防虫网的材质?
答:不锈钢防虫网。
10、请明确楼梯间装饰做法?(地库与单体楼不一致)
答:9-10轴/M-N轴室外楼梯及地库AG-AJ轴/10-12轴楼梯参地库,主楼内的同主楼装饰做法表做法。
11、请明确各单体住宅楼工程构造做法中穿孔石膏板吸声内墙面的防霉涂料饰面的遍数及腻子的种类及遍数?
答:耐水腻子两遍,防霉涂料两遍。
12、请明确室外楼梯拉杆的高度及栏杆的相关材料规格?
答:栏杆高度从踏步前缘线量起900mm,水平段1050mm;栏杆索引图集应为“15J403-1图集第B14页B1型”,φ28*1.5不锈钢管立杆,φ60*3不锈钢管扶手。
13、请明确地下二层汽车库平面图中2#楼该处台阶处栏杆做法
?
答:同9-11轴/M-N轴室外楼梯栏杆15J403-1图集第B14页B1型做法,高度1100mm。
14、请明确箭头所指部位墙面装饰做法
、
?
答:同地下车库墙面。
15、地下车库室内装修做法表中“风机房”的墙面、天棚与各单体住宅楼工程构造做法中“排烟机房、补风机房”的墙面、天棚做法不一致,请明确以何为准?
答:仅F1#、F4#楼风机房的墙面及天棚装饰做法同主楼装饰做法表,其余单体的风机房墙面及天棚装饰做法同地下车库做法表中做法不需要做隔音处理。
16、请明确自行车库的踢脚线是否同地下车库踢脚线做法?
答:同地上水泥砂浆暗踢脚。
17、请明确4#楼地下一层平面图中1轴/L-M轴处
风井基础做法?
答:参照4#楼结构二层平面布置图中
节点做法。
18、各单体楼地下部分楼梯大样图中靠墙扶手索引做法为“15J403-1第B14页节点A1”,请明确是否有误,做法是否同“楼梯间靠墙扶手”大样图?
答:是,具体做法同楼梯间靠墙扶手大样图。
19、请明确地库AG-AJ轴/10-12轴新增楼梯装饰面层做法是否同9-11轴/M-N轴楼梯?
答:是。
20、筏板顶标高布置图(二)中22-24轴/M-P轴处“坡道采用C30混凝土回填”回填的平面尺寸与建筑平面图中的尺寸不一致,请明确以何为准?
答:以建筑为准。
基坑支护:
1、请明确排水沟素砼垫层砼强度等级是否同集水井为C20?
答:是。
2、请明确CT混凝土强度等级是否同冠梁为C25,并请明确CT是否要做垫层?
答:CT混凝土强度等级同冠梁为C25,CT不需要做垫层。
3、请明确排水沟、集水井大样中MU7.5煤矸石砖是否应为煤矸石实心砖?
答:是。
4、请明确支护桩间拱墙详图中M5混合砂浆砌筑、抹面中抹灰厚度?
答:10mm厚。
5、请明确箭头所指部位是混凝土冠梁还是钢斜撑
?
答:图中箭头所指的是混凝土角撑,大样同冠梁。
6、请明确箭头所指大样
以何为准?
答:以剖面图中
注明的为准,均为桩间砖砌拱墙。
门卫
1、请明确此岗亭是否为门卫,并请明确E、F地块是否各一个门卫?

答:岗亭不是门卫,E、F地块各一个门卫。
2、工程做法表中注明“厕所内墙面面砖面层可取消,由装饰二次设计并施工”,请明确该面砖面层是否在本次招标范围内?
答:是。
3、装饰做法表中注明厕所吊顶由装饰二次设计并施工,请明确厕所铝合金扣板吊顶是否在本次招标范围内?
答:是。
4、请明确卫生间墙面防水是否参照设计说明为1.2mm聚氨酯防水涂料高度至板底,顶棚设置1.0mm聚氨酯防水涂料防潮层?
答:是。
5、请明确门卫、快递接收室地面做法中20厚水泥砂浆找平兼的砂浆配合比?
答:20厚1:3水泥砂浆找平层。
6、请明确踢脚线的做法?
答:5厚1:2建筑胶水泥砂浆粘结层+8厚面砖,白水泥擦缝。
7、请明确厕所洗手台处墙面是否要设置镜子?
答:否
8、请明确门卫、快递接收室的墙面、天棚刷乳胶漆几遍?
答:3遍。
9、请明确构架板底做法是否同门卫、快递接收室天棚装饰做法?
答:满刮柔性耐水腻子两遍;白色外墙涂料面层两遍。
10、请明确E、F地块推拉门玻璃厚度?
答:10厚钢化玻璃。
11、请明确门卫地砖及卫生间墙砖规格尺寸?
答:门卫地砖:8厚600*600防滑地砖;卫生间墙砖:8厚300*600mm。
12、请明确门卫踢脚线高度?
答:高度100mm。
三、E、F单体楼安装共性
(一)电气
1、航空障碍灯配电箱出线未设计,请明确航空障碍灯系统是否计入?
答:航空障碍灯、配电箱、配电箱进线按图计入,出线按SC20计算,其它不计。
2、输入输出模块、输入模块、短路隔离器数量系统图和平面图不一致,请明确按哪个计算?
答:按系统图计。
3、门禁系统主入口进线管系统图是PC25,平面图是JDG25,请问以哪个为准?
答:以平面图为准。
4、五方对讲穿线管平面图与系统图管材不一致,请明确以哪个为准?
答:以平面图为准。
5、门禁对讲系统户内分机进线管管径系统图和管线对照表不一致,请明确以哪个为准?
答:以管线对照表为准。
6、如下图所示:到电梯井道插座预埋线不一样,请问以哪个为准?

答:WDZN-BYJ-3X2.5 SC20 WS/CC为准。
7、如图示E1#楼模型中四层平面图未画,请补充?

答:以布局里的图纸为准。
8、E1~4#楼如图示,负二层系统图与平面图消防接线箱不一致,请明确?
答:平面图上明确走线位置,系统图上把系统表示清楚。
9、E1#楼如图示,请明确是40*4镀锌扁钢还是12圆钢,请明确?


答:40*4镀锌扁钢。
10、E1#楼如图示均压环是12层以上每层敷设还是每三层敷设,请明确?


答:12层及 12层以上每层敷设。
11、如图,E1负一层电气图纸中红色箭头所指桥架规格标注不一致,以哪个为准?

答:在配电间内部是600X200,出了配电间变为400X200。
12、E1~4#楼如图示,负二层系统图与平面图消防接线箱不一致,请明确?

答:平面图上明确走线位置,系统图上把系统表示清楚。
13、E1#楼如图示,请明确是40*4镀锌扁钢还是12圆钢,请明确?


答:40*4镀锌扁钢。
14、E5#楼如图示系统图无BJ线、火灾显示盘PS线规格型号请明确?


答:

15、E、F地块门卫户内配电箱进线是否仅计预埋?
答:是,计至外墙皮 1.5米处。
16、如下图所示:


水封井及雨水口是否在本次招标范围内?
答:不在。
17、E、F地块门卫户内配电箱进线是否仅计预埋?
答:是,由最近应急照明箱引出至DY箱,进线为WDZN-BYJ-3*2.5/SC20。
18、请明确潜污泵控制箱至潜污泵电源线具体规格型号?
答:潜污泵控制箱至隔离开关,由开关至潜污泵电源线均为FS-WDZN-YJY-4*2.5/SC25,液位信号线为FS-WDZN-RYJS-2*1.5/SC20,由隔离开关至电源箱的启停按钮线为:WDZN-BYJ-4*1.5/SC20。
(二)给排水
1、图纸设计要求所有管道需刷底漆,如截图所示,热水管、污水管管材是塑料材质,请明确是否按图纸要求刷漆?
答:污水管刷漆;热水金属管道做防腐处理,金属管道非金属管道在保护层外标注介质类型和流向即可。
2、空调板上地漏和阳台地漏图例是一样的,是否全部按洗衣机地漏计算?
答:全部采用两用地漏。
3、消火栓系统阀门数量平面图和系统图不一致,请明确以哪个为准;
答:以系统图为准。
4、一般排水管(DW)系统中排水管中DW-2/DW-3埋地管和立管的管径不一致,以哪个为准?


答:立管和埋地管都为DN100。
(三)暖通
1、如图,E1楼地下一、二层暖通图纸中,风管规格不明确,请给予明确?

答:均为800*800。
2、E1楼地下二层暖通图纸中压差传感装置参数不明确,请给予明确;
答:前室压差25Pa〜30Pa;楼梯间压差40Pa〜50Pa。
3、如图,E1楼地下一、二层暖通图纸中,红色箭头所指风口类型、具体规格型号不明确,请给予明确?

答:同本层防烟分区一的排风口,规格型号为单层百叶风口1250*800。
四、公建安装共性
E5、F6、F7
1、防火门监控系统每处防火门是否需要配备一个电动闭门器和两个门磁开关?
答:需要。
E5、F7:
1、请明确下列电动阀规格?


答:均为800*320。
五、E、F地库安装共性
(一)电气系统:
1、自管配电房至第一级动力配电箱(住宅楼、地库、配套公建)电缆是否计入?若计入,配电房内涉及的电缆工程量是否均按配电房半周长计入?
答:计入,配电房内涉及的电缆工程量按半周长计入。
2、局管配电房至第一级动力总箱是否仅计入箱前预埋配管?若仅计入箱前预埋配管,是否按1.5m计入?
答:局管配电房至第一级动力总箱电缆及配管不计入。
3、ALH1至ALH10动力箱出线至车位预留动力和预留插座箱的回路部分在平面图未见,是否仅示意,不在本次范围内?若在本次范围内,预留配管和电缆的工程量应如何计取?
答:插座箱在ALH动力箱内预留回路。
4、F地库中此部分桥架有两种规格,请明确以哪种规格计入?

答:此处为末端桥架逐级变小。
5、F地库该部分强电主干桥架规格是否应为600*200,末端桥架是否应为400*200,请明确?

答:是。
7、电视机房、弱电机房内部未见设计内容,若在本次范围内,请提供图纸?
答:机房内部后期专项设计,不在本次范围内。
8、充电桩(含充电桩)配电系统是否计入?
答:E地库计入,F地库暂不计入。
9、如图示图纸中风机控制箱、空调控制箱与强电系统的配电箱是否一样,若一样,请明确空调控制箱的位置?
答:一样,本系统不设配电箱;这个控制箱由电力设计院设置,详见后期电力设计图纸。
10、E#地库如图示图例表中未明确单管LED灯照明灯具的安装高度,请明确?
![]()
答:风管下吊装。
11、E#地库如图示图例表中未明确集电集控型可变标志灯的安装高度,请明确?

答:门框上0.2m
12、E#地库如图示平面图中未明确动力配电箱APH的平面位置,请明确?
答:该配电箱名字应该修改为2AP3
13、E#地库如图示请提供动力配电箱2AP3的系统图?

答:见第四条回复。
14、E#地库如图示请明确充电桩的规格型号及安装高度?

答:型号甲方定。
15、E#地库如图示请明确集电集控型疏散标志灯的吊装高度?

答:梁下吊装。
16、E#地库如图示照明配电箱1AL1系统图回路与平面图不一致,请补充S4、S5、N15回路?


答:在系统图中增加。
17、E#地库如图示地下二层消防水泵房照明回路线型为电缆是否合理?

答:修改为BYJ。
18、E#地库如图示请明确潜污泵控制箱XQWP1前端进线配管规格型号?


答:JDG25。
19、E#地库如图示系统图APXSF2配电箱前端进线由EPH11、12动力配电箱供电,APBF1配电箱前端进线由APH动力配电箱供电,与平面示意图桥架走向不一致,请明确APXSF2与APBF1配电箱位置是否设置反了?



答:是的,这两个位置反了。
20、E#地库如图示请明确入户套管是否为刚性防水套管?

答:穿外墙加装柔型套管。
21、E#地库如图示此处桥架规格不一致,请明确?

答:按照消防配电桥架:XQJ-C-300x100外刷防火涂料,中间加金属隔板,梁底0.1m敷设;
22、E#地库如图示应急照明通信系统平面图与系统图所用配管规格不一致,请明确?


答:按照平面图SC20计入。
23、配电箱1ELH1、1ELH2有平面布置但无系统图,是否计入?
答:不计入。
24、如下图所示:平面图上8EAL1配电箱有两个,请问以哪个为准?

答:8EAL1安装在配电间,以右侧图纸为准。
25、F地库潜污泵控制箱进线电缆规格型号是否参照E地库计入?
答:是。
26、
该灯具按双管LED支架灯(2*16W防潮型)计入?
答:是。
(二)给排水系统:
1、给水系统是否仅计预埋套管,生活泵房所有供水设备(含设备控制箱)均不计入本次招标范围内?
答:给水系统仅计预埋套管。生活泵房所有供水设备(含设备控制箱)不计入。
2、消防水池的消防补水管(与室外市政给水官网连接处)计至地库顶板正负零处?
答:出地库2米。
3、潜水泵排水系统是否计至图示位置?不含穿地库外墙的柔性防水套管?
答:出地库2米均计入,含套管。
4、地沟排水系统中该图例表示地漏?请明确材质及规格型号?

答:b1层为地漏,b2层为地沟,此图例表示网框地漏,dn100。
5、地沟排水系统穿地库二层顶板是否需设置钢套管?
答:所有穿墙、剪力墙、楼板、水池、屋面等等,均需钢制套管,有防水要求处需防水套管。
6、图纸说明未明确给排水及消防水管材、消火栓箱内灭火器型号规格,请明确?
答:管材见说明(二),施工说明部分,第2条。消火栓箱内的灭火器型号电动车库MF/ABC5,其余MF/ABC4,见说明(一)。

7、如图示喷淋管道未标注管径?

答:干管管径已经在图中有标注,支管管径见说明(一)。

8、图纸说明未明确消防泵房水泵前管道材质,请明确?
答:消防水泵吸水管管材参考10层以上建筑消防管选用。室外消防栓参考10层以上建筑消防管选用。
9、如图示图例表未明确此阀门名称,请明确?

答:液压水位控制阀 。
(三)暖通系统:
1、请明确其名称和规格(位于F地库配电房)?

答:单层百叶风口600*800。
2、配电房内的分体式空调是否在本次范围内?
答:是在本次范围内。
3、请明确该部分风管、阀门的规格(F地库)?

答:XSF-2-A接风管1000*1000,XSF-2-B接风管1000*1000,风阀同规格。
4、F地库中该图例是否表示为消声器?若是消声器,图纸中消声器的长度分别为多少?

答:为消声器L=1M。
5、如图示负一层暖通图纸未标注此处风管尺寸,请明确?

答:与风口大小相同,为1200*1000百叶风口。
6、如图示负一层暖通图纸未标注此处风管尺寸,请明确?

答:与风口大小相同,为1600*1800百叶风口。
7、如图示负一层暖通图纸未明确风阀尺寸,请明确?

答:与风机排风出口相同或与500*500风管相同。
8、如图示负一层暖通图纸未标注此处风口尺寸,请明确?

答:单层百叶风口1250*800,余同。
9、如图示负一层暖通图纸未标注此处风管尺寸,请明确?

答:风管为1000*1000。
10、如图示负一层暖通图纸未标注此处风管尺寸,请明确?

答:风管为1000*1000。
11、如图示负一层暖通图纸未标注连接箱尺寸,请明确?

答:连接箱尺寸为1400*1400*1200(H)。
12、如图示负二层暖通图纸未标注此处风管尺寸,请明确?

答:风管为700*300。
13、如图示负二层暖通图纸未标注此处风管尺寸,请明确?

答:风管为900*900。
14、如图示负二层暖通图纸未标注此处风管尺寸,请明确?

答:风管900*900。
15、请提供暖通图例表?
答:

图例如图所示,并已在图中补充表示。
(四)消防电系统
1、如图示信号线与电源线是否可以共管,若可以,请明确配管规格?


答:不共管,FS,FP单根线均配管SC20。
2、如图示图纸未明确余压控制器的规格型号及安装高度,请明确?

答:余压控制器控制箱内导轨安装(35mm),规格约142x110x62mm,控制要求见暖通。
3、如图示图纸未明确压差传感装置的规格型号及安装高度,请明确?

答:压差传感装置具体位置见暖通,规格约为86盒,安装高度约为距地2.5m,本系统为配套暖通专业设置,可同时考虑。
4、如图示图纸未明确气体灭火系统回路线缆型号规格及配管,请明确?

答:系统线型可采用WDZBN-BYJ1.5,芯数见图,配管按SC20考虑。
5、如图示图纸中未画出警铃的位置,请明确?

答:设计全部采用声光报警器未设警铃。
(五)其它部分:
1、抗震支吊架是否有深化设计后的图纸?若无,是否按项计入?
答:抗震支吊架按项计入。
注:此补疑视同招标文件的组成部分,与招标文件具有同等法律效力。
合肥市庐阳区重点工程建设管理中心
地址:合肥市砀山路2199号
联系人:宛晓辉
联系方式:0551-65699027
安徽诚信项目管理有限公司
地址:合肥市滨湖新区南京路2588号(徽州大道与南京路交口)六楼
联系人:张工
联系方式:0551-66223803
2020年12月9日
三、附件
答疑发布日期:2020年12月09日
附件:2020BFLGZ03318补疑1.pdf 附件:2020BFLGZ03318五里片区A组团二期复建点(E、F地块)主体工程施工.zip