您现在的位置: 首页 >> 答疑变更 >> 安徽公共资源交易集团项目管理有限公司 >> 工程
一、原公告主要信息
原项目名称: 经开区综合保税区标准厂房及保税仓库二期工程
原项目编号: 2020BFJGZ02835
原公告日期: 2020年10月31日
二、公告内容(更正事项、内容及日期等)
经开区综合保税区标准厂房及保税仓库二期工程施工补疑2(项目编号:2020BFJGZ02835)
各投标人:
重要提示
1、人工费执行《关于贯彻执行2018版安徽省建设工程计价依据的通知》(合造价【2018】13号文)。其中定额人工费参与取费、取税,其相对于定额人工费增加的部分 / 元只计取税金。
2、本工程取费按“ 建筑 工程取费标准”中“ 工业建筑 ”的费率计取;其中房屋建筑工程中挖或填土石方量大于5000m3的大型土石方工程,其企业管理费率8%、利润率8%,措施项目费率和不可竞争费率按房屋建筑工程相应费率乘0.6系数。
按业主要求,现对本项目招标工程量清单、最高投标限价编制作出如下补充:
第一部分:清单、控制价重新发放
1、本项目清单、控制价重新发放,以2020年11月17日发放的为准。本项目补疑1作废。
第二部分:开标时间变更
1、因“清单控制价延期发放 ”,本项目开标时间延期至2020年 11月27日10时30分,投标文件递交截止时间为2020年11月27日10时30分。开标地点为合肥市滨湖新区南京路2588号要素交易市场A区(徽州大道与南京路交口)3楼11号开标室。
第三部分:招标答疑
1、问:招标文件第49页“详细评审标准/2.2.3资质要求”中,投标人资质要求为:
| 1、同时具有建筑工程施工总承包贰级资质和钢结构专业承包贰级资质得 1 分; |
现我公司具有建筑工程施工总承包贰级资质和钢结构专业承包壹级资质。
是否可以修改或添加为:“同时具有建筑工程施工总承包贰级资质和钢结构专业承包壹级资质得1.5分”。
答:“同时具有建筑工程施工总承包贰级资质和钢结构专业承包贰级资质得 1 分”调整为“同时具有建筑工程施工总承包贰级资质和钢结构专业承包贰级资质及以上得 1 分”。
2、问:依据业主方提供的2019.1.30特种砂浆战略合作框架协议书,是否本次报价按此综合单价执行,还是依据各投标人自身的势力自行采购,执行投标人市场价格进行投标报价,请建设单位给予明确。
答:详见招标答疑。
3、问:关于附录3与附录5资格审查条件业绩证明材料中有关查询截图,因我司部分工程业绩为业主单位自行招标,中标信息无法网上查询,请问在全国建筑市场监管公共服务平台(四库一平台)上或安徽省住房和城乡建设厅网站能查询到该有关工程施工许可详情的查询截图,是否可行?
答:可以。
第四部分:招标需求
一、招标范围:
本项目分为1个标段,其中本标段工程包括1#仓库、2#仓库、标准厂房二期、室外附属工程等;总建筑面积约4万平方米。具体内容详见招标文件、工程量清单、图纸及补充答疑等招标资料。
除特殊说明外,图纸设计范围内的所有内容,均按图计入。
(一)建筑工程
1、土建工程,包含土石方工程、桩基工程、地基基础工程、主体钢筋砼结构工程、二次结构工程、钢结构、砌体工程、屋面、防水、室内外台阶、散水、坡道、电缆沟、钢梯等,含结构预留孔洞(包括预留本招标范围内的及指定分包等属于投标人管理范围内的所有分包工程的孔洞以及管道预埋),室内与室外所有管道对接以及附属工程需开洞、补洞、修复。
2、装饰工程,包含外墙装饰砂浆、内外门窗工程、内墙面、地面及顶棚装饰工程、幕墙、百叶、栏杆等图纸设计内容。
(二)安装工程
1、给排水工程:给水工程计至室外与市政管网对接,并接至一期生活泵房内加压管网。排水工程均按图计入。卫生洁具均按图计入。
2、消防工程:消火栓、喷淋系统均按图计入,并接至一期消防泵房内加压管网。气体灭火系统均按图计入。自动报警、电气火灾监控、防火门监控、消防设备电源监控系统均按图计入并接至一期消防控制室内。
3、电气工程:除外电外均按图计入本次招标范围。
4、暖通工程:均按图计入本次招标范围。
5、电梯工程:均按图计入。
6、弱电工程:本次仅计预留预埋、桥架安装、室外管网及井室安装。
(三)室外总体及附属工程
1. 室外道排工程:室外雨水管道铺设、室外污水管道铺设、检查井设置及室外道路等图纸设计内容。
2. 绿化工程:室外绿化苗木种植与养护等图纸设计内容。
3. 景观工程:室外景观图纸设计内容。
(四)补充说明:
图纸上已设计,但不计入本次招标范围的有:
1、所有由业主单独委托的第三方检测工程。
二、暂定项目:
(一)以下项目按照业主要求,以暂定工程量计入分部分项工程量清单,投标人综合考虑报价,标后按实际工程量结算。
(二)以下项目按照业主要求,暂列金额为 / 万元。
(三)执行暂估价的材料、设备、专业工程及其金额如下:
1、材料的名称、规格型号、金额;无
2、设备的名称、规格型号、金额;无
3、专业工程名称、工程内容、金额:无
上述明细投标人应按招标人所列的金额计入投标总价。
4、发包人供应材料、工程设备的采购、保管费,控制价中不再另行计取费用,投标人在总报价中综合考虑此费用。
三、按项列入清单的内容,标后不予调整:
以下项目按照业主要求,按项计入,投标人自行踏勘现场,综合考虑报价,中标后不予调整。
1、细石混凝土封堵:工作内容包括:各种墙体留洞、管道及所有穿楼板管道、预留洞、门洞口等封堵、防水处理,配合各分包单位(含水、电、气等)二次开孔,及对原状的破坏及恢复,垃圾清运等全部工作;其余砌筑墙留洞待管道设备安装后,用C20细石混凝土填实;变形缝处双墙留洞的封堵,应在双墙分别增设套管,套管与穿墙管之间嵌堵柔性密封材料,防火墙上的留洞封堵应采用防火封堵材料将墙与管道之间的空隙紧密填实,达到相应的耐火极限要求;按1项分别列入各单体土建单位工程分部分项清单中,投标人自行踏勘现场,综合考虑报价,中标后不予调整。
2、沉降观测点预埋:工作内容包括:预埋件规格、埋设位置、数量满足图纸设计及观测单位要求,按1项分别列入各单体(土建)单位工程分部分项清单中,投标人自行踏勘现场,综合考虑报价,中标后不予调整。
3、地表附着物清除、现场障碍物清理:工作内容包括:现场杂树、菜地等地上绿色附着物的清除费用、现场建筑垃圾、存在障碍物(砼道路、砼设备基础、部分未拆建筑(含地基)、地面硬化、原有围墙、老旧基础、道路等)的拆除及外运费用。拆除垃圾运距、土源、弃土场、渣土费、保洁费用等投标人自行考虑且严格执行合肥市区渣土运输管理规定等。清单按1项50000元计入“保税仓库二期土石方工程(土建)”分部分项工程量清单中。投标人自行踏勘现场,综合考虑报价,中标后不予调整。
4、现场存在地下管线、杆线迁移、社会环境协调等费用:工作内容包括:现场所有地下管线、杆线迁移(含强电、弱电)、社会环境协调等费用。清单按1项30000元计入“保税仓库二期土石方工程(土建)”分部分项工程量清单中。投标人自行踏勘现场,综合考虑报价,中标后不予调整。
5、开设道口:工作内容包括:开道口面积按照300m2计入,做法为20cm厚级配碎石垫层+20cm厚C25混凝土面层,小区所有出入口,由中标单位需按照规划总平图、设计图纸等相关要求,办理市政、绿化道口开设审批手续及施工,并负责内部道路与市政道路的顺接费用,此费用包含绿化迁移、市政破复、杂土清运和道路硬化等,需满足业主要求,标准不低于小区主要道路。清单按1项计入“保税仓库二期土石方工程(土建)”分部分项工程量清单中。投标人自行踏勘现场,综合考虑报价,中标后不予调整。
6、施工用水接引及报装:工作内容包括:临时用水接引至项目现场,满足总包单位及后期附属单位进场后的总用水量;费用均含管网建设费、增容费、破路、恢复、水表、管道、报装及内部接引等所有费用,费用还需包括开户、施工、一直到最终通水整个期间的一切费用;必须保证证件齐全、手续合法。清单按1项100000元计入“保税仓库二期土石方工程(土建)”分部分项工程量清单中。投标人自行踏勘现场,综合考虑报价,中标后不予调整。
7、施工用电接引及报装:工作内容包括:临时用电变压器设置,投标人报价时需考虑管线铺设、项目完成后的拆除、涉及管道沿线铺设的场地复原及青苗补偿、报装费等相关费用,相关的设施需进行安全防护;本项目结束后其相关设备、配套杆、变压器、电缆等设备归属招标人。清单按1项200000元计入“保税仓库二期土石方工程(土建)”分部分项工程量清单中。投标人自行踏勘现场,综合考虑报价,中标后不予调整。
8、新旧管连接:包含雨污水、给水、消防水新旧管道连接时涉及到新建的检查井、化粪池、雨水口、管道铺设,破除恢复,土方开挖、回填、弃置等施工中遇见或者可能遇见的一切费用,最高投标限价按一项分别计入保税仓库二期、标准厂房景观排水工程单位工程分部分项工程量清单中。投标人自行踏勘现场,综合考虑报价,中标后不予调整。
9、抗震支吊架(包含电气、给排水、消防工程等抗震支吊架):工作内容包括本项目风、水、电各专业所涉及到的所有抗震支架。满足现行规范和技术的要求。需深化设计报建设单位、设计院确认,含设计及深化、施工等一切费用,按项分别列入各单体安装单位工程分部分项清单中(控制价费用按30元/m2计入),投标人自行踏勘现场,综合考虑报价,中标后不予调整。
10、夹层板与外墙板封堵等:工作内容包括夹层板与外墙板封堵等按1项列入仓库工程(土建)分部分项工程量清单中,投标人综合考虑报价,中标后不予调整。
11、室外破复费:包含市政道路、原一期道路破复费,本工程给排水工程、消防水工程、消防报警工程需考虑与市政管网、一期泵房及一期消控室连接,破除后(含沟槽)按原路结构层做法恢复,投标单位自行考察、编制施工方案、办理相关手续等所有费用,如在破除道路时涉及与其他管线及工井协调、文明施工等费用一并考虑,最高投标限价按一项分别计入保税仓库、标准厂房景观排水工程分部分项工程量清单中,投标人自行考虑报价,一次性包死,结算时不再调整,并确保移交验收。
12、移除现状树池、苗木、拆除现状绿化带费用:移除现状树池、苗木、拆除现状绿化带,由此产生的垃圾清运,现场处理等费用一并考虑,最高投标限价按一项30000元计入经开区综合保税区保税仓库景观工程分部分项工程量清单中,投标人自行勘探现场、综合考虑报价,一次性包死,结算时不再调整,并确保移交验收。
四、补充图纸及修改图纸的说明:
本工程在第一次发放图纸后,有补充图纸,具体详见图纸目录。
五、总承包服务费:
详见招标文件。
六、温馨提示:投标人投标报价还须仔细阅读本项目招标文件,慎重报价。
本项目现场土方包括但不限于土方、淤泥、青苗、渣土、植被、建筑垃圾等,投标人须自行踏勘现场,综合考虑。现场多余土方须外运出场,运距自定。回填土质须满足施工图纸设计及相关规范要求,若需外借土方,自行解决取土点。投标人应考虑各方面因素后报价,综合报价应考虑土方施工中的渣土费、渣土运输清理费、外购土方费用、保洁费、办证、现场苗木、建筑垃圾等杂物的清理及其他可能发生的一切费用,中标后不予调整。
投标人须自行踏勘现场,综合考虑。招标人提供的土方测量高程点图、土方计算成果仅作为参考,投标人须自行勘察现场,核对土方高程后综合考虑,中标后不再因此增加任何费用。
本工程的施工用水电接引点按现场甲方代表指定位置,投标单位中标后负责自行将施工用水用电引入施工现场及各施工单体。水、电接引穿过园区道路时必须埋设暗管。施工用水电接引(含电线电缆、临时配电房、配电箱、水管等)施工及使用期间所有维护费用请投标人在投标报价时综合考虑,中标后不再因此增加任何费用。
临设搭建位置及面积必须经招标人认可后方可实施,若中标人自行选择临时设施的位置影响项目的正常进行,则中标人应立即自行拆除原有临时设施,并重新搭建,由此造成所有相关费用的增加均由中标人自行承担。中标人须提供给招标人不少于100平方的临时办公用房,此费用不单独列项,请投标人综合考虑报价,中标后不作调整。此临时设施在竣工移交前由本项目中标人负责拆除、并外运出场,否则结算时将控制价不可竞争费中的“临时设施费”全额扣除。投标人综合考虑可能因场地限制或其他原因,不能在施工现场搭设临设的风险,涉及或产生的费用请考虑到投标报价中,中标后不再增加任何费用。
安全文明施工中扬尘防治、封闭围挡、大门、值班室、门楼、图牌、施工场地硬化、宣传等必须符合合肥市及项目当地主管部门相关相关要求,不单独列项,费用由投标人在措施费中考虑。
投标人提供的消防产品必须符合当地消防管理部门要求,确保施工内容通过消防验收。消防验收所需费用等不单独列项,由投标人在报价中自行考虑。
投标人应自行了解项目所在地的相关税费征缴规定,投标报价中应综合考虑,中标后不予调整。
防雷技术服务费等所发生的费用不单独列项,由中标人支付,投标人在报价中自行考虑。
图纸设计与设计变更、审图意见及答复有冲突的以设计变更、审图意见及答复为准。
本次招标工程内各类施工(安全)方案评审、专家技术指导、竣工档案扫描及归档费用、验收等所发生的费用由中标人支付,不单独列项, 投标人应在报价中综合考虑,中标后不予调整。
投标人应综合考虑各类施工机械、设备的进场路线、作业面的加固、防护处理,不单独列项,相关费用综合在投标报价中。
现场如存在与其他工程交叉施工的情况,中标人在施工过程中注意成品保护,如有损坏,必须无条件原样修复,并承担因此造成的其他损失费用,如拒不修复的,招标人自行修复的费用由中标人承担,并在项目结算时直接扣除。
电力排管、架线遇障碍物时(如园区围墙、已有高压线等),须考虑跨越、破除恢复及保护等措施,保证安全施工及施工质量要求。请投标人自行踏勘现场,涉及费用不再单独列项,请投标人在投标报价时综合考虑,审慎报价,中标后不再因此增加任何费用。
所有施工环节中,涉及的降水、排水等工作由中标人负责,相关费用在投标报价中综合考虑。
施工现场所有道路均要求硬化。临时施工便道,铺设长度及布置情况请投标人结合现场实际情况和实际施工需要自行考虑,请投标人自行踏勘现场,涉及费用在投标报价中综合考虑,中标后不再因此增加任何费用,此道路在竣工移交前由本项目中标人负责破除、并外运出场,否则结算时将控制价不可竞争费中的“临时设施费”全额扣除。
施工中实施的建设工程施工扬尘治理措施费用以建设单位认可的签证为确认依据,否则在工程结算时按照合造价〔2018〕13号文等相关文件规定扣除相应费用。
本工程施工区域四周围挡应符合合肥市及项目所在地相关安全文明施工及扬尘防治要求。
中标人须执行《合肥市住宅工程质量通病防治技术规程》的规定,相关费用综合考虑在报价中。
装饰砂浆、乳胶漆颜色最终以招标人确认现场样板色为准,调色费包含在投标报价内。
施工单位中标后需无条件配合业主办理施工许可证直至竣工备案结束的一切相关手续所产生的费用,费用包含在投标总价中,投标人综合考虑,自行报价,标后不予调整。
投标单位自行踏勘现场,应做好周边建筑物、构筑物(含管网)等的安全防护工作,安全防护费用包含在投标总价中,投标人综合考虑,自行报价,标后不予调整。
所有与设备调试相关产生的人工、材料、机械等费用,费用包含在投标总价中,投标人综合考虑,自行报价,标后不予调整。
本工程完工后,承包人应做到“工完料尽场地清”,工程所产生建筑垃圾应全部清运出现场(不得堆放在场区周边),恢复施工场区及周边区域原状,由此发生的费用由投标单位综合考虑在投标报价中,中标后不再因此增加任何费用。
本次投标价包含中标人按照有关标准规定,对建筑以及材料、构件和建筑安装物进行一般鉴定、检查、检测所发生的费用,包括中标人自行委托的检测机构、自设试验室进行检测试验所耗用的材料等费用。建设单位委托检测机构进行检测的费用,由建设单位自行支付。但检测不合格的,该检测费用由中标人支付,并且无条件按招标人要求进行整改。上述内容请投标人综合考虑到报价中,中标后不再因此增加任何费用。
本工程需安装智能围挡喷雾降尘助理系统,且需联网到相关监管单位降尘助理平台, 必须符合项目所在地、合肥市建筑施工扬尘污染防治及合肥市文明创建相关要求。投标人自行踏勘现场,不单独列项, 在投标报价中综合考虑,中标后不予调整。
本工程需安装实时视频监控系统,建筑工地主要扬尘产生点应安装扬尘在线监测和视频监控设备,并与建设、环保部门联网,实施施工全过程监控,必须符合项目所在地、合肥市建筑施工扬尘污染防治及合肥市文明创建相关要求。投标人自行踏勘现场,不单独列项, 在投标报价中综合考虑,中标后不予调整。本工程完全按照《合肥市绿化施工导则》、《合肥市行道树施工导则》、《合肥市绿化养护导则》、及相关最新文件执行。投标人应充分考虑相关费用,清单不再单独列项,综合到投标报价中,满足设计及使用要求,中标后施工单位不得以任何理由办理经济签证。
第五部分:设计文件及技术补充说明
一、土建部分
(一)共性问题
1、土方开挖及回填的弃置点、取土点、运距及渣土费如何考虑?现场土方是否全部外运?回填土是否全部按外借回填?
答:土方运距最高投标限价按40km组价考虑。现场开挖的土方不考虑现场堆放,全部外运出场外。外借土源、土源费、运距投标人自行勘察现场、自行考虑。土方外运、内运需满足市容、防尘、交警等要求,取土点、弃土点、取弃土点平整、运输通道、渣土费、市容部门办理证照等一切费用投标人自行考虑报价,中标后不予调整。
2、现场土方是否已经平整到位,请明确是否平场至平整标高。
答:现场土方未平整,按现状高程进行直接开挖。
3、本工程φ6钢筋是否均为φ6.5?
答:是
4、竣工指示牌、楼栋牌、楼层标识牌是否计入本次招标范围?如计入,请提供相关材质及做法?
答:计入竣工牌,800*500,铜制
5、本工程是否执行《合肥市住宅工程质量通病防治实施导则》?
答:执行。
6、本工程是否均采用商品砼以及预拌砂浆?
答:采用。
(二)个性问题
1#2#仓库
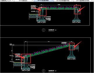
7、仓库2#,结施图20材料表GL1(H500*250*10*14)、GL2(H600*250*17*21)与钢架图GJ-1/5对应位置钢梁(H500*250*10*16),规格不同,请问以哪个为准?
答复:以钢架图为准,钢架图没有表达的以结施20材料表为准。1#仓库同此处理。
8、仓库2#,结施图20平面布置图中13轴GL2(H600*250*17*21)对应结施图07平面布置图13轴ZC-5a(H450*250*6*10)矛盾,请问以哪个为准?
答复:以钢架图为准,钢架图没有表达的以结施20材料表为准。1#仓库同此处理。
9、仓库2#,结施图19,1-2轴交1-J至1-K轴,此范围平台柱,与钢架图示意不符,平面图19中,2轴右侧两根钢柱无型号,请明确 ?
答复:2根右侧为TZ。1#仓库同此处理。
10、仓库2#,结施图10,平面布置图中,有两个XG-2,但无型号,是否同XG-1(D152*5.0)?
答复:是的,1#仓库同此处理。
11、仓库2#,结施图13,1-17轴墙梁布置图中,门窗洞口尺寸与建筑平面图以及立面图不符,请检查核对。
答复:以建筑为准,1#仓库同此处理。
12、仓库2#,结施图15,门框柱高度为3.1+0.25=3.35米,与墙梁布置图及建筑图均不符,请问是否以建筑图门洞尺寸计算?
答复:是的,1#仓库同此处理。
13、仓库2#,结施图13,右下角说明以及节点大样图显示墙面有隅撑,但无隅撑布置图,请明确墙面是否有隅撑?
答复:设置隅撑(隔1设1),规格做法参屋面隅撑。
14、 仓库2#,防火涂料建筑说明与结构说明不一致,请明确。另屋面檩条、拉条、隅撑是否涂刷防火涂料(是否为1.5h)?
答:以结构为准,檩条、拉条、隅撑等按次构件要求。
15、 仓库2#,本工程涂刷油漆的钢构件,红丹防锈底漆两度、醇酸调和面漆两度,均未明确厚度,请明确油漆厚度?
答:同结施夹层图中钢结构涂装说明。
16、 仓库2#,本工程涂刷防火涂料的钢构件,防火涂料是否可以替代面漆?
答:按照图纸说明
17、建施02建筑设计说明2.1中屋面构造做法与建施04说明1屋面系统构造做法不一致,请明确。
答:仓库屋面为TPO卷材防水(2.0厚织物内增强型)+100厚岩棉板+0.8厚彩钢板。天沟加设一道同屋面TPO防水,采光板为单层。罩棚以及雨棚屋面为0.8mm外板+50厚岩棉板+0.8mm内板,板型同雨棚节点大样。岩棉容重不小于180kg/m3.
18、仓库2#,建筑图,1-17轴立面图,16-17轴上方有三个窗户600mm*2400mm(墙梁布置图也有),平面图中没有,请问以哪个为准?
答:立面图纸为准
19、仓库2#,建筑图门窗表与门窗大样图有多处矛盾,如,窗户2C3615(门窗表3600*1500,大样图是3600*1300),窗户C4(门窗表11580*1300,大样图是12620*1300),请明确尺寸。
答:以大样为准
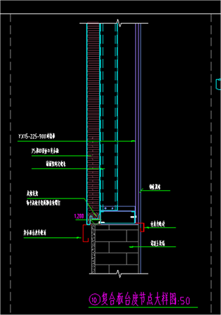
20、仓库1#2#,YX22-120-350型墙面外板从节点处看到是横向排板,但做法表中墙面外板是竖排,如果墙面外板是竖向排板,是否不需要增加墙面次檩?
答:为竖向排版,取消墙面次檩。
21、仓库1#2#,75mm四面企口复合板内侧增加次檩条,没有规格型号,请明确。
答:次檩为50x50x3镀锌方管



22、结构图中GJ图13-14轴上方钢梁标注尺寸8200与对称位置4-5轴上方钢梁标柱尺寸8100不一致,请复核是否有误?
答:对称位置尺寸按8100
23、结构图中GJ图上中间柱与梁连接处梁加劲板厚度是否同柱翼缘板厚度?
答:是的
24、结构图中GJ图上柱腹板图示虚线未注明,是否即柱撑处T型柱,按柱撑处尺寸规格计入即可?


答:是的
25、结构图钢柱及柱间支撑平面布置图中截面表JGZ1规格H400*4000*12*18是否标注有误?
答:是的,以钢架结施里面的钢柱截面为准
26、结构图2#仓库GJ-1大样图1-7轴间设置有夹层梁,GJ-2大样图无夹层梁,对比建筑图功能房间位置,是否GJ-1与GJ-2标注反了?
答:是的
27、结构图2#仓库结施19/20夹层梁轴线1-J/1-K是否标注有误,应为2-A/2-B?
答:是的
28、建施02建筑设计说明1.1.1说明1.2m以上墙体为竖排波纹板及竖排夹心复合板系统,内外彩钢板厚不详、复合板彩钢板厚及夹心材料不详,请明确。
答:墙面彩钢板厚度均为0.7mm厚,门窗护角收边件等彩钢板均采用0.7mm厚彩钢板。
29、建施02建筑设计说明7.6中底层外窗设置内置式不锈钢防盗网,防盗网安装业主自理,防盗网材料、安装是否在本次招标范围?
答:在,1.5~2mm的不锈钢拉紧缠绕于窗户外端固定的型材之间,钢丝之间的间距不大于5cm。
30、建施04窗材质及玻璃厚度等参数做法不详,请明确。

答:见建筑说明门窗工程4.1.5条,门窗采用88系列
31、建施04门窗表下说明中用户自理的纱扇及建设单位定的防卫措施、安全设施是否在本次招标范围?(如在,请明确具体做法)
答:计入纱窗,采用0.8~1.0mm的纱窗。
32、建施06雨棚处及建施07仓间屋面标注为详深化设计图纸,同时标注有相应节点大样。此处如何计入?
答:按照图纸大样计入
33、结施11材料表中YC为L50*3,结施12大样图中YC为L63*5,以何为准?
答:以大样为准
34、结施11采光排烟天窗支座详图,平面图中未见排烟天窗相应位置设置,请明确?
答:平面图为准
35、钢柱柱脚保护层做法结施01结构设计总说明(六).4为C15素混凝土包裹至±0以上180mm,建施10大样8为C20至地坪上150,以何为准?
答:以建筑为准
36、建施03说明8.1中室外散水给出的图集做法及宽度与建施10大样2不一致,以何为准?
答:图集做法与大样不一致时以大样为准,其他类似情况均同此处理。
37、仓库、门厅、楼梯间等材料做法表中未注明装饰做法房间如何计入?
答:清洁间同卫生间装饰做法,其他均按地面二、内墙面一、楼面一计入。
38、登车桥坑设置数量及位置建筑与结构不一致,以何为准?
答:以建筑立面为准。
39、室外台阶栏杆标注的图集做法12J003-THa126/83,图集中无此做法,请明确?
答:按12J003第B12页2A节点做法。
40、砌体材质结构说明与建筑说明不一致,请明确?
答:不一致处以建筑为准。
41、配电房内装饰及电缆沟等是否计入?
答:计入,因配电房图纸暂未经过供电部门审核,投标人应自行考虑通过供电部门审图额外增加的工程内容,清单中未单独列项,费用包含在投标报价中,中标后投标人要确保通过供电部门验收,不再增加费用。
42、 仓库防火涂料薄型防火涂料是否对应为膨胀性防火涂料,厚型防火涂料是否对应为非膨胀性防火涂料?
答:是
43、钢梁(桁架)是否可以采用膨胀性防火涂料?
答:是
44、 桩顶是否考虑防水?
答:参标准厂房建筑说明图集做法计入。
45、 仓库结构钢梯大样1钢梯设计说明中“楼梯面装饰面层由装修单位二次设计,其荷载均不得超过1.5kn/平方米”,二次深化设计是否在本次招标范围?如在,请提供相关做法。
答:此句话改为“楼梯面层装饰其荷载均不得超过1.5kn/平方米”,楼梯面无装饰做法。
46、 仓库地面做法中,300厚1:2级配碎石,是否可以修改为5%水泥稳定碎石,厚度200mm;
答: 是
47、 仓库地面分仓,是否增设传力杆;做法同道路做法;
答:是
标准厂房
48、底层外门窗、公共走道、公用上人屋面是否设置安全护栏。
答:设置安全护栏,栏杆高度不应低于1.05m。
49、电梯基坑内壁是否设置防水措施
答:设置防水措施,电梯基坑内壁刷预拌砂浆内掺10%防水剂,确保不漏。
50、卫生间顶棚防水做法是否采用,建筑说明4.3.2中为1mm厚聚氨酯防水。
答:卫生间顶棚采用防水做法,按图施工。
51、幕墙是否计入?
答:全部计入,投标人应综合考虑门窗及幕墙的深化设计费用,自行报价,中标后不再调整。幕墙深化图纸经设计、监理及建设单位确认后方可实施。
52、图中的顶棚做法无清水模板,是否要计列
答:应当计列
53、设备基础混凝土型号未明确
答:按照:C20、P6
54、散水基底选用150厚粒径10~40卵石灌M2.5混合砂浆还是150厚3:7灰土?
答:按照150厚3:7灰土做
55、防滑地砖选用厚度
答:按照10厚
56、水泥基自流平楼面中LC7.5轻骨料混凝土厚度
答:按照30厚
57、水泥基自流平楼面面层6-8水泥基面层自流平厚度选用
答:按照8厚
58、水泥楼梯梯面做法
答:按照20厚1:2.5水泥砂浆抹平收光(采用预拌砂浆)
59、电梯基坑底部是否设置垫层
答:按100厚C15砼垫层计入。
60、电梯基坑外侧防水做法?
答:设置防水措施电梯基坑防水做法参见11J930第B9页1节点,构造做法参见11J930第B3页一级防水设防a
49、MLC8563尺寸有误
答:按8.5m*4.7m计入
50、排烟房间的百叶尺寸
答:按BYC1615计入,尺寸1.6m*1.5m
51、排风井百叶尺寸
答:按BYC0508计入,尺寸0.5m*0.8m
绿化:
61、请明确本项目绿化苗木养护等级年限?
答:建议为一级养护,两年,其中成活养护1个月,保存养护23个月。
62、请明确苗木表数量、种类是否与平面图一致,如果不一致,应以哪个为准?
答:苗木表为准
63、请明确本项目苗木基肥种类以及用量?
答:腐熟肥饼,乔木每树穴施0.5Kg,灌木每树穴施0.25Kg,草坪色块0.1Kg/m2。
雨污水:
64、本项目图纸上未标注管长的部分,是否可以直接用CAD量取长度?
答:可以直接量取
65、接市政雨水井以及接厂区内污水管部分是否需考虑现状道路破除与恢复?若考虑,请提供破复路面结构及工程量?
答:需要考虑现状道路破除与恢复,按原结构恢复,清单按1项计入,具体由投标人踏勘现场并结合图纸自行考虑报价。
66、请明确管道垫层以及周围是否采用中粗砂回填?
答:是,管道垫层以及周围采用中粗砂回填。
67、请明确管顶以上50cm至设计路面是否采用素土回填?
答:是,管顶以上50cm至设计路面。
68、请明确排水挖沟槽土方是否考虑回填利用?
答:是,回填利用。
69、下图标示这两种雨水井做法是否一致,都是混凝土砌块式排水检查井(A型),参照给水排水标准图集皖2015S209,若不是,请明确各自做法?

答:雨水井做法一致
70、请明确本项目化粪池型号规格?
答:G12-75SQF,化粪池选用、安装参见03S702-112~124
71、本项目位于道路上检查井盖使用五防重型球墨铸铁井盖是否合适?
答:不合适,位于道路上检查井盖使用D400型,五防,Ф700宽边防沉降井盖。
72、请明确本项目拆除现状人行道做法?
答:22cm混凝土面层+40cm基层。
73、请明确本项目拆除现状水泥路面做法?
答:
景观道路:
74、请明确下图指示部位混凝土强度等级?

答:C30
75、请明确聚氨酯涂料厚度?
答:1.2厚
76、本项目是否涉及新老路面交接,如涉及,请明确做法以及工程量?
答:涉及,
红色区域为沥青新老路面衔接,蓝色为混凝路新老路面衔接。做法详见设计图纸。
77、请明确本项目哪些部位设置施工缝以及施工缝的具体分布间距?
答:沥青道路及混凝土铺装需做施工缝,胀缝每180m一道,缩缝每5m一道,拉杆,传力杆每0.8m设置一道
78、根据花池详图,部分区域没有饰面,总图中不好区分,能否明确花坛饰面工程量?

答:花坛饰面工程量86平方米
79、请明确下图标注水泥稳定级配碎石比例?

答:5%。
80、请明确雨水篦子具体材质?

答:C25混凝土成品雨水篦子。
安装工程
81、电气平面图中照明桥架是否利用干线桥架?如不是请提供桥架型号。
回复:利用干线桥架,干线桥架由200x100调整为300x100;仓库照明平面补充桥架规格标注密闭金属桥架300x100,距钢梁下300吊装。
82、电梯是否计入?
答疑回复修改为:全部计入,投标人应综合考虑电梯井道深化费用,自行报价,中标后不再调整。规格型号及品牌推荐详见参考品牌目录,要求施工过程中必须取得特种设备检测院检测合格证。
招标人名称:合肥海恒国际物流有限公司
地址:合经区云谷路以南、桃枝路以东合肥出口加工区综合业务楼12楼
联系人:晁冠先
联系方式:18505517682
招标代理:安徽诚信项目管理有限公司
地 址:合肥市滨湖新区南京路2588号(徽州大道与南京路交口)六楼
联系人:张工
联系方式:0551-66223672
2020年11月17日
三、附件
答疑发布日期:2020年11月17日