您现在的位置: 首页 >> 答疑变更 >> 安徽公共资源交易集团项目管理有限公司 >> 工程
一、原公告主要信息
原项目名称: 中安创谷科技园一期A1楼上部精装修施工
原项目编号: 2020BFGGZ02461
原公告日期: 2020年10月01日
二、公告内容(更正事项、内容及日期等)
中安创谷科技园一期A1楼上部精装修施工补疑2
项目编号:2020BFGGZ02461-补2
各投标人:
1、原开标时间及投标截止时间为2020年10月21日9:30”,现延期到“2020年10月22日10:30”;开标地点变更为合肥市滨湖新区南京路2588号要素交易市场A区(徽州大道与南京路交口)3楼16号开标室,请各投标人做好相关投标工作安排。
2、中安创谷科技园一期A1楼上部精装修施工项目的招标文件P25内附表2中标后配备其他主要管理人员和技术人员的最低要求,请问在投标文件中是否需要提供人员的信息及证书复印件。
答:不需要,中标后提供。
3、招标文件 P48 中投标人奖项、荣誉要求:自 2014 年 1 月 1 日以来(以获奖时间为准),投标人承接的公共建筑工程获得过省级及以上优质工程奖项(如安徽省“黄山杯”)的,且获奖工程中室内装修面积不低于 2 万平方米。绝大多数施工合同及验收中只体现了本项目的建筑面积或建筑规模,未体现装修面积,可否修改为合同或竣工验收报告中的建筑面积或建筑规模作为评审条件?
答:招标文件 第三章 评标办法 详细评审标准“投标人奖项、荣誉要求”中的“室内装修面积”指投标人所承包的装饰装修专业工程的建筑面积。若投标人提供的获奖材料不能充分体现评审要求的 ,投标人须提供合同和竣工验收报告 或者 建设单位证明材料予以证明 。
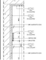
4、招标文件第129页1.1.2中安全文明施工费率表中安装工程的费率与一点智慧电子版清单文件中安装工程的费率不一致(如下图),请明确是否以一点智慧软件版“中安创谷科技园一期A1楼上部精装修施工.18ZHZB”清单为准?

答:本工程取费按“装饰装修取费标准”中“装饰装修工程”费率计取,详见补疑1。
5、图纸仅见25*100的方通@100,清单中40*80*1.2和50*100*1.2厚灰色铝方通间距未见说明和标注,请确定以上两种铝方通的间距分别是多少?
答:净空间距100mm,控制价按上述规格计入。
6、标准层清单序号32(项目编码011210006001)和37~40层清单序号45(项目编码011210006001)中“成品钢制防火玻璃隔断上部隔墙封堵特征描述为12厚水泥纤维板与图纸DY-14~45/46节点图标注为12厚阻燃板不同,请确定是否以清单为准?
答:以工程量清单为准。
7、实木复合地板及运动木地板厚度分别是多少?
答: 实木复合地板厚度为15mm,运动木地板厚度为22mm,控制价按上述规格计入。
8、设计说明中,所有楼地面工程均有C20细石混凝土找平层,1—36层清单中未计量,详图中未体现;但是37—40层清单中有计量,请明确!
答:以工程量清单为准。负1层、负2层、12-36层采用水泥砂浆找平层,具体见01 A1楼-1F、-2F、12F~36F精装修施工-装饰单位工程,对应清单序号为:2、3、4、72、84、85。
9、楼层顶面灰色涂料、墙面白色涂料,交界处100mm宽的灰色边条请明确做法,材料是用石膏板还是木作基层造型?凸出墙面多少?如墙面不平整怎样调平?

答:参照通用节点13(DY-13)图中40节点。
10、电梯厅白色人造石墙面留5毫米空缝,后期容易积灰,是否需要美缝处理?
答:详见补疑1。
11、所有成品钢质隔断门扇图示2.6米高,上顶天花,下顶地面,门扇是否过大、太厚重不利于开启,是否需要增加门楣?且整层天花如高度有1厘米的误差将导致通用尺寸无法安装,影响整体效果。
答:以设计图纸为准。
12、地毯铺贴至门槛石位置时一般的地毯收口条无法满足美观效果,是否需要细化此处的节点?
答:详见门槛石节点详图。
13、卫生间抗倍特板进深有1.6米,超过了成品抗倍特板的常规宽度,可能需要两块板搭接,请明确搭接节点?
答:用H型金属材料明接采用铆钉固定。投标人在综合单价中自行考虑相关费用。
14、小便斗矮墙砌筑和抹灰是否由装饰单位完成?
答:是的。
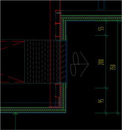
15、卫生间小便斗的固定方式如下图:

第一、需要先安装玻璃固定螺丝,再贴外面的砖,可能会导致施工工序倒置?
第二、后期如玻璃损坏将无法更换,需要讲瓷砖全部拆除后更换玻璃,是否需要再度优化?
答:以设计图纸为准。
16、37-40层石膏板天花整体过长是否设置伸缩缝?为不破坏整体效果请明确预留部位?
答: 需根据规范要求设置伸缩缝,根据综合天花图现场放线定位提供深化图纸,由业主、设计确认后施工。
17、挡烟垂壁是否在本次装饰范围?具体做法?
答:在,做法见节点大样。
18、40层厨房和展示区是否不在本次范围?
答:详见补疑1。
19、通用节点04中封口处双层石膏板建议改成12厚阻燃板加石膏板;以便减小风口震动。

答:以设计图纸为准。
20、通用节点05-A、D,为增加灯槽的稳定性,建议将灯槽改成12厚阻燃板加石膏板。
答:以设计图纸为准。

21、招标智能化清单中,很多设备需要投标时投标文件提供检测报告及证书承诺等,本次招标时间较短,招标文件中也无此评审项,请问投标是否要提供这些检测报告证书等?


答:设备所需的产品检测报告和证书等在中标后按招标人要求提供,投标时无须提供。工程量清单中的项目特征无须修改。
注:此补疑视同招标文件的组成部分,与招标文件具有同等法律效力。
招标人名称:安徽中安创谷科技园有限公司
地址:望江西路860号创新大厦817室
联系人:许亮
联系方式:0551-62151865
招标代理: 安徽诚信项目管理有限公司
地址:合肥市滨湖新区南京路2588号(徽州大道与南京路交口)六楼
联系人:张工
联系方式:0551-66223284
2020年10月16日
三、附件
答疑发布日期:2020年10月16日