您现在的位置: 首页 >> 答疑变更 >> 安徽公共资源交易集团项目管理有限公司 >> 工程
一、原公告主要信息
原项目名称: 蜀山区西城梅苑(312国道拆迁复建点)安置小区施工
原项目编号: 2020BFSGZ01184
原公告日期: 2020年07月14日
二、公告内容(更正事项、内容及日期等)
蜀山区西城梅苑(312国道拆迁复建点)安置小区施工项目招标补疑5
项目编号:2020BFSGZ01184-补5
1、电梯采购及安装施工内容未放进招标内容。建议招标人把电梯采购及安装放入招标范围。
回复:电梯采购及安装不在招标范围。
2、对于前期已完工程部分质量,请建设单位给予明确的检测合格报告。
回复:以施工期间第三方检测报告以及工程验收记录为准,进场后,施工单位可自行检测。
3、本项目工程遗留工程钢筋混凝土界面的新旧部分处理,需要出具专项施工方案并经专家论证,对新旧钢筋混凝土界面处理图纸进行设计深化,需原设计单位确认并经过安徽省审图办审核,至少需要3个月的时间完成上述工作。若我单位中标后建议给与足够的时间进行处理。
回复:根据现场实际情况,进场后予以设计深化和图纸审核。
4、3#楼清单项第127项矩形柱控制价是否合理?
回复:经复核,第127项综合单价应为48.62元/m2,因此项调整对最高投标限价影响较小,最高投标限价不再调整,投标人根据实际情况自行报价。
5、8#楼清单项第102项保温隔热楼地面控制价是否合理?
回复:经复核,2项综合单价应为73.44元/m2,因此项调整对最高投标限价影响较小,最高投标限价不再调整,投标人根据实际情况自行报价。
6、19#楼清单项第118项块料楼地面控制价是否合理?
回复:经复核,综合单价无误,此项清单子目的项目特征描述有误,后附调整后项目特征描述;投标人不要在软件中自行修改项目特征描述,按此修改说明报价和实施即可。
| 序号 |
项目编码 |
项目名称 |
原控制价项目特征描述 |
调整后项目特征描述 |
| 118 |
011102003002 |
块料楼地面 |
1、部位:强、弱电进线间、弱电设备间(所有层) |
1、部位:强电管井、弱电管井、水管井 |
7、地勘报告文件损坏,打不开。
回复:已重新上传,详见补图通道。
8、招标答疑1关于已施工完成节点提到“15#楼施工至1层混凝土浇筑结束”。经现场踏勘发现,15#楼施工至15层混凝土浇筑结束。请明确。
回复:经复核,已施工完成的节点更正如下:
7#楼:建筑:垫层浇筑完成。9#楼:建筑:CFG桩截头完成,接桩未施工。10#楼:建筑:基础筏板浇筑完成;钢筋:预留剪力墙钢筋。15#:建筑:结构基础、墙、梁、板、柱、节点、施工至15层混凝土浇筑结束(其中:16层飘窗上翻梁上翻部分未施工;阳台栏板未施工、走道栏板未施工)。钢筋:预留16层剪力墙钢筋,并绑扎部分钢筋。
9、结构图缺少7#~10#、16#~18#。
回复:已检查文件包。请查找单体/结构/主楼/文件夹。
10、已完人防工程质量监督记录及相关人防资料是否完善?如何交接?
回复:资料齐全,进场后移交。
11、现场西南角现有建筑(南苑水泵房)是否在幼儿园开挖范围内?
回复:自行勘察现场。
12、现场东侧围墙局部倒塌且存在安全隐患,由于大蜀山路修好后原高度已不满足规范要求,需建超高围墙或者围挡,如何处理?
回复:经复核,临时设施费用,投标单位勘察现场综合考虑,最高限价中包含临时设施费。
13、现场北侧的高压线是否有拆除计划?国防光缆是否在1#商业开挖范围内?请予以明确。
回复:北侧高压线新杆已建成,待迁改,不影响本项目建设。地块内国防电缆已经迁改完成。
14、招标文件中:现场既有工程量的工程质量鉴定以业主单位的第三方检测单位的鉴定结果为准,请问中标单位是否必须进行二次鉴定?
回复:以施工期间的第三方检测报告和工程验收资料为准,进场后中标单位根据实际情况可自行考虑是否二次检测。
15、尚遗留在现场的钢管、地泵、其他固定资产是否由中标单位自行处理?
回复:由原施工单位负责清场。
16、11#楼分部分项工程量清单中,厨房、卫生间的墙面一般抹灰存在两个不同子目且工程量相差较大,请核实?其他楼号相似情况,如何处理。
回复:经核实,第130、131项工程量及单价合理,分别为砖墙抹灰、砼墙抹灰。
17、11#楼分部分项工程量清单中,架空非机动车库、风机房、弱电设备间、消控室的天棚抹灰与该相同部位涂料面层的工程量差异较大,请核实?其他楼号相似情况,如何处理。


回复:经复核:第134项工程量为308.88m2,工程量偏差部分金额在投标报价中综合考虑,已发布的zb、清单、控制价均不再进行修改,投标人也不要修改工程量清单,中标后必须按照图纸进行施工,综合报价,中标后不予调整。
18、公共部位合用前室旁与外部接触的走道是否采用柔性耐水腻子,刷外墙油漆?
回复:走廊饰面见各楼室内装修一览表,已按耐水腻子、内墙乳胶漆计入。
19、主楼地下室顶板清单中为普通混凝土,是否应为p6级抗渗混凝土?
回复:以清单中为普通混凝土为准。
20、原塔吊产权单位联系方式涉及投标需要,请建设单位提供。
回复:中标后自行协调。
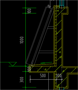
21、图纸中太阳能挑板长度扣除外墙保温后不够太阳能集热板放置角度,如何处理?

回复:空调板变更详见设计修改单《7#8#9#10#14#17#结构修改单(2020年4月20日)、11#12#13#15#16#18#19#20#结构修改单(2020年4月20日)》
22、主楼分部分项工程量清单中室内地坪做法为20厚1:2.5水泥砂浆地坪,影响回迁房交付品质,是否变更为4cm厚C20细石混凝土地坪?

回复:以清单为准;
23、主楼分部分项工程量清单中厨房、卫生间、阳台地坪描述为1:3水泥砂浆或最薄30厚细石混凝土找坡,以哪个为准?

回复:经复核,按1:3水泥砂浆找坡计入;
24、15号楼分部分项工程量清单中厨房、卫生间天棚抹灰工程量明显与实际不符,请核实。

回复:经复核,15号楼第111项工程量应为1102.8m2,工程量偏差部分金额在投标报价中综合考虑,已发布的zb、清单、控制价均不再进行修改,投标人也不要修改工程量清单,中标后必须按照图纸进行施工,综合报价,中标后不予调整。
25、招标文件商务文件投标函格式第8条和新点软件格式不一样,请问是我单位这样填写可以吗?(下图)如果这样填写不认可,是否需要重新做一份投标函,上传扫描什么位置请明确?
招标文件格式

新点软件格式

回复:招标文件商务文件投标函格式第八条内容,投标人可以自行添加补充,但不得修改实质性内容。如投标人不采取补充添加方式的,也可以按招标文件格式要求线下制作后盖章扫描上传至商务文件“其他材料”中。
26、商务报价投标函格式和招标文件格式不一样,招标文件格式大写报价有元,小写报价有元,新点格式大写报价没有元,小写报价有元。请问是否有影响,是否需要修改?
回复:投标人按照所投报价正常填报完整的报价即可,无须修改。
27、本项目开标时间及投标截止时间调整为“2020年8月12日9:30分”,开标地点调整为“安徽合肥公共资源交易中心3楼2号开标室”,请各投标人做好相关投标安排。
注:此补疑视同招标文件的组成部分,与招标文件具有同等法律效力。
2020年7月31日
三、附件
答疑发布日期:2020年07月31日