您现在的位置: 首页 >> 答疑变更 >> 安徽公共资源交易集团项目管理有限公司 >> 工程
一、原公告主要信息
原项目名称: 合肥市高速静安春晖里幼儿园改扩建
原项目编号: 2020BFYGZ01418
原公告日期: 2020年07月03日
二、公告内容(更正事项、内容及日期等)
| 合肥市高速静安春晖里幼儿园改扩建 |
招标文件补疑1
(项目编号:2020BFYGZ01418 )
各投标人:
重要提示
1、人工费执行《关于贯彻执行2018版安徽省建设工程计价依据的通知》(合造价【2018】13号文)。其中定额人工费参与取费、取税,其相对于定额人工费增加的部分 0 元只计取税金。
2、本工程取费按“ 装饰 工程取费标准”中“ 装饰装修工程 ”的费率计取。
3、本工程增值税税率按9%计入。
按业主要求,现对本项目招标工程量清单、最高投标限价编制作出如下补充:
第一部分:招标需求
一、招标范围:
本项目分为1个标段,主要包括幼儿园室内装饰工程、配套给排水、电气等改造工程以及室外戏水池、沙池、岗亭、伸缩门等,总建筑面积约6022.03平方米。除特殊说明外,图纸设计范围内的所有内容,均按图计入。
(一)装饰工程
1、装饰工程(包含教室、功能用房、走道、门厅的塑胶地板,音体室实木地板,后厨、卫生间、储藏室、洗漱间的地砖地面,教室、功能用房、走道、门厅的装饰板墙面,后厨、卫生间、储藏室、洗漱间的瓷砖墙面,教室、功能用房、走道、门厅石膏板、硅钙板、铝挂件的吊顶,后厨、卫生间的铝扣板吊顶,增加门窗、金刚纱纱窗、窗帘、窗帘导轨)。
(二)安装工程
1、 给排水工程:给排水部分(含热水系统)所有室内外立管、水平干管未做调整,室内仅根据卫生间设备调整部分给排水支管;室外戏水池、洗手台盆给水就近从给水井接入,戏水池、洗手台盆、沙池污水就近接入污水井。
2、 消防水工程:所有喷淋头上喷改下喷,其余按原设计不做修改。
3、 强电工程:拆除所有灯具、开关及插座并重新按照图纸所示安装灯具、开关、插座,插座管线只计新增标记Z的回路、后厨的所有插座回路及室内至室外岗亭与电动伸缩门的回路安装,其余的按照原设计不做修改。
4、 弱电工程:智能化图纸所示内容均仅计入预留预埋管、盒、桥架。
5、 消防电工程:所有烟感下移至装饰吊顶底,位置不变;增加楼层标志灯;后厨增加可燃气体报警系统;其余消防电系统均按原设计不做修改。
(三)室外工程
1、室外工程(包含沙池、戏水池、成品治安岗亭、旗台、电动伸缩门、种植花箱等)
(四)补充说明:
图纸上已设计,但不计入本次招标范围的有:
1、门窗表中除标注为“新增”的门窗在本次范围,其余门窗均不在本次招标范围。
2、室外公共活动场地,园区绿化不在本次招标范围。
3、火灾系统不在本次招标范围。
二、暂定项目:
(一)以下项目按照业主要求,以暂定工程量计入分部分项工程量清单,投标人综合考虑报价,标后按实际工程量结算。
无
(二)以下项目按照业主要求,暂列金额为 10 万元(不含税),计入“幼儿园-装饰工程”单位工程,投标人应按招标人所列的金额计入投标总价,暂列金额应计取税金。
(三)执行暂估价的材料、设备、专业工程及其金额如下:
无
三、按项列入清单的内容,标后不予调整:
以下项目按照业主要求,按项计入,投标人自行踏勘现场,综合考虑报价,中标后不予调整。
1、 项目名称:施工范围内需拆除的工程,设计图纸施工范围内墙体、护栏、围栏、门窗洞等所有需要破除、拆除的地方,报价含拆除、装车、运输等全部工作内容,所涉及一切费用按1项列入合肥市高速静安春晖里幼儿园装饰工程分部分项工程量清单中,投标人根据图纸并结合现场踏勘情况后综合考虑报价,一次性包死,结算时不再调整,因工程量差异产生的费用由投标人综合考虑在报价内,以后不予签证。
2、 项目名称:PVC防撞护角,设计图纸施工范围内墙角需要装护角的位置,报价含材料购买及安装等全部工作内容,所涉及一切费用按1项列入合肥市高速静安春晖里幼儿园装饰工程分部分项工程量清单中,投标人根据图纸并结合现场踏勘情况后综合考虑报价,一次性包死,结算时不再调整,因工程量差异产生的费用由投标人综合考虑在报价内,以后不予签证。
3、 项目名称:环保监测费,设计图纸施工范围环保监测,报价含监测及出具相关检测报告等全部工作内容,所涉及一切费用按1项列入合肥市高速静安春晖里幼儿园装饰工程分部分项工程量清单中,投标人根据图纸并结合现场踏勘情况后综合考虑报价,一次性包死,结算时不再调整,因工程量差异产生的费用由投标人综合考虑在报价内,以后不予签证。
4、 项目名称:预留吊顶检修孔,设计图纸施工范围内吊顶部位预留检修孔,报价含施工安装等全部工作内容,所涉及一切费用按1项列入合肥市高速静安春晖里幼儿园装饰工程分部分项工程量清单中,投标人根据图纸并结合现场踏勘情况后综合考虑报价,一次性包死,结算时不再调整,因工程量差异产生的费用由投标人综合考虑在报价内,以后不予签证。
5、 项目名称:装饰垂直运输,设计图纸施工范围内垂直运输,报价含全部工作内容,所涉及一切费用按1项列入合肥市高速静安春晖里幼儿园装饰工程分部分项工程量清单中,投标人根据图纸并结合现场踏勘情况后综合考虑报价,一次性包死,结算时不再调整,因工程量差异产生的费用由投标人综合考虑在报价内,以后不予签证。
6、 项目名称:第三方消防检测,设计图纸施工范围消防检测,报价含直至检测合格的费用,如若首次检测不合格需要调整修改,产生的所有拆除维修恢复等费用不在另外计取综合包含在本次报价中,所涉及一切费用按1项列入合肥市高速静安春晖里幼儿园安装工程分部分项工程量清单中,投标人根据图纸并结合现场踏勘情况后综合考虑报价,一次性包死,结算时不再调整,因工程量差异产生的费用由投标人综合考虑在报价内,以后不予签证。
7、 项目名称:所有灯具开关插座拆除费用,设计图纸施工范围内所有需要拆除的灯具开关机插座,报价含施工安装等全部工作内容,所涉及一切费用按1项列入合肥市高速静安春晖里幼儿园安装工程分部分项工程量清单中,投标人根据图纸并结合现场踏勘情况后综合考虑报价,一次性包死,结算时不再调整,因工程量差异产生的费用由投标人综合考虑在报价内,以后不予签证。
8、 项目名称:火灾报警移位、气体报警系统引入,设计图纸施工范围内火灾报警移位、气体报警系统引入,报价含施工安装等全部工作内容,所涉及一切费用按1项列入合肥市高速静安春晖里幼儿园安装工程分部分项工程量清单中,投标人根据图纸并结合现场踏勘情况后综合考虑报价,一次性包死,结算时不再调整,因工程量差异产生的费用由投标人综合考虑在报价内,以后不予签证。
9、 项目名称:喷淋头改造费用,设计图纸施工范围内喷淋头改造,报价含施工安装等全部工作内容,所涉及一切费用按1项列入合肥市高速静安春晖里幼儿园安装工程分部分项工程量清单中,投标人根据图纸并结合现场踏勘情况后综合考虑报价,一次性包死,结算时不再调整,因工程量差异产生的费用由投标人综合考虑在报价内,以后不予签证。
10、 项目名称:防火隔热措施,设计图纸施工范围内防火隔热措施,报价含施工安装等全部工作内容,所涉及一切费用按1项列入合肥市高速静安春晖里幼儿园安装工程分部分项工程量清单中,投标人根据图纸并结合现场踏勘情况后综合考虑报价,一次性包死,结算时不再调整,因工程量差异产生的费用由投标人综合考虑在报价内,以后不予签证。
四、补充图纸及修改图纸的说明:
无
五、总承包服务费:
无
六、温馨提示:投标人投标报价还须仔细阅读本项目招标文件,慎重报价。
第二部分:设计文件及技术补充说明
一、装饰部分:
1. 首层是否只有教室部位需要安装栏杆?
答:所有外窗户离地高度不足1200mm的窗户,均需安装栏杆,包括一层所有窗户。
2. 复合板隔断高度是否到顶?玻璃隔断是否到顶?
答:复合板隔断到板底或者梁底,玻璃隔断到吊顶底。
3. 公共卫生间大便隔断、小便隔断高度请明确?
答:大便器隔断高度1800mm,小便器隔断300*600mm,均为15mm抗倍特板隔断。
4. 教室卫生间隔断高度请明确?

答:900mm和1100mm。
5. 哪些柜体在范围内是否可以明确?具体那个房间哪些柜子?柜子材质和规格是否可以明确?定制成品柜是否在本次范围?
答:除教室寝室柜体、美工室台盆柜、儿童烹饪阅读区台盆柜在范围内,其余均不在。
6. 洗漱台是否按平面尺寸计入?
答:是。
7. 教师阅读室箭头所指位置是否为86系防火双玻百叶隔断?

答:原土建单位施工,不在本次范围。
8. 哪些门窗在本次范围?
答:窗户均不做改动,门按下图新增数量和类型计入本次招标范围。

9. 所有门窗是否均做门窗套?
答:是。
10. 窗台板材质厚度请明确?
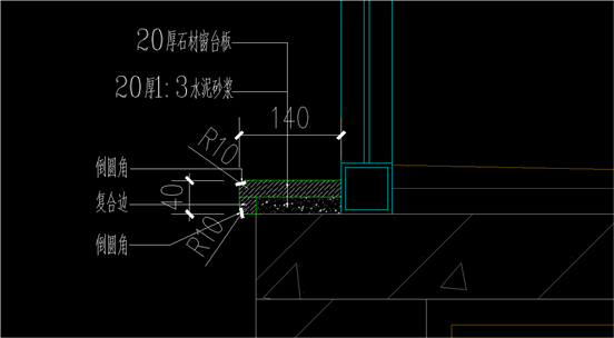
答:20厚米黄色石材。

11. 说明中的防水层和防潮层高度是否有矛盾?高度按多少计入?

答:2厚聚合物水泥基防水涂料:墙面和顶面防水层一道,地面防水层2道,第二道上翻300mm。
12. 实心砖墙砂浆强度等级请明确?
答:MU10.0煤矸石实心砖,M7.5水泥砂浆砌筑。
13. 新建墙体是否需要抹灰?
答:20mm厚1:3水泥砂浆
14. 是否有砖砌室内台阶?
答:无。
15. 卫生间是否有大便墩台?
答:公共卫生间有200高MU10.0煤矸石实心砖M7.5水泥砂浆砌筑的墩台。
16. 市面上无3mm塑胶,是否更换为2.8mm?
答:是。
17. 毛巾杆增加36组?
答:是。
18. 儿童烹饪区的15厚人造石台面是否在范围内?若在,请提供做法?
答:在。做法参照下图:

19. 音体室6mm防爆银镜是否有10厚水泥板基层?
答:18厚防火夹板,三遍防火漆。
20. 科学发现室的墙绘是否有基层?定制成品装饰品是否在范围内?

答:白水泥腻子墙绘基层,成品装饰品不在本次范围。
21. 未注明房间墙面装修做法请明确?
答:均为100mm高拉丝不锈钢踢脚线,乳胶漆墙面至吊顶以上100mm。
22. 消防值班室兼控制室的地面做法做发表和平面标注不一致,以哪个为准?
答:35mm厚600*600mm防静电地板,高度200mm。
23. 建构室乐高墙是否有基层?
答:10mm水泥板基层。
24. 本项目的水泥板是否均为10厚水泥压力板?
答:是。
25. 按业主需求增加以下内容:防腐木花箱(36组、1200*400mm)、亚克力园务公示栏(1800*900mm,8厚亚克力)、亚克力食谱板(1800*900mm,8厚亚克力)班级牌、功能室牌、办公室牌(75个)、教师公示牌(18个)、党建宣传栏(1组)、户外宣传栏(3组、木制移动式、高2米长3米)、班级主题墙(18个、1600*800mm软木板)、班级家园栏(18个、1600*800mm软木板)、软木展示墙(18个、1600*800mm软木板)。
二、电气部分:
1、照明线路是否仅计入电线,不计管?

答:计线,计管
2、图示黄色线段均属于新增线路吗,还是只带“Z”的为新增线路,地面铜插座是否计入?

答:“Z”的为新增线路 ,地面铜插座计入
3、图示应急照明线路电线管、电线都需重新计入吗,还是只计楼梯间新增楼梯标志灯处的电线、管;应急照明灯具是否更换?

答:重新计入;灯具只计新增楼层标志灯
4、平面图与系统图配线不同,以谁为准?
答:以系统图为准
5、智能化系统是否仅做预埋管、盒、桥架?
答:是
6、弱电是否做防火堵洞?
答:做
三、给排水部分
1、各类卫生器具是否计入?
答:计入
2、室外给排水管道材质及连接方式?
答:给水为PP-R管,热熔连接。室外污水管为高密度聚乙烯(HDPE)双壁波纹管接口采用内衬弹性橡胶密封圈承插式接口,粘接。
注:此补疑视同招标文件的组成部分,与招标文件具有同等法律效力。
2020年7月3日
三、附件
答疑发布日期:2020年07月03日