您现在的位置: 首页 >> 答疑变更 >> 安徽公共资源交易集团项目管理有限公司 >> 工程
一、原公告主要信息
原项目名称: 合肥市第六中学新校区项目工程
原项目编号: 2020BFFGZ00683
原公告日期: 2020年06月08日
二、公告内容(更正事项、内容及日期等)
合肥市第六中学新校区项目工程招标补疑
(2020BFFGZ00683-补1)
各投标人:
重要提示
1、人工费执行《关于贯彻执行2018版安徽省建设工程计价依据的通知》(合造价【2018】13号文)。其中定额人工费参与取费、取税,其相对于定额人工费增加的部分0元只计取税金。
2、本工程取费按“ 建筑 工程取费标准”中“ 民用建筑 ”的费率计取;其中房屋建筑、市政工程中挖或填土石方量大于5000m3的大型土石方工程,其企业管理费率8%、利润率8%,措施项目费率和不可竞争费率按房屋建筑工程或市政工程相应费率乘0.6系数。
按业主要求,现对本项目招标文件作出如下补充:
第一部分 招标需求
一、招标范围:
本项目共分一个标段,位于合肥市庐阳区蒙城路与连水路交叉口东北地块,总建筑面积21.8万平方米,其中地上建筑面积17.27万平方米,地下建筑面积4.53万平方米。主要包括1#~3#教学楼、男生宿舍楼、女生宿舍楼、教师值班楼、体育与艺术中心、学术交流中心、图书馆&国际交流中心、科创中心、生活服务综合楼、地库、平台、天桥、看台、大门等。单位工程包括:
(一)建筑装饰工程
1、土建工程:包含基坑支护、土石方工程(土方挖运、回填、清表、清淤等)、主体钢筋砼结构、钢结构、墙体、保温,图示建筑、结构等涉及到的图纸范围全部计入本次招标范围。
2、装饰工程:室内精装修工程、外幕墙工程、外墙面装饰工程、室内外门窗工程、内墙面、地面、顶棚及吊顶等按建筑图、幕墙图及精装修图纸计入部分。
(二)安装工程
1、给排水工程:
(1)给水系统按图全部计入;
(2)排水系统(含雨水冷凝水、污废水、虹吸雨水系统、压力排水等)按图全部计入,实验室设施、开水器、宿舍洗衣机不计入本次招标范围;
(3)消防水系统(消火栓系统、喷淋系统、消防水泡系统等)全部按图计入,地库消防泵房内设备及管线全部按图计入本次招标范围。
2、暖通工程:
除男、女生宿舍分体空调不计入本次招标范围,其它全部按图计入。
3、电气工程:
(1)变电所及各配电房高压进线电缆及高、低压设备及变压器不在本次招标范围,各配电房低压柜出线按图全部计入,其余按图纸全部计入;
(2)电梯计入本次招标范围;
(3)体育看台光伏发电系统按图纸全部计入;
(4)火灾报警系统、电气火灾监控系统、消防电源监控系统、防火门监控系统、空气质量监控系统、气体灭火系统、集中应急照明控制系统等全部按图计入。
4、弱电工程:
(1)智能化系统仅计入桥架及管盒预留预埋;
(2)亮化计入本次招标范围。
5、人防工程(战时):
除战时安装的设施外其余全部按图计入,给水系统平时安装到位(除战时水箱、冷却水箱外),口部冲洗阀安装到位,并在安装水箱的位置预留三通。
(三)室外总体及附属工程
电气工程(含室外电力排管)、给水工程、道排工程、室外道路工程、围墙工程、绿化工程、园建工程、校园导视系统等工程;
(四)补充说明:
以下项目不在本次招标范围:
1、智能化工程(所有预埋管除外)
2、厨房设施设备
3、10kV高压外线、各配电房内高低压配电设备及各个配电房之间的10KV电缆
4、燃气、热电、三网接入
5、体育与艺术中心(游泳池地面砖及墙面砖精装除外)、学术交流中心、科创中心的精装修及幕墙工程,图书馆与国际交流中心的精装修工程
二、暂定项目:
(一)以下项目按照业主要求,以暂定工程量计入分部分项工程量清单,投标人综合考虑报价,标后按实际工程量结算:
1、素混凝土换填,暂定1000m³,列入图书馆与国际交流中心土建装饰单位工程分部分项清单中。
2、素混凝土换填,暂定1000m³,列入科创中心土建装饰单位工程分部分项清单中。
3、换填垫层,暂定4000m3,列入北侧地下车库土建装饰单位工程分部分项清单中。
4、级配碎石垫层,暂定量600m3,列入室外道路及排水工程单位工程分部分项清单中。
5、4%石灰土回填,暂定量26035m3,列入室外道路及排水工程单位工程分部分项清单中。
6、沥青路面拆除,暂定量为100m2,列入室外道路及排水工程单位工程分部分项清单中。
7、沥青混凝土路面恢复,暂定量为100m2,列入室外道路及排水工程单位工程分部分项清单中。
8、花卉立体布置,暂定量1260m2,列入室外景观-绿化工程单位工程分部分项清单中。
按照业主要求,暂列金额为 4000.00万元。计入土建北侧地下车库工程量清单,投标人应按招标人所列的金额计入投标总价。
(二)执行暂估价的材料、设备、专业工程及其金额如下:无
三、按项列入清单的内容,标后不予调整:
以下项目按照业主要求,按项计入,投标人综合考虑报价,中标后不予调整。
1、施工临时用水、电报装接引:清单按一项列入土建北侧地下车库单位工程(控制价按100万元计入),投标人综合考虑报价,中标后不予调整。工作内容:施工临时用水、电自行报装接引,中标单位自行勘察现场,自行解决施工水电接装问题,综合考虑,中标后不予调整。投标人须对此作出承诺。
2、抗震支吊架:清单按一项列入各单体安装工程分部分项工程量清单中,投标人综合考虑报价,中标后不予调整。工作内容:安装各专业抗震支吊架及防晃支架,含深化设计、施工、检验监测等所需全部费用,且需满足规范及验收要求。按1项列入各单体安装工程分部分项工程量清单中,投标人自行踏勘现场,综合考虑报价,中标后不予调整。
3、空调系统冷媒管:清单按一项列入涉及单体安装工程分部分项工程量清单中,投标人综合考虑报价,中标后不予调整。工作内容:冷媒管、屋面冷媒管桥架、冷媒管保温及预埋套管等,含深化设计、施工等所需全部费用,且需满足空调使用功能需求及调试验收要求。按1项列入涉及单体安装工程分部分项工程量清单中,投标人自行踏勘现场,综合考虑报价,中标后不予调整。
4、实验室预留预埋:清单按一项列入涉及单体安装工程分部分项工程量清单中,投标人综合考虑报价,中标后不予调整。工作内容:暖通专业风管需预留至实验室内,包含风井内管道等所有工作内容,满足后期实验室通风系统安装需求;电气专业预留电源、管线等需按设计要求全部预埋预留到位,满足后期实验室设备安装供电需求;水专业需根据实验室上下水设计说明要求全部施工到位,满足后期实验室用水需求。按1项列入涉及单体安装工程分部分项工程量清单中,投标人自行踏勘现场,综合考虑报价,中标后不予调整。
5、老校区地雕迁移、安装:清单按一项列入室外景观-园建工程分部分项工程量清单中,投标人综合考虑报价,中标后不予调整。工作内容:地雕拆除、迁移、铺设(含基础)等所有费用。
四、补充图纸及修改图纸的说明:
本工程在第一次发放图纸后,有补充图纸,具体详见图纸目录。
五、总承包服务费:
无
六、温馨提示:投标人投标报价还须仔细阅读本项目招标文件,慎重报价。
第二部分 :设计文件及技术补充说明
土建部分
一、共性问题:
1、按业主要求,除招标人另行委托的工程质量检测不计入本次招标范围外,涉及本项目其他检测、试验、及第三方检测的相关配合等费用含在总报价中,由中标人自行考虑。
2、按业主要求,本工程道口开设由承包人负责,费用由承包人在合同价款的投标报价中综合考虑,清单不单独开项。
3、按业主要求,本工程引点、交桩、测绘及其复核(具体坐标由设计院提供)由承包人负责,费用由承包人在合同价款的投标报价中综合考虑,清单不单独开项。
4、控制价土方外运运距如何考虑?
回复:控制价土方外运运距按15公里考虑,实际运距投标单位自行考虑。
5、请明确本项目开挖的土方是否需要全部外运,是否有临时堆土点(后期用于回填的土方是否堆放在现场)?渣土费、保洁费、弃土费、土源费等如何考虑?土方外运及回填土借土运距如何考虑?
回复:现场不考虑临时堆土,全部外运 。渣土费、保洁费、弃土费、土源费投标单位自行考虑,土方外运及回填土借土运距投标单位自行考虑。
6、按设计要求,环氧磨石地面做法修改如下:

7、每个单体楼的玻璃窗材质不一样,有的为6高透光Low-E+12氩气+6 玻璃,有的为中透光Low-E+12空气+6 玻璃,是否需要统一?全部为6高透光Low-E+12氩气+6 玻璃?
回复:6中透光Low-E+12空气+6 玻璃
8、混凝土是否需要泵送?
回复:是否需要泵送投标单位自行考虑。
9、请明确防火卷帘材质?是否为钢制?
回复:本工程设计的防火卷帘均为特级防火卷帘,帘面、导轨、座板、夹板、门楣、箱体材质均为钢质材料。
10、请明确门窗隔热金属型材是什么材质
回复:断热铝合金窗框。
11、按设计要求,本项目各单体楼设计为环氧磨石踢脚线的,均为成品环氧磨石踢脚线。
12、建筑设计说明,砌体填充墙与不同基体材料交界处采用热镀锌电焊网或加强型耐碱玻纤网格布,请明确控制价中具体按哪种材料考虑:
回复:填充墙与砼构件交接处抹灰前,应采用宽度 ≥500mm ,直径 ≥1.0mm 热镀锌电焊网(网眼尺寸不大于10X10)。
13、本工程是否采用预拌砂浆?
回复复:是的
14、卫生间蹲坑做法请设计给予明确。
回复:详见图集16J914-1 4/XT18,填充物为轻集料LC7.5陶粒混凝土。
15、建筑施工图中未注明百叶窗的具体材质、材料规格及叶片厚度等
回复:铝合金防雨百叶,叶片65宽,0.8厚,边框50x50,壁厚1.2。
16、请明确风井、油烟井及电梯井抹灰做法?
回复:20厚WP M15预拌砂浆粉平。
17、屋面找坡层轻骨料砼的具体材料种类未明确。
回复:为LC7.5陶粒混凝土。
18、建筑说明“凡吊顶部位,墙面粉刷或装饰面层应做至吊顶面层以上100mm处。”粉刷层是否做到板底?
回复:做到板底。
19、按设计要求,原设计内门窗玻璃为单层玻璃的,现统一改为:6中透光Low-E+12空气+6 玻璃。
20、建筑节点大样图屋面栏杆设计为40*30方钢方通,是否为方管,若为方管请提供方管壁厚;详见附图:

回复:壁厚3mm。
21、请明确教室内讲台具体做法。
回复:参见16j934-3,D8页
22、建筑说明中“首层墙体底部(包括埋入土层的墙体)应选用煤矸石实心砖砌筑或C20混凝土浇筑,高度至室内地面以上不小于200mm,宽度同墙厚。”
回复:按C25混凝土浇筑,高度200mm。
23、窗台压顶图纸设计底层墙体外墙窗台部位及洞口≥1800mm部位,其他楼层窗台是否设置压顶,请给予明确;

回复:均需设置
24、按设计修改图纸要求,各单体窗台处均增加以下混凝土带,和压顶一起浇筑

25、本工程墙柱竖向钢筋小于16钢筋(不含16)是否采用绑扎接头(合安监有要求不允许焊接)?
回复:墙、柱竖向钢筋小于16钢筋(不含16)优先采用机械连接。
26、本工程图纸标注一级、三级直径6钢筋,是否按6.5考虑计入?
回复:图纸标注一级、三级直径6钢筋,可按6.5考虑计入,但应经业主确认许可。
27、本工程现浇板马凳应如何界定设置?(是否采用点状式马墩1平方米1个设置、马墩规格同板面钢筋)?
回复:地下室筏板马凳筋图纸已交代,其他现浇板的马凳筋是否要设置系施工措施,须满足施工要求,由施工单位决定。
28、本工程梁板≥22钢筋是否采用机械连接接头(直螺纹接头)?
回复:梁、板≥22钢筋可采用机械连接,结构总说明6.1条已注明。
29、本工程要求抗震等级1-3的框架部分及斜撑纵向钢筋采用抗震带E钢筋(普通剪力墙边缘约束构件竖向钢筋是否按框架部分考虑)?
回复:框架-剪力墙结构中剪力墙边缘构件(YBZ、GBZ、DZQ)的竖向钢筋也按框架部分考虑,采用抗震带E钢筋。
30、本工程底板钢筋≥16是否按直螺纹接头考虑?
回复:底板钢筋≥16可采用机械连接,须做抗拉拔试验并满足要求。
二、土建个性问题
(1)体育与艺术中心
1、请明确基础抗浮锚杆定位支架的具体做法:

回复:HRB400直径8,间距1500。
2、请明确排水沟不锈钢篾子的不锈钢等级
回复:304不锈钢。
3、地下室外墙周边灰土回填宽度建筑图纸设计与结构图纸设计不符,请给予明确:

回复:以结构为准

4、墙身大样1、2中,窗下口QL1,结构墙身图中为200*300,建筑大样中为200*250:回复:依结构为准

5、墙身大样26,一层门头部位,建筑大样与结构大样不一致:
回复:以结构为准


6、墙身大样35(结施35/44,建施35/45),12m标高屋面女儿墙做法不一样:

结构大样为砼女儿墙 建筑大样为砌体女儿墙
回复:以结构为准。
7、抗浮锚杆设计长度设计注明了有效长度约10.0m,请明确清单控制价中应如何考虑:

回复:按长度10m计入。
8、钢管砼柱脚大样图中,M30柱底锚栓L=1050MM柱脚平面图中注明为8根,而剖面图注明为10根:
49、
回复:以平面为准。
9、本工程二层有屋面平台,请明确外墙出屋面墙根是否设置砼防水圈梁。
回复:需设置。
10、请明确砼女儿墙的砼标号。
回复:考虑固定幕墙用,采用C30。
11、请明确节点中二次结构的砼标号。
回复:固定幕墙用的采用C30,其他可采用C25。
12、结施说明第4.5条,填充墙砌块容重要求如下,其中≦10KN/m,是否应为≦10KN/m3:

回复:是的
13、负一层平面图中注明砖砌台阶做法参12J003-11A/B3,但该图集中垫层材料为选择项,请明确具体用哪种材料:

回复:300厚3:7灰土分两步夯实
14、以下所示,土工布过滤层的的土工布具体规格未明确:
回复:丙纶 200g/㎡。

15、无地下室集水坑盖板的做法。
回复:补充集水坑做法引注图集,07j306 J3-1大样,盖板为混凝土盖板。
16、结施10.2m标高结构布置图中,下图所示节点28/43,但相应大样图中无此节点:

回复:应为38/44
17、风井出屋面、冷媒井出屋面大样中,墙根无防水圈梁,是否需要:

回复:出屋面墙根设置200*300防水圈梁。
18、C1540a有2个大样,C1540b无大样。


回复:圈处编号修改为C1540a,蓝圈处修改为C1540b,补充大样如图。
19、三层屋面强电井,剖面图有雨蓬,但平面图中无位置示意。
回复:平面尺寸为1000*1000mm。
20、屋面空调设备基础无详图。
回复:见暖通图。
21、室外排水沟(室外楼梯起步处),07J306-1/19,图集是钢筋砼底板、侧壁,其中底板厚度未明确,配筋未明确,砼标号也未明确:
回复:底板、侧壁均为200厚C20素砼。
22、结构平面布置图中部分降板区域,注明为焦渣砼回填,建筑地面做法中为LC7.5陶粒砼填充,请明确以何为准:
回复:LC7.5陶粒砼填充。
23、下图所示部位的积水沟,建筑、结构图中均为给做法:

回复:按下图大样,其中盖板为500宽不锈钢雨水篾子

24、百叶门BYM1016无具体材质及大样。
回复:成品钢制百叶门

25、防火门联窗的门、窗框材质、型材规格及防火玻璃的厚度未明确

回复:参见12J609-34

26、花池基础图中未注明砌体种类、砂浆标号:

回复:煤矸石实心砖,M5水泥砂浆砌筑
27、护窗栏杆的做法,平面图中为节点A/21,墙身大样图中标注为图集15J403-1 节点 PB5/D17,2处做法不一致:


回复:以平面图标注做法为准,油漆做法见建施说明。
28、室外楼梯的栏杆做法,平面图中的与楼梯大样图中的不一致:
回复:以大样为准


29、屋面上弦支撑平面布置图中的SC1无大样图。
回复复:同XG1
30、屋面檩条布置图中的T1、T2及XT1无大样图。
回复:是的,已补充,见新图。
31、不锈钢天沟支架无做法大样图。
回复:天沟落在砼柱顶。
32、屋面檩条布置图中,WLT1、WLT2位置未区分(指示的位置相同)。
回复:仅9~10轴位置为WLT2,其他为WLT1
33、钢结构防火涂料的耐火等级,图纸说明中仅有桁架和梁,其他构件如支撑、檩条、砼柱头短柱、幕墙造型钢架等未注明:
回复:需要,屋盖支撑,系杆,檩条1.5小时。幕墙钢架与短柱同钢梁。
34、屋面檩条为C型檩条,但未注明是否为热镀锌:

回复:需要镀锌,镀锌标准为A级,镀锌含量为275g/m^2。
35、造型墙钢架在钢结构图中,其材质、规格如下,但其表面油漆做法、防火涂料未单独注明,是否同屋盖钢梁:

回复:同屋盖。
36、彩钢板保温屋面,建筑说明室外工程装修做法表中与墙身大样图等其他部位的说明都互不一致:

回复:以室外工程装修做法表为准,其他说明将以此修改

37、钢结构屋面做法中,通风降噪钢丝网具体规格未明确。
回复:6厚pp通风降噪丝布。
38、钢结构屋面做法中,防水透声玻璃丝布的具体规格未明确。
回复:1厚玻璃丝布。
39、请明确艺术中心屋面电动排烟窗的具体做法和相关技术参数:
回复:窗框、玻璃等材料同外窗,推杆式开窗机,相关技术参数:电压DC24V;输出力1000N;参考行程800mm(具体根据现场调整),速度v≥10mm/s,参见下图:
(2)学术交流中心
1、结构总说明和建筑总说明关于混凝土翻边要求不一致?请明确以哪个为准?



回复:与主体结构同时浇筑。
2、请明确墙体不同材料交接处挂热镀锌电焊网是否包含二次结构与砌体墙交接处?
回复:包含。
3、请明确外墙保温及架空层顶棚保温耐碱网格布每平方重量?
回复:160g/m2。
4、请明确砖砌踏步砌体材质?砌筑砂浆等级?面层是否抹灰?
回复:采用煤矸石实心砖砌筑,砂浆等级M5.0,面层抹灰20mm厚1:3水泥砂浆。
5、请明确管道井抹灰厚度?

回复:20厚。
6、屋面结构布置图与屋顶平面图关于排烟机房顶板标高描述不一致?请明确以哪个为准?


回复:按21.400。
7、屋面结构布置图与屋顶平面图关于排烟机房结构形式不一致?请明确以哪个为准?


回复:屋面结构梁布置以结构图为准,图示区域做法参照出屋面风井结构做法。

8、请明确建筑做法第三条防水剂掺量?水泥砂浆比列?

回复:掺量3%,水泥砂浆比例1:2.5。
9、门窗表洞口尺寸与大样不一致?请明确以哪个为准?

回复:以大样为准。
10、部分门窗表洞口尺寸与平面图不一致?请明确以哪个为准?
![]()

回复:具体尺寸参照立面详图。
11、建筑二层平面图A5轴门窗尺寸与对应位置剖面图门窗尺寸不一致?请明确以哪个为准?



回复:以立面为准。
12、屋2上人保温屋面节点图为轻质混凝土回填,建筑做法表为最薄30厚2%找坡,做法不一致?请明确以哪个为准?


回复:此处为轻质混凝土回填。
13、请明确屋1上人保温屋面遇结构找坡是否取消找坡层?
回复:可以。
14、建筑图屋2上人保温屋面排水沟装饰图纸中无此做法?请补充排水沟、盖板做法及材质?

回复:排水沟做法参照07J306-P11页-节点4做法,排水沟采用3厚不锈钢线性排水沟成品盖板。
15、请明确报告厅主席台上空右侧设备平台屋面做法及其墙面和顶棚装饰做法?

回复:按屋1做法计入,墙面和顶棚按白色防霉无机涂料计入。
16、请明确报告厅上空右侧平台及耳光室上空顶面装饰做法?耳光室顶面可以通过爬梯上人是否设栏杆?


回复:顶面装饰做法按楼面3,详见最新图纸为钢筋砼栏板
17、声学装饰设计图纸显示报告厅上空平台右侧有栏板,但无结构节点图?请补充?

回复:按下图设置

18、请明确机房层不上人屋面做法?
回复:按下图做法计入。

19、请明确花池位置覆土下装饰做法?
回复:按下图做法计入。

20、请明确下图箭头位置装饰做法?

回复:按风井屋面计入。
21、请明确储藏间、所有机房、设备间、配电间、清洁间、茶水间建筑装饰做法是否按各功能用房计入?
回复:除配电间、清洁间、茶水间按卫生间、冷媒井房间做法计入,其余均按各功能用房计入。
22、请明确强弱电间、未标注的储藏间、所有机房、配电间、水井、报警阀间、楼地面面层做法?
回复:所有机房、报警阀间、未标注的储藏间按300*300mm白色玻化砖楼地面计入,做100mm高地砖踢脚线,做法见下图:

其余按下图做法:踢脚线高100mm
![]()

23、请明确强弱电间、未标注的储藏间、所有机房、配电间、水井、报警阀间墙面及顶棚面层装饰做法?
回复:强电井、弱电井、冷媒井、水井等均采用防霉的
内墙面按如下做法:
1、墙体水泥砂浆完成面
2、内墙腻子批嵌砂纸磨平三遍
3、内墙无机涂料三度
顶棚按如下做法:
1、原建筑完成面
2、3厚防裂腻子分遍找平,满铺玻璃纤维网格布
3、无机涂料三度
24、请明确首层箭头所示位置保温线是否有误?

回复:该处保温线从室外走廊两侧外墙布置。
25、屋顶钢柱平面布置图钢柱位置与18.300标高幕墙构架平面布置图钢柱位置重复?请明确以哪个为准?


回复:重合位置以幕墙构架平面图纸为准。
26、屋顶埋件平面布置图中埋件标注为MJ1,大样中为MJ2,是否为MJ2?


回复:标注有误,是为MJ2。
27、屋顶平面布置图中剖面图钢梁有支托,对应位置的节点图上檩条直接与钢梁平齐?请明确以哪个为准?


回复:以下图为准。
28、请明确本单体是否所有不锈钢均为304级?
回复:是。
29、钢结构图纸与土建图纸中关于钢结构屋面板做法描述不一致?请明确以哪个为准?

回复:以建筑图做法为准。
30、请明确本单体所有钢结构涂装做法是否均按钢结构设计说明第七节做法描述计入?
回复:是的。
31、请明确报告厅上空的天桥、顶棚、幕墙钢构架、钢结构雨棚、室内抬高钢架是否需要喷涂防火涂料?是否均按钢结构设计说明第七节做法底漆中间漆面漆均需计入?
回复:需要。需要计入。
32、请明确楼梯底部架空层地面及各墙面装饰做法?

回复:地面采用30mm厚麻面花岗岩,墙面采用外墙1有保温装饰砂浆,顶棚采用白色无机防霉涂料。
33、请明确下图位置是否设横梁?若设请明确具体规格?

回复:设置通长横梁,规格按GL1计入。
34、请明确建筑图铝方通是否在本次招标范围?
回复:不在,放入幕墙中。
(3)图书+国际部
1、建筑图纸说明“5.8.1本工程楼梯、栏杆、栏板构造的做法(具体做法及索引,详见楼梯大样图及墙身详图),所有的栏杆扶手均为铝木扶手,规格详见图集索引,同尺寸,材质换为铝木,壁厚3.0mm,刷木色聚酯漆”,和图纸具体部位要求图集做法不一致,是否按具体部位栏杆索引的图集?


回复:按图集。护窗栏杆图纸有做法,按图纸大样做法。
2、图书+国际部中筏板变标高处,筏板厚度不一致时(如地库与主楼交接处),放坡宽度取较厚板还是较薄筏板厚度?
回复:放坡宽度取较厚板。

3、图书+国际部中基础平面图中庭院位置下图所示后浇带两边筏板厚度不一致,请明确该处构造做法
回复:放坡宽度取较厚板。
4、底板的隔离层具体是什么?

回复:10厚低强度等级砂浆隔离层
5、结施06中,未注明外墙是否为WQ-1,如不是,请明确
回复:未注明外墙为WQ-1
6、结施09墙柱配筋图中,15.8~屋面标高中DZQ1截面有两种,请明确以何为准?
回复:以第二个为准


7、结 施- 16 /36中,三层顶部位节点12/XT7是否有误?此部位是否应为挑板?


回复:按此大样施工
8、结施05中,矩形柱墩ZD8-12侧面是否增设砖胎膜,如是,请明确其厚度及做法

回复:见详图

9、本工程底板是否为防水混凝土底板做法?
回复:本工程筏板基础混凝土等级C35,抗渗等级P6
10、请明确下图箭头所示区域装修做法是否同卫生间,如不是,请明确(余同)
回复:同卫生间

11、请明确屋面外露挡土墙及女儿墙内侧装饰做法
回复:同外墙取消保温层。
12、建筑说明“5 凡有水用房、有水设备间及管井和需防水的强电间、弱电间、消防控制室、强弱电井等,其隔墙下均浇筑300mm高C20细石混凝土防水翻边,厚度与墙体相等。”结构说明此部位翻边同梁板混凝土一起浇筑。混凝土标号是否改为C30。
回复:改为C30
13、集水坑及电梯基坑防水做法请明确。
回复:1.5厚聚合物水泥防水涂料(Ⅱ型)
14、地下室工程做法中底板1中800厚细石混凝土,内配直径6@200钢筋网片,随打随抹 ,请设计复核800高度是否合适。
回复:修改为550厚度
15、底板2和底板3工程做法中,100厚细石混凝土,内配直径6@150钢筋网片,随打随抹
和底板防水做法中的100厚C20混凝土面层重复。是否取消。
回复:取消工程做法中的100厚混凝土,按底板做法。
16、建筑做法表中的种植屋面做法中的耐根穿刺防水层具体是什么材质?和2厚的自粘聚物改性沥青防水卷材是否重复?

回复:耐穿刺层采用4厚SBS改性沥青耐根穿刺防水卷材,不重复
17、建筑做法表中的腻子是否取消?建筑做到抹灰层,腻子及面层按内装图纸?

回复:强电井、弱电井、冷媒井、水井、机房等部位精装未设计,按建筑图纸中做法。其他墙面精装设计的按精装修图纸做法。
18、建筑说明中的与地库之间内墙部位做法为装饰砂浆面层,和内装图纸中的做法不一致。是否按精装做法?

回复:保温做法按建筑说明,面层按精装图纸。
19、建筑做法表中,架空楼板做法为装饰砂浆,和内装图纸不一致,内装为吊顶,是否以内装图纸为准?

回复:以内装图纸为准
20、建筑说明中的楼梯间做法是否含踏步及休息平台?

回复:不含踏步及休息平台部位。
21、建筑做法表中楼梯踢脚线是否以精装为准?

回复:建筑不用做,以精装图纸为准。
22、建筑做法表中内墙2的腻子是否应取消?建筑做到抹灰层,面层和腻子以内装图纸为准?

回复:腻子及面层建筑取消,按精装图纸。
23、建筑图中的建筑做法表中内墙面及顶棚设计有腻子和涂料做法,内装图纸中也设计有腻子和涂料,建筑和精装图纸分界面有重复,是否统一改为:建筑做法表中的内墙及顶棚基层做至抹灰层,腻子和面层统一按内装做法?
回复:强电井、弱电井、冷媒井、水井、机房等部位精装未设计,按建筑图纸中做法,其他部位精装设计的,按精装图纸做法。
24、结构图中“筏板基础超挖部分采用素混凝土换填”图纸中未设计具体超挖工程量,此部分工程量无法计算,如何确定?

回复:现根据地勘报告暂定换填区域范围如图阴影所示, 深度暂定一米
工程量暂定为1000m³
25、集水坑排水篦子做法不详,请设计明确。

回复:成品钢制盖板,总厚度50mm(板厚3.5mm)
26、护窗栏杆墙身大样是参考图集15J403-1第C15页H3节点,图纸给出了具体做法,和图集不一致,具体以哪个为准。
回复:不按图集,按图纸中具体大样做法。
27、雨棚面板做法建筑图是按图集,钢结构图给出了具体做法,是否按钢结构图为准:

回复:面层做法为0.9mm氟碳涂层铝镁锰板(25/430型)+WS-900 内板+100mm厚保温玻璃棉,具体按钢结构图节点。
28、此部位所指的铝板无具体节点,请设计补充。


回复:补充此处建筑做法,非幕墙节点。补充该节点。
29、箭头所指部位图例为橙黄色铝板,节点大样所示为不锈钢板,请问以哪个为准。

回复:此处为橙黄色耐候不锈钢板。
30、台阶部分的挡土墙图纸说详见结构图,结构图未见此部分图纸。

回复:挡土墙详见平台一结构图。
31、室外的集水坑无结构图。

回复:集水沟采用建筑面层填充做,集水坑做法同国际部庭院集水坑。
32、5-5剖面挡墙外侧石材湿贴,标注不明确,无具体做法,建筑和景观均无做法,请设计明确。

回复:见平台一做法。如下图

33、飘板、钢结构楼梯、雨棚等钢结构防火等级均为二级,防火涂料是否统一均为薄涂?面漆是否统一为氟碳喷涂?
回复:钢柱采用薄涂型防火涂料,涂层厚度为7mm,钢梁采用薄涂型防火涂料,涂层厚度为5mm,喷涂遍数应满足钢结构的防火极限的要求。面漆均为氟碳喷涂
(四)教学楼一
1、1#教学楼、3#教学楼装饰设计里,录播教室墙面设计有矛盾,请明确应按何材料做法?



回复:按照材料表,按2400*1200*3.0mm厚冲孔铝板(背附40厚岩棉吸声)。
2、1#教学楼第四层KZ7\KZ8无柱大样图,KZ9\KZ10柱大样图与图中形状不符。
回复:经复核,图中有KZ7\KZ8大样图,KZ9\KZ10柱大样图与图中形状相符
3、1#教学楼8.14-11.94柱平面图KZ11,KZ12与11.94-屋面柱平面图KZ11,KZ12大样图不一致,以哪种为准?
回复:经复核,大样图为一致,11.94-屋面柱平面图中,KZ7~KZ10大样中柱编号位于柱表上部,现调整为柱表底部,详修改图
4、 未注明材质的乙级防火门是否为钢制,请明确;
回复:钢制防火门
5、1#幕墙工程是否仅计入石材幕墙,范围是否仅在1层和2层;
回复:1#计入石材幕墙,一、二层为石材幕墙,三、四层有铝板幕墙。
6、未注明材质的乙级防火门是否为钢制,请明确;
回复:是的,都为钢制
7、1#幕墙工程是否仅计入石材幕墙,范围是否仅在1层和2层;
回复:四五层也有
8、多出门窗表尺寸与建筑平面图对不上,标注尺寸与门窗表尺寸对不上:以门窗表为准还是平面图为准?,部分门窗尺寸未有在门窗表及门窗大样列出(如:一层C9536,二层C10021。。。。。。六层C1721等);
回复:以平面图为准
9、屋面风井无大样图,无围护做法,是否设置百叶等;
回复:后期已补,和三号教学楼一致
10、一层消防通道装饰做法,请明确;
回复:同其他教学楼
11、无结构板的一层地面做法请补充;
回复:详见景观图纸
12、请补充各个房间的构造做法(部分房间没有装饰做法,如储藏室、饮水间、清洁间、电梯井、消防通道等,不一一列出了,请核实);
回复:同三号教学楼
13、一层顶屋面无女儿墙做法,如下图部位:

回复:装饰砂浆
14、请提供保温范围线(涉及到连廊走廊较多,请明确部位);
回复:补充保温线
15、四层阳台建筑结构节点缺少(是否有栏杆,高度如何):
回复:具体做法参考二号教学楼
(5)教学楼二
1、基础平面布置图中DJ03、DJ20平面标注尺寸与配筋表尺寸不一致,请给予明确尺寸;
回复:DJ03、DJ20以配筋表为准
2、结构图:基础平面图中联合基础增加暗梁,是否按a-a剖面图标注堆坡至暗梁顶部?
回复:是
3、电梯基坑砼墙壁及底板是否需要按抗渗P6考虑?
回复:是
4、关于结构图中框架柱的尺寸与建筑平面图尺寸不一致情况,请明确以何为准?
回复:以结构图为准。
5、平面图纸中≤360mm门垛是否采用混凝土浇筑,结构图纸中未明确说明,若是,请明确配筋;
回复:以平面图中构造柱位置为准,当≤200的门垛可结合构造柱采用素混凝土浇筑,无需另外配筋
6、建筑平面三层1/3轴平面图窗高度均为2900,立面图高度为2100,请明确窗尺寸以何为准?
回复:已改为2100
7、建筑平面图7~8轴/K轴立面图与节点不一致请明确做法;


回复:此处节点按照建筑计入。
8、屋面做法表中种植屋面耐根穿刺防水材质及厚度应给予明确;
回复:4厚SBS改性沥青耐根穿刺防水卷材。
9、建筑节点大样图屋面栏杆设计为40*30方钢方通,是否为方管,若为方管请提供方管壁厚;详见附图:

回复:壁厚3mm。
10、建筑四层平面图设计穿孔铝板处线条部位窗平面设计标注为2900mm高窗洞与立面图及节点大样尺寸不符,请复核调整,详见附图:


回复:该部位窗洞高度为2600mm
11、建筑图纸中雨棚请提供相应部位做法;

回复:详见附图,玻璃为8+1.52PVB+8mm钢化夹胶玻璃

12、立面图纸中铝方通壁厚应给予明确;立面图中深灰色的是否也为铝方通装饰?详见附图:

回复:是的,壁厚为3mm
13、立面图纸中景观绿化架背立面是否考虑装饰砂浆面层?绿化架是否仅考虑计入骨架,绿化部分是否含在招标范围,若在,请提供做法。


回复:立面需要考虑装饰面层,钢架做法详见建筑图;绿化也在招标范围内,盆选用110#精品杯苗,脱袋(杯)后,植入模块的种植袋内。正常植物45克/平方米。我们每栋约800平米,即36000盆。植物选用六种,暂定为矾根、吉祥草、德国鸢尾、常春藤、大花六道木、红花继木。
14、立面图铝方通部位砖墙底部是否需要设止水带,请给予明确:详见附图:

回复:设200高C30混凝土。
15、装饰图纸中,无讲台部位基层详细做法,请给予明确。

回复:讲台做法详见16J934-3 1/D8。其中现浇盖板板配筋为三级钢8@200双向,砖支座规格同煤矸石实心砖,横向间距小于1200,纵向间距小于800。
16、教室黑板及走廊储物柜是否含在本次招标范围,若在,请提供相应尺寸参数及做法。


回复:黑板和储物柜不在本次招标范围内。
17、包管构造做法中埃特板请明确厚度。

回复:12mm加强纤维水泥板。
18、窗帘盒部位窗帘轨道是否含在本次招标范围?窗帘盒铝合金护角请明确规格尺寸。
答:窗帘盒部位轨道不在本次招标范围内,1.0厚304不锈钢护角条
19、屋面女儿墙顶盖板图纸设计无厚度,请给予明确。
回复:2.5mm铝盖板。
20、风井百叶窗洞口建筑图纸无标注,请给予明确。
回复:风井高度详见建筑墙身大样13/28,其宽度详见暖通图纸
21、建筑装饰做法表中:①、内墙部分部位清洁间及开水间是否可以参照卫生间墙面计入,其余房间未说明做法是否均按内墙2计入②、楼地面除清洁间及开水间地面参照卫生间做法,其余备注中未提到部位是否可以参照楼/地2计入?
回复:可以参照。
22、建筑做法表中架空层天棚保温是否含梁侧面?请给予明确。
回复:含梁侧面。
23、建筑装饰做法表中,屋面2备注部位为共享交流层面(4.4m标高)请在平面图中给予明确相应部位。
回复:建筑二层平面图上

24、建筑装饰做法表有水泥砂浆踢脚线,考虑本项目为精装修,水泥砂浆踢脚线是否可以取消?若不取消请给予明确高度。
回复:取消.
25、幕墙图纸中装饰穿孔铝板节点图中40×4横向方管间距未标注,请给于明确。

回复:横向方管间距同铝板分割尺寸,即为1600mm。
26、幕施022~023中节点图是否为穿孔铝板详图?应明确龙骨间距。
回复:此处应为穿孔铝板详图。立柱间距以节点图27为准。
27、石材幕墙节点图中应给予明确相应部位龙骨间距。
回复:节点中已明确不大于1200mm。准确的龙骨间距同幕墙立面图的竖向分割。
28、幕墙包柱(含砼柱,装饰柱)龙骨底部及顶部预埋件及连接件大样均未标注。
回复:龙骨顶部节点见节点1/16、1/17,底部节点见补充图。
29、卫生间室内门洞部位是否设大理石门槛石?
回复:是。
30、铝板吊顶天棚窗顶平面图显示为窗帘盒,其做法是否参照石膏板吊采用石膏板窗帘盒。
回复:是。
31、卫生间小便器隔断高度及宽度图纸未标注。
回复:1050mm* 400mm。
32、卫生间大理石台面下翻高度及15厚挡水板高度图纸均未标注。

回复:详见附图

33、装饰图纸中施工说明四,内墙饰面做法里抹灰层是否与建筑做法表中的抹灰层重复?是否可以取消?
回复:可以取消。
34、装饰门表图中带门亮门应提供玻璃规格及种类,且图纸应标注玻璃部位相应尺寸
回复:12mm厚钢化玻璃。
35、装饰门表图中成品门带门套应标注门套相应尺寸及材质。
回复:成品钢制门套65mm宽

36、装饰图纸中室内装饰材料一览表中30mm厚白色PVC收口条与装饰主要材料表中PVC收口条1.5厚不一致,是否前者为30mm宽?
回复:为1.5mm厚。
37、教室部位管井墙,地面及天棚是否考虑装饰面层?请给予明确做法。
回复:地面300*300mm米白色玻化砖,顶面裸顶喷白色无机涂料,墙面白色无机涂料饰面、米白色玻化砖踢脚。
38、装饰图纸天棚做法中,混合砂浆找平请给予明确砂浆标号及厚度。
回复:20厚M10砂浆找平。
39、装饰图纸中成品门牌是否含在本次招标范围?若在请提供详细做法。
回复:成品门牌已含在标识范围内。
40、装饰图中1F实验准备室天棚平面布置图绘制图例为吊顶与装修表不一致,是否按装修表计标?
回复:为600*600*1.0mm厚铝扣板吊顶。
41、装饰图纸做法表中,花岗岩粘接层厚度为20/30厚干硬性砂浆结合层,请明确不同厚度对应的部位。
回复:考虑需要不同区域要统一标高,统一按照30厚计入,具体厚度现场协调。
42、1F家长接待室平面索引吊顶材质与做法表不一致是否以平面标准为准?
回复:以平面标准为准。为1200*600*2.0mm厚白色铝板、轻钢龙骨石膏板吊顶白色无机涂料饰面。
43、1F走道铝方通吊顶与外口梁交接处如何处理?
回复:无处理。
44、架空层天棚图纸设计无吊顶索引,是否为无吊顶装饰?
回复:是。
55、装饰图中翻板式挡烟垂壁应补充做法。
46、2F与室外平台部位入口相连部位铺装做法图纸设计无做法,请给予明确。详见附图:

回复:要同室外平台的面层,计入室外景观清单
47、外墙铝方通部位平台挑板顶部及雨棚顶无防水做法,请给予明确
回复:参照有保温装饰砂浆外墙做法,将其中找平层改为最薄处20厚1:3水泥砂浆内掺5%防水剂找坡。
48、地砖、石材踢脚线粘接层及高度图纸设计标注,请给予明确。
回复:高度按100mm,具体做法参照05J909-TJ7-踢4A
49、建筑装修表中外墙6无对应图纸部位,请给予明确。
回复:具体做法详见附图

(6)教学楼三
1、建筑说明和装修表中,架空楼板处保温厚度不一样,以何为准。

回复:按60厚计入。
2、楼3做法是否只适用于楼梯平台?踏步做法请详。![BJ7W]G8[7G3`A]F1Q}(`_GI](/uploadfile/e97abeaa-97e5-4526-8f79-8919b4633723/20200624161815311145.jpg)
回复:是。楼梯踏步做一道素水泥浆即可。
3、阶梯教室阶梯部分地面是否设计重复了?以何为准?
![TL8)O$T5OK03ZODE6]E}ZGR](/uploadfile/e97abeaa-97e5-4526-8f79-8919b4633723/20200624161815658147.jpg)
回复:地5为非台阶部位,台阶按混凝土台阶做法。
4、如图反坎砼标号请详。
回复:C20。
5、外墙6花岗岩石材面层是否专用粘结剂施工?石材种类为何?![T]SMZ[G{TUTN}}3N9}8(}]Q](/uploadfile/e97abeaa-97e5-4526-8f79-8919b4633723/20200624161815898149.jpg)
回复:石材背面增加
。
6、建筑装饰做法表有水泥砂浆踢脚线,考虑本项目为精装修,水泥砂浆踢脚线是否可以取消?若不取消请给予明确高度。
回复:取消,具体部位和做法详见装饰。
7、景观绿化架做法不全,是否可参考2#教学楼做法统一计入?
回复:可以。
8、3#教学楼屋1、屋2的面砖尺寸、屋1保温厚度及材料、屋3防水材料、种植屋面等做法均与1、2#教学楼不同,是否全部参考1、2#教学楼屋面做法修改?
回复:保温按图施工。找平、防水等做法按1、2#教学楼屋面做法修改。
9、屋面花岗岩地砖的花岗岩种类请详。
回复:10厚600X600芝麻灰花岗岩地砖。
10、建筑图中,外墙6备注为“用于首层外墙幕墙下部至室外地面勒脚”,但同时外墙2、外墙5分别备注为有保温干挂石材外墙、无保温干挂石材外墙。请明确外墙6施工区域。
回复:指各个立面(包括内庭院立面)干挂石材幕墙至室外地面范围的外墙。

11、种植散水做法不明。是否参考其他回复疑回复按“300厚回填土(回填土接触的墙体做外墙防潮层及保护层);60厚C20混凝土面层,撒1:1水泥砂子压实赶光;150厚3:7灰土,宽出面层灰土,宽出面层100mm素土夯实,向外坡3%~5%”计入?
回复:增补做法,见新图纸。
12、一层室外坡道未见设计做法,是否可参考其他建筑按“600*600花岗岩(防滑);撒素水泥面(洒适量清水);20厚1:3干硬性水泥砂浆粘结层;素水泥浆一道(内掺建筑胶);60厚C20混凝土,台阶面向外找1%坡;300厚3:7灰土分两步夯实,宽出面层;素土夯实”计入?
回复:可以。内庭院做法见景观施工图。
13、电梯机房顶板顶标高结构图为24.3,建筑图标高为24.6,以何为准?
回复:以建筑图为准
14、楼梯栏杆及靠墙扶手做法不明。是否可参照图书馆及国际交流中心栏杆及靠墙扶手做法计入?
回复:可以。
15、架空层天棚图纸设计无吊顶索引,是否为无吊顶装饰?
回复:是。
16、天棚吊顶内填岩棉及墙面填充岩棉请明确相应厚度。
回复:50mm厚。
17、一层梁平面图中,1/1轴~2轴交B轴~C轴间L12(1)未集中标注,是否按200*500截面计入?配筋请详。
回复:此梁同L40(1)截面、配筋。
18、一层结构平面图中,阶梯教室周边挡土墙大样标注挡土墙顶标高0.6~1.32m,但在平面图中不同标高位置不详,请明确。
回复:标高位置随建筑阶梯教室中≥0.6m标高的阶梯顶面标高为准,参见建筑图。
19、建筑施工图设计总说明(一)中墙体构造:
与楼地面构造:
公共卫生间说明中:
![]()
不一致,是否以墙体构造中为准?
回复:300高
20、请明确干挂石材柱具体装饰做法。
回复:参无保温干挂外墙
21、幕墙与结构梁图定位不同时,是否应以结构图和节点剖面图为准调整幕墙定位?


回复:以结构图和幕墙的节点剖面图为准
22、幕墙一层平面图中,H轴交2-3轴有一窗C1636,但建筑平面图中未见此窗,且门窗表中无此型号窗相关设计。此处是否设计有窗?若有相关信息请详。
回复:以建筑平面图为准
23、六层结构平面图中2-D~2-C轴交2-2轴~2-3轴处有构造柱,但建筑图此处无墙,该构造柱是否取消?


回复:取消
24、结构平面图中,C轴交3~8轴处墙面是否均参考17/29节点施工?

回复:是
25、本项目桩基础是否计入?若计入,桩尖尺寸、钢板规格等请详。
![]`{(M2Y6G)JB3[97$5J5PZ3](/uploadfile/e97abeaa-97e5-4526-8f79-8919b4633723/20200624161816447162.jpg)
回复:施工单位根据现场试桩确定,报价可参考10g409第37页相关构造要求
26、电梯机房底部钢爬梯未标注尺寸做法及图集号。请补充。

回复:电梯底部的钢爬梯含在电梯厂家安装时考虑。不含在土建范围内
27、屋面楼梯间外标注钢爬梯索引图集15J401,在图集中未见WT1a做法。此处是否可参考图书馆及国际交流中心按02J401,78页做法计入?

回复:可以
28、门窗表中,FM乙1021备注里写的是钢制甲级,是否备注笔误以编号为准?
回复:以编号为准
29、出屋面风井百叶窗处节点尺寸存在明显笔误,请复核确认屋面各风井处百叶窗高度及窗底砼挡墙高度。


回复:见下图

30、建筑图中,危险化学药品专室未见装饰设计,考虑使用功能,是否可参照实验室装饰做法计入?
回复:可以
31、种植屋面做法仅明确了蓄水板至植被层自下而上做法,其防水、保温及找平等做法均未明确。是否可参考图书馆及国际交流中心种植屋面做法计入?
回复:可以
32、屋3为I级防水无保温,但未见防水层设计做法。是否参考屋1、屋2增加防水做法即可?

回复:参考教学楼一做法。
33、教学楼屋面均未设计找坡层,是否结构找坡?
回复:参考教学楼一做法
34、建筑和结构图中屋面女儿墙的剖面不同。此处是否应以建筑图为准?配筋请详。
![]OA$N{D_LVQF_[@]WU5S2JO](/uploadfile/e97abeaa-97e5-4526-8f79-8919b4633723/20200624161816698173.jpg)
回复:以建筑图为准。
35、装施51/80中,2层门厅连接走廊的C、D立面墙面未见木纹砖墙裙。但装施52/80的走廊墙面均有木纹砖墙裙。是否门厅连接走廊的墙面也应设置木纹砖墙裙?
回复:
以此四柱为分界,界限内二层大厅不做木纹墙裙,界限外走道处做木纹墙裙。51/61 F立面依旧为木纹铝板
36、装饰图中,室内装饰材料一览表标明二层大厅处吊顶为“1200*600*2.0mm厚冲孔铝板”,但二层顶面图对应部位标注材料为“1.5mm厚白色铝板(背覆岩棉吸声)”。以何为准计入?
回复:以顶面图对应部位标注材料“1.5mm厚白色铝板(背覆岩棉吸声)”计入。
37、精装修首层教研室未设计做法,是否参考三层教研室做法计入即可?
回复:同三层教研室做法计入。
38、精装修六层2-1~2-3轴交2-E~2-C轴教室研究室属于(A)还是(B)?
回复:属(B)。
39、幕施-011/027中可见部分幕墙节点,但幕墙平面图、立面图中均未见对应位置索引。为避免图纸理解误差,请补充明确节点对应部位。
回复:经复核索引位置准确。补充墙身4和墙身6的底部节点并索引(同教学楼2)。
(7)看台
1、看台此处建筑平面图与立面图冲突,请明确此处是否有女儿墙?

回复:有女儿墙,类似周边

2、精装修中,通道墙面为干挂石材,是否为幕墙范围内?
回复:是的
3、室外坡道做法参考16J934-1-A10-坡6节点是否标注错误,应为16J934-3-A10-坡6节点?
回复:是的
4、此处标注是否应为做法参见15J403-1第C11页W1型节点?

回复:是的
5、一层室外平台及通道面层做法详装饰,但装饰中仅有通道处做法,请明确室外平台装饰面层做法。


回复:室外平台地面做法参照通道
6、建筑装修做法表中天棚1为保温天棚,范围为更衣室、健身房、贵宾室、播音室、乒乓球室、战训室、办公室(等房间屋面采用板下保温)标高3.56平面图中范围包括部分不再天棚1中,以哪个为准?


回复:以建筑做法表为准。
(7)科创中心
1、屋顶保温:节能说明中,屋面保温材料为:90厚挤塑聚苯乙烯泡沫塑料板

装饰做法表中,屋面保温材料为:100+30厚挤塑聚苯板

请明确,以何为准?
回复:90厚挤塑聚苯乙烯泡沫塑料板(70+70*25%)

2、架空楼板保温与楼板保温的保温材料节能给出做法与工程做法表给出的做法不一致,以哪个为准?
回复:以节能给出的做法为准
3、无障碍坡道处栏杆做法不详,请明确。
回复:详见12J926第H1页
4、下图中无节点部分是否为墙体?墙体为何种材质?标高与结构图不符,请复核。

回复:结构增加了挡土墙。材质详结施,标高以建筑为准
5、请明确下图所指处的排水沟做法。

回复:详见07J306 4/P11,不锈钢盖板。
6、请提供电梯处洞口尺寸,平面图显示电梯处洞口宽1100mm,大样图显示电梯处洞口宽1300mm,请明确电梯洞口尺寸。
回复:1100mm。
7、楼梯详图中给出的楼梯栏杆高度与相关说明中给出的楼梯栏杆高度不一致,请明确以哪个为准。
回复:楼梯栏杆斜段与直段距地高1300mm,楼梯靠墙扶手离地高度900mm。
8、汽车坡道部分建筑图与结构图不符,是否以结构图为准?
回复:是的


9、汽车坡道部分若以结构图为准,请提供坡道顶板处详图。

回复:梁板在平面



10、二层平面图中C-D轴交1轴处接室外连廊的节点,外挑出的平台板及两级台阶均在本次招标范围呢?

回复:台阶取消,详连廊图纸,沉降缝以右为本次范围
11、建筑说明“5.2.3(5) 凡有水用房、有水设备间及管井和需防水的强电间、弱电间、消防控制室、强弱电井等,其隔墙下均浇筑300mm高C20细石混凝土防水翻边,厚度与墙体相等。”与结构说明此部位翻边同做法同主体同时浇筑。请明确此处的翻边混凝土等级。
回复:此处翻边等级同板等级。
12、卫生间、强电井、弱电井、水井、冷媒井地面已标注1.5厚JS防水上翻至顶棚,墙面做法中也标注JS防水或水泥砂浆防潮层,墙面是否需做两遍防水?


回复:墙面只需做一遍防水。
13、科创中心人防地库提供的装修做法表与单体楼给出地下室工程做法存在较多不一致的地方,请明确地下室装修做法以哪个为准。
回复:地下室装修做法以单体楼给出地下室工程做法为准。
14、建筑设计总说明(七)中地下室做法的地1是否需要变更为金刚石地面?
回复:地1做法变更为金刚砂地面,具体做法如下:且相应的踢脚线做法都改为踢1
1、金刚砂面层,混凝土初凝撒3mm厚(用量5kg/m2)金刚砂耐磨骨料, 骨料分批均匀撒布并专用机械打磨,颜色建设单位定,施工分仓缝 《6000,缝宽10,内填沥青油膏
2、100厚细石混凝土,内配直径6@200钢筋网片,随打随抹
3、1:3水泥砂浆找坡,最薄处20
4、刷素水泥浆一道(内掺建筑胶)
5、钢筋混凝土底板
15、请明确屋面砖砌踏步所使用的材质及砂浆等级。

回复:材质及砂浆等级同主体,踏步抹面同楼梯间楼面做法。
16、建筑设计总说明(七)中给出的地面1、地面2、地面3的做法中都含有100厚混凝土面层,是否与底板1中“1、100厚C20混凝土面层,配Φ6Ⅰ级钢,双向@150,钢筋网片绑扎(设分隔缝)”的做法重复?

回复:不重复,地面1、地面2、地面3的做法中100厚混凝土面层均改为相应的40厚混凝土面层做法。地面3中的细石混凝土等级为C20
17、请提供建筑施工图设计总说明(六)中绿化屋顶及施工图设计总说明(五)种植墙面的耐根穿刺防水层厚度。
回复:为4厚耐根穿刺SBS改性沥青防水卷材。
18、钢筋混凝土雨蓬顶面是否需要防水做法,如需要请提供做法。
回复:做法为1:2.5防水砂浆找坡1.0%(加3%防水剂),最薄处20厚
19、坡道详图给出的坡道墙面做法与工程做法表给出的做法不一致,以哪个为准?
回复:以工程做法表给出的做法为准。
20、请给出庭院内钢丝围合网的做法。
回复:做法如下图所示:

21、请提供41号图节点9的具体做法。
回复:此节点用于11层露台处花池,做法同种植屋面。
22、坡道的详图建筑与结构不一致,结构有坡度需要垫高,建筑没有,请问以哪个为准,如以结构为准请提供此处垫高处做法。

回复:以结构为准,垫高处采用C15素混凝土。
23、根据人防地下室结构设计说明“四.1.3) 人防地下室侧墙、顶板、底板及水池均采用防水抗裂混凝土”,非人防地下室是否参考此做法。
回复:人防地下室与非人防地下室侧墙、顶板、底板及水池均采用防水抗渗混凝土、抗渗等级P6。
24、建筑施工图设计总说明(一)中“5.1.8地下室车库等处的排水沟、集水坑及电梯底坑等详结构施工图及建筑施工图,集水坑、电梯集水坑及电梯底坑内墙体粉刷为WPM20预拌砂浆(内加10%防水剂)。”给出的集水坑、电梯集水坑及电梯底坑与详图给出的做法不一致,以哪个为准?
回复:以详图为准,统一为20厚1:2水泥砂浆掺5%防水粉。
25、请明确人防口部装修做法。
回复:参考停车区做法。
26、门窗表中未给出防火门材质,请明确防火门材质。
回复:防火门统一为钢制防火门。
27、节点详图中“注:风井百叶内侧增设竖向栏杆,竖杆20x20方钢@120,高同百叶高”,请提供此栏杆的壁厚。
回复:壁厚2mm.
28、根据建筑说明“5.5.4真石漆饰面【本工程无此内容】”本工程无真石漆做法,地下室工程做法中外墙面1为真石漆墙面,两者矛盾,请明确以哪个为准?

回复:地下室外墙1按照建筑施工图设计总说明(五)中外墙6无保温装饰砂浆外墙做法。
29、请明确结构图一层结构平面布置图中给出的刚性地坪做法是否与建筑给出的地坪做法重复?

回复:不重复,此地坪用于没有顶板的区域,范围如下图所示:

30、根据建筑说明“5.10变形缝(本工程无)”本工程无变形缝,而节点图41节点3给出变形缝做法,请明确本工程是否计入变形缝?
回复:变形缝按照节点图给出做法计入。
31、建筑一层平面图注释中“所有的栏杆及扶手材质均为304拉丝不锈钢”这与栏杆给出的图集做法和大样做法的存在冲突地方,以哪个为准?
回复:栏杆以给出的图集做法和大样做法为准。如下图所示:

32、请提供42号图节点6处钢板网的规格。

回复:此处为热镀锌钢丝网,规格为Φ1,@20X20
33、结构图给出的挡土墙埋深不明确,请明确挡土墙埋深深度。
回复:挡土墙埋深为1.5m。
34、请明确下图箭头所指处混凝土挡墙的混凝土等级。



回复:混凝土等级为C15。
35、集水坑及电梯基坑防水做法请明确。
回复:1.5厚聚合物水泥防水涂料(Ⅱ型)
36、护窗栏杆墙身大样是参考图集15J403-1第C15页H3节点,图纸给出了具体做法,和图集不一致,具体以哪个为准。
回复:按图纸中具体做法。
37、钢雨棚及采光顶的钢结构设计说明“七.3面漆为氟碳漆,面漆颜色深灰色,涂层总厚度不小于200um。腐蚀性等级为轻腐蚀Ⅲ级,腐蚀保护层设计使用年限为15年”涂层厚度是否同国际部统一为240um?
回复:面漆涂层总厚度统一为240um。
38、配电房地面电缆沟做法不明确,请设计明确。
回复:设备基础、埋件角钢详见各单体配电房做法,电缆沟参照开闭所电缆沟做法,具体做法如下:
1、电缆室内壁,底面及外表面用20mm厚1:2.5水泥沙浆抹面,表面平整;
2、电缆沟内外壁及一层底板增设电缆沟内外壁均抹≥0.8mm厚水泥基渗透结晶型防水涂料
3、电缆沟上做成品高强度无机复合盖板,盖板承受荷载不小于4kN/m2
配电房地面做法如下:
1、面层打磨平整刷环氧树脂漆面罩3mm厚
2、40厚C20细石混凝土,内配直径3@50钢丝网片
3、80厚C15混凝土
4、100厚碎石垫层
5、素土夯实
39、请提供砖胎膜及其抹灰做法。
回复:做法参考国际部及图书馆计入。
40、请提供十一层露台处地面做法。
回复:露台地面参考上人保温屋面做法计入。
41、请提供机房层独立柱、梁装修做法。
回复:按照无保温装饰砂浆外墙做法计入。
42、本单体排水沟较多,排水沟篦子做法较乱,请明确排水沟篦子做法。
回复:排水沟篦子统一为不锈钢盖板篦子。
43、建筑说明中的楼梯间做法是否含踏步及休息平台?

回复:不含踏步及休息平台部位。
44、请提供防爆电缆井处铁爬梯做法。

回复:参考15J401 A28、A29页
45、楼梯详图中给出的楼梯栏杆高度与相关说明中给出的楼梯栏杆高度不一致,请明确以哪个为准。
回复:楼梯栏杆斜段与直段距地高1300mm,楼梯靠墙扶手离地高度900mm
(8)地库
1、地下室降水是否计入?
回复:按项列入,投标人根据地勘报告及现场情况自行考虑,中标后此项费用不予调整。
2、地库标识标线目前提供了导视方案及清单,是否按照
合肥六中地下停车场标识标牌清单工程量计入?回复:是。
3、地库基础换填级配碎石范围和工程量请明确?
回复:按暂定量4000m3计入
4、非人防地库与人防地库图纸中,均未见筏板降标高处配筋做法大样图,是否可以参照柱墩局部降标高大样图,请明确?
回复:参照基础图中的注5条《16G101-3》第92页施工。

5、人防筏板中,柱墩(以下截图红色箭头所指的XZD5、XZD10、XZD2)基础平面图与柱墩参数列表中的参数不一致,请明确以何为准?柱墩(XZD11)平面图中有,而柱墩参数列表中无相关参数,请明确?

回复:以平面图为准,B交23轴XZD5修改为XZD8a,B交26轴XZD10修改为XZD10a

6、南侧人防地库筏板和柱墩结构图中,以下的截图中 与体育馆交接的区域,地库图纸与主楼图纸均未表示出此处是筏板基础,请明确此处是否为400mm的筏板基础?


回复.此处详体育与艺术中心,体育中心无地下室,按无地下室没有底板考虑。
7、请明确此处梁标注是否为多余的标注?

回复:是为多余标注,删除。
8、建筑说明5.1.2明确本工程根据地下室顶板、侧墙、底板防水等级按一级设计,设置两道防水:2厚JS型聚合物水泥防水涂料+4.0厚SBS改性沥青防水卷材。防水混凝土抗渗等级P6。与做法表4.防水层:4厚SBS改性沥青防水卷材,聚酯胎低温-20C 5.防水层:1厚水泥基渗透结晶防水涂料(用量≥1.5kg/平米)防水层不一致,以哪个为准?
回复:按工程做法表
9、地下室顶板覆土是否按素土回填?回填厚度是否为1.2m?

回复:1.2米
10、集水坑结构大样图与建筑大样图不一致,是否以结构大样为准?
结构大样如下:

建筑大样如下:

回复:按结构
北侧地库
11、构造柱圈梁等二次结构混凝土强度是否为C25?
回复:均为C25
12、建筑说明门窗表BY0911标注尺寸为1600*1100,是否有误?
回复:图纸有误,均为900*1100
13、建施08中汽车坡道做法与建施02建筑做法表汽车坡道做法不一致,是否以做法表中为准?
回复:以工程做法表中做法为准。
南侧地库
14、根据相关要求人防门需要单独发包,本项目人防门是否在本次招标范围?
回复:在本次招标范围,计入清单。
基坑支护
15、排水沟及集水井内侧抹灰厚度是否为10mm?

回复:是
土方、基坑支护
16、基坑支护1-1剖面图纸中,2-2剖面、4-4剖面、5-5剖面、6-6剖面,图纸中标注“基底未至持力层须按结构设计要求进行换填处理”,请明确基底处理的具体范围和深度以及换填的材料品种?

回复:以结构为准。
(9)生活服务综合楼、平台
1、生活服务综合楼FMY1324、MLC10830a门窗表无具体尺寸?

回复:FMY1324尺寸是为1300*2400,钢制乙级防火门.
2、门窗表中无FMY1021,是何尺寸规格及材质?
回复:尺寸是为1000*2100,钢制乙级防火门
3、门窗表中无FMJ1624,是何尺寸规格及材质?
回复:尺寸是为1600*2400,钢制甲级防火门
4、门窗表中无MD1224,是否为墙洞,其尺寸是否为1200*2400?
回复:是
5、如下图,一层及二层面点房与过道处门洞无标注,是否为墙洞?

回复:为FMJ1524,尺寸是为1500*2400
6、门窗表中无MD1524,是否为墙洞,其尺寸是否为1500*2400?
回复:是
7、门窗表中MLC7452a、MLC7452b,尺寸为7400*3700,但门窗大样尺寸为7400*5200,是否以大样尺寸为准?
回复:是。
8、门窗表中无C1015,是何尺寸规格及材质?
回复:尺寸为1000*1500,金属隔热型材6中透光Low-E+12空气+6.
9、门窗表中无TLM3024,是何尺寸规格及材质?
回复:铝合金玻璃推拉门,尺寸为3000*2400,金属隔热型材6中透光Low-E+12空气+6.
10、如下图所示部位建筑图一二层平面图部位为砌体墙,但装饰图纸标明此处为100系列轻钢龙骨石膏板隔墙,此处具体为何种墙体?
回复:以装饰为准。
11、如下图所示,承台梁两侧砖模是何材质及规格,地梁宽两侧各100mm及底板底10mm是何种填充?

回复:垫层为C15素砼,上面为C30细石混凝土加强,两侧砖模为120煤矸石实心砖。
12、下图圈注处,负一层无墙体,是否要设置窗户?


回复:需要窗户,按图。
13、下图圈注处门窗,负一层为剪力墙,是否为预留洞口?

回复:预留。
14、地下室走道构造做法是否应为底板3、内墙3及棚2?
回复:是
15、架空层顶棚岩棉板厚度为50mm,地下室棚2岩棉板厚度为40mm,以哪个为准?
回复:50mm厚。
16、地下室设备用房(泵房、湿式报警阀间等有水房间)墙面及顶棚做法是否为内墙3及棚1?
回复:是
17、地下室消防水池顶棚做法是否为棚1?
回复:棚3
18、地下室保洁间装饰做法是否为同厨房做法?
回复:是
19、地下室鱼类、蔬菜、水果、肉类加工区、毛菜库、冷冻库、冷藏库装饰做法是否为同厨房做法?
回复:是
20、地下室充值+服务装饰做法是否为同休息吧、商店、走道楼梯间、吧台售卖、仓库、烘焙做法?
回复:是
21、地下室办公+休息装饰做法是否为同休息吧、商店、走道楼梯间、吧台售卖、仓库、烘焙做法?
回复:是
22、地下室库房、副食库及主食库装饰做法是否为同休息吧、商店、走道楼梯间、吧台售卖、仓库、烘焙做法?
回复:是
23、地下室垃圾库装饰做法是否为同设备用房(泵房、湿式报警阀间等有水房间)做法?
回复:是
24、地下室验货区装饰做法是否为同休息吧、商店、走道楼梯间、吧台售卖、仓库、烘焙做法?
回复:是
25、地下室化验室装饰做法是否为同设备用房(泵房、湿式报警阀间等有水房间)做法设备用房(泵房、湿式报警阀间等有水房间)做法?
回复:是
26、地下室备餐间装饰做法是否为同设备用房(泵房、湿式报警阀间等有水房间)做法?
回复:是
27、地下室工具间装饰做法是否为同休息吧、商店、走道楼梯间、吧台售卖、仓库、烘焙做法?
回复:是
28、二层楼3及楼4都包含办公室,办公室楼面做法具体为何做法?
回复:楼4
29、如下图圈注处,四层此处是何功能房间?
回复:烹饪教室

平台一
30、请明确二层结构布置图中这几处采用哪个节点?是否均为节点3/-?



回复:大样请结合建施17,为挑板。
31、平台一下沉广场处底板及侧墙做法为何?
回复:同相邻地下室做法。
32、平台一室外台阶中间栏杆高度是多少?
回复:同平台二,高1100mm。
33、如下图圈注处。大台阶结构图纸中无花池挡墙结构详图,请补充。

回复:站板板厚150厚,C10@150双层双向。
34、地库通风用房装修做法是否同后勤管理用房装修做法?
回复:地库通风用房不做装修,为毛坯房间。
35、柱平面布置图结施-05/08C区楼层表梁、板混凝土强度与一、二层中楼层表梁、板混凝土强度不一致,以哪个为准?
?

回复:以一、二层中楼层表为准。
平台二
36、如下图圈注处。大台阶结构图纸中无花池挡墙结构详图,请补充。

回复:站板板厚150厚,C10@150双层双向。
37、结施03中,独立基础表中与平面图中尺寸均不一致,请设计复核



回复:平面为准。
38、结施005中下图箭头所示位置是否为GZ2,如不是,请明确

回复:是GZ2
39、结构设计总说明中关于基础混凝土等级描述与结构平面图中不一致,请明确以何为准?


回复:为C30。
40、节能设计说明中保温,找坡等做法与装修做法表中不一致,是否以做法表为准?
回复:以做法表为准。


41、花池做法是否同平台一种植屋面?
回复:是。
42、灰白色穿孔铝板墙面基层做法是否同外墙1?
回复:是。
43、室外柱做法是否同平台一做法?
回复:是。
天桥钢结构:
44、预应力高强混凝土管桩桩基说明中承台混凝土等级为C30,天桥承台平面布置图中注明承台、承台梁及桩头填芯混凝土强度等级均为C35,以何为准?


回复:为C30。
45、GZ1外包式柱脚顶标高未明确,请明确;
回复:GZ1外包式柱脚顶标高为基础顶标高+2.1m。
(10)宿舍楼
1、男生宿舍楼1-6层活动室(建筑图)的装饰隔断(见下图)是否在招标范围内(装饰图纸无此隔断图纸)?如是,请提供图纸明确做法。

回复:隔断取消,不在本次招标范围内。
2、成品镜子、成品浴帘是否在招标范围内?如是,请明确材料规格与做法。
回复:公共卫生间镜子在本次招标范围内,宿舍五人间的阳台的镜子已取消。镜子的宽度为1100mm. 距地1米1,长度与洗手台或盥洗槽长度一致,安装方法为用结构胶固定在18mm厚阻燃板基层上。成品浴帘不在本次招标范围内。
3、阳台区域窗户处是否需要设置窗帘盒?
回复: 不需要设置窗帘盒。
4、屋面砖砌挡墙材料是否参考墙体材料,使用煤矸石空心砖?
回复:煤矸石实心砖砌筑。
5、架空层区域地面做法,是否参考一层室外走廊和台阶,按花岗岩面层做法施工?
回复:可以
6、屋顶平面图中,部分屋面区域(见下图箭头处)未注明屋面做法,是否按屋面1做法计入?

回复:按屋面1
7、请明确男女生宿舍楼铝单板吊顶做法。
回复:铝单板厚度为2mm,做法详见下图
8、男女生宿舍楼铝方通吊顶大样图中铝方通尺寸为50mm*80mm,做法表及材料表中标注为50mm*100mm,以哪个为准?
回复:50mm*100mm
9、男女生宿舍楼铝扣板吊顶大样图中铝扣板尺寸为600mm*600mm,做法表及材料表中标注为300mm*600mm,以哪个为准?
回复:300mm*600mm
10、浴室区域地面需“300厚C20轻集料混凝土填充”,是否有误?
回复:采用300厚轻质混凝土(容重不大于6)填至建筑标高。
11、建筑装修做法表中顶棚做法未明确浴室区域做法,是否同卫生间做法?
回复:顶棚做法在建筑做法上另加装饰做法300mm*600mm*0.8厚铝扣板。
12、男、女生宿舍外墙(阳台区域内,见下图),此处墙面是按照外墙1装饰砂浆做法还是按照阳台精装修600*300墙面砖做法?

回复:宿舍阳台设置保温材料的一侧用50*50*5镀锌角钢基架安装12mm厚纤维水泥板挂钢丝网片贴300*600墙砖。。
13、依据图纸设计,男女生宿舍楼阳台外墙面不设置保温材料,是否合理?
回复:男女生宿舍楼的保温设置在阳台内的。
(11)教师值班楼
1、结构施工图设计总说明第4.2条墙柱梁板混凝土强度强度等级与结构图楼层表中混凝土强度强度等级不一致,请设计明确以哪个为准。二次结构混凝土强度等级是否参照结构施工图设计总说明第4.2条强度等级都为C25?


回复:以结构图楼层表中为准。二次结构混凝土强度等级参照结构施工图设计总说明第4.2条,修改如下:

2、如下图所示,集水坑大样图,结构图跟建筑图尺寸不一致,请设计明确以哪个为准。


回复:以结构为准。
3、如下图所示教室值班室建筑图一层平面图中轴6与轴F交接处,是否为填充墙?无节点图,请设计明确其尺寸信息。

回复:填充墙
4、教室值班室建筑图二层平面图中轴2~轴6间,下图所示是否为填充墙?

回复:填充墙
5、结构图中二层结构平面布置图中节点1挑耳大样图尺寸为长300mm*宽150mm,建筑图中节点大样图中,此处尺寸为长200mm*宽100mm,请设计明确以哪个尺寸为准,其他楼层处挑耳尺寸是否同该楼层?

回复:此处挑耳大样无错误。下图详墙身大样图。

6、结构图墙身大样详图中,节点37-1,37-2的空调板厚度均为100mm,建筑图墙身大样详图中,节点32-1,32-2处三层的空调板为100mm,其他楼层为120mm,请设计明确以哪个为准。


回复:以结构图为准。
7、建筑图十一层平面图中轴6与轴L处窗C2520在门窗表及门窗大样中无尺寸信息,请设计明确其尺寸信息、离地高度及材质。

回复: 回复:2500x2000,据地1.2m,材质同其他窗户
8、四层阳台降板处用素混凝土填充,未明确混凝土强度等级,请设计明确。

回复: C25
9、一层二层如下图箭头所示部位内部是否需要装饰,请设计明确。

回复:外部见建筑外立面,内部无需装饰
10、雨棚板上下面及女儿墙内侧是否需要装饰,请设计明确。
回复:仿石材装饰砂浆
11、建筑施工图设计总说明(五)室内工程做法表中,阳台无墙面做法,请设计明确。
回复:同卫生间、盥洗间做法
12、一层室内墙面抹灰面层装饰是否从设计室内标高开始算起,还是从底板面开始算起,请设计明确。
回复:室内标高开始算起
13、地下室工程做法表,墙面做法表中,无配电房墙面的做法,请设计明确。
回复:内墙一
14、地下室工程做法表,天棚做法表中,无强电井、弱电井、风井、设备机房、走道、配电房、报警阀间的做法,请设计明确。
回复
15、地下室工程做法表,踢脚做法表中,只有前室、楼梯间、配电房踢脚做法,其他房间踢脚是否无需布置,请设计明确。
回复:其他房间踢1,停车区踢
2

16、门窗表中MLC2尺寸为2900mm*2900m,门窗大样图中MLC2尺寸为3000mm*3200mm,请设计明确以哪个尺寸为准。


回复:3000mm*3200mm
17、建筑图一层平面图中轴6与轴E处窗C1510在门窗表及门窗大样中无尺寸信息,请设计明确其尺寸信息、离地高度及材质。

回复:铝合金防雨百叶窗,1500宽,1000高,底标高室内正负零处
18、建筑图二层平面图中轴2与轴B处窗C5728a在门窗表及门窗大样中无尺寸信息,请设计明确其尺寸信息、离地高度及材质。

回复:详见大样,建施10,材质同C5728
19、FM甲0720和M1824无门窗大样图,请补充。
回复:详见下图


20、地下室工程做法表,地面做法表中,无强电井、弱电井、走道、前室、各人防口部的做法,请设计明确。
回复:同地下室做法表中的地面2

21、建筑图纸中,机房层如下图箭头所示部位有板,此处架空板天棚做法,请设计明确。

回复:同屋顶层做法表中的顶棚1,详见下图

22、建筑图纸中,室外工程装修做法表中非机动车坡道外墙做法为外墙二、节点大样图中非机动车坡道外墙做法如下图箭头所示、地下室工程做法表中非机动车坡道外墙做法为外墙一,三种做法不一致,请设计明确非机动车坡道外墙做法。



回复:以节点大样做法为准,做法如下

23、如下图箭头所示,地上顶棚二做法1、2所用材料及做法是否同地下室天棚一做法1、3一样,请设计明确。


回复:一样。
24、如下图箭头所示,穿孔铝板后面是否需要做装饰砂浆,请设计明确。

回复:需要。
25、如下图箭头所示,地下室钢爬梯做法参照哪个图集,请设计明确。

回复:参照图集15J401第A28,A29页
26、如下图箭头所示,装饰图纸做法表中,防滑地砖做法中的防水跟建筑装饰做法有重复,请设计明确装饰做法表中此处是否需要做防水。

回复: 防水做法详见建筑专业图,装饰不重复做防水,此处防水涂料取消,在建筑专业完成面上重新做20厚水泥砂浆找平,贴防滑砖
27、如下图箭头所示,装饰图纸做法表中,墙砖墙面(带防水层)做法中的防水跟建筑装饰做法有重复,请设计明确装饰做法表中此处是否需要做防水。

回复:防水做法详见建筑专业图,装饰不重复做防水,此处防水涂料取消
28、装饰图纸做法表中,缺少踢脚的装饰做法,请设计明确。
回复 : 踢脚线材质与地面材质一致,环氧磨石地面做成品环氧磨石踢脚,花岗岩地面做花岗岩踢脚线,塑胶地面做塑胶踢脚线,防滑地砖地面墙砖墙面房间不做踢脚线, 地砖地面无机涂料墙面房间做地砖踢脚线。
塑胶踢脚线做法:2.5厚塑胶地板,用专用粘贴剂粘贴;塑胶用背衬式1.5mm厚100mmPVC收口条
花岗岩踢脚线做法:1.原建筑完成面
2. 30厚1:3干硬性水泥砂浆结合层,表面撒水泥粉
3. A级30厚大理石/花岗岩石材贴面,镜面结晶处理
地砖踢脚线做法:1.原建筑完成面
2.300*100mm高地砖,专用胶粘贴,贴前充分浸湿
29、装饰图纸做法表中,缺少吊顶天棚的做法,请设计明确。
回复:已补充 ,详见下图



30、装饰图纸施工说明(三),300mm*600mm防滑砖厚度未明确未明确厚度,请设计明确。

回复:12厚
31、装饰图纸施工说明(三),花岗岩地面做法中干硬性水泥砂浆结合层未明确厚度,请设计明确。

回复:20-30mm厚
32、装饰图纸施工说明(三),无防静电活动地板地面做法,请设计明确。
回复:先做环氧磨石 再做防静电地板,具体详见一层地面铺装图和大样图
33、装饰图纸施工说明(三),300mm*600mm墙砖厚度未明确,请设计明确。

回复:10厚
34、装饰图纸施工说明(三),无白色乳胶漆墙面做法,请设计明确。
回复:已补充
35、装饰图纸施工说明(三),无原顶白色防水涂料饰面顶棚做法,请设计明确。
回复:已补充
36、装饰图纸施工说明(三),无1200*2400*2.0厚铝板吊顶做法,请设计明确。
回复:已补充
37、装饰图纸施工说明(三),原顶无机涂料饰面做法中如下图箭头所示,混合砂浆的厚度及配合比,请设计明确。

回复:已补充
38、装饰图纸中,各钢质门的材质未明确,门板壁厚、门框厚等,请设计明确。

回复:所有门均为钢质门,门扇钢板壁厚1mm厚,门框1.5mm厚
39、装饰图纸中,建筑中门窗尺寸与装饰门窗不对应,请设计明确。

回复:已修改,详见下图
40、装饰图纸中,窗帘盒无具体做法,请设计明确。
回复:已补充

41、装饰图纸中,下图所示浅咖纹理大理石无具体厚度,请设计明确。

回复:15mm厚。
42、装饰图纸中,无障碍卫生间的抓杆无具体做法,请设计明确。

回复:参照图集《12J926》J16页
43、装饰图纸中,成品窗帘是否在本次招标范围内,若是,请设计明确其做法材质。

回复:不在招标范围
44、装饰图纸中,双人宿舍卫生间浴帘杆、成品毛巾架,无障碍卫生间呼叫按钮无具体做法,请设计明确其做法材质。
回复:均选购成品。
45、建筑装饰做法表中,消防控制室地面做法面层为防静电活动地板,精装做法表中做法表里重复了面层防静电活动地板,做法是否重复,请设计明确。
回复:抹灰做法见建筑装饰做法表,面层做法见精装装饰做法表。
46、非机动车坡道出口的防倒塌棚架,05SFJ05图集未明确具体钢材尺寸规格型号,该倒塌棚架是否在本次招标范围内,若是,请设计明确防倒塌棚架具体钢材尺寸规格型号。

回复:在本次招标范围内。建筑、结构图集,抗力级别为6级。

47、教室值班楼精装修图纸中无强电井、弱电井、水井的装饰做法,请设计明确。
回复:地面做法:300*300*12mm地砖,具体详见下图

;墙面顶棚面层为白色无机涂料,具体做法详见精装装饰做法表。
48、教室值班楼精装修图纸中无门槛石做法,请设计明确。
回复:所有内门均做20mm厚深啡网纹大理石门槛石;30厚1:3干硬性水泥砂浆结合层,表面撒水泥粉。
49、教室值班楼精装图纸中墙砖做法中的抹灰,如下图箭头所示,是否跟建筑抹灰重复,是否可以取消,请设计明确。

回复:取消6厚1:1:6水泥石灰膏砂浆和6厚1:0.5:2.5水泥石灰膏砂浆做法,具体抹灰做法以建筑抹灰做法为准。
50、共性答疑中,地库地面改为金刚砂地面,教室值班楼人防地下室是否所有地面都改为金刚砂地面做法,请设计明确。
回复:停车区地面改为金刚砂地面做法,其他房间做法不变。
51、包管构造做法装饰图纸中有两种做法,请设计明确具体如何选用?

回复:修改如下图所示

52、教室值班楼精装图纸中涂料墙面、乳胶漆墙面中做法中的抹灰,如下图箭头所示,是否跟建筑抹灰重复,是否可以取消,请设计明确。

回复:不取消
53、教室值班楼精装图纸中涂料平顶中做法中的抹灰,如下图箭头所示,是否跟建筑抹灰重复,是否可以取消,请设计明确。

回复:不取消
54、教室值班楼地下车库配电房地面电缆沟无具体做法,请设计明确。
回复:设备基础、埋件角钢详见各单体配电房做法,电缆沟参照开闭所电缆沟做法,具体做法如下:
1、电缆沟内壁,底面及外表面用20厚1:2.5水泥沙浆抹面,表面平整;
2、电缆沟内外壁及一层底板增设电缆沟内外壁均抹≥0.8mm厚水泥基渗透结晶型防水涂料
3、电缆沟上做成品高强度无机复合盖板,盖板承受荷载不小于4kN/m2
配电间地面做法如下:
1、面层打磨平整刷环氧树脂漆面罩3mm厚,同时设黄色疏散指示标志
2、40厚C20细石混凝土,内配直径3@50钢丝网片
3、水泥浆一道(内掺建筑胶)
4、钢筋混凝土楼板
(12)大门
1、 南大门屋顶平面图:6+1.56PVB+6+12A+6夹胶中空玻璃是否计入,若计入请补充详图;
回复:不计入。
2、 南大门电动伸缩门是否计入,请明确;
回复:计入。
3、值班室卫生间内门是否计入,若计入,请明确材质尺寸;
回复:计入,材质木门,已补入门窗大样
4、卫生间砖墙的高度请明确;
回复:3000高
5、请提供南大门电动伸缩门的具体参数;
回复:详见截图

6、女儿墙内侧装饰做法,请明确;
回复:见截图

7、南大门屋顶平面图:6+1.56PVB+6+12A+6夹胶中空玻璃是否计入,若计入请补充详图;
回复:不计入
8、南大门电动伸缩门是否计入,请明确;
回复:计入
9、 值班室卫生间内门是否计入,若计入,请明确材质尺寸;
回复:计入 木门 800*2100
10、有砖胎膜的筏板垫层需要出砖胎膜100mm;
回复:无
11、无卫生间装饰做法,请明确是否计入;
回复:建筑室内做法以明确
12、卫生间砖墙的高度请明确;
回复:到砖墙顶3000
13、请提供南大门电动伸缩门的具体参数;
回复:

14、女儿墙内侧装饰做法,请明确;
回复:

15、幕墙图缺少吊顶做法节点,仿木色铝方通(300X150)+白色磨砂有机玻璃板和铜制LOGO(少怀壮志,锐意成才)无节点;
回复:南大门铝方管做法见节点22.铜制logo做法同此节点。
16、地面做法是否和之前的又对不上了?现在版本
之前版本
,是否在此基础上增加此装饰做法?
回复:在此基础上增加装饰做法。
17、“合肥市第六中学”文字是否含在本次招标范围?若在请明确材质及大小。
回复:文字大小:在1.2m*1.2m方格内根据文字大小布置,材质为铜制。
(13)开闭所
1、雨棚板上下面及女儿墙内侧是否需要装饰,请设计明确。
回复:不需要。
2、开闭无踢脚抹灰,请设计明确。
回复:详见下图

3、室内装饰表中,如下图箭头所示,除楼梯间外楼地面面层刷浅灰色环氧树脂漆面罩与立面图剖面图中地面做法不一致,请设计明确。


回复:变电所地面做法见皖2007J301-12/9(打磨平整刷环氧树脂漆面罩3mm厚,同时设黄色疏散指示标志)
4、开闭所无楼梯及楼梯间地面装饰做法,请设计明确。
回复:详见下图

5、开闭所一层底板处是否需要做抹灰及防水,请设计明确。
回复:电缆沟内壁,底面及外表面用1:2.5水泥沙浆抹面,表面平整;电缆沟内外壁均抹≥0.8mm厚水泥基渗透结晶型防水涂料。
6、开闭所电缆沟800*1000,600*600做法,请设计明确。
回复:电缆沟为泡沫混凝土,做法详结构图,电缆沟内外壁增设电缆沟内外壁均抹≥0.8mm厚水泥基渗透结晶型防水涂料。
7、开闭所泡沫混凝土强度为多少,请设计明确。

8、开闭所电缆沟盖板做法,请设计明确。

回复:电缆沟盖板采用成品高强度无机复合盖板,盖板承受荷载不小于4kN/m2。
9、开闭所外墙做法表中外墙面层为涂料面层,外立面图外墙面层做法为装饰砂浆,请设计明确以哪个为准。


回复:装饰砂浆。
10、开闭所一层开闭所地面无素土夯实,地面做法是否同二层开闭所楼面1做法。


回复:开闭所一层二层地面统一为下图做法。

11、电缆沟盖板旁的角钢无具体做法,请设计明确。

回复:详见下图

(14)室外景观、绿化
绿化部分
1、教学楼立体绿化部分,钢骨架部分计入各单体建筑,苗木栽植立体绿化面积不详
回复:按照420m2每栋计入绿化,苗木种类见清单描述,共1260m2.
园建部分
1、景结施03/08校园围墙基础做法为变量,不详,且各个基础剖面所对应的围墙段不明?图纸上所描述的内外墙高差,在图纸上未标注,无法测算高差并确定做法?悬臂式挡墙做法不详?无法计算围墙工程量。
回复:补充平面图的标高,详见LP6.0竖向定位图;可按照校园内外高差平均值计算围墙高度,挡土墙做法结合图集及补充挡土墙截面图纸(挡土墙底部做100厚C15垫层)。
1、东区南侧挡墙按照外测标高35.86与内侧38.4相差2.24米。基础需埋深2m,挡土墙选用4.5m高,长度详见LP6.0竖向定位图围墙范围示意;
2、东区东侧围墙按照外侧标高34.9与内侧38.5相差3.6m,基础埋深2m,需选用6m高挡土墙,东区北侧-45中相邻段,按照外侧标高35.28m与内侧38.9m相差3.62m,基础埋深2m,需选用6米高挡土墙,长度详见LP6.0竖向定位图围墙范围示意;
3、与45中相邻段,采用基础埋深0.78米,基础露出地面0.3m,长度详见LP6.0竖向定位图围墙范围示意;
4、校园内外高差差异<0.3m,选用标准段围墙基础图,埋深1.5m,基础露出地面30cm,长度依据图纸;
5、剩余段校园内外高差0.4~1.5之间,选用标准段围墙基础图,埋深1.5m,根据内外标高平均值计量围墙高度。
![]() |
回复:基础埋深统一按照-2米考虑,平均计算基础柱高度。
景亭基础按照埋深最深的基础统一计量。景观步道基础根据步道的不同段地面标高统一按照基础埋深2m,平均计算不同深度的独立柱工程量。
基础图中所注基础梁按照出基础面200计量,底部与基础平齐
3、景结施06/08、07/08中基础剖面图与基础结构图不对应?
回复:碎石垫层及C15垫层及柱均按照剖面图计量,下图所框部位按照结构图中平面图及高度计量。

4、新清单编制中从老校区迁移的物品(景石、地雕)均没有详细规格参数和体量,设计亦未能提供具体工程量及相关参数、做法,故此部分按项列入清单。

5、校园内足球场、篮球场、羽毛球场、排球场网架、岗亭、花箱是都均计入清单?电动伸缩门及人行道闸是否计入清单?
回复:所有网架、岗亭、花箱等均计入清单,电动伸缩门及人行道闸计入智能化,不包含在景观范围内
6、足球场盲沟做法,盲沟部分是否为碎石回填?盲沟排水管做法?
回复:盲沟部分为碎石回填,盲沟排水管做法依据水图及答疑。

7、篮球场、羽毛球场、排球场围网立面单元及基础做法有冲突,以哪个图为准?


回复:立面单元做法以LD9.1-2/3做法为准,大门做法,参照LD9.1-1/3,基础做法以LD9.1-1/4为准。
8、LD11.4-3国际部庭院的花钵柱压顶混凝土标号不详?

回复:C20素砼压顶,厚度200
9、北侧大台阶LD1.2-5中的垂直绿化墙,平面图不详,具体面积不详?

回复:按照最上一层台阶的长度乘以高度计算
10、LD1.2-10北侧大台阶新建种植池部分,基础埋深不详?
回复:按照埋深1.2m计量

11、LD1.2-8/3垂直绿化墙中的主题字及木质相框工程量不详,主题字暂列一项,木质相框按照40个计量?

回复:是的,按40个计量。
12、LD1.2-10墙体之间的混凝土做法?

回复:商品砼C20浇筑
13、示意图中的进水口及溢流渠做法不详,无法计量?


回复:取消进水口与溢流渠做法,具体做法详见下图

14、雨水口做法缺少横向剖面图?

回复:

15、景观步道二结构板侧面做法不详

回复:

16、垂直仿真绿化墙中所示主题墙标题及木质相框工程量不详?

回复:主题按照一项列清单,木制相框按照40个列入清单。
17、绿化苗木表中的风景石数量,与家具布点图中的风景石数量不一致?


回复:以家具布点图中的数量、规格为准。
排水工程
1、废水管及检查井图纸说明中没有明确管道材质、做法等?
回复:废水管及检查井做法与污水管材质、规格、管道基础、回填做法等均与污水管道相同。
2、管道基础做法图纸描述中两处不一致?


回复:按照150mm厚砂垫层计量
3、雨水口至检查井的管径图纸说明中有矛盾?


回复:统一按照HDPE 管,DN250计量。
4、下图中管道材质,及埋设方式?

回复:YW是压力污水,都是地下室出来的热镀锌钢管。铺设方式及回填做法与排水管道相同。
地上未见管径标注,全部按照热镀锌钢管DN150计入清单。
5、图纸中隔油池及预消毒池没有做法?

回复:隔油池做法参见图集04S519;预消毒池做法与隔油池相同,去掉中间隔墙即可。
6、位于市政道路上的检查井是否包含在本次清单范围内?

回复:不在清单编制范围内。
7、足球场内的滤水管尺寸、做法不详?
回复:HDPE150穿孔排水管,做法参见15SS510,P55页


8、HDPE 线性排水沟的基础混凝土标号不详?

回复:商品砼C30
9、中水的处理系统构筑物没有施工图?

回复:补充中水处理站图纸,见补图。
10、酸碱中和池图纸所见图集已废止。

回复:按照此图集做法计量。
11、市政道路上的检查井不计量,图中所示管道管径未标注?

回复:检查井不计量。上图所示连接管更换为DN900的管道。
12、图中未标注的管道及检查井请明确?

回复:按照DN300管道计入本次清单。
13、排水图纸中雨水口及盖板做法与景观图纸中尺寸不对应?
回复:按照景观图纸中的的雨水口及雨水口盖板做法计量。
铺装及绿化区域的雨水口盖板做法参照景观图纸,沥青道路部分的雨水口盖板参照16S518-64、65页,D400承载能力的做法施工。
14、雨污水管道接入市政管道中需破除现有沥青道路,此部分工程量暂按照100m2市政道路的破除与恢复计入清单。
15、图纸中所示盖板沟做法?

回复:HDPE成品排水沟,不锈钢盖板,做法详见图纸,基础按照800宽计量。
16、篮球场、羽毛球场地库边缘加固部分级配碎石回填量无法计算?

回复:级配碎石回填量594m3
17、篮球场、羽毛球场地库边缘加固范围?

18、足球场排水管按照修改后做法计量?
回复:是


道路工程部分
1、粘层油的具体材质及用量等不详?
回复:粘层采用阳离子改性乳化沥青(PCR),用量宜为0.5L/m2
2、缩缝满铺防裂贴的具体要求、宽度?
回复:见下图,宽度缝两侧各50cm

3、沟塘回填部分在平面图中未标注,此部分回填做法无法计量?

回复:沟塘底部回填按照600m3碎石回填处理计量
4、沟塘挖除淤泥后的4%石灰土回填及路基处理部分石灰土工程量无法计量?

回复:此部分4%石灰土回填按照33196m3(路基回填工程量)后计入路基处理工程量。
5、沥青混凝土铺设是否考虑与原有市政道路交界面的施工处理,具体如何施工?
回复:按照图纸所示施工范围进行沥青施工,不考虑交接面施工方案。
6、沥青道路路牙石按照道路图纸提供的详图施工?

回复:是的,沥青道路的路牙石按照道路提供做法施工。
导视系统部分
1、导视系统有两套方案,清单以统计表格提供的样式及数量计入清单?
回复:按照表格所列对应的标牌样式及数量计入清单。
2、楼栋牌尺寸不详?
回复:与建筑物外墙相匹配,高1-2米不等,造型详图纸
3、楼层牌尺寸不详?
回复:楼层数字高度30cm,宽度同比例
3、班级门牌材质不详?
回复:2.0mm铝型材,牌面可更换
4、禁止牌、花草牌材质不详?
回复:2.0mm不锈钢折弯、焊接成型
安装部分
范围问题:
1.电开水器、教学楼化学实验室化验盆、宿舍洗衣机是否后期单独采购,不在本次招标范围。
回复:后期单独采购。
2. 智能化是否仅计入桥架及预留预埋。
回复:是。
3. 请明确人防地库战时计算范围。
回复:人防地下车库战时计算范围:1、套管等预留预埋;2、战时电气系统:平时安装的配管配线、电缆、配电箱等;通风方式控制信号系统、战时通讯系统;3、战时给水系统:平时安装到位(除战时水箱、冷却水箱外),口部冲洗阀安装到位,并在安装水箱的位置预留三通;4、战时排水:平时安装的管道、阀门、设备等,防爆地漏;5、战时通风系统:全部计入。
共性问题:
1. 如下图所示,电动挡烟垂壁控制箱(厂家配套)的进线电源回路未设计管线,请问是否也由厂家配套。

回复:电动挡烟垂进线为WDZBN-BYJ-3x2.5-JDG20-WC,CC。
2.请明确地漏的材质。
回复:不锈钢。
3.请明确卫生间清扫口的材质。
回复:不锈钢。
4.所有给排水系统的底层单排、埋地排出管材质是否同立管,请明确。

![]()
![]()
回复:(1)污水、雨水、冷凝水底层单排、埋地排出管材质同立管。
(2)生活给水管均采用薄壁不锈钢管,计到室外阀门井处。
(3)中水管埋地部分采用PE给水管。
5.智能化工程本次只计桥架及预留预埋,宿舍能耗管理系统、建筑智能设备控制与节能系统、智能照明控制系统是否只计预埋管,请明确。
回复:是,仅计预埋管。
6.本工程各单体空调冷媒平面图中冷媒管道规格、屋面冷媒管桥架均未标注,仅提供配管选择表,因冷媒配管及分歧管管径型号是以空调厂家配套为准,冷媒管是否按项计入?请明确。
回复:由空调厂家配套提供,本次按项计入。
7.是否所有风管式室内机均设备自带回风箱,请明确。
回复:是。
8.如下图所示,计算机控制系统、单独的计量系统图纸设计为由空调厂家配套提供,能否提供具体技术要求及配置。

![]()
回复:计量仅为空调用电量计量,详电气图纸。本次设计不考虑计算机控制系统及计量系统,投标单位需根据用户使用需求后期综合考虑,清单不单独列项。
9.加压送风及排烟风管是否均需设置防火保护措施,如需请明确防护材质及参数。
回复:采用9mm纤维增强硅酸盐防火板包裹,防火性能达到180min内可以保持完整性和稳定性。
10.请明确本工程装饰灯具计数时是否均以内装顶面布置图灯具为准。
回复:以内装顶面布置灯具图为准。
11.本工程所有单体设计说明均要求吊顶内的金属管道需做防结露保温,请问是否按此要求计入,如计入需明确防结露保温的厚度。
回复:仅吊顶内的冷媒水管需做防结露保温,防结露采用柔性泡沫橡塑制品,小于等于DN25的管道防结露保温厚度为20mm,大于DN25的管道防结露保温的厚度为25mm,详见图集16S401,44页。
12.电梯井道灯缺少型号说明,请补充。
回复:18W防水防尘节能灯(IP2X型,带金属保护罩)。
13.各单体吊扇叶片是否有具体要求。
回复:除图例名称明确为三叶吊风扇外,其它均考虑使用4~5叶吊风扇,由投标人自行勘查现场,根据用户实际使用需求,综合考虑报价,中标后不予调整。
14.因本次智能化工程只计预留预埋,请明确电梯是否需考虑与智能化配套的功能要求。
回复:智能化系统中包含梯控功能,电梯厂家需预留梯控读卡器安装位置,电梯摄像机的安装位置,且电梯需具备五方对讲功能。
15.图纸喷淋系统喷头安装示意图,部分吊顶区域需按规范要求设备上下喷头,但设计说明未明确且平面图设计无法区分也无法准确计算上下喷头工程量,请明确如何考虑。
回复:工程量按图示计入。部分区域需结合装饰图纸按规范要求设置上下喷头,增加的工程量由投标单位自行勘查现场,结合现场实际施工需要及规范要求,综合考虑报价,中标后不予调整。
16.亮化工程工程量在图纸上无法准确计量,本次如何考虑。
回复:本次亮化工程工程量均以主要材料汇总表为准;亮化配电箱及进线电缆计入强电工程。
个性问题:
1.下图中箭头所指风管立管高度为多少。

回复:乙字弯下弯,两侧风管高差190mm,如下图。

2. 请补充1#教学楼风管式室内机性能表。
回复:补充相关参数,如下图。


3.下图中6层风口缺少型号标注,请补充。

回复:此处风口为双层百叶风口(带调节阀),尺寸320X120。
4.给水系统中1JL-2立管下图部分缺少管径标注,请补充。

回复:DN80。
5.给水系统中3JL-2下图横支管位于系统图中的6F,与平面图中的5F不相符,请设计明确以哪个为准。

回复:以5F为准。
6.废水系统FL-A中下图所示管段用何种材质的管材。

回复:PVC-V。
7.WL-1一层平面排出管管径标注DN150与系统图不一致,以哪个为准。
回复:以系统图为准,为DN100。
8.雨水系统平面图中存在YL-22/23,系统中缺少,请补充说明。
回复:系统图YL-1~21改为YL-1~23。
9. 空调冷凝水立管在暖通图纸中型号为DN50,水图中系统图标注为DN75,平面图中标注为DN50,请问哪个图纸的为准。
回复:DN50。
10.配电柜AKZ出线干线电缆是系统图中的WDZB-YJY-4x50+1X25还是干线图中的WDZB-YJY-4x35+1x16。
回复:出线干线电缆是系统图中的WDZB-YJY-4x50+1X25。
1.地下室下图所示风管缺少规格标注,请补充。

回复:风管尺寸1000×500;风管尺寸630×1250。
2.地下室正压送风系统下图所示风口缺少名称与型号说明,请补充。

回复:单层活动百叶风口,尺寸800×320。
3.10层正压系统下图所示风管缺少规格标注,请补充。

回复:风管尺寸800×400。
4.-1ATPY配电箱以下回路平面图中缺失,请补充。
回复:如下图。

5.Nhx配电箱系统图为4个回路,平面图中为5个回路,请修改系统图。配电箱命名是否以N+教室名小写为准。
回复:如下图。配电箱命名是以N+教室名小写为准。

6、2层下图回路不通,请问接自那个配电箱回路。
回复:接实验室灯,如下图。

7、11层N14配电箱缺少系统图,请补充。

回复:按审图意见此类小箱调整为单相进线,如下图。
8.2层公共卫生间照明与插座回路缺少系统图,请补充。
回复:配电箱2ALg增加以下回路,
9.强、弱电井内的照明缺少系统图回路,请补充。
回复:在2ALg增加两个回路,分别是-1~12层强弱电井照明。
10.3~12层男卫公共照明是否在nAlg的卫生间照明回路上,平面图中回路不通,请问是否图纸有误。
回复:男女卫生间照明共用一回路。
11.消防报警系统中压力开关起泵控制线配管型号以下面截图中哪个为准。

回复:室内JDG25,室外SC32。
12.屋面自喷系统中下图说是阀门是否为闸阀,请标注管径型号。

回复:DN100,闸阀。
13.实验准备室中台盆、紧急冲洗眼器此次是否计入。
回复:不计入。
14.集水坑1排水系统图中管径与平面图纸不一致,以哪个为准。

回复:以平面图为准。
15. 请问以下稳压泵与气压罐是否含在水箱内,与水箱一起形成箱泵一体化设备。
回复:是。
女生宿舍楼:
1.屋顶防雷平面图:下图中的灯具名称、规格及型号请明示。
![]()
回复:LED吸顶灯 220V 21w。
2.屋顶部分桥架规格及安装方式未标注,请明示。
回复:屋顶室内部分200x100金属桥架梁下吊装,室外部分200x100防水金属桥架据地300mm安装。
3.无配电箱RAPcf系统图,对应的系统图是否为配电箱ACpf,如果是名称以何为准,请明确。
回复:是,名称统一为RAPcf(男生宿舍同此回复)。
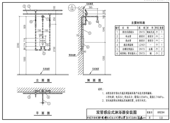
4.请补充宿舍淋浴器的图集选用。
回复:如下图。

2#教学楼
1.一层通风防排烟平面图中预留危险化学药品专室及实验室排风管尺寸未标注,请明确。

回复:本次图纸不体现,仅预留土建风井,化学实验室、药品专室排风系统及其通风柜为专业厂家设计安装,本次仅需按项考虑各专业点位预留。
学术交流中心
1.电动翻板式挡烟垂壁及电动卷帘式挡烟垂壁未提供材质,请明确。
回复:翻板式:A级防火板,卷帘式:无机布。
图书馆+国际部
1.各类型薄形风管天井室内机送风口及回风口尺寸均未提供,请明确。
回复:补充送风口尺寸表,回风口由厂家配套。
2.电动卷帘式挡烟垂壁未提供材质,请明确。
回复:无机布。
食堂
1.电动卷帘式挡烟垂壁未提供材质,请明确。
回复:无机布。
2.屋面设备、管道平面图中,厨房排油烟风机所接风管是否设置防雨百叶,请明确。如下图:

回复:不设置防雨百叶,入口设防虫网。
3.请明确下图中的阀门是否为排烟阀。

回复:此处是常闭排烟阀。
教师值班室
1.机房层桥架规格未标注,请明确。
回复:如下图。

2.一层由强电井至消防控制室处的桥架未标注规格,请明确。
回复:如下图。

3.请补充负一层合用前室照明灯具图例。
回复:如下图。
![]()
4.请补充负一层滤毒室内插座图例。
回复:如下图。
![]()
5.请补充报警阀间防水插座的图例。
回复:如下图。
![]()
科创中心
1. 以下灯具、插座缺少图例说明,请补充。


回复:如下图。
![]()
![]()


![]()
![]()

2.强电井内竖向桥架缺少型号说明,请补充。
回复:500x150竖向金属桥架与300*100竖向防火桥架。
3.科创中心地下室配电房缺少低压配电系统图与平面布置图。
回复:配电房内图纸以电力专项设计为准。
4.配电箱1AL以下回路缺少平面图回路,请补充。

回复:预留大屏回路,每个回路线缆长度按30米。
5.科创中心电动挡烟垂壁未提供材质,请明确。
回复:卷帘式:无机布。
平台一
1. 如下图所示,给水系统图与平面布置图中ZJL-8~9管道的管径标注不一致,请设计明确。


回复:按DN40考虑。
2.请明确防火桥架型号。
回复:200*100金属防火桥架,梁下吊装。
男生宿舍
1.如下图所示,请明确DN150干管接设备的分支管道的规格。
回复:每台燃气炉的进、出水口管径均为DN40。
2.如下图所示,给水干管规格为DN100,热水(热回水)干管规格为DN125,请明确干管接设备的分支管道的规格分别是。

回复:每台热泵机组热水进、出水口管径DN40,冷水进水口的管径是DN20。
3.男、女生宿舍浴室给水系统图备注说明每个淋浴出水管上安装一套感应插卡装置,无具体设计及参数说明,是否随淋浴器配套考虑。
回复:插卡设备详见智能化图纸,本次不考虑。
4.如下图所示,男、女宿舍热水系统图屋顶处管道标注为DN100及DN50,但空气能热泵热水系统图原理图及材料表标注为DN150及DN80的回水的电磁阀,请明确以何为准。

回复:以系统图为准。
5.男、女生宿舍空气能热泵热水系统(4-6层)主要设备材料表4为回水电磁阀一台与原理图一致,但空气能热泵热水系统(1-3层)主要材料表4为回水增压泵两台与原理图不一致;请明确材料表差异是否有误。
回复:材料表有误,无回水增压泵。
体育与艺术中心:
1.游泳池上方是何种灯具,请明确。

回复:1.泳池专用灯具,详见泳池顶面剖面图,参数参考下图。
2.下图中是否为软膜天花,图列只说明为灯珠,内置光源如何布置,请明确。
![]()
回复:改成T5灯管,间距250mm。
3.二层配电干线平面图\P(6.000标高):平面图体育场两侧是什么灯具,请明确规格及参数。


回复:为电动排烟窗接线盒。
4.三层配电干线平面图\P(12.000标高):平面图体育场两侧是什么标识,请明确。

回复:为暖通球形喷口,位置详见暖通图纸。
南大门
1. 如下图所示,道闸电机是否在本次招标范围以内,如若在,请明确道闸电机功率型号和安装部位。

回复:在本次招标范围内。
开闭所
1.设计图纸材料表中未明确该照明灯具的型号规格及安装方式,请设计给予明确。 
回复:70W 节能型工厂灯,距地3米壁挂安装。
室外附属
1.室外消火栓给水管道用什么管材。
![]()
回复:球墨铸铁管。
2.水炮给水管道用什么管材。

回复:钢丝网骨架聚乙烯(PE)复合管。
3.室外给水平面图中的消防水泵接合器数量、位置与各个单体图纸不一致,请明确以哪个为准,例如:教师值班楼负一层给排水图纸。


回复:以总图为准。
4.中水给水管、雨水回用管道用什么管材。
![]()
![]()
回复:采用PE给水管。
5.1#教学楼北上角报警阀间无详细的平面图纸,请明确。

回复:报警阀间内部布置详见单体图。
6.雨水回用管接至什么位置,管径为多大,请明确。

回复:接至车库地坪冲洗管,管径DN65。
7.配电房低压出线至每个单体的进线电缆图纸不一致,请明确。
回复:以单体干线系统图为准。
8.各个单体平面图上的低压进线电缆规格、型号与干线图、系统图的电缆型号不一致,请明确具体以哪个为准。
回复:以单体干线系统图为准。
9.“中水处理工艺设计总说明”中水图纸内机房有两个设备表,规格、型号不一致,请明确具体以哪个为准。
回复:
。
10.室外消防电平面图与智能化图纸中,预埋管道无剖面大样图,请明确管道基础具体做法。
回复:管道在绿化带上,不需要考虑基础。
11.配电房里面没有竖向的桥架,是否要考虑。
回复:桥架进来后要竖向敷设到电缆沟,规格、型号以单体图纸为准。
北侧地下车库
1.如图
,请明确以上灯具的名称、规格参数。
回复:防潮壁灯,配声控开关,12W,距地2500mm安装。
2.如图
,
请明确图中灯具是否均为单管LED感应灯。
回复:
此为单管LED感应灯。
3.地库中应急单管日光灯是否均为T5 1x28W 带蓄电池(180min)。
回复:是的。
4.请明确防火卷帘门控制箱到控制按钮间的配管配线规格。
回复:防火卷帘厂家配套,厂家随配。
5.如图
图中标注1是否为总等电位,2是否为局部等电位?如是,总等电位接地连接是否采用-40*4镀锌扁钢,局部等电位接地连接是否采用-25*4镀锌扁钢。
回复:是的,①处-50*4热镀锌扁钢,②处-25*4热镀锌扁钢。
6.火灾报警系统中端子箱后信号二总线WDZBN-RYJS-2x1.5穿JDG20管,信号二总线+24V消防电源总线穿JDG16管,信号二总线穿管规格不一致,是否以JDG20以为准,请给予明确。
回复:穿JDG20套管。
7.如图
、
请明确气体灭火系统中图中设备的名称、规格。
回复:
启停按钮,
转换开关,厂家随配。
8.压力排水16号、12号集水坑排出管道管径是否应为DN100,请给于明确。
回复:是的。
9.请明确室内空气质量监控系统是否按平面图纸计入本次范围内,本系统材料表中部分设备平面图纸中未标明,请给予明确。
回复:按平面图纸计入,配管采用JDG20管敷设。
10.如图
请明确图中设备是否为一氧化碳探测器。
回复:是。
南侧人防地下车库
1.如图
请明确图中插座的名称及规格参数。
回复:防潮密闭插座,16A,距地300mm安装。
2.如图
战时通讯系统图中标注部分管道是否应为SC50,请给予明确。
回复:是。
3.如图
防护密闭套管的管径是否按DN25计入,请给予明确。
回复:直径DN25的热镀锌钢管。
4.出生活泵房给水管道是否均采用不锈钢管材质,另泵房给水管道是否需做保温,请给予明确。
回复:均采用不锈钢管材质,无需做保温。
5.喷淋泵房系统图纸消防水池吸水管管径为DN200,平面图纸标注DN200,是否以DN250为准。
回复:是。
6.请明确地库阀门材质。
回复:地下车库及泵房采用阀门:球墨铸铁,铜芯;给水泵房:不锈钢材质。
7.消防水池进水管材质。
回复:不锈钢管。
8.请明确南北地下车库喷淋、消火栓管道、压力排水管道、支架是否需除锈刷油,如需,请明确除锈刷油详细做法。
回复:南北地下车库明装金属管道、钢制容器和管道支吊架除锈后,先刷红丹防锈漆二道,再刷醇酸磁漆二道。
生活服务综合楼
1.屋顶RRS热水配电箱出线平面图纸未标注,请给予明确。
回复:补充,见电施20,36。
2.如图
,图中标注是否按插座计入,如是,请提供名称、规格参数。
回复:安全防溅型三孔插座 250V 16A。
3.配电平面图中2~4ALcf的1#、2#回路N40、N30配电箱均未标注,请明确。
回复;添加标注,见电施33~35。
4.请提供RATPY2配电箱图。
回复:补充,见电施20,36。
5.XFB配电柜4#回路B2ACfj3a箱平面图纸未标注,请完善图纸。
回复:无此回路,调为备用回路。
6.-1AT、-1ATE箱配电平面图纸中未标注,请完善图纸。
回复:-1BP\-1BPE调整为-1AT\-1ATE。
7.如图
请提供灯箱插座的规格参数及安装高度。
回复:2.5米 安全型五孔暗插座 ~250V 10A。
8.请明确电视插座的规格参数及安装高度。
回复:1.8米 安全型五孔暗插座 ~250V 10A。
9.如图
请明确图中灯具的名称、规格参数。
回复:轨道射灯 20W,和其他轨道射灯同规格。
10.如图
请明确图中设备的名称、规格参数。
回复:智能型可燃气体报警控制器,见电施06。
11.如图
请明确图中设备的名称、规格参数。
回复:火灾声光报警器,见电施-06。
12.如图
请明确图中防火门监控设备的名称、规格参数。
回复:
。
注:此补疑视同招标文件的组成部分,与招标文件具有同等法律效力。
2020年6月24日
三、附件
答疑发布日期:2020年06月24日