您现在的位置: 首页 >> 答疑变更 >> 安徽公共资源交易集团项目管理有限公司 >> 工程
一、原公告主要信息
原项目名称: 瑶海区明园星都工程施工
原项目编号: 2020BFYGZ00303
原公告日期: 2020年05月15日
二、公告内容(更正事项、内容及日期等)
瑶海区明园星都工程施工招标工程量清单、最高投标限价编制补疑1
项目编号:2020BFYGZ00303-补1
各投标人:
重要提示
1、人工费执行《关于贯彻执行2018版安徽省建设工程计价依据的通知》(合造价【2018】13号文)。其中定额人工费参与取费、取税,其相对于定额人工费增加的部分 / 元只计取税金。
2、本工程取费按“ 建筑 工程取费标准”中“ 民用建筑 ”的费率计取;其中大型土石方工程,其企业管理费率8%、利润率8%,措施项目费率和不可竞争费率按房屋建筑工程相应费率乘0.6系数。
按业主要求,现对本项目招标工程量清单、最高投标限价编制作出如下补充:
第一部分:招标需求
一、招标范围:
房建专业:本项目分为1个标段,项目位于瑶海区临泉东路以南、龙岗路以东、吴敬梓路以西、钟离路以北,占地面积约26.3亩,总建筑面积约4.66万平方米。共含3栋高层住宅、1栋幼儿园、1栋社区配套服务楼、1栋配电房、地下人防地库、非人防地库。建设内容包括设计图纸内所有建筑物的建筑、装饰、给排水、电器、消防、通风、电梯、景观、室外相关配套工程等内容;除特殊说明外,图纸设计范围内的所有内容,均按图计入。
(一)建筑工程
1、土建工程包含土石方工程、基坑支护、主体钢筋砼结构、墙体、屋面及防水、保温、室外台阶和坡道、防水等。
2、装饰工程包含外墙面装饰工程、室内外门窗工程、栏杆、内墙面、地面及顶棚装饰工程、楼栋牌、楼层牌、单元牌、户号牌、竣工标识牌、不锈钢成品信报箱等。
3、沉降观测不在本次招标范围内,沉降观测点预埋在本次招标范围内。
4、在地下车库上的主楼土建划分范围,以地下室顶板为准,顶板以上为主楼单位工程,地下室顶板及以下划入地下车库单位工程中。
5、幼儿园:结构、建筑、精装等均在本次招标范围内。
6、社区配套服务楼、配电房:结构、建筑、装修等均在本次招标范围内。
(二)安装工程
1、给排水工程:住宅楼给水从水表后按图纸计入,水表前仅计入预留预埋套管、孔洞预留及后期封堵,幼儿园、配套服务楼给水从室外水表后按图纸计入,水表前仅计入预留预埋;生活泵房供水设备及供水管道、泵房到各单体楼的给水干管不在招标范围内,仅计入预留预埋套管及后期封堵;住宅楼卫生洁具不计入,幼儿园、配套服务楼卫生洁具计入;热水系统按图纸计入,太阳能集热器计入;排水系统按图纸计入。
2、消防水系统:消火栓系统、喷淋系统、消防泵房等按图纸计入。
3、暖通系统:按图纸计入。
4、强电工程:住宅楼从电表箱后计入,电表箱前仅计预埋配管至外墙1.5m,电表箱仅计安装费(不含电表箱及箱内元器件),其余部分按图纸计入;各住宅楼动力总配电箱进线只计预埋管至外墙1.5m(含桥架),其余部分按图纸计入;幼儿园、配套用房从动力照明总配电箱进线只计预埋管至外墙1.5m(含桥架),其余部分按图纸计入;配电房、市政开闭所设备及电缆进出线不计入;地下车库的自、局管变电所低压配电屏引至总动力配电箱、柜的电缆不在本次招标范围,预埋配管按图纸计入;生活泵房总配电柜及进、出线电缆不在本次招标范围,消防泵房总配电柜及出线电缆在本次招标范围;电梯工程按图纸计入;地下室充电桩按图纸计入。
5、弱电工程:电话、数据宽带网系统、有线电视系统家庭弱电综合接线箱前仅计入预留预埋(含家庭弱电综合接线箱),家庭弱电综合接线箱后按图纸计入;幼儿园、配套服务楼电话宽带网综合进线箱、有线电视前端箱前计预留预埋,其余按图纸计入;智能化系统(楼宇可视对讲系统、安全防范系统、计算机网络系统、周界报警系统、背景音乐系统、停车场及通道管理系统、五方对讲系统、信息发布系统、电子巡更系统、机房工程、综合管网等)全部计入;幼儿园智能化不在本次招标范围,仅计幼儿园电铃系统、广播系统预留预埋;水表远程抄表系统仅计预留预埋。
6、消防电工程:消防电源监控系统、剩余电流报警系统、火灾自动报警及消防联动系统、防火门监控系统、应急照明控制系统、可燃气体探测系统、气体灭火系统、一氧化碳监控系统等按图纸计入。
(三)室外总体及附属工程
1、室外景观:包含沥青砼道路,机动车、非机动车停车位,花岗岩混凝土路牙,道路标线;小区围墙、幼儿园围墙工程;小区车行铺装,人行铺装,幼儿园彩色硅PU地面,青石汀步,架空层地面铺装,架空层硅PU地面,架空层健身器材;幼儿园屋顶花园地面铺装,幼儿园屋顶花园景墙、种植池;中央广场景墙、标识景墙,旗台、沙池、戏水池,单元楼垃圾桶摆放点,儿童种植体验区,成品门卫室、成品道闸、果皮箱、成品铁艺坐凳,成品洗手池,指示牌;主、次入口景石景墙,绿地置石等均按图纸计入;
2、室外绿化:乔木、灌木、色带等按图纸计入,含绿化栽植、养护等工作内容;
3、排水工程:包含雨、污水管道铺设;检查井、雨水口;钢筋混凝土化粪池,雨水收集与回用系统,等均按图纸计入。
4、室外给水:室外给水不计入,室外消防水、室外绿化给水从水表后按图全部计入。
5、室外电气:总体供电电缆、电缆井及排管不计入,景观照明配电按图纸全部计入,室外消防总体按图纸全部计入。
(四)补充说明:
1、所有住宅户内门(除阳台推拉门、入户门及防火门)不在本次招标范围内。
2、所有住户户内按毛坯房标准计入,公共部位按装修表计入。
3、室外供电不在招标范围内;管网建设费、开户费不在本次招标范围内;市政管网搭接、道路破复、绿化损坏及恢复在本次招标范围内。
4、人防门、防爆地漏、过滤吸收器等不在本次招标范围内。
5、配电房电缆沟、设备、配电柜及变电所进出线等均不在本次招标范围内。
二、暂定项目:
(一)以下项目按照业主要求,以暂定工程量计入分部分项工程量清单,投标人综合考虑报价,标后按实际工程量结算。
1、基础开挖遇不良地基处理(暂定量):含挖除不良地基、外运、C15混凝土换填、模板工程量均含在内、暂按500m3列入明园星都-基坑支护工程单位工程分部分项清单中。
(二)按照业主要求,本项目暂列金额为800万元,计入明园星都-基坑支护工程其他项目中,投标人应按招标人所列的金额计入投标总价。
(三)执行暂估价的材料、设备、专业工程及其金额如下:
无
三、按项列入清单的内容,标后不予调整:
以下项目按照业主要求,按项计入,投标人自行踏勘现场,综合考虑报价,中标后不予调整。
1、临时用电:临时用电控制价按设置2台400KVA变压器; 投标人报价时需考虑管线铺设、项目完成后的拆除、涉及管道沿线铺设的场地复原、报装费等相关费用,投标人中标后需在一个月内通电,相关的设施需进行安全防护;本施工项目结束后其相关设备、配套杆、电缆等的残值归投标人所有;按一项计入明园星都-基坑支护工程分部分项清单中,控制价按40万元计入,投标人综合考虑,自行报价,标后不予调整。
2、临时用水:临时用水接引至项目现场,管径不小于Φ80,满足总包单位及后期附属单位进场后的总用水量;费用均含管网建设费、增容费、破路、恢复、水表、管道、报装及内部接引等所有费用,费用还需包括开户、施工、一直到最终通水整个期间的一切费用;必须保证证件齐全、手续合法,其他见招标文件说明;施工用水按后期正式用水管径报装;按一项计入明园星都-基坑支护工程分部分项清单中,控制价按15万元计入,投标人综合考虑,自行报价,标后不予调整。
3、市政道路开道口与小区出入口位置的协调及处理、新旧道路接头处理:投标单位自行踏勘现场,报价包含市政开道口申报费用、拆除清理费用、与小区出入口连接、绿化移植恢复等费用;按一项计入明园星都-基坑支护工程分部分项清单中,控制价按5万元计入,投标人综合考虑,自行报价,标后不予调整。
4、雨污排水管与市政接口连接:投标单位自行踏勘现场,雨污水管与市政管网的连接、疏通费用(含道路破除申报、破除、恢复等费用);按一项计入明园星都-基坑支护工程分部分项清单中,控制价按5万元计入,投标人综合考虑,自行报价,标后不予调整。
5、管线保护及迁移改造及10kv供电杆线迁移安装:在小区红线内所有地下、地上的管线、明沟、市政预埋等,后期开挖时要做好保护措施及迁移改造(保证原功能正常使用);按一项计入明园星都-基坑支护工程分部分项清单中,控制价按20万元计入,投标人综合考虑,自行报价,标后不予调整。
6、施工进场道路(含临时道口开设及绿化迁移、恢复):具体做法(工作内容:土方挖填、素土夯实、碎石300厚,C25商品砼200厚,按2000m2考虑。做好日常养护,满足使用功能,投标人自行勘察现场,自行报价,中标后不予调整,施工结束后破除路面和垃圾外运) 包含现状市政道路至建筑红线之间的进场道路的修筑与后期拆除、清运;满足施工及业主要求,施工临时道路不得低于以上标准。以上费用按一项计入在明园星都-基坑支护工程分部分项清单中,此项费用一次性包死,投标人自行报价,中标后不予调整。
7、垃圾清运:施工红线范围内现状的建筑垃圾、生活垃圾、构筑物、原建筑基础、水塘、淤泥及苗木、植被、树根等现场垃圾清理及外运费用,包括道路及硬化地面、基础破除。按一项列入明园星都-基坑支护工程分部分项清单中,控制价按 5万元考虑,投标人自行踏堪现场,根据现场实际情况满足项目要求,综合考虑报价,该项费用包干使用,中标后不予调整。
8、人防工程配合费:内容包括:(1)地下室平面图、轴线及地平标高数据;(2)电源及用电;(3)垂直吊装设备(塔吊);(4)临时支撑钢管、钢筋若干根;(5)人防设备临时堆放场地。需配合业主方进行人防工程招标,承担因人防工程流标造成的相应损失。按一项列入明园星都-基坑支护工程分部分项清单中,控制价按2万元考虑,上述配合费用一次性包死,投标人综合考虑相应风险,中标后不予调整。
9、供水、供电、燃气、三网、有线电视、智能化管网、太阳能等附属单位施工进场配合费;供水、供电、燃气、三网、有线电视、智能化管网、太阳能等附属单位进场施工,需破除和修复市政道路接引点的,相关破复费用由总包单位负责,总包单位需无条件配合,包含土方回填及多余土方、垃圾的外运,二次施工、拆除、修补、封堵、开孔、开槽、清理、布管穿线、局部改造、室外交叉施工所导致的破复等为满足后期安装以及主管部门验收要求的全部整改,并及时提供各附属单位所具备的施工条件;中标人不得以为满足燃气、有线电视、电信等政府行业部门验收为理由办理任何签证。控制价按10万元考虑,上述配合费用一次性包死,投标人综合考虑相应风险,中标后不予调整。
10、洞口开洞、封堵:含门洞、室内管、井等各种管道封堵;包括但不限于防火封堵、给水、排水、供水、电气、弱电、燃气、消防等配套单位的洞口预埋、开洞、封堵(含一次封堵及二次封堵)、修复、清理等一切工序及费用,满足防火构造及防火封堵要求。清单按项分别计入明园星都工程各单体楼土建装饰工程分部分项清单中(控制价中配电房、配套服务楼、幼儿园按2000元/项,住宅按20000元/项,地库按20000元/项计入),投标人自行报价,中标后不予调整。
11、沉降观测点预埋:预埋件规格、埋设位置、数量满足图纸设计及观测单位要求,相关费用清单按项分别计入明园星都工程各单体楼土建装饰工程分部分项清单中(控制价中配电房、配套服务楼按500元/项,幼儿园、住宅、地库按2000元/项),投标人自行报价,中标后不予调整。
12、抗震支吊架:抗震支吊架系统,含二次深化设计费用、评审费、施工费等涉及该系统的所有费用,且需建筑机电工程抗震设计规范》GB50981-2014、《建筑机电设备抗震支吊架通用技术条件》(CJ/T 476-2015)、《建筑抗震设计规范》GB50011-2010等规范,按1项列入明园星都-地下车库安装分部分项清单中,投标人自行踏勘现场,综合考虑报价,中标后不予调整。
13、管道穿墙防水构造:管道穿墙防水构造,参见国标10J3011/54,按一项列入明园星都-地下车库土建装饰工程分部分项清单中,控制价中按 2万元考虑,投标人综合考虑报价,中标后不予调整。
14、穿墙螺栓、预埋件防水构造:穿墙螺栓、预埋件防水构造,做法:参见国标10J301-/51、2/52,按一项列入明园星都-地下车库土建装饰工程分部分项清单中,控制价中按 2万元考虑,投标人综合考虑报价,中标后不予调整。
15、包管处理:包管处理,当主管沿墙、柱敷设时,待管线安装完毕后用轻质墙包封隐蔽,做法参见 03J111-1图集,按一项列入明园星都-地下车库土建装饰工程分部分项清单中,控制价中按 2万元考虑,投标人综合考虑报价,中标后不予调整。
16、消防栓处理:消防栓处理,防火隔墙及楼梯间等处暗装消火栓、配电盘等设备的部位,背衬50厚专用防火薄板和1mm厚10x10钢丝网,加专用砂浆抹灰粉刷,做法参04S202,第29页,按一项列入明园星都-地下车库土建装饰工程分部分项清单中,控制价中按 1万元考虑,投标人综合考虑报价,中标后不予调整。
17、电梯门洞防护:电梯井口必须设防护栏杆或固定栅门,防护栏杆或固定栅门应做到定型化、工具化、其高度在1.5m至1.8m范围内,按一项列入各单体楼土建装饰工程分部分项清单中,投标人自行报价,中标后不予调整。
18、配电箱背面粉刷加固:1、非防火墙上凡消火栓、配电箱需穿透墙身嵌装时应在其后壁加钢板网1.2mm厚孔径≮9mm2、防火隔墙及楼梯间等处暗装消火栓、配电盘等设备的部位,背衬50厚蒸压加气混凝土专用防火薄板和1mm厚10x10钢丝网加专用砂浆抹灰粉刷,做法参见04S202第29页。按一项列入各单体楼土建装饰工程分部分项清单中(控制价中幼儿园按2000元/项,住宅、地库按5000元/项),投标人自行报价,中标后不予调整。
四、补充图纸及修改图纸的说明:
本工程在第一次发放图纸后,无补图及修改图;具体详见图纸目录。
五、总承包服务费:
无。
六、温馨提示:投标人投标报价还须仔细阅读本项目招标文件,慎重报价。
1、 严格根据(合建质安监[2011]64号)文件执行,投标人必须在施工过程中,达到规范及验收要求,费用投标报价中综合考虑,施工过程中不得因连接方式不同、工艺调整等原因,提出影响造价的要求。
2、 现场土方按现状标高进行计算,投标人必须勘察现场自行测绘,自行考虑开挖及回填方量误差,费用包含在投标总价中,投标人综合考虑,自行报价,标后不予调整。
3、 所有的专家评审、专家论证费用,包含在投标总价中,不单独列项,投标人综合考虑,自行报价,标后不予调整。
4、 请投标单位投标前仔细勘查现场,结合基坑支护图纸,慎重报价,后期不因设计方案的变更而调整任何费用;投标报价中综合考虑,中标后不再调整。
5、 施工单位中标后需无条件配合业主办理施工许可证直至竣工备案结束的相关手续所产生的费用,费用包含在投标总价中,不单独列项,投标人综合考虑,自行报价,标后不予调整。
6、 投标单位自行踏勘现场,应做好周边建筑物等的安全防护工作,安全防护费用包含在投标总价中,不单独列项,投标人综合考虑,自行报价,标后不予调整。
7、 室外水、电管道的覆土厚度不满足规范要求,需按照相关规范采取保护措施,费用包含在投标总价中,不单独列项,投标人综合考虑,自行报价,标后不予调整。
8、 控制柜、配电柜、箱后期安装调整位置费用,费用包含在投标总价中,不单独列项,投标人综合考虑,自行报价,标后不予调整。
9、 因项目现场场地狭小,无法在现场搭建临时设施,请投标单位综合考虑临时设施等需要的场地租赁费用,费用包含在投标总价中,不单独列项,投标人综合考虑,自行报价,标后不予调整。
10、 基坑支护工程,部分支撑后期需要拆除,费用包含在投标总价中,不单独列项,投标人综合考虑,自行报价,标后不予调整。
11、 投标报价除考虑临时设施费用外,还应考虑临时设施的拆除、及其拆除后建筑垃圾外运等费用,做到工程完工时“工完、料尽、场地清”。临时设施包括:施工现场的临时房屋及基础、场地硬化、临时围挡及其基础、施工围墙铺挂绿篱等其它为满足施工需要的临时建筑物和构筑物,费用包含在投标总价中,不单独列项,投标人综合考虑,自行报价,标后不予调整。
12、 地下室人防封堵除图纸设计外,其他平时及战时封堵需满足人防验收要求,保证人防验收合格,新增的封堵费用,费用包含在投标总价中,不单独列项,投标人综合考虑,自行报价,标后不予调整。
13、 所有与设备调试相关产生的人工、材料、机械等费用,费用包含在投标总价中,不单独列项,投标人综合考虑,自行报价,标后不予调整。
14、 施工进场道路使用时可能未移交交警和城管等进行管理,需投标单位进行道路综合管理养护,包括但不限于道路清扫、洒水、维修、路口交通指挥、道路安全保障、夜间照明等,费用包含在投标总价中,不单独列项,投标人综合考虑,自行报价,标后不予调整。
15、 基坑应急措施处理费,含坡顶水平位移及竖向沉降、深层水平位移、锚杆内力、管线应急处理措施等,费用包含在投标总价中,不单独列项,投标人综合考虑,自行报价,标后不予调整。
16、 地下室照明费、外墙后浇带先回填外围留置工作井费、大体积砼浇筑专项措施费,费用包含在投标总价中,投标人综合考虑,自行报价,标后不予调整。
17、 止水螺栓:所有地下室外墙剪力墙及人防墙部位采用止水螺栓,含穿墙止水螺栓、凿槽、切割、阻锈、封堵,不得采用套管,螺栓不循环使用;费用包含在投标总价中,投标人综合考虑,自行报价,标后不予调整。
18、 室外综合管线及地下管线交叉较多、各投标人应综合考虑管线避让等技术处理措施引起的工程量变化,综合报价,中标后不得以此为由增加相关费用。
19、 智慧工地软件/硬件包含但不限于实名制通道、集成扬尘检测系统、项目喷淋控制系统、集成机械检测系统、远程监控系统、项目总控中心硬件设备、调试、培训等详见智慧工地设备清单,必须满足市城乡建设局人脸识别系统、扬尘检测等规范要求,确保接入瑶海智云系统平台,相关费用含在投标报价内,不单独列项,投标人根据现场实际情况、实施方案综合考虑报价,中标后不予调整。
20、 因受地库施工影响,请投标单位慎重考虑临时设施等需要的场地租赁费用或场内二次拆装费用,费用包含在投标总价中,不单独列项,投标人综合考虑,自行报价,标后不予调整。
21、基坑支护施工监测、防护及处理措施,包括从基坑开挖至竣工验收期间的基坑防护、主体及周边建筑、地表等的水平位移、沉降、隆起及内力观测所需要的点位埋设、过程监测以及监测数据整理上报、监测预埋件等的全部工作内容及其相关费用,费用包含在投标总价中,不单独列项,投标人综合考虑,自行报价,标后不予调整。
22、投标人报价时需考虑疫情期间施工增加费,清单不单独列项,中标后不予调整。
第二部分 :设计文件及技术补充说明
一、土方工程
1、现场有建筑垃圾、生活垃圾、构筑物、原建筑基础、水塘、淤泥等影响施工的因素,如何考虑?
回复:投标人需自行踏堪现场,对施工红线范围内现状的建筑垃圾、生活垃圾、构筑物、原建筑基础、水塘、淤泥及苗木等进行清除或处理,费用由投标人自行考虑,取、弃土运距投标人勘察现场,自行考虑,中标后不予调整。弃土点由投标人在勘察现场后自行考虑,实际运距或超出部分的运距、土源费、渣土费、弃土场等由投标单位勘察现场后自行考虑,在投标报价中充分考虑弃土场费、土源费、保洁费、渣土费、协调费、清表、修建运输通道及地下障碍物等费用,以及市容、路政、环保部门征收的等一切费用,综合考虑在报价中,中标后综合单价一律不予调整。中标后不作调整,且严格执行合肥市渣土运输管理规定。
2、本工程开挖的土方是否全部外运?用于基础回填的土方是否堆放在现场?运距按多少公里考虑?
回复:本工程现场狭小,不考虑堆土,全部外运,运距控制价按20KM考虑;取、弃土运距投标人勘察现场,自行考虑,中标后不予调整。弃土点由投标人在勘察现场后自行考虑,实际运距或超出部分的运距、土源费、渣土费、弃土场等由投标单位勘察现场后自行考虑,在投标报价中充分考虑弃土场费、土源费、保洁费、渣土费、协调费、清表、修建运输通道及地下障碍物等费用,以及市容、路政、环保部门征收的等一切费用,综合考虑在报价中,中标后综合单价一律不予调整。
二、共性问题
1、本工程是否按照《合肥市住宅工程质量通病防治导则》、《合肥市绿化施工导则》及相关最新文件执行?
回复:本工程完全按照《合肥市住宅工程质量通病防治导则》、《合肥市绿化施工导则》及相关最新文件执行。投标人应充分考虑相关费用,综合报价,中标后施工单位不得以任何理由办理经济签证。
2、本工程完全按照钢筋(合建质安监[2011]64号)文件规定及相关最新文件执行?
回复:严格根据(合建质安监[2011]64号)及相关最新文件执行,投标人必须在施工过程中,达到规范及验收要求,该报价一次性包死,施工过程中不得因连接方式不同、工艺调整等原因,提出影响造价的要求。钢筋接头按设计要求、清单中钢筋量已包含马凳筋、布管密集的地方设加强钢筋、阴阳角放射筋及其它施工规范要求的钢筋量,按现行最新规范设置,结算不调整。
3、本项目现浇板马凳应如何界定设置?是按DB34/1659-2012 住宅工程质量通病防治技术规程设置,还是是否采用点状式几字形马墩1平方米1个设置直径同板面筋?
回复:按DB34/1659-2012 住宅工程质量通病防治技术规程设置。
4、请明确本项目哪些部分需要采用抗震(带E)钢筋?
回复:结施01第6.1.3条已明确抗震等级为一、二、三级的框架和斜撑构件(含梯段),其纵向受力钢筋采用抗震钢筋(带“E”)。即图纸中的框架柱(KZ*)、框架梁(KL*)的纵向钢筋,楼梯的梯柱(TZ*)、与梯柱相连的梯梁(TL*)的纵向钢筋,楼梯斜板的受力钢筋。梁、柱的箍筋,非受力钢筋,以及墙体的钢筋均不需要带E。
5、图纸设计中直径6的钢筋是否采用直径为6.5的钢筋计入?
回复:是。
6、请明确本次工程所用混凝土模板的材质及地下室外墙是否设置止水螺栓,如需设置请明确做法?
回复:混凝土模板材质控制价按复合木模板计入;止水螺栓由投标人综合考虑在报价中,控制价不单列项;投标单位根据现有的图纸资料、招标文件和施工规范等资料,充分考虑,综合报价,中标后不得调整。
7、请明确脚手架搭设方式?
回复:搭设方式由投标单位依据施工组织设计方案及相关规范综合考虑,中标后不得调整。
8、住宅楼室内装饰装修是否在本次招标范围内?
回复:住宅楼户内按毛坯房标准计入,公共部位按装修表计入。
9、幼儿园室内精装修是否在本次招标范围内?
回复:幼儿园室内装饰装修在本次招标范围内。
10、社区配套服务楼、配电房及地库室内装饰装修是否在本次招标范围内?
回复:室内装饰装修在本次招标范围内,按装饰装修表计入。
11、请明确住宅楼门窗工程是否在本次招标范围内?
回复:入户门、阳台推拉门、防火门计入,窗户全部计入本次招标。其余住户户内门不计入本次招标。
12、请明确幼儿园、社区配套服务楼、配电房及地库门窗工程是否在本次招标范围内?
回复:在本次招标范围内。地库人防门不在本次招标范围内。
13、请明确本次外装饰工程是否在本次招标范围内?
回复:外装饰工程在本次招标范围内。
14、请明确住宅楼信报箱是否在本次招标范围内,如在,请明确具体做法及材质。
回复:住宅楼信报箱在本次招标范围内,做法参考《住宅信报箱工程技术规范建》GB50631-2010 单个尺寸为245mm(宽度)X150mm(高度)X 340mm(深度),材质为不锈钢,颜色与楼房设计的总体相协调暂定灰色。
15、本工程是否有品牌要求,若有,请提供品牌推荐表。
回复:本工程有品牌要求。详见招标文件。
16、本工程是否采用预拌砂浆。
回复:是。
17、外窗开启扇(除楼梯间及屋面机房处)均带纱扇,请问是否在本次招标范围内?若在请明确纱窗材质及规格要求。
回复:住宅纱窗不计入,其他建筑计入纱窗。
18、电梯轿厢是否设置防护,如设,请明确做法?
回复:设置,电梯机轿箱四周及底板用不小于1.6cm木工板进行防护,必须满足业主要求,投标报价中充分考虑,一次性包干,中标后不再调整。
19、请明确电梯洞口是否需要设置防护,如设,请明确做法?
回复:电梯井口必须设防护栏杆或固定栅门,防护栏杆或固定栅门应做到定型化、工具化、其高度在1.5m至1.8m范围内,必须满足业主要求,投标报价中充分考虑,一次性包干,中标后不再调整。
三、个性问题
(一)、土建工程
基坑支护
1、请明确支护桩材质,如砼请明确砼等级。
回复:砼,等级C25,详见基坑支护说明。
2、请明确压密注浆孔大小。
回复:注浆孔规格按DN70mm。
3、NT宽度是多少?

回复:按0.9m。
4、请明确以下竖向通长钢筋和加强短筋14L=300的间距是多少。

回复:按1.5m。
5、请明确冠梁、桩承台砼等级。
回复:按C25砼计入。
6、钢筋土钉是否需要注浆。
回复:注浆材料采用水灰比0.5~0.6的水泥浆,注浆压力不得小于0.6MPa。
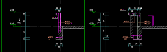
7、下图相应位置是否为水平支撑。

回复:相应位置均为水平支撑,做法同XC1,两端处做法同NT。
8、请明确每根桩钢护筒长度。
回复:按2m计入。
9、请明确旋挖桩钢筋配筋做法。
回复:同支护桩ZH配筋图。
地下车库
1、人防滤毒室、扩散室、密闭通道地面做法是否为地面1,墙面是否内墙1?
回复:墙面为内墙1。
2、请明确地砖踢脚线高度?
回复:100mm高。
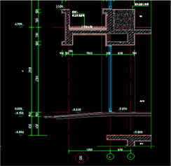
3、2#南面两个集水坑标注深度?

回复:详见单体图。
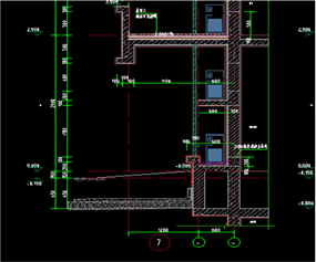
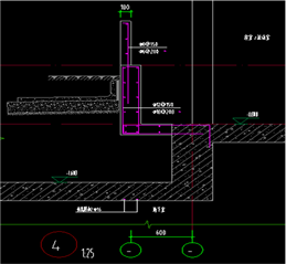
4、主楼范围内地库顶板做法按顶板1 做法是否合理?

回复:主楼范围内按上图做法施工。
5、人防门是否在本次招标范围内。
回复:不在。
6、请明确地库灰土回填范围。
回复:地库外墙1米范围内2:8灰土回填,以外为素土回填。
7、请明确丁基钢板止水带厚度及宽度。

回复:300mm宽,3mm厚。
8、请明确楼梯护栏、玻璃顶、钢柱等详细做法。

回复:详见补充图纸。
9、请明确负一层电梯厅、合用前室、疏散通道墙面、天棚面做法。
回复:同地上建筑墙面、天棚面做法。
10、请明确汽车坡道重型球墨铸铁盖板厚度。
回复:盖板厚度35mm。
11、请明确FM甲10521、FM甲12215、FM乙10521、FM乙12215、FM乙12521的详细尺寸。
回复:FM甲10521为1050*2100mm钢质甲级防火门,FM甲12215为1200*2150mm钢质甲级防火门,FM乙10521为1050*2100mm木质乙级防火门,FM乙12215为1200*2150mm木质乙级防火门,FM乙12521为1250*2100mm木质乙级防火门。
12、FM甲1220材质是否标注有误?

回复:按钢质甲级防火门计入。
13、请明确2#内M1021材质。
回复:材质均为成品木质门。
14、请明确防雨百叶窗材质厚度。
回复:1.2厚铝合金防雨百叶,内衬防虫网与防护格栅。
15、请明确GFM甲1021、GFM甲1221、GFM甲1221A的材质。
回复:钢制。
16、请明确风井砼顶板面做法。
回复:20厚1:2.5防水砂浆(内掺水泥重5%防水剂),找坡1%(预拌砂浆)。
17、请明确地库外墙、底板、顶板选用哪种做法。
回复:外墙选用外2,底板选用底2,顶板选用顶1。
18、后浇带处是否要设防水卷材附加。
回复:底板、外墙后浇带附加4mm厚改性沥青防水卷材。
19、请明确楼梯踢步面层做法,是否要设防滑条。
回复:踢步面层做法:1.20厚1:2.5水泥砂浆 2.水泥浆一道(内掺建筑胶) 3.现浇钢筋混凝土板;设防滑条,做法如下:
20、请明确地面5中踢脚线的详细做法。

回复:踢脚线做法如下(上翻至完成面100mm)。

21、请明确楼梯间内墙及天棚装饰做法。
回复:内墙:批专用防水腻子两遍,,刷防霉乳胶漆涂料;
天棚:喷防霉涂料两遍与墙面、批内墙白色防霉腻子2mm
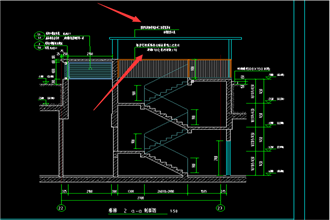
22、请明确楼梯栏杆做法。
回复:详GB15J403-1第B14页A1型。
23、请明确标线做法。
回复:环氧地坪面漆,先放线,用30mm 美纹纸修边,同品牌的环氧地坪面漆,用专用环氧漆滚筒滚涂至颜色饱满不透底为标准。
24、楼梯1出地面无做法。
回复:参照其它楼梯出地面做法。
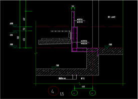
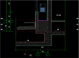
25、请明确汽车坡道顶栏杆做法。

回复:栏杆高度200mm,做法见下图。

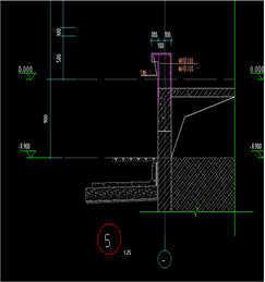
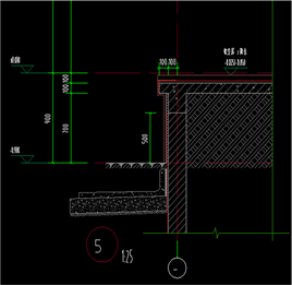
26、请明确地库顶板单体楼四周防水上翻高度。
回复:上翻出地面500mm。
27、轮廓标、柱体诱导牌是否计入,如计入请明确数量。

回复:不计入。
28、请明确泵房内设备基础砼等级。
回复:C25。
29、请明确地库出地面楼梯间玻璃边防护栏杆做法。

回复:详见图集11J930第62页节点1。
1-3号楼
1、墙体工程材质及做法建筑说明与结构说明中不一致,请明确具体材质及做法。
建筑说明:
结构说明:
回复:墙体工程材质及做法按建筑说明。
2、请明确室外台阶及室外平台花岗岩板的具体规格、颜色。
回复:外台阶及室外平台花岗岩板为烧毛花岗岩板铺面规格 600mm*600mm 厚度30mm,颜色芝麻灰。
3、请明确坡道花岗岩板的具体规格、颜色。
回复:坡道花岗岩板为烧面花岗石板规格 600mm*600mm 厚度30mm,颜色芝麻灰。
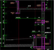
4、请明确下图装饰做法为何?

回复:图示位置外饰做法按同层外墙做法。
5、请明确3号楼图号G-13/39节点XT35具体做法。无节点大样图。


回复:补充做法见下图:

6、3#楼8/XT节点建筑图与结构图节点做法不同,请明确,以何为准。


回复:二层以建筑为准;一层大样取消。

7、3#楼7/XT节点建筑图与结构图节点做法不同,请明确,以何为准。


回复:以建筑为准:

8、请明确电梯门套具体做法。
回复:电梯门套为拉丝不锈钢,厚度为:1.2mm,参照图集13J404第40页立面一
9、请明确匀质保温板的具体干密度为多少。

回复:匀质保温板的具体干密度为200kg/m3。
10、请明确地面1中做法4涂膜防水是否需要上翻。
回复:地面1中做法4涂膜防水不需要上翻。
11、请明确下图具体做法。

回复:本工程电梯隔声取消。
12、请明确地砖踢脚线的高度。
回复:地砖踢脚高度为100mm。
13、请明确室外天棚的装饰做法。

回复:图示位置室外天棚粉20厚1:3水泥砂浆,外饰为咖啡色真石漆(带颗粒感)。
14、请明确管道井天棚做法。
回复:住宅电表间顶棚采用白色乳胶漆,局管电井、电井顶棚白水泥批灰。
水井顶棚白水泥批灰(顶棚刷1.2厚无机高聚物改性防水浆料防潮层)。
15、请明确乳胶漆墙面及天棚是否需要增加满刮腻子,若增加,请明确具体做法。
回复:不需要增加满刮腻子。
16、请明确节点34的具体做法,图纸内无该节点做法。

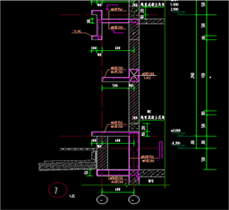
回复:该节点位于3#楼建施 J-28/29,现细化结构做法:设置GZ1a,并在楼层处设置圈梁(L1),在顶板设置砼板。砼板及GZ1a做法见右图。



17、请明确3#楼图号J-06/29 8a节点具体做法(建筑及结构做法),图纸内无该节点做法。3号楼结构图未设计该节点板及梁。
回复:该位置屋面板板厚为120mm,板面标高为2.800m,配筋为8@100。


18、请明确屋面构架梁、柱及屋面女儿墙内侧装饰做法。

回复:图示位置屋面构架梁、柱及屋面女儿墙内侧装饰做法按照建施J-01/29建筑设计说明一 6.4.1外墙一做法。外墙真石漆饰面层材质详各单体立面图,女儿墙顶部饰面层材质同相应外墙真石漆饰面层;屋面构架梁、柱及屋面女儿墙内侧真石漆为米黄色真石漆仿石材效果。
19、请明确1#结构屋面板标高是否有误?


回复:1#结构屋面板标高有误,板顶标高应为63.240。
20、请明确1#楼节点5,建筑节点与结构不一致,以何为准?


回复:以建筑为准。
21、1#节点28,建筑与结构做法不一致,请明确以何为准?


回复:以建筑为准。
22、请明确1#屋面节点22,屋面标高是否有误。

回复:屋面标高有误,改为H(屋面结构标高)=60.900。
23、节点6顶标高与建筑立面标高不一致?请明确做法?


回复:节点6顶标高与建筑立面标高一致,该处节点对应建筑立面标高截图如下:

24、请明确1#楼节点6a建筑与结构做法不一致,以何为准?


回复:节点6a以建筑为准。
25、节点17、18建筑与结构做法不一致,以何为准?


回复:以建筑为准。
26、节点26a建筑与结构做法不一致,以何为准?


回复:以建筑为准。
27、节点26、28建筑与结构做法不一致,以何为准?


回复:以建筑为准。
28、请明确飘窗板内装饰做法。
回复:30厚1:2水泥砂浆面层。
29、请明确1#楼下图窗具体做法。

回复:窗参照风井百叶窗做法。
30、请明确3号楼物业管理用房无障碍卫生间多功能台具体做法。
回复:无障碍卫生间多功能台长度700宽度400高度600,样式详12J926第J8页D型;多功能台材质为木质成品构件。
31、请明确3号楼物业管理用房卫生间洗手台具体做法。
回复:洗手台做法详国标16J914-1第XT11页节点。台面面板材质大理石,厚度12mm。
32、请明确3号楼物业管理用房卫生间镜面具体做法。
回复:镜面做法详国标16J914-1第XT25页节点3
33、请明确3号楼物业管理用房卫生间蹲便器抓手及洗手台抓手具体做法。
回复:材质为不锈钢,无障碍卫生间洗手台抓手做法详12J926第J8页D型对应节点。
34、请明确一层管井地面做法。
回复:地面做法同楼面6。
35、封闭阳台墙面做法是否参照内墙一计入?
回复:封闭阳台墙面做法可以参照内墙一,阳台门的同侧墙应同外墙做法,阳台外保温示意线参考建施J-17/30户型放大平面图。
36、请明确顶棚1具体对应部位。
回复:客厅、餐厅、卧室、前室、电梯厅、楼梯间、走道、电表间、电梯机房等(除厨房、卫生间、阳台)。
37、入口花坛做法图纸设计无做法,请给予明确。
回复:单体入口花坛做法参11J930住宅建筑构造 A21页节点2,取消混凝土基础,200厚煤矸石实心砖砌筑至对应机动车库地下室顶板,压顶结构标高为0.300,种植土完成面标高约0.000,种植植被种类详景观图纸。
38、入口装饰柱请给予明确相应部位材质。


回复:截图示意处左侧截图左侧箭头处为100高混凝土压顶,北侧箭头示意处为煤矸石空心砖墙;右侧截图示意处为煤矸石空心砖墙,对应端头构造柱尺寸详结构。
39、2#楼门厅处墙体做法,请明确。

回复:图示位置2#楼门厅处构造做法为: 仿木纹铝方通 (平面尺寸,100X200)壁厚3.0mm ,间距200mm,定位详平面, (煤矸石实心砖砖砌平台)标高0.45 至结构梁底。
40、请明确室内回填土方材质?
回复:除建筑、结构图纸特殊明确外,其余为素土回填。
41、请明确屋面卷材是否需要上翻?如需上翻,上翻高度按设计说明还是节点详图?


回复:屋面卷材需要上翻,上翻高度按设计说明,上翻至完成面以上300mm。
42、请明确砖基础抹灰的具体做法。
回复:20厚1:2防水砂浆。
43、请明确物业管理用房卫生间天棚装饰做法。
回复:顶棚做法调整如下计入:1、钢筋砼顶板,清理打凿、修补磨平2、1.2厚聚氨脂涂膜防水3、铝扣板吊顶(吊顶做法如下);
1、)现浇钢筋混凝土板底预留φ10钢筋吊环(勾),双向中距≤ 1200 ;
2、)10号镀锌低碳钢丝吊杆,双向中距≤1200,吊杆上部与底板 预留吊环(勾)固定;
3、)与安装型式配套的专用上层主龙骨,间距≤ 1 200 用吊件与钢筋吊杆联结后找平;
4、)与铝合金方板配套的专用下层副龙骨联结,间距≤600
5、)铝合金方板600x600与配套专用龙骨固定。
44、厨房卫生间包管是否在本次招标范围内,如在,请明确具体做法
回复:在本次招标范围内,按100厚煤矸石空心砖外包,烧结类煤矸石空心砖(MU3.5砌体强度等级),M5混合砂浆。
45、请明确室外天棚的具体部位。
回复:一楼门廊天棚,屋面女儿墙外挑板天棚、太阳能板天棚面。
46、请明确下图具体做法。

回复:矮墙高450cm,砌体做法同砖基础做法,墙面装饰做法同电梯厅,上面是铝方通。
![说明: C:\Users\Administrator\Documents\Tencent Files\1134212165\Image\C2C\Z4]J3QKXLJP{5_0$G8]PV7M.png](/uploadfile/e6d4954d-3986-4e3c-9e45-c68ae674182e/20200518173827526066.png)
47、请明确±0.00以上楼梯栏杆做法。
回复:详见图集15J401第K1节点3,设置一侧。
48、请明确下图防水具体部位。

1、空调板双层

2、空调板单层
3、中间户型厨房外调板
![说明: C:\Users\Administrator\Documents\Tencent Files\1134212165\Image\C2C\VNWDJS9S[U)10GZ(14$TJ]E.png](/uploadfile/e6d4954d-3986-4e3c-9e45-c68ae674182e/20200518173827920070.jpg)
4、出入口防坠落雨棚调板
5、花池位置结合地库侧墙防水材料出地面上翻500

49、请明确节点部位混凝土墙混凝土等级。
回复:混凝土等级为C30。
50、请明确架空层内墙面装饰做法。
回复:架空层的墙面按照外墙仿石材真石漆做法。
功能性房间的外墙做有保温;其他的独立剪力墙,做无保温。

51、请明确窗边无机保温砂浆厚度为多少?
回复:25mm厚。

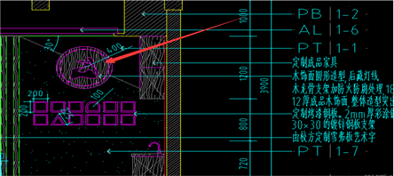
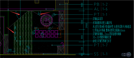
幼儿园
1、请明确砖砌踏步的砖砌材质、砌筑的砂浆等级及砖砌踏步的面层做法。

回复:图示位置砖砌踏步的砖砌材质为烧结类煤矸石实心砖、砌筑砂浆等级 M5混合砂浆、面层为18厚户外重组竹地板做法参景观上人屋面户外重组竹地板做法。
2、请明确下图填充处使用何种材料,其余节点是否按照此做法。

回复:图示填充处为素土夯实,其余节点相同图例处可安此做法。
3、如下图所示,建筑节点与结构节点不符,以何为准。


回复:以结构为准。
4、如下图所示,建筑节点与结构节点尺寸不符,以何为准。


回复:以建筑尺寸为准,配筋不变。
5、如下图所示,阁楼层结构平面图中,32/XT节点,图纸中未找到,请补充。
回复:补充32节点做法
6、如下图所示,阁楼层结构平面图中,节点做法不详,请补充。

回复:填充范围示意屋面种植池周边站墙,做法详景观设计结构图纸G-01(木平台及种植池A、B结构详图)和G-03(景墙C结构图),如

7、如下图所示,请明确屋面台阶具体做法。

回复: 图示位置屋面台阶为砖砌踏步,楼梯室内面层做法详装饰、室外踏步面层做法详景观图纸。
8、如下图所示,该位置是什么做法?

回复:图示位置为室外重组竹地板外刷水性耐候漆,详景观图纸。
9、阳台是否需做防水?请明确做法?
回复:阳台需要做防水,阳台楼地面做法同外走廊。
10、请明确屋面铝板具体规格及做法?
回复:屋面材质为立边咬合屋面板,构造做法如下:土建基层做完后铺
深咖色0.8mm厚25/330型立边咬合铝镁锰屋面板,氟碳喷涂+ 25mm高不锈钢扣件+ 8mm厚通风降丝网+1.0*70mm镀锌找平钢带+0.5mm厚YX35-125-750型镀锌压型钢板+口檩条,50*50*3mm镀锌方管,@1200mm
11、如下图所示,节点4建筑图与结构图不符,以何为准。


回复:以结构为准。
12、请明确空调百叶窗及风井百叶窗材质及壁厚为何?
回复:空调百叶窗及风井百叶窗材质为咖啡色铝合金百叶,壁厚 1.2mm。
13、请明确电梯门套具体做法。
回复:电梯门套为拉丝不锈钢,厚度为:1.2mm,参照图集13J404第40页立面一。
14、请明确匀质保温板的具体干密度为多少。

回复:匀质保温板的具体干密度为200kg/m3。
15、请明确飘窗板内装饰做法。
回复:30厚1:2水泥砂浆面层。
16、请明确幼儿园大门处“明园星都幼儿园”字体具体材料、规格及做法?
回复:幼儿园大门处字体材质为不锈钢厚度20mm字体大小、样式详立面,成品定制。
17、如下图所示,幼儿园大门-0.300以下墙体,请补充图纸。

回复:墙体落在地下室顶板上,见下图:

18、如下图所示,窗洞侧沿涂环保彩色漆,是否所有外窗窗洞侧沿均按此做法?请明确具体材料及做法?
回复:外窗窗洞侧沿均按此做法,环保彩色漆成品购买,调配至本工程所需立面效果色彩,待窗套外饰完成后,沿窗套四周均匀涂饰。
幼儿园精装修
1、请明确本工程地砖厚度为多少?
回复:无特别说明均为10mm厚。
2、请明确本工程墙面砖厚度为多少?
回复:无特别说明均为6mm厚。
3、无障碍卫生间无障碍设施、洗手台是否在本次招标范围,请明确规格材质。
回复:在本次招标范围内,洗手台为立柱式台盆,面盆304不锈钢扶手一副;马桶落地式304不锈钢扶手一副,墙面活动式304不锈钢抓手一副。扶手外径为32mm,承重300kg以上。
4、卫生间隔断是否在本次招标范围,是请明确材质规格。

回复:在本次招标范围内,隔断为25mm厚抗倍特板2000mm高。
5、请提供休闲座椅材质规格做法。


回复:成品采购童趣休闲座椅,成品采购玻璃钢座椅,参照3550*宽625*高300mm、5875*宽625*高300mm。


6、请提供大厅定制白色亚克力自发光线条规格材质参数。

回复:参考西顿CXS3528B-D10N45型号,根据施工图结合现场尺寸成品定制,白色亚克力自发光线条宽度为40mm,具体定制尺寸见施工图1F-1E-01,E01。
7、请明确教师餐厅此处为何?

回复:定制软质皮革座椅靠背,见大样图1F-D-04,D01。PU人造革,厚度0.7mm。坐垫为30mm厚50D海绵外饰0.7mmPU人造革。具体颜色样式由业主确定。
8、请明确下图三层美术室具体做法。

回复:半径400的木饰面圆形造型,后藏灯线,木龙骨支架加防火防腐处理,18厘多层防火夹板基层,12厚成品木饰面,整体造型突出墙面60mm。
9、请明确层图书馆地台面层具体做法。
回复:图书馆地台为成品免漆耐磨板。做法见大样图1F-D-02,D02。
10、二层木工坊乐高墙,乐高是否在本次范围。
回复:30x40木龙骨骨架防火防腐处理@400x400mm,十二厘多层阻燃夹板基层(乐高底板及乐高玩具配件均不在本次报价范围)。
11、三层音体室LED屏幕是否在本次范围。
回复:led屏幕仅做钢架及预留强弱电安装点位,屏幕不在范围。LED在智能化设计范围内。
12、教师餐厅电视是否在本次范围。
回复:仅预留强弱电安装点位,电视不在本次招标范围内。
13、活动室智慧黑板是否在本次范围。
回复:仅预留强弱电安装点位,智慧黑板不在范围。智慧黑板不在本次招标范围内。
14、二层构建室智能白板是否在本次范围。
回复:构建室智能白板装饰图仅示意,不在本次招标范围内。
15、三层会议室成品投影幕是否在本次范围。
回复:成品投影幕预留强弱电位置,成品投影幕不在本次招标范围内。
16、三层会议室党建喷绘是否在本次范围。
回复:喷绘仅为示意,不在本次招标范围内。
17、请提供大厅亚克力LOGE字规格材质。
回复:LOGE字体后期由广告方深化,大致尺寸约高250mm*长1820mm。
18、请明确消防楼梯地面做法。


回复:1、10mm厚仿水磨石地面砖干水泥擦缝;2、30mm厚1:3干硬性水泥砂浆结合层,表面撒水泥粉;3、素水泥浆一道(内掺建筑胶) ;4、无水房间原建筑楼板。
19、块料300*600、600*600、150*150缸砖、800*800仿水磨石砖地面厚度。
回复:块料300*600、600*600地砖厚度10mm厚;150*150缸砖厚度10mm厚;
800*800仿水磨石砖10mm厚。
20、请明确厨房排水沟做法、规格。
回复:排水沟尺寸300*300mm,装饰计入20厚1:2水泥砂浆找平、1.5厚高分子涂膜防水、20厚水泥砂浆找平、100*100mm白色瓷砖以及不锈钢篦子
21、100*100瓷砖、300*600墙面砖厚度,马赛克规格厚度材质?
回复:墙砖厚度为6mm厚,陶瓷马赛克:5mm厚,规格40*40。
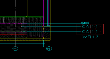
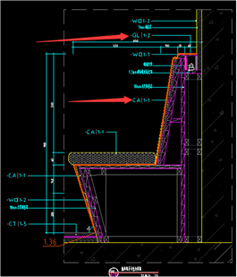
22、请提供GL1-2CA1-1材质规格?

回复:GL1-2为0.8mm厚浅绿色钢化烤漆玻璃;
CA1-1为PU人造革,厚度0.7mm。
23、请提供此墙面做法以及雪弗字具体尺寸

回复:两个三角区域做轻钢龙骨9.5mm石膏板造型,突出220mm,详见D08大样,铝方管为20*80*1.8mm,字体大小300*300mm。
24、请明确定制家具板材的材质规格。
回复:18mm厚成品免漆板,实木多层板材质。
25、请明确三层科学发展室墙面喷绘做法。

回复:此区域仅做基层(按照乳胶漆基层做,采用防水腻子,面漆和底漆不做。)彩绘墙面有校方老师自行绘制或后期委托专业单位绘制。
26、二层教具制作室无立面图,请提供柜体高度。

回复:此位置柜体高度2400mm。
27、本工程未标尺寸的柜体,是否在本次招标范围内。
回复:未标尺寸的柜体不在本次招标范围内。
28、请提供成品定制家具的材质环保要求等?

材料环保要求均按照现行规范要求的执行实施:民用建筑工程室内环境污染控制规范(GB 50325-2010)幼儿园室内装饰装修技术规范(T/CBDA25-2018)。
29、请明确二层娱乐空间地面成品喷绘的做法?
回复:地成满铺CT-2-1, 图中喷绘图案取消,后期由园方配置。
30、装饰做法(构造)一览表与图纸冲突,以何为准?
回复:以览表为准。
31、此处规格是否有误,请提供木饰面的规格材质做法。

回复:规格有误,墙面木饰面厚度为12mm免漆板,定制成品家具为18mm厚成品免漆板多层实木材质,冰火板的厚度为6mm。
32、请明确活动室防火软木板的规格材质。
回复:30x40@400x400mm木龙骨防火防腐处理,十二厘多层阻燃夹板基层,软木板的规格为1220x26000x10mm,根据图纸剪裁。
33、请明确此处线条做法。

回复:参照节点图D02/2F-D-04。
34、请提供大厅接待台材质规格。

回复:长4300m*高1100mm(800mm)*宽400mm(800mm)定制15mm厚人造石台面,18mm厚浅木纹饰面立柜。
35、门卫监控室地面材质做法。

回复:静电地板。
36、请提供大厅GRC定制仿真树规格材质。

回复:树干直径约700mm,树高约2800mm,树冠直径约2100mm。此树仅需要做一半,做成效果就像从墙里长出了一棵树的效果。
37、请提供活动室8mm厚浅绿色烤漆玻璃做法。

回复:18mm阻燃板基层面饰8mm厚浅绿色烤漆钢化玻璃。
38、门厅平面图为单层纸面石膏板,大样为双层纸面石膏板?


回复:有石膏板勾缝造型处为双层纸面石膏板。
39、请明确教室阳台无墙面天棚做法。

回复:参照建筑外墙做法。
40、窗帘是否在招标范围,是请提供材质规格。

回复:窗帘不在本次招标范围内。
41、请明确三层科学发展室金属收边条做法,规格及材质。

回复:为宽度60的木质收边条。
42、请明确三层科学发展室成品木压条具体做法及规格材质。

回复:12mm厚防火板基层找平,厚度35宽度80的半圆平成品实木线条。
43、请明确钢板刷黑板漆做法。

回复:40*40*4镀锌钢方通龙骨@1200*800,2mm厚镀锌钢板折边干挂,黑板漆底漆、面漆各两遍。
44、块料地面中防水做法是否与建筑图中重复。
回复:防水及其找平层在土建中计取。
45、请明确同质同芯无方向塑胶地板厚度。
回复:3mm厚。
46、请明确内墙、天棚涂料做法。
回复:耐水腻子两遍,底漆一遍,面漆两遍。
47、各类装饰线条做法。
回复:12mm厚防火板基层找平,粘贴各类线条。
48、活动室防火板造型做法。
回复: 30x40mm@400x400mm木龙骨防火防腐处理,十二厘多层阻燃夹板基层,防火软木板贴面,1220x2600x10mm,根据图纸剪裁。
49、请明确活动室卫生间包水管做法。
回复:8mm厚A级防火纤维水泥板基层,6mm冰火板饰面。
配套服务楼
1、请明确深灰色合成金属屋面板的金属材质及厚度等?
回复:按此做法。

备注:配电房的屋面做法统一按。
2、顶棚2石膏板吊顶,石膏板面层是否做乳胶漆,请明确。

回复:不做,按下图。

3、D~E轴/③~④轴间MLC7032过梁无截面尺寸,请明确。

回复:此处门洞高为3200mm,不做过梁,采用梁下挂做法。

4、三层上人平台栏板图纸设计无配筋做法,请明确。

回复:
5、楼梯大样图中GZ1无对应截面大样,请明确。
回复:
6、建筑二层①~②轴结构升板对应结构该部位无明确升板节点做法,请明确。(结构图中板面标高及坡屋面屋脊线应与建筑图纸对应标注在结构图纸中相应部位)。
回复:该处高板板面标高为4.750m,低板板面标高为3.920m,板厚0.25m,标高交接处梁顶标高为4.750m,梁高改为1.08m,配筋不变,可以挂住低板。结构图中板面标高同建筑图中所示“结构标高”。
7、1F结构梁图中6轴梁与建筑图纸该部位墙体不一致,请明确做法;



回复:该处梁位置以结构为准,补充结构节点相关做法如下:


8、请明确台阶、坡道石材面层的规格颜色。
回复:30mm厚600*600mm烧面芝麻灰花岗岩板。
9、地面2卫生间地面无垫层做法,请明确。

回复:地面做法:1-4工序不变,增加5、水泥浆一道(内掺建筑胶)6、60厚C15混凝土垫层;7、150厚碎石夯入土中、素土分层夯实,压实系数0.94。
10、请明确首层楼梯间的地面做法。
回复:做法:1、8~10厚防滑地砖铺实拍平,专用填缝剂填缝。
2、20厚1:3水泥砂浆结合层,表面撒水泥粉3、水泥浆一道(内掺建筑胶)4、60厚C15混凝土垫层;5、150厚碎石夯入土中、素土分层夯实,压实系数0.94。
11、无首层设备管井地面做法,请明确。
回复:做法:1、20mm厚1:3水泥砂浆找平封闭原浆压光,200mm高C20砼反坎;2、水泥浆一道(内掺建筑胶)3、60厚C15混凝土垫层;4、150厚碎石夯入土中、素土分层夯实,压实系数0.94。
备注:水暖管井增设1.5厚聚氨脂涂膜防水层。
12、内墙1、2块料,面层无粘结砂浆,请明确。

回复:内墙1:1、8厚面砖饰面(仿石材)450x450;
2、5厚1:2建筑胶水泥砂浆粘结层;
3、刷素水泥浆一道(内掺建筑胶);
4、9厚1:3水泥砂浆打底扫毛;
内墙2:1、8厚防水面砖饰面,450x300;
2、4厚强力胶粉泥粘结层,揉挤压实;
3、1.2厚聚氨脂涂膜防水;
4、9厚1:3水泥砂浆分层压实抹平;
13、请明确顶棚4及开闭所顶棚涂料的具体材质。


回复:顶棚4做法:1、钢筋砼顶板,清理打凿、修补磨平,刷大白浆。
开闭所顶棚:1、现浇钢筋混凝土板底预留^110钢筋吊环(勾),双向中距≤ 1200 2、10号镀锌低碳钢丝吊杆,双向中距≤1200,吊杆上部与底板 预留吊环(勾)固定3、U型筮钢承载龙骨CB38X12,间距≤1200,用吊件与钢筋吊杆联结后找平4、T型轻钢主龙骨TB24x38,间距600,用挂件与承载龙骨固定5、T型轻钢次龙骨TB24x28,间距600,与主龙骨插接6、5厚纤维增强水泥穿孔吸声板规格600x600螺栓固定于龙骨上。
开闭所内墙:1、墙面 2、14厚1:1:6水泥石灰砂浆打底 3、6厚1:1:6水泥砂浆 4、75x75x0.7轻钢龙骨,用膨胀螺栓与墙固定,中距1200 5、50厚岩棉毡,建筑胶粘贴于龙骨挡 内 6、玻璃布一层绷紧固定于龙骨表面 7、5厚纤维增强水泥穿孔吸声板规格600x600,螺栓固定于龙骨上。
14、请明确成品踢脚线高度和材质。

回复:成品踢脚线为不锈钢踢脚线,高度为100mm。
15、请明确内墙面砖的尺寸。

回复:公区按450x450,卫生间按450x300。
16、屋面内天沟建筑尺寸与结构大样内径尺寸不符,详见附图。


回复:按结构做内径按400取。

17、结构节点墙身大样8与建筑平面图标注标高不一致。


回复:按立面标高做(尺寸标注是正确,节点大样标高标错)。
18、外门窗框料图纸说明为金属隔热门窗框料,请明确具体材质。

回复:断热铝合金。
19、2F梁平面图中A轴KL2(4)300*1050与1F该部位窗洞冲突,请明确。


回复:梁截面尺寸改为300x1130梁顶标高为4.800。

20、1F梁顶标高图纸设计未标注。
回复:未注明梁顶标高均为-0.050。
21、外围窗顶标高为H-800,建议外围梁高调整为800mm。
回复:窗顶标高为H-800,考虑到结构降板80mm,外围梁高改为做720mm。

22、请明确天棚石膏板吊顶及铝板吊顶高度,龙骨及基层做法。
回复:高度按3.0米,1、现浇钢筋混凝土板底预留^110钢筋吊环(勾),双向中距≤ 1200 2、10号镀锌低碳钢丝吊杆,双向中距≤1200,吊杆上部与底板 预留吊环(勾)固定3、U型筮钢承载龙骨CB38X12,间距≤1200,用吊件与钢筋吊杆联结后找平4、T型轻钢主龙骨TB24x38,间距600,用挂件与承载龙骨固定。5、T型轻钢次龙骨TB24x28,间距600,与主龙骨插接6、11厚装饰石膏板吊顶规格592x592;
1、现浇钢筋混凝土板底预留%%c010钢筋吊环(勾),双向中距≤ 1200 。2、10号镀锌低碳钢丝吊杆,双向中距≤1200,吊杆上部与底板 预留吊环(勾)固定3、与安装型式配套的专用上层主龙骨,间距≤ 1 200 用吊件与钢筋吊杆联结后找平4、与铝合金方板配套的专用下层副龙骨联结,间距≤600。5、铝合金方板600x600与配套专用龙骨固定。
23、水泥砂浆踢脚高度图纸设计未标注,地砖地面部位是否采用地砖踢脚线,请明确。
回复:按100mm,地砖地面部位按地砖踢脚线,高度100mm(做法11J930-H27-4)
24、开闭所、通信室室内天棚做法图纸设计不明确,请明确。
回复:本次按刷白处理(后期根据内部配电的选型增加“纤维增强水泥穿孔吸声板”详见08J931第68页)。
25、入口台阶两侧花池做法应提供剖面详细做法。
回复:
26、室内电缆沟是否含在本次招标范围,若在,请提供电缆沟详细做法;
回复:不在本次范围。
27、外窗纱窗及防盗窗是否计入,若计入请明确详细做法及材质;
回复:外窗纱窗按铝合金型材,防盗窗不计入。
配电房
1、请明确一级防水的材料及做法。

回复:钢筋混凝土外墙+2厚橡化沥青非固化防水涂料+4厚SBS高聚物改性沥青防水卷材(II型聚酯胎)+30厚挤塑板保护层,点贴+回填粘性土(小于500厚分层回填,分层夯实,要求不含尖锐石块)。
2、坡屋面所提供的图集做法与图纸中提供的构造做法不一致,以哪个为准?

回复:以图纸构造做法为准,涂料改成铺金属板。
3、图纸中坡屋面与檐沟做法中的防水卷材是否为两道3厚SBS改性沥青防水卷材?

回复:做法为两道3厚SBS改性沥青防水卷材。
4、坡屋面深灰色涂料,请明确涂料的材质?

回复:涂料改成铺金属板。
5、内墙吸声隔音板是否做基层及龙骨,请明确材质规格等。

回复:1、墙面 2、14厚1:1:6水泥石灰砂浆打底 3、6厚1:1:6水泥砂浆 4、75x75x0.7轻钢龙骨,用膨胀螺栓与墙固定,中距1200 5、50厚岩棉毡,建筑胶粘贴于龙骨挡 内 6、玻璃布一层绷紧固定于龙骨表面 7、5厚纤维增强水泥穿孔吸声板规格600x600,螺栓固定于龙骨上。
6、顶棚吸声隔音板是否做基层及龙骨,请明确材质规格等。

回复:1、现浇钢筋混凝土板底预留^110钢筋吊环(勾),双向中距≤ 1200 2、10号镀锌低碳钢丝吊杆,双向中距≤1200,吊杆上部与底板 预留吊环(勾)固定3、U型筮钢承载龙骨CB38X12,间距≤1200,用吊件与钢筋吊杆联结后找平4、T型轻钢主龙骨TB24x38,间距600,用挂件与承载龙骨固定5、T型轻钢次龙骨TB24x28,间距600,与主龙骨插接6、5厚纤维增强水泥穿孔吸声板规格600x600螺栓固定于龙骨上。
7、屋面内天沟结构大样与梁平面布置图不符,详见附图。


回复:按结构。
8、室内电缆沟是否含在本次招标范围。
回复:不在本次范围。
9、水泥砂浆踢脚线高度图纸未标注,请明确。
回复:按100mm。
(二)、安装工程
1-3#楼
1、户内是否需每户预留一个水龙头。
回复:每户预留一个不锈钢水龙头。
2、下图雨水口图纸设计做法参照16S518,请明确具体页数。

回复:现根据排水办意见冷凝水接入水封井排至污水井,水封井详图集04S519-38。
3、系统图有设计市电监测线回路,但平面图无设计,请明确。
回复:市电检测回路分别连接Nz1和Ny1、Nz2和Ny2、Nz3和Ny3。
4、配电箱Nz1/2/3系统图设计公共照明为5个回路,但平面图为3个,请明确。
回复:按平面图为准。
5、配电箱1AP1,2出线系统图设计有至APxbpf箱回路,但平面图无设计,请明确。
回复:此箱为消防泵房排风扇配电箱,详见地库图。
6、APEzy1配电箱系统图有设计至液位传感器回路,但平面图无设计,请明确。
回复:液位传感器线路路由同水泵电源路由。
7、太阳能集热器材质请明确。
回复:太阳能平板。
8、压力排水系统阀门材质请明确。
回复:球墨铸铁。
9、火灾报警系统小设备按平面图还是系统图工程量请明确。
回复:以平面图为准。
10、给水系统、消防系统保温具体部位请明确。
回复:给水系统、消防系统室外明露管道部分需保温,其余不需要做保温。
11、1-3#单体楼下图名称、规格型号及安装高度请明确。

回复:门磁开关,防火门门磁开关门头上方安装。
12、请明确就近哪个插座。

回复:上方卧室右下角插座。
13、明园星都1-3#楼水封井到污水检查井管材材质请明确。
回复:1/3#楼按柔性接口排水铸铁管,法兰承插式柔性连接;2#楼按排水用硬聚氯乙烯实壁管(防紫外线),承插胶粘连接。
14、下图地漏材质请明确。

回复:铝合金。
15、图纸设计说明设计雨水管有阳台雨水管,但平面图无设计,请明确。

回复:全部按屋面雨水管计入。
16、明园星都1#楼下图配管配线规格型号请明确。

回复:按JDG20计入,仅计预埋。
17、明园星都1#楼系统图设计预埋管为SC125、SC100,但平面图设计为SC150、SC125,请明确。


回复:按SC125、SC100计入。
18、2#楼给水系统屋顶水箱进出水与给水系统图管材规格型号不一致,请明确。


回复:按DN40计入。
19、请明确消防控制室设备具体参数。
回复:各类消防设备需满足规范中的以下要求:
任一台火灾报警控制器所连接的火灾探测器、手动火灾报警按钮和模块等设备总数和地址总数,均不应超过3200点,其中每一总线回路连接设备的总数不宜超过200点,且应留有不少于额定容量10%的余量。任一台消防联动控制器地址总数或火灾报警控制器(联动型)所控制的各类模块总数不应超过1600点,每一联动总线回路连接设备的总数不宜超过100点,且应留有不少于额定容量10%的余量。
系统总线上应设置总线短路隔离器,每只总结短路隔离器保护的火灾探测器、手动火灾报警按钮和模块等消防设备的总数不应超过32点。
20、给水系统及消防给水系统阀门材质请明确。
回复:给水系统按铜质,消防给水系统按球墨铸铁计入。
幼儿园
1、屋顶预留油烟净化机组、厨房洗菜盆、厨房炊具等是否在本次招标范围请明确。

回复:不在本次招标范围。
2、污水系统中WL11-14平面图设计为DN100,系统图设计为DN150,请明确。
回复:以平面图为准。
3、配电箱1/2/3ALe安装高度请明确。
回复:明装高度1600mm。
4、图纸平面图设计从一层引上,但一层未设计从何处引上,请明确。

回复:如图所示。

5、下图喷淋管道请明确从何引入及管道规格,请明确。
回复:喷淋管道由二层喷淋管引上,干管管径为DN65。

6、给排水管道埋深,请明确。
回复:负0.6m。
7、系统图设计为RHL-与RHL’相连接,平面图设计无,请明确。


回复:需要相连接。
8、FL-10系统图与平面图规格型号不一致请明确。


回复:以系统图为准。
9、YL-16系统图设计有部分埋地,但平面图无设计,请明确。

回复:该雨水管向北排出,接入室外雨水井。
10、中水系统管材材质、连接方式及自动排气阀规格型号请明确。
回复:管材材质按硬聚氯乙烯实壁管,承插胶粘连接,自动排气阀
按DN15。
11、下图灯具名称、规格型号请明确。
1200x150 LED 平板灯 36W
1200x150 LED 平板灯36W,吸顶安装
中间圆圈部分为LED软灯带,间隔20cm一道
椭圆形及中间圆形部分为LED软灯带,间隔20cm一道
嵌入式光纤灯
回复:在各个图形后面标注了,电气设计图例表中有相关内容。
12、配电箱Apkqy出线敷设方式请明确。
回复:沿墙或沿地面明敷。
13、平面图设计有JL-7,但系统图无,请明确。
回复:施工以平面图为准。
14、平面图设计WL-2为两根,是否其中一根为WL-3,请明确。

回复:是。
15、给水系统、热水系统、中水系统、喷淋系统自动排气阀规格型号请明确。

回复:给水系统、热水系统、中水系统按DN15,喷淋系统按DN25。
16、热水系统管道是否需保温请明确。
回复:需要保温,保温采用30mm厚的泡沫橡胶为绝热层,外缠玻璃丝布两道,并采用玻璃钢铝箔防水。
17、卫生洁具安装做法请明确。
回复:
幼儿园卫生洁具按建筑专业图纸所选择图集(具体材质及尺寸若与精装不符,以精装修为准)
18、请明确哪部分是儿童洁具哪部分是成人洁具。
回复:卫生洁具:幼儿活动室:每间有一个成人蹲便器(带门全隔断内),一个洗手盆(台面较宽的位置);其余蹲便器及小便器均为儿童洁具。保健观察室:卫生洁具均为儿童洁具。其他位置的卫生间、无障碍卫生间均为成人洁具。
19、公共部位可能结冰的指哪部分管道请明确。

回复:所有室外明露管道。
20、电气图纸设计的排气扇数量与暖通图纸数量不一致,请明确。
回复:以暖通图纸为准。
21、给水系统及消防给水系统阀门材质请明确。
回复:给水系统按铜质,消防给水系统按球墨铸铁计入。
配套服务楼
1、除湿机预留箱的配管规格APkb和NKb配电箱系统图和Mcs配电箱系统图不一致,请明确。


回复:以APkb和NKb配电箱系统图为准。
2、配套服务用房水封井具体做法请明确。
回复:水封井详图集04S519-38。
地下车库
1、给水工程:消防泵房内消防水池进水管工程量是否在本次范围内,请明确。
回复:不在本次范围。
2、排污泵系统,生活泵房内2-1#集水坑大样图排水管管径标注为DN80与平面图标注为DN100不一致,请明确?如果以平面图DN100排水管为准,大样图上对应的DN65的阀门规格是否需要修改,请明确。

回复:以大样图为准。
3、电气消防报警系统,人防部分“YT”线型配管、配线规格图纸未标注,请明确。

回复:YT,应急照明控制系统通讯线采用 WDZBN-RYS-2X1.5-RC16。
4、地下室人防部分平面上所有系统在防护阀门前后标注为“刚性防水套管、柔性防水套管”等套管是否有误,如截图所示,请明确。

回复:以图纸标注为准。
5、地下室喷淋系统,末端排水管材质未说明,请明确。

回复:采用与喷淋管相同材质。
6、地下室部分设备房内排气扇末端如下图请明确名称、规格型号等。

回复:为单层百叶风口,尺寸120x120,并内衬防虫钢丝网。
7、地下室人防部分排污泵系统,排水管管材质图纸未设计,请明确。
回复:热浸锌镀锌钢管。
8、消防泵房内管道材质图纸说明为“高区消火栓管采用热镀锌无缝钢管,减压阀后消火栓管道、喷淋管道采用国标热镀锌加厚钢管,卡箍连接。水泵吸水管选用热浸镀锌焊接普通钢管,焊接”。除水泵吸水管材质明确以外,泵房平面图上其他管道工程量无法区分具体为何种材质管道。请明确。
回复:水泵出水口后消火栓采用热镀锌无缝钢管,喷淋系统采用热镀锌普通钢管。
9、消防泵房内泄压阀连接的管道规格,系统大样图标注为DN100与平面图上标注为DN150不一致,请明确。
回复:DN150。
10、地下室非人防部分,总配电箱4AP1系统图出线回路至配电箱Apxbpf室外路由图纸未设计,请明确。
回复:此回路取消,消防泵房排风改为由1#楼接引电源。
地下车库人防
1、地下室人防图纸设计说明为“战时安装、临战安装、战时明装、战后安装”等战时安装工程是否在本次招标范围内。
回复:不在本次招标范围。
2、地下室人防图纸战时给水系统,总进水管从室外建筑物外墙皮5米处开始计入(不含室外阀及阀门井);给水支管至生活饮用水箱预留2米管道并且计入一个截止阀(不含浮球阀);给水支管至战时气压自动给水设备预留2米管道并且计入一个截止阀(不含战时生活泵给水泵、手摇泵、气压罐等成套设备);战时饮用水箱(成套设备含附件安装)不计入;请明确。

回复:是。
3、地下室人防卫生间内干式马桶是否在本次招标范围内,请明确。
回复:不计入。
4、地下室人防图纸内区域电站设备是否在本次招标范围内计入,请明确。

回复:区域电站设备及出线电缆不计入。
5、地下室人防图纸总配电系统图上配电箱APr与配电系统APrz是否为同一个配电箱。如果是,回路编号“2”的电缆规格、型号不一致,以哪个为准?
回复:同一配电箱,回路编号“2”电缆为2#-WDZB-YJY-4X25+1X16-CT。
6、地下车库战时三防、通讯系统仅计入预留、预埋,线缆不计入,请明确。
回复:是,仅计预留预埋。
7、地下室人防战时通风图,防护单元一、二、三主要材料表内混流式战时排风机,是否是对应平面图上排风机编号:ZPF-1、ZPF-2、ZPF-3排风机。如果是排风机ZPF-1参数“余压值”平面图和材料表不一致,请明确。
回复:是,以平面图为准。
8、人防工程量按照《安徽省人民防空办公室关于人防工程平战功能转换要求的通知》(皖人防〔2016〕 131号)文件、《安徽省人民防空办公室关于依法加强人防工程防护设备市场监管的实施意见》(皖人防〔2017〕56号)、《关于人防工程专用设备采购纳入合肥市公共资源交易平台进行交易的会议纪要》(2018年4月24日)及其附件内容要求计入在本次招标范围内(详见下表附件),请明确。


回复:是。
室外安装
1、室外景观给水喷灌系统,给水管材图纸设计说明为采用PVC-U给水管,请明确。
回复:是。
2、室外消防管网图纸设计材质为“无缝钢管”且图纸涉及无管道防腐,请明确。
回复:按无缝钢管计入,无防腐设计。
3、请明确取水口碎石垫层尺寸。

回复:0.3*0.3*0.4m。
4、室外消防集成图中到每个单体及地库配管与单体地库图纸中进线设计不一致,请明确。
回复:室外消防集成图按单体及地库进线规格计入。
智能化
1、智能化清单中包含机房装饰部分,请明确是否在本次招标范围。
回复:在本次招标范围,计入明园星都1#楼土建装饰工程中。
2、智能化系统按图纸还是按智能化清单计入,请明确。
回复:按智能化清单计入。
室外工程
景观部分
1、幼儿园屋顶屋面变形缝处、门入口处台阶是否计入,如计入请明确做法、材质等,是否同18厚室外重组竹地板台阶面做法,请明确。

回复:景观图纸工程量仅包括屋面变形缝处及入口处台阶的外饰面装饰做法,做法同18厚室外重组竹地板。
2、下图红色箭头处木板地面(幼儿园屋顶花园),做法是否同18厚室外重组竹地板做法,外刷彩色涂料为何品种,请明确。

回复:为水性耐候漆。
3、看台1-1、2-2剖面处台阶及平台混凝土基层是否需要计入,请明确。


回复:计入,改为砖砌台阶,已补详图。
4、屋面变形缝处混凝土台阶及台阶面层是否计入,请明确。

回复:景观图纸工程量仅包括屋面变形缝处的外饰面装饰做法,做法同18厚室外重组竹地板。
5、景墙C两侧踏步图纸未见做法、铺装材质等,请明确。

回复:此处踏步做法同E-03-①做法,踏步宽度以平面标注为准。
排水工程
1、 接入市政雨污检查井是否计入,请明确。

回复:市政检查井不计入。
2、平面图中1型隔油池图纸未见做法或图集,请明确。

回复:详见《小型排水构筑物》-04S519。
3、雨水收集回用收集池进水井、取水井、检修口等井的做法图纸
未见,请明确。

回复:雨水回收整个系统需单独招标,本设计不作为现场施工清单。
绿化工程
1、本工程现场原有土方是否可以利用,请明确。若不利用,现场土方如何考虑?现场是否可以堆放多余土方。余方运距如何考虑。
回复:现场挖出土方不利用,现场不考虑堆放多余土方,多余土方全部外运,绿化回填土为外购种植土。取、弃土运距投标人勘察现场,自行考虑,中标后不予调整。弃土点由投标人在勘察现场后自行考虑,实际运距或超出部分的运距、土源费、渣土费、弃土场等由投标单位勘察现场后自行考虑,在投标报价中充分考虑弃土场费、土源费、保洁费、渣土费、协调费、清表、修建运输通道及地下障碍物等费用,以及市容、路政、环保部门征收的等一切费用,综合考虑在报价中,中标后综合单价一律不予调整。
2、种植前对土壤进行改良,增加腐殖土、砂、珍珠岩进行土壤改良,腐殖土为什么土,与砂、珍珠岩配合比多少,请明确。
回复:腐殖土,是植物枝叶在土壤中经过微生物分解发酵后形成的营养土。土壤改良需因地制宜,其配合比应基于对现状土壤的理化性质分析上由施工方报技术措施方案,经甲方审核确定,可拌和15%泥炭土作为种植营养土。不同的植物,乔木、灌木、草坪对土壤的理化性质要求是不一样的。具体标准请参照《绿化种植土壤》CJ/T340-2016。
3、绿化成活养护、保存养护时间图纸,请明确。
回复:详见施工说明,养护期两年,养护等级为一级养护,成活养护为3个月,保存养护21个月。
4、苗木表与苗木平面图数量不一致,以哪个为准,请明确。
回复:以苗木表为准。
三、附件
答疑发布日期:2020年05月18日